日文说明书中利用照片作为图示的注意事项
- 格式:doc
- 大小:29.00 KB
- 文档页数:2
第一章 コンピュータの基礎知識第一章 电脑的基础知识1.1 コンピュータシステムデジタルカメラで写真をと撮ったら、写真のデータをパソコンに取り込んで、色調したり、トリミみングをするなど加工かこうを行い、加工済みデータをプリンターに送って印刷します。
これが、入力→処理→出力の流れです。
コンピュータシステムも同様で、入力装置から入力したデータを処理装置が加工して、出力装置で出力します。
1. 1 电脑体系如果用数码相机拍照的话,照片的数据导入到电脑中,对色调进行美容加工,将加工后的数据送到打印机里打印。
这就是输入→处理→输入的流程。
电脑体系也是同样的,从输入设备的数据输入,处理设备加工,输出装置确认。
1.入力装置コンピュータでデータを処理しょりするためには、その元になるデータを入力にゅうりょく装置そうちから取とりり込こみます。
処理された結果けっかは出力装置で表示・印刷して確認することができます。
取り込むデータ(文字、画像、音など)の種類に合わせて入力装置を使い分け、結果をどのように見たいかによって出力装置を選びます。
入力装置には、文字や数字を入力する文字入力装置、画面上の位置を表す座標を入力する座標入力装置(ポインティンダデバイス)、写真や絵を読み取る画像入力装置などがあります。
1. 输入设备在计算机中对数据进行处理,从输入设备中导入数据。
处理的结果在输出设备上表示,可以通过打印进行确认。
根据导入的数据(文字,图像,声音等)的种类配合使用不同的输出设备,想看到什么结果取决于选择的输出设备。
输入设备中,文字和数字用文字输入设备输入;画面上的坐标位置用坐标输入设备表示;读取照片和图画用图像输入设备。
入力装置の種類と特徴:输入设备的种类和特征:①文字入力(1)キーボード文字・数字・記号の入力を行う。
(2)光学式文字読み取り装置手書きや印刷された文字に光を当てて、その反射光によってデータの入力を行う。
(3)バーコードリーダーバーコードから英字や数字を読み取る装置で、POS システムを中心に広く使われている。
Q 9001:2008 (ISO 9001:2008) 品質マネジメントシステム-要求事項(1)目次ページ序文0.1 一般0.2 プロセスアプローチ0.3 JIS Q 9004 との関係0.4 他のマネジメントシステムとの両立性1 適用範囲1.1 一般1.2 適用2 引用規格3 用語及び定義4 品質マネジメントシステム4.1 一般要求事項4.2 文書化に関する要求事項5 経営者の責任5.1 経営者のコミットメント5.2 顧客重視5.3 品質方針5.4 計画5.5 責任,権限及びコミュニケーション5.6 マネジメントレビュー6 資源の運用管理6.1 資源の提供6.2 人的資源6.3 インフラストラクチャー6.4 作業環境97 製品実現7.1 製品実現の計画7.2 顧客関連のプロセス7.3 設計・開発7.4 購買7.5 製造及びサービス提供7.6 監視機器及び測定機器の管理8 測定,分析及び改善8.1 一般8.2 監視及び測定8.3 不適合製品の管理8.4 データの分析8.5 改善附属書A(参考)JIS Q 9001:2008 とJIS Q 14001:2004 との対比附属書B(参考)JIS Q 9001:2000 からJIS Q 9001:2008 への変更参考文献まえがきこの規格は,工業標準化法第14 条によって準用する第12 条第 1 項の規定に基づき,財団法人日本規格協会(JSA)から,工業標準原案を具して日本工業規格を改正すべきとの申出があり,日本工業標準調査会の審議を経て,経済産業大臣が改正した日本工業規格である。
これによって,JIS Q 9001:2000 は改正され,この規格に置き換えられた。
この規格は,著作権法で保護対象となっている著作物である。
この規格の一部が,特許権,出願公開後の特許出願,実用新案権又は出願公開後の実用新案登録出願に抵触する可能性があることに注意を喚起する。
経済産業大臣及び日本工業標準調査会は,このような特許権,出願公開後の特許出願,実用新案権及び出願公開後の実用新案登録出願にかかわる確認について,責任はもたない。
⽇本蜡烛图教程(⼀)什么是蜡烛图交易?在我们的动画⾓⾊哥斯拉还是⼀只可爱的⼩蜥蜴时,⽇本⼈就已经创造了他们⽤来交易⼤⽶的古⽼版本技术分析⽅法。
对,就是⽤来交易⼤⽶的⽅法。
⼀名叫做史蒂夫·尼森(Steve Nison)的西⽅⼈“发现”了“⽇本蜡烛图”的技术秘密,并从众多的⽇本经纪商那⾥学到这门独特的交易技术。
尼森从此和⽇本蜡烛图结下了不解之缘,他⽇以继夜的研究这门独到的技术⽅法,并开始着⼿相关书籍的写作。
慢慢的,这门神秘的技术分析⽅法在上个世纪90年代流⾏开来。
长话短说,要是没有史蒂夫·尼森,⽇本蜡烛图可能仍是不为⼈知的秘密。
那么,什么是外汇蜡烛线呢?解释它最好的⽅法是使⽤图形:蜡烛线能够分割为不同的时段进⾏使⽤,不管是1天、1⼩时、30分钟,都不是问题。
蜡烛图⽤来描述特定时间内的价格波动状况。
✿蜡烛线由⼀定时间以内的开盘价、收盘价、最⾼价和最低价组成;✿如果收盘价⾼于开盘价,我们称该蜡烛线为阴线;✿如果收盘价低于开盘价,我们称该蜡烛线为阳线;✿蜡烛线的中空部分我们称为“实体”;✿蜡烛线上部分和下部分细线我们称为影线;✿上影线的顶部为“最⾼点”;✿下影线的底部为“最低点”。
K线实体和影线看看我性感的⾝材!性感的⾝材和⼈类有不同的体型⼀样,蜡烛线也有不同的类型。
当我们把蜡烛线⽤在外汇交易中时,没有什么⽐识别出蜡烛线的形态更有⽤了。
蜡烛线越长,意味着汇价买盘或卖盘越强。
蜡烛线越短,意味着汇价买盘或卖盘活动不强。
在街头外汇⾏话中,⽜市意味着上涨⾏情,⽽熊市则意味着下跌⾏情。
长阳线显⽰出汇价的买盘强劲。
阳线越长,汇价收盘价就越⾼于开盘价。
这意味着,汇价⾃开盘价⼤幅⾛⾼,且买⽅⼒量强⼤。
换句话说,市场多头⼒量超过空头,并最终推⾼汇价。
长阴线显⽰汇价卖盘强劲。
阴线越长,汇价收盘价就越低于开盘价。
这意味着,汇价⾃开盘价⼤幅下跌,且卖⽅⼒量强⼤。
换⼀句话说,市场空头⼒量盖过多头,并最终推低汇价。
篇一:sb3日文说明书简略译文(文字版)一、操作说明鼠标操作:1、基本操作:左键选择/决定右键取消2、视点操作旋转:拖曳左键扩大缩小:左右拖曳右键或滚轮上下移动:上下拖曳右键移动:左右拖曳平面移动:按住滚轮拖曳3、h操作活塞:左键(根据点击时机不同,会出现种类各异的活塞运动模式)搅拌/律动:拖曳左键(摇动是搅拌,按住不放则是律动)自动:在按左键进行活塞运动同时上下滑动滚轮(向上为快速,向下为慢速)[注意:自动模式中快感槽不增加]键盘操作:(笔记本键盘,无法对应说明书,只介绍基本操作)1、基本操作数字键1-0说明:1:左上角日期/时间带显示on/off2:help on/off3:3段背景4:障碍物on/off5:视点中心(十字椭圆)on/off6:饰品on/off7:裙裾on/off8:咸猪手on/off9:服装on/off0:色狼on/off-(0右侧键):凶器on/off紧急回避:esc系统菜单:f1强制退出:alt+f4场景旋转:“\”为逆向旋转,“.”为正向旋转,“/”复原。
拉远视角:“]”拉近视角:“;”摄影:prtsc键。
所拍下的图像保存在“sexyビーチ3”--“data”--“cap”文件夹当中。
二、亲密度上升亲密度作为与女孩子亲密程度的表示,随着约会次数增加而发生特殊情景并得到提升。
伴随着关系的进一步深化,会增加新的泳装与饰品,涂油与h也成为可能。
另外亲密度分为5个级别,涂油与h场景及其中的内容随着亲密度提升而增加。
三、约会画面カメラ:主视点设定,五个选项从上到下分别为:リセット:视点回到初期位置フェイス:以脸部作为中心视点バスト:以胸部作为中心视点ウェスト:以私处作为中心视点ヒップ:以臀部作为中心视点オート:视点自动旋转最右侧的四个选项,从上到下分别为:换装、涂油、h、回到大地图。
四、换装1、横向的选项分别为:ミズキ(泳装):泳装分为4种类(纵向选择),未达到所需亲密度标准的泳装无法选择。
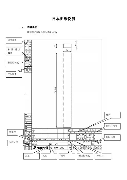
日本图纸说明一、 图幅说明日本图纸图幅各部分功能如下:二、日本图纸视角日本采用的是第三视角法(在图纸图框右下角用“第3角法”标出),中国采用的是第一视角法。
第一视角法,也称第一象限法,俗称投影法;第三视角法,也称第三象限法,俗称镜面法。
第一角和第三角的区别:任何物体在空间位置都有八个位置,即所谓视角。
第一视角就是把物体放在座标系的第一象限;人在第一象限前方,人眼位置是光源,是人眼-物体-图形的顺序。
把物体向YZ平面投影得到主视图,向XY平面投影得到府视图,向XZ平面投影得到右视图。
即物体放在图纸和你的眼睛中间,从眼睛方向投影到图纸上。
第三视角就是把物体放在座标系的第三象限,人还是在第一象限前方,用人眼透过座标平面去看物体,是人眼-图形-物体的顺序。
人眼所看到的物体在YZ平面留下的投影得到主视图,在XY平面留下的投影得到仰视图,在XZ平面留下的投影得到左视图。
第三视角是所见即所得,眼前看到什么就画下什么。
即图纸放在实物和你的眼睛中间,实物往你的眼睛方向投影到图纸上,简单说就是左视图在左边,右视图在右边。
三、表面粗糙度日本用倒三角符号表示粗糙度,如下表所示,一个▽表示粗糙度25,两个▽表示6.3,三个▽表示1.6,四个▽表示0.2,“~”表示不作表面粗糙度要求的表面(按原材料的精度控制)。
注:1、若表面粗糙度符号上有字母“G”,代表研磨、磨削加工。
四、尺寸公差日本图纸中很少标注尺寸公差,一般根据制作工艺的不同和孔、外形的类别加以区分。
注意:并不是尺寸要求不严格才不标注公差的,只有在一般未注公差不能满足要求情况下才在图纸上标注公差,有时候标注的公差要比一般未注公差宽松。
1、切削加工一般公差2、钻头加工一般公差3、冲压加工一般公差4、焊接加工一般公差五、焊接符号说明日本的焊接符号与中国基本相同,存在以下几点差异:1、焊缝高度日本图纸中没有对焊缝尺寸进行标注,如下表所示,焊缝高度的确定是根据焊接板材的料厚和单侧、双侧焊接确定的。
日本图纸说明一、 图幅说明日本图纸图幅各部分功能如下:切削加工未注圆角R0.8冲压加工原材料尺寸材质表面粗糙度二、日本图纸视角日本采用的是第三视角法(在图纸图框右下角用“第3角法”标出),中国采用的是第一视角法。
第一视角法,也称第一象限法,俗称投影法;第三视角法,也称第三象限法,俗称镜面法。
第一角和第三角的区别:任何物体在空间位置都有八个位置,即所谓视角。
第一视角就是把物体放在座标系的第一象限;人在第一象限前方,人眼位置是光源,是人眼-物体-图形的顺序。
把物体向YZ平面投影得到主视图,向XY平面投影得到府视图,向XZ平面投影得到右视图。
即物体放在图纸和你的眼睛中间,从眼睛方向投影到图纸上。
第三视角就是把物体放在座标系的第三象限,人还是在第一象限前方,用人眼透过座标平面去看物体,是人眼-图形-物体的顺序。
人眼所看到的物体在YZ平面留下的投影得到主视图,在XY平面留下的投影得到仰视图,在XZ平面留下的投影得到左视图。
第三视角是所见即所得,眼前看到什么就画下什么。
即图纸放在实物和你的眼睛中间,实物往你的眼睛方向投影到图纸上,简单说就是左视图在左边,右视图在右边。
三、表面粗糙度日本用倒三角符号表示粗糙度,如下表所示,一个▽表示粗糙度25,两个▽表示6.3,三个▽表示1.6,四个▽表示0.2,“~”表示不作表面粗糙度要求的表面(按原材料的精度控制)。
注:1、若表面粗糙度符号上有字母“G”,代表研磨、磨削加工。
四、尺寸公差日本图纸中很少标注尺寸公差,一般根据制作工艺的不同和孔、外形的类别加以区分。
注意:并不是尺寸要求不严格才不标注公差的,只有在一般未注公差不能满足要求情况下才在图纸上标注公差,有时候标注的公差要比一般未注公差宽松。
1、切削加工一般公差2、钻头加工一般公差3、冲压加工一般公差4、焊接加工一般公差五、焊接符号说明日本的焊接符号与中国基本相同,存在以下几点差异:1、焊缝高度日本图纸中没有对焊缝尺寸进行标注,如下表所示,焊缝高度的确定是根据焊接板材的料厚和单侧、双侧焊接确定的。
电磁分离器型号:CG型/AT-CG型(水冷式/风冷式)使用说明书・为了安全使用本机,请务必在使用前阅读本说明书,并在充分理解本说明书的内容后正确使用本机。
・请始终将本手册保存在适当的位置,以便在需要时随时阅读。
日本磁力株式会社CE日文第00版2020.07原始说明(Original instructions)目录简介关于本使用说明书 (3)保修范围和免责声明 (4)联系我们 4关于同捆的使用说明书 (4)定义警告标记 (5)1章安全注意事项1.1 安全说明 .................................................................................... 1-11.1.1 一般说明 ..................................................................................... 1-11.1.2 安装、操作、驾驶、维护时的注意事项 ................................. 1-11.2 安全装置 .................................................................................... 1-51.2.1 保护设备的名称和功能 ............................................................. 1-51.2.2 保护位置 ..................................................................................... 1-51.3 警告标签和铭牌 ........................................................................ 1-61.3.1 警告标签类型和位置 ................................................................. 1-61.3.2 铭牌和粘贴位置 ......................................................................... 1-72章摘要2.1 设备类型 .................................................................................... 2-12.2 各部分的名称 ............................................................................ 2-22.3 各部的名称和作用 .................................................................... 2-32.4 规格 ............................................................................................ 2-42.4.1 本体规格...................................................................................... 2-42.4.2 每个设备的规格.......................................................................... 2-72.4.3 附属品........................................................................................ 2-133章驾驶3.1 驾驶注意事项 ............................................................................ 3-13.2 控制板功能 ................................................................................ 3-33.2.1 名称和功能.................................................................................. 3-33.3 驾驶准备 .................................................................................... 3-73.3.1 屏幕组.......................................................................................... 3-73.3.2 油泵自动停止定时器设置........................................................ 3-103.3.3 设置配料供应时间(ATCG) ................................................. 3-113.4 开始运行前的检查 .................................................................. 3-123.4.1 更换通风口................................................................................ 3-123.4.2 检查冷却水(仅限水冷式).................................................... 3-133.4.3 绝缘油的确认............................................................................ 3-133.5 打开和关闭电源 ...................................................................... 3-143.5.1 打开电源.................................................................................... 3-143.5.2 断电............................................................................................ 3-153.6 试车 .......................................................................................... 3-163.7 手动操作 .................................................................................. 3-173.8 自动驾驶操作 .......................................................................... 3-183.8.1 自动操作/停止按钮................................................................... 3-183.8.2 无自动操作/停止按钮............................................................... 3-183.9 紧急操作 .................................................................................. 3-193.9.1 紧急情况下的紧急停车............................................................ 3-193.9.2 重新启动.................................................................................... 3-194章加油4.1 边油的补充和更换 .................................................................... 4-15章定期检查5.1 日常检查 .................................................................................... 5-25.1.1 励磁电压和励磁电流的确认...................................................... 5-35.2 1周检查 ...................................................................................... 5-45.3 1个月检查 .................................................................................. 5-45.4 检查3个月 .................................................................................. 5-55.5 6个月检查 .................................................................................. 5-65.6 1年检查 ...................................................................................... 5-75.7 其他维护 .................................................................................. 5-116章故障排除6.1 磁选性能降低的情况 ................................................................ 6-27章接收,安装和处置7.1 收货人 ........................................................................................ 7-17.1.1 确认的地方.................................................................................. 7-17.1.2 检查铭牌...................................................................................... 7-17.2 安装 ............................................................................................ 7-27.2.1 空间和安装.................................................................................. 7-37.2.2 布线工作...................................................................................... 7-57.3 废弃 ............................................................................................ 7-9简介感谢您购买我们的CG型电磁分离器/AT-CG型电磁分离器。
日本图纸说明日本图纸说明一、图幅说明日本图纸图幅各部分功能如下:切削未注表面冲压材质原材热处图纸表面重量机型图号表面不加二、日本图纸视角日本采用的是第三视角法(在图纸图框右下角用“第3角法”标出),中国采用的是第一视角法。
第一视角法,也称第一象限法,俗称投影法;第三视角法,也称第三象限法,俗称镜面法。
第一角和第三角的区别:任何物体在空间位置都有八个位置,即所谓视角。
第一视角就是把物体放在座标系的第一象限;人在第一象限前方,人眼位置是光源,是人眼-物体-图形的顺序。
把物体向YZ平面投影得到主视图,向XY平面投影得到府视图,向XZ 平面投影得到右视图。
即物体放在图纸和你的眼睛中间,从眼睛方向投影到图纸上。
第三视角就是把物体放在座标系的第三象限,人还是在第一象限前方,用人眼透过座标平面去看物体,是人眼-图形-物体的顺序。
人眼所看到的物体在YZ平面留下的投影得到主视图,在XY平面留下的投影得到仰视图,在XZ平面留下的投影得到左视图。
第三视角是所见即所得,眼前看到什么就画下什么。
即图纸放在实物和你的眼睛中间,实物往你的眼睛方向投影到图纸上,简单说就是左视图在左边,右视图在右边。
三、表面粗糙度日本用倒三角符号表示粗糙度,如下表所示,一个▽表示粗糙度25,两个▽表示6.3,三个▽表示1.6,四个▽表示0.2,“~”表示不作表面粗糙度要求的表面(按原材料的精度控制)。
注:1、若表面粗糙度符号上有字母“G”,代表研磨、磨削加工。
四、尺寸公差日本图纸中很少标注尺寸公差,一般根据制作工艺的不同和孔、外形的类别加以区分。
注意:并不是尺寸要求不严格才不标注公差的,只有在一般未注公差不能满足要求情况下才在图纸上标注公差,有时候标注的公差要比一般未注公差宽松。
1、切削加工一般公差尺寸(mm)公差(中级)0.5-6 ±0.1>6-30 ±0.2>30-120 ±0.3>120-315±0.5>315-1000±0.8 2、钻头加工一般公差尺寸(mm)尺寸差(孔径)尺寸差(孔间)0.5-6 +0.1±0.1>6-30 +0.2±0.2>30-120 +0.3±0.3>120-315 / ±0.5 >315-1000 / ±0.8 >1000-2000 / ±1.23、冲压加工一般公差尺寸(mm) 尺寸差(孔径)尺寸差(孔间)尺寸差(外形)尺寸差(角度)0.5-30+0.1±0.2 ±0.4 ±1°>30-120+0.2±0.3 ±0.7 ±30′>120-315+0.4±0.5 ±1 ±20′>315-1000 / ±0.9 ±1.8 ±10′>1000-2000 / ±1.5 ±3 / 4、焊接加工一般公差尺寸(mm)尺寸差(孔间)尺寸差(外形)尺寸差(角度)0.5-30 ±0.2 ±1 ±1°>30-120 ±0.3 ±1.5 ±30′>120-315 ±0.5 ±2 ±20′>315-1000 ±0.8 ±3 ±10′>1000 ±1.5 ±4 /五、焊接符号说明日本的焊接符号与中国基本相同,存在以下几点差异:1、焊缝高度日本图纸中没有对焊缝尺寸进行标注,如下表所示,焊缝高度的确定是根据焊接板材的料厚和单侧、双侧焊接确定的。
解析⽇本帝⼈痛风药说明书中提到的⼀些重点注意事项帝⼈痛风药是⽬前⽐较主流的痛风药,在抗击痛风上效果表现⾮常出.⾊,所以收获了⼤量的拥护者。
这款帝⼈痛风药属于进⼝药.物,在国际社会上已经颇有名⽓,不过⽬前还没有⼤规模在我们国家上市,所以相信⼤家难免会有些许担忧,其实⼤家不妨去了解和尝试下,相信帝⼈痛风药是绝.对不会让⼤家失望的。
痛风是⼀种让⼈深恶痛绝的疾.病,⽬前痛风的发病率有⼤幅度升⾼的趋势,这意味着在将来越来越多的⼈将⾯对痛风,那么为什么痛风的发病率会⼤幅度提⾼呢?主要原因有⼈们⽣活⽅式的不当,虽然具体诱发痛风的病因⽬前还不清楚,但是可以肯定的是和⾼尿酸⾎症有着千丝万缕的联系。
简单来说我们⼈体都是含有⼀定嘌呤类物质的,可是因为我们平⽇⾥⾷⽤的⾷物中的嘌呤遭到分.解,产⽣了尿酸,⽽尿酸堆积过多就容易积累在我们⾝体的各个器.官中。
因为是⽇本的药,说明书是⽇⽂的,很多⼈都看不懂,下⾯会为各位介绍⼀下说明书中提到的主要副.作⽤。
那么帝⼈痛风药究竟效果如何呢?简单来看在使⽤⼀天的时间内⾎尿酸的浓度就会⼤幅度下降,在使⽤完的⼀个⽉时间内都是下降的周期,通过⼝服的⽅式就可以,使⽤起来⽐较⽅便。
痛风种类众多,⽽帝⼈痛风药在治.疗原发性与继发性上效果尤为出.⾊,像经常痛风发作的朋友不要犹豫,帝⼈痛风药绝.对是最.佳选择。
帝⼈痛风药能够促.进排泄,并且能够对肾脏等器.官进⾏保护调节。
⾄于很多患者担忧的安.全问题⼤家可以放⼼,使⽤帝⼈痛风药的国家⾮常多,在国外有很多帝⼈痛风药的粉丝,⽬前还没有出现过帝⼈痛风药的丑闻,在⽤于临床实践前帝⼈痛风药经过长时间的检验,排查了许多相关问题,所以⽬前市售的帝⼈痛风药是⽐较成熟的。
当然是药就会有.副.作⽤,这是难免的,所以⼤家在使⽤帝⼈痛风药的时候如果出现不适反应先不要紧张,⼀般⽐价常见的不.良反应都是恶⼼,不过出现的⼏率在0.3%,1000个⼈⾥⾯才有3个⼈会有这样的反应,所以⼤家不要担⼼。
如何在说明文中运用恰当的插和标注如何在说明文中运用恰当的插图和标注说明文是一种通过文字来解释、说明某种事物或现象的文体,而插图和标注则是在说明文中用来补充、丰富文字描述的重要手段。
正确运用插图和标注不仅可以增加读者对内容的理解和记忆,还能使文章更加生动、直观。
本文将介绍如何在说明文中恰当地运用插图和标注,以提高文章的质量和可读性。
一、选择适当的插图插图是说明文中不可或缺的元素,可以通过形象直观地展示具体的事物、流程、图表等。
在选择插图时需要注意以下几点:1.与文字内容相符:插图的内容应与说明文的主题和要点相符合,能够起到补充、解释文字的作用。
如果文字描述的是一个流程,那么插图应该能够清晰地展示该流程的各个环节。
2.简洁明了:插图应该尽量简洁明了,避免过多的细节和繁琐的图像。
过于复杂的插图可能会让读者产生困惑,反而降低了文章的可读性。
3.清晰可见:插图的质量要求高,要保证清晰度和可见度。
插图应该有足够的分辨率,以便读者能够清晰地看到图中的细节。
二、精准标注关键信息标注是对插图的补充说明,可以帮助读者更好地理解和记忆插图所展示的内容。
在进行标注时需要注意以下几点:1.文字简洁准确:标注应该简洁明了,用准确的词语描述插图中的关键信息,不宜过长或过于繁琐。
标注的文字应该与插图组成一个整体,相互补充,而不是重复。
2.标注位置明确:标注的文字应该与插图中的相关元素之间存在明确的联系,避免引起读者混淆。
可以通过箭头、线条等方式将标注与插图中的元素连接起来,使信息传递更加直观清晰。
三、合理安排插图和标注的位置在布局说明文时,插图和标注应该与文字内容相互结合,形成一个组织完整、紧密联系的整体。
可以考虑以下几种安排方式:1.插图在文字之前:插图可以放在开篇或章节的开头,引起读者的兴趣和注意,然后通过标注进行详细解释。
2.插图在文字之中:插图可以穿插在文字的适当位置,起到补充、说明的作用。
在插图旁边进行标注,帮助读者理解插图的内容。
随着数码相机的普及和越来越便宜(甚至免费)、以及大量图片网站的存在,越来越多的人开始在演示的时候使用图片。
实际上,图片并不是适用于所有的演示场合,但即便是图片适合某个场合(例如主题演讲和大会厅风格的演示)时,人们依然犯一些普遍性的错误。
因此在这里我们将给出一些提示以助于您下一次的演示。
案例学习:单幅幻灯片现在假设你正在准备一个针对很多观众的关于目前日本教育问题的演讲。
日本如今面临的现实是由于低出生率造成的高中和大学的生源量下降。
因此我们的这张样片所谈论的就是日本低生育率的主题。
你可以使用下面左图的全幅图片,也可以使用右边所示的小一些的日本学校操场的照片。
如果你选择了右边的胶片,当你在谈论长期下降趋势的时候还会有一条简单的曲线显现出来代表趋势。
案例分析:常见的错误1.图片太小你不必使用全幅图片,但是这张照片太小了以至于没有任何用处。
(胶片尺寸是800x600,图片的尺寸是183x152。
)2.图片随意乱放这张图片大小差不多了,但是随意的、乱七八糟的放在胶片上。
这样常常导致图片被淹没在背景里看不见。
(虽然这张胶片虽然是清晰的),不过当心。
3.图片几乎放大到全屏了,但仍然不完美重复一下,任何事情都不能有意外。
这张图片看起来已经接近全屏了,但是仍然不完美。
这时候PPT的模板漏出一点来,像噪音杂质一样。
4.图片质量太差这个问题太常见了。
这种事情经常发生在你选取了一个低像素格式的图片文件(例如从网站上)然后把它拉大。
天哪,救救我!5.图片质量很差还带有水印更糟糕的是从照片网站上选取了一个免费的样图并拉大,将带来分散注意力的杂质(同时也说明你低级、懒惰)。
如果你不能支付购买图片(或者没有相机等等),你也最好不要用这种图片。
6.图片被水平的扭曲拉伸这种情况太常见了,常常出现在当人们想要将图片拉得更宽一些的时候。
7.图片被垂直的扭曲拉伸这个看起来真恶心。
现在的日本小学生们真的有8尺高了?8.像铺瓷砖一样平铺图片虽然软件有这项平铺的功能,但并不表示你一定要用。
说明书附图的作用及如何修改图被称为“工程师的语言”。
它所含有的信息量常常是很大的。
一幅附图所表示的内容。
往往用再多的文字语言也无法清楚地予以表示。
因此,对于有附图的说明书来说,附图是其重要的组成部分之一。
说明书附图的作用说明书附图的作用在于用图形补充说明书文字部分的描述,使人能够直观地、形象化地理解发明或者实用新型的每个技术特征和整体技术方案。
在确定发明和实用新型专利权保护范围时,有以下两种较为极端的学说:一是周边限定论,指专利权的保护范围完全按照权利要求书的文字确定,对权利要求书的文字要作严格、忠实的解释,其文字表达的范围就是专利权保护的最大范围:二是中心限定论,指权利要求的文字所表达的范围仅仅是专利权保护的最小范围,可以以权利要求书记载的技术方案为中心,通过说明书及其附图的内容全面理解发明创造的整体构思,将保护范围扩大到四周的一定范围。
前者有利于社会公众明确专利权的保护范围,但过于突出权利要求撰写的重要性,略有疏忽将造成不可挽回的损失,不利于为专利权人提供有效的法律保护。
后者使得专利权的保护范围比较灵活,而过于灵活的保护范围对于社会公众来说不太公平。
我国采用的是与《欧洲专利公约》相同的折衷原则。
因此,在确定发明和实用新型专利权保护范围时,说明书及其附图具有解释作用。
专利法第五十六条对于说明书附图的法律地位进行了明确的阐述。
该条第一款规定,发明或者实用新型专利权的保护范围以其权利要求的内容为准,说明书及附图可以用于解释权利要求。
专利法第五十六条涉及如何确定发明和实用新型专利权保护范围的规定,在明确发明或者实用新型专利权的保护范围以其权利要求的内容为准的大前提下,允许利用说明书和附图对权利要求表达的保护范围作一定程度的修正,以达到更加合理的结果。
正因如此,在提交新申请以及审查过程的中间修改阶段,对于说明书附图都具有严格的规定。
专利法第二十六条第三款规定,说明书应当对发明或者实用新型作出清楚、完整的说明,以所属技术领域的技术人员能够实现为准;必要的时候,应当有附图。
日文說明書中利用照片作為圖示的注意事項
http://www.jpo.go.jp/cgi/link.cgi?url=/toiawase/faq/yokuar10.htm
來源日本特許廳。
(1)図面は、原則として製図法に従って、黒色で、鮮明にかつ容易に消すことができないように描くものとし、着色してはなりません。
1、圖示原則上應依據製圖法進行繪圖,且應為黑色、鮮明、不容易消失,且不可著上顏色的圖。
4.図面として採用できる写真
(1)製図法に従って作図することが極めて困難なものであって、顕微鏡写真、X線写真、結晶構造、金属組織、繊維の形状、粒子構造、生物の形態、オシロ波形、電気泳動、セラミック材料の組織、コロイド、薄膜、クロマトグラフ、基板上に形成された微細なパターン、ディスプレー上に表示した中間調画像及びガラスの切断面の状態を表している写真は、図面として採用されます。
ただし、写真は明瞭なものであり、かつ、公報等に鮮明に掲載することができるものに限られます。
(2)図面として採用される写真を添付するときは、明細書の「【図面の簡単な説明】」の欄に何を表した顕微鏡写真であるのように、写真であることをを明記して下さい。
(3)色彩写真及び青写真は、正式の図面としては認められませんが、参考写真又は参考図面として提出することができます。
この場合、これらの参考写真及び参考図面は正式の図と同一の用紙に記載してはなりません。
また、参考写真又は参考図面の説明は、明細書の「【図面の簡単な説明】」の欄に記載してはなりません。
参考写真及び参考図面の説明が必要な場合は、当該参考写真又は参考図面の余白に記載して下さい。
4、能夠採用照片作為圖示
(1)利用製圖法非常難以製圖的圖示,例如「顕微鏡写真、X線写真、結晶構造、金属組織、繊維の形状、粒子構造、生物の形態、オシロ波形、電気泳動、セラミック材料の組織、コロイド、薄膜、クロマトグラフ、基板上に形成された微細なパターン、ディスプレー上に表示した中間調画像及びガラスの切断面の状態を表している」等的照片,係能
夠被採用作為圖示。
但是,僅限於清楚的且係能夠被明確地揭示於公報等中的照片。
(2)添付照片作為圖示時,應於說明書之「圖示的簡單說明」欄位中,明記例如“顯示何種物的顯微鏡照片”的照片說明。
(3)用彩色照片及藍色照片作為正式的圖示是不被允准的,但是可以用參考照片或參考圖示的方式提出。
此種情況時,該等參考照片及參考圖示,不可以與正式的圖示同時被揭示於相同的紙張上。
而且,參考照片及參考圖示的說明,亦不可以記載於說明書之「圖示的簡單說明」欄位中。
若必要記載參考照片及參考圖示的說明時,請於該參考照片及參考圖示的空白處加以記載。