搅拌站基础施工图
- 格式:pdf
- 大小:181.45 KB
- 文档页数:1
XX—XX高速公路X标段(KXXX+XXX~KXXX+XXX)沥青混凝土拌和站建设方案编制:复核:审核:XXX有限公司XXX标段项目经理部201x年x月目录一、编制依据及原则 (1)二、工程概况 (1)三、拌和站建设投入人员、机械设备、材料 (1)四、拌和站建设实施计划 (3)五、拌和站选址、规划及布局 (2)六、拌和站建设施工及注意事项 (2)七、安全防护和保障措施 (5)八、文明施工和及环境保护措施: (6)附图:沥青混凝土拌和站平面布置图 (8)沥青混凝土拌和站建设方案一、编制依据及原则1、方案编制依据(1)本标段合同文件;(2)《xx至xx高速公路项目工程建设管理手册》;(3)《山东省高速公路施工标准化管理指南第一册工地建设》;(4)《高速公路标准化施工技术指南》工地建设;(5)《沥青混凝土路面施工技术规范》;(6)《施工现场临时用电安全技术规范》;(7)《建设工程施工现场消防安全技术规范》;(8)xx高速公路路面施工指导意见;(9)公司所拥有的机械设备、管理水平以及多年积累的类似工程的施工经验。
(10)本标段总体施工组织设计和总体施工进度计划。
(11)既征临时用地的位置、面积、形状等特点。
2、编制原则(1)严格遵循山东省高速公路施工标准化管理指南的要求为原则。
能够正确指导沥青混凝土拌和站建设,确保建站符合要求。
(2)坚持实事求是的原则.实事求是的确定建站规划和场地布置,确保按标准、安全的完成场站建设任务.二、工程概况土建九标段起讫桩号为K XXX+XXX~K XXX+XXX,全长XXX km,含区.全标段沥青混凝土具体工程量如下,约xx万吨。
三、拌和站建设投入人员、机械设备、材料(1)人员投入:普工20人,电工2人,机手10人,设备安装技术人员8人,测量、施工技术员3人,材料、协调等方面管理人员5人,拌和场建设现场负责人1人(沥青拌和站现场负责人:宗)(2)机械设备:拌和站场地平整及建设用,360挖掘机1台,L50装载机1台,135KW推土机1台, 20T 压路机1台,50t吊车2台,发电机1台及其他小型设备。
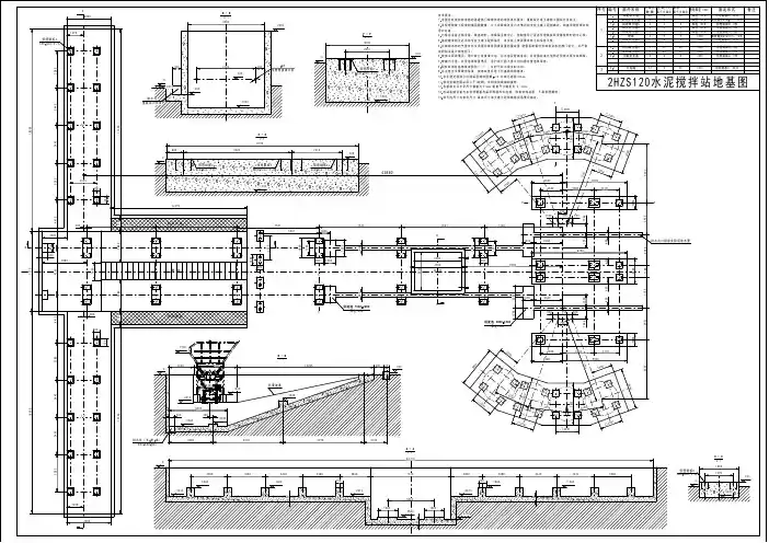
工地现场搅拌站设置方案平面布置图
门办公区
砼罐车行车道
砼罐车行车道
砼砼砼罐罐楼基主体罐地车砼地泵砼泵输送管车车磅行行将混凝土输送到施工现场行车车车道1#水泥仓粉煤灰仓2#水泥仓道骨料上料系统工艺流程:道
装载机—砂石料斗—砂石计量秤—
搅拌机料斗—卷扬机提升至搅拌机
砼罐车行车道搅拌机D 砼罐车行车道
沉砼溜槽
淀入地泵M卷扬提料机C 水泥螺栓输送机L
池
石子砂子石子下料口
贮料斗贮料斗贮料斗实验室
B B B
砂石料计量皮带秤E
装载机上料坡道 A 砂石料车行车道。
目录一、总体要求 (1)二、管理标准 (1)三、施工便道 (1)1.一般规定 (1)2.施工便道建设标准 (2)3.施工便桥建设标准 (3)四、施工用水 (3)五、临时用电 (3)六、消防设施 (4)七、建设标准 (4)1.设置原则 (4)2.选址要求 (4)3.场站规划 (5)3.场地建设 (6)4.拌和设备 (7)4. 料仓建设 (8)5.材料储存 (9)八、安全文明管理标准 (10)九、环境保护标准 (11)1.生态环境保护 (11)2.噪声防护 (11)3.大气污染防护 (11)4.水污染防治 (12)5.文物保护 (12)十、附件: (13)拌合站临建工程标准一、总体要求根据施工调查资料,结合地质地形地貌条件,遵循“安全、合理、节约、环保、方便”等原则,制定临时设施建设方案,报公司、监理和业主单位审批后实施。
根据使用功能的不同分区布置,生产、生活和办工区分离,生产设施靠近施工现场;临时工程和设施不干扰永久工程的施工,方便管理。
少占耕地,充分利用坡地、荒地,满足环保要求。
二、管理标准(1).拌和站由项目部直接进行建设及管理,不得分包、转包给其他单位或个人。
(2).拌和站的计量设备应通过当地政府计量部门标定后方可投人生产,使用过程中应不定期进行复检,确保计量准确。
(3).拌和站设备拌和能力必须保证在施工高峰期不间断供应。
同时,拌和站应配备足够的运输车,满足高峰作业的需要。
(4).拌和站及工点、施工便道的修建要保证运输车等施工车辆在晴天和雨天都能顺畅通行。
(5).每次拌和作业完成后,应及时清洗机具,清理现场,保持场地整洁。
三、施工便道1.一般规定(1).施工便道尽量利用既有道路,便道应保证畅顺,并与现场的存放场、仓库、施工设备等位置相协调,满足施工车辆的行车速度、密度、载重量等标准。
(2).施工便道分为主(干)线和次(引入)线。
施工主干线尽可能地靠近管段各主要工点,引入线以直达用料地点为原则;应考虑与相邻合同段便道的衔接。