教学楼结构设计图纸包括结构平面布置图
- 格式:dwg
- 大小:1.92 MB
- 文档页数:1
学校教学楼的结构组成篇一:学校综合楼建筑结构选择与设计学校综合楼建筑结构选择与设计摘要:根据实际情况,对学校综合楼建筑结构进行设计和选择,让教学楼既符合学校建筑的要求,又能够满足学生的学习需求。
本文主要对综合楼的建筑结构进行介绍,为学校建筑结构的选择和设计提出几点合理的建议。
关键词:综合楼,建筑,结构,选择,设计随着我国社会经济以及城市化不断发展,学校综合楼建筑结构类型越来越多,同时兼具多种功能。
鉴于学生的学习状态日益紧张,为了能够提高学生的学习效率,必须要为学生提供安静的、广阔的学习空间。
综合楼作为中学的一个核心功能建筑,其为形成相对独立的学习空间奠定了基础,作为一种公共建筑,学校教学的特性要求综合楼必须保证一定的质量,合理选择建筑结构,设计最优建筑施工方案,实现综合楼与学校环境的有机融合,为学生提供良好的学习环境。
建筑结构作为影响建筑工程质量的重要因素之一,必须合理选择和设计,实现造价与质量的协调统一。
在学校综合楼建筑结构选择以及设计过程中,要确保不仅要科学、合理地利用自然资源,还要提高工程建筑的质量,在设计的过程中只有做好前期规划,避免楼房出现坍塌现象,对学生造成严重的影响,做到合理地改造和利用自然,达到建筑和自然共同发展的效果,才是成功的设计。
为了能够为学生提供一个良好的学习环境,学校的综合楼不仅需要展现出学校自身特色,还必须符合学校建筑的通用要求。
本文通过对某中学教学楼实际工程进行介绍,对学校综合楼建筑选择及设计提出几点合理的建议。
工程实例的概述某中学的教学楼,占地总面积为5000m2,教学楼分4层,每一层高3.5米,综合楼内主要包括:教室、办公室、音乐室、多媒体教室、会议室,每一层设男女卫生间,教学楼采用钢筋框架结构,抗震级别乙级,场地类别为Ⅱ类,建筑物的使用寿命为65年左右。
实例教学楼工程的地质条件分析教学楼工程的地质条件,地基标准承载力为120kN/m2左右,填土以下的两米左右为粘土,地基的承载力为250kN/m2左右,地下水处于天然地面以下4m之处,对教学楼造成的影响不大。
教学楼设计方案总平面布置引言:教学楼作为校园重要的建筑之一,承载着学校教育教学的重要任务。
一个合理的教学楼设计方案是实现高效教学和学习环境的关键。
本文将介绍一种教学楼设计方案的总平面布置,旨在为学校提供一个可持续发展和适应多种教学需求的优质学习空间。
一、总体布局教学楼设计方案的总平面布置应综合考虑教学楼的功能需求、地形地势和周边环境,合理规划楼体布局和交通组织。
教学楼的主入口应明确并便于辨识,同时要考虑到各个教学楼之间的连通性,以便师生的流动。
二、功能区域划分在教学楼的总平面布置中,合理的功能区域划分是非常重要的。
根据学校的教学需要,可以将教学楼分为教室区、实验室区、图书馆区、办公区等。
每个区域都应满足对应功能需求,合理规划教学楼内部的流动通道,确保各功能区域之间有良好的联系。
三、教室布局在教学楼的总平面布置中,教室的布局是关键之一。
教室宜采用合理的尺寸,确保师生在教学过程中有足够的活动空间。
同时,教室布置应考虑到采光和通风条件,保证师生的学习环境。
在教室布局中,还应考虑到座位的安排,不同学科的教室可能有不同的座位排列需求。
四、实验室布置实验室是教学楼中的重要功能区域,科学合理的实验室布置可以提升实验教学的效果。
实验室布置要考虑到实验仪器设备的放置、安全通道的设置以及实验室的通风和排水等问题。
同时,实验室布置还应合理规划各个实验室之间的分隔和联通,方便实验教学的展开。
五、图书馆布置图书馆是教学楼中另一个重要的功能区域,对学生的自主学习和科研提供了重要的支持。
图书馆的布置应考虑到书库的容量和书籍的分类,提供舒适的借阅和阅读环境。
此外,图书馆还可配备电子阅览室、自习室和多媒体资源区域,以满足不同需求的学习者。
六、办公区布置办公区是为教职员工提供工作空间和办公设施的区域。
办公区布置应根据教学楼的规模和人数需求,合理规划办公桌、办公椅、文件柜和图书架等办公设施。
办公区的布置还应考虑到办公人员的工作流程,合理配置电源插座和网络接口,为工作提供便利。
某市中学教学楼框架结构设计-某五层框架教学楼设计全套图纸及计算书4300平米左右【可提供完整设计图纸】本科生毕业论文(设计)题目:某市中学教学楼框架结构设计专业代码:土木工程(080703)作者姓名:学号:单位:指导教师:2010 年6月5日原创性声明本人郑重声明:所提交的学位论文是本人在导师指导下,独立进行研究取得的成果。
除文中已经注明引用的内容外,论文中不含其他人已经发表或撰写过的研究成果,也不包含为获得聊城大学或其他教育机构的学位证书而使用过的材料。
对本文的研究作出重要贡献的个人和集体,均已在文中以明确方式标明。
本人承担本声明的相应责任。
学位论文作者签名:日期:指导教师签名:日期:前言毕业设计是大学本科教育培养目标实现的重要阶段,是毕业前的综合学习阶段,是深化、拓宽、综合教和学的重要过程,是对大学期间所学专业知识的全面总结。
通过毕业设计,使我在大学期间学到的知识贯穿起来,对于我今后的工作奠定了良好的基础。
我的毕业设计题目为《某市中学教学楼框架设计》。
在毕业设计前期,我温习了《结构力学》、《钢筋混凝土》、《建筑结构抗震设计》等知识,并借阅了《抗震规范》、《混凝土规范》、《荷载规范》、《混凝土结构设计规范》等规范。
在毕业设计中期,我通过所学的基本理论、专业知识和基本技能进行建筑、结构设计。
在毕业设计后期,主要进行设计手稿的电脑输入。
在整个设计期间我严格按照计划进行设计工作,在杨秀英老师的耐心和细致的辅导下,使我圆满完成了毕业设计任务。
在整个毕业设计期间,我在指导老师的帮助下,经过资料查阅、设计计算,加深了对新规范、规程、手册等相关内容的理解,巩固了专业知识、提高了综合分析、解决问题的能力。
在进行内力组合的计算时,进一步了解了Excel。
在绘图时熟练掌握了AutoCAD,天正CAD,PKPM等设计软件,以上所有这些从不同方面达到了毕业设计的目的与要求。
框架结构设计的计算工作量很大,在计算过程中以手算为主,辅以一些计算软件的校正。
18班中学教学楼设计一、目的使学生通过本次设计能够运用所学的建筑空间环境设计的理论和方法进行一般的建筑的施工图设计,进一步理解建筑设计的基本原理,了解设计的步骤和方法。
二、设计条件1、建设地点学校位于城市新建住宅区内,设计地形图如图1所示。
51图1 教学楼设计地形图2、房间名称和使用面积,见表1。
3、总平面布置(1)教学楼:按设计(2)传达值班室:20 m2(3)食堂:140 m2(5)开水房:25 m2(6)汽车库:60 m2(7)自行车棚:90 m2(8)运动场地:设250~400m环形跑道(附100m直跑道)的田径场一个。
篮球场2个,排球场1个。
(9)绿化用地(包括成片绿地和室外自然科学园地):按每生不下于1 m2计算。
4、建筑标准(1)层数:1~5层(2)净高:普通教室3.4m实验室3.4m合班教室3.6m(阶梯教室后部2.2.m)办公用房2.8m(3)耐火等级:二级(4)结构形式:框架结构(5)卫生标准:室内水冲式厕所,教职工和学生分设,男女比例1:1,厕所卫生器具指标:女生每25人设一个大便器(或者1100mm的长大便槽),男生按每50人设一个大便器(或者1100mm的长大便槽)、1000mm长的小便槽计算,每90人应设一个洗手盆(或600mm盥洗槽),厕所内应设污水池和地漏。
三、设计内容和图纸要求要求手绘图纸A2的4~6张(包括总平面图、含18个普通教室的教学楼(为教室配套的卫生间、班主任办公室等)的平、立、剖及大样详图)。
1、平面图各层平面1:100或者1:150(1)确定房间的形状、尺寸、位置,表示固定设备记住要家具布置,注明房间名称。
(2)确定门窗大小、位置,表示门的开启方向。
(3)表示楼梯的踏步、平台及上下行指示线。
(4)标注三道外部尺寸(细部尺寸、轴线尺寸、总尺寸。
其中细部尺寸是指内部墙段、门窗洞口、墙厚等),标注底层室外台阶、坡道、散水等尺寸。
(5)标注轴线及轴线编号、门窗编号、剖切符号和详图索引符号等。
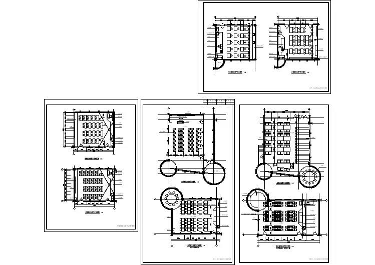
结构计算书1 设计资料(1)工程名称:濮阳市某中学办公楼。
(2)结构形式:现浇钢筋混凝土框架结构,柱网尺寸为7.5m×6m。
(3)工程概况:建筑层数5层,层高3.9m,室内外高差450mm,女儿墙高600mm,建筑高度19.65m,建筑面积3642.76m2。
(4)基本风压:0.40kN/ m2,地面粗糙度为C类。
(5)基本雪压:0.40 kN/ m2。
(6)抗震设防烈度:七度设防。
(7)材料选用:钢筋:梁、柱中的纵向钢筋采用HRB400,板中钢筋和箍筋采用HPB400;基础中除分布钢筋和箍筋采用HPB300外,其余钢筋采用HRB400。
混凝土:采用C30混凝土;墙体:采用加气混凝土砌块,重度γ=5.5 kN/m3 ;窗:铝合金窗,γ=0.35 kN/m3 ;(8)墙体厚度:医务室和卫生间的隔墙厚150mm,其余墙厚为250mm。
结构平面布置图如图1所示。
图1 结构平面布置图2 梁、柱截面尺寸估算2.1 梁截面尺寸估算框架梁截面高度11(~)1612h l =,截面宽度11(~)32b h =,本结构中取:纵向框架梁: b=250mm h=600mm 横向AB 、CD 跨框架梁: b=250mm h=500mm 横向BC 跨框架梁: b=250mm h=400mm 次梁: b=250mm h=500mm2.2 柱截面尺寸估算框架柱的截面尺寸11~1218c i b H ⎛⎫= ⎪⎝⎭,()12c c h b =,i H 为第i 层层高。
本结构中层高为3.6m ,故c b =(216.6~325)mm 。
框架柱截面尺寸还应根据公式[]c cNA f μ≥N 估算。
式中:()1.1 1.2v N N =,v N =负荷面积×(12~14) kN/ m 2×层数,[]μN 为轴压比,可根据规范查出。
仅估算底层柱。
本结构中,边柱和中柱负荷面积分别为(7.2⨯3)m 2 ,(7.2⨯4.35)m 2,层数为5层;该框架结构抗震设防烈度为七度,建筑高度18.45m<30m ,因此为三级抗震,其轴压比限值[]μN =0.9。