本田雅阁电路图
- 格式:pdf
- 大小:776.51 KB
- 文档页数:1
至部件的保险丝索引发动机盖下保险丝/继电器盒 (A)保险丝编号A所保护的部件或电路A1100 A*2125 A*1蓄电池、电源A2A2-1+B EPS70 A EPS 控制单元A2-2+B F/B MAIN 160 A仪表板下保险丝/继电器盒中的 B14 号、B15 号、B16 号、B17 号、B18号和 B36 号保险丝A2-3+B F/B OP140 A仪表板下辅助保险丝盒中的 C1 号、C2 号、C3 号和 C4 号保险丝A2-4---30 A未使用A2-5---30 A未使用A2-6+B ABS/VSA FSR40 A VSA 调制器-控制器单元A2-7+B ABS/VSA MTR30 A VSA 调制器-控制器单元A3A3-1+B EPB R30 A电子驻车制动控制单元A3-2+B EPB L30 A电子驻车制动控制单元A3-3+B E-PT R30 A电子安全带预张紧器单元A3-4+B E-PT L30 A电子安全带预张紧器单元A415 A前雾灯继电器、前雾灯(通过辅助发动机盖下继电器盒中的前雾灯继电器)A510 A蓄电池传感器、喇叭(通过喇叭继电器)、喇叭继电器(在发动机盖下保险丝/继电器盒中)、防盗报警喇叭继电器(在仪表板下继电器固定架 B 中)*10、防盗报警喇叭(通过仪表板下继电器固定架 B 中的防盗报警喇叭继电器)*10 A610 A制动灯(通过制动踏板位置开关和仪表板下保险丝/继电器盒)、制动灯(通过辅助发动机盖下继电器盒中的制动灯继电器)*9、PCM (STOP SW)(通过制动踏板位置开关和仪表板下保险丝/继电器盒)A715 A PGM-FI 辅助继电器(在发动机盖下保险丝/继电器盒中)、A/F 传感器(通过发动机盖下保险丝/继电器盒中的 PGM-FI 辅助继电器)*5、前 A/F 传感器(B2,S1)(通过发动机盖下保险丝/继电器盒中的 PGM-FI 辅助继电器)*6、后 A/F 传感器(B1,S1)(通过发动机盖下保险丝/继电器盒中的 PGM-FI 辅助继电器)*6、前辅助 HO2S(B2,S2)(通过发动机盖下保险丝/继电器盒中的 PGM-FI 辅助继电器)*6、后辅助 HO2S(B1,S2)(通过发动机盖下保险丝/继电器盒中的 PGM-FI 辅助继电器)*6、A87.5 A日间行车灯继电器(在辅助发动机盖下继电器盒中)、日间行车灯(通过辅助发动机盖下继电器盒中的日间行车灯继电器)A915 A点火线圈继电器(在发动机盖下保险丝/继电器盒中)、点火线圈(通过点火线圈继电器)A10*1020 A PCM (INJ RLY OUT)(通过仪表板下继电器固定架 C 中的喷油器继电器)A1115 A MICU (+B HAZARD)、MICU (HAZARD SW)(通过危险警告开关)A12A12-1+B F/B MAIN 260 A仪表板下保险丝/继电器盒中的 B31 号、B32 号、B33 号、B34 号、B35号、B40 号和 B42 号保险丝MICU(通过仪表板下保险丝/继电器盒中的电动车窗继电器)A12-2+B F/B OP 240 A仪表板下辅助保险丝盒中的 C5 号、C6 号、C7 号和 C8 号保险丝A12-3+B IG MAIN 130 A*4仪表板下辅助继电器盒(通过仪表板下保险丝/继电器盒)50 A*3点火开关(通过仪表板下保险丝/继电器盒)A12-4+B IG MAIN 230 A*4仪表板下辅助继电器盒(通过仪表板下保险丝/继电器盒)A12-5+B SUB FAN MTR20 A*530 A*6散热器风扇电机(通过内置于继电器电路板中的空调冷凝器风扇继电器电路和风扇控制继电器电路)*5、空调冷凝器风扇电机(通过内置于继电器电路板中的空调冷凝器风扇继电器电路)A12-6+B H/L LO MAIN30 A大灯继电器(在发动机盖下保险丝/继电器盒中)、MICU (H/L LO RLY CL-)(通过大灯继电器)、A24 号和 A25 号保险丝A12-7+B H/L HI MAIN30 A仪表板下辅助保险丝盒中的 B28 号、B29 号、B30 号和 B39 号保险丝A12-8+B WIPER MTR30 A挡风玻璃刮水器电机 (HI、LO)(通过内置于继电器电路板中的挡风玻璃刮水器电机高速/低速继电器电路和挡风玻璃刮水器间歇继电器电路)A12-9+B MAIN FAN MTR30 A散热器风扇电机(通过内置于继电器电路板中的散热器风扇继电器电路)、空调冷凝器风扇电机(通过内置于继电器电路板中的散热器风扇继电器电路和风扇控制继电器电路)*6A12-10+B ST MG30 A PCM (ST RLY 1 TO 2)(通过内置于继电器电路板中的起动机断电继电器 1 电路)*4、起动机(通过内置于继电器电路板中的起动机断电继电器 1、2 电路)*4 A1340 A后窗除雾器(通过发动机盖下保险丝/继电器盒中的后窗除雾器继电器)A1440 A鼓风机电机(通过发动机盖下保险丝/继电器盒中的鼓风机电机继电器)A1515 A PGM-FI 主继电器 1(在发动机盖下保险丝/继电器盒中)、PGM-FI 主继电器 2(在仪表板下保险丝/继电器盒中、通过 PGM-FI 主继电器 1)、电子节气门控制系统 (ETCS) 控制继电器(在发动机盖下保险丝/继电器盒中、通过 PGM-FI 主继电器 1)A16---未使用A177.5 A空调压缩机离合器(通过发动机盖下保险丝/继电器盒中的空调压缩机离合器继电器)A1815 A PCM (VBDBW)(通过发动机盖下保险丝/继电器盒中的电子节气门控制系统 (ETCS) 控制继电器)A1920 A尾灯继电器电路(内置于继电器电路板中)、仪表板下保险丝/继电器盒中的 B25 号和 B27 号保险丝(通过内置于继电器电路板中的尾灯继电器电路)A207.5 A蓄电池传感器、车内照明灯断电继电器(在仪表板下继电器固定架 A 中、通过仪表板下保险丝/继电器盒)、前排独立阅读灯*11、后排独立阅读灯*11、驾驶员侧化妆镜灯*11、乘客侧化妆镜灯*11、驾驶员侧车门礼貌灯*11、乘客侧车门礼貌灯*11、左后车门礼貌灯*11、右后车门礼貌灯*11、行李箱灯*11、手套箱灯*11、点火钥匙灯*3、*11A2110 A MICU (+B BACK UP)(通过仪表板下保险丝/继电器盒)、仪表控制单元(通过仪表板下保险丝/继电器盒)、ANC/主动噪音控制单元(通过仪表板下保险丝/继电器盒)、数据插接器 (DLC)(通过仪表板下保险丝/继电器盒)、发动机防盗锁止-遥控器控制单元(通过仪表板下保险丝/继电器盒)*3、无钥匙进入控制单元(通过仪表板下保险丝/继电器盒)*4、自动照明控制单元/传感器(通过仪表板下保险丝/继电器盒)、自动照明/雨量传感器(通过仪表板下保险丝/继电器盒)、车门多路控制单元(在电动车窗总开关中、通过仪表板下保险丝/继电器盒)A2210 A综合信息显示屏单元、音响单元*12、音响-导航单元*13、绘图单元*13、*14A237.5 A*5空调冷凝器风扇继电器电路(内置于继电器电路板中)7.5 A*6散热器风扇继电器电路(内置于继电器电路板中)右大灯(近光)A2410 A*715 A*8左大灯(近光)A2510 A*715 A*8A26---未使用*1:R20Z4 发动机除外*2:R20Z4 发动机*3:不带无钥匙进入系统*4:带无钥匙进入系统*5:V6 除外*6:V6*7:不带 LED 大灯*8:带 LED 大灯*9:带自适应巡航控制*10:K24W5 发动机*11:通过仪表板下继电器固定架 A 中的车内照明灯断电继电器*12:不带导航*13:带导航*14:带智能屏互联系统仪表板下保险丝/继电器盒 (B)保险丝编号A所保护的部件或电路B17.5 A散热器风扇继电器电路(内置于继电器电路板中)*1、空调冷凝器风扇继电器电路(内置于继电器电路板中)*2、风扇控制继电器电路(内置于继电器电路板中)、后窗除雾器继电器(通过继电器电路板)、空调压缩机离合器继电器(通过继电器电路板)、鼓风机电机继电器(通过继电器电路板)B27.5 A MICU (IG2 DRL)B3---未使用B4---未使用B57.5 A仪表控制单元、换档锁止电磁阀、ANC/主动噪音控制单元、驻车倒车传感器开关、驻车倒车传感器控制单元、自动调光车内后视镜、倒车灯、MICU (IG1 METER)、后窗遮阳板控制单元、发动机防盗锁止-遥控器控制单元*5B67.5 A SRS 单元B77.5 A大灯调平开关*3、左大灯调平电机*3、右大灯电机*3、大灯调平控制单元*4、转向灯主动控制单元(带主动转向灯)、电动座椅控制单元(带 DPMS)、电子驻车制动控制单元B810 A PCM (IG1 MISS SOL)B920 A无钥匙进入控制单元*6、电子转向锁*6、PCM、燃油泵(通过仪表板下保险丝-继电器盒中的 PGM-FI 主继电器 2)*1、燃油泵控制单元(通过仪表板下保险丝-继电器盒中的 PGM-FI 主继电器 2)*2B107.5 A EPS 控制单元、VSA 调制器-控制器单元、转向角传感器B11---未使用B127.5 A挡风玻璃刮水器电机高速/低速继电器电路(内置于继电器电路板中)、挡风玻璃刮水器间歇继电器电路(内置于继电器电路板中)B1315 A电气负载检测器 (ELD)、起动机断电继电器 1 电路(内置于继电器电路板中)*6、起动机断电继电器 2 电路(内置于继电器电路板中)*6、制动踏板位置开关、辅助 HO2S、MAF 传感器、EVAP 碳罐清污阀、发动机支座控制电磁阀*1、发动机支座控制单元*2、PCM (VBSOL)*2、CMP 传感器 A (K24W5)、主动控制发动机支座 (ACM) 控制继电器(在仪表板下继电器固定架 C 中)*2B1420 A扶手箱附件电源插座(通过扶手箱附件电源插座继电器)B1520 A驾驶员电动座椅后部上下调节电机(通过驾驶员电动座椅调节开关)、驾驶员电动座椅靠背倾角调节电机(通过驾驶员电动座椅调节开关)、电动座椅控制单元(带 DPMS)B1620 A天窗控制单元/电机B1720 A驾驶员座椅加热器(通过驾驶员座椅加热器继电器盒中的驾驶员座椅加热器继电器)、乘客座椅加热器(通过驾驶员座椅加热器继电器盒中的乘客座椅加热器继电器)B187.5 A MICU (+B RR FOG)B1910 A前排乘客侧车门门锁作动器、右后车门门锁作动器B2010 A驾驶员侧车门门锁作动器、左后车门门锁作动器B21---未使用B2210 A前排乘客侧车门门锁作动器、右后车门门锁作动器B23---未使用B2410 A SRS 单元B2510 A环境照明灯、烟灰缸灯、点烟器灯、空调控制单元、HVAC 控制单元、音响遥控开关灯(通过线盘)、后音响遥控开关灯、综合信息显示屏单元、方向盘开关灯(通过线盘)、ECON 开关灯、危险报警开关灯、天窗开关灯、VSA OFF 开关灯、驻车和倒车传感器开关灯、后窗遮阳板开关灯、前排乘客气囊 ON/OFF 指示灯、驾驶员侧脚灯、前排乘客侧脚灯、驾驶员座椅加热器开关灯、前排乘客座椅加热器开关灯、后排左侧座椅加热器开关灯、后排右侧座椅加热器开关灯、电子驻车制动开关灯B267.5 A MICU (ACC KEYLOCK)B2710 A前位置灯、尾灯、牌照灯、日间行车灯B2810 A驾驶员侧电动腰部支撑电机B2910 A MICU (+B R H/L HI)B3015 A挡风玻璃清洗器电机继电器电路(内置于仪表板下保险丝/继电器盒中)、挡风玻璃清洗器电机(通过内置于仪表板下保险丝/继电器盒中的挡风玻璃清洗器电机继电器电路)B3110 A无钥匙进入控制单元*6、电动转向锁*6、发动机起动/停止开关*6B3220 A车门多路控制单元(在电动车窗总开关中)B3320 A前排乘客侧电动车窗电机B3420 A左后电动车窗电机B3520 A右后电动车窗电机B3620 A驾驶员电动座椅前部上下调节电机(通过驾驶员电动座椅调节开关)、驾驶员电动座椅滑动电机(通过驾驶员电动座椅调节开关)、电动座椅控制单元(带 DPMS)B377.5 A点烟器继电器、扶手箱附件电源插座继电器、音响单元*7、音响-导航单元*8、绘图单元*8、*9、综合信息显示屏单元、电子驻车制动控制单元、钥匙互锁电磁阀*5、无钥匙进入控制单元*6B38---未使用B3910 A MICU (+B L H/L HI)B4020 A点烟器(通过仪表板下保险丝/继电器盒中的点烟器继电器)B4110 A驾驶员侧车门门锁作动器、左后车门门锁作动器B4220 A B19 号和 B20 号保险丝(通过电动车门门锁继电器电路(解锁))、B22 号和 B41 号保险丝(通过电动车门门锁继电器电路(锁止))、电动车门门锁继电器电路*1:V6 除外*2:V6*3:带大灯手动调平*4:带大灯自动调平*5:不带无钥匙进入系统*6:带无钥匙进入系统*7:不带导航*8:带导航*9:带智能屏互联系统仪表板下辅助保险丝盒 (C)保险丝编号A所保护的部件或电路C120 A立体声放大器(带立体声放大器)C215 A后排座椅加热器C320 A发动机支座控制单元 (V6)(通过仪表板下继电器固定架 C 中的主动控制发动机支座 (ACM) 控制继电器)C4---未使用C520 A前排乘客电动座椅滑动电机(通过前排乘客电动座椅调节开关)、前排乘客电动座椅前部上下调节电机(8 向)(通过前排乘客电动座椅调节开关)C620 A前排乘客电动座椅靠背倾角调节电机(通过前排乘客电动座椅调节开关)、前排乘客电动座椅后部上下调节电机(8 向)(通过前排乘客电动座椅调节开关)C715 A转向灯主动控制单元(带主动转向灯)C8---未使用。
概述1-10缩写维修手册中常用汽车缩略语列表。
ABS A/C ACEA ACL A/F AHB ALR ALT AMP ANT API APPAPPROX.ASSY A/T ATDC ATF ATT AUTO AUX BARO BAT BCM BDC BTDC CARB CAT 或CATA CD CHG CKF CKP CL V CMBS CMP CO COMP CPB CPC CPU CVT CVTF CYL CYP防抱死制动系统空调、空调机欧洲汽车制造商协会空气滤清器空燃比先进液压助力器自动锁止卷收器交流发电机安培天线美国石油学会加速踏板位置大约总成自动变速器上止点后自动变速器油附件自动辅助的、附件大气压力蓄电池蓄电池状态监视器下止点上止点前化油器催化转换器光盘充电曲轴转速波动曲轴位置计算出的负载值碰撞减轻制动系统凸轮轴位置一氧化碳完成,完全离合器压力支持离合器压力控制中央处理器单元无级变速器无级变速器油液气缸、油缸气缸位置DIFF DLC DLI DOHC DOT DPF DPI DPSF DTC EBD ECM ECT EGR EGT ELD EPR EPS ETCS EVAP EX F FIA FL FP FR FRP FSR FWD GAL GND GPS H/B HBA HC HDS HFT HID HIM HO2S HPS HVAC差速器数据连接器无分电器点火双顶置凸轮轴交通部柴油机微粒滤清器双点喷射双泵系统用油故障诊断代码电子制动力分配发动机控制单元发动机冷却液温度废气再循环废气温度电气负载检测器蒸发器压力调节器电动动力转向电子节气门控制系统蒸发排放排气、废气前燃油喷射空气左前方燃油泵右前方燃油分配管压力失效保护继电器前轮驱动加仑搭铁全球定位系统掀背式液压制动辅助碳氢化合物本田诊断系统免提电话高强度放电本田接口单元热氧传感器液压动力转向取暖、通风和空调系统IABIAC IACVIARIATICMIDID或I.D. i-DSIIG或IGN IMA IMMOBI. IMRC IMTININJINTIQAISVKSLL/CLCDLEDLEVLFLHLHDLRLSDL4MAF MAP MAX. MBS MCK MCM MCU MICS MICU MIL MIN. MPIM/SM/TMTF 进气旁通怠速空气控制怠速空气控制阀进气谐振器进气温度点火控制单元识别内径智能型双火花塞顺序点火系统点火怠速混合调节集成式电机助力系统发动机防盗锁止系统进气歧管管路控制系统进气歧管调节进气喷射间歇,间断喷油量调整(柴油机车型)进气调节阀爆震传感器左锁止离合器液晶显示屏发光二极管低排放量车辆左前方左向左驾驶车型左后方防滑差速器直列式四缸(发动机)质量型空气流量歧管绝对压力最大值主轴制动系统电机检查电机控制单元力矩控制单元多路集成控制系统多路集成控制单元故障指示灯最小值多点燃油喷射手动转向手动变速器手动变速器用油NOxOBDOD或O.D.OPDSO2SPAIRPCMPCVPDUPGM-FIPGM-IGPHPLPMRP/NPRIP/SPSFPSPPSWQtyRREFRHRHDRLRONRRSAESCSSECSOHCSOLSPECS/RSRSSTDSW氮氧化物车载电脑诊断外径乘客位置检测系统氧传感器脉冲二次空气喷射动力系统控制单元曲轴箱强制通风装置比例控制阀动力传动单元程控燃油喷射程控点火高压指示灯或低压泵电机继电器零件号主动力转向动力转向液动力转向压力压力开关数量右基准,参考右向右驾驶车型左后方研究法辛烷值右后方汽车工程师学会维修检查信号秒,第二单顶置凸轮轴电磁线圈规格天窗气囊标准开关(续)1-11概述1-12缩写(续)T TB T/B TC TCM TCS TDC TFT T/N TP TWC VC VIN VSA VSS VTEC VVIS V6W W/O WOT 2WD 4WD 4AT 5AT 5MT 6MT P R N D4D3D M S L O/D 1ST 2ND 3RD 4TH 5TH 6TH扭矩节气门体正时皮带变矩器变速器控制单元牵引力控制系统上止点薄膜晶体管工具号码节气门位置三元催化转换器粘液耦合器车辆识别号车辆稳定性辅助系统车速传感器可变气门正时和气门升程电子控制可变容量进气系统V 型6缸(发动机)有没有节气门全开两轮驱动四轮驱动四档自动变速器五档自动变速器五档手动换挡变速器六档手动换挡变速器驻车档倒档空档前进档(一档到四档)前进档(一档到三档)前进档手动模式第二低速档超速档低速(档)第二(档)第三(档)第四(档)第五(档)第六(档)电路图4-5点火系统4-19部件位置索引点火系统电路图4-20充电系统电路图4-26。
概述1-10缩写维修手册中常用汽车缩略语列表。
ABS A/C ACEA ACL A/F AHB ALR ALT AMP ANT API APPAPPROX.ASSY A/T ATDC ATF ATT AUTO AUX BARO BAT BCM BDC BTDC CARB CAT 或CATA CD CHG CKF CKP CL V CMBS CMP CO COMP CPB CPC CPU CVT CVTF CYL CYP防抱死制动系统空调、空调机欧洲汽车制造商协会空气滤清器空燃比先进液压助力器自动锁止卷收器交流发电机安培天线美国石油学会加速踏板位置大约总成自动变速器上止点后自动变速器油附件自动辅助的、附件大气压力蓄电池蓄电池状态监视器下止点上止点前化油器催化转换器光盘充电曲轴转速波动曲轴位置计算出的负载值碰撞减轻制动系统凸轮轴位置一氧化碳完成,完全离合器压力支持离合器压力控制中央处理器单元无级变速器无级变速器油液气缸、油缸气缸位置DIFF DLC DLI DOHC DOT DPF DPI DPSF DTC EBD ECM ECT EGR EGT ELD EPR EPS ETCS EVAP EX F FIA FL FP FR FRP FSR FWD GAL GND GPS H/B HBA HC HDS HFT HID HIM HO2S HPS HVAC差速器数据连接器无分电器点火双顶置凸轮轴交通部柴油机微粒滤清器双点喷射双泵系统用油故障诊断代码电子制动力分配发动机控制单元发动机冷却液温度废气再循环废气温度电气负载检测器蒸发器压力调节器电动动力转向电子节气门控制系统蒸发排放排气、废气前燃油喷射空气左前方燃油泵右前方燃油分配管压力失效保护继电器前轮驱动加仑搭铁全球定位系统掀背式液压制动辅助碳氢化合物本田诊断系统免提电话高强度放电本田接口单元热氧传感器液压动力转向取暖、通风和空调系统IABIAC IACVIARIATICMIDID或I.D. i-DSIIG或IGN IMA IMMOBI. IMRC IMTININJINTIQAISVKSLL/CLCDLEDLEVLFLHLHDLRLSDL4MAF MAP MAX. MBS MCK MCM MCU MICS MICU MIL MIN. MPIM/SM/TMTF 进气旁通怠速空气控制怠速空气控制阀进气谐振器进气温度点火控制单元识别内径智能型双火花塞顺序点火系统点火怠速混合调节集成式电机助力系统发动机防盗锁止系统进气歧管管路控制系统进气歧管调节进气喷射间歇,间断喷油量调整(柴油机车型)进气调节阀爆震传感器左锁止离合器液晶显示屏发光二极管低排放量车辆左前方左向左驾驶车型左后方防滑差速器直列式四缸(发动机)质量型空气流量歧管绝对压力最大值主轴制动系统电机检查电机控制单元力矩控制单元多路集成控制系统多路集成控制单元故障指示灯最小值多点燃油喷射手动转向手动变速器手动变速器用油NOxOBDOD或O.D.OPDSO2SPAIRPCMPCVPDUPGM-FIPGM-IGPHPLPMRP/NPRIP/SPSFPSPPSWQtyRREFRHRHDRLRONRRSAESCSSECSOHCSOLSPECS/RSRSSTDSW氮氧化物车载电脑诊断外径乘客位置检测系统氧传感器脉冲二次空气喷射动力系统控制单元曲轴箱强制通风装置比例控制阀动力传动单元程控燃油喷射程控点火高压指示灯或低压泵电机继电器零件号主动力转向动力转向液动力转向压力压力开关数量右基准,参考右向右驾驶车型左后方研究法辛烷值右后方汽车工程师学会维修检查信号秒,第二单顶置凸轮轴电磁线圈规格天窗气囊标准开关(续)1-11概述1-12缩写(续)T TB T/B TC TCM TCS TDC TFT T/N TP TWC VC VIN VSA VSS VTEC VVIS V6W W/O WOT 2WD 4WD 4AT 5AT 5MT 6MT P R N D4D3D M S L O/D 1ST 2ND 3RD 4TH 5TH 6TH扭矩节气门体正时皮带变矩器变速器控制单元牵引力控制系统上止点薄膜晶体管工具号码节气门位置三元催化转换器粘液耦合器车辆识别号车辆稳定性辅助系统车速传感器可变气门正时和气门升程电子控制可变容量进气系统V 型6缸(发动机)有没有节气门全开两轮驱动四轮驱动四档自动变速器五档自动变速器五档手动换挡变速器六档手动换挡变速器驻车档倒档空档前进档(一档到四档)前进档(一档到三档)前进档手动模式第二低速档超速档低速(档)第二(档)第三(档)第四(档)第五(档)第六(档)电路图4-5点火系统4-19部件位置索引电路图4-20电路图4-26电路图4-45主动控制发动机支座 (ACM) 系统电路图4-54继电器和控制单元位置22-20仪表板䔺䑿22-21继电器和控制单元位置后22-22䔺䑿电源分布22-23电路识别R20A3、K24Z2发动机:(续)电源分布22-24电路识别(续)䔺䑿(续)22-25电源分布22-26电路识别(续)䔺䑿(续)22-27电源分布22-28电路识别(续)䔺䑿(续)22-29电源分布22-30电路识别(续)(续)22-31电路识别(续)22-32(续)22-33电路识别(续)22-3422-35电路识别(续)J35Z2发动机:22-36(续)22-37电路识别(续)22-38(续)22-39电路识别(续)22-40䔺䑿(续)22-41电源分布22-42电路识别(续)䔺䑿(续)22-43电源分布22-44电路识别(续)䔺䑿(续)22-45电源分布22-46电路识别(续)䔺䑿(续)22-47电源分布22-48电路识别(续)䔺䑿接地分布22-49电路识别(续)接地分布22-50电路识别(续)R20A3、K24Z2发动机:䔺䑿22-51J35Z2发动机:(续)接地分布22-52电路识别(续)䔺䑿(续)22-53接地分布22-54电路识别(续)䔺䑿(续)22-55接地分布22-56电路识别(续)䔺䑿(续)22-57接地分布22-58电路识别(续)䔺䑿22-59多路集成控制系统电路图22-64。
广州本田轿车电气元器件位置与电气线路图第一节广州本田轿车电气元器件位置图广州本田轿车电气元器件位置如图10-1-1~图10-1-52所示。
图10-1-1 风扇控制系统各部件位置图图10-1-2 起动系统部件的位置图图10-1-3 充电系统部件位置图图10-1-4 程序控制燃油喷射系统(PGM-FI)部件位置图(1)图10-1-5 程序控制燃油喷射系统(PGM-FI)部件位置图(2)图10-1-6 程序控制燃油喷射系统(PGM-FI)部件位置图(3)图10-1-7 程序控制燃油喷射系统(PGM-FI)部件位置图(4)图10-1-8 程序控制燃油喷射系统(PGM-FI )部件位置图(5)图10-1-9 PGM-FI真空系统部件位置图图10-1-10 PGM-FI系统自诊断插头位置图图10-1-11 PGM-FI系统熔断丝位置图图10-1-12 ECM/PCM位置图图10-1-13 自动变速器电子控制元件位置图图10-1-14 ABS系统元件位置图图10-1-15 发动机舱继电器和控制元件位置图图10-1-16 仪表板与车门电器元件位置图(1)图10-1-17 仪表板与车门电器元件位置图(2)图10-1-18 仪表板与车门电器元件位置图(3)图10-1-19 安全指示灯系统部件位置图图10-1-20 照明系统控制部件位置图图10-1-21 转向信号/危险报警闪光装置部件位置图图10-1-22 车内灯具位置图图10-1-23 音响装置元件位置图图10-1-24 电动后视镜控制部件位置图图10-1-25 电动天窗控制元件位置图图10-1-26 电动座椅控制元件位置图图10-1-27 定速巡航控制系统元件位置图(1)图10-1-28 定速巡航控制系统元件位置图(2)图10-1-29 安全防盗系统控制元件位置图图10-1-30 遥控开启车门/防盗安全报警系统元件位置图(1)图10-1-31 遥控开启车门/防盗安全报警系统元件位置图(2)图10-1-32 安全气囊SRS系统部件位置图图10-1-33(a)熔断丝盒和插头位置图(驾驶侧仪表板下熔断丝/继电器盒)图10-1-33(b)熔断丝盒和插头位置图(Fo插头)图10-1-33(c)熔断丝盒和插头位置图(C1插头)图10-1-33(d)熔断丝盒和插头位置图(C2插头)图10-1-33(e)熔断丝盒和插头位置图(C3插头)图10-1-33(f)熔断丝盒和插头位置图(C4和C5插头)图10-1-33(g)熔断丝盒和插头位置图(Uo插头)图10-1-33(h)熔断丝盒和插头位置图(D1o和D1i插头)图10-1-33(i)熔断丝盒和插头位置图(D2o和D2i插头)图10-1-33(j)熔断丝盒和插头位置图(P1o和P1i插头)图10-1-34 暖风装置部件位置图图10-1-35 自动空调部件位置图(1)图10-1-36 自动空调部件位置图(2)图10-1-37 自动温湿控制部件位置图(1)图10-1-38 自动温湿控制部件位置图(2)图10-1-39 发动机舱电气线束和搭铁线的位置图(1)图10-1-40 发动机舱电气线束和搭铁线的位置图(2)图10-1-41 发动机舱电气线束和搭铁线的位置图(3)图10-1-42 仪表板电气线束和搭铁线的位置图(1)图10-1-43 仪表板电气线束和搭铁线的位置图(2)图10-1-44 车身电气线束和搭铁线的位置图(1)图10-1-45 车身电气线束和搭铁线的位置图(2)图10-1-46 电气线束和搭铁线的位置图(车辆后部)图10-1-47 电气线束和搭铁线的位置图(车顶部)图10-1-48 车门电气线束和搭铁线的位置图(1)图10-1-49 车门电气线束和搭铁线的位置图(2)图10-1-50 车门电气线束和搭铁线的位置图(3)图10-1-51 车门电气线束和搭铁线的位置图(4)图10-1-52 电气线束和搭铁线的位置图(电动座椅)第二节广州本田轿车电气线路图一、控制单元(ECU)插座广州本田轿车控制单元(ECU)插座如图10-2-1~图10-2-2所示。
照明系统照明系统转向信号/危险报警闪光系统部件位置索引.................................. 23-D-2 部件位置索引.......................................23-D-17电路图(具备自动关灯电路图..................................................23-D-18功能)............................................ 23-D-4 继电器输入检测....................................23-D-19电路图(未具备自动关灯危险报警开关检测................................23-D-20功能)............................................23-D-5 车内灯组合灯开关检测.............................. 23-D-6 部件位置索引.......................................23-D-21前大灯电路图..................................................23-D-22更换................................................ 23-D-7 聚光灯检测...........................................23-D-23调节................................................ 23-D-7 行李箱灯检测.......................................23-D-24侧转向信号灯行李箱锁闩开关检测更换................................................23-D-8 (未装备遥控开启车门/自动关灯功能防盗安全报警系统)...........................23-D-24电路图.............................................23-D-9 仪表板灯亮度控制控制装置输入检测.......................... 23-D-10电路图..................................................23-D-25尾灯控制装置输入检测................................23-D-26更换................................................ 23-D-12控制检测...............................................23-D-27倒车灯车门灯控制系统电路图............................................. 23-D-13部件位置索引.......................................23-D-28制动灯电路图..................................................23-D-29电路图............................................. 23-D-14控制装置输入检测................................23-D-30高位制动灯点火钥匙开关检测................................23-D-33更换................................................ 23-D-15点火钥匙灯检测....................................23-D-33牌照灯车内顶篷灯检测....................................23-D-34更换................................................23-D-15后雾灯(KB车型)电路图.............................................23-D-16开关检测.........................................23-D-16照明系统部件位置索引远光指示灯仪表板灯亮度控制器输入检测,见23-D-26页发动机盖下保险/ 继电器盒前大灯继电器1 检测,见23-B-3页前大灯继电器2 检测,见23-B-3页组合灯开关检测,见23-D-6页 更换,见23-D-6页尾灯继电器检测,见23-B-3页23-D-2照明系统电路图(具备自动关灯功能)23-D-3后转向信号灯前转向信号灯/前侧标志灯尾灯与制动灯更换,见23-D-12页后雾灯(KB车型)内侧尾灯更换,见23-D-12页牌照灯更换,见23-D-15页倒车灯高位制动灯更换,见23-D-15页前大灯/前驻车灯更换,见23-D-7页侧转向信号灯更换,见22-D-8页电路图(未具备自动关灯功能)发动机盖下保险/继电器盒 电瓶红/黑 黑黑G301G601黑G201左前侧标志灯(2.2CP)右前侧标志灯(2.2CP)左前 驻车灯(3CP) 右前 驻车灯(3CP)尾灯 (5WX2)牌照灯(3CP)内侧 尾灯 (3CPX2)黑红/黑No.54 (40A)助手席侧 仪表板下保险/继电器盒黄多路控制装置 (助手席侧)(驾驶席侧)No.10 (10A)尾灯 继电器红/绿红/绿红/黄蓝/红多路控制装置(驾驶席侧)6红/黄红/黑组合灯开关红/白红/黑7橙/白橙/白橙/白 橙/白 101143红/白断开会车灯变光器远光近光(未使用)右前 大灯近光灯 (51W)远光灯 (60W) 近光灯 (51W) 远光灯 (60W) 左前 大灯远光 指示灯 (1.4W)多路控制装置(驾驶席)红/黄红/白红/黄红/绿红/绿蓝/红蓝/白红/绿红/黄 No.43 (20A)No.45 (20A)No.41(100A)前大灯 继电器1前大灯 继电器2 红/黑红/黑红/黑红/黑红/黑黑黑黑 黑 黑 G301 G401G301G201 G20123-D-4照明系统组合灯开关检测/更换发动机盖下保险/继电器盒 电瓶No.54 (40A)助手席侧 仪表板下保险/继电器盒No.10 (10A)No.45 (20A) 前大灯 继电器1多路控制装置(驾驶席侧)No.43 (20A) 前大灯 继电器2 No.41(100A)红/黑 黑黑G301G601黑G201左前侧标志灯(2.2CP)右前侧标志灯(2.2CP)左前 驻车灯(3CP) 右前 驻车灯(3CP)左尾灯(5W)牌照灯 (3CP)右尾灯 (5W)右内侧 尾灯 (3CP)左内侧 尾灯 (3CP)红/黑红/黑红/黑 组合灯开关红/黑红/黑橙/白647 1110橙/白橙/白橙/白断开会车灯变光器远光近光(未使用)右前 大灯近光灯 (51W)远光灯 (60W) 近光灯 (51W) 远光灯 (60W) 左前 大灯远光 指示灯 (1.4W)红/黄红/黄红/黄红/绿红/绿黄红/绿蓝/红红/绿红/黄 红/黑红/黑红/黑红/黑红/黑黑黑黑 黑 黑 黑 G301 G401 G301G201 G20123-D-51. 卸下驾驶席侧仪表板下盖和转向柱盖(见第20章)。
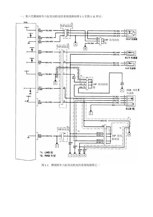
一、第六代雅阁轿车六缸发动机电控系统线路如图1-1至图1-11所示。
图1-1 雅阁轿车六缸发动机电控系统线路图之一
图1-2 雅阁轿车六缸发动机电控系统线路图之二
图1-3 雅阁轿车六缸发动机电控系统线路图之三
图1-4 雅阁轿车六缸发动机电控系统线路图之四
图1-5 雅阁轿车六缸发动机电控系统线路图之五
图1-6 雅阁轿车六缸发动机电控系统线路图之六
图1-7 雅阁轿车六缸发动机电控系统线路图之七
图1-8 雅阁轿车六缸发动机电控系统线路图之八
图1-9 雅阁轿车六缸发动机电控系统线路图之九
图1-10 雅阁轿车六缸发动机电控系统线路图之十
图4-11 雅阁轿车六缸发动机电控系统线路图之十一
二、第五代雅阁轿车六缸发动机/变速器电控系统线路如图2-1、图2-2、图2-3所示。
图2-1 广州雅阁轿车六缸发动机/变速器电控系统线路图之一
图2-2 广州雅阁轿车六缸发动机/变速器电控系统线路图之二
图2-3 广州雅阁轿车六缸发动机电控系统线路图之三。
九代雅阁电路图至部件的搭铁索引至部件的搭铁索引搭铁搭铁的部件或电路G1蓄电池G2发动机支座托架G3变速箱壳体G101变速箱档位开关、点火线圈、CKP 传感器、EGR 阀*1,*3、CMP 传感器*1,*3、CMP 传感器 A 和 B*2、A/T 离合器压力控制电磁阀 A、B 和 C*3、A/T 离合器压力控制电磁阀 D*3、VTC 机油控制电磁阀*2、换档电磁阀 A、B 和 C*3、管路压力电磁阀 A*3、摇臂机油控制电磁阀*1,*2、摇臂机油控制电磁阀 A (B1)*3、摇臂机油控制电磁阀 A (B2)*3、摇臂机油控制电磁阀 B (B1)*3、摇臂机油压力开关*2、摇臂机油压力开关 A (B1)*3、摇臂机油压力开关 A (B2)*3、发动机防盗锁止-遥控器控制单元(不带无钥匙进入系统)*1,*2、PCM (PG)*1、PCM (PG(GND1))*1、PCM (LG(GND2))*1、PCM (PG2(GND3))*1、PCM (GND1)*2,*3、PCM (GND2)*2,*3、PCM (GND3)*2,*3、PCM (PGM(GND))*2,*3、PCM 和爆震传感器之间屏蔽*1,*2、PCM 和爆震传感器 (B1) 之间屏蔽*3、PCM 和爆震传感器 (B2) 之间屏蔽*3、PCM 和辅助 HO2S (S2) 之间屏蔽*1、PCM 和喷油器之间屏蔽*2、PCM 和高压燃油泵之间屏蔽*2G102*2PCM (GND INJ 1)、PCM (GND INJ 2)G151*4CVT 主动带轮压力控制电磁阀、CVT 从动带轮压力控制电磁阀G152*4CVT 锁止离合器控制电磁阀、CVT 离合器压力控制电磁阀G201右大灯(远光)、右大灯(近光)、右前位置灯/日间行车灯、右前转向信号灯、右前雾灯、右前转向灯(带主动转向灯)、挡风玻璃清洗器电机、毫米波雷达(带自适应巡航控制)G202VSA 调制器-控制器单元(双线)G301鼓风机电机继电器、电气负载检测器(ELD)、风扇控制继电器电路、防盗报警喇叭开关、制动液液位开关、起动机断电继电器电路*5、起动机断电继电器 2 电路*6、空调冷凝器风扇电机*1,*2、散热器风扇电机*3、挡风玻璃刮水器高速/低速继电器电路、挡风玻璃刮水器间歇继电器电路、挡风玻璃刮水器电机、左大灯(远光)、左大灯(近光)、左前位置灯/日间行车灯、左前转向信号灯、左前雾灯、左前转向灯(带主动转向灯)G401点烟器继电器、电动车门门锁继电器电路、行李箱盖释放作动器继电器电路、挡风玻璃清洗器电机继电器电路、左大灯调平电机*5、右大灯调平电机*5、功率晶体管、大灯调平控制单元*6、转矩传感器、转向灯主动控制单元(带主动转向灯)、发动机支座控制单元*3、转向器(双线)*3G402EPS 控制单元G501数据插接器 (DLC)(双线)、车门多路控制单元(双线)、MICU (GND)、电子转向锁*6、发动机起动/停止开关*6、电动后视镜开关、电动后视镜开关灯、左电动后视镜除雾器*8、驾驶员侧电动车窗电机、驾驶员侧车门锁闩、驾驶员侧车门外把手*6、驾驶位置记忆开关(带 DPMS)、前排独立阅读灯、化妆镜灯、自动调光车内后视镜、自动照明/雨量传感器(带自动刮水器)、天窗开关、天窗控制单元/电机、后排独立阅读灯G502大灯调平开关*5、点火开关*5、无钥匙进入控制单元*6、VSA OFF 开关、ECON 开关、扶手箱附件电源插座继电器、仪表控制单元(双线)、线盘(方向盘开关搭铁)、G551(通过线盘连接至 G502)G503前排乘客侧车门外把手*6、ACC 单元(双线)、驾驶员座椅加热器开关、前排乘客座椅加热器开关、转向角传感器、驻车销开关、扶手箱附件电源插座、ANC/主动噪音控制单元、组合灯开关(带盲点显示系统)G504SRS 单元(双线)G505点烟器、烟灰缸灯、综合信息显示屏单元、音响单元*8、音响-导航单元*9、前排乘客气囊 ON/OFF 开关、绘图单元*9,*10 G506手套箱灯、前排乘客车门锁闩、空调控制单元、HVAC 控制单元、自动照明控制单元/传感器(不带自动刮水器)、前排乘客侧电动车窗开关、右电动后视镜、立体声放大器*7、电动后窗遮阳板开关G551G502(通过线盘连接至 G551)G601仪表板下保险丝/继电器盒(点烟器继电器电路、电动车门门锁继电器电路、行李箱盖释放作动器继电器电路和挡风玻璃清洗器电机继电器电路)、MICU (GND)、左后电动车窗开关、左后车门锁闩、后排左侧座椅加热器开关G602行李箱单元(燃油泵)*1,*2、燃油泵控制单元*3G603牌照灯、倒车灯、高位制动灯、左尾灯/后示宽灯、右尾灯/后示宽灯、内尾灯、左制动灯、右制动灯、左后转向信号灯、右后转向信号灯、后雾灯、行李箱盖锁闩开关、行李箱盖外把手开关*6、遥控器蜂鸣器*6、后音响遥控开关、驻车和倒车传感器控制单元、后排座椅加热器继电器(高、低)、后排座椅加热器G651驾驶员座椅安全带锁扣开关、驾驶员电动座椅调节开关、驾驶员侧电动腰部支撑开关、电动座椅控制单元(双线)(带DPMS)、驾驶员座椅加热器继电器(高、低)、驾驶员座椅座垫加热器、右电子安全带预张紧器单元(带 CMBS)G652前排乘客座椅安全带锁扣开关、前排乘客电动座椅调节开关、前排乘客座椅加热器继电器(高、低)、前排乘客座椅座垫加热器、后排右侧座椅加热器开关、右后车门锁闩、右后电动车窗开关、后窗遮阳板控制单元、左电子安全带预张紧器单元(带 CMBS)G701后窗除雾器*1:R20Z4 发动机*2:K24W5 发动机*3:V6*4:CVT*5:不带无钥匙进入系统*6:带无钥匙进入系统*7:带立体声放大器*8:不带导航*9:带导航*10:带智能屏互联系统。
仪表专用工23-C-2 具............................................................................仪表总成部件位置索23-C-3 引.................................................................仪表/端子位置索23-C-4 引........................................................灯泡位23-C-5 置........................................................................电路23-C-8 图............................................................................更23-C-17 换...............................................................................车速传感器更23-C-17 换...............................................................................故障处23-C-18 理........................................................................安全指示灯系统部件位置索23-C-21 引.................................................................电路23-C-22 图............................................................................安全指示灯输入检23-C-26 测......................................................制动灯故障传感器检23-C-28 测..................................................专用工具序号工具编号工具名称数量备注c 07LAJ - PT30200 检测线束 1仪表总成部件位置索引23-C-2车速传感器(VSS)(M/T)故障处理(M/T),见23-C-18页 故障处理(A/T),见23-C-20页 更换,见23-C-17页燃油表发送装置 见第11章发动机机油压力开关 见第8章制动液液位开关见第19章 仪表总成仪表/端子位置索引,见23-C-4页 更换,见23-C-17页 灯泡位置,见23-C-5页驻车制动开关 见第19章发动机冷却液温度(ECT) 仪表发送装置 见第10章仪表总成仪表/指示灯/端子位置索引插头“B ” 插头“C ”插头“A ” 转速表:在点火控制模块(ICM) 为每分钟200脉冲时, 显示为100 rpm 。