8.凹凸锉配
- 格式:pptx
- 大小:1.57 MB
- 文档页数:5
锉配凹凸体的加工工艺步骤
锉配凹凸体的加工工艺步骤如下:
1. 确定形状和尺寸:根据设计要求和图纸,确定凹凸体的几何形状和尺寸。
2. 选择锉具:根据凹凸体的形状和尺寸,选择合适的锉具,如平面锉、半圆锉、方头锉等。
3. 固定工件:将要加工的凹凸体固定在工作台上,可以使用夹具或者其他适当的固定装置。
4. 粗锉:用粗锉先行去除工件表面多余材料,将凹凸体的整体形状进行粗加工。
5. 精锉:用细锉对凹凸体进行细致加工,将凹凸体的表面进行光洁度的加工。
6. 清洁:对加工后的凹凸体进行清洁,去除锉屑和粉尘。
7. 检验和修正:对加工后的凹凸体进行检验,检查形状和尺寸是否符合要求,如出现偏差则进行修正。
8. 表面处理:对凹凸体进行表面处理,如打磨、抛光等,以提高其外观质量和耐腐蚀性能。
9. 检验和保养:最后对加工后的凹凸体进行最终检验,确保质量合格,然后进行适当的保养和防护。
以上是锉配凹凸体的加工工艺步骤,具体步骤可能会根据不同的工件形状和加工要求有所差异。
专业课程说课钳工实训《锉配凹凸体》课件(一)近年来,随着信息时代的不断发展和技术的不断革新,各行业对技术人才的要求也在不断提高。
在这样的背景下,专业课程教学显得尤为重要。
而对于钳工专业而言,课程教学中的实践环节更是至关重要。
因此,本文将重点介绍一份《锉配凹凸体》课件,以探讨其在钳工实训中的实际应用。
一、课程概述《锉配凹凸体》是钳工专业中的一门基础课程。
该课程的主要内容是钳工锉工具的使用技能及凹凸面锉刀、锉刀杆的制作。
同时,该课程也是一门实践性极强的课程,学生在课程中需要通过实操来掌握锉工具的使用规范和制作技巧,同时也需要培养他们对钳工零件的加工工艺的理解。
二、课程实施在教学实施中,本课程采用纸质课件辅助教学、课堂教学与实验实践相结合的教学模式。
其中,钳工锉工具的使用技能和制作技巧通过讲解规范、合理安排实验时间,注重实践,采用“带教”、“举例”等方式进行讲解和演示,学生可在老师的指导下完成多次实验和练习,从而掌握实际操作技巧。
课程结束后,学生还需要进行实战演练,以实现真正的技能提升和工艺熟练。
三、学习成效在钳工实训过程中,《锉配凹凸体》课程的教学实施已取得了较为显著的效果。
具体表现在以下两个方面:1. 学生能够掌握锉工具的使用规范通过实验和演示,学生学会了正确、规范使用不同类型的锉工具,掌握了怎样利用锉刀杆制作高精度锉柄的基本方法。
同时,学生明确了怎样配对和选择不同的锉刀,以及应根据不同的零件结构形状采用不同的锉工进给和摆角方案,使从实现加工和修理的角度来说,锉工操作具有相对的安全性和操作性。
2. 学生能够掌握钳工零件制作工艺通过实验和演练,学生不仅可以制作和安装钳工凹凸面锉刀与锉刀杆,在掌握了根据零件构造形状安排制作流程和锉工进给和摆角方案的基本原则和方法后,还能进行多种自下而上零件的加工和修理,从而成功提高钳工工艺的实际应用性。
四、总结总体而言,《锉配凹凸体》课程作为钳工实训的重要部分,具有很强的实践性和针对性,可以帮助学生初步掌握钳工凹凸面锉刀的制作和使用规范,更好地理解和应用钳工零件制作工艺。
a)凸形面垂直度误差产生的间隙b)凹形面垂直度误差产生的间隙
图6 垂直度误差对配合间隙的影响
(6)在加工垂直面时,要防止锉刀侧面碰坏另一垂直侧面,因此必须将锉刀一侧在砂轮上进行修磨,并使其与锉刀面夹角略小于90度(锉仙垂直面进),刀磨后最好用油石磨光。
<二>示范指导:
1、千分尺的正确使用。
2、锉削凹凸件的加工方法。
<三>巡回指导:
1、指导学生正确使用千分尺进行测量工件。
2、指导学生掌握对称度误差对转位互换精度的影响。
3、指导学生锉配凹凸体的过程,及时纠正错误操作。
<四>结束指导:
1、对锉配凹凸体过程中存在问题进行分析、总结。
2、表扬优秀学生。
3、检查人数、卫生,强调安全、文明操作。
4、实习记录及成绩评定。
教案《凹凸体锉后配》教案:凹凸体锉后配一、教学目标:1.知识与技能:学习并掌握凹凸体的概念及锉后配技法。
2.过程与方法:通过案例分析、讨论、实践操作等方式培养学生的问题解决和实践能力。
二、教学重点与难点:1.重点:凹凸体的概念及锉后配技法的学习与掌握。
2.难点:如何运用锉后配技法解决实际问题。
三、教学准备:1.教学工具:黑板、粉笔、实物凹凸体模型、实践操作工具等。
2.教学材料:相关案例分析、教学PPT等。
四、教学过程:1.热身导入(5分钟):教师可以通过展示一些凹凸体的图片,引起学生的兴趣并提问:你们对凹凸体了解多少?是否能给出一些例子?2.理论知识学习(15分钟):教师通过PPT或黑板讲解凹凸体的概念及属性,并与学生进行互动讨论。
例如:教师:你们知道凹凸体是什么吗?学生:凹凸体是一种在表面有凹陷和凸出的物体。
教师:非常好,凹凸体的表面具有什么特点?学生:凹凸体的表面不平整,有凹陷和凸出。
教师:很好,凹凸体还有什么特点?学生:凹凸体的表面有不同的形状和尺寸。
通过这样的互动,培养学生对凹凸体的认知。
3.案例分析(20分钟):教师通过案例分析,让学生了解锉后配技法的应用。
案例一:小明需要制作一件箱子,箱子的底部需要精确地与箱体配合。
请问,小明应该如何操作?案例二:小红正在制作一个零件,为了使其与机器配合得更好,她需要进行精确的调整。
请问,小红应该选择什么工具?教师可以先让学生进行小组讨论,然后再全班讨论,帮助学生理解问题并提出解决方案。
4.实践操作(30分钟):教师将实物凹凸体模型分发给每个学生,并组织学生进行实践操作。
学生可以利用锉刀和锉刀台来锉削凹凸体的表面,以达到锉后配的目的。
教师要对学生的操作进行指导和检查,确保学生正确掌握锉后配技法。
5.总结归纳(10分钟):教师带领学生总结本节课所学的内容,概括凹凸体概念及锉后配技法的关键点。
六、课堂作业:要求学生写一份学习笔记,总结本节课的学习内容,并思考凹凸体锉后配技法在实际生活或工作中的应用。
锉配凹凸体工作页实训背景:“锉配凹凸体”是钳工工艺学难度较大的一个教学内容。
锉配凹凸体项目教学具有划线、锯割、锉削、钻孔、测量等多方面的技能要求,所以是一个综合性较强的典型课题。
本课题的难点在于尺寸和形位公差的控制,特别是对称度的控制是最为重要的。
在以往的教学中,学生掌握起来有较大的难度,加工质量不易保证,以至出现部分学生对锉配操作失去信心,对以后的实习教学影响较大。
要想做好本课题教学,作为教师应根据具体情况,制定出切实可行的教学方案,形成清晰的教学思路,引导学生逐步形成锉配技能和技巧,使学生通过本课题的训练,能够基本掌握综合锉配件的加工方法。
实训目的:1.掌握具有对称度要求工件的划线、加工及测量方法。
2.提高锉削和锯削的技能操作。
教学准备:1、知识和技能的准备:学生具有一定的划线、锯割、锉削、测量等多方面的技能要求。
2、学生分组的准备每四人一个小组,但至少保证有一名知识和技能达到要求的学生。
3、实训器材的准备划针、样冲、錾子、锯弓、锯条、平锉、 3㎜钻头、游标高度尺、游标卡尺、90°角尺、刀口形直尺、普通钻床材料:HT200,规格为61mm×46 mm×13 mm实训内容:(一)、项目组的产生1.由教师帮助学生分组,要求能力强学生和能力弱的学生合理地搭配;不熟悉的学生尽可能在一个组;性格不同的尽可能分到一个组。
2.让每个项目组民主产生一位项目负责人。
该负责人要负责整个项目,从项目规划,到人员分工,到每个具体加工步骤,直至最后形成正确加工方案。
(二)、实训加工方案的确定1.教师讲解项目要求(技能训练内容和技能训练图)2.项目负责人组织项目组成员集体讨论,分析图纸要求,初步确定凹凸体锉配件的加工方法。
项目负责人整理大家意见,制订出整体加工工序。
3.项目负责人编写出加工工艺,并向大家详细说明,大家要认真讨论。
4.由项目负责人向指导教师汇报加工工艺,实训教师审阅修改后可以开始实施。
《凹凸件锉配》——扬州太平洋重工技工学校一、课题分析(一)本课题在技能训练中的作用本课题选自中国劳动和社会保障出版社出版的《钳工技能训练》(全国中等职业技术学校机械类通用教材)第四版第十四课题的综合技能训练(二)。
通过本课题的技能训练,提高学生对图样分析、加工工艺步骤分析、划线、锯割、錾削、锉削、锉配的技能综合理解和熟练掌握。
本课题对培养学生掌握工件锉配技能,打下良好基础,为下面错配课题起到铺垫作用。
(二)教学目标根据本课题技能训练内容及教学大纲要求,结合学生前面课题实习的内容,确立本节课的教学目标如下:1.知识目标(1)对称度的概念。
详细分析,为讲解凸件加工工艺中“对称度”控制方法做准备。
(2)加工工艺步骤中的关键词关键词:划线、钻孔、锯割、錾削、锉削、锉配。
通过关键词的分析,培养学生对工件加工工艺方法的分析能力,要求学生针对本课题的关键词展开讨论,进一步加强对本课题加工工艺步骤的掌握,并且能应用到实际技能操作中去。
(三)教学重点、难点重点:让学生能够按照图纸要求进行备料和加工工件,保证尺寸精度、对称度、垂直度、平面度、表面粗糙度等要求。
保证锉配间隙达到要求的精度,掌握锉配修整的方法。
能够理解加工过程中的注意事项。
难点:让学生学会怎样保证对称度,掌握薄板料平面度的控制,凹凸件锉配怎样达到间隙要求,掌握锉配技巧。
二、教法分析实习教学过程是教师向学生传授技能训练方法、学生掌握技能的过程,采取目标教学法,通过教学目标阶段、实际操作目标阶段、达到实际操作检测阶段、巡回指导阶段、反馈矫正阶段来提高学生技能掌握水平,从而达到本课题的技能训练目标。
三、学法分析(一)建构学习在教学中,通过假设、提问、对话让学生回顾前面课题中训练的技能,然后再应用到本课题中所要应用的技能,通过探索、反举例、反问、讲授,导入本课题加工工艺,使学生更加明确本课题加工工艺思路,提高学生独立思考问题的能力,更提高学生对技能掌握的要求。
锉配凹凸件工艺技术
锉配凹凸件工艺技术是制造行业中常见的一种加工工艺,用于在工件表面制作凹凸形状的零件。
下面我们就来详细介绍一下锉配凹凸件工艺技术。
首先,锉配凹凸件工艺技术主要由以下几个步骤组成:
1. 准备工作:确定所需加工的零件图纸,了解零件的形状、尺寸和表面要求。
同时,准备好需要使用的锉具,如平锉、三方锉等。
2. 定位和夹紧:根据零件图纸中的要求,将待加工的凹凸件安装到加工设备上,并通过夹紧装置将其牢固固定。
3. 粗加工:采用粗锉进行初步加工,将零件表面的多余材料去除,使其达到粗略的形状和尺寸要求。
这一步骤需要根据零件的具体要求和锉具的选择,进行适当的锉削和切割。
4. 精加工:使用细锉对零件进行精细加工,使其表面平整、光滑,并达到所需的凹凸形状。
这一步骤需要采用不同大小的细锉,结合锉削、拉锉和搓锉等技术,精密地调整零件的尺寸和形状。
5. 检验和修整:在锉配凹凸件工艺技术中,检验是非常重要的一步。
通过使用各种测量工具,如卡规、千分尺等,对加工后的零件进行尺寸和形状的检验,确保其符合要求。
如果检验结果不符合要求,需要进行修整和再次加工。
6. 清洁和防锈:在工艺流程的最后,对加工后的凹凸件进行清洁,并采取相应的防锈措施,以确保零件的质量和使用寿命。
总之,锉配凹凸件工艺技术是一种常见的加工工艺,在制造行业中具有广泛的应用。
通过合理的准备工作、准确的定位夹紧、粗加工和精加工、严格的检验和修整,以及适当的清洁和防锈措施,可以获得高质量的凹凸件,满足各种需求。
项目八锉配锉配是钳工的一项重要操作技能。
本项目主要通过凹凸体锉配、四方件锉配、六方件锉配三个锉配任务的练习来介绍相关的锉配工艺知识、操作步骤及要点,从而进一步掌握和提高操作者的锉配技能。
任务一锉配凹凸体通过凹凸体的锉配练习可以进一步提高锉削技能,从而掌握正确的加工和检查方法可以提高锉配技能,提高锉配加工质量,为今后更好地从事钳工装配技术打下一个良好的基础。
学习目标掌握锉配的相关工艺知识;掌握锉配的一般加工步骤。
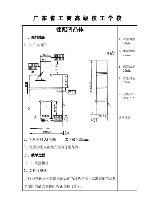
任务描述根据图样8-1所示锉配凹凸体,保证达到锉配精度,并能转位互换配合。
技术要求1.锉配面表面粗糙度达到Ra3.2μm。
2.凹凸体配合互换间隙≤0.06mm。
3.锯削面不可自行锯断,待检测时锯开。
4.各锐边倒钝。
图8-1 锉配凹凸体一、相关工艺知识1.对称度相关概念(1)对称度。
对称度是指被测表面的对称平面与基准表面的对称平面间的最大偏移距离Δ,如图8-2所示。
图8-2 对称度图8-3 对称度公差带(2)对称度公差带。
对称度公差带是指距离为公差值t,且相对基准中心平面对称配置的两平行平面之间的区域,如图8-3所示。
2.对称度的测量测量被测表面与基准面的尺寸A和B,其差值之半即为对称度。
如图8-4所示为对称度的测量示意图。
(a)(b)图8-4 对称度的测量3.对称度对工件互换精度的影响如图8-5所示,如果凹凸件都有对称度要求0.04mm,并且在同方向位置上锉配达到要求的间隙后,得到两侧基准面对齐,而调换180°后做配合就会产生两侧面基准面偏位误差,其总对称度值为0.08mm。
(a)同方向位置配合(b) 转位后的配合图8-5 对称度对转位的精度影响任务实施一、练习图样凹凸体的锉配练习图样见图8-1。
二、工量具准备划针、样冲、锤子、划线平板、划线靠铁、锯弓、锯条、扁锉(粗、细各一个)、三角锉、钻头(φ3mm )、金属直尺、高度游标卡尺、游标卡尺、千分尺、刀口形直尺、游标万能角度尺、塞尺、灯箱。