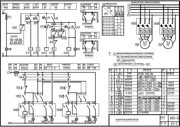
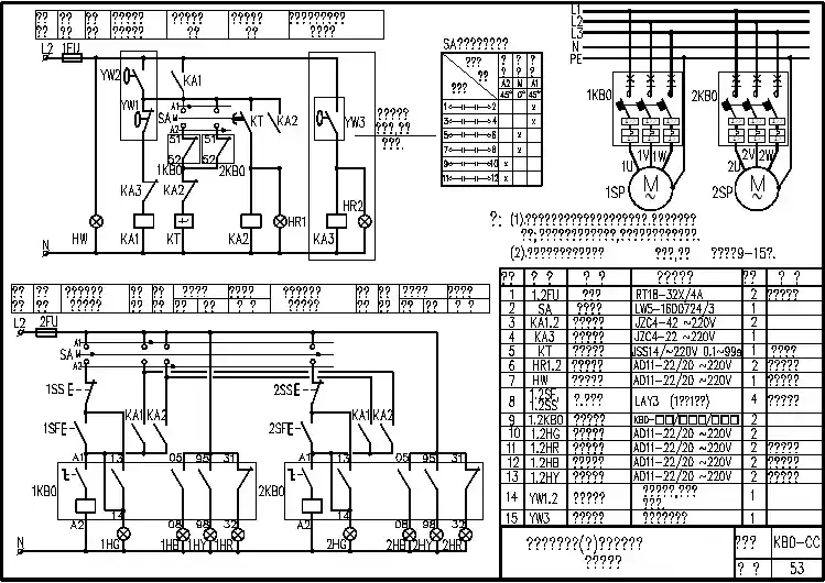
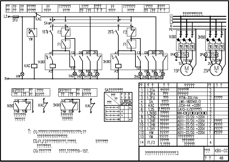
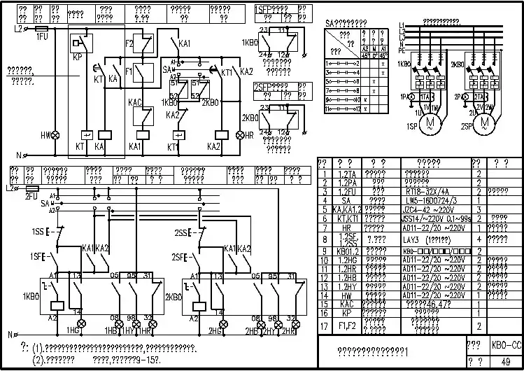
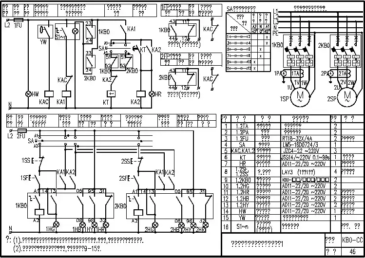
控制原理图HW21XT1:43--2519101121--654X2A2A27KA2X1A1A1KA1XT1:2 220VXT1:1保护及指示控制电源水位自控溢流水位继电器及指示XT1:3XT1:4A1A1KM1KT1A2A23433KM12221KM2 220V12XT1:2FU1控制电源1434SF1KM1141314221321SACKA11333K1#1泵控制手动控制自动#2泵控制19181019202324252114-16197控制原理图X2X1XT1:1--Isomax S 系列或 Tmax 系列序号1低压断路器名 称QF,QF1,2符号型号规格3数量个单位备注主要设备材料表2KM1,2个2交流接触器3KH1,2热继电器个2TA25DU-T900DUA9-AF7503FU FU1,24熔断器个5中间继电器N44E 220V个56KT1-27时间继电器2个SAC8选择开关1个9中间继电器1个SS1,210停止按钮个211SF1,2起动按钮2个SBRSBT1312复位按钮试验按钮11个个HW14白色信号灯1个HR1,215红色信号灯个2HG1,216绿色信号灯个2HY1-317黄色信号灯个3T18控制变压器1个19HA20电铃个121SL1,2,322液位器个323242526CT-ERE 220V 3-300SCP1-10 -11CP1-10 -11CP1-10 -11CP1-10 -11CL523 220VCL523 220VCL523 220VCL523 220V1112SS1KH19596X1A1KM2HR2A2X2 220V12XT1:3FU12444SF2KM214133433KA12343K11112SS2KH29596181792410252715-MXT1:2642QF1MXT1:3QF2L2L3L1N135531462KM1KH1531462135642531462KH2135KM2264XT1:4V1W1U1W2V2U2PEPEXT1:1642QF135外部接线图43XT1主回路FU.2KA1.13KA1.A118KT1KA3131417A2A1KA31516KT2轮换投入----26820-X1HR1X22423KT1KA34241KM134332423KT24443KM2A1KT2A2257控制原理图HW21XT1:43--526--654X2A2A27X1A1A1 220VXT1:1保护及指示控制电源SL2XT1:4XT1:4A1A1KM1KT1A2A23433KM12221KM2 220V12XT1:2FU1控制电源1434SF1KM1141314221321SAC1333K1#1泵控制延时轮换手动#2泵控制19251810192023242514-16197两台排水泵自动轮换及溢流水位双泵运行控制电路图控制原理图HY3X2X1SL1--Isomax S 系列或 Tmax 系列序号1低压断路器名 称QF,QF1,2符号型号规格3数量个单位备注主要设备材料表2KM1,2个2交流接触器3KH1,2热继电器个2TA25DU-T900DUA9-AF7503FU FU1,24熔断器个KA1-3,5,65中间继电器个6KT1-27时间继电器2个SAC8选择开关1个9KA2中间继电器1个SS1,210停止按钮个211SF1,2起动按钮2个SBRSBT1312复位按钮试验按钮11个个HW14白色信号灯1个HR1,215红色信号灯个2HG1,216绿色信号灯个217黄色信号灯个T18控制变压器1个19HA20电铃个121SL1,2,322液位器个323242526CT-ERE 220V 3-300SCP1-10 -11CP1-10 -11CP1-10 -11CP1-10 -11CL523 220VCL523 220VCL523 220VCL523 220V1112SS1KH19596X1A1KM2HR2A2X2 220V12XT1:3FU12444SF2KM2141334332343K11112SS2KH29596零位181715-22MXT1:2642QF1MXT1:3QF2L2L3L1N135531462KM1KH1531462135642531462KH2135KM2264XT1:4V1W1U1W2V2U2PEPEXT1:1642QF135外部接线图21XT1至污水池液位器主回路18KT1KA3131417A2A11516KT2----820-X1HR1X22423KT1KA34241KM134332423KT2KA34443KM2A1KT2A2712FU--KA2.A1两台排水泵自动轮ห้องสมุดไป่ตู้及溢流水位双泵运行控制电路图27--4443KA25453KA22627运行指示控制电源手动控制控制电源延时轮换运行指示两台水泵互为备用,自动轮换工作,工作泵故障备用泵延时投入,水泵由水位控制,高水位起泵,低水位停泵,达溢流水位时两泵同时工作,溢流水位及双泵故障报警,设有工作状态(手动、自动、备用)转换开关。K1中间继电器1个K1中间继电器1个N44E 24VN44E 220V端子排DA2.5/5排1