MY7140 卧轴矩台平面磨床电路图(合信源)
- 格式:pdf
- 大小:194.20 KB
- 文档页数:7
M7120型平面磨床的电气控制电路及工作原理磨床是用磨具和磨料(如砂轮、砂带、油石、研磨剂等)对工件的表面进行磨削加工的一种机床,它可以加工各种表面,如平面、内外圆柱面、圆锥面和螺旋面等。
通过磨削加工,使工件的形状及表面的精度、光洁度达到预期的要求;同时,它还可以进行切断加工。
根据用途和采用的工艺方法不同,磨床可以分为平面磨床、外圆磨床、内圆磨床、工具磨床和各种专用磨床(如螺纹磨床、齿轮磨床、球面磨床、导轨磨床等),其中以平面磨床使用最多。
平面磨床又分为卧轴和立轴、矩台和圆台四种类型,下面以M7130型卧轴矩台平面磨床为例介绍磨床的电气控制电路。
M7130型平面磨床型号的含义为一、平面磨床的主要结构和运动形式M7120型卧轴矩形工作台平面磨床的主要结构包括床身、立柱、滑座、砂轮箱、工作台和电磁吸盘,如图7—4所示。
磨床的工作台表面有T型槽,可以用螺钉和压板将工件直接固定在工作台上,也可以在工作台上装上电磁吸盘,用来吸持铁磁性的工件。
平面磨床进行磨削加工的示意图如图7—5所示,砂轮与砂轮电动机均装在砂轮箱内,砂轮直接由砂轮电动机带动旋转;砂轮箱装在滑座上,而滑座装在立柱上。
图7-4 M7130卧轴矩台平面磨床结构示意图磨床的主运动是砂轮的旋转运动,而进给运动则分为以下三种运动。
(1)工作台(带动电磁吸盘和工件)作纵向往复运动;(2)砂轮箱沿滑座上的燕尾槽作横向进给运动;(3)砂轮箱和滑座一起沿立柱上的导轨作垂直进给运动。
图7-5 磨床的主运动和进给运动示意图二、平面磨床的电力拖动形式和控制要求M7120型卧轴矩台平面磨床采用多台电动机拖动,其电力拖动和电气控制、保护的要求是:(1)砂轮由一台笼型异步电动机拖动,因为砂轮的转速一般不需要调节,所以对砂轮电动机没有电气调速的要求,也不需要反转,可直接起动。
(2)平面磨床的纵向和横向进给运动一般采用液压传动,所以需要由一台液压泵电动机驱动液压泵,对液压泵电动机也没有电气调速、反转和降压起动的要求。
M7120平面磨床的电气自动化设计第一章 M7120型磨床的构成及工作原理型磨床的构成 M7120一、型磨床的型号及含义M71201.型号:M7120含义:M —磨床7 —平面磨床1 —卧轴矩台式20 —工作台的工作面宽200mm2.M7120型磨床的主要结构M7120型平面磨床主要由床身、工作台、电磁吸盘、砂轮架(又称磨头)、滑座、立柱等部分组成。
它的外型如图所示:磨床的主运动是砂轮的旋转运动,辅助运动是工作台的左右往返1M7120平面磨床的电气自动化设计运动和砂轮架的前后上下进给运动。
工作台的往返运动采用液压传动,能保证加工精度。
砂轮升降电动机使砂轮在立柱导轨上作垂直运动,用以调整砂轮与工件位置。
3.控制要求(1)砂轮的旋转用一台三相异步电机拖动,要求单向连续运行。
(2)砂轮电动机、液压泵电动机和冷却泵电动机都只要求单向旋转。
(3)砂轮升降电动机要求能正反转控制。
(4)冷却泵电动机只有在砂轮电动机起动后才能起动。
(5)电磁吸盘应有充磁和去磁控制环节。
二、M7120型磨床的工作原理1.M7120型磨床电气控制线路图见附图2.主电路工作原理主电路中有四台电动机,分别为液压泵电动机M1、砂轮电动机M2、冷却泵电动机M3和砂轮升降电动机M4,它们的短路保护均由熔断器FU1实现。
热继电器FR1、FR2、FR3分别为M1、M2、M3的过载保护。
液压泵电动机M1只需要单向旋转,由接触器KM1控制。
由于冷却泵电动机M3必须在砂轮电动机M2运转后才能起动,所以由同一个接触器KM2控制。
砂轮升降电动机M4由接触器KM3和KM4控制,要求能正反转,由于M4是点动短时运转,故未设过载保护。
3.控制电路工作原理(1)液压泵电动机M1的控制若电源电压正常,由变压器TC副绕组提供135V交流电压,经桥式整流器VC整流后得到110V直流电压,使欠电压继电器KV线圈得电吸合,其常开触头KV闭合,为电动机的起动作好准备。
若电源电压偏低,KV不能可靠工作,则四台电动机均不能起动。
1
电源开关 及保护蜂鸣器
液压泵 电动机
砂轮 电动机 冷却泵 电动机
砂轮升降 电动机
电源控制
液压泵 控制 砂轮冷却及 整流电路
砂轮 上升
下降 电磁吸盘
充磁 去磁信 号 灯
液压泵停 液压泵起砂轮冷却停 砂轮冷却起砂轮停止砂轮起动
去磁
退磁
电磁吸盘
时间继电器
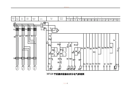
M7120平面磨床检修实训台电气原理图
M7120平面磨床检修实训台电气安装位置图
2
3
TC L1
L2L3
电源开关 及保护 液压泵 电动机
砂轮 电动机 冷却泵 电动机
砂轮升降 电动机
电源控制
液压泵 控制 砂轮冷却及 整流电路
砂轮 上升
下降 电磁吸盘
充磁 去磁信 号 灯
液压泵停 液压泵起砂轮冷却停 砂轮冷却起砂轮停止砂轮起动
去磁
退磁
电磁吸盘
时间继电器蜂鸣器
M7120平面磨床检修实训台电气故障位置图。
M7120型平面磨床电气原理分析
适用专业:电子技术应用电气技术应用
电气自动化设备安装与维修
使用范围:机床电电器控制技术(理论+实习)
课时:2课时
撰写时间:2014年9月
M7120型平面磨床电气原理分析【教学目标】
知识目标:能分析M7120平面磨床电气原理图
能力目标:根据磨床故障现象能分析出故障原因。
情感目标:激发学生探索未知的兴趣和积极性,得到利用知识解决问题的成就感。
【教学手段】
1.教学场地:课程教室
2.教学手段:多媒体信息化辅助教学
【教学方法】
1.项目教学
2.理实一体化教学
【教学过程设计】。
M7120型平面磨床的电气控制电路及工作原理M7120型平面磨床主要由主线路、控制线路、照明及指示灯线路及电磁工作台线路等组成,如图8.4所示。
下面按线路的几大部分分别对其工作原理及用途作简单介绍。
图8.4M7120型平面磨床的电气控制电路M7120型平面磨床的主线路有四台电动机,M1为液压泵电动机,它在工作中起到工作台往复运动的作用;M2是砂轮电动机,可带动砂轮旋转起磨削加工工件作用;M3电动机做辅助工作,它是冷却泵电动机,为砂轮磨削工作起冷却作用;M4为砂轮机升降电动机,用于调整砂轮与工作件的位置。
M1、M2及M3电动机在工作中只要求正转,其中对冷却泵电动机还要求在砂轮电动机转动工作后才能使它工作,否则没有意义。
对升降电动机要求它正反方向均能旋转。
控制线路对M1、M2、M3电动机有过载保护和欠压保护能力,由热继电器FR1、FR2、FR3和欠压继电器完成保护,而四台电动机短路保护则需FU1做短路保护。
电磁工作台控制线路首先由变压器T1进行变压后,再经整流提供110V的直流电压,供电磁工作台用,它的保护线路是由欠压继电器、放电电容和电阻组成。
线路中的照明灯电路是由变压器提供36V电压,由低压灯泡进行照明。
另外还有5个指示灯:HL亮证明工作台通入电源;HL1亮表示液压泵电动机已运行;HL2亮表示砂轮机电动机及冷却泵电动机已工作;HL3亮表示升降电动机工作;HL4亮表示电磁吸盘工作。
M7120型平面磨床的工作原理是,当电源380V正常通入磨床后,线路无故障时,欠压继电器动作,其常开触点KA闭合,为KM1、KM2接触器吸合做好准备,当按下SB1按钮后,接触器KM1的线圈得电吸合,液压泵电动机开始运转,由于接触器KM1的吸合,自锁点自锁使M1电动机在松开按钮后继续运行,如工作完毕按下停止按钮,KM1失电释放,M1便停止运行。
如需砂轮电动机以及冷却泵电动机工作时,按下按钮SB3后,接触器KM2便得电吸合,此时砂轮机和冷却泵电动机可同时工作,正向运转。
M7120型平面磨床的电气控制电路及工作原理磨床是用磨具和磨料(如砂轮、砂带、油石、研磨剂等)对工件的表面进行磨削加工的一种机床,它可以加工各种表面,如平面、内外圆柱面、圆锥面和螺旋面等。
通过磨削加工,使工件的形状及表面的精度、光洁度达到预期的要求;同时,它还可以进行切断加工。
根据用途和采用的工艺方法不同,磨床可以分为平面磨床、外圆磨床、内圆磨床、工具磨床和各种专用磨床(如螺纹磨床、齿轮磨床、球面磨床、导轨磨床等),其中以平面磨床使用最多。
平面磨床又分为卧轴和立轴、矩台和圆台四种类型,下面以M7130型卧轴矩台平面磨床为例介绍磨床的电气控制电路。
M7130型平面磨床型号的含义为一、平面磨床的主要结构和运动形式M7120型卧轴矩形工作台平面磨床的主要结构包括床身、立柱、滑座、砂轮箱、工作台和电磁吸盘,如图7—4所示。
磨床的工作台表面有T型槽,可以用螺钉和压板将工件直接固定在工作台上,也可以在工作台上装上电磁吸盘,用来吸持铁磁性的工件。
平面磨床进行磨削加工的示意图如图7—5所示,砂轮与砂轮电动机均装在砂轮箱内,砂轮直接由砂轮电动机带动旋转;砂轮箱装在滑座上,而滑座装在立柱上。
图7-4 M7130卧轴矩台平面磨床结构示意图磨床的主运动是砂轮的旋转运动,而进给运动则分为以下三种运动。
(1)工作台(带动电磁吸盘和工件)作纵向往复运动;(2)砂轮箱沿滑座上的燕尾槽作横向进给运动;(3)砂轮箱和滑座一起沿立柱上的导轨作垂直进给运动。
图7-5 磨床的主运动和进给运动示意图二、平面磨床的电力拖动形式和控制要求M7120型卧轴矩台平面磨床采用多台电动机拖动,其电力拖动和电气控制、保护的要求是:(1)砂轮由一台笼型异步电动机拖动,因为砂轮的转速一般不需要调节,所以对砂轮电动机没有电气调速的要求,也不需要反转,可直接起动。
(2)平面磨床的纵向和横向进给运动一般采用液压传动,所以需要由一台液压泵电动机驱动液压泵,对液压泵电动机也没有电气调速、反转和降压起动的要求。
第一章 M7120 型磨床的组成及工作原理一、 M7120 型磨床的组成1. M7120型磨床的型号及含义型号:M7120含义:M —磨床7 —平面磨床1 —卧轴矩台式20 —工作台的工作面宽 200mm型磨床的主要结构M7120型平面磨床主要由床身、工作台、电磁吸盘、砂轮架〔又称磨头〕、滑座、立柱等局部组成。
它的外型以以下图:磨床的主运动是砂轮的旋转运动,辅助运动是工作台的左右往返1运动和砂轮架的前后上下进给运动。
工作台的往返运动采用液压传动,能保证加工精度。
砂轮起落电动机使砂轮在立柱导轨上作垂直运动,用以调整砂轮与工件地址。
3. 控制要求〔1〕砂轮的旋转用一台三相异步电机拖动,要求单向连续运转。
〔2〕砂轮电动机、液压泵电动机和冷却泵电动机都只要求单向旋转。
〔3〕砂轮起落电动机要求能正反转控制。
〔4〕冷却泵电动机只有在砂轮电动机起动后才能起动。
〔5〕电磁吸盘应有充磁和去磁控制环节。
二、M7120型磨床的工作原理型磨床电气控制线路图见附图2. 主电路工作原理主电路中有四台电动机,分别为液压泵电动机 M 1、砂轮电动机 M 2、冷却泵电动机 M3和砂轮起落电动机 M 4,它们的短路保护均由熔断器FU1实现。
热继电器 FR1、FR2、FR3分别为 M 1、M 2、M 3的过载保护。
液压泵电动机 M1只要要单向旋转,由接触器 KM1控制。
由于冷却泵电动机 M3必定在砂轮电动机 M2运转后才能起动,因此由同一个接触器 KM2控制。
砂轮起落电动机 M4由接触器 KM3和 KM4控制,要求能正反转,由于 M4是点动短时运转,故未设过载保护。
3. 控制电路工作原理〔1〕液压泵电动机 M1的控制假设电源电压正常,由变压器 TC副绕组供应 135V交流电压,经桥式整流器 VC整流后获取 110V直流电压,使欠电压继电器 KV线圈得电吸合,其常开触头 KV闭合,为电动机的起动作好准备。
假设电源电压偏低, KV 不能够可靠工作,那么四台电动机均不能够起动。
平面磨床磨头升降结构图-M7120平面磨床电气原理图和接线图在机床加工中,平面磨床,接下来中意磨床为您解说平面磨床磨头升降结构图:平面磨床电气原理图和接线图的问题。
1、平面磨床电气原理图及接线图型平面磨床的工作原理是在电源与磨床正常连接且线路的情况下,欠压继电器动作。
,其常开触点KA闭合,准备KM1和KM2接触器吸合。
当按下SB1按钮时,接触器KM1的线圈得电闭合,液压泵马达开始运转。
由于接触器KM1的吸合,自锁点自锁使M1电机在按钮松开后继续运行。
如果在工作完成后按下停止按钮,KM1将断电释放,M1将停止运行。
激光打印机的发展源于2023年施乐公司生产的一台静电复印机。
从那时起,科学家们开始专注于激光技术和激光调制技术在打印机中的应用。
说到激光打印机的诞生,我们不禁要说起被誉为“激光打印机之父”的加里·斯塔克威。
Gary Starkweizer 被调到帕洛阿尔托研究中心(PaloAltoResearchCenter 简称PARC,即帕克)工作,并于今年11月研制出一台激光电脑打印机。
2023年,施乐激光打印机上市,标志着印刷行业划时代的开始。
平面磨床结构简图。
一开始,激光打印机体积大,噪音大,预热时间长,打印质量不理想。
能够支付相当昂贵费用的公司也很少,但技术创新的速度非常快。
随着半导体激光器的发展,微机控制和激光打印机生产技术的日益成熟,成本的不断降低,1990年代产销量突飞猛进,激光打印机也开始普及。
2、平面磨床的结构是怎样的?1)高刚性高稳定性床身,床身采用整体花岗岩结构,由于花岗岩具有阻尼高、振动小、热稳定性好等特点,可以保证床身的高刚性和高稳定性磨床。
2)工作台,工作台采用整体花岗岩结构,在传统闭式静压导轨的基础上,开发了高刚性、高精度的大平面闭式静压导轨,实现大行程、平稳运行的工作台。
,可靠的往复运动。
工作台由西门子直线电机驱动。
同时,为了防止直线电机的运动影响工作台,专门为直线电机设计了独立的静压导轨。
第四章 M7120平面磨床电路智能实训单元一、电路分析M7120型平面磨床的电气控制线路可分为主电路、控制电路、电磁工作台控制电路及照明与指示灯电路四部分。
1.主电路分析主电路中共有四台电动机,其中M1是液压泵电动机实现工作台的往复运动;M2是砂轮电动机,带动砂轮转动来完成磨削加工工件;M3是冷却泵电动机;它们只要求单向旋转,分别用接触器KM1、KM2、控制。
冷却泵电机M3只是在砂轮电机M2运转后才能运转。
M4是砂轮升降电动机,用于磨削过程中调整砂轮和工件之间的位置。
M1、M2、M3是长期工作的,所以都装有过载保护。
M4是短期工作的,不设过载保护。
四台电动机共用一组熔断器FU1作短路保护。
2.控制电路分析(1)液压泵电动机M1的控制合上总开关QS1后,整流变压器一个副边输出130伏交流电压,经桥式整流器VC整流后得到直流电压,使电压继电器KA获电动作,其常开触头(7区)闭合,为启动电机做好准备。
如果KA不能可靠动作,各电机均无法运行。
因为平面磨床的工件靠直流电磁吸盘的吸力将工件吸牢在工作台上,只有具备可靠的直流电压后,才允许启动砂轮和液压系统,以保证安全。
当KA吸合后,按下启动按钮SB3,接触器KM1通电吸合并自锁,工作台电机M1启动运转,HL2灯亮。
若按下停止按钮SB2,接触器KM1线圈断电释放,电动机M1断电停转。
(2)砂轮电动机M2及冷却泵电机M3的控制按下启动按钮SB5,接触器KM2线圈获电动作,砂轮电动机M2启动运转。
由于冷却泵电动机M3与M2联动控制,所以M3与M2同时启动运转。
按下停止按钮SB4时,接触器KM3线圈断电释放,M2与M3同时断电停转。
两台电动机的热断电器FR2和FR3的常闭触头都串联在KM2中,只要有一台电动机过载,就使KM2失电。
因冷却液循环使用,经常混有污垢杂质,很容易引起电动机M3过载,故用热继电器FR3进行过载保护。
(3)砂轮升降电动机M4的控制砂轮升降电动机只有在调整工件和砂轮之间位置时使用,所以用点动控制。