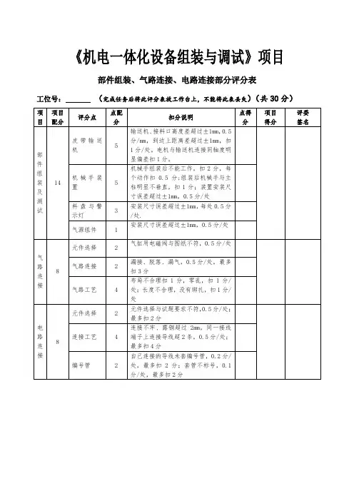
2013年北京市机电一体化设备组装与调试项目任务三
- 格式:pdf
- 大小:828.70 KB
- 文档页数:10
“2013年全国职业院校技能大赛”中职组机电一体化设备组装与调试赛项规程一、赛项名称机电一体化设备组装与调试二、竞赛目的通过机电一体化设备组装与调试赛项,促进与机电技术相关专业的行动导向的课程体系建设和改革创新的步伐,探索与机电技术相关的《PLC技术基础》、《自动控制原理》、《传感器及其应用》等课程理实一体化的教学方法和培养企业需要的高素质技能型人才的新途径、新方法。
展示职业教育教学改革的成果,推动职业教育专业建设和教学改革。
三、竞赛方式与内容(一)竞赛方式机电一体化设备组装与调试技能赛项为团体赛,以院校为单位组队参赛,不得跨校组队。
每支参赛队由2名选手和不超过1名指导教师组成,按要求共同完成书面解答与实际操作一体的工作任务。
每省(自治区、直辖市、计划单列市和新疆生产建设兵团)限报2队。
(二)组队要求1. 参赛选手必须是年龄不超过21周岁的中等职业学校2013年在籍学生。
参赛选手需有电工上岗证或维修电工(或安装电工)技术等级证书。
没有取得上述证书的,须由劳动或安全监管部门(或核发该种证书的部门)出具相关证明,证明选手已经参加并通过了电工上岗证或技术等级证书的考试。
2. 为让更多选手参加全国职业院校技能大赛,参加过2012年全国职业院校技能大赛中职组机电一体化设备组装与调试并获得一等奖的选手,不再参加2013年的全国职业院校技能大赛中职组机电一体化设备组装与调试技能比赛。
3. 为让更多的学校参与全国职业院校技能大赛,每省(自治区、直辖市、计划单列市和新疆生产建设兵团)的2支参赛队不得来自同一院校。
各省、自治区、直辖市、计划单列市和新疆建设兵团的教育行政部门负责本地区参赛学生的资格审查和组队工作,并保存相关证明材料的复印件,以备查阅。
(三)竞赛内容比赛时间为四小时。
由参赛队按工作任务书的要求,完成以下工作任务:(1)按组装图及要求组装设备部件和机电一体化设备。
(2)按工作任务书分配的PLC输入输出端子和机电一体化设备的工作要求画出电气控制原理图并连接电路。
机电一体化设备安装与调试国赛任务书任务书————————————————————————————————作者:————————————————————————————————日期:2012年全国职业院校技能大赛中职组电工电子赛项机电一体化设备组装与调试工作任务书中职组电工电子技术技能比赛专家组中国·天津2012·6一、工作任务与要求一、按《取料平台组装图》(附页1图号01)组装自动领料装置的取料平台。
二、按《自动领料装置部件组装图》(附页2图号02)组装自动领料装置,并满足图纸提出的技术要求。
三、按《自动领料装置气动系统图》(附页3图号03)连接自动领料装置的气路,并满足图纸提出的技术要求。
四、根据如表1所示的PLC输入输出端子(I/O)分配,在赛场提供的图纸(附页4图号04)上画出自动领料装置电气原理图并连接电路。
你画的电气原理图和连接的电路应符合下列要求:表1 PLC输入输出端子(I/O)分配表输入端子功能说明输出端子功能说明三菱PLC 西门子PLC松下PLC三菱PLC西门子PLC松下PLCX0 I0.0 X0 装置模式选择SA1 Y0 Q0.0 YA 蜂鸣器X1 I0.1 X1 组装调试启动按钮SB5 Y1 Q0.1 YB 旋转气缸左转X2 I0.2 X2 调试内容选择按钮SB1 Y2 Q0.2 YC 旋转气缸右转X3 I0.3 X3 调试内容选择按钮SB2 Y3 Q0.3 YD 悬臂伸出X4 I0.4 X4 调试内容选择按钮SB3 Y4 Q0.4 Y0 悬臂缩回X5 I0.5 X5 取料平台A电感传感器Y5 Q0.5 Y1 手臂上升X6 I0.6 X6 取料平台A光电传感器Y6 Q0.6 Y2 手臂下降X7 I0.7 X7 进料口光电传感器Y7 Q0.7 Y3 手爪合拢X10 I1.0 X8 领料口一光纤传感器Y10 Q1.0 Y4 手爪张开X11 I1.1 X9 领料口一气缸伸出到位检测Y11 Q1.1 Y5 领料口一气缸活塞杆伸出X12 I1.2 XA 领料口一气缸缩回到位检测Y12 Q1.2 Y6 领料口二气缸活塞杆伸出X13 I1.3 XB 领料口二光纤传感器Y13 Q1.3 Y7X14 I1.4 XC 领料口二气缸伸出到位检测Y14 Q1.4 Y8X15 I1.5 XD 领料口二气缸缩回到位检测Y15 Q1.5 Y9X16 I1.6 XE 旋转气缸左转到位检测Y16 Q1.6 Y10X17 I1.7 XF 旋转气缸右转到位检测Y17 Q1.7 Y11X20 I2.0 X10 悬臂伸出到位检测Y20 Q2.0 Y12 红色警示灯X21 I2.1 X11 悬臂缩回到位检测Y21 Q2.1 Y13 绿色警示灯X22 I2.2 X12 手臂上升到位检测Y22 Q2.2 Y14 三相电动机正转X23 I2.3 X13 手臂下降到位检测Y23 Q2.3 Y15 三相电动机低速X24 I2.4 X14 手爪合拢到位检测Y24 Q2.4 Y16 三相电动机中速X25 I2.5 X15 Y25 Q2.5 Y17 三相电动机高速X26 I2.6 X16 Y26 Q2.6 Y18X27 I2.7 X17 Y27 Q2.7 Y191. 电气原理图按2011年5月29日武汉说明会要求绘制,图形符号规范,布局合理,书写工整,图面整洁。
电工电子类机电一体化设备组装与调试项目一、判断题1. ( )PLC 可编程序控制器输入部分是收集被控制设备的信息或操作指令。
(正确)2. ( )PLC 机中的用户程序执行的结果能直接驱动输出设备。
(错误)3. ( )PLC 的输入输出端口米用光电隔离。
(正确)4. ()可编程控制器的输入端可与机械系统上的触电开关、接近开关、传感器等直接连接。
(正确)5.( )可编程控制器是一种数字运算操作的电子系统,专为在工业环境下应用而设计,它米用可编程序的存储器。
(正确)6. ()PLC 采用了典型的计算机结构,主要是由 CPU RAM ROM 和专门设计的输入输出接口电路等组成。
(正确)7. ( )PLC 的指令语句表达式是由操作码、表示符和参数组成。
(正确)8. ( )可编程控制器冋计算机一样,只要顺序地执行程序就可以达到要求。
(正确)9. () PLC 产品技术指标中的存储容量是指其内部用户存储器的存储容量。
(正确)10. ( )FX2N-48MR 型PLC 的输出形式是继电器触电输出。
(正确)11. ()能直接编程的梯形图必须符合顺序执行,即从上到下。
从左到右地执行。
(正确)12.( )在PLC 梯形图中如单个接点与一个串联支路并联,应将串联支路排列在图形的上面,而把单个接点并联在其下面。
(正确)13. ( )在PLC 梯形图中如单个接点与一个并联支路串联,应将并联支路紧靠右侧母线排列,而把单个接点串联在其左边。
(错误)14. ()PLC 梯形图中,串联块的并联连接指的是梯形图中由若干接点并联所构成的电路。
(错误)15. ( )串联一个常开触点时采用 AND 旨令;串联一个常闭触点时采用LD 指令。
(错误)16. ( )步进指令中的每个状态器需具备二个在梯形图中,输入触点和输出线圈为现场的开关状态, 可直接驱动现场的执行兀件。
(错误)17.( )PLC 步进指令中的每个状态器需具备一个功能:驱动有关负载、指疋转移目标、指疋转移条件。
《机电一体化设备组装与调试》课程标准学时数:24学时课程性质:专业基础课适用专业:机电技术应用一、课程名称机电一体化设备组装与调试二、适用专业机电技术应用专业三、课程性质:本课程是中等职业学校机电技术应用专业的一门必修课程,属专业核心课课。
其主要任务是使学生掌握光机电一体化设备的组装和调试技术,培养学生综合运用知识的能力,为学生就业打好基础;对学生进行职业意识培养和职业道德教育,提高学生的综合素质与职业能力,增强学生适应职业变化的能力,为学生职业生涯的发展奠定基础。
四、课程目标总体目标:本课程以培养学生解决实际问题的能力,强调实践。
要求学生了解和掌握光机电的相关知识;熟悉常用电气设备和元器件、组装和调试及完成实际生产中的典型任务;会使用各种安装工具;能对设备进行组装,并能对设备进行整体调试、对简单故障进行排除和维修,完成典型任务;初步具备查阅技术资料的能力,能合理选用元器件。
具体目标:(-)知识教学目标:见教学安排(二)能力培养目标:培养学生综合运用所学知识完成典型的生产任务。
(三)思想教育目标:培养对学生解决问题的能力,养成自主学习与探究学习的良好习惯;强化安全生产、节能环保和产品质量等职业意识,养成良好的工作方法、工作作风和职业道德。
五、课程标准六、f实施建(一)教材编写(二)教学建议由于本课程的主要教学内容涉及皮带输送机的安装与调整、皮带输送机的调速、工件的识别、工件的分拣、气动机械手的组装与调试、搬运机械手的动作程序、安装和调整圆盘、供料与搬运、工件分拣设备、触摸屏的应用、组装和调试机电一体化设备、机电一体化设备的自检和报警功能、机电一体化设备多种工作方式等实用性和实操性很强的教学环节,必须通过实验、实训才能到达组装与调试技能的培养目标。
建议:(1)在教学过程中应加强学生操作技能的培养,采用项目教学,注重以任务引领,提高学生学习兴趣。
(2)教学可在PLC实训室进行,采用理实一体化形式、淡化理论、将理论融入学生的实操当中,并借助于多媒体课件等手段有效组织教学。
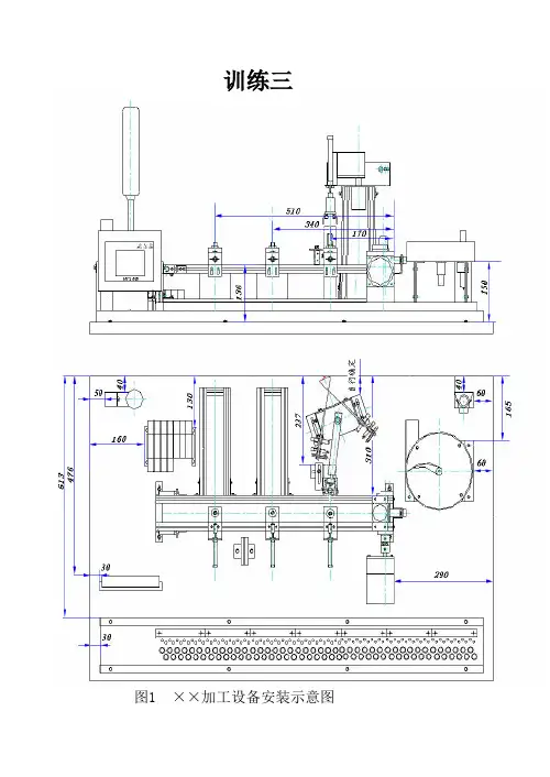
训练三图1 ××加工设备安装示意图*、请参赛选手仔细阅读试卷的具体考核要求,并按要求完成操作或进行笔答;*、操作技能竞赛时要遵守考场纪律,服从赛场管理人员指挥,以保证竞赛安全顺利进行。
一、××搬运装配加工设备情况简介××搬运装配加工设备(以下简称加工设备)由送料装置,气动机械手,皮带输送机等部件组成,工件有三种,工件甲为金属件、工件乙为白色塑料件,工件丙为黑色塑料件,各部件的安装位置根据工艺要求确定。
1、以设备台左右两端为尺寸的基准时,端面包括封口的硬塑盖。
各处安装尺寸的误差不大于1mm。
2、料台高度与皮带相同,气动机械手需要根据实际进行调整,以机械手能从料台上抓取工件并顺利搬运到转盘中为准。
3、传感器的安装高度、检测灵敏度,均需根据生产要求进行调整。
图2机械手部件示意图4.加工设备中各元、器件的作用如表1所示。
二、加工设备的动作和控制要求1. 系统的自检第一次上电,将SA1“自检/运行”转换开关旋转在“自检”位,设备处于“自检”工作状态,系统工作前,必须确保各器件在原点位置,当不符合原点位置要求时,按下SB4“复位、自检”按钮,HL1、HL2、HL3、HL4先长亮4S后转为以2Hz频率闪烁,再按下SB4按钮,起动相应电磁阀使不在原点的气缸复位;如果系统都在原点,按下SB4“复位、自检”按钮,HL1、HL2、 HL3、HL4先长亮4S后转为以1Hz频率闪烁3S后,系统处于开始等待。
系统进入正常运行后,禁止SB4“复位、自检”操作。
2. 自动运行系统自检完成后,将SA1“自检/运行”转换开关置于“运行”位,设备处于“运行”工作状态;将SA2“自动/单步”转换开关置于“自动”位,设备处于“功能1”工作状态。
按下SB5“启动”按钮,HL1亮,系统起动。
当皮带输送机放料位置的漫射型光电传感器检测到工件后,指示灯HL1熄灭,拖动皮带输送机的交流电动机以25Hz的频率启动前进传送工件,变频器的爬坡时间为1S,制动时间为0.5S。
《机电一体化设备安装与调试》课程标准课程编码:17010008课程类别:专业方向课适用专业:机电技术应用专业参考学时:72学时一、课程定位1、课程在专业培养中的定位及作用本课程内容以机械技术为主体,以机电为两翼,机电气光一体化并举,以C5W技术特别是工控技术作为技术支撑,在机电一体化设备的设计、制造、安装、调试、运行维护的全过程中起着不可替代的作用。
课程以典型机电一体化设备和各种应用软件为教学载体,将前期专业课程的知识、技能和企业规范、安全操作、团队协作等内容梳理整合加以综合运用,旨在培养学生成为工作在机电一体化设备设计制造、装调、维修与保养等相关工作岗位,具有较强的分析能力和问题解决能力的高技术技能型人才。
2、本课程与其它课程的关系通过学习本课程,使学生能够掌握机电一体化设备安装与调试,是前导课程理论的实际应用,为后续专业课程提供必要的基础。
表1前导、后续课程一览表前导课程本课程后续课程PLC技术应用变频技术机电一体化设备安装与调试工业机器人技术基础二、课程设计理念及思路课程设计理念:本课程以典型机电一体化设备和各种应用软件为教学载体,将前期专业课程的知识、技能和企业规范、安全操作、团队协作等内容梳理整合加以综合运用,旨在培养学生成为工作在机电一体化设备设计制造、装调、维修与保养等相关工作岗位,具有较强的分析能力和问题解决能力的高技术技能型人才。
在教学计划制定和教学过程中,根据岗位职责及职能力要求,基于典型项目案例教学这一主线贯穿于整个教学内容和创新实践过程中。
一直以学生的专业能力、社会能力和方法能力的综合职业能力作为学生的培养重点。
课程设计整体思路:本课程通过以工作任务导向及典型机电一体化系统的分析与装调的实际工作项目活动,使学生了解本专业的学习领域和工作领域等专业知识与技能,建立机电一体化技术的思维基础,学会分析和处理工程问题的基本理论和基本方法,提高实际动手能力和针对岗位的职业技能和职业素养,从而为将来胜任机电一体化技术岗位群职业需要、具备优良的职业素养和突出的岗位创新能力奠定良好的基础。
机电一体化设备的组装与调试课程标准一、教学对象1、本课程适用的对象:机电一体化专业2、要求的预备知识:《电子技术》《电工技术基础》二、本课程教学重点、难点以及教学应注意的问题本课程是《机电一体化设备的组装与调试》专业的一门重要专业课程。
其目的是从“系统”的观点出发,利用机械技术、微机控制技术和电子信息技术,构造最佳的系统。
同时,能够使学生了解与熟悉一些典型的机电一体化系统,为培养具有调试、使用和维修等技能的电气自动化人才而打下坚实的基础,特别针对当前我国工业领域的转型与升级,体现了培养应用型人才的要求。
三、教学进度安排方案1、教学进度安排汇总表2、各项目教学目的要求及内容要点项目一皮带输送机的安装与调整一、教学目的与要求:1、了解皮带输送机的基本结构2、学会皮带输送机的安装二、本章重点和难点:1、三相交流异步电动机的安装本章讲授的内容:1.1任务一拆装皮带输送机机架1.2任务二安装皮带输送机项目二皮带输送机的调速一、教学目的与要求:1、学会如何用变频器来实现皮带输送机按不同的速度运行2、学会如何用PLC来实现皮带输送机按不同的速度运行二、本章重点和难点:1、变频器的接线和使用2、PLC电气控制的原理三、本章讲授的内容:任务一调试手动调速的皮带输送机任务二调试自动调速的皮带输送机项目三工件的识别一、教学目的与要求:1、了解传感器的分类以及工作原理2、学会传感器的使用3、学会如何实现根据工件的不同完成工件的识别二、本章重点和难点:1、根据电气控制原理图安装电路2、根据工作过程要求编写PLC自动控制程序三、本章讲授的内容:任务一调试工件识别装置任务二调试带指示的工件识别装置项目四工件的分拣一、教学目的与要求:1、了解气动元件的基本知识2、学会绘制电气控制原理图3、学会工件分拣装置的安装、编程和调试二、本章重点和难点:1、根据工作过程要求编写自动控制程序二、本章讲授的内容:任务一安装与调试工件分拣装置任务二调试工件分拣与包装装置项目五气动机械手的组装与调试一、教学目的与要求:1、学会气缸活塞的检测2、学会如何拆卸和组装机械手二、本章重点和难点:1、如何连接机械手的气路2、如何连接机械手的控制电路三、本章讲授的内容:任务一拆装气动机械手任务二调试气动机械手项目六搬运机械手的动作程序一、教学目的与要求:1、学会机械手搬运工件的动作程序的编写与调试2、撑握如何搞到机械手工作效率的方法二、本章重点和难点:1、机械手搬运动作的程序编写三、本章讲授的内容:任务一编写并调试机械手搬运工件的控制程序任务二编写并调试机械手高效搬运工件的控制程序任务三编写并调试机械手多控的控制程序项目七安装和调整圆盘一、教学目的与要求:1、了解微型直流电动机的基础知识2、了解圆盘送料的工作原理3、学会圆盘的安装与调试二、本章重点和难点:1、圆盘送料的工作原理三、本章讲授的内容:任务一安装和调整圆盘项目八供料与搬运一、教学目的与要求:1、学会生产线进入环节的装置2、学会机电一体化设备的安装和调试二、本章重点和难点:1、编写简洁明了的程序控制设备进行正常供料与搬运三、本章讲授的内容:任务一安装与调试某生产线的进入环节任务二编写和调试送料与搬运装置的控制程序项目九工件分拣设备一、教学目的与要求:1、了解工件分拣设备的工作原理2、学会编写分拣、装配、生产程序二、本章重点和难点:1、根据工作流程编写相关的编序三、本章讲授的内容:任务一安装与调试分拣设备任务二调试XX生产设备任务三调试XX装配设备项目十触摸屏的应用一、教学目的与要求:1、学会触摸屏组态软件的使用2、学会使用触摸屏控制或监控简单的机电一体化设备二、本章重点和难点:1、使用软件创建工程仿真画面2、使用触摸屏监控设备运作三、本章讲授的内容:任务一用触摸屏控制皮带输送机运行任务二用触摸屏监控工件数量项目十一组装和调试机电一体化设备一、教学目的与要求:1、学会半自动与自动工作控制2、学会步进控制程序编程二、本章重点和难点:1、如何确定系统功能的实现方法2、条件启/停功能程序的编写三、本章讲授的内容:任务一组装与调试生产线工件分送装置任务二调试条件启/停的工件分送装置项目十二机电一体化设备的自检和报警功能一、教学目的与要求:1、了解PLC控制系统的自检功能2、学会零件加工线电路的设计和连接3、学会编写自检程序二、本章重点和难点:1、报警功能控制程序的编写三、本章讲授的内容:任务一组装与调试具有自检功能的零件加工线任务二编写具有报警功能的零件加工线控制程序项目十三机电一体化设备多种工作方式一、教学目的与要求:1、学会有多种工作方式的机电一体化设备的组装与调试2、培养根据原理图安装设备以及编写程序的能力二、本章重点和难点:1、根据原理图安装设备以及编写程序三、本章讲授的内容:任务一调试有两种分拣方式的分拣设备任务二调试多种运行方式的生产设备。
综合实践报告机电一体化设备的安装、调试全文共3篇示例,供读者参考综合实践报告机电一体化设备的安装、调试1一、实习目的终于等到了实习的时候了,很早以前就从师兄那里打听到了有实习,那时候可以说是急切地期盼着这一天的到来,因为大家再也无法满足于课堂教学,尽管从同学朋友那里了解到实习并非像想象中的那样是一件快乐的事情。
蓦然回首,转眼为期一周的铣工实习结束了。
在实习期间虽然很累、很苦,但我却感到很快乐!因为我们在学到了作为一名铣工所必备的知识的同时还锻炼了自己的动手能力。
而且也让我更深刻地体会到伟大的诗人李白那一名言:只要功夫深,铁杵磨成针的真正内涵!我们实习的第一天看了关于铣工实习的有关的知识与我铣工实习过程中的注意事项的碟片。
看到那飞转的机器、飞溅的铁花,令我既担心又激动。
担心的是,如果那飞转的机器隆隆声让人心惊肉跳和那鲜红的铁花四处飞溅的发出耀眼的的光芒令人眼花缭乱;激动的是,等待了将近一年的铣工实习就要开始了。
这是作为学生的我们第一次进入工厂当令人尊敬的工人,也是第一次到每一个工科学子一试身手的实习基地。
其实,对我们这些工科的学生来说这是一次理论与实习相结合的绝好机会,又将全面地检验我们知识水平。
铣工实习是机械类各专业学生必修的实习性很强的技术基础课。
学生在铣工实习过程中通过独立地实习操作,将有关机械制造的基本工艺知识、基本工艺方法和基本工艺实习等有机结合起来的,进行工程实习综合能力的训练及进行思想品德和素质的培养与锻练。
铣工实习是培养学生实习能力的有效途径。
又是我们大学生、工科类的大学生,院的学生的必修课,非常重要的也特别有铣工实习又是我们的一次实际掌握知识的机会,离开了课堂严谨的环境,我们会感受到车间的'气氛。
同时也更加感受到了当一名工人的心情,使我们更加清醒地认识到肩负的责任。
通过老师的讲解。
我终于明白了什么是铣工。
同时也懂得了为什么有人说“当铣工是最累的!”铣工是以手工操作为主,使用各种工具来完成零件的加工、装配和修理等工作。
一、实训任务实训名称:机电一体化设备组装与调试实训目的:1. 熟悉机电一体化设备的组成及工作原理;2. 掌握机电一体化设备的组装方法及调试技巧;3. 培养动手实践能力和团队合作精神;4. 提高对机电一体化设备的维护保养能力。
二、实训时间2021年X月X日至2021年X月X日三、实训地点XX学院机电实训室四、实训内容1. 机电一体化设备的基本组成及工作原理(1)讲解机电一体化设备的定义、组成及分类;(2)介绍常用机电一体化设备的结构、性能及工作原理;(3)分析典型机电一体化设备的结构特点及工作流程。
2. 机电一体化设备的组装方法(1)讲解组装工具及材料的使用方法;(2)演示组装步骤及注意事项;(3)分组进行组装实践,完成指定机电一体化设备的组装。
3. 机电一体化设备的调试技巧(1)讲解调试方法及步骤;(2)演示调试过程及注意事项;(3)分组进行调试实践,完成指定机电一体化设备的调试。
4. 机电一体化设备的维护保养(1)讲解设备维护保养的重要性;(2)介绍设备维护保养的基本方法;(3)分组进行设备维护保养实践,完成指定机电一体化设备的维护保养。
五、实训过程1. 讲解与演示实训教师对机电一体化设备的基本组成、工作原理、组装方法、调试技巧及维护保养进行讲解,并现场演示操作过程。
2. 组装实践学生分组进行机电一体化设备的组装,教师巡回指导,解答学生在组装过程中遇到的问题。
3. 调试实践学生分组进行机电一体化设备的调试,教师巡回指导,解答学生在调试过程中遇到的问题。
4. 维护保养实践学生分组进行机电一体化设备的维护保养,教师巡回指导,解答学生在维护保养过程中遇到的问题。
六、实训成果1. 学生掌握了机电一体化设备的基本组成、工作原理、组装方法、调试技巧及维护保养;2. 学生提高了动手实践能力和团队合作精神;3. 学生熟悉了机电一体化设备的操作流程,为今后的工作奠定了基础。
七、实训总结本次机电实训,同学们积极参与,认真实践,取得了良好的效果。
职业院校技能大赛“机电一体化技术”(高职组)任务书A一、项目名称:机电一体化技术二、任务情境:组装、编程、调试一条小型自动化生产线。
现有一条小型自动化生产线,需要按客户要求进行组装、编程、调试。
其中包括设计、安装、调试机械部件和电气系统,并能完成设备控制系统和人机界面编程,对自动化生产线进行维护、维修、系统集成与设计仿真等工作。
三、项目任务及时间安排:机电一体化技术试题主要考核选手组装、编程、调试一条小型自动化生产线的能力,该生产线由颗粒上料单元、加盖拧盖单元、检测分拣单元、机器人搬运包装单元、智能仓储单元5个单元组成。
大赛为期2天,完成7个工作任务,并实现生产过程自动化,累计完成时间为8小时,由2位选手以团队方式进行完成。
机电一体化技术设备说明一、竞赛设备说明竞赛平台主要由颗粒上料单元、加盖拧盖单元、检测分拣单元、机器人搬运包装单元、智能仓储单元等组成,实现空瓶上料、颗粒物料上料、物料分拣、颗粒填装、加盖、拧盖、物料检测、瓶盖检测、成品分拣、机器人抓取入盒、盒盖包装、贴标、入库等智能生产全过程。
特别提示:本赛题涉及模块功能、布局描述均为参考,不具有指向性,以大赛执委会最终确定实际竞赛设备功能、布局为准。
二、工作过程概述本系统工作过程概述如下:(一)颗粒上料单元输送机构将空瓶输送到上料输送带上,空瓶到位检测传感器检测到空瓶,输送机构停止。
上料输送带将空瓶输送到主输送带,当空瓶到达填装位后,填装定位机构将空瓶固定,主输送带停止;同时根据任务要求供料机构推出对应颜色物料;填装机构将到位的颗粒物料吸取放到空物料瓶内;物料瓶内填装物料到达设定的颗粒数量后,填装定位气缸松开,主输送带启动,将物料瓶输送到下一个工位。
(二)物料瓶被输送到加盖拧盖单元的加盖机构下,加盖定位机构将物料瓶固定,加盖机构启动加盖流程,将盖子(白色或蓝色)加到物料瓶上;加上盖子的物料瓶继续被送往拧盖机构,到拧盖机构下方,拧盖定位机构将物料瓶固定,拧盖机构启动,将瓶盖拧紧。
2011年**中等职业学校学生机电一体化设备组装与调试技能选拔赛 生产设备组装与调试任务书2011年1月请你在4h内,按要求完成下列工作任务一、按分拣设备部件组装图(见附页,图号为001)及其要求和说明,在铝合金工作台上组装××生产线分拣设备。
二、按分拣设备气动系统图(见附页,图号为002)及其要求和说明,连接××生产线分拣设备的气路。
三、请你仔细阅读××生产线分拣设备的有关说明,然后根据你对设备及其工作过程的理解,在赛场提供的图纸(见附页,图号为003)上,画出××生产线分拣设备的电气原理图,并在标题栏的“设计”和“制图”行填写自己的工位号。
四、根据你画出的电气原理图,连接××生产线分拣设备的电路。
电路的导线必须放入线槽,凡是你连接的导线,必须套上写有编号的编号管。
五、请你正确理解设备的正常工作过程和故障状态的处理方式,编写××生产线分拣设备的PLC控制程序和设置变频器的参数及触摸屏的界面。
六、请你调整传感器和位置或灵敏度,调整机械零件的位置,完成××生产线分拣设备的整体调试,使该设备能正常工作,完成物件的加工、分拣和组合。
××生产线分拣设备××生产线分拣设备各部分的名称如图2所示;气动机械手各部分的名称如图3所示。
××生产线生产金属圆柱形和塑料圆柱形两种元件,该生产线的分拣设备的任务是将金属元件、白色塑料元件和黑色塑料元件进行加工和分拣、组合。
触摸屏的画面设置:包括“机电一体化元件加工、分拣设备”和“工位号”(填写入自己的工位号)文字框、日期/时间显示(触摸屏系统时间)、工作方式二的实时动态“套数显示”、设置工作方式“SA1”(转换开关SA1转换旋钮在朝上位置时,为工作方式一;转换开关SA1转换旋钮在朝右位置时,为工作方式二)、设置“启动按钮”及“停止按钮”、设置套数设置按钮“+1”及“-1”、“数据清除按钮”,具体位置和布局如下图1所示。
3.5 任务三物料的传送与分拣3.5.1任务书一、学习目标:1、能读懂项目的控制要求2、通过安装YL-235A光机电一体化设备,进一步掌握机电一体化设备的安装方法和技巧,提高调整各机械部件的位置,使之成为一个相互配合的整体的能力。
3、通过编写不同控制要求的PLC程序,进一步掌握PLC的编程方法,学会编写实现较复杂一些的控制过程的PLC控制程序。
4、通过设计和绘制拟定控制要求的机电一体化设备的电气控制原理图,进一步熟练机电一体化设备的电气控制原理图的设计方法,学会绘制能实现较复杂的工作过程的电气控制原理图。
5、通过按照给定的气动系统图安装气路,进一步掌握气路连接的方法和技巧,提高安装的速度和质量。
6、通过完成拟定控制要求的机电一体化设备的安装、编程、调试和检查的完整过程,提高综合技能水平。
二、学习内容:1、根据三种物料分拣的控制要求绘制电气控制原理图。
2、根据电气控制原理图连接电路。
3、根据气动系统图连接气路。
4、根据三种物料分拣的控制要求设置变频器参数。
5、根据三种物料分拣的控制要求编写PLC程序。
3.5.2 任务描述利用YL235A光机电一体化实训装置实现三种物料的传送分拣。
1.工作过程:设备回初始位置后,送料盘内的三种物料由送料机构送至出料口。
物料由机械手从出料口搬运至皮带输送机的入料口。
根据其材质的不同,皮带输送机将物料传送到相应的出料滑槽处,金属物料传送到第一个滑槽,白色塑料件传送到第二个滑槽,黑色塑料件传送到第三个滑槽。
当物料到达相应滑槽位置时,相应位置的推手推出,将物料推入相应滑槽。
2.技术要求:(1)对于系统的启停、状态控制:启动:按控制要求运行;停止:停止物料搬运分拣不再进行循环,但是如果在一个搬运分拣过程还没有结束时给出停止信号,系统要将本次搬运分拣过程做完才能停止;启停说明:“启动/停止”为一键起停,即第1次按时为启动,第2次按时为停止;状态选择:状态一开关SA1置于“左”位置时为循环运行(各工步连续运行),状态二开关SA1置于“右”位置时为单次循环(系统单周期运行);(2)初始位置:机械手臂的复位和默认位置为左位,机械手复位和默认状态为松开,其它各气缸的初始位置应符合工业现场和常规要求。
谈《机电一体化设备组装与调试》的教改实践摘要:基于工作过程的课程开发是当前我国职业教育进行课程改革的方向,本文以中央代表团赠送我校的亚龙yl-235a光机电一体化实训考核装置为载体,并结合坐着的教学实践。
首先详细介绍了基于工作过程的课程开发思路,再提出了针对该课程的创新教学模式、结合多种方法进行对比,该创新方法能够达到很好的教学效果。
关键词:学习领域机电一体化 plc 项目教学法中图分类号:g718 文献标识码:c doi:10.3969/j.issn.1672-8181.2013.12.079《机电一体化设备组装与调试》课程是中职学校机电类和电子类等专业的核心课程,它主要在于培养学生编写程序的能力,调试、操作和维护设备等技能,以工厂自动化生产线需求作为一个逻辑起点,坚持“产品的生产过程”的导向,将“典型工作任务分析”作为学习的依据,将“真实的产品生产任务”作为学习载体。
为了创建好教学环境,主要通过各种项目案例,借助不断深化的校企合作平台,逐步提升学生的职业、就业竞争力,力求形成了“学生为中心、教师引导、理论——实践——应用”三者融为一体化的工学结合模式。
1 重构课程体系为了优化教学,将遵照“深入相关企业调研→确定企业需求的职业岗位→设定典型的工作任务→拟定相关的行动领域→确立适合的学习领域→科学制定本课程的教学、评价标准→创设有效的学习情境”等流程,力求能够重构课程体系。
1.1 调研与分析工作岗位通过深入企业进行调研,确定从事电力相关行业企业的中职毕业生,对事故进行分析与处理,以及从事电气安装、检修工作时,如何对二次系统进行安检。
1.2 设立典型工作任务为了确定典型工作任务,组织教研组教师共同分析所有的工作任务。
1.3 拟定教学目标我们根据国家职业标准,结合我校专业人才培养目标,强调将“plc控制知识、电气设备的运行、维护”等典型工作任务有机结合,将课程培养目标设立为:第一,熟悉机电一体化系统的相关内容,主要包括其构成、功能、保护方式;第二,掌握机电一体化系统的技术要求和技术标准,主要包括编程调试、操作、运行、检修、维护等。