M7120型平面磨床的电气控制电路及工作原理
- 格式:doc
- 大小:216.00 KB
- 文档页数:9
M7120平面磨床控制电路分析当电源正常时,合上电源开关 SC1,欠电压继电器 KV线圈得电,KV 的动合触点闭合,可进行操作。
(1)液压泵电动机M1控制 (其控制电路位于7区)起动过程为:按下SB3 ,SB3动作,KM1线圈(得电吸合),KM1主触头闭合,KM1常开触头闭合自锁,M1 起动运转停止过程为:按下SB2,SB2动作,KM1线圈( 失电释放 ),KM1主触头断开,KM1常开触头复位断开, M1 停转。
(2)砂轮电动机M2的控制(其控制电路位于 9 区)起动过程为:按下SB5 ,SB5动作,KM2线圈(得电吸合),KM2主触头闭合,KM2常开触头闭合,M2 起动;停止过程为:按下SB4,SB4动作,KM2线圈( 失电释放 ),KM2主触头断开,KM2常开触头复位断开M2 停转。
(3)冷却泵电动机M3的控制冷却泵电动机由于通过插座 XS1 与接触器 KM2 主触点相联,因此 M3 是与砂轮电动机 M2 联动控制,按下SB5时M3与M2同时起动,按下SB4时同时停止。
FR2 与FR3的常闭触点串联在 KM2线圈回路中,M2、M3中任一台过载时,相应的热继电器动作,都将使 KM2 线圈失电,M2、M3 同时停止。
(4)砂轮升降电动机M4的控制其控制电路位于 11 区, 12 区,采用点动控制。
砂轮上升控制过程为:按下 SB6 , SB6动作,KM3线圈(得电吸合)KM3主触头闭合,M4 起动正转运转,砂轮上升。
当砂轮上升到预定位置时,松开 SB6 ,SB6复位断开,KM3线圈(失电释放),KM3主触头断开,M4 停转,砂轮停止上升。
砂轮下降控制过程为:按下 SB7,SB7动作,KM4线圈(得电吸合)KM4主触头闭合,M4 起动反转运转,砂轮下降。
当砂轮下降到预定位置时,松开 SB7,SB7复位断开,KM4线圈(失电释放),KM4主触头断开,M4停转,砂轮停止下降。
2。
电气控制技术课程设计说明书M7120型平面磨床电气控制学院:机电工程学院指导教师:李海军刘宇专业:电气工程及其自动化班级:11级电气一班姓名:温强周琳学号:110512530 110512556设计完成日期:2014年5月4日一、M7120型平面磨床电气控制设计任务及设计要求 (1)1 控制设计要求 (1)2 控制设计任务 (1)二设计方案 (1)1 主电路设计 (1)2 辅助电路设计 (3)三电气原理图设计 (4)1 主电路设计与分析 (4)2 辅助电路设计及分析 (5)四电气控制板安装与调制 (6)1 控制板任务 (6)2 安装实物图片 (6)3 调试情况 (8)五PLC控制的设计 (10)1 I/O点分析 (10)2 PLC选型 (10)3 I/O点分配 (10)4 PLC外围接线图 (11)5 PLC程序设计 (12)6 程序的运行与调试 (14)六收获与与体会 (23)七总结:PLC控制与继电器控制的区别 (24)我先对本次的设计进行了总体的思考和分析M7120型平面磨床主要由4台电动机组成,它们分别是:液压泵电动机M1,砂轮电动机M2,冷却泵电动机M3,砂轮升降电动机M4。
M1单向旋转,可实现反接制动、两地控制;M2、M3均单向旋转,M3只有在M2启动后才能运转;M4可实现双向旋转,且只能通过电动控制。
首先绘制原理接线图,随后连电路板、进行调试。
然后根据电气控制电路的线路图,绘制PLC外围接线图,编程PLC的梯形图,调试。
一、M7120型平面磨床电气控制设计任务及设计要求1 控制设计要求(1)液压泵电动机M1单向旋转,可实现反接制动,两地控制。
(2)M2、M3均单向旋转,M3只有在M2启动后才能运转。
(3)M4可实现双向旋转,且M4只能通过电动控制。
(4)M1、M2、M3均有过载保护功能,整个电路具有短路保护功能。
(5)机床控制电路及指示灯电路,电压均为380V。
其中HL1为控制指示灯,HL2为M1运转指示灯,HL3为M2及M3运转指示灯,HL4为M4运转指示灯。
M7120型平面磨床的电气控制电路及工作原理磨床是用磨具和磨料(如砂轮、砂带、油石、研磨剂等)对工件的表面进行磨削加工的一种机床,它可以加工各种表面,如平面、内外圆柱面、圆锥面和螺旋面等。
通过磨削加工,使工件的形状及表面的精度、光洁度达到预期的要求;同时,它还可以进行切断加工。
根据用途和采用的工艺方法不同,磨床可以分为平面磨床、外圆磨床、内圆磨床、工具磨床和各种专用磨床(如螺纹磨床、齿轮磨床、球面磨床、导轨磨床等),其中以平面磨床使用最多。
平面磨床又分为卧轴和立轴、矩台和圆台四种类型,下面以M7130型卧轴矩台平面磨床为例介绍磨床的电气控制电路。
M7130型平面磨床型号的含义为一、平面磨床的主要结构和运动形式M7120型卧轴矩形工作台平面磨床的主要结构包括床身、立柱、滑座、砂轮箱、工作台和电磁吸盘,如图7—4所示。
磨床的工作台表面有T型槽,可以用螺钉和压板将工件直接固定在工作台上,也可以在工作台上装上电磁吸盘,用来吸持铁磁性的工件。
平面磨床进行磨削加工的示意图如图7—5所示,砂轮与砂轮电动机均装在砂轮箱内,砂轮直接由砂轮电动机带动旋转;砂轮箱装在滑座上,而滑座装在立柱上。
图7-4 M7130卧轴矩台平面磨床结构示意图磨床的主运动是砂轮的旋转运动,而进给运动则分为以下三种运动。
(1)工作台(带动电磁吸盘和工件)作纵向往复运动;(2)砂轮箱沿滑座上的燕尾槽作横向进给运动;(3)砂轮箱和滑座一起沿立柱上的导轨作垂直进给运动。
图7-5 磨床的主运动和进给运动示意图二、平面磨床的电力拖动形式和控制要求M7120型卧轴矩台平面磨床采用多台电动机拖动,其电力拖动和电气控制、保护的要求是:(1)砂轮由一台笼型异步电动机拖动,因为砂轮的转速一般不需要调节,所以对砂轮电动机没有电气调速的要求,也不需要反转,可直接起动。
(2)平面磨床的纵向和横向进给运动一般采用液压传动,所以需要由一台液压泵电动机驱动液压泵,对液压泵电动机也没有电气调速、反转和降压起动的要求。
M7120型平面磨床电气控制故障排除一、控制系统的工作原理与特点1 液压泵电动机M1控制回路在电源电压正常的情况下,合上QS开关,则欠电压继电器KU通过二极管整流电路得电动作,其常开触头KUV闭合,为控制电路按通电源,SB1为整个控制系统的紧急停车按钮,用于紧急断开控制电路。
按SB3,则KM1通电动作并自锁,液压泵电机M1运转,停止按钮为SB2。
2砂轮电动机M2和冷却泵电动机M3的联动控制电路按SB5→KM2通电动作并自锁,M3也动作带动冷却泵。
其中冷却泵电机的电源接通与否靠插座开关XS1-XP1控制。
3砂轮升降电动机M4的控制电路按SB6→KM3线圈运电→电动机M4正转上升,松开停止按SB7→KM4线圈通电→电动机M4反转下降。
4 电磁吸盘工作电路整流回路由电源变压器TC和桥式整流电路组成,输出110V直流电压。
保护电路➢ 失磁保护线路失磁保护线路由零压继电器KU及其控制触头KUV组成。
其保护作用是,当线路电压下降幅度过大甚至为零时,KU自动释放,其控制触头KUV断开,从而切断控制电路,以防止因吸盘吸力不足或消失而导致工件被砂轮抛出。
➢ RC放电回路RC放电电路由放电电阻R和电容C组成,并联在吸盘的电磁线圈两端,吸盘的电磁线圈是一个很大的电感,在充磁过程中存在着大量的磁埸能量,在电磁吸盘断电时能产生很高的自感电动势,能击穿线圈或其它电器件,故在两端接有R和C组成放电电路进行放电。
充磁与去磁控制电路①充磁过程按SB8→KM5线圈通电吸合并自锁→触点KM5(35-36)和KM5(37-38)闭合接通充磁电路。
通电回路:VC(+)→FU5→XS2→YH→XS2→KM5(37-38)→FU5→VC-。
工作加工完毕,按SB9使KM5线圈断电、切断充磁回路由于吸盘和工件中都残存剩磁很难分离,故应对工件和吸盘进行去磁处理。
②去磁过程去磁采用反向送电控制,去磁时间不能太长,太长反而会反向磁化,按SB10→KM6线圈通电,接通去磁电路通电回路:VC(+)→FU5→KM6(35-37)→XS2→YH→XS2→KM6(36-38)→FU5→VC(-)。
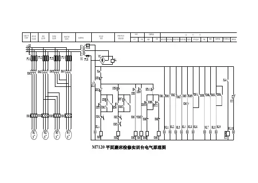
KM1FU1QSKTL1L2L3KH1电源开关 及保护蜂鸣器HL10M13~M23~M43~FU2 FU3 FU4M33~KM2 KM3KM4KH2KH3KH4TC FU5FU6VCKASA1 KASB1SB2SB3 SB4SB6SB5 SB7 SB8SB9SB10SB11SB12KH1KH2KH3KM1KM2KM4KM3KM5KM6KM1KM2KM4 KM3KM6 KM5KM5KM1KM1KM2KM2KM3KM4KM3KM4KM5 KM6KM5KM6KTKAHL1HL2 HL3 HL4 HL5 HL6 HL7 HL8HL9 EL1液压泵 电动机砂轮 电动机 冷却泵 电动机砂轮升降 电动机电源控制液压泵 控制 砂轮冷却及 整流电路砂轮 上升下降 电磁吸盘充磁 去磁信 号 灯液压泵停 液压泵起砂轮冷却停 砂轮冷却起砂轮停止砂轮起动去磁退磁电磁吸盘时间继电器M7120平面磨床检修实训台电气原理图222015171U 1V 1W 2U 2V 2W 3U 3V 4U 3W 4W 4V 368131014181621190 380 36 24 0203 204U11 V11 W11U11 V11 W11U11 V11 W11U14 V14 W14U16 V16 W16U12 V12 W1272 223 241213102 225 2616 1727 228 29 1427 29 1519 22 18 2122 230 1920312U11 V11U17 V17QS1 02 024242502628029030031232 2310220220420344556685649910913 91041441618194181821234SB1SB2SB3SB4SB5SB6SB7SB8SB9SB10SB11SB12SB13U12V12W12U14V12W14V16W16U16U13V13W13U15V15W154V4W4U 4W4V4UU16V16W16U13V13W13U15V15W15U15V15W151U1V1W2U2V2W3U3V3WHL1HL2HL3HL4HL5HL6HL7HL8KA整流桥变压器HL10照明灯KM2KM3KM4KM5KM6323332 3KH2KH3M7120平面磨床检修实训台电气安装位置图KM1FU1HL10M13~M23~M43~FU2 FU3 FU4M33~KM2 KM3KM4KH2KH3KH4TC FU5FU6VCKASA1KASB1SB2SB3 SB4SB6SB5SB7 SB8SB9SB10SB11SB12KH1KH2KH3KM1KM2 KM4KM3KM5KM6KM1KM2KM4 KM3KM6 KM5KM5KM1KM1KM2KM2KM3KM4KM3KM4KM5 KM6KM5KM6KTKAHL1HL2 HL3 HL4 HL5 HL6 HL7 HL8HL9 EL1L1L2L3KH1电源开关 及保护 液压泵 电动机砂轮 电动机 冷却泵 电动机砂轮升降 电动机电源控制液压泵 控制 砂轮冷却及 整流电路砂轮 上升下降 电磁吸盘充磁 去磁信 号 灯液压泵停 液压泵起砂轮冷却停 砂轮冷却起砂轮停止砂轮起动去磁退磁电磁吸盘时间继电器蜂鸣器故障2故障3故障4故障5故障1故障20故障7故障18故障6故障8故障9故障10故障8故障12 故障13故障14故障15故障16故障17故障19M7120平面磨床检修实训台电气故障位置图。
M7120型平面磨床故障维修实训目的以及要求:目的是使同学熟练掌握M7120机床的操作以及检修方法。
要求同学在规定时间内可以独立、快速完成检修任务。
一、工作原理首先把三个电机切换开关扳至“2”的位置:M7120型由两大部分组成,即主电路、控制电路。
控制电路又由电磁吸盘充磁、去磁电路,控制电路和信号灯等组成。
在主电路中共有四台电动机。
其中M1为液压泵电动机,用它实现工作台的往复运动;M2为砂轮电动机,带动砂轮转动来完成磨削加工工件;M3为冷却泵电动机,供给加工过程中工件的冷却液;M4为砂轮升降电动机,带动砂轮上下移动,调整砂轮和工件之间的位置。
电路中QS1作为电源的总开关,熔断器FU1为电路的总短路保护。
接触器KM1控制液压泵电动机M1电源的通断,热继电器FR1为它的过载保护。
接触器KM2控制砂轮电动机M2、冷却泵电动机M3电源的通断;热继电器FR2、FR3分别为电动机M2、M3的过载保护。
冷却泵电动机M3只有在砂轮电动机M2启动后才能启动。
由于砂轮升降电动机M4的正、反转,以实现砂轮的升降。
由于电动机M4的工作是短期的,故没有过载保护。
1、电磁吸盘充磁退磁系统:合上电源总开关QS1,控制变压器TC得电,电源指示灯HL1亮,表示电源接通。
变压器副边36V 交流电压经整流器VC整流输出32V左右的直流电压通过一个电压继电器后供给电磁吸盘的充磁退磁电路;当整流器两端输出的电压正常时,电压继电器KV得电吸合,为控制电路的启动作好准备。
按下电磁吸盘启动按纽SB8,接触器KM5得电吸合并自锁,电磁吸盘工作指示灯HL5亮,电磁吸盘YH(用电源指示灯代替电磁吸盘)充磁,使工件牢牢被吸合。
工件加工完毕后,按下电磁吸盘充磁停止按纽SB9,接触器KM5失电,电磁充磁指示灯HL5灭,充磁停止。
但由于电磁吸盘YH的剩磁作用,工件仍不能取下,必须向电磁吸盘YH反向充磁以退掉剩磁工件才能取下。
按下退磁启动按纽SB10,接触器KM6得电吸合,电磁吸盘工作指示灯HL5亮,电磁吸盘反向充磁。
M7120型平面磨床的电气控制电路及工作原理M7120型平面磨床主要由主线路、控制线路、照明及指示灯线路及电磁工作台线路等组成,如图8.4所示。
下面按线路的几大部分分别对其工作原理及用途作简单介绍。
图8.4M7120型平面磨床的电气控制电路M7120型平面磨床的主线路有四台电动机,M1为液压泵电动机,它在工作中起到工作台往复运动的作用;M2是砂轮电动机,可带动砂轮旋转起磨削加工工件作用;M3电动机做辅助工作,它是冷却泵电动机,为砂轮磨削工作起冷却作用;M4为砂轮机升降电动机,用于调整砂轮与工作件的位置。
M1、M2及M3电动机在工作中只要求正转,其中对冷却泵电动机还要求在砂轮电动机转动工作后才能使它工作,否则没有意义。
对升降电动机要求它正反方向均能旋转。
控制线路对M1、M2、M3电动机有过载保护和欠压保护能力,由热继电器FR1、FR2、FR3和欠压继电器完成保护,而四台电动机短路保护则需FU1做短路保护。
电磁工作台控制线路首先由变压器T1进行变压后,再经整流提供110V的直流电压,供电磁工作台用,它的保护线路是由欠压继电器、放电电容和电阻组成。
线路中的照明灯电路是由变压器提供36V电压,由低压灯泡进行照明。
另外还有5个指示灯:HL亮证明工作台通入电源;HL1亮表示液压泵电动机已运行;HL2亮表示砂轮机电动机及冷却泵电动机已工作;HL3亮表示升降电动机工作;HL4亮表示电磁吸盘工作。
M7120型平面磨床的工作原理是,当电源380V正常通入磨床后,线路无故障时,欠压继电器动作,其常开触点KA闭合,为KM1、KM2接触器吸合做好准备,当按下SB1按钮后,接触器KM1的线圈得电吸合,液压泵电动机开始运转,由于接触器KM1的吸合,自锁点自锁使M1电动机在松开按钮后继续运行,如工作完毕按下停止按钮,KM1失电释放,M1便停止运行。
如需砂轮电动机以及冷却泵电动机工作时,按下按钮SB3后,接触器KM2便得电吸合,此时砂轮机和冷却泵电动机可同时工作,正向运转。
M7120型平面磨床的电气控制电路及工作原理磨床是用磨具和磨料(如砂轮、砂带、油石、研磨剂等)对工件的表面进行磨削加工的一种机床,它可以加工各种表面,如平面、内外圆柱面、圆锥面和螺旋面等。
通过磨削加工,使工件的形状及表面的精度、光洁度达到预期的要求;同时,它还可以进行切断加工。
根据用途和采用的工艺方法不同,磨床可以分为平面磨床、外圆磨床、内圆磨床、工具磨床和各种专用磨床(如螺纹磨床、齿轮磨床、球面磨床、导轨磨床等),其中以平面磨床使用最多。
平面磨床又分为卧轴和立轴、矩台和圆台四种类型,下面以M7130型卧轴矩台平面磨床为例介绍磨床的电气控制电路。
M7130型平面磨床型号的含义为一、平面磨床的主要结构和运动形式M7120型卧轴矩形工作台平面磨床的主要结构包括床身、立柱、滑座、砂轮箱、工作台和电磁吸盘,如图7—4所示。
磨床的工作台表面有T型槽,可以用螺钉和压板将工件直接固定在工作台上,也可以在工作台上装上电磁吸盘,用来吸持铁磁性的工件。
平面磨床进行磨削加工的示意图如图7—5所示,砂轮与砂轮电动机均装在砂轮箱内,砂轮直接由砂轮电动机带动旋转;砂轮箱装在滑座上,而滑座装在立柱上。
图7-4 M7130卧轴矩台平面磨床结构示意图磨床的主运动是砂轮的旋转运动,而进给运动则分为以下三种运动。
(1)工作台(带动电磁吸盘和工件)作纵向往复运动;(2)砂轮箱沿滑座上的燕尾槽作横向进给运动;(3)砂轮箱和滑座一起沿立柱上的导轨作垂直进给运动。
图7-5 磨床的主运动和进给运动示意图二、平面磨床的电力拖动形式和控制要求M7120型卧轴矩台平面磨床采用多台电动机拖动,其电力拖动和电气控制、保护的要求是:(1)砂轮由一台笼型异步电动机拖动,因为砂轮的转速一般不需要调节,所以对砂轮电动机没有电气调速的要求,也不需要反转,可直接起动。
(2)平面磨床的纵向和横向进给运动一般采用液压传动,所以需要由一台液压泵电动机驱动液压泵,对液压泵电动机也没有电气调速、反转和降压起动的要求。
平面磨床磨头升降结构图-M7120平面磨床电气原理图和接线图在机床加工中,平面磨床,接下来中意磨床为您解说平面磨床磨头升降结构图:平面磨床电气原理图和接线图的问题。
1、平面磨床电气原理图及接线图型平面磨床的工作原理是在电源与磨床正常连接且线路的情况下,欠压继电器动作。
,其常开触点KA闭合,准备KM1和KM2接触器吸合。
当按下SB1按钮时,接触器KM1的线圈得电闭合,液压泵马达开始运转。
由于接触器KM1的吸合,自锁点自锁使M1电机在按钮松开后继续运行。
如果在工作完成后按下停止按钮,KM1将断电释放,M1将停止运行。
激光打印机的发展源于2023年施乐公司生产的一台静电复印机。
从那时起,科学家们开始专注于激光技术和激光调制技术在打印机中的应用。
说到激光打印机的诞生,我们不禁要说起被誉为“激光打印机之父”的加里·斯塔克威。
Gary Starkweizer 被调到帕洛阿尔托研究中心(PaloAltoResearchCenter 简称PARC,即帕克)工作,并于今年11月研制出一台激光电脑打印机。
2023年,施乐激光打印机上市,标志着印刷行业划时代的开始。
平面磨床结构简图。
一开始,激光打印机体积大,噪音大,预热时间长,打印质量不理想。
能够支付相当昂贵费用的公司也很少,但技术创新的速度非常快。
随着半导体激光器的发展,微机控制和激光打印机生产技术的日益成熟,成本的不断降低,1990年代产销量突飞猛进,激光打印机也开始普及。
2、平面磨床的结构是怎样的?1)高刚性高稳定性床身,床身采用整体花岗岩结构,由于花岗岩具有阻尼高、振动小、热稳定性好等特点,可以保证床身的高刚性和高稳定性磨床。
2)工作台,工作台采用整体花岗岩结构,在传统闭式静压导轨的基础上,开发了高刚性、高精度的大平面闭式静压导轨,实现大行程、平稳运行的工作台。
,可靠的往复运动。
工作台由西门子直线电机驱动。
同时,为了防止直线电机的运动影响工作台,专门为直线电机设计了独立的静压导轨。
4第章机床电气控制电路不工作的情况下,允许砂轮电动机与液压泵电动机开动,机床作调整运动。
④电磁吸盘励磁线圈具有吸牢工件的正向励磁、松开工件的断开励磁,以及抵消剩磁便于取下工件的反向励磁控制环节。
⑤具有完善的保护环节。
各电路的短路保护,各电动机的长期过载保护,零压、欠压保护,电磁吸盘吸力不足的欠电流保护,以及线圈断开时产生高电压而危及电路中其他电气设备的过压保护等。
⑥机床安全照明电路与工件去磁的控制环节。
4.3.2 M7120型平面磨床电气控制电路M7120型平面磨床电气控制电路如图4.3.3所示,其电气元件明细见表4.3.1。
表4.3.1 M7120平面磨床电气元件表符号名称及用途符号名称及用途M1液压泵电动机1.1kW 1410r/min TR 整流变压器M2砂轮电动机3kW 2860r/min TC 照明变压器M3冷却泵电动机0.12kW SB1液压泵停止按钮M4砂轮升降电动机0.75kW 1410r/min SB2液压泵启动按钮QS1电源开关SB3砂轮停止按钮QS2照明灯开关SB4砂轮启动按钮KM1接触器,液压泵电动机用SB5~SB6砂轮升降按钮KM2接触器,砂轮电动机及冷却泵电动机用SB7~SB9电磁吸盘控制按钮KM3、KM4接触器,砂轮升降电动机用XS1电磁吸盘插头插座KM5、KM6接触器,电磁吸盘用XS2冷却泵电动机插头插座FR1~FR3热继电器R、C 保护用电阻、电容FU1~FU4熔断器HL 电源指示灯UR 硅整流器HL1~HL4电动机、电磁吸盘工作指示灯YH 电磁吸盘EL 照明灯KV 欠电压继电器【看图思路】(1)电动机配置情况及其控制主电路共有4台电动机。
其中M1[2]为液压泵电动机,实现工作台的往复运动,由接触器KM1的主触点控制,单向旋转。
M2[3]为砂轮电动机,带动砂轮转动来完成磨削加工工作。
M3[4]为冷却泵电动机,M2和M3同由接触器KM2的主触点控制,单向旋转,冷却泵电动机M3只有在砂轮电动机M2启动后才能运转。
M7120平面磨床电气控制线路的故障分析与检查一、主要结构形式及运动方式1.主要结构2二、电气线路分析下图为M7120平面磨床的电气控制线路。
分为主电路、控制电路、电磁工作台控制电路和照明指示灯电路四部分。
1.主电路分析主电路共有三台电动机,M1是砂轮电动机,M2是冷却泵电动机,M3是液压油泵电动机。
三台电动机均具有短路、失压、欠压保护,分别由FU1和KM1、KM2、KM3来执行,FR1、FR2、FR3热继电器执行过载保护。
2.控制电路分析(1)液压油泵、冷却泵电动机M2、M3的控制控制电路如图所示:动作原理:电源电压正常,按下SB2,电流经T(110V)→FU3→FR1→FR2→FR3→SB1→SB2→KM1→T(110V)。
接触器KM1线圈通电,主触头KM1闭合,M2、M3启动运行,辅助触头KM1闭合,进行自保。
系统压力传递给压力继电器P,为砂轮电动机启动做准备。
若按下停止按钮SB1,接触器KM1断电,主触头KM1断开,液压泵、冷却泵电动机M2、M3断电,停止转动。
(2)砂轮电动机的控制控制电路如图所示:91591517911911 13(3)电磁工作台的控制控制电路如图所示:控制原理:当电磁吸盘需要吸力夹持工件时,旋转转换开关SA2,使接点(37-41)和(45-43)接通。
充磁回路由VC+→SA2(45-43)→X→YA→X→SA2(41-37)→VC-。
YA吸牢工件,砂轮对工件进行磨削加工。
加工完毕后,将SA2经“放松”位置打向“退磁”位置,使接点(45-41)和(47-37)接通。
退磁回路由VC+→SA2(45-41)→X→YA→X→3R→SA2(47-37)→VC-,反向给电磁吸盘和工件退磁。
退磁完毕后,旋转SA2到“放松”位置,取下工件。
1.122.1291517 3123。
第四章 M7120平面磨床电路智能实训单元一、电路分析M7120型平面磨床的电气控制线路可分为主电路、控制电路、电磁工作台控制电路及照明与指示灯电路四部分。
1.主电路分析主电路中共有四台电动机,其中M1是液压泵电动机实现工作台的往复运动;M2是砂轮电动机,带动砂轮转动来完成磨削加工工件;M3是冷却泵电动机;它们只要求单向旋转,分别用接触器KM1、KM2、控制。
冷却泵电机M3只是在砂轮电机M2运转后才能运转。
M4是砂轮升降电动机,用于磨削过程中调整砂轮和工件之间的位置。
M1、M2、M3是长期工作的,所以都装有过载保护。
M4是短期工作的,不设过载保护。
四台电动机共用一组熔断器FU1作短路保护。
2.控制电路分析(1)液压泵电动机M1的控制合上总开关QS1后,整流变压器一个副边输出130伏交流电压,经桥式整流器VC整流后得到直流电压,使电压继电器KA获电动作,其常开触头(7区)闭合,为启动电机做好准备。
如果KA不能可靠动作,各电机均无法运行。
因为平面磨床的工件靠直流电磁吸盘的吸力将工件吸牢在工作台上,只有具备可靠的直流电压后,才允许启动砂轮和液压系统,以保证安全。
当KA吸合后,按下启动按钮SB3,接触器KM1通电吸合并自锁,工作台电机M1启动运转,HL2灯亮。
若按下停止按钮SB2,接触器KM1线圈断电释放,电动机M1断电停转。
(2)砂轮电动机M2及冷却泵电机M3的控制按下启动按钮SB5,接触器KM2线圈获电动作,砂轮电动机M2启动运转。
由于冷却泵电动机M3与M2联动控制,所以M3与M2同时启动运转。
按下停止按钮SB4时,接触器KM3线圈断电释放,M2与M3同时断电停转。
两台电动机的热断电器FR2和FR3的常闭触头都串联在KM2中,只要有一台电动机过载,就使KM2失电。
因冷却液循环使用,经常混有污垢杂质,很容易引起电动机M3过载,故用热继电器FR3进行过载保护。
(3)砂轮升降电动机M4的控制砂轮升降电动机只有在调整工件和砂轮之间位置时使用,所以用点动控制。
M7120型平面磨床的电气控制电路及工作原理磨床是用磨具和磨料(如砂轮、砂带、油石、研磨剂等)对工件的表面进行磨削加工的一种机床,它可以加工各种表面,如平面、内外圆柱面、圆锥面和螺旋面等。
通过磨削加工,使工件的形状及表面的精度、光洁度达到预期的要求;同时,它还可以进行切断加工。
根据用途和采用的工艺方法不同,磨床可以分为平面磨床、外圆磨床、内圆磨床、工具磨床和各种专用磨床(如螺纹磨床、齿轮磨床、球面磨床、导轨磨床等),其中以平面磨床使用最多。
平面磨床又分为卧轴和立轴、矩台和圆台四种类型,下面以M7130型卧轴矩台平面磨床为例介绍磨床的电气控制电路。
M7130型平面磨床型号的含义为一、平面磨床的主要结构和运动形式M7120型卧轴矩形工作台平面磨床的主要结构包括床身、立柱、滑座、砂轮箱、工作台和电磁吸盘,如图7—4所示。
磨床的工作台表面有T型槽,可以用螺钉和压板将工件直接固定在工作台上,也可以在工作台上装上电磁吸盘,用来吸持铁磁性的工件。
平面磨床进行磨削加工的示意图如图7—5所示,砂轮与砂轮电动机均装在砂轮箱内,砂轮直接由砂轮电动机带动旋转;砂轮箱装在滑座上,而滑座装在立柱上。
图7-4 M7130卧轴矩台平面磨床结构示意图磨床的主运动是砂轮的旋转运动,而进给运动则分为以下三种运动。
(1)工作台(带动电磁吸盘和工件)作纵向往复运动;(2)砂轮箱沿滑座上的燕尾槽作横向进给运动;(3)砂轮箱和滑座一起沿立柱上的导轨作垂直进给运动。
图7-5 磨床的主运动和进给运动示意图二、平面磨床的电力拖动形式和控制要求M7120型卧轴矩台平面磨床采用多台电动机拖动,其电力拖动和电气控制、保护的要求是:(1)砂轮由一台笼型异步电动机拖动,因为砂轮的转速一般不需要调节,所以对砂轮电动机没有电气调速的要求,也不需要反转,可直接起动。
(2)平面磨床的纵向和横向进给运动一般采用液压传动,所以需要由一台液压泵电动机驱动液压泵,对液压泵电动机也没有电气调速、反转和降压起动的要求。
(3)同车床一样,也需要一台冷却泵电动机提供冷却液,冷却泵电动机与砂轮电动机也具有联锁关系,即要求砂轮电动机起动后才能开动冷却泵电动机。
(4)平面磨床往往采用电磁吸盘来吸持工件。
电磁吸盘要有退磁电路,同时,为防止在磨削加工时因电磁吸盘吸力不足而造成工件飞出,还要求有弱磁保护环节。
(5)具有各种常规的电气保护环节(如短路保护和电动机的过载保护);具有安全的局部照明装置。
三、M7130型平面磨床电气控制电路分析(一)主电路三相交流电源由电源开关QS引入,由FUl作全电路的短路保护。
M7120型平面磨床的主线路有四台电动机,M1为液压泵电动机,它在工作中起到工作台往复运动的作用;M2是砂轮电动机,可带动砂轮旋转起磨削加工工件作用;M3电动机做辅助工作,它是冷却泵电动机,为砂轮磨削工作起冷却作用;M4为砂轮机升降电动机,用于调整砂轮与工作件的位置。
M1、M2及M3电动机在工作中只要求正转,其中对冷却泵电动机还要求在砂轮电动机转动工作后才能使它工作,否则没有意义。
对升降电动机要求它正反方向均能旋转。
(二)控制电路控制线路对M1、M2、M3电动机有过载保护和欠压保护能力,由热继电器FR1、FR2、FR3和欠压继电器完成保护,而四台电动机短路保护则需FU1做短路保护。
控制电路采用380V电源,由FU2作短路保护。
SBl、SB2和SB3、SB4分别为M1和M3的起动、停止按钮,通过KMl、KM2控制M1和M3的起动、停止。
(三)电磁吸盘电路电磁吸盘结构与工作原理示意图如图7-7所示。
其线圈通电后产生电磁吸力,以吸持铁磁性材料的工件进行磨削加工。
与机械夹具相比较,电磁吸盘具有操作简便、不损伤工件的优点,特别适合于同时加工多个小工件;采用电磁吸盘的另一优点是工件在磨削时发热能够自由伸缩,不至于变形。
但是电磁吸盘不能吸持非铁磁性材料的工件,而且其线圈还必须使用直流电。
图7-7 电磁吸盘结构与原理示意图图7-8 交流去磁器结构原理图直流电压供给电磁吸盘线圈YH。
SA2是电磁吸盘的控制开关,待加工时,将SA2扳至右边的“吸合”位置,触点(301—303)、(302—304)接通,电磁吸盘线圈通电,产生电磁吸力将工件牢牢吸持。
加工结束后,将SA2扳至中间的“放松”位置,电磁吸盘线圈断电,可将工件取下。
如果工件有剩磁难以取下,可将SA2扳至左边的“退磁”位置,触点(301—305)、(302—303)接通,可见此时线圈通以反向电流产生反向磁场,对工件进行退磁,注意这时要控制退磁的时间,否则工件会因反向充磁而更难取下。
R2用于调节退磁的电流。
采用电磁吸盘的磨床还配有专用的交流退磁器,如图7-8所示,如果退磁不够彻底,可以使用退磁器退去剩磁,X2是退磁器的电源插座。
(四)电气保护环节除常规的电路短路保护和电动机的过载保护之外,电磁吸盘电路还专门设有一些保护环节。
1.电磁吸盘的弱磁保护采用电磁吸盘来吸持工件有许多好处,但在进行磨削加工时一旦电磁吸力不足,就会造成工件飞出事故。
因此在电磁吸盘线圈电路中串入欠电流继电器KA的线圈,KA的动合触点与SA2的一对动合触点并联,串接在控制砂轮电动机M1的接触器KMl线圈支路中,SA2的动合触点(6—8)只有在“退磁”档才接通,而在“吸合”档是断开的,这就保证了电磁吸盘在吸持工件时必须保证有足够的充磁电流,才能起动砂轮电动机M1;在加工过程中一旦电流不足,欠电流继电器KA动作,能够及时地切断KMl线圈电路,使砂轮电动机M1停转,避免事故发生。
如果不使用电磁吸盘,可以将其插头从插座X3上拔出,将SA2扳至“退磁”档,此时SA2的触点(6—8)接通,不影响对各台电动机的操作。
2.电磁吸盘线圈的过电压保护电磁吸盘线圈的电感量较大,当SA2在各挡间转换时,线圈会产生很大的自感电动势,使线圈的绝缘和电器的触点损坏。
因此在电磁吸盘线圈两端并联电阻器R3作为放电回路。
3.整流器的过电压保护在整流变压器TI的二次侧并联由R1、C组成的阻容吸收电路,用以吸收交流电路产生的过电压和在直流侧电路通断时产生的浪涌电压,对整流器进行过电压保护。
(五)照明电路照明变压器T2将380V交流电压降至36V安全电压供给照明灯EL,EL的一端接地,SAl 为灯开关,由FU3提供照明电路的短路保护。
线路中的照明灯电路是由变压器提供36V电压,由低压灯泡进行照明。
另外还有5个指示灯:HL亮证明工作台通入电源;HL1亮表示液压泵电动机已运行;HL2亮表示砂轮机电动机及冷却泵电动机已工作;HL3亮表示升降电动机工作;HL4亮表示电磁吸盘工作。
电磁工作台控制线路首先由变压器T1进行变压后,再经整流提供110V的直流电压,供电磁工作台用,它的保护线路是由欠压继电器、放电电容和电阻组成。
(六)M7120型平面磨床的工作原理是当电源380V正常通入磨床后,线路无故障时,欠压继电器动作,其常开触点KA闭合,为KM1、KM2接触器吸合做好准备,当按下SB1按钮后,接触器KM1的线圈得电吸合,液压泵电动机开始运转,由于接触器KM1的吸合,自锁点自锁使M1电动机在松开按钮后继续运行,如工作完毕按下停止按钮,KM1失电释放,M1便停止运行。
如需砂轮电动机以及冷却泵电动机工作时,按下按钮SB3后,接触器KM2便得电吸合,此时砂轮机和冷却泵电动机可同时工作,正向运转。
停车时只需按下停止按钮SB4,即可使这两台电动机停止工作。
在工作中,如果需操作升降电动机做升降运动时,按下点动按钮SB5或SB6即可升降;停止升降时,只要松开按钮即可停止工作。
如需操动电磁工作台时,把工件放在工作台上,按下按钮SB7后接触器KM5吸合,从而把直流电110V电压接入工作台内部线圈中,使磁通与工件形成封闭回路因此就把工件牢牢地吸住,以便对工件进行加工。
当按下SB8后,电磁工作台便失去吸力。
有时其本身存在剩磁,为了去磁可按下按钮SB9,使接触器KM6得电吸合,把反向直流电通入工作台,进行退磁,待退完磁后松开SB9按钮即可将工件拿出。
M7120型平面磨床的常见故障及检修方法故障(1):磨床砂轮电动机不能启动可能原因①电源无电压或电压缺相。
②热继电器FR2和FR3动作后未复位。
③欠压继电器动作或触点接触不上。
④停止按钮SB4常闭点接触不良或启动按钮SB3按下后触点接触不上。
⑤接触器KM2线圈断线或烧毁。
⑥控制线路线头脱落或有接触不良处。
⑦砂轮机电动机机械卡死。
⑧M2电动机烧毁。
检修方法与技巧①用万用表测FU1下桩头三相是否有380V电压,如无电压或电压缺相应检查FU1哪只保险熔断,如熔断要更换同样规格的保险心,如全无电压应向线路查找停电原因。
②用低压验电笔测热继电器FR2、FR3动作触点,发现哪个触点使低压验电笔发光微弱,则说明该热继电器动作或触点接触不好;如果是热继电器动作,要查该电动机的过载原因(如电动机负荷过重,电动机轴承损坏,电动机烧毁等)。
如果是热继电器触点本身接触不良,要更换同规格的热继电器③用低压验电笔测欠压继电器动作触点是否动作,如动作时要查找动作原因,如触点本身接触不良,要更换欠压继电器。
④用万用表电阻挡测停止按钮SB4常闭触点是否导通可靠,若接触不良要更换同型号按钮;如接触良好,再查启动按钮按下时触点能否接通,若不通或不能可靠接通,应更换同型号按钮开关。
⑤用万用表电阻挡在断开电源情况下,测KM2的线圈电阻是否正常,如不通或电阻过小,说明该线圈断路或短路烧毁,应更换同型号线圈。
⑥检查按钮到电源、按钮到接触器线圈、接触器线圈到热继电器常闭触点FR2、FR3以及热继电器常闭触点FR3到欠压继电器KA常开触点之间有无断线,线路有无接触不良处,查出接触不良处要重新接好线路。
⑦用手先转一下电动机风叶,检查电动机是否卡死,如是电动机轴承损坏卡死,要从更换电动机轴承着手,若是机械负载太重而卡死时要检修机械部分。
⑧用500V兆欧表测量电动机M2线圈是否有断路、短路、接地等故障,如查出电动机烧毁要更换电动机线包。
故障(2):磨床砂轮机在运转后,冷却泵电动机不启动。
可能原因①冷却泵电动机引入线插座接触不良或断线②冷却泵电动机线圈已烧断。
检修方法与技巧①断开电源检查插座X1与插头的接触处,太松要重新夹紧插座,插座与插头中间有氧化物要清除氧化物并重新连接好。
②用500V兆欧表测冷却泵电动机线圈,如果断路时,要打开电动机检查线包,如线头烧断要重新焊接,并加强绝缘处理;如果电动机烧毁要重新绕制电动机线包。
故障(3):升降磨头电动机不能工作运转可能原因①控制回路有线头脱落或断线处。
②升降电动机卡死。
③升降电动机线圈烧毁。
检修方法与技巧①检查控制回路各个连接线头是否有松脱断线处,查出后,要重新接好控制线路。
②检查升降机电动机是否机械卡死,若转不动或机械卡死要清除障碍物,或从机械方面着手修复。