标准层平面图样本
- 格式:doc
- 大小:3.87 MB
- 文档页数:24
高层住宅标准层平面图高层住宅标准层平面图一、引言高层住宅标准层平面图是指高层住宅楼的标准层的平面布局图,包括房间分布、功能区划和基本设施等。
本旨在提供一份极致详细的高层住宅标准层平面图模板参考,方便项目相关方对于高层住宅楼的规划与设计。
二、平面布局设计2.1 房间分布2.1.1 卧室根据居住需求,卧室的数量、面积和功能进行细化描述,并配以示意图。
2.1.2 客厅详细描述客厅的位置、尺寸,并考虑采光和通风等因素。
2.1.3 厨房描述厨房的位置、面积和功能安排,要考虑到使用者的操作流线和空间利用效率。
2.1.4 卫生间分析卫生间的数量、布局以及设备设置,确保符合卫生标准,方便居住者使用。
2.2 功能区划2.2.1 公共区域划分公共区域如大厅、走廊、电梯等,并说明其功能和设计要点。
2.2.2 服务区域规划服务区域如储藏室、垃圾间等,满足住户日常生活需求。
2.2.3 车库设施确定车库的位置、布局及容量,考虑车辆出入和停车的便利性。
2.2.4 公共设施公共设施如健身房、游泳池、花园等,并描述其布局和功能。
三、基本设施3.1 电力详细规划每个房间和公共区域的电力布线和插座位置,确保电力供应充足且安全。
3.2 水源确定供水设备和供水管线的位置和容量,以保证居民正常使用水资源。
3.3 通风与空调考虑住户的通风和空调需求,规划相应的通风设备和系统,并确定其位置和布局。
3.4 照明设计各个房间和公共区域的照明系统,确保充足的照明效果和能源节约。
四、安全措施4.1 防火设施确定防火系统的位置和布局,包括灭火器、报警器、疏散通道等,保障居民的安全。
4.2 安全出口规划安全出口的位置和通道,确保居民在紧急情况下能够迅速疏散。
4.3 应急设施应急设施如应急楼梯、应急电.化等,并进行安排和设计。
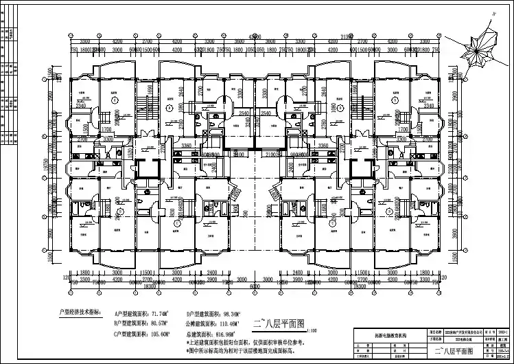
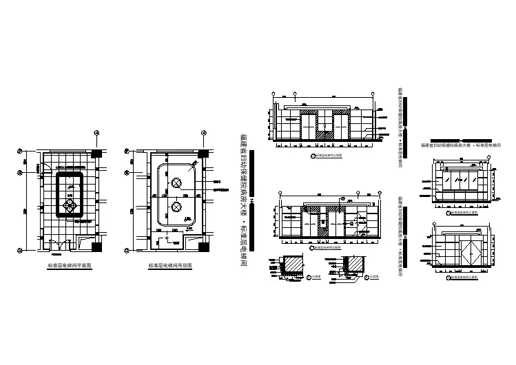
五、附件罗列本所涉及附件如下:1. 高层住宅标准层平面布局示意图2. 房间功能图及尺寸表3. 公共区域和设施布局图4. 水电照明系统示意图六、法律名词及注释1. 建筑法:指中华人民共和国的《中华人民共和国建筑法》。
标准层平面图
1.首先画一个矩形( @30480,13380) ,然后在命令行输入: Z——确定——E ——确定, 把矩形缩放到整个画布中。
2.用偏移命令( O) 把矩形向内偏移240。
3.选择格式——点样式选择合适的点, 然后执行绘图——点——多点, 在小矩形的左上角指定第一点, 再把光标移到矩形的右上角。
并在命令行输入: 3000、3000、3600、3600、3600、3600、3600、3000、3000
4.接着把光标移到矩形右下角处, 并继续输入: 5400、550、1000、550、5400
5.选择格式——多线样式, 选择添加3L, 进入元素特性, 选择添加。
然后确定。
回到画布。
6.在矩形右边550处的点上画一条垂直于左边的多线。
( 建议把多线中间的一条线设置为虚线) , 用多线命令( ML) ——对正——无——比例: 240
7.再继续用多线, 在矩形下面的每个点上, 画出与刚才这个多线垂直的多线段。