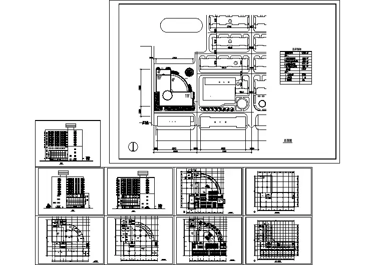
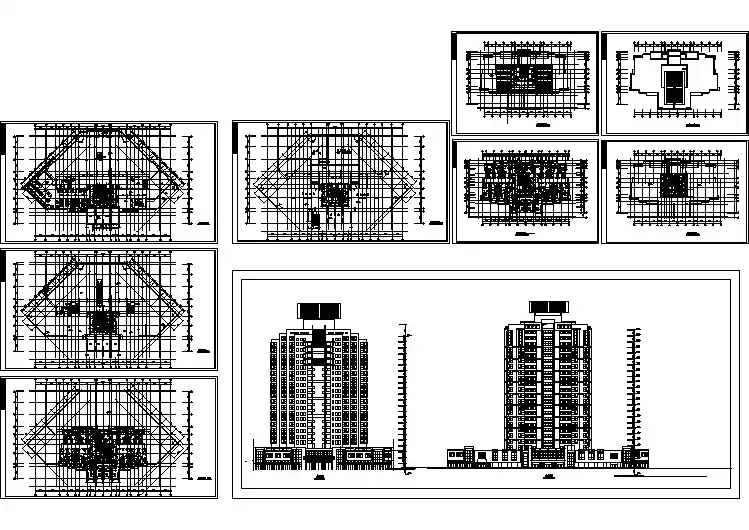
高层住宅标准层平面图
- 格式:doc
- 大小:101.00 KB
- 文档页数:1
高层住宅标准层平面图在现代城市的天际线中,高层住宅如林立的巨人,为人们提供了栖息之所。
而高层住宅标准层平面图,就像是这座建筑的灵魂蓝图,决定着每一户居民的生活空间和舒适度。
高层住宅标准层平面图的设计,首先要考虑的是功能布局。
这其中,客厅通常是家庭活动的核心区域,它需要宽敞明亮,以便家庭成员能够在此交流、娱乐。
一般来说,客厅会朝向较好的方位,以获得充足的自然采光和良好的视野。
与客厅相邻的往往是餐厅,两者之间保持流畅的动线,方便日常生活。
卧室则是休息的场所,主卧室通常会配备独立的卫生间,以保障主人的隐私和便利。
次卧室的布局会根据户型的大小和家庭的需求有所不同,可能是儿童房、客房或者书房。
卧室的位置会尽量避免靠近电梯井和楼道等噪音源,以保证安静的睡眠环境。
厨房的设计要兼顾实用和美观。
操作台面的长度和宽度要足够,以满足烹饪的需求。
炉灶、水槽和冰箱之间的布局要合理,形成流畅的“工作三角”,减少在厨房中的走动距离。
同时,厨房要预留足够的收纳空间,用于存放餐具、厨具和食材。
卫生间的设计也有讲究。
干湿分离是常见的做法,将淋浴区与洗手台、马桶区分开,可以有效地保持卫生间的干燥和整洁。
通风设施也必不可少,以排除湿气和异味。
除了功能区域的划分,交通流线的设计也至关重要。
走廊和过道要宽敞畅通,避免狭窄和曲折,让居民能够方便地在各个房间之间穿梭。
电梯和楼梯的位置要合理,既要方便居民上下楼,又不能影响到室内的布局和使用。
在空间利用方面,高层住宅标准层平面图要充分挖掘每一寸空间的潜力。
例如,可以利用阳台打造休闲区域,或者将部分空间改造成储物间。
对于一些小户型,还可以采用开放式的设计,如开放式厨房或客厅与餐厅一体化,以增加空间的开阔感。
采光和通风是影响居住舒适度的重要因素。
窗户的位置和大小要经过精心设计,确保每个房间都能获得足够的自然光。
同时,通过合理的建筑朝向和窗户的布置,实现良好的自然通风,减少对空调和通风设备的依赖,既节能环保,又有益健康。