工程定位测量记录(图 表例)
- 格式:doc
- 大小:98.00 KB
- 文档页数:2
学习资料# 1
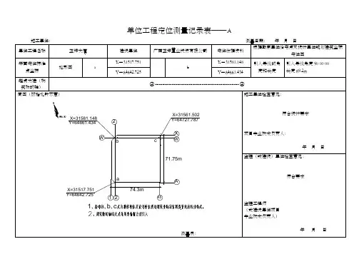
单位工程定位测量记录表——A
单位工程名称 正坤大厦
建设单位 广西正坤置业投资有限公司
定位依据资料 根据勘察单位给定点及设计单位规划建筑坐标
定位图 平面定位标准点坐标 地形图
a
X =31517.751
b
X =31581.148
引入导线的角度和长度
引入导线角度90 00 00 长度69.2m
Y =64642.725
Y =64661.434
起点为建(构筑物的轴)
○
A ---------------------------------------------○A 简图(附指北针示意)
施工单位检查意见:
符合设计要求
项目专业技术负责人:
年 月 日
学习资料#
2
12
45
A
X
2
W
W
X=31581.148Y=64661.434
X=31517.751Y=64642.725
X=31561.502Y=64727.787
a
b
c
74.3m
71.75m
1a b c
测量员:
监理(或建设)单位检查意见:
符合要求
监理工程师
(或建设单位项目 专业技术负责人)
年 月 日
单位工程定位测量记录表——B
施工单位: 测量日期: 年 月 日 单位工 程名称
正坤大厦 误差调整 3mm 引入水准测 水准基点 1 2 3
建筑物(+0.00)。
单位工程定位测量记录表——A施工单位:测量日期:年月日单位工程名称正坤大厦建设单位广西正坤置业投资有限公司定位依据资料根据勘察单位给定点及设计单位规划建筑坐标定位图平面定位标准点坐标地形图 aX=31517.751bX=31581.148 引入导线的角度和长度引入导线角度90 00 00长度69.2mY=64642.725 Y=64661.434起点为建(构筑物的轴)○A---------------------------------------------○A简图(附指北针示意)施工单位检查意见:符合设计要求项目专业技术负责人:年月日1245AX2WWX=31581.148Y=64661.434X=31517.751Y=64642.725X=31561.502Y=64727.787abc74.3m71.75m1a b c测量员:监理(或建设)单位检查意见:符合要求监理工程师(或建设单位项目 专业技术负责人)年 月 日单位工程定位测量记录表——B施工单位: 测量日期: 年 月 日单位工程名称正坤大厦误差调整3mm 引入水准测量水准基点 1 2 3建筑物(+0.00)建设单位广西正坤置业投资有限公司前视读数定位依据资料根据设计院规划建筑坐标图及甲方提供的水准点0.000绝对标高后视读数简图施工单位检查意见:符合设计要求项目专业技术负责人:年月日0.0000.500测量员:监理(或建设)单位检查意见:符合要求监理工程师(或建设单位项目专业技术负责人)年月日。
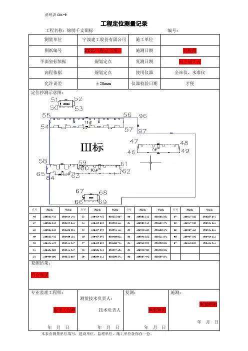
工程定位测量记录
表C3-1
资料编号00-00-C3-001
工程名称贵州七星关经济开发区公租房二期工
程(三标段)
委托单位贵州建工集团第三建筑工程有限责任公司
图纸编号总平面图、、基础平面布置图施测日期年月日平面坐标依据深圳市勘察研究院有限公司复测日期年月日
高程依据根据建设单位提供GPS5、GPS6控制
桩转点
使用仪器全站仪
允许误差i﹤1/10000;h=±6mm仪器校验日期年月日定位抄测意图:
5#楼主楼定位测量记录
复测结果:
经核对:上述楼座坐标与规划总图、施工图一致。
签字栏施工单位
贵州建工集团第三建
筑工程有限责任公司
专业技术负
责人
测量负责人复测人施测人
监理(建
设)单位
重庆新鲁班工程监理
有限责任公司
专业工程师。