双燕尾镶配件
- 格式:doc
- 大小:2.24 MB
- 文档页数:3
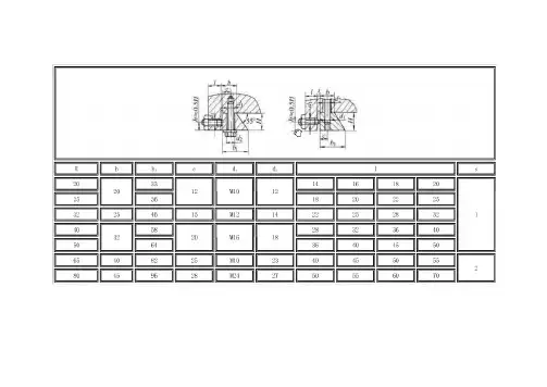
钳工双燕尾镶配件毕业设计篇一:钳工,凸台、燕尾镶配件,毕业设计苏州职业大学毕业论文课题名称凸台、燕尾镶配件学生姓名:张伟年级:机电10大6 专业:模具设计与制造指导教师:俞弘伯院系:苏州技师学院机电工程系提交日期:20XX年5月目录第一部分凸台、燕尾镶配件工艺分析 (1)1、镶配件的结构特征介绍................................................ 1 1、镶配件的加工方法 (3)2、镶配件的测量方法...................................................... 5 第二部分凸台、燕尾镶配件加工工艺过程 (5)1、镶配件件1的加工步骤………………………………………… 72、镶配件件2的加工步骤………………………………………… 93、镶配件相配合的加工步骤………………………………………11第三部分参考文献 (13)第一部分凸台、燕尾镶配件实例介绍1、镶配件的结构特征介绍根据图1-1所示可以看出该零件属于有有凸台、有斜角燕尾,而且还要打孔的配合件,由于燕尾斜角为60°对于内角的加工会比较困难,在加工之前需要将三角锉的一边用砂轮机磨成85°斜角,而且必须将圆弧过渡面磨掉才能加工出这个角。
同时根据考核要求其公差等级为IT8级,铰孔精度为IT7,表面粗糙度:锉配Ra1.6 μm、铰孔Ra1.6μm,可以看出其加工精度属于中等级别。
图1-1考核要求:(1)公差等级:锉配IT8、铰孔IT7 (2)形位公差:0.02-0.03(3)表面粗糙度:锉配Ra1.6μm、铰孔Ra1.6μm (4)时间定额:300分钟(5)其他方面:配合间隙≤0.04mm、错位量≤0.04mm 第二部分凸台、燕尾镶配件工艺分析1、镶配件的加工方法根据其外形特征得出其加工方法为先加工凸件,再加工凹件,然后凹件根据凸件进行配做,应为凸件为外部形状加工,各种尺寸大小,位置精度比较好控制。
双燕尾镶配件一授课指导1复习提问A 平面划线的基准有几种形式?(复习)B 对称形体加工时,对称度误差对转位互换有什么影响?(思考)2新课讲解1 )相关工艺知识A 对称形体工件的划线对于平面对称工件的划线,应形成对称中心平面的两个基准面精加工后进行,划线基准与该两基准面重合,划线尺寸,则按两个对称基准平面间的实际尺寸及对称形体的要求尺寸计算得出。
B 对称度误差对换位互换精度的影响如图说明:当凹凸件都有对称度误差为0.05mm,且在同一方向位置配合达到间隙要求后,得到两侧面平齐,而转位180°作配合,就产生两基准偏位误差,其差值为0.10mm(也就是二倍的误差)正确,易于达到较高精度,故一般应先加工凸件然后锉配凹件。
(以凸件为基准件)2内表面加工时,为便于控制,一般均选择有关外表面作测量基准,因此对外形基准加工必须达到较高的精度要求,才能保证得到规定的锉配精度。
3在作配合修锉时,可通过透光法和涂色显示法来确定其修锉部位和余量,逐步达到正确的配合要求。
4加工任何一个面时,应做到尺寸精度,形位公差,表面粗糙度,去毛刺,倒角一次性到位,全面兼顾。
例如:1.在加工时漏了检测大面对小面的垂直度,锉面的平面度虽然正确但是配合时从一个方向进去而换向则不能,这时如果在修改垂直度,尺寸精度又要超差了。
2.精加工,粗加工分清楚,有时会出现尺寸精度到了而表面粗糙度没有达到,再想改又要超差。
3.同学们最容易忽视的去毛刺,倒角,往往因为一处毛刺没有去,或没有去锐角造成用这个表面来测量时,量具不能紧贴工件,造成测量误差,因此不能忽视每一个细节。
D 角度样板的尺寸测量。
(间按测量法) 燕尾尺寸的测量一般采用的方法有;用万能角度尺保证角度的同时,用芯棒测量保证开口尺寸的大小(也就是间接测量法)现以角度样板为例,计算.式中;M—测量读数值a—斜面的角度值A—斜面与槽口平面交点(边角)至侧面距离C—角度的深度尺寸;B=A—C²ctgaM=B+d/2²Ctag a/2+d/2E 划线钻孔的方法钻孔时工件划线,按钻孔的位置尺寸要求,划出孔位的十字中心,并打上中心冲眼。
1分析零件图纸图1双燕尾镶配件示意图该燕尾镶配件为两块毛坯,在加工时,要求以零件1为基准件配作零件2,配合间隙均要求不超过0.03mm ,零件各位置的配合尺寸如图1所示,且有一定的精度要求和相互位置度要求。
其加工过程较复杂,需要有熟练钳工基本功作为基础。
2加工工艺2.1工艺路线根据对零件图纸的分析,双燕尾镶配件加工的工艺路线如下:检查两块毛坯并修正基准→划线→钻工艺排孔→扩孔→锯削→手工加工零件1→手工配作零件2→镶配检验。
2.2关键工艺首先检查两块毛坯,修锉加工零件1和零件2上作为基准的两个边,要求加工到平、直且相互垂直,然后是划线操作,注意线条要清晰均匀,形位尺寸要准确。
在加工燕尾槽时,要先在燕尾槽的中间位置,钻1个直径为12mm 的工艺孔,然后锯去燕尾槽处多余的金属材料,最后锉削加工。
这种方法锉削工作量钳工双燕尾镶配件加工工艺探讨李海东,杨林林(江苏大学,江苏镇江212000)摘要:双燕尾镶配件的加工是钳工技术等级实践考核中经常出现的考题之一,以综合考核钳工的手工加工技能为主,在加工过程中用到了钳工的划线、钻孔、扩孔、锯割、锉削、修配、测量等基本操作,是一个难度较大的操作件。
通过合理的工艺安排,可以轻松做好双燕尾镶配件。
关键词:钳工;双燕尾镶配件;加工工艺图2零件2和零件1排孔坐标尺寸示意图Agricultural Equipment &TechnologyVol.45№.2Apr .2019第45卷第2期2019年4月农业装备技术T 21拆销子,T 22拆锁止螺母,T 23拆叶轮,如图9(b)所示。
2.3轴流泵拆卸Petri 网模型根据以上分析,建立Perti 网模型如图10所示。
其中T 01、T 02为空操作,T 6~T 14、T 16~T 20为顺序执行操作,为使图形简洁,用省略符号代替了中间环节。
图中状态库所P 30为从泵站拆除主轴之后的状态,而主轴的德轴承、下端盖、密封圈、下导轴承、导轮等依然连接在主轴上,有可能需要对这些零件进行维修更换,则可另建分支,作为一个分解任务。
钳工竞赛规则一、竞赛技术纲要制定的标准以国家《钳工国家职业标准》及集团公司统编的职业技能鉴定试题集《钳工》中规定的应具备的“中级工及以上理论知识和实际操作技能”要求及相关的知识技能作为主要命题依据。
二、命题模式及分值计算方法竞赛分理论知识考试和技能操作考试两部分,分别占30分和70分。
三、技能操作考试(70%)(一)考试内容钳工基本操作技能和专业技能,包括《标准、规范、故障处理考核》项目;设备维护保养技能,设计了《离心泵机组同轴度调校(百分表法)》或《更换法兰阀门》项目;钳工基本操作设计了《双燕尾镶配件制作》项目;工件测绘技能设计了《工件测绘》/《绘制零件图》项目;根据给定条件编制设备安装、检修工艺技术方案项目。
(二)考试项目及配分(满分分值分别为100分)项目一、机、泵维护、检修标准、工艺技术、故障处理、安装规范、验收标准等(笔答)。
项目二、离心泵机组同轴度调校(百分表法或激光对中仪)或更换法兰阀门。
项目三、双燕尾镶配件制作。
项目四、工件测绘/绘制零件图。
项目五、根据给定条件编制设备安装、检修工艺技术方案。
(三)其他说明参赛选手自备工具清单及其他:项目一:标准、规范、故障处理考核(一)竞赛技能说明该项目主要考核参赛选手对机泵炉维护、检修标准、工艺技术、故障处理、安装规范、验收标准掌握。
(二)竞赛组织方法1、由竞赛组委会负责选择与钳工相关的机泵炉维护、检修标准、工艺技术、故障处理、安装规范、验收标准。
2、竞赛场地能满足选手在统一区域内考核,建议使用30人的教室单人单桌进行笔答,达到互不干扰,环境安静。
3、试题共20题,每题1分,竞赛试题全部采用选择题和判断题形式,选择题10题和判断题10题。
4、竞赛时间初步设定为10分钟。
竞赛可与理论考试统一安排组织。
5、提前完成答卷不加分,到时停止答卷。
(四)竞赛结果评定要点:以标准答案为准,所得分数按项目所占权重进行折算。
项目二:离心泵机组同轴度调校(百分表法/激光对中仪) (一)竞赛技能说明该项目主要考核选手安装电机的准确度;百分表的使用方法;调校离心泵同轴度的操作,体现了钳工维护保养方面技能。
装配钳工实训与考级课程标准一、概述(一)课程性质本课程是五年制高等职业技术教育“机电一体化技术”专业(制造方向)的核心课程之一;是一门实践性很强的技术训练课程;是一门具体体现和实现培养目标的重要课程。
(二)课程基本理念根据专业人才培养目标及本课程在专业教学中的地位和作用;根据国家劳动和社会保障部最新颁布实施的《国家职业标准》,本着彰显五年制高等职业技术教育的特色和优势,贯彻以就业为导向,以能力为本位,以职业实践为主线,以项目化教学为主体的现代职教思想来设计本课程。
(三)课程设计思路本课程内容包括:钳工基础技术训练、装配钳工技术训练、装配钳工(中级)技能实训与考级、装配钳工(高级)技能实训与考级四个单元。
选择与职业岗位活动紧密相关的典型技能训练项目为主要内容,各教学项目包括:相关知识、项目任务、方法与步骤、检测与评价、知识拓展等,使学生通过学习训练,达到国家职业资格相应等级水平,项目内容中注重新知识、新技术、新工艺、新方法的介绍与训练,为学生的后续学习与发展打好基础。
二、课程目标1、总目标学生在初级钳工训练的基础上,通过本课程的学习,在第五学期达到中级工技能等级操作水平;在第七、第八学期强化训练后达到高级工技能等级操作水平。
经过劳动部门的考核,使学生取得装配钳工高级技能等级证书。
2、具体目标(1)培养学生良好的职业道德和职业素养,具备团队合作和人际交往的能力,能吃苦耐劳、诚实守信、精益求精、创新发展;(2)会熟练识读和理解一般复杂零件图样和装配图样以及装配文件;(3)能熟悉钳工工种的分类、工艺范围与特点,会制订加工和装配工艺规程;(4)能根据图纸技术要求正确选用工、量、刃具,会合理选择加工方式;(5)熟练掌握钳工工种的工艺分析方法和操作技能,能对相应产品质量进行检测与评价,最终达到高级技能操作水平,通过考核,取得装配钳工高级技能等级证书;(6)能对钳工常用设备进行日常维护与保养;(7)具有较强的安全生产、环境保护、节约资源的意识,会正确处理生产中出现的突发事故。
燕尾槽设计及尺寸关系高级技工考试课教案纸(首页)教法进程入门指导内容一、组织教学(3min)二、相关工艺说明:(3+3 min)集中、点名、严肃课堂纪律。
1、图形分析燕尾镶配件是具有对称性,基轴制的明配件,其配合面之间具有关联性,应该一次性完成配合精度。
它与上一次完成的工件角度样板只有单独一个角度配合,而这次燕尾镶配件的难度在原先的基础上提高了,就是工件变了双角度配合且有对称性。
2、工艺分析1)对称度的控制,应以外形基准面作测量基准,先加工一边,再加工另一边(特别注意强调),一步一步达到图纸要求的精度。
2)角度斜面尺寸控制,应借用辅助工具测量棒间接测量,得相关的计算方法。
用测量棒间接测量,得相关的计算方法M=B+d/2cota/2+d/2A(画线)=B+cota×C注:先做好底边达到精度要求,再采用间接测量来达到尺寸要求,必须正确换算和测量。
高级技工学校生产实习课教案纸(续页)有关直角三角形的计算:sin30°=1/2sin45°=2/2sin60°=3/2cos30°=3/2cos45°=2/2cos60°=1/2tan30°=3/3tan45°=1tan60°=3= 1.732cot30°=3cot45°=1cot60°=3/3高级技工学校生产实习课教案纸(续页)三、提问讨论(6+5 min)四、步骤(11+2min)(13+2min)(15+5min)给出毛坯讨论如何加工燕尾镶配件的工艺过程?(让同学们到讲台分析讲解)答:根据同学们的讲解总结分析,一步一步给同学讲解加工燕尾镶配件的工艺过程!一、检查工件的毛坯:1)用钢直尺检查外形尺寸是否有足够的加工余量;2)检查外形精度误差是否过大。
二、外形整理:(如图1.1)1)整边(平行度、垂直度、平面度)都附合图纸尺寸要求78m m×70mm×8mm ;2)形状精度是配合精度的基础。
高级技工考试课教案纸(首页)课题燕尾镶配件审阅签名授课日期2008年3月11——2008年3月11第三周星期二第一节至星期二第一节授课时数 3.5天教学目的1、掌握角度锉配和误差的检查方法。
2、掌握具有对称度要求工件的划线加工及测量方法;进一步提高锉削和锯削的技能操作。
3、了解燕尾的制作方法。
4、有关间接测量及计算的方法。
教学方法工艺讲解、动作演示、实操练习、巡回指导教学重点1、掌握角度锉配和误差的检查方法。
2、掌握具有对称度要求工件的划线加工及测量方法;进一步提高锉削和锯削的技能操作。
3、了解燕尾的制作方法。
教学难点1、掌握角度锉配和误差的检查方法。
2、了解燕尾的制作方法。
预习及课后作业课后作业:领材料根据燕尾镶配件图形内容要求进行整边划线课前准备内容图样燕尾镶配件图纸器材1、材料:A3钢、规格为78mm×70mm×8mm2、台虎钳、钻床、平板工量具1、工具:划针、锯弓、锯条、锉刀、什锦锉……2、量具:钢直尺、游标高度尺、游标卡尺、刀口直角尺、万能角度尺等3、辅助量具:测量棒¢10mm、V型铁块等。
高级技工学校生产实习课教案纸(次页)教学环节教学内容提要时间组织教学点名、严肃课堂纪律3min入门指导讲授一、图纸的熟悉及分析:1、图形2、精度要求及配分情况二、相关工艺的讲解:1、对称度的加工方法及要领;30min2、角度的尺寸计算及加工方法;3、锉配的工艺及方法三、有关基准转移和间接测量的技术讲解。
演图示及模型件的展示8min 示布置每人完成燕尾镶配件图形要求的练习件4min 课堂练习巡回指导整个工件的加工制作过程进行巡回指导14节结束指导工件完成后进行自测、自评,收缴后再总结,分析存在问题4节高级技工学校生产实习课教案纸(续页)教法进程入门指导内容一、组织教学(3min)二、相关工艺说明:(3+3 min)集中、点名、严肃课堂纪律。
1、图形分析燕尾镶配件是具有对称性,基轴制的明配件,其配合面之间具有关联性,应该一次性完成配合精度。
高级技工考试课教案纸(首页)高级技工学校生产实习课教案纸(次页)高级技工学校生产实习课教案纸(续页)一、组织教学(3min)二、相关工艺说明:(3+3 min)集中、点名、严肃课堂纪律。
1、图形分析燕尾镶配件是具有对称性,基轴制的明配件,其配合面之间具有关联性,应该一次性完成配合精度。
它与上一次完成的工件角度样板只有单独一个角度配合,而这次燕尾镶配件的难度在原先的基础上提高了,就是工件变了双角度配合且有对称性。
2、工艺分析1)对称度的控制,应以外形基准面作测量基准,先加工一边,再加工另一边(特别注意强调),一步一步达到图纸要求的精度。
2)角度斜面尺寸控制,应借用辅助工具测量棒间接测量,得相关的计算方法。
用测量棒间接测量,得相关的计算方法M=B+d/2cota/2+d/2A(画线)=B+cota×C高级技工学校生产实习课教案纸(续页)有关直角三角形的计算:sin30°=1/2sin45°=2/2sin60°=3/2cos30°=3/2cos45°=2/2cos60°=1/2tan30°=3/3tan45°=1tan60°=3= 1.732cot30°=3cot45°=1cot60°=3/3高级技工学校生产实习课教案纸(续页)教法进程入门指导内容三、提问讨论(6+5 min)四、步骤(11+2min)(13+2min)给出毛坯讨论如何加工燕尾镶配件的工艺过程?(让同学们到讲台分析讲解)答:根据同学们的讲解总结分析,一步一步给同学讲解加工燕尾镶配件的工艺过程!一、检查工件的毛坯:1)用钢直尺检查外形尺寸是否有足够的加工余量;2)检查外形精度误差是否过大。
二、外形整理:(如图1.1)1)整边(平行度、垂直度、平面度)都附合图纸尺寸要求78mm×70mm×8mm ;2)形状精度是配合精度的基础。
导轨间隙的调整为保证导轨正常工作,导轨滑动表面之间应保持适当的间隙。
间隙过小会增大摩擦力,间隙过大又会降低导向精度。
为此常采用以下办法,以获得必要的间隙。
一、采用磨、刮相应的结合面或加垫片的方法,以获得合适的间隙如图I3-31a所示燕尾导轨,为了获得合适的间隙,可在零件1与2之间加上垫片3或采取直接铲刮承导件与运动件的结合面A的办法达到。
图I3-31 燕尾导轨应用举例二、采用平镶条调整间隙平镶条为一平行六面体,其截面形状为矩形(图I3-32a)或平行四边形(图I3-32b)。
调整时,只要拧动沿镶条全长均布的几个螺钉,便能调整导轨的侧向间隙,调整后再用螺母锁紧。
平镶条制造容易,但在全长上只有几个点受力,容易变形,故常用于受力较小的导轨。
缩短螺钉间的距离加大镶条厚度(h)有利于镶条压力的均匀分布,当L/h=3~4时,镶条压力基本上均布(图I3-32c)。
图I3-32 平镶条调整导轨间隙三、采用斜镶条调整间隙斜镶条的侧面磨成斜度很小的斜面,导轨间隙是用镶条的纵向移动来调整的,为了缩短镶条长度,一般将其放在运动件上。
图I3-33 用斜镶条调整导轨间隙图I3-33a的结构简单,但螺钉凸肩与斜镶条的缺口间不可避免地存在间隙,可能使镶条产生窜动。
图I3-33b所示的结构较为完善,但轴向尺寸较长,调整也较麻烦。
图I3-33c是由斜镶条两端的螺钉进行调整,镶条的形状简单,便于制造。
图I3-33d是用斜镶条调整燕尾导轨间隙的实例。
介绍导轨间隙调整知识南京飞利达导轨公司今天介绍导轨产品的间隙调整知识:矩形导轨需要在垂直和水平两个方向上调整间隙。
在垂直方向上,一般采用下压板调整它的低面间隙,其方法有:a)刮研或配磨下压板的结合面;b)用螺钉调整镶条位置;c)改变垫片的片数或厚度;在水平方向上,常用平镶条或斜镶条调整它的侧面间隙。
圆形导轨的间隙不能调整。
为保证导轨正常工作,导轨滑动表面之间应保持适当的间隙。
间隙过小,会增加摩擦阻力;间隙过大,会降低导向精度。
高级技工考试课教案纸(首页)高级技工学校生产实习课教案纸(次页)高级技工学校生产实习课教案纸(续页)一、组织教学(3min) 二、相关工艺说明:(3+3 min) 集中、点名、严肃课堂纪律。
1、图形分析燕尾镶配件就是具有对称性,基轴制得明配件,其配合面之间具有关联性,应该一次性完成配合精度.它与上一次完成得工件角度样板只有单独一个角度配合,而这次燕尾镶配件得难度在原先得基础上提高了,就就是工件变了双角度配合且有对称性。
2、工艺分析1)对称度得控制,应以外形基准面作测量基准,先加工一边,再加工另一边(特别注意强调),一步一步达到图纸要求得精度。
2)角度斜面尺寸控制,应借用辅助工具测量棒间接测量,得相关得计算方法.用测量棒间接测量,得相关得计算方法M=B+d/2cota/2+d/2A(画线)=B+cota×C注:先做好底边达到精度要求,再采用间接测量来达到尺寸要求,必须正确换算与测量。
高级技工学校生产实习课教案纸(续页)教法进程入门指导内容有关直角三角形得计算:sin30°=1/2sin45°=/2sin60°=/2cos30°=/2cos45°=/2cos60°=1/2tan30°=/3tan45°=1tan60°== 1、732cot30°=cot45°=1cot60°=/3高级技工学校生产实习课教案纸(续页)教法进程入门指导内容三、提问讨论 (6+5 m in ) 四、步骤(11+2 min ) (13+2 min ) (15+5 min)给出毛坯讨论如何加工燕尾镶配件得工艺过程?(让同学们到讲台分析讲解) 答:根据同学们得讲解总结分析,一步一步给同学讲解加工燕尾镶配件得工艺过程!一、检查工件得毛坯:1)用钢直尺检查外形尺寸就是否有足够得加工余量;2)检查外形精度误差就是否过大。
高级技工考试课教案纸(首页)高级技工学校生产实习课教案纸(次页)高级技工学校生产实习课教案纸(续页)高级技工学校生产实习课教案纸(续页)有关直角三角形的计算:sin30°=1/2sin45°=2/2sin60°=3/2cos30°=3/2cos45°=2/2cos60°=1/2tan30°=3/3tan45°=1tan60°=3= 1.732cot30°=3cot45°=1cot60°=3/3高级技工学校生产实习课教案纸(续页)教法进程入门指导内容三、提问讨论 (6+5 min ) 四、步骤 (11+2 min ) (13+2 min )(15+5 min ) 给出毛坯讨论如何加工燕尾镶配件的工艺过程?(让同学们到讲台分析讲解) 答:根据同学们的讲解总结分析,一步一步给同学讲解加工燕尾镶配件的工艺过程!一、检查工件的毛坯: 1)用钢直尺检查外形尺寸是否有足够的加工余量;2)检查外形精度误差是否过大。
二、外形整理:(如图1.1)1)整边(平行度、垂直度、平面度)都附合图纸尺寸要求78m m ×70mm ×8mm ;2)形状精度是配合精度的基础。
三、划线:按图样划线要找出外形基准的中心(对称面)线,以外形边作基准进行上下调整找出燕尾线两边画线。
(如图1.2) 注:1)线条要清晰、细、不重复。
2)不能划错(看清尺寸要求)3)复查(可用直尺复查)。
4)用V 型块作为辅助工件找线。
高级技工学校生产实习课教案纸(续页)教法进程 入 门 指 导 内 容图 1.1图 1.2高级技工学校生产实习课教案纸(续页)三、步骤(22+1 min)(23+2 min)3、加工燕尾凸件(基准件)如下图所示:1)按划线锯削材料留有加工余量0.8~1.2mm;(如下图1.3)2)锉削燕尾槽的一角完成60°±2′及15003.0-mm尺寸,达到表面粗糙度Ra3.2 的要求. (如下图)a.如图所示,用万能角度尺或百分表测量控制加工面1与顶面平行度,并用深度尺控制尺寸15003.0-mm,或用游标卡或千分尺测量H=78-15=63(图1.5)高级技工学校生产实习课教案纸(续页)教法进程入门指导内容图 1.3万能角度尺测量1面百分表测量1面深度尺测量图 1.5高级技工学校生产实习课教案纸(续页)教法进程入门指导内容(25+5 min)b.用万能角度尺控制60°角。
燕尾槽导轨概述燕尾槽导轨是一种常见的机械连接方式,常用于木工和金属工艺品的制作。
它由两个部分组成:一个槽口和一个尾巴,它们互相配合以形成牢固的连接。
燕尾槽导轨能够提供稳固的连接,并具有很高的可靠性和耐久性。
功能和特点燕尾槽导轨可以提供许多重要功能,使其成为许多工艺领域的首选。
以下是一些其主要功能和特点:1. 稳定性:燕尾槽导轨由于其特殊的形状设计,能够提供牢固的连接。
槽口和尾巴的互相配合设计,确保了连接的稳定性,并能够承受大量的压力和重量。
2. 精确性:燕尾槽导轨的制作需要高度精确的加工工艺。
由于连接点的准确性,可以确保制作物体的精确度和稳定性。
这对于需要精准度的木工和金属工艺品制作非常重要。
3. 可变性:燕尾槽导轨的设计可以根据实际需要进行调整和修改。
这使得燕尾槽导轨非常灵活,并可以在不同的项目中使用。
无论是制作一个小的家具还是大型的建筑结构,燕尾槽导轨都能满足需求。
4. 耐久性:由于燕尾槽导轨的结构和材料选择,它们非常耐久并且不易损坏。
这使得燕尾槽导轨成为长期使用的理想选择。
应用领域燕尾槽导轨被广泛应用于以下领域:1. 木工行业:燕尾槽导轨被广泛应用于制作家具、门窗、楼梯和地板等木制品。
由于其稳固的连接和精确度,它们可以确保制作物体的稳定性和精确性。
2. 金属加工行业:燕尾槽导轨也可以在金属加工行业中使用。
它们被用于制作金属零件和结构,并能够提供可靠的连接和精确度。
3. 建筑领域:燕尾槽导轨可以用于建筑领域中的各种结构和装饰物。
它们可以用于连接木材和金属材料,确保建筑物的稳定性和可靠性。
4. 工艺品制作:由于燕尾槽导轨的设计和制作难度较高,它们也被广泛应用于制作精美的金属和木工艺品。
其精确的连接和稳定性使得制作出的工艺品具有高度的价值和质量。
制作过程燕尾槽导轨的制作过程需要一定的工具和技巧。
以下是一个基本的燕尾槽导轨制作过程的概述:1. 设计:首先需要根据实际需求设计燕尾槽导轨的尺寸和形状。
燕尾镶条配合副的结构及其工艺特点
丁文书
【期刊名称】《机械设计与制造工程》
【年(卷),期】1993(000)002
【摘要】带斜度的燕尾或燕尾槽和镶条配合副是机床滑移机构中常用的连接结构,如车床的移置床鞍与横滑板的连接,纵滑板与刀架转盘的连接,无级变速机构中轮轴机架的滑移装置等。
其优点是:滑移件的燕尾或燕尾槽斜面与镶条等斜度,可以获得等配合间隙,通过调整镶条的位置,能克服滑移配合副间隙不一,忽轻忽重的现象;其次是镶条便于更换,方便维修。
【总页数】3页(P19-21)
【作者】丁文书
【作者单位】扬州机床厂邮编225002
【正文语种】中文
【中图分类】TH122
【相关文献】
1.整体式燕尾镶配件装配工艺分析与制订 [J],
2.燕尾样板镶配件的加工与划线技巧 [J], 施振华
3.浅谈单燕尾镶配件钳工工艺过程 [J], 袁国华;高奎强
4.钳工燕尾镶配件的工艺性分析 [J], 苗玲
5.钳工双燕尾镶配件加工工艺探讨 [J], 李海东;杨林林
因版权原因,仅展示原文概要,查看原文内容请购买。
一、组织教学(5分钟)
㈠、学生按时进入实习教室,检查出勤情况。
检查学生装束是否符合安全操作规程的要求。
(工作服,安全帽,鞋等)
㈡、复习提问(3分钟)
㈢、讲授新课
二、教学目的与要求:
1、掌握燕尾件的加工步骤
2、掌握燕尾件的控制方法及测量方法
3、进一步加强尺寸的控制能力.
三、图样分析:
1、该课题是一个双燕尾凹凸锉配件,件1,件2既凸燕尾,又有凹燕尾。
尺寸寸精度要求高,位置精度要求高。
2、该课题是一个高级工课题配合外形尺寸及配合间隙要求高,难度比较大,所以一定要用尺寸链计算各配合件尺寸。
四、工艺分析:
1、检查坯料, 加工两组相互垂直的面作基准。
2、按图样划线 ,检查后再打样冲眼,钻出工艺孔及废料孔。
3、去除件1凹燕尾废料,去除件2左上60°及凹燕尾废料并粗锉至线。
4、粗精加工件1外形尺寸00.03
50-mm 和00.0361-mm 及垂直度0.02mm 。
5、去除件1左下60°的废料,粗精加工件1左下60°角燕尾高度0.03012+mm
(其燕尾高度要通过尺寸链计算获得)及60°角,其定位尺寸27mm (用芯棒测量控制尺寸来保证)。
然后再去除件1左上60°的废料,粗精加工左
上60°角控制燕尾高度尺寸0.03012+mm ,60°2角及尺寸0.03012+mm (用芯棒测量
控制尺寸来保证)
6、粗精加工件1凹燕尾控制定位尺寸23mm (用芯棒测量控制尺寸),60+2mm ,及凹燕尾高度(其燕尾高度要通过尺寸链计算获得)。
7、钻铰2-8H7mm 并控制中心距及边距。
8、粗精加工件2外形尺寸750.03±mm 和640.03±mm 尽量取中差。
9、粗精加工件2尺寸 00.03
15-mm ,凸燕尾高度0.03012+mm 及加工凸燕尾右上角60°,控制定位尺寸28+0.01mm (用芯棒测量控制尺寸),然后再加
工凸燕尾左上角60°,控制凸燕尾高度0.03012+mm 及00.03
15-mm (用芯棒测量控制尺寸)。
10、粗精加工件2凹燕尾控制定位尺寸23mm (用芯棒测量控制尺寸),
60°及凹燕尾高度(其燕尾高度要通过尺寸链计算获得)。
11、全面进行试配,通过透光法与压印法进行微量修配,保证外形配合尺寸与配合间隙。
12、全面检查各面表面粗糙度.锐边取毛刺。
五、注意事项
1、90度角一定要用清角锉刀清角干净。
2、控制尺寸公差的同时注意平行度误差越小越好。
3、加工件1,2凸凹燕尾控制好定位尺寸(用芯棒测量控制尺寸)及加工加工件1,2尺寸要注意与外形配合尺寸计算(通过尺寸链计算获得)。
六、示范指导
1、示范操作
2、分配工作任务学生分成若干小组,然后分组轮换。
七、巡回指导
1、巡回指导掌握工艺情况。
2、巡回指导学生安装情况。
3、巡回指导学生检测情况。
八、结束指导
九、小结。