01 挡土墙护坡及排水沟施工图 Model (1)
- 格式:pdf
- 大小:97.57 KB
- 文档页数:1
施工组织设计和施工方案(土方挡土墙护坡工程)目录一、施工方案 (3)二、确保工程质量的技术组织措施 (7)三、主要机具、设备和劳动力配置情况 (9)四、确保文明施工的技术组织措施及环境保护措施 (12)一、施工方案1、工程概括:本工程位于延安市境内,姚永线235号桩、永杨线330号桩、姚永线164号桩、杨姚线30号桩、川南线129高杆桩处存在安全隐患,需要对现存问题进行维修整改。
主要包括:浆砌片块石护坡、挡土墙、排水管、挡土矮墙等2、编制依据国家颁发的现行规范、规程、规则、验标、场坪及挡土墙工程施工定额、概预算编制办法。
现场踏勘调查所获得的有关资料。
我公司拥有的管理水平、劳力设备、技术能力,以及长期从事工程建设所积累的丰富的施工经验。
2、编制范围本次设计范围:回填素土及3:7灰土,,砌筑毛石挡墙,砌筑水渠,浆砌片块石护坡,浇筑混凝土护坡、片石砌筑过水面、铺设波纹管等内容。
3、编制原则严格遵守合同条款的各项要求,根据工程的特点和轻重缓急,分期分批组织施工,在工期安排上尽可能提前完成。
坚持在实事求是的基础上,力求技术先进、科学合理、经济适用的原则。
在确保工程质量标准的前提下,积极采用新技术、新工艺、新机具、新材料、新测试方法。
合理安排施工的程序和顺序,做到布局合理,突出重点,全面展开,平行流水作业、正确选用施工方法,科学组织,均衡生产。
各工序紧密衔接,避免不必要的重复工作,以保证施工连续均衡有序进行。
施工进度安排注意各分项工程间的协调和配合,并充分考虑气候、季节对施工的影响。
结合现场实际情况,因时因地制宜,尽量利用原有设施或就近已有的设施,减少各种临时工程,尽量利用当地合格资源,合理安排运输装卸与储存作业,减少物资运输周转工作量。
坚持自始至终对施工现场全过程严密监控,以科学的方法实行动态管理,并按动静结合的原则,精心进行施工场地规划布置,节约施工临时用地,不占或少占农田,不破坏植被。
严格组织、精心管理,文明施工,创标准化施工现场。
施工组织设计和施工方案(土方挡土墙护坡工程)目录一、施工方案 (3)二、工程质量技术组织措施 (11)三、主要机具、设备和劳动力配置情况 (13)一、施工方案一、工程概况根据线路巡护一队的请示,生产计划科组织工程基建科、安全环保质监科、保卫科进行了现场查看。
二、主要工作量(一)永杨线404#高杆桩附近1、人工配合机械素土回填夯实500m³,黄土外购。
2、人工开挖毛石挡墙基础18m*1.5m*3m,人工3:7灰土回填夯实18m*0.5m*3m,新建毛石挡墙基础18m*1m*3m,新建毛石挡墙18m*(2.5m+1m)/2*3m,毛石挡墙顶部浇筑C20商品混凝土18m*1m*0.1m。
3、人工开挖水渠基础20m*1.2m*1.2m,人工3:7灰土回填夯实20m*1.2m*0.3m,浆砌石水渠基础20m*1.2m*0.3m,浆砌石水渠两侧20m*(0.3m+0.3m)*0.6m,砂浆抹面20m*1.2m。
4、人工种植草籽20m*7m。
三、施工方案第一节、素土回填施工方案1、根据现场实际情况及作业条件,永杨线404#高杆桩附近、永杨线305#高杆桩附近、永杨线415#高杆桩附近、永姚线241#-242#高杆桩附近、)永姚线245#高杆桩附近、永姚线243#高杆桩附近,甲方决定采用素土回填(人工配合机械素土回填夯实),土方为外购土方,土方换填采用分层铺设分层碾压。
2、土方换填施工顺序:槽底清理→检验土料质量→素土回填→分层铺土→碾压密实→找平验收。
3、施工方法:3.1、素土施工前邀请建设单位对土的质量进行检查验收。
3.2、素土回填时,应适当控制含水率。
工地检验方法是对素土的含水量进行试验,3.3、要求达到或接近最佳含水量。
现场的检验方法是用手将素土握成团,两指亲捏即碎为宜。
如土料水分过大或不足时应晾干或洒水湿润。
3.3、基坑(槽)低表面清理干净碾压密实,不能有塑料制品、水等垃圾杂物。
3.4、分层铺素土:每层的素土虚铺厚度为 300mm。
110k V工业变电站护坡挡土墙施工方案1 10 k V工业变电站项目部20 11年5月2 6日批准:________________________ 年 ____ 月__ 日审核:________________________ 年 ____ 月__ 日编写:________________________ 年 ____ 月__ 日110kV变电站挡土墙及护坡1、工程概况挡土墙及护坡本工程东南北三面挡土墙墙长总计约137m墙体采用MU4(片石砂浆勾缝,墙体厚度0.7M—1.2M,墙体坡度1: 0.35,每隔10- 15M设一道沉降缝,缝宽2cm,内用沥青麻纱塞填。
护面墙顶部高出地面至少10cm挡土墙上部围栏,围栏采用成品栏杆,立柱及竖栏采用全钢方形立柱,墙后用原土夯实。
道两侧3M处采用挂网喷浆处理,锚杆采用© 22螺纹钢长度2500mm间距2500m材2500mm梅花型布置,墙体外部用© 6钢筋网片,钢筋网片用U型卡固定,外部喷射C25砼2、编制依据2.1 《电力建设施工质量验收及评定规程第一部分:土建工程》(DL/T5210.1—2005)2.2 《电力建设施工及验收技术规范建筑工程篇》(建筑工程篇)(SDJ69- 87) 2.3《建筑地基基础工程施工质量验收规范》(GB50202- 2002)2.4 《建筑地基处理技术规范》(JG79—2002J220 —2002)3、作业前的条件和准备3.1技术准备3.1.1组织施工技术人员和主要施工人员审核图纸,会同业主和监理单位进行图纸会审3.1.2施工技术人员编制预算制定施工方案3.1.3提出施工材料预算及委托加工订货3.1.4进行验品评项目划分和业内资料准备3.1.5做好开工前的技术交底和培训工作3.1.6对施工区域进行规划设计,力求科学合理,并制定可行的文明工地管理办法3.2现场准备3.2.1做好测量定位工作3.2.2组织施工机具机械模板钢材棺材的进场和检查维修维护清点工作3.2.3组织材料进场及先期的加工配置工作324对施工平面进行合理的布置做好加工机具的安装325做好施工前的水电路接通铺设工作实行三通一平3.3 材料和设备根据施工图提供材料计划统一报给供应部门由其统一采购机械设备按照施工工程量的需要配备适当的机械机械必须在材料进场前安装调试完成3.4 安全器具施工必备安保用品如安全帽安全带3.5 其它施工完成部分在安装作业前挂警示语牌各专业利用土建结构时办理利用品作业申请单,报项目部负责人审批4. 施工方法及流程安排4.1开挖总体方案本工程护墙基础和围墙基础一起开挖护墙基础开挖深度0.00以下50cm地基为1:5斜坡坡向护墙内侧4.2 施工方法及要求4.2.1挡土墙及护坡施工挡土墙施工填方区基础必须进行强夯处理强夯方法与围墙强夯处理相同。
第五章路基工程路基工程施工质量验收划分为单位工程、分部工程、分项工程和检验批。
单位工程应按一个完整工程或一个相当规模的施工范围划分,并按下列原则确定:(1)一个区间或一个车站的正线路基为一个单位工程。
(2)一个施工单位担负的路基施工长度为一个单位工程。
(3)特别大型的支挡结构可作为一个单位工程。
分部工程应按一个完整部位或主要结构及施工阶段划分。
分项工程应按工种、工序、材料、施工工艺等划分。
检验批可根据施工及质量控制和验收需要按施工段或部位等划分。
路基工程的分部工程、分项工程和检验批的划分及编号应符合下列各表的规定:路基分部工程、分项工程和检验批的划分及编号(路基单位工程编号0201)原地面平整、碾压检验批质量验收记录表说明主控项目1.设计不作特别处理的地基,经平整、夯压后,其表面应无杂草、树根、腐殖土。
地下水出露处的处理应满足设计要求。
检验数量:施工单位、监理单位全部检查。
检验方法: 观察、核对。
2.当路堤高度小于2.5 m 时,其地基压实质量(除块石类混合料外)应采用双指标控制,压实质量标准应符合下表的规定;不同种类地基土的控制指标应符合下列规定:(1)细粒土和黏砂土,应采用压实系数和地基系数;(2)砂类土(黏砂土除外)应采用相对密度和地基系数;(3)砾石类土和碎石类土,应采用孔隙率和地基系数;(4)块石类混合料,应采用地基系数。
路基基床的压实标准注:① K h 为重型击实试验的压实系数。
② K30 为30 cm 直径荷载板试验得出的地基系数,一般取下沉量为0.125 cm 时的荷载强度。
检验数量:施工单位每100 m 等间距检验 4 个点。
监理单位每200 m 见证检验 2 个点。
检验方法:根据地基土的种类,按下表规定的方法检验。
压实质量的检测方法一般项目1.地面横坡陡于1∶5 时,应按设计在原地面开挖台阶,台阶宽度不小于1 m。
检验数量:施工单位检验9 个点。
检验方法:尺量,水准测量。
换填地基检验批质量验收记录表说明主控项目1.换填所用的填料种类、质量、使用范围应符合设计要求。
****生产线技术改造项目(挡土墙及边坡防护)施案2011年1月13日目录1、工程概况简述—第1页2、总体施工顺序及方案…一第1页3、施工总体平面布置第2页4、挡土墙质量控制第3页5、墙背开挖边坡防护质量控制第7页6、浆砌片石骨架护坡及铺草皮质量控制第7页7、排水沟施工质量控制第8页8、栏杆安装质量控制 (11)9、质量保证措施第11页10、安全保证措施第13页11、文明施工,加强环保措施第15页12、主要施工设备供应计划—一.第17页13、投入本工程人员计划第19页14、施工进度计划及横道画―.第19页15、施工平面布置图第22页一、工程概况简述该工程为坡面防护工程,全长约513。
89m,工作内容为:浆砌挡土墙、人字型浆砌片石骨架内铺草皮护坡、栏杆安装。
经现场实测护坡坡率大部分接近1:1.25,且联合工房施工段临时排水沟底与设计挡土墙高差不足0。
6m,水沟长时间泡水,对挡土墙的基础持力层造成不利影响.鉴于此,施工方会同监理、设计及建设单位,护坡坡率按1:1。
25控制,挡土墙采用04J008,页次53,型号ZT4。
详见变更设计洽商单。
二、总体施工顺序及方案坡面铺设柔性物质(塑料薄膜)护坡一坡顶排水沟施工一挡土墙基础开挖一挡墙基础开挖边坡防护一浆砌挡土墙一墙背回填一人工修整边坡一浆砌片石骨架护坡一铺草皮一栏杆安装各工序内容如下:1、为了防止雨水冲刷坡面,首先在坡面铺设柔性物质,如塑料薄膜等。
2、在坡顶距栏杆1。
0m处增设一条0.6mX0.6m浆砌片石排水沟(图集93J007—7,03-错误!第6页),防止坡顶面的雨水流入坡面,造成边坡大面积冲刷、塌方。
(详见附图)3、挡土墙基础开挖前,先将山泉眼的水及原水沟的水导出排放。
4、根据实际地形及现有边坡情况,挡墙开挖坡率只能定为1:0.50,墙背处的土质为松散的回填土,为了防止塌方,确保挡墙施工作业人员的安全及整体边坡的稳定,挡墙基础分段开挖完后,墙背处开挖边坡的防护,应及时采用挂钢丝网(网格间距0.2m)并用5cm厚M10水泥砂浆抹面,保证整体边坡的稳定。
肇庆市景丰联围西江一期、青歧涌一期应急除险加固工程第二标混凝土工程施工方案工程地点:广东省肇庆市鼎湖区施工单位:广东水电二局股份有限公司合同编号:JFLW1-XJ-01项目经理:曾令安技术负责:武海峰广东水电二局股份有限公司景丰联围西江一期工程项目经理部编写:年月日校核:年月日审核:年月日批准:年月日目录1. 概述 (1)2. 主要施工方法 (1)2.1. 挡土墙施工 (1)2.2. 护坡及压顶施工 (6)2.3. 防浪墙施工 (8)3. 施工进度计划 (11)3.1. 施工进度计划控制 (11)3.2. 施工进度计划安排 (12)4. 机械设备配置 (12)5. 人力资源安排 (13)6. 混凝土结构质量保证措施 (13)6.1. 试验、检验措施 (13)6.2. 混凝土外观质量保证措施 (14)6.3. 混凝土质量保证措施 (15)6.4. 雨天施工质量特别保证措施 (16)6.5. 质量检查与验收 (17)7. 施工安全保证措施 (19)7.1. 安全管理措施 (19)7.2. 用电安全措施 (20)7.3. 现场作业安全措施 (20)附图:《混凝土工程施工进度计划》。
1.概述本标段混凝土工程主要包括混凝土挡墙、混凝土压顶、混凝土护坡,混凝土标号为C20。
2.主要施工方法2.1.挡土墙施工本标段挡土墙施工为食堂-单身公寓楼段,副井-主井段。
原则上15m设一条伸缩缝,伸缩缝厚度2cm,混凝土标号C20,坍落度6~8cm,二级配。
2.1.1.施工程序挡土墙施工程序框图2.1.2.测量放样采用全站仪进行放样,将挡土墙的开挖边线用白灰粉标示于开挖面上,定出挡土墙开挖位置。
2.1.3.基础开挖挡土墙的础基开挖宽度为1.2m,开挖宽度小,属基槽开挖,须沿挡土墙轴线倒退法进行开挖,鉴于施工的挡土墙基本都位于现大堤的坡脚处,反铲挖掘机开挖就位的工作面一部分位于斜坡上,不便于用反铲挖掘机用倒退法进行开挖,须将挡土墙的开挖工作面进行平整。
各类挡土墙CAD详图
以下是一个关于各类挡土墙CAD详图的文档模板范本,供参考使用:
1. 引言
1.1 背景
1.2 目的
2. 挡土墙概述
2.1 挡土墙定义
2.2 挡土墙的作用
2.3 挡土墙的分类
3. 挡土墙设计要求
3.1 土壤力分析
3.2 挡土墙稳定性分析
3.3 基础设计
3.4 挡土墙防水设计
4. 挡土墙材料选择
4.1 土壤选择
4.2 混凝土挡土墙
4.3 钢筋混凝土挡土墙
4.4 块石挡土墙
5. 挡土墙详图绘制
5.1 CAD绘图软件介绍
5.2 绘制CAD挡土墙示意图
5.3 标注图纸尺寸和比例
6. 挡土墙施工要点
6.1 基坑开挖
6.2 土方填筑
6.3 墙体施工
6.4 排水系统
7. 挡土墙维护与检测
7.1 日常维护
7.2 挡土墙检测方法
8. 附件
本文档所涉及附件如下:[列出相关附件]
9. 法律名词及注释
本文档所涉及的法律名词及注释:[列出相关名词及注释]希翼以上内容能够满足您的需求。
生态护坡的定义生态护坡,是综合工程力学、土壤学、生态学和植物学等学科的基本知识对斜坡或边坡进行支护,形成由植物或工程和植物构成的综合护坡系统的护坡技术。
开挖边坡形成此后,经过栽种植物,利用植物与岩、土体的互相作用 (根系锚固作用 )对边坡表层进行防备、加固,使之既能知足对边坡表层稳固的要求,又能恢复被损坏的自然生态环境的护坡方式,是一种有效的护坡、固坡手段。
生态护坡的功能(1)、护坡功能:植被有深根锚固、浅根加筋的作用;(2)、防备水土流失:能降低坡体孔隙水压力、截留降雨、削弱溅蚀、控制土粒流失 ;(3)、改良环境功能:植被能恢复被损坏的生态环境,促使有机污染物的降解,净化空气,调理小天气。
生态护坡的形式常用的生态护坡形式有植物型护坡、土工资料复合栽种基护坡、生态石笼护坡、植被型生态混凝土护坡、生态袋护坡、多孔构造护坡、自嵌式挡土墙护坡等。
(1)、植物型护坡:经过在岸坡栽种植被 ,利用植物发达根系的力学效应 (深根锚固和浅根加筋 ) 和水文效应 (降低孔压、削弱溅蚀和控制径流 )进行护坡固土、防备水土流失 ,在知足生态环境的需要的同时进行景观造景。
长处:主要应用于水流条件缓和的中小河流和湖泊港湾处。
固土植物一般应选择耐酸碱性、耐高温干旱 ,同时应拥有根系发达、生长快、绿期长、成活率高、价钱经济、管理粗放、抗病虫害的特色。
弊端:抗冲洗能力较弱。
(2)、土工资料复合栽种基护坡:此类护坡分为 3 种。
a.土工网垫固土栽种基护坡:主要由网垫、栽种土和草籽 3 部分构成。
长处: 1.固土成效好 ;2.抗冲洗能力强 ;3.经济环保。
弊端:1.抗暴雨冲洗能力仍旧较弱 ,取决于植物的生长状况 ;2.在水位线邻近及以下不合用该技术。
b.土工单元固土栽种基护坡:土工单元栽种基 ,是利用聚丙烯等片状资料经热熔粘连成蜂窝状的网片 ,在蜂窝状单元中填土植草 ,起到固土护坡作用。
长处: 1.资料轻、耐磨损、抗老化、韧性好、抗冲击力强、运输方便。
挡土墙各种案例及做法.最全简介、步入老板最高境界:工作清闲活少干、钱多事少离家近、位高权重责任轻、赚钱赚到手抽筋。
一、挡土墙简介1、定义挡土墙是指支承路基填土或山坡土体、防止填土或土体变形失稳的构造物。
2、各部分的名称在挡土墙横断面中,与被支承土体直接接触的部位称为墙背;与墙背相对的临空的部位称为墙面;与地基直接接触的部位称为基底;与基底相对的、墙的顶面称为墙顶;基底的前端称为墙趾;基底的后端称为墙踵。
3、应用范围路基在遇到下列情况时可考虑修建挡土墙:1)陡坡地段;2)为避免大量挖方及降低边坡高度的路堑地段;3)可能产生塌方、滑坡的不良地质地段;4)高填方地段;点这免费下载施工技术资料5)水流冲刷严重或长期受水浸泡的沿河路基地段;6)为节约用地、减少拆迁或者少占用农田的地段;7)为保护重要建筑物、生态环境或其他特殊需要的地段。
二、挡土墙的分类1、按挡土墙的位置划分1)路堑挡土墙:设置在路堑边坡底部,主要用于支撑开挖后不能自行稳定的山坡,同时可减少挖方数量,降低挖方边坡的高度。
2)路肩挡土墙:设置在路肩部位,墙顶是路肩的组成部分,其用途与路堤墙相同。
它还可以保护临近路线既有的重要建筑物。
3)路堤挡土墙:设置在高填土路提或陡坡路堤的下方,可以防止路堤边坡或路堤沿基底滑动,同时可以收缩路堤坡脚,减少填方数量,减少拆迁和占地面积。
4)山坡挡土墙:设置在路堑或路堤上方,用于支撑山坡上可能坍滑的覆盖层、破碎岩层或山体滑坡。
5)浸水挡土墙:沿河路堤,在傍水的一侧设置挡土墙,可以防止水流对路基的冲刷和侵蚀,也是减少压缩河床的有效措施。
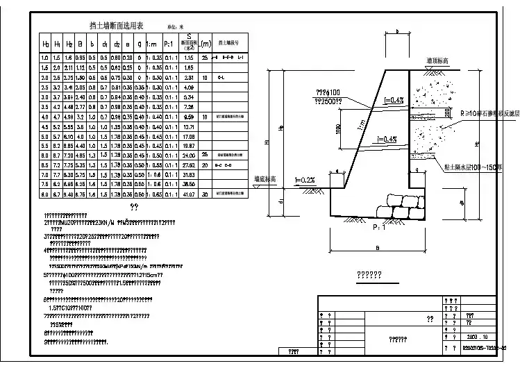
2、按照挡土墙的结构形式划分1)重力式挡土墙:以挡土墙自身重力来维持挡土墙在土压力作用下的稳定,是我国目前常用的一种挡土墙。
常见的重力式挡土墙高度一般在5~6 m以下,大多采用结构简单的梯形截面形式,对于超高重力式挡土墙(一般指6m以上的挡墙)即有半重力式、衡重力式等多种形式。
重力式挡土墙可根据其墙背的坡度分为以下几种类型:重力式挡土墙和悬臂式挡土墙的示意图:2)薄壁式挡土墙:包括悬臂式挡土墙和扶壁式挡土墙两种。
旱公共厕所
材料及做法说明:
1、本工程砌体全部使用MU10粘土烧结砖,M5水泥砂浆砌筑。
2、本工程基础垫层混凝土强度等级为C15,独立基础、柱、梁、
板除图纸有特殊说明外,其余强度等级均为C25。
3、本工程楼面板、蹲台盖板全部采用预制板,内配A10@100的双
层双向HPB235级钢筋。
4、蹲台隔墙采用MU10粘土烧结砖,M5水泥砂浆砌筑,厚度为
120mm,高度900mm。
5、KL2 (300*500)长1.5米,配筋同KL1。
6、粪池内外墙体及底板粉刷20厚1:2.5水泥砂浆,内参防水粉。
7、本工程外墙及檐口涂料均为普通防水涂料,颜色按设计图纸要
求。
8、本工程地面、蹲台铺设500*500的水磨石,墙面、隔断满贴
450*300白色瓷砖。
具体做法详见05J1地14、05J1 楼7、05J1 内墙11。
9、顶棚喷刷普通白色涂料,具体做法详见05J1 顶4。
10、本工程小便池采用MU10粘土烧结砖,M5水泥砂浆砌筑,内
外、地面粘贴白色瓷砖并坡向地漏。
11、屋面防水采用一层4MM厚SBS卷材防水。
12、雨水管及小便池排水管均采用110PVC管,小便池排水管总长
为2200mm。
13、本工程门窗为铝合金门窗,居中安装,其中C-1 500*600(高*
宽)窗有3樘、C-2 500*500(高*宽)无玻璃带纱窗有3樘,门M-1 900*2100(宽*高)有2樘。
12、本工程散水为混凝土散水,宽度为1000mm,具体做法详见05J1-3散1。