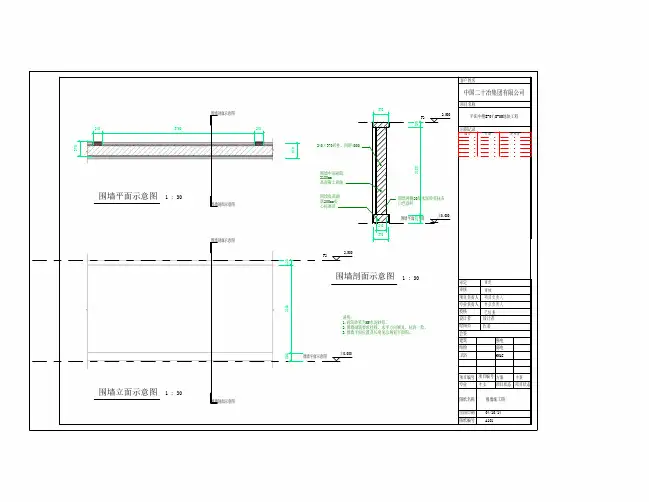
挡土墙1:25800mm宽级配砾石滤水层一道,每隔15米设置伸缩缝一道。6. 挡土墙墙背回填土必须采用透水性好的填料,在挡墙底部沿挡墙设置800mm厚,4. 垫层采用C10混凝土,基础为C25混凝土。5. 基础底部钢筋的混凝土保护层为40mm,板的保护层为25mm.3. 挡土墙基础应置于粉质粘土层承载力特征值fak%%147160Kpa.2. 本工程地基基础设计等级为丙级。1. 本工程基础设计依据甲方提供的《岩土工程勘察报告》。挡土墙设计说明:超挖部分应采用C10毛石混凝土垫至设计标高.钢筋采用HPB235级钢筋(%%130), HRB335级钢筋(%%131),HRB400级钢筋(%%132).基础埋入持力层深度不应少于1000mm.专业实名签名日期挡土墙排水孔D=120@1200750%%13112@200%%13218@150%%1308@200%%1308@500%%1308@200%%13218@180%%13218@200%%13112@200%%13112@200%%1308@200%%1308@200%%13218@1507504505007002%%132184%%1311250050040040045015020030030010030030010010010020060005400滤水层墙背填土采用透水性好的土墙背填土采用透水性好的土墙背填土采用透水性好的土7. 墙背两边必须对称的回填土,并分层夯实。待墙后填土00%%1308@200300200400Z1Z1Z1的设置间距根据现场实际情况确定360014002200350010010010030030014003003003001200300600800200400200150北京探索者软件技术有限公司工程名称子项设计单位所别结构所专业负责人所长设计号审定设计主持人图号审核工种负责人比例校核设计日期专业实名签名日期700500400300400400L/2L/2L400400400400400500L/2L/2L150300240100300250100350300~6002401001003000