各种配电箱接线系统图
- 格式:docx
- 大小:20.40 KB
- 文档页数:3
第三章配电系统的接线方式第一节放射式接线一、放射式接线1.定义:从电源点用专用开关及专用线路直接送到用户或设备的受电端,沿线没有其他负荷分支的接线称为放射式接线,也称专用线供电。
2.使用场合:用电设备容量大、负荷性质重要、潮湿及腐蚀性环境的场所供电。
3.分类:单电源单回路放射式、双回路放射式接线,二、单电源单回路放射式1.接线如图3-1所示,该接线的电源由总降压变电所的6~10kV母线上引出一回线路直接向负荷点或用电设备供电,沿线没有其他负荷,受电端之间无电的联系。
1-低压配电屏 2-主配电箱 3-分配电箱图3-1 单电源单回路放射式2.特点(1)当出线线路发生故障,线路之间互不影响,供电可靠性高;(2)线路简单易于操作维护,保护装置简单,易于实现自动化;(3)开关设备数量较多,线路有色金属消耗量大,初次投资较大;(4)当电源或母线出现故障或检修时,将导致所有出线停电;(5)当某条出线发生故障、变压器故障及开关设备停电检修时,该线路负荷停电。
3.适用范围此接线方式适用于可靠性要求不高的二级、三级负荷。
三、单电源双回路放射式1.接线如图3-2所示,同单电源单回路放射式接线相比,该接线采用了对一个负荷点或用电设备使用两条专用线路供电的方式,即线路备用方式。
图3-2 单电源双回路放射式2.特点(1)由于每个负荷点或用电设备采用两条线路供电,当一条线路故障或开关检修时,另一条备用线路可以投入运行;(2)由于采用备用方式,要求在选择这两条线路及其开关设备应相同,增大了投资量;(3)当电源或母线出现故障或检修时,仍会导致所有负荷停电;(4)同单电源单回路放射式相比提高了线路供电可靠性。
3.适用范围此接线方式适用于二级、三级负荷。
四、双电源双回路放射式(双电源双回路交叉放射式)1.接线两条放射式线路连接在不同电源的母线上,其实质是两个单电源单回路放射的交叉组合。
图3-3 双电源双回路的放射式2.特点(1)采用此接线最大的好处是每个负荷点或用电设备有两个独立的一次电源供电;(2)当正常电源故障时,经过手动或自动的电源切换装置,可以简单迅速地切换到备用电源上,保证不停电;(3)这种配电形式一次侧为双路电源,要求电源的两组开关设备应有可靠的联(互)锁装置,以免误操作;(4)当一线路故障时,全部负载应当由另一线路供电,所以要求每一线路应有足够的容量能够负担全部负载;(5)由于双电源、双线路和双开关设备,供电可靠性较高,但初次投资也较高,开关操作复杂,维护比较困难。
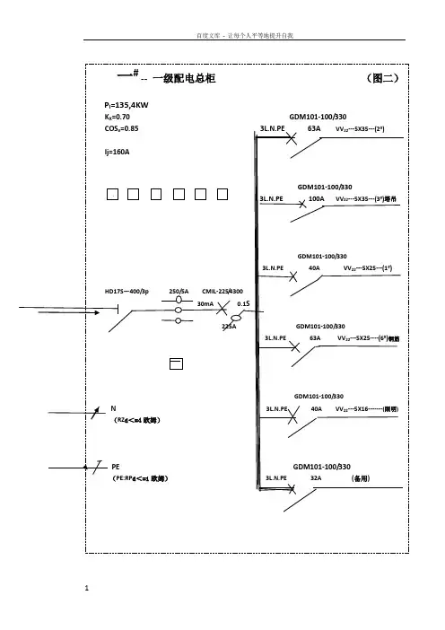
1)总配电箱系统接线图:
某总配电箱电器配置接线图(1)
DK、1DK、2DK――电源隔离开关;1KK、2KK――空气开关;RCD――漏电断路器
某总配电箱电器配置接线图(2)
2)分配电箱系统接线图:
某分配电箱电器配置接线图
(19)漏电保护器的测试内容分两项:第一项是测试联锁机构的灵敏度,测试方法为按动漏电保护器的试验按钮,带负荷分、合开关三次,均不应有误动作;第二项是测试特性参数,测试内容为漏电动作电流、漏电不动作电流和分断时间,其测试方法应用专用的漏电保护器测试仪进行。
施工现场可采用透明壳的漏电断路器,看得见分断点,且既有漏电保护功能、又有空气开关的功能(过
流、过压、短路)。
透明壳漏电断路器
使用透明壳漏电断路器的分配电箱。
三相四线供电时局部TN-S接零保护系统零线N、PE引出示意图(引出线形成三相五线制TN-S接零保护系统)HR5-400/30裸母线DZ20L-400Z3300 YJI V^ZdOJFPO-TCYJ-01总配电箱系统接线图注:本箱由终端型箱变引入正面背面PE □TTC接地极YJ-02总配电箱系统接线图注:本箱由环网型箱变引入EJ-01分配电箱系统接线图注:本箱由环网型箱变引入EJ-02分配电箱系统接线图注:该箱由EJ-09号箱下线引入DZ20L-250/430-YJLV-3*25+2*16-WS3L30mA 0.1SPEEJ-03分配电箱系统接线图注:本箱由EJ-03号箱引入CDB2-125-BVR2*16 - WL1L.N 125A _______CDB2-125-BVR2*16-WL2L.N 125ACDB2-125-BVR2*16-WL3L.N 125ACDB2-125-BVR3*16-WL4CDB2-125-BVR3*16-WL5125ACDB2-125-BVR3*16-WL63L 125ACDB2-125-BVR3*16-WL7CDB2-125-BVR3*16-WI83L 125ACDB2-125-BVR3*16-WL93L250APE-端子排EJ-04分配电箱系统接线图注:本箱从EJ-09号电箱引入YJLV-3*240+2*120-FPC75-DB接地极3L125A计量表YJLV-3*240+2*120-FPC75-DB 裸母线N 母线加工棚 生活区一 生活区NPE 接地极EJ-05分配电箱系统接线图PE PE- 端子排Q (D C C O C) C T1 EJ-06分配电箱系统接线图注:本箱总线由EJ-04号箱引入L1.L2.L3 CBM8-100/330YJV-3*4+1*2.5-MT20DZ15LE-1004901-BVR-3*4-MT253L100AL1.L2.L3 CBM8-100/330YJV-3*4+1*2.5-MT20DZ15LE-1004901-E VR-3*4-MT25 3L100A3LL1.L2.L3 CBM8-100/330YJV-3*4+1*2.5-MT20DZ15LE-1004901-BVR-3*4-MT253L100AL1.L2.L3 CBM8-100/330YJV-3*4+1*2.5-MT20DZ15LE-1004901-BVR-3*4-MT253L100AL1.L2.L3 CBM8-100/330YJV-3*4+1*2.5-MT20DZ15LE-1004901-BVR-3*4-MT25 3L100A3LL1.L2.L3 CBM8-100/330YJV-3*4+1*2.5-MT20DZ15LE-1004901-BVR-3*4-MT253L100AL1.L2.L3 CBM8-100/330YJV-3*4+1*2.5-MT20DZ15LE-1004901-BVR-3*4-MT253L100AL1.L2.L3 CBM8-100/330YJV-3*4+1*2.5-MT20DZ15LE-1004901-BVR-3*4-MT253L100AL1.L2.L3 CBM8-100/330YJV-3*4+1*2.5-MT20DZ15LE-1004901-BVR-3*4-MT25 3L100A3LL1.L2.L3 CBM8-100/330YJV-3*4+1*2.5-MT20DZ15LE-1004901-E VR-3*4-MT253L100AL1.L2.L3 CBM8-100/330YJV-3*4+1*2.5-MT20DZ15LE-1004901-BVR-3*4-MT253L100AL1.L2.L3 CBM8-100/330YJV-3*4+1*2.5-MT20 DZ15LE-1004901-BVR-3*4-MT253L100A。
施工现场临时用电各级配电箱配电系统图集团标准化工作小组 [Q8QX9QT-X8QQB8Q8-NQ8QJ8-M8QMN]施工现场临时用电各级配电箱配电系统图漏电动作电流100mA/D220L-220/4300进线接A支箱Ⅰ级箱(400A)N NPE接B支箱Ⅰ级箱(630A)接C支箱Ⅰ级箱(630A)接D支箱Ⅰ级箱(400A)HK60/380PZ NM-100/3300 8#塔吊(120A)HK60/380PZ NM-100/3300 8#施工电梯(90A)HK30/380NM-100/3300 4#、8#钢筋加工区(40A)HK30/220NM-100/3300 生活区用电(90A)HK60/380NM-100/3300 8#楼层及地下室(30A) HK30/380备用(30A)A一级箱HK60/380PZ NM-100/3300 4#塔吊(90A)HK60/380PZ NM-100/3300 4#施工电梯(90A)HK30/380NM-100/3300 3#施工电梯(90A)HK30/380NM-100/3300 钢筋加工区(60A)HK60/380NM-100/3300 3#楼层及地下室(60A) HK30/380NM-100/3300 4#楼层及地下室(60A) HK30∕380NM-100∕3300 2#楼层及地下室(60A)HK30∕380NM-100∕3300 备用(60A)HK30∕380NM-100∕3300 备用(60A)B一级箱HK60/380PZ NM-100/3300 1#塔吊(90A)HK60/380PZ NM-100/3300 1#施工电梯(90A)HK30/380NM-100/3300 2#施工电梯(90A)HK30/380NM-100/3300 2#塔吊(90A)HK60/380NM-100/3300 5#塔吊(90A)HK30/380NM-100/3300 5#施工电梯(90A)HK30∕380NM-100∕3300 1#楼层及地下室(30A)HK30∕380NM-100∕3300 备用(30A)HK30∕380NM-100∕C一级箱HK60/380PZ NM-100/3300 7#塔吊(90A)HK60/380PZ NM-100/3300 7#施工电梯(90) HK30/380NM-100/3300 6#施工电梯(90) HK30/380NM-100/3300 5#楼层及地下室(30) HK60/380NM-100/3300 6#楼层及地下室(50) HK30/380NM-100/3300 7#楼层及地下室(50)D一级箱。