各种配电箱接线系统图
- 格式:docx
- 大小:25.82 KB
- 文档页数:4
第三章配电系统的接线方式第一节放射式接线一、放射式接线1.定义:从电源点用专用开关及专用线路直接送到用户或设备的受电端,沿线没有其他负荷分支的接线称为放射式接线,也称专用线供电。
2.使用场合:用电设备容量大、负荷性质重要、潮湿及腐蚀性环境的场所供电。
3.分类:单电源单回路放射式、双回路放射式接线,二、单电源单回路放射式1.接线如图3-1所示,该接线的电源由总降压变电所的6~10kV母线上引出一回线路直接向负荷点或用电设备供电,沿线没有其他负荷,受电端之间无电的联系。
1-低压配电屏 2-主配电箱 3-分配电箱图3-1 单电源单回路放射式2.特点(1)当出线线路发生故障,线路之间互不影响,供电可靠性高;(2)线路简单易于操作维护,保护装置简单,易于实现自动化;(3)开关设备数量较多,线路有色金属消耗量大,初次投资较大;(4)当电源或母线出现故障或检修时,将导致所有出线停电;(5)当某条出线发生故障、变压器故障及开关设备停电检修时,该线路负荷停电。
3.适用范围此接线方式适用于可靠性要求不高的二级、三级负荷。
三、单电源双回路放射式1.接线如图3-2所示,同单电源单回路放射式接线相比,该接线采用了对一个负荷点或用电设备使用两条专用线路供电的方式,即线路备用方式。
图3-2 单电源双回路放射式2.特点(1)由于每个负荷点或用电设备采用两条线路供电,当一条线路故障或开关检修时,另一条备用线路可以投入运行;(2)由于采用备用方式,要求在选择这两条线路及其开关设备应相同,增大了投资量;(3)当电源或母线出现故障或检修时,仍会导致所有负荷停电;(4)同单电源单回路放射式相比提高了线路供电可靠性。
3.适用范围此接线方式适用于二级、三级负荷。
四、双电源双回路放射式(双电源双回路交叉放射式)1.接线两条放射式线路连接在不同电源的母线上,其实质是两个单电源单回路放射的交叉组合。
图3-3 双电源双回路的放射式2.特点(1)采用此接线最大的好处是每个负荷点或用电设备有两个独立的一次电源供电;(2)当正常电源故障时,经过手动或自动的电源切换装置,可以简单迅速地切换到备用电源上,保证不停电;(3)这种配电形式一次侧为双路电源,要求电源的两组开关设备应有可靠的联(互)锁装置,以免误操作;(4)当一线路故障时,全部负载应当由另一线路供电,所以要求每一线路应有足够的容量能够负担全部负载;(5)由于双电源、双线路和双开关设备,供电可靠性较高,但初次投资也较高,开关操作复杂,维护比较困难。
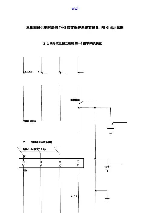
三相四线供电时局部TN-S接零保护系统零线N、PE引出示意图(引出线形成三相五线制TN—S接零保护系统)L1L2L3 N接地极L50X5L1 L2 L3 N PE 接地极L50X5YJ-01 总配电箱系统接线图注:本箱由终端型箱变引入正面HR5-630/30YV-3*240+2*120-TC裸母线NPE-端子排PE 接地极背面裸母线HR5-400/30裸母线N- DZ20L-400/3300 YJLV-3*240-2*120-TCDZ20L-400/43003LA 3LB BLV3*185+1*120-TCPE-端子排NPE 接地极YJ-02 总配电箱系统接线图注:本箱由环网型箱变引入YJLV-3*240HR5-630/30HR5-400/30裸母线裸母线N-端子排N3LPE-端子排接地极EJ-01 分配电箱系统接线图注:本箱由环网型箱变引入YJLV-3*240+2*120-TC3HZ1-630/330-BLV-3*185-TCN-端子排端子排3LN PE 接地极EJ-02 分配电箱系统接线图注:该箱由EJ-09号箱下线引入3LDZ20L-630/430BLV-3*185+2*120-WS大里程供电3LPE-端子排N 小里程PE接地极EJ-03 分配电箱系统接线图注:本箱由EJ-03号箱引入CDB2-125-BVR2*16 –WL1 L.N 125ACDB2-125-BVR2*16-WL2125ACDB2-125-BVR2*16-WL3125ACDB2-125-BVR3*16-WL4CDB2-125-BVR3*16-WL5DZ20L-250/430-YJLV-3*25+2*16-WS 3L 125A 3L250AN30mA 0.1SCDB2-125-BVR3*16-WL63L 125APECDB2-125-BVR3*16-WL73L 125APE-端子排CDB2-125-BVR3*16-WL83L 125ACDB2-125-BVR3*16-WL93L 125A接地极EJ-04 分配电箱系统接线图注:本箱从EJ-09 号电箱引入加工棚生活区一生活区二N—端子排EJ-05 分配电箱系统接线图注:本电箱为加工棚各机具开关箱分配箱,由EJ-04号箱引入BLV3*185BLV-3*185+2*120-FPC75-TC2-CDM10-100/3300 同2 同2 同2 同2 同2N-端子排NEJ-06 分配电箱系统接线图注:本箱总线由EJ-04号箱引入同1 同1 同1 同1PE-端子排SJ-01开关箱系统接线图N100A N3LN100AN3L3L NSJ-06开关箱系统接线图SJ-07开关箱系统接线图100ANDZ15LE-100/4901-BVR-3*4-MT253L3LNSJ-08开关箱系统接线图100A3L 3LNSJ-09开关箱系统接线图SJ-010开关箱系统接线图NSJ-011开关箱系统接线图100AN3L3LNSJ-012开关箱系统接线图SJ-014开关箱系统接线图NSJ-015开关箱系统接线图100AN3L3LNSJ-016开关箱系统接线图100AN3L3L N。
1000A/4P630A/4P800A/4P800A/4P1000A/4P630A/4P800A/4P800A/4P 1#切换柜A三楼电力室ATS 800A/4P1#UPS-A 市电旁路输入800A/3P智能电力电量仪1#UPS-A 市电主路输入800A/3P1#UPS-A 市电800A/3P外置维修旁路输入机房配电柜负一楼配电室ZA-YJVR,2 *(4x240+1x120)A 路 1# UPS 400KVA 逆变器维修旁路自动旁路UPS-A 输出AC380V/50HZ-+电池12P-H11\H136P-H5\H7滤波装置UPS-A 市电旁路输入UPS-A 市电主路输入静态开关整流器监控模块电池开关箱1电池架1-2电池开关+N -ZA-RVV,2 *(4x240+1x120)ZA-RVV,2 *(4x240+1x120)B 路 2# UPS 400KVA逆变器维修旁路自动旁路UPS-B 输出AC380V/50HZ-+电池12P-H11\H136P-H5\H7滤波装置UPS-B 市电旁路输入UPS-B 市电主路输入静态开关整流器监控模块电池开关箱2电池架3-4电池开关+N -ZA-RVV,2 *(4x240+1x120)ZA-RVV,2 *(4x240+1x120)2#切换柜B三楼电力室ATS 800A/4P2#UPS-B 市电旁路输入800A/3P智能电力电量仪2#UPS-B 市电主路输入800A/3P2#UPS-B 市电800A/3P外置维修旁路输入C 路 3# UPS 300KVA逆变器维修旁路自动旁路UPS-C 输出AC380V/50HZ-+电池12P-H11\H136P-H5\H7滤波装置UPS-C 市电旁路输入UPS-C 市电主路输入静态开关整流器监控模块电池开关箱3电池架1-2电池开关+N -ZA-RVV,2 *(4x185+1x95)ATS 630A/4P3#UPS-C 市电旁路输入630A/3P智能电力电量仪3#UPS-C 市电主路输入630A/3P3#UPS-C 市电630A/3P外置维修旁路输入ZA-RVV,2 *(4x185+1x95)机房空调配电箱JFDL1630A/3P3#切换柜C三楼电力室ATS1000A/4P智能电力电量仪运营商接入机房配电箱E 320A/3P 4#切换柜D三楼电力室列间空调-180A/3P列间空调-280A/3P 列间空调-380A/3P列间空调备用80A/3P 电池室1精密空调32A/3P电池室2精密空调32A/3P 休息室VRV 空调外机32A/3P指挥中心VRV 空调外机63A/3P 照明配电箱JFAL132A/3P 照明配电箱JFAL232A/3P 指挥中心配电箱320A/3P VR 体验区配电箱32A/3P 电力机房空调-140A/3P备用80A/3P备用32A/3P 备用32A/3P ZA-YJVR,2 *(4x240+1x120)ZA-YJVR,2 *(4x240+1x120)ZA-RJVR,3 *(4x240+1x120)250A/3P 三楼电力室5#UPS 输出柜250A/3P 250A/3P250A/3P800A/3P 800A/4P 250A/3P250A/3PZA-RVV,2 *(4x120+1x70)带机械锁250A/3P250A/3P250A/3P250A/3P800A/3P 800A/4P 250A/3P250A/3P带机械锁三楼电力室6#UPS 输出柜32A/3P40A/3P630A/3P630A/3P 630A/4P 带机械锁三楼电力室7#UPS 输出柜机房空调配电箱JFDL1备用备用32A/3PUPS 电源配电箱UAL132A/3P弱电配电箱RDAL132A/3P备用32A/3P备用32A/3P备用外置维修旁路输入ZA-RVV,2 *(4x240+1x120)外置维修旁路输入ZA-RVV,2 *(4x240+1x120)外置维修旁路输入ZA-RVV,2 *(4x185+1x95)智能电力电量仪智能电力电量仪智能电力电量仪32A/1P250A/3P智能电力电量仪32A/1P21个5KW 机柜IT 机柜IT 机柜32A/1P冷通道电源备用备用32A/1P32A/1P5个备用开关三楼IDC 机房8#列头柜列头柜UPT-01 A 路列头柜UPT-03 A 路列头柜UPT-05 A 路列头柜预留 A 路备用 A 路备用 A 路32A/1P 250A/3P智能电力电量仪32A/1P 21个5KW 机柜IT 机柜IT 机柜32A/1P冷通道电源备用备用32A/1P 32A/1P5个备用开关三楼IDC 机房9#列头柜32A/1P250A/3P智能电力电量仪32A/1P 21个5KW 机柜IT 机柜IT 机柜32A/1P冷通道电源备用备用32A/1P32A/1P5个备用开关三楼IDC 机房10#列头柜32A/1P 250A/3P智能电力电量仪32A/1P 21个5KW 机柜IT 机柜IT 机柜32A/1P 冷通道电源备用备用32A/1P32A/1P5个备用开关三楼IDC 机房11#列头柜32A/1P250A/3P 智能电力电量仪32A/1P 21个5KW 机柜IT 机柜IT 机柜32A/1P冷通道电源备用备用32A/1P32A/1P5个备用开关32A/1P250A/3P 智能电力电量仪32A/1P 21个5KW 机柜IT 机柜IT 机柜32A/1P冷通道电源备用备用32A/1P32A/1P5个备用开关三楼IDC 机房12#列头柜三楼IDC 机房13#列头柜ZA-RVV,2 *(4x120+1x70)列头柜UPT-02 B 路列头柜UPT-04 B 路列头柜UPT-06 B 路列头柜预留 B 路备用 B 路备用 B 路ATS 630A/4P智能电力电量仪列间空调-480A/3P15#运营商总配电箱三楼接入机房列间空调-580A/3P 列间空调-680A/3P 列间空调-780A/3P列间空调预留备用32A/3P ZA-RVV,2 *(4x185+1x95)列间空调-880A/3P 列间空调-980A/3P 80A/3P列间空调预留80A/3P 电力机房空调-280A/3P接入机房空调-132A/3P320A/3P智能电力电量仪80A/3P备用运营商分配电箱160A/3P 100A/3P 备用63A/3P 备用32A/3P备用32A/3P备用16A/3P备用16A/3P 备用16A/1P照明16A/1P照明16A/1P备用16A/2P备用16A/2P备用16A/2P插座16A/2P插座16A/2P备用16A/1P监控室VRV 内机16A/1P监控室VRV 内机16A/3P备用16A/3P备用16#指挥中心配电箱三楼指挥中心320A/3P智能电力电量仪80A/3P 指挥中心LED 大屏80A/3P 备用63A/3P 备用32A/3P 备用32A/3P 备用16A/3P 备用16A/1P照明16A/1P 照明16A/2P 插座16A/2P 插座数字沙盘LED 大屏100A/3P16A/1P 照明16A/2P 插座10A/3P 指挥中心VRV 内机10A/3P 指挥中心VRV 内机10A/3P指挥中心VRV 内机10A/3P 指挥中心VRV 内机10A/3P 指挥中心VRV 内机10A/3P 指挥中心VRV 内机ZA-RVV,4x150+1x70)ZA-RVV,4x150+1x70)17#机房照明配电箱三楼机房32A/3P智能电力电量仪照明16A/1P 照明16A/1P照明16A/1P照明16A/1P 照明16A/1P照明16A/1P插座16A/2P 插座16A/2P16A/2P备用16A/1P备用16A/1P 备用16A/1P备用ZA-RVV,5x618#UPS 电源配电箱三楼机房32A/3P智能电力电量仪门禁16A/1P消防16A/1P动环监控16A/1P16A/1P备用16A/1P备用16A/1P备用ZA-RVV,5x616A/1P备用16A/1P 备用16A/1P备用备用照明箱ZAT116A/3PATS 16A/3P智能电力电量仪备用照明16A/1P21#备用照明切换箱三楼机房备用照明16A/1P备用照明16A/1P 备用16A/1P备用16A/1P备用16A/1P ZA-RVV,5x2.519#机房照明配电箱三楼机房32A/3P智能电力电量仪照明16A/1P照明16A/1P 照明16A/1P 插座16A/2P插座16A/2P16A/1P 备用16A/1P备用VRV 内机16A/1PVRV 内机16A/1P 备用照明箱ZAT116A/3P16A/3P备用ZA-RVV,5x620#VR 配电箱三楼VR 体验区32A/3P智能电力电量仪照明16A/1P照明16A/1P照明16A/1P插座16A/2P 插座16A/2P16A/2P备用16A/1P 备用16A/1P备用16A/1P备用VRV 空调室内机10A/3PVRV 空调室内机10A/3PZA-RVV,5x622#弱电配电箱三楼机房32A/3P 智能电力电量仪16A/1P备用16A/1P备用16A/1P备用16A/1P备用16A/1P备用16A/1P备用16A/1P备用16A/1P备用16A/1P备用ZA-RVV,5x6三楼电力室14#空调切换柜。
配电箱系统图学习简介什么是配电箱?所有用户用电的总的一个电路分配箱.工作原理配电箱是按电气接线要求将开关设备、测量仪表、保护电器和辅助设备组装在封闭或半封闭金属柜中或屏幅上,构成低压配电装置。
正常运行时可借助手动或自动开关接通或分断电路。
故障或不正常运行时借助保护电器切断电路或报警。
借测量仪表可显示运行中的各种参数,还可对某些电气参数进行调整,对偏离正常工作状态进行提示或发出信号。
常用于各发、配、变电所中。
用途便于管理,当发生电路故障时有利于检修。
配电箱和配电柜配电盘配电凭等,是集中安装开关、仪表等设备的成套装置。
常用的配电箱有木制和铁板制两种,现在哪儿的用电量都挺大的,所以还是铁的用的比较多。
配电箱的用途:当然是方便停、送电,起到计量和判断停、送电的作用。
分类按结构特征和用途分类:(1)固定面板式开关柜,常称开关板或配电屏。
它是一种有面板遮拦的开启式开关柜,正面有防护作用,背面和侧面仍能触及带电部分,防护等级低,只能用于对供电连续性和可靠性要求较低的工矿企业,作变电室集中供电用。
(2)防护式(即封闭式)开关柜,指除安装面外,其它所有侧面都被封闭起来的一种低压开关柜。
这种柜子的开关、保护和监测控制等电气元件,均安装在一个用钢或绝缘材料制成的封闭外壳内,可靠墙或离墙安装。
柜内每条回路之间可以不加隔离措施,也可以采用接地的金属板或绝缘板进行隔离。
通常门与主开关操作有机械联锁。
另外还有防护式台型开关柜(即控制台),面板上装有控制、测量、信号等电器。
防护式开关柜主要用作工艺现场的配电装置。
(3)抽屉式开关柜。
这类开关柜采用钢板制成封闭外壳,进出线回路的电器元件都安装在可抽出的抽屉中,构成能完成某一类供电任务的功能单元。
功能单元与母线或电缆之间,用接地的金属板或塑料制成的功能板隔开,形成母线、功能单元和电缆三个区域。
每个功能单元之间也有隔离措施。
抽屉式开关柜有较高的可靠性、安全性和互换性,是比较先进的开关柜,目前生产的开关柜,多数是抽屉式开关柜。
配电箱系统图学习之马矢奏春创作简介什么是配电箱?所有用户用电的总的一个电路分配箱.工作原理配电箱是按电气接线要求将开关设备、丈量仪表、呵护电器和辅助设备组装在封闭或半封闭金属柜中或屏幅上, 构成高压配电装置.正常运行时可借助手动或自动开关接通或分断电路.故障或不正常运行时借助呵护电器切断电路或报警.借丈量仪表可显示运行中的各种参数, 还可对某些电气参数进行调整, 对偏离正常工作状态进行提示或发出信号.经常使用于各发、配、变电所中.用途便于管理, 当发生电路故障时有利于检修. 配电箱和配电柜配电盘配电凭等, 是集中装置开关、仪表等设备的成套装置.经常使用的配电箱有木制和铁板制两种, 现在哪儿的用电量都挺年夜的, 所以还是铁的用的比力多.配电箱的用途:固然是方便停、送电, 起到计量和判断停、送电的作用.分类按结构特征和用途分类:(1)固定面板式开关柜, 常称开关板或配电屏.它是一种有面板遮拦的开启式开关柜, 正面有防护作用, 反面和正面仍能触及带电部份, 防护品级低, 只能用于对供电连续性和可靠性要求较低的工矿企业, 作变电室集中供电用.(2)防护式(即封闭式)开关柜, 指除装置面外, 其它所有正面都被封闭起来的一种高压开关柜.这种柜子的开关、呵护和监测控制等电气元件, 均装置在一个用钢或绝缘资料制成的封闭外壳内, 可靠墙或离墙装置.柜内每条回路之间可以不加隔离办法, 也可以采用接地的金属板或绝缘板进行隔离.通常门与主开关把持有机械联锁.另外还有防护式台型开关柜(即控制台), 面板上装有控制、丈量、信号等电器.防护式开关柜主要用作工艺现场的配电装置.(3)抽屉式开关柜.这类开关柜采纳钢板制成封闭外壳, 进出线回路的电器元件都装置在可抽出的抽屉中, 构成能完成某一类供电任务的功能单位.功能单位与母线或电缆之间, 用接地的金属板或塑料制成的功能板隔开, 形成母线、功能单位和电缆三个区域.每个功能单位之间也有隔离办法.抽屉式开关柜有较高的可靠性、平安性和互换性, 是比力先进的开关柜, 目前生产的开关柜, 大都是抽屉式开关柜.它们适用于要求供电可靠性较高的工矿企业、高层建筑, 作为集中控制的配电中心.(4)动力、照明配电控制箱.多为封闭式垂直装置.因使用场所分歧, 外壳防护品级也分歧.它们主要作为工矿企业生产现场的配电装置.各类符号标注根据图纸《配电箱系统图》中标注NPX630/3P 400A中:NPX630是断电器的型号, 3P是三极, 400A指最年夜断路电流为400A.NPX160/3P 160A WL1 YJV-4*70+1*35-SC80FC 58.8W AP3配电箱:NPX160是断电器的型号3P指三极, 额定频率为50Hz,额定绝缘电压为690V, 脱扣器电流40-160A.WL1:指回路1.后面还有回路2等.YJV:铜芯交联聚乙烯电缆.NHYJV:耐火铜芯交联聚乙烯电缆4*70+1*35:指4根线芯截面70mm2加一根线芯截面35的中性线芯.SC80:指穿直径为80的焊接钢管(俗称黑铁管).FC:指暗敷在空中内.C65N-C10/1P WL1 BV-3*2.5-SC15 CC 0.78KW 照明:C65N为断电器型号C10/1P:断电器最年夜断路电流为10A, 极数为一极.BV:铜芯聚氯乙烯绝缘电缆3*2.5:3根线芯截面面积4mm2的SC15:穿直径15mm的钢管CC:暗敷设在屋面或顶板内.C65N-C16/3P WL5 BV-4*4-SC20FC WC 3.7KW 380V空调插座:回路5中, 断电器型号为C65N, 最年夜断路电流为16A, 采纳4根线芯截面4mm2的铜芯聚氯乙烯绝缘电缆, 穿直接20mm的钢管, 暗敷设在空中内、墙内.另:各种敷设方式:AB-沿或跨梁(屋架)敷设BC-暗敷设在梁内AC-沿或跨柱敷设CLC-暗敷设在柱内WS-沿墙面敷设WC-暗敷设在墙内CE-沿天棚或顶板面敷设CC-暗敷设在屋面或顶板内SCE-吊顶内敷设FC-地板或空中下敷设SC-穿焊接钢管敷设MT-穿电线管敷设PC-穿硬塑料管敷设FPC-穿阻燃半硬聚氯乙烯管敷设CT-电缆桥架敷设MR-金属线槽敷设M-用钢索敷设KPC-穿聚氯乙烯塑料波纹电线管敷设CP-穿金属软管敷设DB-直接埋设TC-电缆沟敷设CE-混凝土排管敷设.脱扣方式:MA-磁脱扣TM-热磁脱扣MIC-电子脱扣分断能力:分断能力分5个品级:F:36KAN:50KAH:70KAS:100KAL:150KA。