天车电气原理图
- 格式:pdf
- 大小:3.57 MB
- 文档页数:46
20/5t桥式主要部分电气工作原理20/5t 桥式起重机经常移动的。
因此要采用移动的电源线供电,一般采用软电缆供电,软电缆可随大、小车的滑触线通过生产车间中常用的20/5t桥式起重机,它是一种用来吊起或放下重物并使重物在短距离内水平移动的起重设备,俗称吊车、行车或天车。
起重设备按结构分,有桥式、塔式、门式、旋转式和缆索式等多种,不同结构的起重设备分别应用于不同的场合。
生产车间内使用的是桥式起重机,常见的有5t、10t单钩和15/3t、20/5t双钩等。
下面以20/5t双钩桥式起重机为例分析一下20/5t桥式起重机控制线路。
20/5t桥式起重机主要由主钩(20t)、副钩(5t)、大车和小车等四部分组成。
如图10-17所示是20/5t桥式起重机的外形结构图。
1-驾驶室2-辅助滑线架3-交流磁力控制器4-电阻箱5-起重小车6-大车拖动电动7-端梁8-主滑线9-主梁图10-17 桥式起重机外形结构图20/5t桥式起重机由五台电动机组成,其主要运动形式分析如下:大车的轨道设在沿车间两侧的柱子上,大车可在轨道上沿车间纵向移动;大车上有小轨道,供小车横向移动;主钩和副钩都安装在小车上。
交流起重机的电源为380V。
由于起重机工作时是电刷引入起重机驾驶室内的保护控制盘上,三根主滑触线是沿着平行于大车轨道方向敷设在车间厂房的一侧。
提升机构、小车上的电动机和交流电磁制动器的电源是由架设在大车上的辅助滑触线(俗称拖令线)来供给的;转子电阻也是通过辅助滑触线与电动机连接的。
滑触线通常用圆钢、角钢、V形钢或工字钢轨制成。
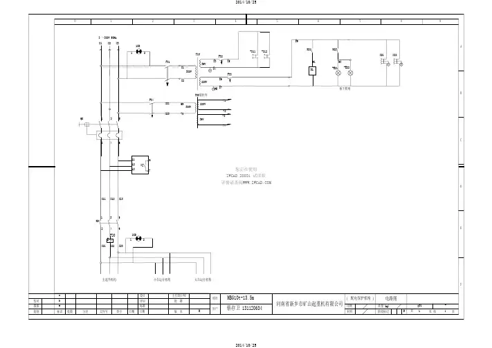
10.6.1 20/5t桥式起重机的工作原理1.主电路分析桥式起重机的工作原理如图10-18所示。
大车由两台规格相同的电动机M1和M2拖动,用一台凸轮控制器Q1控制,电动机的定子绕组并联在同一电源上;YA1和YA2为交流电磁制动器,行程开关SQ R和SQ L作为大车前后两个方向的终端保护。
小车移动机构由一台电动机M3拖动,用一台凸轮控制器Q2控制,YA3为交流电磁制动器,行程开关SQ BW和SQ FW作为小车前、后两个方向的终端保护。