某煤矿10KV地面变电所高低压开关柜全套电气原理施工图(高压联络备自投,低压自投自复)
- 格式:doc
- 大小:2.93 MB
- 文档页数:19
1、综述10kV开关柜的主要部分包括:真空断路器、电流互感器、就地安装的微机保护装置、操作回路附件(把手、指示灯、压板等等)、各种位置辅助开关。
其中,断路器与电流互感器安装在开关柜内部,微机保护、附件、电度表安装在继电器室(沿用以前的叫法,其实已经没有继电器了)的面板上,端子排与各种电源空气开关安装在继电器室内部,端子排通过控制电缆或专用插座与断路器机构连接。
理解开关柜的二次接线,我们需要找到两份图纸:综自厂家提供的保护原理图、接线图;开关柜厂家提供的二次原理图、配线图、端子排图、断路器机构原理图。
综自厂的图纸是开关柜厂家的设计原始依据,也是我们审核开关柜厂家图纸的依据。
开关厂的原理图一般都是根据综自厂的原理图修改的,再示意性的画出电流、电压、信号量的输入,控制量的输出。
2、10kV电缆出线中置柜的二次接线KYN28A(GZS1)中置柜是城区变电站使用最多的10kV开关柜型式,从正面看,它明显分成三部分,最上面是继电器室,中间是断路器室,下面是空室(什么也没有),母线等高压设备安装在背面的柜体内。
如图所示2.1继电器室继电器室的面板上,安装有微机保护装置、操作把手、保护出口压板、指示灯(合位红灯、分位绿灯、储能完成黄灯);继电器室内,安装有端子排、微机保护控制回路直流电源开关、微机保护工作直流电源、储能电机工作电源开关(直流或交流)。
图8-1-1是早期开关柜的图片,继电器室就是安装电流表和指示灯的位置。
2.2断路器室10kV中置柜最常用的断路器是VS1真空断路器,断路器机构内的接线通过专用插座与继电器室的端子排联接。
插头的一段与断路器机构固定连接,另一段是一个专用插头,配套的插座安装在断路器室的右上方,从插座引出线接至继电器室端子排。
为了搞明白二次回路,我们需要对操作过程进行一定的了解。
中置柜断路器手车有三个位置:断开、试验、运行(需要注意的是,断路器手车和断路器是两个概念,断路器手车其实就是断路器和它的座)。
10kv高压开关柜结构及工作原理10kv高压开关柜结构及工作原理10kv高压开关柜KYN28A铠装型开式交流金属封闭开关柜,具有防止带负荷推拉断路器手车、防止误分合断路器,防止接地开关处在闭合位置时关合断路器、防止误入带电隔室、防止带电时误合接地开关等连锁功能。
进线开关配备ABB公司的VD4真空断路器,负荷开关配ZN63A-12型真空断路器和JCZR16-7.2J型接触器-熔断器组合开关。
一、结构概述:1. 型号含义:2. 结构:图中:A---母线室 B---断路器手车室 C---电缆室 D---继电器仪表室1—泄压装置;2—外壳;3—分支小母线;4—母线套管;5—主母线;6—静触头;7—触头盒;8—电流互感器;9—接地开关;10—电缆;11—避雷器;12—接地母线;13—装卸式隔板;14—隔板(活门);15—二次触头;16—断路器手车;17—加热装置;18—可抽出式水平隔板;19—接地开关操作机构;20—控制小线槽;21—电缆封板。
开关柜的柜体为组装式结构,开关柜不靠墙安装。
柜体分四个单独的隔室:手车室、主母线室、电缆室、继电器仪表室。
柜体外壳防护等级IP42,各小室间防护等级IP2X。
2.1 手车:手车由开关柜的主元件和推进用底盘车组成。
手车采用中置式结构,通过一台专用转运车可方便地进行手车进出柜的操作。
以断路器为例:手车的下部为推进用的底盘车,断路器固定安装在底盘车上。
底盘车内设置有推进机构,用以实现对断路器手车的进出车操作。
底盘车内还设置有连锁机构,用以实现断路器和柜体之间的各项连锁2.2 手车室:隔室两侧安装了轨道,供手车在柜内移动时的导向和定位。
静触头盒的隔板(活门)安装在手车室后侧。
手车从断开位置/试验位置向工作位置移动的过程中,遮挡上、下静触头盒的活门自动打开;手车反方向移动时,活门自动关闭,直至手车退至断开位置/试验位置而完全遮挡住静触头盒,形成隔室间有效的隔离。
断路器室的门上有观察窗,通过观察窗可以观察隔室内手车所处位置、断路器的合、分闸显示、储能状况等状态。
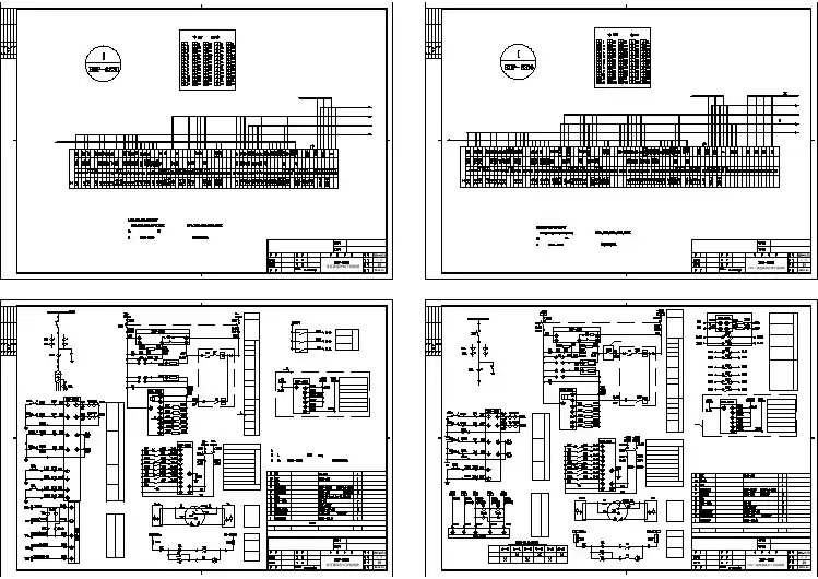
某新城区供配电工程10KV高压开闭所全套电气原理图
工程简介:某新城区供配电工程,设计一套10KV高压开闭所,内有15台HXGN-12型环网柜组成;系统运行方式为单母线分段接线方式;两台进线断路器柜与联络柜采取备自投方案,采取三投二电气联锁;另有PT柜对电源电压测量和监控;站变柜提供本站用工作电源;隔离柜配合联络柜完成联络功能;多台出线柜对下方负载设备供电并提供可靠的过载短路保护。
一次系统图
一号进线柜二次原理图
二号进线柜二次原理图
联络柜二次原理图
隔离柜二次原理图
PT柜二次原理图
站变柜二次原理图。
1、综述10kV开关柜的主要部分包括:真空断路器、电流互感器、就地安装的微机保护装置、操作回路附件(把手、指示灯、压板等等)、各种位置辅助开关。
其中,断路器与电流互感器安装在开关柜内部,微机保护、附件、电度表安装在继电器室(沿用以前的叫法,其实已经没有继电器了)的面板上,端子排与各种电源空气开关安装在继电器室内部,端子排通过控制电缆或专用插座与断路器机构连接。
理解开关柜的二次接线,我们需要找到两份图纸:综自厂家提供的保护原理图、接线图;开关柜厂家提供的二次原理图、配线图、端子排图、断路器机构原理图。
综自厂的图纸是开关柜厂家的设计原始依据,也是我们审核开关柜厂家图纸的依据。
开关厂的原理图一般都是根据综自厂的原理图修改的,再示意性的画出电流、电压、信号量的输入,控制量的输出。
2、10kV电缆出线中置柜的二次接线KYN28A(GZS1)中置柜是城区变电站使用最多的10kV开关柜型式,从正面看,它明显分成三部分,最上面是继电器室,中间是断路器室,下面是空室(什么也没有),母线等高压设备安装在背面的柜体内。
如图所示2.1继电器室继电器室的面板上,安装有微机保护装置、操作把手、保护出口压板、指示灯(合位红灯、分位绿灯、储能完成黄灯);继电器室内,安装有端子排、微机保护控制回路直流电源开关、微机保护工作直流电源、储能电机工作电源开关(直流或交流)。
图8-1-1是早期开关柜的图片,继电器室就是安装电流表和指示灯的位置。
2.2断路器室10kV中置柜最常用的断路器是VS1真空断路器,断路器机构内的接线通过专用插座与继电器室的端子排联接。
插头的一段与断路器机构固定连接,另一段是一个专用插头,配套的插座安装在断路器室的右上方,从插座引出线接至继电器室端子排。
为了搞明白二次回路,我们需要对操作过程进行一定的了解。
中置柜断路器手车有三个位置:断开、试验、运行(需要注意的是,断路器手车和断路器是两个概念,断路器手车其实就是断路器和它的座)。
高压配电室#1变压器B1B2B3 B4 B5#2变压器B6 B7 1B8 B9低压配电室■11.'JjM电容器室值班室变电所平面布置图注:(1)图中导线型号含义,如(2)本图用microsoft visio2003 VV22-1kV-3x 2X 400+1X 400,表示VV22-1kV 电缆型号,绘制。
A/B/C 相分别用2根截面400平方毫米电缆并联,N相用一根截面400平方毫米电缆;厂区供电线路规划图A1[A3A5 A7A9 #1进线隔离.PT 柜#1进线柜#1计量柜 #1主变出线 母线联络柜至#1主变变高A2[A4A6 A8A11#2进线隔离.PT 柜#2进线柜#2计量柜 #2主变出线 母线断路器柜K W H I 、 I KvaH I-.至#2主变变高变电所高压配电主接线图I KvaH I I,:卜cp-o-fli _r至架空进线<> <>fli至邻厂进线|KwH I~A #1变低压岀线CT柜HLaHLbHLcn -#主变保护电流回路引自10kV电压互感器U1 ~100V W1引自低压配电柜U2~220VW2~NKA1a#1变低压岀线开关KA1aKA1a#主变保护跳闸回路#2变低压岀线CT柜HLa控制电源储能电源告电源电源WFS预告音响控制电源切换KA1a #1主变保护控制信号回路HLbvv ■-KA1bHLcKA1cKA1aKA1aKA1a#2变低压岀线开关TQ竝主变保护跳闸回路变电所变压器保护二次回路图。
图解高低压配电系统(经典版)编制人:__________________审核人:__________________审批人:__________________编制单位:__________________编制时间:____年____月____日序言下载提示:该文档是本店铺精心编制而成的,希望大家下载后,能够帮助大家解决实际问题。
文档下载后可定制修改,请根据实际需要进行调整和使用,谢谢!并且,本店铺为大家提供各种类型的经典范文,如工作总结、实习报告、职业规划、职场语录、规章制度、自我介绍、心得体会、教学资料、作文大全、其他范文等等,想了解不同范文格式和写法,敬请关注!Download tips: This document is carefully compiled by this editor. I hope that after you download it, it can help you solve practical problems. The document can be customized and modified after downloading, please adjust and use it according to actual needs, thank you!Moreover, our store provides various types of classic sample essays, such as work summaries, internship reports, career plans, workplace quotes, rules and regulations, self introductions, insights, teaching materials, complete essays, and other sample essays. If you want to learn about different sample formats and writing methods, please pay attention!图解高低压配电系统图解高低压配电系统高低压配电柜顾名思义就是电力供电系统中用于进行电能分配、控制、计量以及连接线缆的配电设备,一般供电局、变电所都是用高压开关柜,下面就是本店铺整理的图解高低压配电系统图,一起来看一下吧。