传动轴机械加工工艺过程卡
- 格式:ppt
- 大小:1.53 MB
- 文档页数:3
加工轴的工艺流程及路线分析1.零件图样分析;2.确定毛坯;3.确定主要表面的加工方法;4.确定定位基准;5.划分阶段;6.热处理工序安排;7.加工尺寸和切削用量;8.拟定工艺过程;9.传动轴机械加工工艺过程工序简图下料→车两端面,钻中心孔→粗车各外圆→调质→修研中心孔→半精车各外圆,车槽,倒角→车螺纹→划键槽加工线→铣键槽→修研中心孔→磨削→检验。
1.零件图样分析图所示零件是减速器中的传动轴。
它属于台阶轴类零件,由圆柱面、轴肩、螺纹、螺尾退刀槽、砂轮越程槽和键槽等组成。
轴肩一般用来确定安装在轴上零件的轴向位置,各环槽的作用是使零件装配时有一个正确的位置,并使加工中磨削外圆或车螺纹时退刀方便;键槽用于安装键,以传递转矩;螺纹用于安装各种锁紧螺母和调整螺母。
根据工作性能与条件,该传动轴图样规定了主要轴颈M,N,外圆P、Q以及轴肩G、H、I有较高的尺寸、位置精度和较小的表面粗糙度值,并有热处理要求。
这些技术要求必须在加工中给予保证。
因此,该传动轴的关键工序是轴颈M、N和外圆P、Q的加工。
2.确定毛坯该传动轴材料为45钢,因其属于一般传动轴,故选45钢可满足其要求。
本例传动轴属于中、小传动轴,并且各外圆直径尺寸相差不大,故选择¢60mm的热轧圆钢作毛坯。
3.确定主要表面的加工方法传动轴大都是回转表面,主要采用车削与外圆磨削成形。
由于该传动轴的主要表面M、N、P、Q的公差等级IT6较高,表面粗糙度Ra值Ra=0.8 um较小,故车削后还需磨削。
外圆表面的加工方案可为:粗车→半精车→磨削。
4.确定定位基准合理地选择定位基准,对于保证零件的尺寸和位置精度有着决定性的作用。
由于该传动轴的几个主要配合表面Q、P、N、M及轴肩面H、G对基准轴线A-B均有径向圆跳动和端面圆跳动的要求,它又是实心轴,所以应选择两端中心孔为基准,采用双顶尖装夹方法,以保证零件的技术要求。
粗基准采用热轧圆钢的毛坯外圆。
中心孔加工采用三爪自定心卡盘装夹热轧圆钢的毛坯外圆,车端面、钻中心孔。
详图见附图一机械加工工序卡片产品型号零件图号产品名称零件名称传动轴共22 页第 1 页车间工序号工序名称材料牌号1车削毛坯种类毛坯外形尺寸每毛坯可制件数每台件数铸件11设备名称设备型号设备编号同时加工件数数控车床CK6136S1夹具编号夹具名称切削液三爪卡盘工位器具编号工位器具名称工序工时(分) 准终单件工步号工步内容工艺装备主轴转速切削速度进给量切削深度进给次数工步工时r/min m/min mm/r mm 机动辅助1 车端面55°车刀800 163.280.020.5 1设计(日期)校对(日期)审核(日期)标准化(日期)会签(日期)详图见附图二机械加工工序卡片产品型号零件图号产品名称零件名称传动轴共22 页第 2 页车间工序号工序名称材料牌号2 车削毛坯种类毛坯外形尺寸每毛坯可制件数每台件数1 1设备名称设备型号设备编号同时加工件数数控车CK6136S 1夹具编号夹具名称切削液三爪卡盘工位器具编号工位器具名称工序工时(分)准终单件工步号工步内容工艺装备主轴转速切削速度进给量切削深度进给次数工步工时r/min m/min mm/r mm 机动辅助1 车Φ63 55°车刀800 162.5 0.152 12 车Φ62 55°车刀800 161.3 0.15 1 1设计(日期)校对(日期)审核(日期)标准化(日期)会签(日期)车间工序号工序名称材料牌号4 车销毛坯种类毛坯外形尺寸每毛坯可制件数每台件数1 1设备名称设备型号设备编号同时加工件数数控车CK6136S 1 夹具编号夹具名称切削液三爪卡盘工位器具编号工位器具名称工序工时(分) 准终单件工步号工步内容工艺装备主轴转速切削速度进给量切削深度进给次数工步工时r/min m/min mm/r mm 机动辅助1 精车Φ58.2 53°车刀1200 161.3 0.01 0.3 12 精车Φ58 53°车刀1200 161.3 0.01 0.2 13设计(日期)校对(日期)审核(日期)标准化(日期)会签(日期)车间工序号工序名称材料牌号3 车削毛坯种类毛坯外形尺寸每毛坯可制件数每台件数1 1设备名称设备型号设备编号同时加工件数数控车CK6136S 1 夹具编号夹具名称切削液三爪卡盘工位器具编号工位器具名称工序工时(分) 准终单件工步号工步内容工艺装备主轴转速切削速度进给量切削深度进给次数工步工时r/min m/min mm/r mm 机动辅助1 半精车Φ60 53°车刀1000 161.2 0.01 2 12 半精车Φ59 53°车刀1000 161.1 0.01 1 13 半精车Φ58.553°车刀1000 161.1 0.01 0.5 1设计(日期)校对(日期)审核(日期)标准化(日期)会签(日期)车间工序号工序名称材料牌号5 车削毛坯种类毛坯外形尺寸每毛坯可制件数每台件数设备名称设备型号设备编号同时加工件数数控车CK6136S 1 夹具编号夹具名称切削液三爪卡盘工位器具编号工位器具名称工序工时(分) 准终单件工步号工步内容工艺装备主轴转速切削速度进给量切削深度进给次数工步工时r/min m/min mm/r mm 机动辅助1 粗车Φ54 55°车刀800 161.1 0.012 22 粗车Φ53 55°车刀800 160.8 0.01 1 13设计(日期)校对(日期)审核(日期)标准化(日期)会签(日期)车间工序号工序名称材料牌号6 车削毛坯种类毛坯外形尺寸每毛坯可制件数每台件数1 1设备名称设备型号设备编号同时加工件数数控车CK6136S 1 夹具编号夹具名称切削液三爪卡盘工位器具编号工位器具名称工序工时(分) 准终单件工步号工步内容工艺装备主轴转速切削速度进给量切削深度进给次数工步工时r/min m/min mm/r mm 机动辅助1 半精车Φ49 53°车刀1000 160.5 0.012 22 半精车Φ48 53°车刀1000 160.1 0.01 1 1设计(日期)校对(日期)审核(日期)标准化(日期)会签(日期)车间工序号工序名称材料牌号7 车削毛坯种类毛坯外形尺寸每毛坯可制件数每台件数1 1设备名称设备型号设备编号同时加工件数数控车CK6136S 1 夹具编号夹具名称切削液三爪卡盘工位器具编号工位器具名称工序工时(分) 准终单件工步号工步内容工艺装备主轴转速切削速度进给量切削深度进给次数工步工时r/min m/min mm/r mm 机动辅助1 半精车Φ46 53°车刀1000 159 0.01 1 2半精车Φ45 53°车刀1000 159 0.01 0.5 2设计(日期)校对(日期)审核(日期)标准化(日期)会签(日期)车间工序号工序名称材料牌号8 车削毛坯种类毛坯外形尺寸每毛坯可制件数每台件数设备名称设备型号设备编号同时加工件数数控车CK6136S 1 夹具编号夹具名称切削液三爪卡盘工位器具编号工位器具名称工序工时(分) 准终单件工步号工步内容工艺装备主轴转速切削速度进给量切削深度进给次数工步工时r/min m/min mm/r mm 机动辅助粗车Φ43 55°车刀800 158 0.01 2 1粗车Φ41 55°车刀800 158 0.01 2 1粗车Φ40 55°车刀800 158 0.01 1 1设计(日期)校对(日期)审核(日期)标准化(日期)会签(日期)车间工序号工序名称材料牌号10 车削毛坯种类毛坯外形尺寸每毛坯可制件数每台件数设备名称设备型号设备编号同时加工件数数控车CK6136S 1 夹具编号夹具名称切削液三爪卡盘工位器具编号工位器具名称工序工时(分) 准终单件工步号工步内容工艺装备主轴转速切削速度进给量切削深度进给次数工步工时r/min m/min mm/r mm 机动辅助精车Φ36.6 53°车刀1000 158 0.01 0.6 1精车Φ36 53°车刀1000 158 0.01 0.3 2设计(日期)校对(日期)审核(日期)标准化(日期)会签(日期)车间工序号工序名称材料牌号9 车削毛坯种类毛坯外形尺寸每毛坯可制件数每台件数设备名称设备型号设备编号同时加工件数数控车CK6136S夹具编号夹具名称切削液三爪卡盘工位器具编号工位器具名称工序工时(分) 准终单件工步号工步内容工艺装备主轴转速切削速度进给量切削深度进给次数工步工时r/min m/min mm/r mm 机动辅助半精车Φ38.2 53°车刀1000 157 0.01 1.8 2半精车Φ37.2 53°车刀1000 155 0.01 1.0 2设计(日期)校对(日期)审核(日期)标准化(日期)会签(日期)车间工序号工序名称材料牌号车削毛坯种类毛坯外形尺寸每毛坯可制件数每台件数11设备名称设备型号设备编号数控车CK6136S夹具编号夹具名称切削液三爪卡盘工位器具编号工位器具名称工序工时(分) 准终单件工步号工步内容工艺装备主轴转速切削速度进给量切削深度进给次数工步工时r/min m/min mm/r mm 机动辅助粗车Φ34 55°车刀800 155 0.01 2 1粗车Φ32 55°车刀800 154 0.01 2 1设计(日期)校对(日期)审核(日期)标准化(日期)会签(日期)车间工序号工序名称材料牌号12 车削毛坯种类毛坯外形尺寸每毛坯可制件数每台件数设备名称设备型号设备编号同时加工件数数控车CK6136S夹具编号夹具名称切削液三爪卡盘工位器具编号工位器具名称工序工时(分) 准终单件工步号工步内容工艺装备主轴转速切削速度进给量切削深度进给次数工步工时r/min m/min mm/r mm 机动辅助半精车Φ31.5 53°车刀1000 154 0.01 0.5设计(日期)校对(日期)审核(日期)标准化(日期)会签(日期)车间工序号工序名称材料牌号车削毛坯种类毛坯外形尺寸每毛坯可制件数每台件数13设备名称设备型号设备编号同时加工件数数控车CK6136S夹具编号夹具名称切削液三爪卡盘工位器具编号工位器具名称工序工时(分) 准终单件工步号工步内容工艺装备主轴转速切削速度进给量切削深度进给次数工步工时r/min m/min mm/r mm 机动辅助半精车Φ30.5 53°车刀1000 152 0.01 1.0 4半精车Φ30 53°车刀1000 152 0.01 0.5 2设计(日期)校对(日期)审核(日期)标准化(日期)会签(日期)车间工序号工序名称材料牌号15 切槽毛坯种类毛坯外形尺寸每毛坯可制件数每台件数设备名称设备型号设备编号同时加工件数数控车CK6136S夹具编号夹具名称切削液三爪卡盘工位器具编号工位器具名称工序工时(分) 准终单件工步号工步内容工艺装备主轴转速切削速度进给量切削深度进给次数工步工时r/min m/min mm/r mm 机动辅助切Φ24的槽5X30切槽刀800 153 0.01 6 2设计(日期)校对(日期)审核(日期)标准化(日期)会签(日期)车间工序号工序名称材料牌号切槽毛坯种类毛坯外形尺寸每毛坯可制件数每台件数16设备名称设备型号设备编号同时加工件数数控车CK6136S夹具编号夹具名称切削液三爪卡盘工位器具编号工位器具名称工序工时(分) 准终单件工步号工步内容工艺装备主轴转速切削速度进给量切削深度进给次数工步工时r/min m/min mm/r mm 机动辅助切Φ53的槽5X30切槽刀800 141 0.01 5 1车间工序号工序名称材料牌号14 车削毛坯种类毛坯外形尺寸每毛坯可制件数每台件数设备名称设备型号设备编号同时加工件数数控车CK6136S夹具编号夹具名称切削液三爪卡盘工位器具编号工位器具名称工序工时(分) 准终单件工步号工步内容工艺装备主轴转速切削速度进给量切削深度进给次数工步工时r/min m/min mm/r mm 机动辅助加工圆弧53°车刀1000 140 0.01 1设计(日期)校对(日期)审核(日期)标准化(日期)会签(日期)标记处数更改文件号签字日期标记处数更改文件号签字日期标记处数更改文件号签字日期标记处数更改文件号签字日期机械加工工序卡片产品型号零件图号产品名称零件名称传动轴共22 页第17 页车间工序号工序名称材料牌号17 车螺纹毛坯种类毛坯外形尺寸每毛坯可制件数每台件数设备名称设备型号设备编号同时加工件数数控车CK6136S夹具编号夹具名称切削液三爪卡盘工位器具编号工位器具名称工序工时(分) 准终单件工步号工步内容工艺装备主轴转速切削速度进给量切削深度进给次数工步工时r/min m/min mm/r mm 机动辅助粗加工M30X1.5的螺纹60°螺纹车刀80 7.5 1 1机械加工工序卡片产品名称零件名称传动轴共22 页第18 页车间工序号工序名称材料牌号18 车螺纹毛坯种类毛坯外形尺寸每毛坯可制件数每台件数设备名称设备型号设备编号同时加工件数数控车CK6136S夹具编号夹具名称切削液三爪卡盘工位器具编号工位器具名称工序工时(分) 准终单件工步号工步内容工艺装备主轴转速切削速度进给量切削深度进给次数工步工时r/min m/min mm/r mm 机动辅助半精加工M30X1.5的螺纹60°螺纹车刀80 0.7 0.7 1机械加工工序卡片产品名称零件名称传动轴共22 页第19 页车间工序号工序名称材料牌号19 车螺纹毛坯种类毛坯外形尺寸每毛坯可制件数每台件数设备名称设备型号设备编号同时加工件数数控车CK6136S夹具编号夹具名称切削液三爪卡盘工位器具编号工位器具名称工序工时(分) 准终单件工步号工步内容工艺装备主轴转速切削速度进给量切削深度进给次数工步工时r/min m/min mm/r mm 机动辅助精加工M30X1.5的螺纹60°螺纹车刀80 7.5 0.9 3机械加工工序卡片产品型号零件图号产品名称零件名称传动轴共22 页第20 页车间工序号工序名称材料牌号20 车端面毛坯种类毛坯外形尺寸每毛坯可制件数每台件数设备名称设备型号设备编号同时加工件数夹具编号夹具名称切削液三爪卡盘工位器具编号工位器具名称工序工时(分) 准终单件工步号工步内容工艺装备主轴转速切削速度进给量切削深度进给次数工步工时r/min m/min mm/r mm 机动辅助粗车至125 55°车刀800 145 0.01 5 2设计(日期)校对(日期)审核(日期)标准化(日期)会签(日期)产品名称零件名称传动轴共22 页第21 页车间工序号工序名称材料牌号21 车端面毛坯种类毛坯外形尺寸每毛坯可制件数每台件数设备名称设备型号设备编号同时加工件数夹具编号夹具名称切削液三爪卡盘工位器具编号工位器具名称工序工时(分) 准终单件工步号工步内容工艺装备主轴转速切削速度进给量切削深度进给次数工步工时r/min m/min mm/r mm 机动辅助半精车至120.5 53°车刀800 145 0.01 4.5 3设计(日期)校对(日期)审核(日期)标准化(日期)会签(日期)产品名称零件名称传动轴共22 页第22 页车间工序号工序名称材料牌号22 车端面毛坯种类毛坯外形尺寸每毛坯可制件数每台件数设备名称设备型号设备编号同时加工件数夹具编号夹具名称切削液三爪卡盘工位器具编号工位器具名称工序工时(分) 准终单件工步号工步内容工艺装备主轴转速切削速度进给量切削深度进给次数工步工时r/min m/min mm/r mm 机动辅助精车至120 53°车刀1000 145 0.01 0.5 2设计(日期)校对(日期)审核(日期)标准化(日期)会签(日期)。
机械加工工艺过程及工序卡片模板一、工艺规划工艺规划是在设计任务和制造要求的基础上,确定产品的加工工艺和加工工序的流程,具体步骤如下:1.了解产品的使用功能、要求以及材料的特性,确定最佳的加工方法和加工工艺。
2.绘制产品的工艺流程图,包括加工工序、顺序和设备选择等。
3.制定加工工艺卡,记录每个加工工序的详细信息,包括工具刀具的选择、加工参数等。
二、技术准备技术准备包括原材料准备、机床设备准备和工装量具准备等,具体步骤如下:1.检查原材料的规格、质量和数量是否符合要求,如有问题及时采取补救措施。
2.检查机床设备的运行状态和性能,确保设备正常运行。
3.准备需要的工装量具,确保其准确性和可靠性。
三、加工操作加工操作是根据工艺规划和技术准备的要求,对原材料进行加工操作,具体步骤如下:1.根据工艺流程图和加工工艺卡,按照预定的顺序进行加工工序。
2.调整和选择合适的机床设备,安装和装夹好加工零件。
3.根据加工工艺卡的要求,合理设置机床的工作参数和工装量具的位置。
4.进行切削、剪切、钻孔、磨削等加工操作,确保加工质量和加工效率。
四、检验与维护在加工过程中,需要进行产品质量的检验和设备维护,具体步骤如下:1.进行零件的尺寸和表面质量的检验,确保零件的几何精度和表面质量符合要求。
2.检查机床设备的工作状态和性能,及时发现和解决问题,确保设备的正常运行。
3.根据机床设备的维护手册,定期对设备进行清洁、润滑和维护保养,延长设备的使用寿命。
以上是机械加工工艺过程的一般步骤和主要内容。
下面是一个工序卡片的模板,供参考:工序卡片工序名称:(填写工序名称)主要工艺参数:1.切削速度:(填写切削速度,单位)2.进给速度:(填写进给速度,单位)3.切削深度:(填写切削深度,单位)刀具/工具:1.刀具名称:(填写刀具名称)2.刀尖半径:(填写刀尖半径,单位)3.刀具材料:(填写刀具材料)4.工具冷却方式:(填写工具冷却方式)夹具/工装:1.夹具类型:(填写夹具类型)2.夹具安装位置:(填写夹具安装位置)3.工装定位方式:(填写工装定位方式)检验要求:1.尺寸精度:(填写尺寸精度要求)2.表面质量:(填写表面质量要求)3.其他检验要求:(填写其他检验要求)注意事项:1.在操作中注意安全,佩戴必要的防护设备。
1传动轴加工工艺过程1传动轴结构工艺的分析传动轴轴管硬度大,使得其表面加工难度比较大,同时要求轴管表面加工精度高,因此,我们为减少加工工作量以及减轻加工难度,通常我们在设计传动轴的过程中都采取简单、合理并且易加工的机械结构,使得传动轴有良好的加工工艺性能。
万向节和伸缩套是传动轴的重要组成零件,也是加工难度较大的部分,其表面和圆弧面都是不易加工的地方。
考虑到传动轴的结构特点以及加工难易程度,因此传动轴的加工工艺性能通常需要考虑以下几个方面。
1.1轴管上轴线平行孔的工艺性鉴于传动轴的需求量大,往往加工过程需要大批量生产,但是对于轴管而言,轴上的孔如果他们的轴线平行,我们会在尽可能的减少装夹次数的前提下,使用多把刀具在一次装夹过程中完成多道工序,尽量避免装夹误差影响孔的加工工艺性。
同时在镗孔的过程中,要求镗孔小刀可顺利通过,减少回刀时间,提高生产效率。
1.2轴管上孔中心距大小工艺性轴管属于回转性零件,在镗孔的过程中,当孔大小不一致时,需要换多把镗刀,或者使用组合机床,此时孔中心距的大小严重影响加工效氧,孔中心距若太小,组合机床多把刀同时工作可能发生干涉,可能振动加剧,严重影响加工精度。
同若孔的形状公差需要保证,则孔中心距的大小在设计的时候必须予以重视。
1.3轴管孔的基本布置形式轴管孔多数为通孔,同时两端与万向节连接处偶有阶梯孔,因此不司的孔径比折射出不同的工艺性能。
当孔径比大于1但是小于1.5时,属于短圆柱孔,该类孔的工艺性能较好:当孔径比大于1.5时,属于深孔,深孔的加工难度大,因此工艺性较差。
阶梯孔的工艺性也受孔径比的影响,其中孔径比快接近通孔时,加工难度容易,工艺性能较好,但孔径比远离通孔孔径比时,加工难度较大,工艺性能差。
2传动轴零件加工工艺分析传动轴的零件包括轴管、伸缩套、万向节,加工工艺直接影响零件的装配精度、零件的使用寿命,因此对于加工工艺的分析显得尤为重要。
万向节在传动轴中的作用相当于大脑作用,没有万向节的连接作用加辅助支撑以及旋转的作用,传动轴将无法正常工作。
典型零件加工工艺(轴类,箱体类,齿轮类等)轴类零件的一. 轴类零件的分类、技术要求轴是机械加工中常见的典型零件之一。
它在机械中主要用于支承齿轮、带轮、凸轮以及连杆等传动件,以传递扭矩。
按结构形式不同,轴可以分为阶梯轴、锥度心轴、光轴、空心轴、曲轴、凸轮轴、偏心轴、各种丝杠等.根据轴类零件的功用和工作条件,其技术要求主要在以下方面:⑴尺寸精度轴类零件的主要表面常为两类:一类是与轴承的内圈配合的外圆轴颈,即支承轴颈,用于确定轴的位置并支承轴,尺寸精度要求较高,通常为IT 5~IT7;另一类为与各类传动件配合的轴颈,即配合轴颈,其精度稍低,常为IT6~IT9。
⑵几何形状精度主要指轴颈表面、外圆锥面、锥孔等重要表面的圆度、圆柱度。
其误差一般应限制在尺寸公差范围内,对于精密轴,需在零件图上另行规定其几何形状精度。
⑶相互位置精度包括内、外表面、重要轴面的同轴度、圆的径向跳动、重要端面对轴心线的垂直度、端面间的平行度等。
⑷表面粗糙度轴的加工表面都有粗糙度的要求,一般根据加工的可能性和经济性来确定。
支承轴颈常为0.2~1.6μm,传动件配合轴颈为0.4~3.2μm。
⑸其他热处理、倒角、倒棱及外观修饰等要求。
二、轴类零件的材料、毛坯及热处理1.轴类零件的材料⑴轴类零件材料常用45钢,精度较高的轴可选用40Cr、轴承钢GCr15、弹簧钢65Mn,也可选用球墨铸铁;对高速、重载的轴,选用20CrMnTi、20Mn2B、20Cr等低碳合金钢或38CrMoAl氮化钢。
⑵轴类毛坯常用圆棒料和锻件;大型轴或结构复杂的轴采用铸件。
毛坯经过加热锻造后,可使金属内部纤维组织沿表面均匀分布,获得较高的抗拉、抗弯及抗扭强度。
2.轴类零件的热处理锻造毛坯在加工前,均需安排正火或退火处理,使钢材内部晶粒细化,消除锻造应力,降低材料硬度,改善切削加工性能。
调质一般安排在粗车之后、半精车之前,以获得良好的物理力学性能。
表面淬火一般安排在精加工之前,这样可以纠正因淬火引起的局部变形。
机械制造技术课程设计说明书减速器传动轴机械加工工艺规程设计及工艺装备指导老师: 张月玲学生:陈颂祥学校: 上海理工大学专业:机械设计制造及其自动化日期:2015.5.20机械制造技术课程设计说明书减速器传动轴机械加工工艺规程设计及工艺装备机械制造技术课程设计任务书一、设计题目:减速器传动轴机械加工工艺规程设计及工艺装备。
二、课程设计的目的与要求1.课程设计的目的机械制造技术基础课程设计是机械制造专业教学中组成部分,是一个重要的实践性教学环节。
通过课程设计,要达到的目的是:(1)培养学生善于综合运用学到的专业知识,使之具有独立分析和解决一般工艺问题的能力。
(2)养学生正确的设计观点和认真负责的工作态度,掌握零件加工工艺规程的设计内容、步骤和方法,巩固和深化课堂所学的知识。
(3)提高学生计算机的应用能力。
(4)培养学生查阅和运用有关标准手册,参考书等技术资料的能力。
2.课程设计要求(1)认真阅读课程设计指导书,明确课程设计的目的要求,了解课程设计的内容、步骤和方法及其它有关规定。
(2)按指导书规定的设计内容,独立按时完成自己的设计任务。
指导教师的主要作用是规定设计任务,审查方案,检查设计进度以及介绍参考资料。
(3)在设计工作中要注意理论联系实际,努力培养自己的独立工作能力,充分发挥主动性和创造性,使设计在技术上比较先进又切实可行,既能保证产品质量三、设计的内容和要求:1.编写课程设计说明书2.机械加工工艺规程卡片:(1)减速器传动轴的机械加工工艺过程卡(2)传动轴的机械加工工艺过程指定工序的工序卡3.绘制减速器传动轴毛坯图和零件工作图4.参考进度机械制造技术课程设计说明书参考目录第一章概述 (4)1.课程设计的目的要求2.课程设计的内容3.设计步骤和方法第二章零件分析 (5)1.传动轴的作用2.传动轴的工艺分析3.生产纲领的计算与生产类型的确定第三章确定毛坯、绘制毛坯图 (8)第四章拟定传动轴的工艺路线 (9)第五章选择加工设备及工艺装备 (13)第六章加工工序设计 (15)第七章设计小结 (21)第八章参考资料 (22)第一章概述一、课程设计的目的要求1.机械制造技术基础课程设计,是以切削理论为基础、制造工艺为主线、兼顾工艺装备知识的机械制造技术基本能力的培养;是综合运用机械制造技术的基本知识、基本理论和基本技能,分析和解决实际工程问题的一个重要教学环节;是对学生运用所掌握的“机械制造技术基础”知识及相关知识的一次全面训练。
花键传动轴零件加工工艺及夹具设计花键传动轴是一种机械传动零件,主要功能是在传动时,可以解决两轴间的同步问题,与普通传动方式相比,其具有传动精度高、传动效率高、安装方便等优点。
本篇文章将介绍花键传动轴零件的加工工艺及夹具设计。
一、加工工艺1. 材料选择花键传动轴通常采用45#钢材料加工而成,其硬度约在HRC28~32之间,具有较好的可加工性、焊接性和热处理性能。
2. 工艺流程首先,将原料切割成所需长度,然后进行粗车加工,形成整体形状。
接下来,边丝锥加工花键槽,并加工防止滑动的卸荷槽。
最后,进行细车、磨削和表面处理等工序。
3. 注意事项在加工过程中,需要注意以下几点:(1)精度要求高花键传动轴的加工过程中要求精度高,尤其是花键槽的加工要求较为困难,因此在加工过程中需要采用高精度的设备进行加工。
(2)刀具选择在车削车辆时需要选择合适的刀具,确保零件尺寸和形状的精度达到设计要求。
(3)热处理在花键传动轴加工完成后,需要进行热处理,以提高材料硬度和强度,从而保证零件的耐久性和使用寿命。
二、夹具设计1. 夹具种类花键传动轴的加工需要使用多种夹具,包括粗车夹具、丝锥加工夹具、细车加工夹具和磨削夹具等。
2. 夹具设计原则(1)夹紧力均匀夹具需要保证夹紧力均匀,以防止零件变形或损坏。
(2)跳动控制夹具需要设计成具有调节功能,可以控制零件的跳动,在加工中保证加工精度和质量。
(3)夹口尺寸合适夹具的夹口尺寸需要与零件的尺寸和形状相匹配,以确保零件的稳定性。
(4)易于操作夹具需要设计成易于操作和安装,方便操作人员的使用和维护。
夹具需要选择耐磨损、硬度高、稳定性好的材料制作,以提高夹具的使用寿命和加工质量。
三、总结因为花键传动轴的加工要求较高,需要采取相应的加工工艺和夹具设计,以保证零件的精度和质量。
在实际生产中,需要根据具体的需求和加工工艺,灵活运用各种加工设备和技术,提高加工效率和质量。
传动轴机械加工工艺实例分析轴类零件是常见的典型零件之一。
按轴类零件结构形式不同,一般可分为光轴、阶梯轴和异形轴三类;或分为实心轴、空心轴等。
它们在机器中用来支承齿轮、带轮等传动零件,以传递转矩或运动。
台阶轴的加工工艺较为典型,反映了轴类零件加工的大部分内容与基本规律。
下面就以减速箱中的传动轴为例,介绍一般台阶轴的加工工艺。
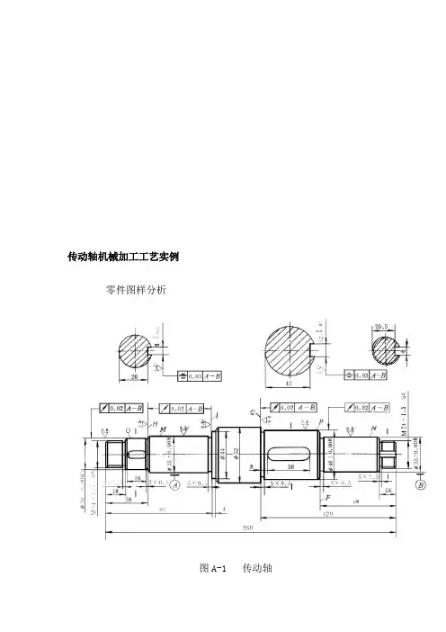
1.零件图样分析图A-1 传动轴图A-1所示零件是减速器中的传动轴。
它属于台阶轴类零件,由圆柱面、轴肩、螺纹、螺尾退刀槽、砂轮越程槽和键槽等组成。
轴肩一般用来确定安装在轴上零件的轴向位置,各环槽的作用是使零件装配时有一个正确的位置,并使加工中磨削外圆或车螺纹时退刀方便;键槽用于安装键,以传递转矩;螺纹用于安装各种锁紧螺母和调整螺母。
根据工作性能与条件,该传动轴图样(图A-1)规定了主要轴颈M,N,外圆P、Q以及轴肩G、H、I有较高的尺寸、位置精度和较小的表面粗糙度值,并有热处理要求。
这些技术要求必须在加工中给予保证。
因此,该传动轴的关键工序是轴颈M、N和外圆P、Q的加工。
2.确定毛坯该传动轴材料为45钢,因其属于一般传动轴,故选45钢可满足其要求。
本例传动轴属于中、小传动轴,并且各外圆直径尺寸相差不大,故选择¢60mm的热轧圆钢作毛坯。
3.确定主要表面的加工方法传动轴大都是回转表面,主要采用车削与外圆磨削成形。
由于该传动轴的主要表面M、N、P、Q的公差等级(IT6)较高,表面粗糙度Ra 值(Ra=0.8 um)较小,故车削后还需磨削。
外圆表面的加工方案(参考表A-3)可为:粗车→半精车→磨削。
4.确定定位基准合理地选择定位基准,对于保证零件的尺寸和位置精度有着决定性的作用。
由于该传动轴的几个主要配合表面(Q、P、N、M)及轴肩面(H、G)对基准轴线A-B均有径向圆跳动和端面圆跳动的要求,它又是实心轴,所以应选择两端中心孔为基准,采用双顶尖装夹方法,以保证零件的技术要求。
粗基准采用热轧圆钢的毛坯外圆。
阶梯轴加工工艺过程分析图6—34为减速箱传动轴工作图样。
表6—13为该轴加工工艺过程。
生产批量为小批生产。
材料为45热轧圆钢。
零件需调质。
(一)结构及技术条件分析该轴为没有中心通孔的多阶梯轴。
根据该零件工作图,其轴颈M、N,外圆P,Q及轴肩G、H、I有较高的尺寸精度和形状位置精度,并有较小的表面粗糙度值,该轴有调质热处理要求。
(二)加工工艺过程分析1.确定主要表面加工方法和加工方案。
传动轴大多是回转表面,主要是采用车削和外圆磨削。
由于该轴主要表面M,N,P,Q的公差等级较高(IT6),表面粗糙度值较小(Ra0.8μm),最终加工应采用磨削。
其加工方案可参考表3-14。
2.划分加工阶段该轴加工划分为三个加工阶段,即粗车(粗车外圆、钻中心孔),半精车(半精车各处外圆、台肩和修研中心孔等),粗精磨各处外圆。
各加工阶段大致以热处理为界。
3.选择定位基准轴类零件的定位基面,最常用的是两中心孔。
因为轴类零件各外圆表面、螺纹表面的同轴度及端面对轴线的垂直度是相互位置精度的主要项目,而这些表面的设计基准一般都是轴的中心线,采用两中心孔定位就能符合基准重合原则。
而且由于多数工序都采用中心孔作为定位基面,能最大限度地加工出多个外圆和端面,这也符合基准统一原则。
但下列情况不能用两中心孔作为定位基面:(1)粗加工外圆时,为提高工件刚度,则采用轴外圆表面为定位基面,或以外圆和中心孔同作定位基面,即一夹一顶。
(2)当轴为通孔零件时,在加工过程中,作为定位基面的中心孔因钻出通孔而消失。
为了在通孔加工后还能用中心孔作为定位基面,工艺上常采用三种方法。
①当中心通孔直径较小时,可直接在孔口倒出宽度不大于2mm的60o内锥面来代替中心孔;②当轴有圆柱孔时,可采用图6—35a所示的锥堵,取1∶500锥度;当轴孔锥度较小时,取锥堵锥度与工件两端定位孔锥度相同;③当轴通孔的锥度较大时,可采用带锥堵的心轴,简称锥堵心轴,如图6—35b所示。
沈阳工学院机械加工工序卡片产品型号零部件图号产品名称零部件名称传动轴共(7)页第(1)页车间工序号工序名称材料牌号1 下料40MnB毛坯种类毛坯外形尺寸每个毛坯可制件数每台件数锻件φ50mm×240mm 1 1设备名称设备型号设备编号同时加工零件数车床CR6150 01 1夹具编号夹具名称切削液三爪卡盘工位器具编号工位器具名称工序工时准终单件工步号工步内容工艺装备主轴转速(r/min)切削速度(m/min)进给量(mm/r)切削深度(mm)进给次数工步工时机动辅助1 切割棒料通用夹具,A型机机夹切断车刀360 79 0.2 36 1描图描校底图号装订号设计审核标准化日会签日期.日期日期期标记处数更改文件号签字日期标记处数更改文件号签字日期沈阳工学院机械加工工序卡片产品型号零部件图号产品名称零部件名称传动轴共(7)页第(2)页车间工序号工序名称材料牌号2粗车端面,钻中心孔40MnB毛坯种类毛坯外形尺寸每个毛坯可制件数每台件数锻件φ50mm×240mm 1 1设备名称设备型号设备编号同时加工零件数车床CR6150 01 1夹具编号夹具名称切削液三爪卡盘工位器具编号工位器具名称工序工时准终单件工步号工步内容工艺装备主轴转速(r/min)切削速度(m/min)进给量(mm/r)切削深度(mm)进给次数工步工时机动辅助1 粗车φ50端面通用夹具,45°端面车刀600 120 0.25 3 12 钻中心孔通用夹具,中心钻(B型)600 120 0.25 1.25 1 描图描校底图号.装订号设计日期审核日期标准化日期会签日期标记处数更改文件号签字日期标记处数更改文件号签字日期沈阳工学院机械加工工序卡片产品型号零部件图号产品名称零部件名称传动轴共(7)页第(3)页车间工序号工序名称材料牌号3 粗车外圆40MnB毛坯种类毛坯外形尺寸每个毛坯可制件数每台件数锻件φ50mm×240mm 1 1设备名称设备型号设备编号同时加工零件数车床CR6150 01 1夹具编号夹具名称切削液三爪卡盘工位器具编号工位器具名称工序工时准终单件工步号工步内容工艺装备主轴转速(r/min)切削速度(m/min)进给量(mm/r)切削深度(mm)进给次数工步工时机动辅助1 粗车φ30外圆顶尖,45°外圆车刀600 90 0.752 52 粗车φ45外圆顶尖,45°外圆车刀600 90 0.75 2.5 1 描图3 粗车φ30外圆顶尖,45°外圆车刀600 90 0.75 2 54 粗车φ22外圆顶尖,45°外圆车刀600 90 0.75 2 7 描校 5 去毛刺顶尖,45°外圆车刀600 80 0.75 0.05 1.底图号装订号设计日期审核日期标准化日期会签日期标记处数更改文件号签字日期标记处数更改文件号签字日期沈阳工学院机械加工工序卡片产品型号零部件图号产品名称零部件名称传动轴共(7)页第(4)页车间工序号工序名称材料牌号4 粗车槽40MnB毛坯种类毛坯外形尺寸每个毛坯可制件数每台件数锻件φ50mm×240mm 1 1设备名称设备型号设备编号同时加工零件数车床CR6150 01 1夹具编号夹具名称切削液三爪卡盘工位器具编号工位器具名称工序工时准终单件工步号工步内容工艺装备主轴转速(r/min)切削速度(m/min)进给量(mm/r)切削深度(mm)进给次数工步工时机动辅助1 粗车4x2槽顶尖,45°外圆车刀600 90 0.75 1 12 粗车4x0.5槽顶尖,45°外圆车刀600 90 0.25 2 描图.描校底图号装订号设计日期审核日期标准化日期会签日期标记处数更改文件号签字日期标记处数更改文件号签字日期沈阳工学院机械加工工序卡片产品型号零部件图号产品名称零部件名称传动轴共(7)页第(5)页车间工序号工序名称材料牌号5 精车40MnB毛坯种类毛坯外形尺寸每个毛坯可制件数每台件数锻件φ50mm×240mm 1 1设备名称设备型号设备编号同时加工零件数车床CR6150 01 1夹具编号夹具名称切削液三爪卡盘工位器具编号工位器具名称工序工时准终单件工步号工步内容工艺装备主轴转速(r/min)切削速度(m/min)进给量(mm/r)切削深度(mm)进给次数工步工时机动辅助1 精车φ30外圆顶尖,45°外圆车刀600 131 0.14 1 1.2 精车φ45外圆顶尖,45°外圆车刀600 131 0.14 1 1 描图3 精车φ30外圆顶尖,45°外圆车刀600 131 0.14 1 14 车φ22螺纹顶尖,45°外圆车刀100 15 0.75 2 5 描校 5 倒角顶尖,45°外圆车刀400 131 0.14 1 1底图号装订号设计日期审核日期标准化日期会签日期标记处数更改文件号签字日期标记处数更改文件号签字日期沈阳工学院机械加工工序卡片产品型号零部件图号产品名称零部件名称传动轴共(7)页第(6)页车间工序号工序名称材料牌号6 热处理40MnB毛坯种类毛坯外形尺寸每个毛坯可制件数每台件数锻件φ50mm×240mm 1 1设备名称设备型号设备编号同时加工零件数铣床X62W 01 1夹具编号夹具名称切削液三爪卡盘工位器具编号工位器具名称工序工时准终单件工工步内容工艺装备主轴转速切削速度进给量(mm/r) 切削深度进给次数工步工时.步号(r/min) (m/min) (mm)机动辅助1 粗铣槽专用夹具190 59.69 136.8 0.8 12 精铣槽专用夹具190 59.69 136.8 0.4 1 描图3 热处理,淬火淬硬深度1.5-2.5,HRC30描校底图号装订号设计日期审核日期标准化日期会签日期标记处数更改文件号签字日期标记处数更改文件号签字日期沈阳工学院机械加工工序卡片产品型号零部件图号产品名称零部件名称传动轴共(7)页第(7)页车间工序号工序名称材料牌号7 检查40MnB毛坯种类毛坯外形尺寸每个毛坯可制件数每台件数锻件φ50mm×240mm 1 1设备名称设备型号设备编号同时加工零件数车床CR6150 01 1夹具编号夹具名称切削液三爪卡盘工位器具编号工位器具名称工序工时准终单件.工步号工步内容工艺装备主轴转速(r/min)切削速度(m/min)进给量(mm/r)切削深度(mm)进给次数工步工时机动辅助1 检查2 入库描图描校底图号装订号设计日期审核日期标准化日期会签日期标记处数更改文件号签字日期标记处数更改文件号签字日期.。