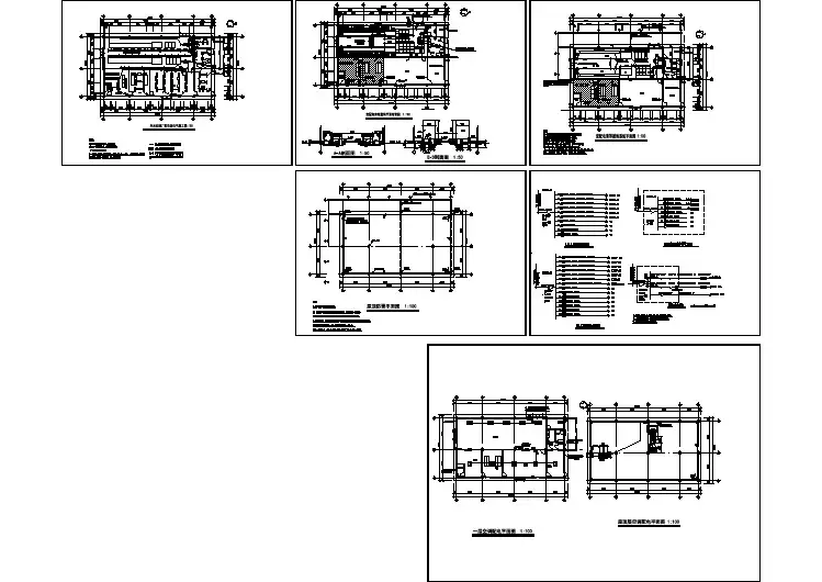
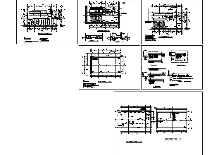
0.51.1.1.51.59.14.1-1施工图1:100施工图1:100170D-4A BV-2X2.5-RC20D-3A BV-2X2.5-PC20D-2B VV-3X2.5+1X1.5-RC20D-2A VV-3X2.5+1X1.5-RC20D-1B VV-3X2.5+1X1.5-RC20D-1A VV-3X2.5+1X1.5-RC20给排水在线 GC108-A 1*160W 320\f仿宋_GB2312|b0|i0|c0|p494SB2KM鼓风机(2A,2B)控制原理图主要设备及材料清单设计说明及材料清单VV-3X2.5+1X1.5电力电缆151,设计依据: <<低压配电系统设计规范>> (GB50052-95)\P <<低压配电装置及线路设计规范>> (GBJ54-83)\P <<通用用电设备配电设计规范>> (GB50055-93)\P <<民用建筑电气设计规范>> (JGJ/T16-92)\P 项目工艺专业、建筑专业提供的相关技术资料。\P2,污水处理站设备装机总容量为10.58KW,需用容量为5.4KW,总电流为10.8A,\P3,电源进线电缆采用一根VV-3X6+1X4,电压为三相四线制380V/220V.进线电缆采用 32予埋镀锌钢管保护.\P4,安装高度:开关距地1.4米,电气箱中心距地1.4米,灯具安装见平面图.\P5,线路敷设:除室内照明线路采用PVC管敷设外,均采用穿镀锌钢管敷设,敷设和安装规范详见建筑电气安装工程图集.\P6,所有电气设备,非带电金属外壳均应可靠接地.本工程接地采用TN-C系统,由3根L50*5镀锌角钢及40*4镀锌扁铁组成,从室外引至电控箱,接地电阻不大于10欧,并且接地体埋设位置应在距建筑物3米以外,垂直接地体镀锌角钢的间距不小于5米,接地体埋设深度应不小于0.7米.\P7,池上照明灯具位于池上走道板上,灯柱高2.5米,直径40mm,灯柱与走道板栏杆配作.签 字日 期旧底图总号借(通)用件登记校 核审 定审 核APPROVEDAPPROVEDCHECKED月 日月 日月 日M电动机二位单极开关符 号电控箱工矿灯庭院灯名 称AP86K21-10ZT-13A, H=2.5\f仿宋_GB2312|b0|i0|c0|p49GC108A-1X160W 320型 号非标图 例工程负责人制 图设 计DESIGNDRAWNMANAGER月 日月 日月 日19181716 16 20 20BV-500 1*2.5包塑金属软管PVC电线管镀锌钢管绝缘导线旧底图总号签 字日 期借(通)用件登记设计说明序号1114131279108246531450*250*500ZT-13A, H=2.5\f仿宋_GB2312|b0|i0|c0|p49AP86K21-10PBC-DB22PBC-ER22,\Ftxt.shxK\f仿宋_GB2312|b0|i0|c0|p49PBC-EG22,\Ftxt.shx二位单级开关电控箱庭院灯工矿灯选择开关停止按钮(带灯)液位控制器启动按钮(带灯)C45AD/1P 10AC45AD/3P 16ART14(3A)C45N/3P 40AT16 (5A)B16低压断路器低压断路器熔断器交流接触器热继电器低压断路器名称型号规格流量计电源说明:\P\H2.5VV-3X6+2X4-RC32 FC 电源进线2A2.2KW鼓风机2.2KW提升泵2.2KW提升泵1A1B0.32KW室内照明配电系统图2.2KW提升泵2B3A0.96KW室外照明0.5KW4A5A工程负责人制 图校 核审 定审 核设 计RC20 FC 至高液位控制器(2SL)RC20 FC 至低液位控制器(1SL)2SL82SL91011PE51SL71SL61KM1151KM1091KM1151131SAAPPROVEDAPPROVEDCHECKEDDESIGNDRAWNMANAGER月 日月 日月 日月 日月 日月 日端子排L11L33N4L22单相三孔插座备用10A单相单孔插座10A205201L12FU3SB2KM203~\f仿宋_GB2312|b0|i0|c134|p492980放2810米60R1000 时根据现场确定。 处理站定位从最后一个污水窨井即图中的进水窨井开始。放样1、本图为杭宁高速公路湖州管理处污水处理站平面布置图。污水3 、综合房及地上部分池体贴外墙砖,颜色由管理处确认。2、图中尺寸以毫米计。绿化由管理处统一规划种植。签 字电气日 期比 例DWG. NO.SHEET NO. OF第 张 共 张REV.版 次SCALE电施-1绿 化借(通)用件登记旧底图总号设计专业设计阶段项 目ITEMPROJECT工程名称SECTIONPHASE施工图520100150图 例边 沟 界 线建、构筑物说明:审 定校 核审 核APPROVEDAPPROVEDCHECKED照明平面布置图月 日月 日月 日DWG. NO.比 例第 张 共 张SHEET NO. OF电施-4SCALE2000管 理 处 办 公 区工程负责人制 图设 计MANAGERDRAWNDESIGNR1000路灯ZT-13AAP86K21-10\P两位单极开关3R10005200区 域 道 路2000月 日月 日月 日设计专业设计阶段项 目ITEMPROJECT工程名称SECTIONPHASE电气R1000口170北1880说明: 时根据现场确定。1、本图为杭宁高速公路湖州管理处污水处理站平面布置图。污水2、图中尺寸以毫米计。绿化由管理处统一规划种植。3 、综合房及地上部分池体贴外墙砖,颜色由管理处确认。版 次第 张 共 张11262444 非标杭州三利公司杭州三利公司杭州三利公司43444只单位2数量2.2KW2.2KW备注SHEET NO. OFREV.55002690进水窨井井3180栅格2000借(通)用件登记签 字日 期旧底图总号设计专业比 例DWG. NO.设计阶段项 目电气箱原理及系统图ITEMPROJECT工程名称施工图SCALE电施-2SECTIONPHASE电气207209手动控制2HG运行指示2HR2KM2KHN熔断器停泵指示控制电源图 例边 沟 界 线绿 化建、构筑物二沉池工矿灯GC108-A控D-3A箱电D-4A100045001X160W接触氧化池1733025005750边 沟排23507001000出水窨井第 张 共 张SHEET NO. OF 处理站定位从最后一个污水窨井即图中的进水窨井开始。放样审 核校 核审 定CHECKEDAPPROVEDAPPROVED设 计制 图工程负责人DESIGNDRAWNMANAGERR1000予埋一根 32的镀锌钢管至室外地坪-0.700米,距建筑物3米处,用于电源线路敷设管 理 处 办 公 区R10002000区 域 道 路R100052002000动力配线平面布置图月 日月 日月 日月 日月 日月 日项 目ITEM电施-3DWG. NO.比 例SCALE设计阶段设计专业PHASESECTION工程名称PROJECTR1000北提升泵(1A,1B)控制原理图1KMC45N/3P 40AC45AD/3P 16AT16\P5AT16\P5AT16\P5AC45AD/3P 16AB16B16B16C45AD/3P 16AT16\P5AB16C45AD/3P 16AC45N/1P 10AC45N/1P 10AC45N/1P 10AVV-3X6+1X4-RC32\P\Ftxt.shxC45N/3P 40A1031011SL341131151SA自动11SB停手动2105107L11FU1KM~\f仿宋_GB2312|b0|i0|c134|p49停泵指示液位自动控制1HG1091KM1111KH运行指示手动控制1HRN控制电源熔断器318028105500进水窨井26902000575017330RVVP4X1.0-RC20-FC予埋一根 20的镀锌钢管至超声波明渠流量计探头予埋4根 20的镀锌钢管至调节池,用于液位计线路敷设D-1A\PD-1B栅电井M流量计箱控箱M提升泵液位计格18801000MD-2A\PD-2BM鼓风机4500接触氧化池2500边 沟超声波明渠流量计探头二沉池2980放口排10002350700出水窨井版 次REV.版 次REV.旧底图总号电气日 期签 字借(通)用件登记完成日期:第 张 共 张工程负责人校 对编 制图 纸 目 录设计说明及材料清单电气箱原理及系统图动力配线平面布置图照明平面布置图设 计 专 业电施-3电施-4电施-2342施 工 图图 号电施-1序 号1设计阶段A3A3A3111PROJECT图 名电气ITEM项 目工 程 名 称A3规 格张 数1污水处理工程杭宁高速公路湖州管理处