工程量计算例题(DOC)
- 格式:doc
- 大小:777.50 KB
- 文档页数:14
平整场地清单工程量计算例题
平整场地清单工程量计算示例:
假设要对一个方形的场地进行平整处理,场地的尺寸为30米x 30米,工程要求按照标准平整处理,工程量计算如下:
1. 清理杂草和垃圾:
根据场地尺寸,清除杂草和垃圾所需的工程量为场地面积。
场地面积为30米 x 30米 = 900平方米。
2. 挖土平整:
根据标准平整处理的要求,挖土平整的深度为10厘米。
挖土平整的工程量计算为场地面积乘以挖土深度。
工程量为900平方米 x 0.1米 = 90立方米。
3. 填土平整:
填土平整的工程量等于挖土平整的工程量,即90立方米。
4. 碎石铺设:
根据标准平整处理的要求,碎石铺设的厚度为5厘米。
碎石铺设的工程量计算为场地面积乘以碎石铺设厚度。
工程量为900平方米 x 0.05米 = 45立方米。
5. 压实碎石:
压实碎石的工程量等于碎石铺设的工程量,即45立方米。
6. 筑边界墙:
根据场地尺寸,筑边界墙的长度为4条边长之和。
场地四条边长均为30米,筑边界墙的工程量为4条边长x 30米= 120米。
通过以上计算,可得出平整场地清单的工程量:
- 清理杂草和垃圾: 900平方米
- 挖土平整: 90立方米
- 填土平整: 90立方米
- 碎石铺设: 45立方米
- 压实碎石: 45立方米
- 筑边界墙: 120米。
1.某工程基础平面图及剖面图如图所示,土壤为三类土,按施工组织设计要求,基槽和房心回填土在槽边堆放,余土外运,运距5km,编制平整场地、挖基础土方工程量清单。
基础平面图及基础详图【解】(1)平整场地工程量S=(9+0.12X2)X (5+0.12X2)=9.24 X 5.24=48.42(m2)(2)挖基础土方工程量基槽长度:L 外=(9+5)X2=28.0m L 内=(5-0.6X2)X2=7.6m垫层宽度:B=1.20m挖土深度:h=1.90-0.30=1.60(m)清单工程量:V=(28+7.6)X 1.2X 1.6=68.35(m3)⑶编制“分部分项工程量清单”如表所示。
分部分项工程量清单工程名称:XXX工程2.例题1中,基础为C20钢筋混凝土条形基础,C10混凝土垫层,编制条形基础混凝土工程量清单。
【解】外墙基础长:L外=(9+5) X2=28(m) 内墙基础长:L内=(5-0.5X2)X 2=8.0(m) 1—1 剖面面积:S i=1X0.1=0.1(m2)S2=[1 + 0.24+ (0.05 + 0.0625X2) X2]X0.1 + 2 = 0.08(m2)内外墙基础混凝土: Vi=(S1+ S2) X (L 外+L 内)=(0.1 + 0.08) X (28+8)=6.48m3 内外墙交接处混凝土: L D=0.5-0.12-0.0625X2-0.05 = 0.205(m)b=0.24+0.0625 X4+0.05X 2=0.59(m)V D=4L D XH D X (2b + B) / 6=4X0.205X0.1X (2X0.59 + 1)=0.179®)条形基础混凝土工程量清单:V=V1+V:6.48 + 0.179 = 6.66(m3)编制“分部分项工程量清单”如下表所示。
分部分项工程量清单3.在图中±0.00以下采用MU1O普通粘土砖,M5.0水泥砂浆砌筑,土0.00以上采用MU10多孔砖,M5水泥石灰砂浆砌筑,-0.06m处设墙基防潮层为1:2.5水泥砂浆,编制砖基础的工程量清单计价。
有梁板的工程量计算例题梁板工程量计算例题:一、梁板基本信息1. 梁板类型:混凝土梁板2. 梁板结构尺寸:宽度w=2000mm,深度d=400mm3. 梁板跨度:4m4. 传力条件:连接用螺栓六角头螺栓,穿透底板5. 梁板的简支形式:两边端支座及中间两个支座二、梁板工程量计算1. 混凝土材料计算(1)梁板的混凝土配合比:水泥375kg/m3, 3/2砂的重量, 0.48的粉煤灰(2)梁板的混凝土量:梁板宽为2000mm,深度为400mm,跨度为4m,梁板混凝土用量计算公式:V=thickness*width*length,因此混凝土板材用量为:V=0.4*2*4=3.2m32. 钢筋计算:(1)钢筋用量计算:根据混凝土梁板尺寸确定拉钢筋用量,单跨4m时拉钢筋用量为40kg/m[1],按4m跨度计算,总长度为16m,因此拉钢筋用量为:重量不小于640kg(2)钢筋型号及直径:由于拉钢筋的抗压强度需要是混凝土抗压强度的1.2倍以上,抗拉强度需要高于混凝土抗拉强度1.1倍以上。
计算合格的拉钢筋型号及直径,此处参考国家标准《混凝土钢筋及拉结件》,选择16mm直径的HRB335钢筋。
3. 螺栓计算:(1)螺栓的尺寸和数量:按4m跨度,梁板的螺栓尺寸由螺纹直径及螺距决定,以满足载荷和刚度要求,此处取螺纹直径为M20,螺距为150mm,螺栓的数量算法为:(跨度/螺距+1)*2,因此此空间例子需要螺栓数量为:(4/1.5+1)*2=18个。
(2)螺栓相关工程量:螺栓重量需要算出,每个M20六角头螺栓重量约为3kg/18个,因此螺栓重量:3kg*18=54kg;螺栓帽重量:M20六角头螺栓帽重量约为0.25kg/18个,因此螺栓帽重量:0.25kg*18=4.5kg。
三、梁板工程量总计(1)混凝土用量:3.2m3(2)钢筋用量:拉钢筋用量不小于640kg,用HRB335 16mm钢筋(3)螺栓用量:M20六角头螺栓数量为18个,螺栓重量54kg,螺栓帽重量4.5kg。
1.计算下图所示现浇C20钢筋混凝土带形基础的工程量2.如图16所示内外墙毛石基础、砖基础平面图和剖面图,毛石基础每级高度为350mm,试计算砌体基础工程量。
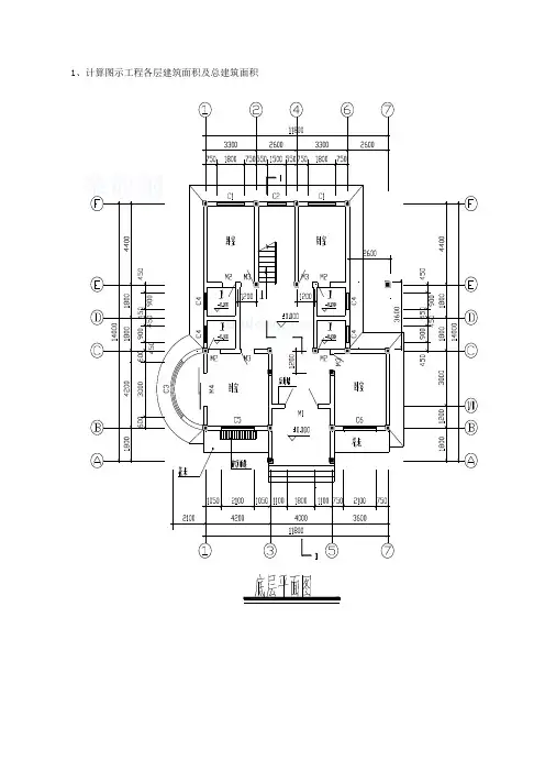
3.如下图所示,计算多层建筑物的建筑面积。
4.见图,按图计算梁式带基工程量,套用定额。
5.某项目肋梁楼板施工图,板中未注明的构造筋为¢8@200;构造筋搭接长度300;板厚120㎜;求有梁板的钢筋用量。
6.如图,柱子截面为600*650;抗震等级:二级;混凝土强度等级:C30;锚固长度:一级27d 二级 34/38d;搭接长度:一级38d 二级 48/54d;保护层:基础梁 40mm,框架梁柱 25mm,板厚15mm;直径>22mm时为直螺纹连接,直径≤22mm时为搭接。
直径>12mm时,10米长一个接头;直径≤12mm时,12米长一个接头。
7.计算厂区道路中挖路槽、灰土垫层、混凝土路面及路面缩缝工程量,并套用定额。
已知:(1)设定厂区与路面标高分别是:厂区标高-0.450m,路面为-0.550m。
(2)道路宽6m,长100m(直道),工程做法:3:7灰土垫层200厚; C25混凝土220厚;沿路面纵向每5m设缩缝一道,缝高H=60mm,沥青木板解: 1.工程量计算人工挖路槽工程量为: 100×6.5×(0.2+0.22+0.1)=338 m3灰土垫层工程量为: 100×6.5=650 m2混凝土路面工程量为:100×6=600 m2路面沥青木板缩缝工程量为:19×6×0.06=6.84 m22.定额应用A10-1 人工挖路槽A10-18 3:7灰土垫层(厚20cm)A10-73 混凝土路面(厚20cm)A10-74 混凝土路面厚度增2cm(R,C,J*2)A10-84 沥青木板缩缝8.某高层框架结构发生的特、大型机械有履带式挖掘机3台(1m3以外)、塔式起重机1台(60KNm)、施工电梯1步(75m),试计算特、大型机械进出场及安拆费。
第一章基础工程1.1 场地平整S=(58+4)*(26+4)=1860m21.2 桩基人工挖土单桩:7.0*1/4*3.14*0.8² =3.517 m3共计:1.3*578*3.517=2032.71 m31.3 桩基础工程量J1:共140根1)混凝土工程量:V=3.14D²HN/4=0.7854*0.8*0.8*7.0*140=492.60 m3 2)钢筋:a. 主筋:G=12.8*12*0.888*140*1.02=1113.00Kgb. 箍筋:G=8.076*12.8*140*1.02=843.52 Kgc. 钢筋小计:1113.00+843.52=1956.52 KgJ2:共145根1)混凝土工程量:V=3.14D²HN/4=0.7854*0.9*0.9*7.0*145=550.70m32)钢筋:a. 主筋:G=12.8*12*0.888*145*1.02=556.50Kgb. 箍筋:G=8.076*12.8*145*1.02=421.76 Kgc. 钢筋小计:556.50+421.76=978.26 KgJ3:共145根1)混凝土工程量:V=3.14D2HN/4=0.7854*0.8*0.8*7.0*145=550.70 m32)钢筋:a. 主筋:G=12.8*12.13*0.888*145*1.02=3014.37Kgb. 箍筋:G=8.076*12.8*145*1.02=2108.81 Kgc. 钢筋小计:3014.37+2108.81=5123.18 KgJ4:共148根1)混凝土工程量:V=3.14D2HN/4=0.7854*0.8*0.8*12.8.*148=580.70 m3 2)钢筋:a. 主筋:G=12.8*13*0.888*148*1.02=2411.50Kgb. 箍筋:G=8.076*12.8*148*1.02=1087.04 Kgc. 钢筋小计:2411.50+1087.04=3498.54 Kg桩基工程量总计:桩-混凝土:V=2032.71 m3桩-钢筋:G=69339 Kg第二章钢筋混凝土工程2.1 地梁工程量模板:S=(2.1+3.0)*0.35*2*8+6.6*0.35*2*4+4.8*2*16*0.35+(3.0+2.1+1.5)*0.4*2*6+(3.0+2.1)*0.35*2*6+(3.3+2.4)*0.3*2*6+4.5*0.4*2*6+3.9*0.35*2*5+3.6*0.5*2*2+3.0*0.5*2*2=668.61 m3钢筋:DL1: 8根a. 主筋:G=[(3.0+2.1)*1.21*6*5.1*1.58*4]*8=554.06Kgb. 箍筋:l=[(0.3-0.06)+(0.35-0.06)]*2-0.1=0.96n=(5.1-0.060)/0.20+1=25.2G=0.395*l*n*8=72.81 Kgc.钢筋小计:554.06+72.81=626.87 KgDL2: 4根a. 主筋:G=[6.6*2.98*4+6.6*2.47*2+6.6*2.0*2+6.6*1.58*2]*4=634.13Kgb. 箍筋:l=[(0.3-0.06)+(0.35-0.06)]*2-0.1=0.96n=(6.6-0.060)/0.20+1=31G=0.395*l*n*4=47.02 Kgc.钢筋小计:634.13+47.02=681.15 KgDL3: 6根a. 主筋G=[(3.0+2.1+1.5)*4*2.47+(3.0+2.1+1.5)*4*2.0+(3.0+2.1+1.5*2*1.58)]*6 =833.18Kgb. 箍筋:l=[(0.3-0.06)+(0.4-0.06)]*2-0.10=1.06n=[(3.0+2.1+1.5)-0.60]/0.20+1=31G=0.395*l*n*6=77.88 Kgc. 钢筋小计:833.18+77.88=911.06 KgDL4: 16根a. 主筋:G=(4.8*4*1.21+4.8*2*2.0+4.8*4*1.58)*16 =1164.29Kgb. 箍筋:l=[(0.3-0.06)+(0.35-0.06)]*2-0.10=0.96n=(4.8-0.60)/0.20+1=18G=0.395*l*n*16=109.21 Kgc. 钢筋小计:1164.29+109.21=1273.50 KgDL5:6根a. 主筋:G=(3.0+2.1)*(2*2.0+2*1.21+2*1.58+4*1.58)*6 =486.54Kgb. 箍筋:l=[(0.3-0.06)+(0.45-0.06)]*2-0.10=1.16n=[(3.0+2.1)-0.60]/0.20+1=23.5G=0.395*l*n*6=65.98 Kgc. 钢筋小计:486.54+65.98=552.52 KgDL6:6根a. 主筋:G=1.5*3*(3*2.0+5*1.58)*6=375.3Kgb. 箍筋:l=[(0.3-0.06)+(0.45-0.06)]*2-0.10=1.16n=(1.5*3-0.60)/0.20+1=20.5G=0.395*l*n*6=54.75 Kgc. 钢筋小计:375.3+54.75=430.05 KgDL7:6根a. 主筋:G=3.3*(8*1.21+4*1.58)*6 =316.8Kgb. 箍筋:l=[(0.3-0.06)+(0.3-0.06)]*2-0.10=0.86n=(3.3-0.60)/0.15+1=19G=0.395*l*n*6=38.73 Kgc. 钢筋小计:316.8+38.73=355.53 KgDL8: 6根a. 主筋:G=2.4*(8*1.21+4*1.58)*6 =230.4Kgb. 箍筋:l=[(0.3-0.06)+(0.3-0.06)]*2-0.10=0.86n=(2.4-0.60)/0.10+1=19G=0.395*l*n*16=38.73 Kgc. 钢筋小计:230.4+38.73=269.13 KgDL9: 5根a. 主筋:G=3.9*(6*1.21+4*1.58)*5=264.81Kgb. 箍筋:l=[(0.3-0.06)+(0.35-0.06)]*2-0.10=0.96n=(3.9-0.60)/0.20+1=17.5G=0.395*l*n*5=34.13 Kgc. 钢筋小计:264.81+34.13=298.94 KgDL10: 2根a. 主筋:G=(3.0+3.6)*(6*2.98+2*3.85)*2=337.66Kgb. 箍筋:l=[(0.3-0.06)+(0.5-0.06)]*2-0.10=1.26n=[(3.0+3.6)-0.60]/0.15+1=41G=0.395*l*n*2=40.81 Kgc. 钢筋小计:337.66+40.81=378.47 Kg钢筋工程量总计:17209.233 Kg混凝土工程量:V=(2.1+3.0)*0.35*0.30*8+6.6*0.35*0.30*4+4.8*0.35*0.3*16+ (3.0+2.1+1.5)*0.4*0.3*6+(3.0+2.1)*0.35*0.3*6+(3.3+2.4)*0.3*0.3*6+(1.5+1.5+1.5)*0.4*0.3*6+3.9*0.35*0.3*5+3.6*0.5*0.3*2+3.0*0.5*0.3*2=106.2 m32.2 底层、二层柱、梁、楼板工程量计算2.2.1 柱-模扳:Z-1:18根 b*h=0.45*0.45 h=4.35-0.45S=18*0.45*(4.35-0.45)*4=126.36 m2Z-2:6根 b*h=0.45*0.45 h=4.35-0.45S=6*0.45*(4.35-0.45)*4=42.12 m2Z-3:8根 b*h=0.45*0.45 h=4.35-0.45S=8*0.45*(4.35-0.45)*4=56.16 m2Z-4:4根 b*h=0.45*0.45 h=4.35-0.45S=4*0.45*(4.35-0.45)*4=28.08 m2Z-5:2根 b*h=0.5*0.5 h=4.35-0.45S=2*0.5*(4.35-0.45)*4=15.6 m2Z-6:2根 b*h=0.4*0.4 h=4.35-0.45S=2*0.4*(4.35-0.45)*4=12.48 m2Z-7:2根 b*h=0.4*0.4 h=4.35-0.45S=2*0.4*(4.35-0.45)*4=12.48 m2Z-8:2根 b*h=0.5*0.5 h=4.35-0.45S=2*0.5*(4.35-0.45)*4=15.6 m2底层柱模板工程量总计:606.72m2柱-钢筋:G=(52+42+25+19)*18+(52+39+85+66)*6+(24+18+151+93)*8+(113+96+291+598)*4+(87+112+79+67)*2+(107+143+89+47)*2=36541Kg柱-混凝土:V=0.45*0.45*(4.35-0.45)*36+0.5*0.5*(4.35-0.45)*4+0.4*0.4*(4.35-0.45)*4=107.4 m32.2.2 梁-模板:S=(0.4*2+0.25)*3.3*10+(0.45*2+0.25)*5.1*12+(0.3*2+0.25)*4.8*16+(0.35*2+0.25)*4.8*16+(0.45*2+0.25)*10.2*6+(0.4*2+0.25)*13.2*3+(0.3*2+0.25)*2.4*5+(0.3*2+0.25)*3.3*2=517.42 m2梁-钢筋:KL1: 8根a. 主筋:G=5.1*(4*2.0+2*1.58+2*1.21)*8=554.064Kgb. 箍筋:l=[(0.25-0.06)+(0.35-0.06)]*2-0.10=0.85n=(5.1-0.06)/0.2+1=25.2G=0.395*l*n*8=69.84 Kgc.钢筋小计:554.064+69.84=623.904 KgKL2: 8根a. 主筋:G=3.3*8*3.85*8=813.12Kgb. 箍筋:l=[(0.25-0.06)+(0.40-0.06)]*2-0.10=0.96n=(3.3-0.06)/0.2+1=17.2G=0.395*l*n*8=54.61 Kgc. 钢筋小计:813.12+54.61=867.73 KgKL3: 8根a. 主筋:G=3.6*(4*2.47+1*2.0+2*3.85)8=563.904Kgb. 箍筋:l=[(0.25-0.06)+(0.45-0.06)]*2-0.10=1.06n=(3.6-0.06)/0.2+1=18.7G=0.395*l*n*8=63.64 Kgc. 钢筋小计:563.904+63.64=627.546 KgKL4: 8根a. 主筋:G=3.0*8(6*2.98+2*2.47+4*3.85)*8=917.28Kgb. 箍筋:l=[(0.25-0.06)+(0.35-0.06)]*2-0.10=0.86n=(3.0-0.06)/0.2+1=15.7G=0.395*l*n*8=43.482 Kgc. 钢筋小计:917.28+43.482=960.762 KgKL5: 8根a. 主筋:G=2.1*(2*1.21+2*1.58+2*0.888)*8=123.581Kgb. 箍筋:l=[(0.25-0.06)+(0.45-0.06)]*2-0.10=1.06n=(2.1-0.06)/0.2+1=11.2G=0.398*l*n*8=40.50 Kgc. 钢筋小计:123.581+40.50=164.082 KgKL6: 32根a. 主筋:G=4.8*(5*1.58+1*1.21)*32=1399.296Kgb. 箍筋:l=[(0.25-0.06)+(0.45-0.06)]*2-0.10=1.06n=(4.8-0.06)/0.2+1=24.7G=0.398*l*n*8=84.376 Kgc. 钢筋小计:1399.296+84.376=1483.672 KgKL7: 8根a. 主筋:G=3.3*(2*0.888+3*1.58+2*2.0)*8=277.622Kgb. 箍筋:l=[(0.25-0.06)+(0.45-0.06)]*2-0.10=1.06 n=(3.3-0.06)/0.2+1=17.2G=0.398*l*n*8=60.751 Kgc. 钢筋小计:277.622+60.751=338.373 KgKL8: 10根a. 主筋:G=2.4*(5*1.58+1*2.47)*10=248.88Kgb. 箍筋:l=[(0.25-0.06)+(0.30-0.06)]*2-0.10=0.76 n=(2.4-0.06)/0.2+1=12.7G=0.398*l*n*10=39.322 Kgc. 钢筋小计:248.88+39.322=288.202 KgKL9: 6根a. 主筋:G=2.1*(2*0.888+2*2.0+2*2.47)*6=135.022Kgb. 箍筋:l=[(0.25-0.06)+(0.40-0.06)]*2-0.10=1.08 n=(2.1-0.06)/0.2+1=11.2G=0.398*l*n*6=30.948 Kgc. 钢筋小计:135.022+30.948=165.971 KgKL10: 6根a. 主筋:G=5.1*(3*2.0+2*2.47)*6=334.764Kgb. 箍筋:l=[(0.25-0.06)+(0.50-0.06)]*2-0.10=1.16n=(5.1-0.06)/0.2+1=26.2G=0.398*l*n*6=74.792 Kgc. 钢筋小计:334.764+74.792=409.56 KgKL11: 6根a. 主筋:G=4.5*(4*2.0+4*1.58)*6=386.64 Kgb. 箍筋:l=[(0.25-0.06)+(0.35-0.06)]*2-0.10=0.86n=(4.5-0.06)/0.2+1=23.2G=0.398*l*n*6=49.288 Kgc. 钢筋小计:386.64+49.288=165.971 Kg钢筋总计:19097.19 Kg梁-混凝土:V=0.4*0.25*3.3*10+0.45*0.25*5.1*12+0.3*0.25*4.8*16+0.35*0.25*4.8 *16+0.45*0.25*10.2*6+0.4*0.25*13.2*3+0.3*0.25*2.4*5+0.3*0.25*3.3*2=105.975 m32.2.3 楼板:现浇楼板楼板-模板:S=6.6*(2.1+3.0+2.1+1.5+1.5)*2+4.8*(3.0+2.1+1.5)*8+3.3*(3.0+2.1+1.5*3)*2+2.4*(3.0+2.1+1.5*3)*2+4.8*(3.0+2.1+1.5*3)+3.0*3.9+3.6*(3.9+2.4+1.5)=1477m2钢筋总计:G=9854.2Kg楼板-混泥土:V=221.55m32.3 三层柱、梁、楼板工程量2.3.1 柱-模板:Z-1:18 b*h=0.45*0.45 h=3.6-0.45S=18*0.45*(3.6-0.45)*4=102.06m2Z-2: 6 b*h=0.45*0.45 h=3.6-0.45S=6*0.45*(3.6-0.45)*4=34.02 m2Z-3: 8 b*h=0.45*0.45 h=3.6-0.45S=8*0.45*(3.6-0.45)*4=45.36 m2Z-4: 4 b*h=0.45*0.45 h=3.6-0.45S=4*0.45*(3.6-0.45)*4=22.68 m2Z-5: 2 b*h=0.45*0.45 h=3.6-0.45S=2*0.5*(3.6-0.45)*4=12.6 m2Z-6: 2 b*h=0.4*0.4 h=3.6-0.45S=2*0.4*(3.6-0.45)*4=10.08 m2Z-7: 2 b*h=0.5*0.5 h=3.6-0.45S=2*0.5*(3.6-0.45)*4=12.6 m2柱-模板总计:604.32 m2柱-钢筋:G=(52+39+55+21)*18+(38+28+21+33)*6+(49+57+151+93)*8+(113+96+291+598)*4+(79+67+13+11)*2+(29+22+27+12)*2+(89+47+26+49)*2=36012Kg柱-混凝土:V=0.45*0.45*(3.6-0.45)*36+0.5*0.5*(3.6-0.45)*4+0.4*0.4*(3.6-0.45)*2=98.77 m32.3.2 梁-模板:S=[(0.35*2+0.25)*(2.1+3)*6+3.3*(0.25+0.3*2)*10+4.8*(0.25+0.35*2)*12+(2.1+1.5)*(0.25+0.45*2)*5+4.8*(0.25+0.3*2)*4+(1.5+1.5)*(0.25+0.45*2)*2+3.3*(0.25+0.45*2)*2]*2+(2.4+4.8+2.4)*(0.25+0.6*2)+(2.4+4.8+2.4)*(0.25+0.35*2)+(1.5+2.1)*(0.25+0.35*2)*2=505.42 m2梁-钢筋:KL1: 8根a. 主筋:G=(3+2.1)*(4*2.47+2*1.58+1*1.21)*8=581.0Kgb. 箍筋:l=[(0.25-0.06)+(0.35-0.06)]*2-0.10=0.86n=(5.1-0.06)/0.2+1=26.2G=0.398*l*n*8=74.0 Kgc.钢筋小计:581.0+74.0=655.0 KgKL2: 4根a. 主筋:G=(3+2.1)*(4*2+4*2.98+1*2.47)*4=458.2 Kgb. 箍筋:l=[(0.25-0.06)+(0.45-0.06)]*2-0.10=1.06n=(5.1-0.06)/0.2+1=26.2G=0.398*l*n*4=46.0 Kgc. 钢筋小计:458.2+46.0=504.2 KgKL3: 6根a. 主筋:G=[3*(2*2.47+4*3.85+2*3.85+2*2.98)]*6=612.0 Kgb. 箍筋:l=[(0.25-0.06)+(0.35-0.06)]*2-0.10=0.86n=(3-0.06)/0.2+1=15.7G=0.398*l*n*6=32.90 Kgc. 钢筋小计:612.0+32.90=644.9 KgKL4: 2根a. 主筋:G=3*(2*2+4*2.98+2*2.98+2*2.47)*2=146.1 Kgb. 箍筋:l=[(0.25-0.06)+(0.35-0.06)]*2-0.10=0.86n=(3-0.06)/0.2+1=15.7G=0.398*l*n*2=11.00 Kgc. 钢筋小计:146.1+11.00=157 KgKL5:4根a. 主筋:G=(2.1+1.5)*(2*2.47+1*3.85+2*2.47)*4=198.0 Kgb. 箍筋:l=[(0.25-0.06)+(0.45-0.06)]*2-0.10=1.06n=(3.6-0.06)/0.2+1=16G=0.398*l*n*4=27.70 Kgc. 钢筋小计:198.0+27.70=225.7 KgKL6:10根a. 主筋:G=2.1*(2*2+2*2.98+1*2.47+2*2+2*2.98)*10=470.19 Kgb. 箍筋:l=[(0.25-0.06)+(0.45-0.06)]*2-0.10=1.06n=(2.1-0.06)/0.2+1=11.2G=0.398*l*n*10=50.63 Kgc. 钢筋小计:470.19+50.63=520.82 KgKL7:6根a. 主筋:G=(3.3+3.3)*(2*3.85+3*3.85+2*2.472+2*2)*6=1116.32 Kg b. 箍筋:l=[(3.3+3.3)-0.06]*2-0.10=12.98n=(6.6-0.06)/0.2+1=4.27G=0.398*l*n*6=132.35 Kgc. 钢筋小计:1116.32+132.35=1248.67 KgKL8:8根a. 主筋:G=4.8*(2*2.47+1*1.21+2*2.47+3*1.58)*8=607.87 Kg b. 箍筋:l=[(0.25-0.06)+(0.35-0.06)]*2-0.10=0.86n=(4.8-0.06)/0.2+1=24.7G=0.398*l*n*8=68.46 Kgc.钢筋小计:607.87+68.46=676.33 KgKL9:16根a. 主筋:G=4.8*(2*2.47+1*1.21+2*2.47+3*1.58)*16=1215.74v b. 箍筋:l=[(0.25-0.06)+(0.35-0.06)]*2-0.10=0.86n=(4.8-0.06)/0.2+1=24.7G=0.398*l*n*16=136.91 Kgc. 钢筋小计:1215.74+136.91=1352.65 KgKL10:8根a. 主筋:G=4.8*(2*1.58+1*1.21+2*1.58)*8=289.15 Kgb. 箍筋:l=[(0.25-0.06)+(0.3-0.06)]*2-0.10=0.76n=(4.8-0.06)/0.2+1=24.7G=0.398*l*n*8=60.50 Kgc.钢筋小计:289.15+60.50=349.65 KgKL11:4根a. 主筋:G=3.3*(2*1.58+3*1.58)*4=104.28b. 箍筋:l=[(0.25-0.06)+(0.45-0.06)]*2-0.10=1.06n=(3.3-0.06)/0.2+1=17.2G=0.398*l*n*4=30.38 Kgc. 钢筋小计:104.28+30.38=134.66 KgKL12:4根a. 主筋:G=2.1*(2*0.888+2*1.21)*4=35.25 Kgb. 箍筋:l=[(0.25-0.06)+(0.45-0.06)]*2-0.10=1.06n=(2.1-0.06)/0.2+1=11.2G=0.398*l*n*4=20.25 Kgc. 钢筋小计:35.25+20.25=55.5 KgKL13:1根a. 主筋:G=(2.4*2+4.8)*(2*2+1*1.21+2*2+3*1.58)*1=133.92b. 箍筋:l=[(0.25-0.06)+(0.35-0.06)]*2-0.10=0.86n=(2.4*2+4.8-0.06)/0.2+1=48.7G=0.398*l*n*1=16.77 Kgc. 钢筋小计:133.92+16.77=150.69 KgKL14:1根a. 主筋:G=(2.4*2+4.8)*(2*2.98+2*2+2*2.98*2+1*2.47)*1=233.76 Kg b. 箍筋:l=[(0.25-0.06)+(0.6-0.06)]*2-0.10=1.36n=[(2.4*2+4.8)-0.06)]/0.2+1=48.7G=0.398*l*n*1=26.52 Kgc. 钢筋小计:233.76+26.52=260.28 KgKL15:2根a. 主筋:G=1.5*(3*1.21+2*1.21+3*1.58)*2=32.37 Kgb. 箍筋:l=[(0.25-0.06)+(0.35-0.06)]*2-0.10=0.86n=[1.5-0.06)]/0.2+1=8.2G=0.398*l*n*2=6.16 Kgc. 钢筋小计:32.37+6.16=38.53 Kg钢筋总计:17026.54 Kg梁-混凝土:V=(0.35*0.25*5.1*6+3.3*0.25*0.3*10+4.8*0.25*0.35*12+3.6*0.25*0.45*5+4.8*0.25*0.3*4+3*0.25*0.45*2+3.3*0.25*0.45*2*2+9.6*0.25*0.6+9.6*0.25*0.35+3.6*0.25*0.35=99.427m32.3.3 楼板:现浇混泥土板楼板-模板:S=3.3*5.1*8+4.8*3.6*8+3.0*4.8*8+2.1*4.8*8+1.5*3*3+3.3*4.5*5 +3.3*5.1*5+3.3*2.1*2+2.4*3.6*2+4.8*3.6=689.04 m2楼板-钢筋:G=9736.9Kg楼板-混泥土:V=207.51m2第三章砌体结构工程量3.1 底层、二层3.1.1 墙量:门面积:Sm=1.2*2.1*1+0.9*2.1*16=40.47 m2窗面积:Sc=12*2.4*1.8+10*1.5*1.8+1*2.4*0.9=162m3墙体面积:S=(4.35-0.45)*(10.2*4+6.6*4+19.2*4+6.6*6+9.6*6+5.7*6+7.8*2+3.6+3.0*2+3.9)- Sm-Sc=2147.35 m3V=0.24S=0.24*2147.35=542.627 m3墙体抹灰面积:S抹灰=2S=2*2147.35=4294.69 m23.1.2 楼地面:底面抹灰:V=FH=0.01*1508=15.08 m33.2 三层3.2.1 墙量门面积:Sm=10*0.9*2.1+2*1.5*2.1+2*1.2*2.1=40.47 m2窗面积:Sc=12*2.4*1.8+10*1.5*1.8+2*1.2*1.2=162 m2墙体面积:S=(3.6-0.45)*(10.2*4+6.6*4+19.2*4+6.6*2+9.6*4+3.3*4+4.8*4*2+3.3*2+1.5*2+9.6)- Sm- Sc=2147.35 m2V=0.24S=0.24*2147.35=542.627 m3墙体抹灰面积:S抹灰=2S=2*2147.35=4294.69 m23.2.2 楼地面底面抹灰:V=FH=0.01*1508=15.08 m3 3.2.3 屋面工程量防水层: S=1508m2细石混泥土屋面:V=1508*0.05=29.54m3。
【例】某工程采用预拌混凝土,已知C20混凝土独立基础85m3,独立基础模板接触面积179.1m2,用工料单价法计算工程造价(按三类工程取费,市区计取税金,预拌混凝土市场价330元/m3),其他可竞争措施项目仅计取“生产工具用具使用费”、“检验试验配合费”。
工程预算表取费程序表例题解析:1.其他可竞争措施项目中的其他11项费用按建设工程项目的实体项目和可竞争措施项目(11项费用除外)中人工费与机械费之和乘以相应系数计算。
2.企业管理费、规费、利润的计费基数是相同的,即按直接费中的人工费与机械费之和乘以相应费率,其中直接费包括直接工程费和措施费。
3.价款调整包括人、材、机的价差调整,价款调整不参与取企业管理费、规费和利润。
4.注意2012年新定额安全生产、文明施工费计算的变化。
【例】如图,计算人工挖土方、钎探、回填土、余土外运、砖基础工程量。
(土质类别为二类,垫层C15砼,室外地坪-0.300)【例】如下图所示尺寸,求混凝土带型基础模板和混凝土的工程造价。
备注:按三类工程取费,企业管理费费率为17%,利润费率为10%,规费费率为25%,税金税率为3.48%,安全生产、文明施工费为4.25%。
解:(1)带型基础外侧模板 S1=[(4.5×2+0.5×2)×2+(4.8+0.5×2)×2]×0.3=9.48 m2(2) 带型基础内侧模板 S2=[(4.5-0.5×2)×2+(4.8-0.5×2)×2]×0.3×2=8.76 m2带型基础模板工程量 S= S1+ S2=18.24 m2(模板工程量3分)(3)带形基础混凝土外墙 V=1×0.3×(4.5+4.5+4.8)×2=8.28 m3 (混凝土工程量2分)内墙 V=1×0.3×(4.8-1)=1.14 m3 (混凝土工程量2分)合计:9.42 m3预算表取费:1. 直接费 3329.7元2.其中人+机 1021.36元3.企业管理费 1021.36×17%=173.63元4.规费 1021.36×25%=255.34元5.利润 1021.36×10%=102.14元6安全生产、文明施工费 3860.81×4.25%=164.08元7.税金 4024.89×3.48%=140.07元【例】如图所示内外墙毛石基础、砖基础平面图和剖面图,毛石基础每级高度为350mm,试计算砌体基础工程量。
工程量计算案例范文案例:地一座高层住宅小区的建设工程量计算一、项目背景二、工程量计算1.横向建筑工程量计算(1)高层住宅楼-结构工程量:主体结构总建筑面积×建筑面积综合系数×各项构件用量,其中建筑面积综合系数为1.2-安装工程量:根据建筑面积计算,包括电气安装、给排水等。
-装饰工程量:根据建筑面积计算,包括室内装修、外立面装饰等。
(2)商业综合体-结构工程量:主体结构总建筑面积×建筑面积综合系数×各项构件用量。
-安装工程量:根据建筑面积计算,包括空调、给排水等。
-装饰工程量:根据建筑面积计算,包括室内装修、外立面装饰等。
2.纵向建筑工程量计算考虑到该住宅小区将建设地下停车场,地上设有多层停车设施,还有电梯等垂直交通设备。
工程量计算包括:-结构工程量:地下停车场结构、多层停车设施结构等。
-安装工程量:电梯、空调、电气等。
-装饰工程量:室内装修、外立面装饰等。
3.基础设施工程量计算该住宅小区的基础设施包括供水、排水、供电、燃气等。
工程量计算包括:-水工程量:供水管道、供水设备、水泵等。
-排水工程量:排水管道、排水设备等。
-电工程量:电缆、电器设备等。
-燃气工程量:燃气管道、燃气设备等。
4.其他工程量计算为了满足住宅小区的运营需求,还需要考虑相关的其他工程量计算,包括绿化工程、道路工程、景观工程等。
三、总结该住宅小区的工程量计算涵盖了横向建筑、纵向建筑、基础设施以及其他工程的计算,这些数据将为项目实施提供参考,并为合理安排资源和制定预算提供支持。
工程量计算作为工程项目管理的一项重要任务,必须准确、细致地进行,以确保工程项目的顺利进行。
工程工程量计算实例
一、工程量计算概述
二、工程量计算
(一)土石方工程量计算
1.土石方工程量计算公式:
总量=挖方量+衬砌量+碾压量+其它;
2.土石方工程量计算结果:
根据上文提到的工程信息,按照国家工程技术标准进行计算:挖方量:1000m3;
衬砌量:1500m3;
碾压量:500m3;
其它:200m3
总量:3200m3
(二)主体结构工程量计算
1.主体结构工程量计算公式:
总量=混凝土量+钢筋量+模板量+其它;
2.主体结构工程量计算结果:
根据上文提到的工程信息
混凝土量:2500m3;
钢筋量:200t;
模板量:500m2;
其它:300m3
总量:3200m3
(三)装饰装修工程量计算
1.装饰装修工程量计算公式:
总量=墙面饰面量+地面饰面量+吊顶饰面量+其它;2.装饰装修工程量计算结果:
根据上文提到的工程信息。
土方计算题:
1、如图所示人工挖基槽(三类土),墙厚240mm,工作面每边放出300mm,从垫层下表面开始放坡,计算基槽土方工程量。
(10分)
【解】由题意已知人工挖土深度H为1.7m,故放坡系数K取0.33,B=0.6m
外墙槽长:(25+5)×2=60(m)内墙槽长:5-0.3-0.3=4.4(m)
所以,槽长L=60+4.4=64.4(m)
基槽土方工程量V=(B+2C+KH)×H ×L= (0.6+2×0.3+0.33×1.7) ×1.7×64.4 =93.35(m3)2、某地槽长度25.50m,槽深1.80m,混凝土基础垫层C15宽0.90m,有工作面,三类土,挖出的土堆放在槽边。
(如图所示)
问题1:按河北省综合基价工程量计算规则计算人工挖地槽工程量。
(10分)
问题2:并根据下表计算出挖沟槽的工程造价和所用人工数。
(10分)
注:某省综合基价:
定额号子目名称单位人工费材料
费
机械
费
基价
人工
工日数
A1-4
人工挖地槽
普硬土 2m以内
100m3 1138.2 1138.2 37.94 300900300
k=0.33
人工挖沟槽的工程造价:96.11/100*1138.2=1093.92元人工工日数:96.11/100*37.94=36.46工日。
工程量计算例题例题1:下图L3为一建筑物的局部设计,其混凝土板厚为120mm,试计算该L3混凝土工程量,并套定额计算省价直接工程费。
解:1、混凝土工程量计算:(0.4-0.12)×0.15×(9-0.37-0.185+0.12)=0.28×0.15×8.565=0.36 m3(次梁长至主梁侧边)2、套定额:梁浇筑4-2-24:0.36 m3×1995.05元/10 m3÷ 10=71.82元砼制作4-4-16:0.36 m3×1.015×154.87元/10 m3÷ 10=5.66元合计:71.82+5.66=77.48元例题2:下图L1为一建筑物的局部设计,梁端钢筋锚固长度为350mm, 钢筋保护层厚度为25mm,与L1相交的L2的断面同L1,箍筋弯钩180度平直段为3d。
试计算该L1混凝土工程量及钢筋工程量,并套定额计算省价直接工程费。
解:1、混凝土工程量计算:0.29×0.37×(6.6+0.12+0.185) =0.29×0.37×6.905=0.74 m3套定额:梁浇筑4-2-24:0.74 m3×1995.05元/10 m3÷ 10=147.63元砼制作4-4-16:0.74 m3×1.015×154.87元/10 m3÷ 10=11.63元合计:147.63+11.63=159.26元2、钢筋工程量计算:上部筋2φ25:(3.3+0.12{轴线外}-0.185{L2断面的1/2}-1.5+0.6-0.025{保护层厚}+0.35{梁端钢筋锚固长度}+12.5×0.025{Ⅰ级钢筋弯钩长度})+(3.3+0.185{轴线外}-0.185{L2断面的1/2}-1.5+0.6-0.025{保护层厚}+0.35{梁端钢筋锚固长度}+12.5×0.025{Ⅰ级钢筋弯钩长度})=2.9725+3.0375=6.01 m×3.85kg/m=23.14kg×2根=46.28kg2φ25:(1.5+0.185{L2断面的1/2})×2+12.5×0.025{Ⅰ级钢筋弯钩长度}=3.68 m×3.85 kg/m =14.18kg×2根=28.36kg下部筋2φ25:3.3×2+0.12+0.185{轴线外}-0.025{保护层厚}×2+12.5×0.025{Ⅰ级钢筋弯钩长度}=7.17m×3.85kg/m=27.594kg×2根=55.19kg1φ166.6+0.12+0.185+0.414×(0.4-0.025×2)×2{弯起增加长度}+0.35×2{梁端钢筋锚固长度}-0.025×2{保护层厚}+12.5×0.016{Ⅰ级钢筋弯钩长度}=8.1946m×1.58 kg/m =12.95kgφ8@100/200箍筋箍筋根数:(3.3-0.25-0.185-0.6×2)/0.2+1+0.6/0.1×2=21根(3.3-0.185-0.185-0.6×2)/0.2+1+0.6/0.1×2=22根箍筋长度:(0.37-0.025×2{保护层厚}+0.008{1个箍筋直径}+0.4-0.025×2+0.008)×2+12.5×0.008{Ⅰ级钢筋弯钩长度}=1.47m×(21+22)×0.395 kg/m =25kg套定额:现浇构件圆钢筋φ25:4-1-11(46.28+28.36+55.19)/1000×3994.21元/t=518.57元现浇构件圆钢筋φ16:4-1-712.95/1000×4079.44元/t=52.83元现浇构件箍筋φ8:4-1-5325/1000×4455.31元/t=111.38元例5—3:设计无纱、无亮、单扇镶板门带小百叶10樘,门的洞口尺寸1.0m×2.0m,小百叶尺寸0.3×0.4,计算工程量和省价直接工程费。
工程量清单计价某2m宽的园路,总长为55m,计算其项目清单。
1、计算各分项工程量1>素土夯实S=长×宽=(55+0.05×2)×(2+0.05×2)×0.05=115.71㎡2>150厚碎石垫层V=长×宽×厚度=(55+0.05×2)×(2+0.05×2)×0.15=17.36㎡3>100厚C15素混凝土垫层V=长×宽×厚度=(55+0.05×2)×(2+0.05×2)×0.1=11.57㎡4>400×900×30厚青石板面层,30厚1:3水泥砂浆粘结层S=长×宽=55×0.9=49.5㎡5>180×300×30厚灰浅色蘑菇石面料石,30厚1:3水泥砂浆粘结层S=长×宽=55×0.3×2=33㎡6>180×170×30厚灰浅色蘑菇石面料石,30厚1:3水泥砂浆粘结层S=长×宽=55×0.17×2=18.7㎡7>60厚80宽青石平侧石L=55×2=110m2.园路结构组成面层S=长×宽=(0.6×2+4.8)×(0.6×2+2.4)=21.6㎡结合层V=长×宽=3.6×6=21.6㎡垫层V=长×宽×厚度=(3.6+0.05×2)×(6+0.05×2)×0.1=2.257㎡(一)子目换算1、强度等级换算[例7-5]求C15(16)园路混凝土垫层基价?【解】计算如下:(1)套用定额2-48,基价为2636元/10m2(2)混凝土强度等级由原来的C15(40)(183.25元/m3),换算为C15(16)(200.08元/m3),每立方米混凝土单价增加200.08-183.25=163.83元(3)每10m3混凝土定额用量为10.2m3(4)换算后的定额基价为:2636+16.83*10.200=2807.67元/10m3[例7-6]求1:2水泥砂浆粘结满铺卵石拼花面基价?【解】计算如下:(1)套用定额2-49,基价为846元/10㎡(2)砂浆等级由原来的水泥砂浆1:2.5(210.26元/m3),换算为水泥砂浆1:2(228.22元/m3),每立方米水泥砂浆单价减少228.22-210.26=17.96元(3)每10m2铺装面层水泥砂浆定额用量为0.36m3(4)换算后的定额基价为:846+17.96*0.36=852.47元/10㎡2、厚度换算[例7-7]求某铺装地30厚1:2水泥砂浆找平层基价?【解】套楼地面工程中定额7-3和7-4,水泥砂浆找平层。
地圈梁工程量计算例题1.工程概述一座地圈梁的工程涉及到地圈梁的施工,包括挖土、浇筑混凝土、安装螺栓等工作。
2.施工工艺流程(1)测量定位:根据设计图纸确定地圈梁的位置,并进行必要的测量和定位工作。
(2)挖土:使用挖掘机进行挖土,确保挖掘到所需的深度和宽度。
(3)浇筑混凝土:使用混凝土搅拌车将预制好的混凝土输送到施工现场,通过泵车将混凝土灌入挖掘好的坑中。
(4)安装螺栓:在混凝土未干固之前,将螺栓固定在地圈梁的预留孔洞中,以便后续的钢轨安装。
3.计算地圈梁的量(1)挖土量:通过测量挖土的深度和宽度,计算挖掘土方的体积。
假设地圈梁的尺寸为10m×3m×2m,则挖土量为10m×3m×2m=60m³。
(2)混凝土用量:根据地圈梁的尺寸和设计要求,计算所需的混凝土用量。
假设地圈梁的尺寸为10m×3m×2m,混凝土的配合比为1:2:4(水泥:砂:石子),则所需的混凝土用量为10m×3m×2m×7(配合比系数)=420m³。
(3)钢筋用量:根据地圈梁的尺寸和设计要求,计算所需的钢筋用量。
假设地圈梁的尺寸为10m×3m×2m,钢筋的配筋率为2%,则所需的钢筋用量为10m×3m×2m×2%(配筋率)=1.2t。
(4)螺栓用量:根据地圈梁的尺寸和设计要求,计算所需的螺栓用量。
假设地圈梁的尺寸为10m×3m×2m,预留孔洞的间距为0.5m,螺栓的间距为1m,则所需的螺栓用量为(10m/0.5m)×(3m/1m)×(2m/1m)=120个。
4.材料采购和人工需求(1)混凝土:根据所需的混凝土用量,购买420m³的混凝土,并使用混凝土搅拌车将混凝土送到施工现场。
(2)钢筋:购买1.2t的钢筋,并进行切割和弯曲处理,以适应地圈梁的形状。
挖沟槽土方清单工程量例题
假设我们要计算挖沟槽的土方工程量,首先需要明确挖沟槽的
尺寸和深度。
假设挖沟槽的尺寸为长20米,宽1米,深1.5米。
现
在我们来计算挖沟槽的土方工程量。
首先,我们需要计算挖掘的总体积。
挖槽的总体积可以通过挖
槽的长度、宽度和深度来计算。
挖槽的体积 = 长× 宽× 深 =
20米× 1米× 1.5米 = 30立方米。
其次,我们需要考虑挖掘过程中的回填因素。
通常情况下,挖
槽后需要进行回填,回填的土方量等于挖槽的土方量。
因此,挖槽
的土方工程量为30立方米。
除了上述的基本计算,还需要考虑一些特殊情况,比如挖槽过
程中的土壤类型、挖槽的形状是否规则等因素,这些都会对土方工
程量的计算产生影响。
此外,还需要考虑挖槽过程中可能产生的浪
费和损耗,这些都需要在计算土方工程量时进行合理的估算和调整。
总的来说,挖沟槽土方清单工程量的计算需要考虑挖槽的尺寸、深度、土壤类型、回填因素等多个方面的因素,以确保计算的准确
性和全面性。
希望这个例题能够帮助你更好地理解挖沟槽土方工程量的计算方法。
【例1】某高校实习工厂如图13.5、13.6所示,要求地面做现浇整体水磨石面层,预制水磨石成品踢脚线。
试计算其工程量。
[解](1)地面水磨石整体面层工程量S = (7.20 - 0.24)×(8.10–- 0.24) + (3.60–- 0.24) ×(3.00-0.24)+(3.60–0.24)×(5.10-0.24)= 80.31m2(2)预制水磨石成品踢脚线工程量L = (8.10 +7.20 –2×0.24+3.00 +3.60 -2×0.24+5.10+3.60-2×0.24) ×2- 1.0×4–1.5×2 + 0.12×12 +0.24×4= 53.72 m图13.5平面图图13.6 剖面图【例2】某建筑共6层,楼梯设计如图13.7所示,试计算贴大理石面层及型钢栏杆木扶手的工程量。
[解]①楼梯面积(包括踏步、休息平台、以及小于50mm宽的楼梯并)按水平投影面积计算。
楼梯贴大理石面层的工程量S = [(2.7 + 1.6)×(1.6×2+0.6) -(2.7×0.6)]×(6-1)= (4.3×3.8-2.7×0.6)×5= 73.60m2②型钢栏杆木扶手的工程量按工程量计算规则规定,应按水平投影长度乘以1.15的系数。
L =(2.70+0.60)×1.15×2×5 = 37.95m[例13.3]某建筑室外台阶如图13.8所示,平台和台阶均做花岗岩面层,试计算其工程量。
[解]①台阶面层工程量台阶面层(包括踏步及最上一层踏步沿300mm)按水平投影面积计算。
S 台阶=(2.10+4×0.30)×0.30×2 + 1.00×4×0.30= 3.18m2②平台面积S平台= 2.10m×1.00m = 2.10m2图13.7 楼梯间平面图图13.8 台阶示意图图【例3】如图13.5、图13.6所示某高校实习工厂,内墙面及独立柱做中级抹灰、腻子刮平;外墙面普通水泥白石子水刷石。
【例】某工程采用预拌混凝土,已知C20混凝土独立基础85m3,独立基础模板接触面积179.1m2,用工料单价法计算工程造价(按三类工程取费,市区计取税金,预拌混凝土市场价330元3),其他可竞争措施项目仅计取“生产工具用具使用费”、“检验试验配合费”。
工程预算表取费程序表例题解析:1.其他可竞争措施项目中的其他11项费用按建设工程项目的实体项目和可竞争措施项目(11项费用除外)中人工费与机械费之和乘以相应系数计算。
2.企业管理费、规费、利润的计费基数是相同的,即按直接费中的人工费与机械费之和乘以相应费率,其中直接费包括直接工程费和措施费。
3.价款调整包括人、材、机的价差调整,价款调整不参与取企业管理费、规费和利润。
4.注意2012年新定额安全生产、文明施工费计算的变化。
【例】如图,计算人工挖土方、钎探、回填土、余土外运、砖基础工程量。
(土质类别为二类,垫层C15砼,室外地坪-0.300)【例】如下图所示尺寸,求混凝土带型基础模板和混凝土的工程造价。
备注:按三类工程取费,企业管理费费率为17%,利润费率为10%,规费费率为25%,税金税率为3.48%,安全生产、文明施工费为4.25%。
解:(1)带型基础外侧模板 S1=[(4.5×2+0.5×2)×2+(4.8+0.5×2)×2]×0.3=9.48 m2(2) 带型基础内侧模板 S2=[(4.5-0.5×2)×2+(4.8-0.5×2)×2]×0.3×2=8.76 m2带型基础模板工程量 S1+ S2=18.24 m2(模板工程量3分)(3)带形基础混凝土外墙 1×0.3×(4.5+4.5+4.8)×2=8.28 m3 (混凝土工程量2分)内墙 1×0.3×(4.8-1)=1.14 m3 (混凝土工程量2分)合计:9.42 m3预算表取费:1. 直接费 3329.7元2.其中人+机 1021.36元3.企业管理费 1021.36×17173.63元4.规费 1021.36×25255.34元5.利润 1021.36×10102.14元6安全生产、文明施工费 3860.81×4.25164.08元7.税金 4024.89×3.48140.07元【例】如图所示内外墙毛石基础、砖基础平面图和剖面图,毛石基础每级高度为350,试计算砌体基础工程量。
【例】如图所示单层建筑,内外墙用M5混合砂浆砌筑。
假设外墙中圈梁、过梁体积为1.2m3,门窗面积为16.98m2;内墙中圈梁、过梁体积为0.2m3,门窗面积为1.8m2。
屋面板为120厚C20钢筋混凝土现浇板,板下有钢筋混凝土圈梁,顶棚抹灰厚10。
内外墙轴线均居于墙中。
试计算砖墙砌体工程量并计算直接工程费用。
图某建筑物平面图、外墙详图解:1.外墙长:L中=(5.00+9.00)×2=28(m)2.内墙净长:L净=5.00-0.36=4.64(m)3.墙高h:由于该建筑为平屋面,内墙高度为3.88(4.0-0.12)m,外墙高度为4.0(含圈梁)m。
4.墙体体积计算见表4-5-8,墙体体积合计为37.17m3(1)外墙砖砌体体积=外墙砖砌体面积×墙厚=(外墙面积-门窗洞口面积)×墙厚-圈、过梁体积=(4×28-16.98)×0.365-1.2=95.02×0.365-1.2=33.48(m3)(2)内墙砖砌体体积=外墙砖砌体面积×墙厚=(内墙面积-门洞口面积)×墙厚-圈、过梁体积=(3.88×4.64-1. 8)×0.0.24-0.2=16.20×0.24-1.2=3.69(m3)(3)合计砖砌体体积=外墙砖砌体体积+内墙砖砌体体积=33.48+3.69=37.17(m3)【例】按图计算砖基础工程量并计算直接工程费用,砖基础用M5.0水泥砂浆砌筑。
计算步骤如下:1.外墙中心线:L中=(6.13+12.13)×2=36.52(m)2.内墙基净长线:L净=6-0.24=5.76(m)3.砖基础断面按图示尺寸结合定额工程量计算规则规定计算,砖基两侧放大脚断面也可查表计算。
砖基础工程量计算公式:基础长度×基础断面积外砖基 V外=36.52×[0.365×1.51+(0.0625×0.12+0.0625×0.18+0.0625×0.30)×20]=36.52×[0.55115+0.075]=36.52×0.62615=22.87(m3)内墙基 V内=5.76×[0.24×1.5l+(0.0625×0.12+0.0625×0.18+0.0625×0.30)×2]=5.76×[0.3624+0.075]=5.76×0.4374=2.52(m3)砖基工程工程量外内=22.87+2.52=25.39(m3)4.定额的套用:M5.0水泥砂浆砌筑砖基础工程执行砖基础定额A3-1,基价1726.47(元/10m3)套用定额计算出直接工程费:【例】见图,按图计算梁式带基工程量,套用定额。
1.工程量计算(混凝土带形基础以实体积计算):混凝土带形基础(36+12)×2×[1.4×0.2+(0.5+1.2)×0.4/2]=96×(0.28+0.34)=59.52(m3)混凝土直形墙(36+12)×2×1.25×0.4 基础梁高度大于1200。
=48(m3)【例】已知1平法配筋图如图5-3-11,计算其钢筋工程量。
【例】某项目肋梁楼板施工图,板中未注明的构造筋为¢8@200;构造筋搭接长度300;板厚120㎜;求有梁板的钢筋用量。
【例】如图,柱子截面为600*650;抗震等级:二级;混凝土强度等级:C30;锚固长度:一级27d 二级 34/38d;搭接长度:一级38d 二级 48/54d;保护层:基础梁 40,框架梁柱 25,板厚15;直径>22时为直螺纹连接,直径≤22时为搭接。
直径>12mm时,10米长一个接头;直径≤12时,12米长一个接头。
【例】根据下表计算1纵筋的工程量。
已知:(1)纵筋底部弯折长度12d, 纵筋柱顶弯折长度12d;(2)保护层厚度30;(3)钢筋采用机械连接;(4)取2.5m,柱相邻纵筋连接接头应相互错开,错开长度取35d;(5)钢筋理论重量:Φ22:2.98 ;Φ25:3.85【例】如图所示尺寸,屋面防水采用改性沥青防水卷材(3+3),计算屋面防水工程量。
解:屋面第一层卷材防水面积=水平投影面积+弯起部分面积+附加层面积(1)水平投影面积=(3.3×2+8.4-0.24)×(4.2+3.6-0.24)+(8.4-0.24)×1.2S1+(2.7-0.24)×1.5=125.07m2(2)弯起部分面积=[(14.76+7.56)×2+1.2×2+1.5×2]×0.25=12.51m2S2(3)附加层面积=[(14.76+7.56)×2+1.2×2+1.5×2]×0.15+0.25×0.15×12=7.96 m2S3= 145.54m2因此,屋面第一层卷材防水工程量 S123屋面第二层卷材防水不需再做附加层,因此=137.58 m212[例]计算下图4-9-31所示卷材平屋面的工程量。
解:1.由图(b)可知带女儿墙无挑檐的屋面工程量=屋面层建筑面积-女儿墙厚度×女儿墙中心线+弯起部分=(40+0.25×2)×(20+0.25×2)-0.365×[(40.5+20.5)×2-0.365×4]+0.25×[(40.5+20.5)×2-0.365×8]=815.42m22.由图 (c)可知带挑檐天沟的屋面工程量=屋面层建筑面积+(L外+檐宽×4)×(檐宽+翻起高度)=(40+0.25×2)×(20+0.25×2)+[(40.5+20.5)×2+0.5×4]×(0.5+0.2)=917.05 m2【例】计算厂区道路中挖路槽、灰土垫层、混凝土路面及路面缩缝工程量,并套用定额。
已知:(1)设定厂区与路面标高分别是:厂区标高-0.450m,路面为-0.550m。
(2)道路宽6m,长100m(直道),工程做法:3:7灰土垫层200厚; C25混凝土220厚;沿路面纵向每5m设缩缝一道,缝高60,沥青木板解: 1.工程量计算人工挖路槽工程量为: 100×6.5×(0.2+0.22+0.1)=338 m3灰土垫层工程量为: 100×6.5=650 m2混凝土路面工程量为:100×6=600 m2路面沥青木板缩缝工程量为:19×6×0.06=6.84 m22.定额应用A10-1 人工挖路槽A10-18 3:7灰土垫层(厚20)A10-73 混凝土路面(厚20)A10-74 混凝土路面厚度增2(*2)A10-84 沥青木板缩缝【例】某高层框架结构发生的特、大型机械有履带式挖掘机3台(1m3以外)、塔式起重机1台(60)、施工电梯1步(75m),试计算特、大型机械进出场及安拆费。
解定额应用:定额编号定额名称单位数量A15-29 履带式挖掘机(1m3以外)场外运输台次 3A15-1 固定式基础(带配重) 座 2A15-3 塔式起重机安拆 台次 1A15-20 施工电梯安拆 (75m 以内) 台次 1A15-46 塔式起重机场外运输 台次 1A15-51 施工电梯场外运输(75m 以内) 台次 1【例】某工程根据地基地质资料及工程其他具体条件,施工方案确定采用轻型井点管排水以降低地下水位,水平集水总管(D100)沿建筑物两侧布置,共四道每道36m ,井点管(D50)间距1.2m ,每根6m ,管井使用期按施工进度计划确定为28天,计算井点降水工程量,并套用定额。
解:1.工程量计算:轻型井点管安装、拆卸:[(36m÷1.2m)+1]×4道=124根井点管使用:124根÷50=2.48套,按3套计算3套×28天=84套天2.定额使用A16-31 轻型井点安装(井点管7m)A16-32 轻型井点拆卸(井点管7m)A16-33 轻型井点使用(井点管7m)【例】图4-2为板式楼梯,C25钢筋混凝土,计算该楼梯清单工程量及编列项目清单。