地下室抗浮计算书
- 格式:pdf
- 大小:100.53 KB
- 文档页数:4
地下室抗浮计算书一、工程概况本工程为_____项目,位于_____,总建筑面积为_____平方米。
其中地下室部分建筑面积为_____平方米,地下室层数为_____层,主要功能为停车库及设备用房。
二、地质条件根据地质勘察报告,场地的地层分布情况如下:1、土层 1:_____,层厚_____米,承载力特征值为_____kPa。
2、土层 2:_____,层厚_____米,承载力特征值为_____kPa。
3、地下水位埋深为_____米,年变化幅度为_____米。
三、抗浮设计水位的确定根据当地的水文地质资料及工程经验,本工程的抗浮设计水位取_____米。
四、地下室结构自重及抗浮配重计算1、地下室底板自重地下室底板厚度为_____米,混凝土强度等级为_____,容重为_____kN/m³。
则底板自重为:底板面积×底板厚度×混凝土容重2、地下室顶板自重地下室顶板厚度为_____米,混凝土强度等级为_____,容重为_____kN/m³。
则顶板自重为:顶板面积×顶板厚度×混凝土容重3、地下室外墙自重地下室外墙厚度为_____米,高度为_____米,混凝土强度等级为_____,容重为_____kN/m³。
则外墙自重为:外墙周长×外墙高度×外墙厚度×混凝土容重4、地下室内部隔墙自重地下室内部隔墙厚度为_____米,高度为_____米,容重为_____kN/m³。
则隔墙自重为:隔墙总长度×隔墙高度×隔墙厚度×容重5、抗浮配重如采用抗浮配重块,其重量为:配重块数量×单个配重块重量将上述各项自重相加,得到地下室结构自重及抗浮配重总和为_____kN。
五、浮力计算浮力等于地下室所排开的水的重量,计算公式为:浮力=水的容重×地下室体积×抗浮设计水位地下室体积为:地下室底板面积×地下室高度水的容重取 10kN/m³,将相关数据代入公式,计算出浮力为_____kN。
地下室抗浮计算书一、工程概况本工程为_____项目,位于_____。
地下室建筑面积为_____平方米,地下层数为_____层,主要用途为停车库及设备用房。
二、地质条件根据地质勘察报告,场地的土层分布情况如下:土层 1:_____,厚度为_____米,重度为_____kN/m³,承载力特征值为_____kPa。
土层 2:_____,厚度为_____米,重度为_____kN/m³,承载力特征值为_____kPa。
……地下水位埋深为_____米,常年最高水位为_____米。
三、抗浮设计水位的确定根据工程所在地区的水文地质资料、周边已建工程的经验以及本工程的实际情况,综合确定抗浮设计水位为_____米。
四、地下室自重计算地下室的自重包括顶板、底板、侧墙、内部隔墙、梁柱等结构构件的自重,以及建筑面层、设备管线等附加恒载。
1、顶板自重顶板厚度为_____米,采用_____混凝土,重度为_____kN/m³,计算面积为_____平方米,则顶板自重为:G1 =厚度×重度×面积=_____×_____×_____ =_____kN2、底板自重底板厚度为_____米,采用_____混凝土,重度为_____kN/m³,计算面积为_____平方米,则底板自重为:G2 =厚度×重度×面积=_____×_____×_____ =_____kN3、侧墙自重侧墙高度为_____米,厚度为_____米,采用_____混凝土,重度为_____kN/m³,计算长度为_____米,则侧墙自重为:G3 =(高度×厚度×重度×长度)×2 (两侧墙)=(_____×_____×_____×_____)×2 =_____kN4、内部隔墙自重内部隔墙厚度为_____米,高度为_____米,采用_____材料,重度为_____kN/m³,计算长度为_____米,则内部隔墙自重为:G4 =(厚度×高度×重度×长度)×数量=(_____×_____×_____×_____)×_____ =_____kN5、梁柱自重根据梁柱的尺寸、材料及布置情况,计算其自重为 G5 =_____kN6、建筑面层及设备管线等附加恒载建筑面层厚度为_____米,重度为_____kN/m³,计算面积为_____平方米;设备管线等恒载按_____kN/m²考虑,则附加恒载为:G6 =(面层厚度×重度×面积)+(恒载×面积)=(_____×_____×_____)+(_____×_____)=_____kN地下室自重总和 G = G1 + G2 + G3 + G4 + G5 + G6 =_____kN五、浮力计算浮力的大小等于地下室排开地下水的体积乘以水的重度。
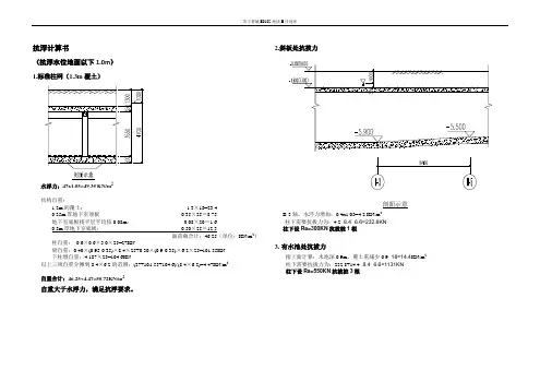
抗浮计算书(抗浮水位地面以下1.0m)1.标准柱网(1.3m覆土)水浮力:47x1.05=49.35 KN/m2结构自重:1.3m的覆土: 1.3×18=23.40.35m厚地下室顶板0.35×25=8.75地下室底板找平层平均按0.08m:0.08×20=1.60.5m厚地下室底板:0.50×25=12.5面荷载合计:46.25(单位:KN/m2)柱自重:0.6×0.6×3.0×25=27KN梁自重:0.40×(0.95-0.35)×8.4×25+0.30×(0.9-0.35)×6.2×25=101.55KN下柱墩自重:4.187×25=104.6KN以上三项自重分摊到8.4×6.2的范围:(27+101.55+104.6)/(8.4×6.2)=4.47KN/m2自重合计:46.25+4.47=50.72KN/m2自重大于水浮力,满足抗浮要求。
2.斜板处抗拔力剖面示意B-3轴,水浮力增加:0.4x1.05=4.2 KN/m2柱下需要抗拔力为:4.2×8.4×6.6=232.8KN柱下设Ra=300KN抗拔桩1根3.有水池处抗拔力接上面计算:水池深0.9m,覆土重减少0.9×18=14.4KN/m2 柱下需要抗拔力为:232.8+14.4×8.4×6.6=1131KN柱下设Ra=550KN抗拔桩3根4.S6商业北侧1.1m覆土处水浮力:47x1.05=49.35 KN/m2结构自重:1.1m的覆土: 1.1×18=19.80.35m厚地下室顶板0.35×25=8.75地下室底板找平层平均按0.08m:0.08×20=1.60.5m厚地下室底板:0.50×25=12.5面荷载合计:42.65(单位:KN/m2)柱自重:0.6×0.6×3.0×25=27KN梁自重:0.40×(0.95-0.35)×8.4×25+0.30×(0.9-0.35)×6.2×25=101.55KN下柱墩自重:4.187×25=104.6KN以上三项自重分摊到8.4×7.6的范围:(27+101.55+104.6)/(8.4×7.6)=3.65KN/m2自重合计:42.65+3.65=46.3KN/m2柱下需要抗拔力为:(49.35-46.3)×8.4×7.6=195KN5.S6商业抗浮计算剖面示意C-D轴,每个柱底水浮力:29.14×10×8.4×1.05=2570.1KN商业一侧结构自重:商业3个结构层(每层折算约0.2m混凝土板):0.2×3×25=15商业地面0.35厚覆土:0.35×18=6.30.35m厚地下室顶板0.35×25=8.75地下室底板找平层平均按0.08m:0.08×20=1.60.5m厚地下室底板:0.50×25=12.5面荷载合计:44.15(单位:KN/m2)1.1m覆土一侧结构自重:1.1m的覆土: 1.1×18=19.80.35m厚地下室顶板0.35×25=8.75地下室底板找平层平均按0.08m:0.08×20=1.60.5m厚地下室底板:0.50×25=12.5面荷载合计:42.65(单位:KN/m2)柱自重:0.6×0.6×3.0×25=27KN下柱墩自重:4.187×25=104.6KN柱底结构自重:(2.45×44.15+3.8×42.65)×8.4+27+104.6=2401KN每个柱下需要抗拔力为:2570.1-2401=168.5KN。
抗浮设计本工程纯地下室部分采用桩基础加抗水板方案,抗水板厚600mm,抗浮设计水位为1213.0,地下室底板顶标高为1210.85。
地下室底板底标高为1210.25m。
因此水头高度Δh=1213.0-1210.25=2.75m水浮力F=2.75x10=27.5KN/m21、纯地下室抗力包括:(地下室顶板覆土按1200mm考虑)①底板自重:0.6X25=15 KN/m2②-2层-1层顶板及梁柱自重:(0.2+0.3)X25=12.5 KN/m2③顶板覆土重:19.2 KN/m2④抗力合计:∑=15+12.5+19.2=46.7KN/m2>1.05F>1.05F=1.05X27.5=28.875 KN/m2因此整体抗浮满足要求。
地下室底板设计一抗水板厚600mm,抗浮设计水位为1213.0m,地下室底板顶标高为1210.85m。
地下室底板底标高为1210.25m。
因此水头高度Δh=1213.0-1210.25=2.75m水浮力F=2.75x10=27.5KN/m2抗力包括:底板自重:0.6X25=15 KN/m2因此水浮力设计值q=1.27x27.5-15=20KN/m2根据抗拔桩设计,总弯矩M0=qL x(L y-2c/3) 2/8=20x7.8x(9) 2/8=1580KN.m柱上板带支座弯矩:(考虑10%的弯矩调幅)M c=0.9β1M0=0.9x0.5x1580=711KN.mAs=M c/(0.9f y h o)=106x711/(0.9x360x550)=3990mm2配HRB400级钢,直径25,间距120。
As=4090mm2≥3990mm2 跨中板带跨中弯矩:(考虑10%的弯矩调幅)M m=1.1β2M0=1.1x0.18x1580=313KN.mAs=M c/(0.9f y h o)=10x313/(0.9x360x550)=1757mm配HRB400级钢,直径18,间距140。
抗浮设计计算书一、设计依据:1、商务营运中心地下室平面图;2、底板以上结构自重标准值;3、商务营运中心岩土工程勘察报告;4、现行国家有关规范规程。
二、计算说明:1、本工程±0.00相当于黄海高程 m;计算单元见附图;2、地下室底板水头水位取室外地面下1米考虑,水压力即-1.0至底板垫层底面;3、钢筋砼自重取25kN/m3,分项系数取0.9,回填土自重取18kN/m3;4、锚杆采用二次高压注浆工艺,锚固地层承载力提高系数取2.0;5、锚杆主要锚固地层设计参数取值如下表:三、抗浮计算,底板底标高均为-5.60m;单根锚杆抗拔承载力200kN:A区1、地下室面积:2168m2;底板厚度300mm;浮力水头4.6m2、底板水浮力:46kPa×2168m2=99728kN;3、底板以上结构自重:51516kN;4、底板及基础梁自重:0.4m×25kN/m3×0.9×2168m2=19512kN;5、抗浮验算:99728kN-51516kN-19512kN=28700kN6、抗浮锚杆根数:28700/200=144根;B区1、地下室面积:454m2;底板厚度300mm;2、底板水浮力:(5.60m-1.0m)×10kN/m3×454 m2=20884kN;3、底板以上结构自重:9852kN;4、底板及基础梁自重:0.4m×25kN/m3×0.9×454 m2=4086kN;5、抗浮验算:20884kN-9852kN-4086kN=6946kN6、抗浮锚杆根数:6946/200=35根;C区1、地下室面积:710m2;底板厚度300mm;2、底板水浮力:(5.60m-1.0m)×10kN/m3×710=32660kN3、底板以上结构自重:16055kN4、底板及基础梁自重:0.4m×25kN/m3×0.9×710=6390kN5、抗浮验算:32660kN-16055kN-6390kN=10215kN6、抗浮锚杆根数:10215/200=52根D区1、地下室面积:2109m2;底板厚度300mm;2、底板水浮力:(5.60m-1.0m)×10kN/m3×2109=97014kN3、底板以上结构自重:52107kN4、底板及基础梁自重:0.4m×25kN/m3×0.9×2109=18981kN5、抗浮验算:97014kN-52107kN-18981kN=25926kN6、抗浮锚杆根数:29327/200=130根E区1、地下室面积:4758m2;底板厚度300mm;2、底板水浮力:(5.60m-1.0m)×10kN/m3×4758=218868kN3、底板以上结构自重:116268kN4、底板及基础梁自重:0.4m×25kN/m3×0.9×4758=42822kN5、抗浮验算:218868kN-116268kN-42822kN=59778kN6、抗浮锚杆根数:259778/200=300根F区1、地下室面积:1483m2;底板厚度300mm;2、底板水浮力:(5.60m-1.0m)×10kN/m3×1483=68218kN3、底板以上结构自重:38688kN4、底板及基础梁自重:0.4m×25kN/m3×0.9×1483=13347kN5、抗浮验算:68218kN-38688kN-13347kN=16183kN6、抗浮锚杆根数:16183/200=81根G区1、地下室面积:1625m2;底板厚度300mm;2、底板水浮力:(5.60m-1.0m)×10kN/m3×1625=74750kN3、底板以上结构自重:41459kN4、底板及基础梁自重:0.4m×25kN/m3×0.9×1625=14625kN5、抗浮验算:74750kN-41459kN-14625kN=18666kN6、抗浮锚杆根数:18666/200=94根H区1、地下室面积:1750m2;底板厚度300mm;2、底板水浮力:(5.60m-1.0m)×10kN/m3×1750=80500kN3、底板以上结构自重:49187kN4、底板及基础梁自重:0.4m×25kN/m3×0.9×1750=15750kN5、抗浮验算:80500kN-49187kN-15750kN=15563kN6、抗浮锚杆根数:15563/200=78根I区1、地下室面积:1649m2;底板厚度300mm;2、底板水浮力:(5.60m-1.0m)×10kN/m3×1649=75854kN3、底板以上结构自重:44269kN4、底板及基础梁自重:0.4m×25kN/m3×0.9×1649=14841kN5、抗浮验算:75854kN-44269kN-14841kN=16744kN6、抗浮锚杆根数:16744/200=84根J区1、地下室面积:1112m2;底板厚度300mm;2、底板水浮力:(5.60m-1.0m)×10kN/m3×1112=51152kN3、底板以上结构自重:24587kN4、底板及基础梁自重:0.4m×25kN/m3×0.9×1112=10008kN5、抗浮验算:51152kN-24587kN-10008kN=16557kN6、抗浮锚杆根数:16557/200=83根K区1、地下室面积:445m2;底板厚度300mm;2、底板水浮力:(5.60m-1.0m)×10kN/m3×445=20470kN3、底板以上结构自重:10689kN4、底板及基础梁自重:0.4m×25kN/m3×0.9×445=4005kN5、抗浮验算:20470kN-10689kN-4005kN=5776kN6、抗浮锚杆根数:5776/200=29根四、抗浮锚杆承载力验算:1、抗浮锚杆成孔直径为130mm,考虑到需提供足够的上覆土压力,故对锚杆5m以下土体采用二次高压注浆工艺;2、残积砾质粘性土④每米锚固力:2.0×πDq si=2.0×π×0.13×25kPa=20.4kN/m;取20kN/m;3、全风化花岗岩⑤每米锚固力:2.0×πDq si=2.0×π×0.13×40kPa=32.7kN/m;取30kN/m;4、强风化花岗岩⑥每米锚固力:2.0×πDq si=2.0×π×0.13×60kPa=48.9kN/m;取45kN/m;5、中微风化花岗岩⑨每米锚固力(无需二次高压注浆):πDq si=π×0.13×250kPa=102.1kN/m;取100kN/m;6、各区抗浮锚杆承载力验算及参考长度:。
地下室抗浮计算书1.基本概况:本工程±0.000绝对高程为29.93m,抗浮设计水位的绝对高程为27.50m,本工程基础底标高-6.30m,地下室底标高-5.30m,抗浮计算水头为3.87m。
基底尺寸为72x32.8m。
基础形式为柱下独立基础加止水板,独立基础大小为3.7x3.7x0.7m,止水板厚度为0.5m,底标高为-5.50m,每侧挑出墙体0.5m。
钢筋混凝土侧墙厚度为350mm,柱大小为550x550mm,室内回填0.5m土,顶板厚度250mm,主梁为400x900mm,次梁为300x650mm,顶板折合混凝土厚度为378mm。
地下室顶回填600mm覆土。
2.水浮力计算:水位以下部分的体积为V=72x32.8x3.87=9139.4m3。
水浮力标准值F=Fk=rV=9139.4x10=91394 kN3.自重计算:止水板自重:G1k=(72+2x0.5)x(32.8+2x0.5)x0.5x25=32110 kN独立基础自重:G2k=3.7x3.7x(0.7-0.5)x25x5x10=3422.5 kN地下室侧墙自重:G3k=(72+2x32.8)x0.35x5.75x25=7074 kN顶板自重:G4k=72x32.8x0.378x25=22317.2kN柱自重:G5k=0.55x0.55x5.75x25x40=1739 kN室内回填土自重:G6k=72x32.8x0.5x18=22140 kN基础止水板挑出部分回填土自重:G7k=(72+32.8x2)x0.5x5.75x18=7120 kN 地下室顶板覆土自重:G8k=72x32.8x0.6x18=25505 kN地下部分自重总和:Gk=ΣGik=121426 kN4.抗浮验算:自重分项系数取0.9G=0.9Gk=0.9x121426=109284 kNF=91394 kN< G=109284 kN抗浮验算满足要求。
止水板计算(1) 设计规范:《建筑结构荷载规范》(GB50009-2002《混凝土结构设计规范》(GB50010-2002)(2) 计算参数:板长: 8.60(m), 板宽: 8.00(m), 板厚: 500(mm)板容重: 25.00(kN/m3), 恒载分项系数: 1.20, 板自重荷载: 15.00(kN/m2) 均布荷载设计值: 10.00(kN/m2)混凝土强度等级:C30, f c=14.30N/mm2,钢筋级别:HRB400, f y=360N/mm2 混凝土保护层: 50(mm), 泊松比: 0.20边界条件:[上边] 简支, [下边] 简支, [左边] 简支, [右边] 简支(3) 受力计算:查《混凝土结构设计规范算例》表4-4-1 P192均布荷载作用下跨中弯矩:λ=b/a=8.60/8.00=1.08 查表:α=0.870 β=1.80 ξ1=0.048 [水平] M x=α×M y=0.870×171.11=148.87kN.m[竖向] M y=0.048×70.70×8.002=171.11kN.m均布荷载作用下支座弯矩:[上端] M=0.00kN.m[下端] M=0.00kN.m[左端] M=0.00kN.m[右端] M=0.00kN.m(4) 配筋计算:跨中,X方向配筋计算:M=148.87kN.m α1=1.00 ξb=0.518 b=1000mmαsmax=ξb(1-0.5ξb)=0.518×(1-0.5×0.518)=0.384αs=M/(α1f c bh20)=148.87×1000×1000/(1.00×14.30×1000.00×50.002)=0.051 由于αs≤αsmax满足要求!=1.00×14.30×1000×{450-[4502-2×148.87×106/(1.000×14.30×1000)]0.5}/360.00 =943.84mm2跨中,Y方向配筋计算:M=171.11kN.m α1=1.00 ξb=0.518 b=1000mmαsmax=ξb(1-0.5ξb)=0.518×(1-0.5×0.518)=0.384αs=M/(α1f c bh20)=171.11×1000×1000/(1.00×14.30×1000.00×450.002)=0.059由于αs≤αsmax满足要求!=1.00×14.30×1000×{450-[4502-2×171.11×106/(1.000×14.30×1000)]0.5}/360.00 =1089.44mm25 钢筋选择:45×f t/f y=45×1.43×360.00=0.200A s,min=ρmin bh=0.00200×1000×500=1000.00mm2A s,max=ρmax bh0=0.02×1000×450=9259.25mm2(1) 横向配筋选择:要求配筋面积:As:=1000.00mm2配筋实际选用:14@130(A s=1184mm2)。
地下室抗浮计算书
1.基本概况:
本工程抗浮设计水位的绝对高程为9.5m,本工程基础底标高-14.000m,地下室底标高-14.000m,抗浮计算水头为4.5m。
基底尺寸为153.08x70.3m。
基础形式为筏板基础加止水板,防水板厚度为0.40m,底标高为-14.00m。
2.水浮力计算:
水位以下部分的体积为
V=153.08x70.3x0.47=5058m3。
水浮力标准值F=Fk=rV=5058x10=50580 kN
50580x1.05=53109
3.自重计算:
建筑恒荷载标准值:G1k=774143kN
建筑活荷载标准值:G2k=239226 kN
自重总和:Gk=ΣGik=1013369 kN
4.抗浮验算:
自重分项系数取0.9
G=0.9Gk=0.9x1013369=912032 kN
F=53109 kN< G=912032 kN
抗浮验算满足要求。
防水板抗浮计算
1.自重计算:取防水板与上部覆土加权平均重度为20KN/ m3
荷载标准值:G1k=1.5x20=30kN/m2
2.水浮力计算:
水浮力标准值:F=0.47x10=4.7 kN/m2
4.7x1.05=5 kN/m2
3.抗浮验算:
自重分项系数取0.9
G=0.9Gk=0.9x30=27 kN/m2
F=5 kN/m2< G=27kN/m2
抗浮验算满足要求。
地下室抗浮计算书图一地下室剖面示意图图二计算平面一、条件:取跨度最大的区域进行计算,选择如图二所示计算区域。
地面标高H1=0.000m,顶板标高H2=-0.650m,底板标高H3=-4.850m,设计水位标高Hw=-1.550m;顶板厚度d1=250mm,考虑梁高,折算厚度取d1=300mm,底板厚度d2=400mm,挡土墙墙厚度d3=300,地下室层高h=4200mm。
底板建筑垫层厚d4=100mm,覆土容重γ`=20kN/m;二、计算:1、水浮力F w=|h3+d2-h w|×10=|-4.850+0.4+1.550|×10=37.00 kN/m2、抗浮力:(1)、顶板自重:G1=d1×25=300×0.001×25=7.5 kN/m(2)、底板自重:G2=d2×25=400×0.001×25=10.0 kN/m(3)、覆土重量:G o=d o×γ=0.650×18=11.70 kN/m抗浮力G=∑(G o+G1+G2+G3+G4+G5+G6)=∑(7.50+10+11.7)=29.2kN/m3、抗拔桩需承担浮力:nR>F w-G/K=37-29.2/1.05=9.2 kN/m图二所示中间桩,桩径1000,桩长取6m,根据《全国民用建筑工程设计技术措施》(地基与基础)(2009版)基桩抗拔承载力特征值:R tk=T ua+G=∑λi q sik u i l i=0.75*45*3.14*1*2+0.7*35*3.14*1*4=520kN其中抗拔系数λ在残积粉质粘土层取0.75,圆砾层取0.7,桩位于残积粉质粘土层桩长取2m,圆砾层取4m。
图二所示,中间桩需承担抗浮面积为:s=14.4*14.2/4=51m2(取周边面积的四分之一)单桩需抵抗浮力为R=51*9.2=469.2kN< R tk=520kN满足要求正截面受拉承载力验算:N=1.35*469.2=634kN≤f y A s=300*3016=905kN满足要求。
地下室局部抗浮计算书一、工程概述本工程为具体工程名称,位于具体地点。
地下室为地下室层数层,建筑面积约为具体面积平方米。
地下室的主要功能为停车场、设备用房等。
二、地质条件根据地质勘察报告,场地的地质情况如下:1、土层分布自上而下依次为:①填土,厚度为具体厚度 1米;②粉质黏土,厚度为具体厚度 2米;③粉砂,厚度为具体厚度 3米;④中砂,厚度为具体厚度 4米;⑤卵石,厚度为具体厚度 5米。
2、地下水位勘察期间地下水位埋深为具体埋深米,年变化幅度为变化幅度米。
三、抗浮设计水位根据当地的水文地质资料和工程经验,本工程的抗浮设计水位取具体水位米。
四、局部抗浮计算区域的确定通过对地下室结构的分析,结合地质条件和周边环境,确定以下区域需要进行局部抗浮计算:1、地下室靠近山体一侧,由于山体可能存在地下水的侧向补给,该区域可能存在较大的浮力。
2、地下室局部存在较深的集水坑或设备基础,其底部的浮力可能超过上部结构的自重。
五、计算模型的建立1、结构模型选取需要进行局部抗浮计算的区域,建立三维结构模型。
模型中包括地下室的底板、墙板、梁柱等结构构件。
2、荷载模型(1)结构自重:根据结构设计图纸,计算地下室结构构件的自重。
(2)覆土重量:考虑地下室顶板上的覆土重量,按照实际覆土厚度和土的容重计算。
(3)活荷载:根据相关规范,取地下室的活荷载标准值。
3、浮力计算根据抗浮设计水位,计算地下室底板所受到的浮力。
浮力等于水的重度乘以水头高度乘以底板面积。
六、局部抗浮验算1、抗浮稳定系数计算抗浮稳定系数=(结构自重+覆土重量+其他抗浮措施提供的抗浮力)/浮力2、计算结果对选定的局部抗浮计算区域进行计算,得到抗浮稳定系数如下:区域 1:抗浮稳定系数为具体系数 1,小于规范要求的规范要求系数 1,不满足抗浮要求。
区域 2:抗浮稳定系数为具体系数 2,大于规范要求的规范要求系数 2,满足抗浮要求。
七、抗浮措施对于不满足抗浮要求的区域,采取以下抗浮措施:1、增加配重在地下室底板上增加一定厚度的混凝土配重,以增加结构的自重。
地下室抗浮底板计算书(解锁板)说明:采用修正经验系数法,按大柱帽无梁筏板计算。
混凝土标号:C30 2.01N/mm 2底板板厚 h = 450mm 1.43N/mm 2承台厚 h =1000mm柱尺寸 a X b =0.6X0.6m柱距:Lx X Ly (m) =8X 8m 承台尺寸A X B = 1.4X 1.4m迎水筋保护层 C = 50mm 水位高于底板面4m背水钢筋保护层 C =20mm 2.5KN/m 2计算裂缝 C =25mm30.8KN/m 2(扣除向下恒载)㈠.X向柱上板带承台边支座截面负弯矩计算:沿X向总弯矩标准值:Mox=qLy(Lx-C)2/8 =30.8*8*(8-1.4)^2/8=1341.6KN*m 0.5*1341.6/(8/2)=KN*m1.强度计算:底板底筋 fy =360N/mm 2ho=mm①④号筋每延米筋面积As=1.2*167.7/(0.9*360*392)=1584.5mm 2实配φ16@75实配 As =2679mm 2满足要求!2.裂缝验算:构件受力特征系数αcr =2.1(按砼规表8.1.2-1取)钢筋弹性模量 Es=N/mm 2(按砼规表4.2.4取)σsk =M k /(0.87hoA s)=167.7/(0.87*392*2679)=N/mm 2地下室底板抗水板计算二.计算过程:一.基本资料:0.0023921.2Mx/(0.9fyho)=柱上板带每延米弯矩 Mx = 0.5Mox/By=最小配筋率ρmin =167.7混凝土强度标准值f tk =183.62.1E+05混凝土强度设计值f t =垫层重水净反力 q=实际配筋率ρ=0.00595ρte =As/(0.5bh)=2679/(0.5*1000*450)=>0.010.0121.1-0.65*2.01/(0.012*183.6)=(0.2<ψ<1.0)取ψ=0.5072.1*0.507*183.6*(1.9*25+0.08*16/0.012)/210000=0.144mm<0.2mm 满足要求!㈡.X向柱上板带跨中弯矩及跨中板带弯矩计算:1. 沿X向总弯矩标准值:Mox=qLy(Lx-2C/3)2/8=30.8*8*(8-2*1.4/3)^2/8=KN*m a.柱上板带跨中每延米Mx=0.18*1538/(8/2)=KN*mψ=0.2承台底板底筋 fy =360N/mm 2ho=mm承台每延米筋面积 As= 1.2*602.4/(0.9*360*942)=2368.5mm 2实配φ16@75实配 A s =2679mm 2满足要求!2.裂缝验算:构件受力特征系数αcr =2.1(按砼规表8.1.2-1取)钢筋弹性模量 Es=N/mm 2(按砼规表4.2.4取)σsk =M k /(0.87hoAs)=602.4/(0.87*942*2679)=N/mm 2ρte =As/(0.5bh)= 2679/(0.5*1000*1000)=<0.010.011.1-0.65*2.01/(0.01*274.4)=(0.2<ψ<1.0)取ψ=0.6242.1*0.624*274.4*(1.9*25+0.08*16/0.01)/210000 =0.301mm<0.301mm 满足要求!㈣.Y向柱上板带承台边支座截面负弯矩计算:沿Y向总弯矩标准值:Moy=qLx(Ly-C)2/8 =30.8*8*(8-1.4)^2/8= 1341.6KN*m0.5*1341.6/(8/2)=KN*m1.强度计算:ωmax =αcr ψσsk (1.9c+0.08d eq /ρte )/Es=最小配筋率ρmin =ψ=1.1-0.65f tk /(ρte σsk )=柱上板带每延米弯矩My = 0.5Moy/Bx=ωmax =αcr ψσsk (1.9C+0.08d eq /ρte )/Es=0.18Mox/By=1.2Mx/(0.9fyho)=167.70.0020.0120.507153869.2 取ρte =ψ=1.1-0.65f tk /(ρte σsk )=0.624实际配筋率ρ= 0.002682.1E+05274.4 取ρte =0.005942底板底筋 fy =360N/mm 2ho=mm②⑥号筋每延米筋面积As=1.2*167.7/(0.9*360*392)=1584.5mm 2实配φ16@75实配 As =2679mm 2满足要求!2.裂缝验算:构件受力特征系数αcr =2.1(按砼规表8.1.2-1取)钢筋弹性模量 Es=N/mm 2(按砼规表4.2.4取)σsk =M k /(0.87hoA s)=167.7/(0.87*392*2679)=N/mm 2ρte =As/(0.5bh)=2679/(0.5*1000*450)=>0.010.0121.1-0.65*2.01/(0.012*183.6)=(0.2<ψ<1.0)取ψ=0.5072.1*0.507*183.6*(1.9*25+0.08*16/0.012)/210000=0.144mm<0.2mm 满足要求!㈤.Y向柱上板带跨中弯矩及跨中板带弯矩计算:1. 沿Y向总弯矩标准值:Moy=qLx(Ly-2C/3)2/8=30.8*8*(8-2*1.4/3)^2/8=KN*m a.柱上板带跨中每延米My=0.18*1538/(8/2)=KN*m b.跨中板带支座每延米My=0.17*1538/(8/2)=KN*m c.跨中板带跨中每延米My=0.15*1538/(8/2)=KN*mMy=69.2KN*m 1.强度计算:底板面筋 fy =360N/mm 2ho=mm⑤号筋每延米筋面积As=1.2My/(0.9fyho)=1.2*69.2/(0.9*360*422)=607mm 2实配φ16@150实配 As =1340mm 2满足要求!2.裂缝验算:构件受力特征系数αcr =2.1(按砼规表8.1.2-1取)钢筋弹性模量 Es=N/mm 2(按砼规表4.2.4取)σsk =M k /(0.87hoAs)=69.2/(0.87*422*1340)=N/mm 2ρte =As/(0.5bh)=1340/(0.5*1000*450)=<0.01取ρte =0.011.1-0.65*2.01/(0.01*140.7)=<0.2取ψ=0.22.1*0.2*140.7*(1.9*20+0.08*16/0.01)/210000=0.047mm<0.2mm 满足要求!㈥.Y向承台根部负弯矩计算:沿Y向总弯矩标准值: Lx/2=4>1.41.4Moy=qLx(Ly-C)2/8 =30.8*8*(8-0.6)^2/8=KN*m 0.5*1686.6/1.4=KN*m1.强度计算:承台底板底筋 fy =360N/mm 2ho=mm承台每延米筋面积 As= 1.2*602.4/(0.9*360*942)=2368.5mm 2实配φ16@75实配 As =2679mm 2满足要求!2.裂缝验算:构件受力特征系数αcr =2.1(按砼规表8.1.2-1取)钢筋弹性模量 Es=N/mm 2 (按砼规表4.2.4取)σsk =M k /(0.87hoAs)=602.4/(0.87*942*2679)=N/mm 2ρte =As/(0.5bh)= 2679/(0.5*1000*1000)=<0.010.011.2My/(0.9fyho)=最小配筋率ρmin =0.0023920.012取ρte =ψ=1.1-0.65f tk /(ρte σsk )=0.507实际配筋率ρ= 0.005952.1E+05183.60.17Moy/Bx=65.40.15Moy/Bx=57.7ωmax =αcr ψσsk (1.9C+0.08deq/ρte )/Es=15380.18Moy/Bx=69.2实际配筋率ρ= 0.00298 0.0062.1E+05140.7底板面筋计算弯矩选用422最小配筋率ρmin =0.002实际配筋率ρ= ψ=1.1-0.65f tk /(ρte σsk )=0.171ωmax =αcr ψσsk (1.9C+0.08d eq /ρte )/Es=0.00268取 Bx=1686.61.2My/(0.9fyho)=承台每延米弯矩 My = 0.5Moy/Bx=602.4取ρte =274.49420.005最小配筋率ρmin =2.1E+050.0021.1-0.65*2.01/(0.01*274.4)=(0.2<ψ<1.0)取ψ=0.6242.1*0.624*274.4*(1.9*25+0.08*16/0.01)/210000 =0.301mm<0.301mm 满足要求!ωmax =αcr ψσsk (1.9C+0.08d eq /ρte )/Es=ψ=1.1-0.65f tk /(ρte σsk )= 0.624。
地下室车库抗浮计算书
1.基本概况:
本工程地下水的高程为-8.100米,抗浮设计水位按-7.1米设计计算,本工程基础底标高在-8.500m,抗浮计算水头为1.4m。
按一个柱的受荷面积计算。
计算简图如下:
2.水浮力计算:
根据《地规》5.4.3条:
水浮力标准值N k=Fk=rh=10KN/m3x1.4m=14 kN/m2
3.自重计算:
地下室防水板荷载标准值:G1k=25KN/m3x0.25m=6.25 kN/m2
地下室柱荷载标准值:G2k=25KN/m3x0.6x0.6mx3.5m/64=0.49 kN/m2
地下室梁荷载标
准值:G3k=(25KN/m3x0.5x1mx2x8+25KN/m3x0.4x0.8mx2x8)/64=5.13 kN/m2
地下室顶板荷载标准值:G2k=25KN/m3x0.25m=6.25kN/m2
地下室自重G k=6.25+0.49+5.13+6.25=18.12 N/m2。
4.抗浮验算:
G k/N k=18.12/14=1.29>1.05
抗浮验算满足要求。
即在地下室顶板混凝土浇筑完毕即可停止降水,因主楼自量重于车库自重,所以在负一层施工完毕也可停止降水。
7#地下室整体抗浮计算1、根据建筑施工图及基础施工图,本工程地下室底板面的绝对标高为350.000米,根据地勘报告提供的本工程的抗浮设计水位为绝对标高356米。
2、设计抗浮水头为356-351=6m。
3、结构自重计算一(覆土部分):1):600mm厚地下室顶板覆土:18X0.6=10.8KN/m22):地下室顶板160mm厚:0.16X25=4KN/m23):防水板500mm厚:0.5X25=12.5KN/m24):梁柱折算荷载:4KN/m2以上1~4项合计:31.3KN/m2,即抗力R=31.3KN/m24、结构自重计算:1):地面上5层120mm结构楼、屋面:5X25X0.12=15KN/m22):地下室顶板160mm厚:0.16X25=4KN/m23):防水板500mm厚:0.5X25=12.5KN/m24):梁柱折算荷载:4KN/m2以上1~4项合计:35.5KN/m2,即抗力R=35.5 KN/m25、抗浮计算:荷载效应:S=1.05x6X10=63 KN/m2根据以上计算知:R小于S整体不满足抗浮满足要求,无需另外配重或增加锚杆抗浮。
7#抗浮锚杆深化设计计算书一、工程质地情况:地下水位标高0.5 m地下室底板底标高-5.5m浮力60 kN/m2二、抗浮验算特征点受力分析:一)车道入口A)一层顶板:顶板自重0.16X25=4.0 kN/m2B)底板底板自重0.5X25=12.5kN/m2C)梁自重 4.07+2.1+3.4=9.5 kN/m2总计26kN/m2抗浮验算60-26x0.9=36.6kN/m2二)有0.6m覆土的一层地下室A)一层顶板:覆土层0.6X18=10.8 kN/m2顶板自重0.16X25=4.0 kN/m2B)底板底板自重0.5X25=12.5kN/m2C)梁自重 4.07+2.1+3.4=9.5 kN/m2总计36.8kN/m2抗浮验算60-三)一层地下室+五层A)一层顶板:顶板自重0.16X25=4.0 kN/m2B)底板底板自重0.5X25=12.5 kN/m2C)地下室梁自重 4.07+2.1+3.4=9.5 kN/m2D)二~七层板:板自重0.12X25x5=3x5=15 kN/m2F)二~五层梁自重3x4=12 kN/m2总计53kN/m2抗浮验算60-53x0.9=12.3kN/m2二、计算结果经计算,锚杆孔径为150mm,其中:A、B、C类锚杆均采用3根Ф25的HRB400钢筋,钢筋自由段长度为1m,A 类锚杆锚固段长度为5m,B 类锚杆锚固段长度为8m,C 类锚杆锚固段长度为10m ;A 类锚杆按2500mm ×2500mm 布置,B 类锚杆按3000mm ×3000mm 布置。
地下室抗浮验算
一、整体抗浮
裙房部分的整体抗浮(图一所示)图示标高均为绝对标高。
底板板底标高为-6.400,地坪标高为:3.600,抗浮设防水位标高为2.5m,即抗浮设计水位高度为:8.9m。
裙房部分抗浮荷载:
①地上五层裙房板自重: 25×0.60=15.0kN/m2
②地上五层梁柱折算自重: 25×0.60=15.0kN/m2
③地下一顶板自重: 25×0.18=4.5 kN/m2
④地下二顶板自重: 25×0.12=3.0 kN/m2
⑤地下室梁柱折算自重: 25×0.3 =7.5 kN/m2
⑥底板覆土自重: 20×0.4 =8.0 kN/m2
⑦底板自重: 25×0.6 =15.0kN/m2
合计: 68.0kN/m2水浮荷载:8.9×10=89 kN/m2
68/89=0.764<1.05不满足抗浮要求。
需采取抗浮措施,因本工程为桩基础,固采用桩抗浮。
需要桩提供的抗拉承载力:89×1.05-68=25.45 kN/m2
单桩抗拔承载力特征值:450kN
取8.4m×8.4m的柱网,柱下4根桩验算:
(4×450)/(8.4×8.4)=25.5 kN/m2>25.45 kN/m2
满足抗浮要求。
二、局部抗浮
无裙房处地下室的局部抗浮(图二所示)图示标高均为绝对标高。
覆土厚度为:0.6m。
底板板底标高为-6.400,地坪标高为:3.600,抗浮设防水位标高为2.5m,即抗浮设计水位高度为:8.9m。
地下室部分抗浮荷载:
①顶板覆土自重 : 20×0.60=12.0kN/m2
②地下一顶板自重: 25×0.25=6.25kN/m2
③地下二顶板自重: 25×0.12=3.0kN/m2
④梁柱折算自重: 25×0.3 =7.5kN/m2
⑤底板覆土自重: 20×0.4 =8.0kN/m2
⑥底板自重: 25×0.6 =15.0kN/m2
合计: 51.8kN/m2
水浮荷载:8.9×10=89kN/m2
51.8/89=0.58<1.05 不满足抗浮要求。
需采取抗浮措施,因本工程为桩基础,固采用桩抗浮。
需要桩提供的抗拉承载力:89×1.05-51.8=41.65 kN/m2
单桩抗拔承载力特征值:450kN
①内柱验算:取8.4m×6m的柱网,柱下5根桩验算
(5×450)/(8.4×6)=52.5 kN/m2>41.65 kN/m2
满足抗浮要求。
②外墙验算:取墙下1根桩的负载面积验算
墙体自重 : 4.2×25×0.30×8.8=277.2kN
墙趾覆土自重: 4.2×18×0.40×9.4=284.3kN
水浮力: 4.2× 4 × 41.65 =700.0kN
700-(277.2+284.3)=138.5kN<450kN
满足抗浮要求。
三、底板抗浮
1.配筋验算
防水底板按无梁楼盖双向板经验系数法计算。
取不利柱网8.4m×8.4m,抗浮设计水位高度为8.9m,柱帽b ce=2300mm,柱帽h0=900mm,底板h0=550mm, l x=8400mm, l y=8400mm。
覆土自重:20×0.4=8KN/㎡
底板自重:25×0.6=15KN/㎡
水浮荷载:8.9×10=89KN/㎡
底板下水浮力设计值:q=89×1.2-(15+8)=83.8KN/㎡
板的总弯矩设计值: Mx=q×ly×(lx-2bce/3)2/8
=83.8×8.4×(8.4-2×2.3/3)2/8=4149KN·m
Mx=My
据经验系数法①M跨中=0.2×4149×0.8=664KN·m
As跨中=664×106/(0.90×360×550)=3727㎜2/4.2=887㎜2/m
取 16@200(1005㎜2/m)
②M边跨中=0.3×4149×0.8=996KN·m
As边跨中=996×106/(0.90×360×550)=5590㎜2/4.2=1331㎜2/m
取 16/ 12@100(1570㎜2/m)
③M支座=0.5×4149×0.8=1660KN·m
该范围附加 16@200即 16@100(2011㎜2/m)
支座处弯距抗力 M柱帽=2011×2.3×0.9×900×360=1349KN·m
M底板=2011×(4.2-2.3)×0.9×550×360=681KN·m
1349KN·m+681KN·m=2030KN·m>1660KN·m
2.冲切验算
①柱下与柱帽交接处水荷载冲切验算
柱边长为750mm;柱网为8.4m×8.4m
F l=83.8×(8.4×8.4-2.65×2.65)=5325KN
βhp插值为0.988
0.7×βhp·f t·a m·h0=0.7×0.988×1.43×1650×4×900=5875KN>F l
②柱帽与底板 交接处水荷载冲切验算
柱帽边长为2.3m;柱网为8.4m×8.4m
F l=83.8×(8.4×8.4-3.4×3.4)=4944.2KN
0.7×βhp·f t·a m·h0=0.7×1.0×1.43×2850×4×550=6276.3KN>F l
3.裂缝验算
该验算采用水荷载作用的准永久组合,取地下水的稳定水位标高1.3m,并按永久荷载考虑。
防水底板按无梁楼盖双向板经验系数法计算,验算柱下支座处的裂缝。
取不利柱网8.4m×8.4m,稳定水位的设计高度为7.7m,柱帽b ce=2300mm,柱帽h0=900mm,底板h0=550mm, l x=8400mm, l y=8400mm。
覆土自重:20×0.4=8KN/㎡
底板自重:25×0.6=15KN/㎡
水浮荷载:7.7×10=77KN/㎡
水浮力准永久组合值:q=77-(15+8)=54KN/㎡
板的总弯矩设计值: Mx=q×ly×(lx-2bce/3)2/8
=54×8.4×(8.4-2×2.3/3)2/8=2673.5KN·m
Mx=My
据经验系数法 M q支座=0.5×2673.5=1337KN·m
支座范围配筋为 16@100(2011㎜2/m),As=2011×4.2=8446㎜2
σs=M q/0.87×h0×As
=1337×106/0.87×900×8446=202N/㎜2
ρte=(A s+A p)/A te
=8446/(0.5×2300×950+1900×600)=0.0038<0.01取0.01
d eq=16
ψ=1.1-0.65f tk/ρteσs
=1.1-0.65×2.01/(0.01×202)=0.4532
ωmax=αcrψ(σs/E s)×(1.9c s+0.08d eq/ρte)
=1.9×0.4532×(202/200000)×(1.9×50+0.08×16/0.01)
=0.194mm<0.2mm
满足要求。