水泵房抗浮计算书
- 格式:doc
- 大小:15.50 KB
- 文档页数:1
抗浮锚杆设计计算书一、工程质地情况:地下水位标高-1.00 m地下室底板标高-6.52 m浮力55.2 kN/m2二、抗浮验算特征点受力分析:1.原底板砂垫层厚0.10m自重0.10X20=2kN/m22.原砼底板厚0.40m:自重0.4X25=10 kN/m23.新加砼配重层厚0.30m自重0.3X25=7.5 kN/m2抗浮计算55.20-19.50=35.70 kN/m2三、锚杆体计算过程由受力情况,将锚杆分为A、B、C三类,A类为图中○A轴至○E轴区域,地面与中风化板岩之间有8米粘性土层;B类为有○E轴至○L轴区域,地面与中风化板岩之间有4米粘性土层;C类为图中○L轴至○Q轴区域,地面与中风化板岩之间无粘性土层。
锚杆间距取3m×3m。
1.锚杆杆体的截面面积计算:yk tt s f NKA总计19.5 kN/m2tK ——锚杆杆体的抗拉安全系数,取1.05; t N ——锚杆的轴向拉力设计值(kN ),锚杆的拉力设计值=特征值×1.3,A 类锚杆取35.70×3.0×3.0×1.3=438.75kN 。
yk f ——钢筋的抗拉强度标准值(kPa ),HRB400取400 kPa 。
As ≥fyk KtNt =4001075.43805.13⨯⨯=11512mm选取两根HRB400 直径28mm 钢筋,钢筋截面积满足规范要求2. 锚杆锚固长度锚杆锚固长度按下式估算,并取其中较大者:ψπmg ta Df KN L >ψπεms ta df n KN L >式中:K ——锚杆锚固体的抗拔安全系数,取1.05;tN ——锚杆的轴向拉力设计值(kN ),取438.75kN ; a L ——锚杆锚固段长度(m );mgf ——锚固段注浆体与地层间的粘结强度标准值(kPa ),按表7.5.1-1取粘性土层65kpa ,中风化板岩层0.25Mpa ;ms f ——锚固段注浆体与筋体间的粘结强度标准值(kPa ),按表7.5.1-3取2.5MPa ;D ——锚杆锚固段的钻孔直径(m ),取0.15md ——钢筋的直径(m );ε——采用2根以上钢筋时,界面的粘结强度降低系数,取0.6~0.85,本例取0.7;ψ——锚固长度对粘结强度的影响系数,按表7.5.2取1.0;n ——钢筋根数。
地下室抗浮验算一、整体抗浮(一)主楼部分底板板底相对标高为-4.700,地坪相对标高为:-0.300,抗浮设防水位相对标高为- 1.5m,即抗浮设计水位高度为:3.2m。
裙房部分抗浮荷载:①地上四层裙房板自重:②地上四层xx折算自重:③地下顶板自重:④地下室xx折算自重:⑤底板自重:25×0.48=12.0kN/m225×0.50=12.5kN/m225×0.18=4.5kN/m225×0.11=2.75kN/m225×0.4=10.0kN/m241.75kN/m2合计:水浮荷载:3.2×10=32 kN/m2,根据地基基础设计规范GB 5007-2011第5.4.3条,>1.05,满足抗浮要求。
二、整体抗浮(二)仅一层车库部位J-1基础高度改为800,仅一层地下室位置防水板板底标高与J-1底平,上部采用C15素混凝土回填至设计标高(-4.200)。
抗浮计算如下:图纸修改见结构05底板板底相对标高为-5.100,地坪相对标高为:-0.300,抗浮设防水位相对标高为-1.5m,即抗浮设计水位高度为:3.6m。
地下室部分抗浮荷载:①顶板覆土自重:②地下顶板自重:③xx折算自重:④底板及回填自重:考虑设备自重20×0.30=6.0kN/m225×0.25=6.25kN/m225×0.11=2.75kN/m225×(0.4+0.5)=22.5kN/m20.5 kN/m238kN/m2水浮荷载:3.6×10=36kN/m2>1.05,满足抗浮要求。
合计:。
抗浮锚杆设计计算书一、工程质地情况:地下水位标高(黄海高程) 7.6 m地下室底板底标高 -1.5 m浮力 91 kN/m2二、抗浮受力计算:1.裙房三层顶板:板自重 3× 0.12× 25=9.0 kN/m2梁自重(折算均布荷载) 3× 0.06× 25=4.5 kN/m2 一层板:板自重 0.18× 25=4.5 kN/m2梁自重(折算均布荷载) 0.07× 25=1.7 kN/m2 地下一层板:板自重(等效板厚190) 0.19× 25=4.8 kN/m2 底板底板自重 0.4× 25=10 kN/m2底板覆土 1.0× 18=18 kN/m2总计 52.5 kN/m2抗浮验算 91-52.5× 0.9=43.75 kN/m22.有0.7m覆土的两层地下室一层顶板:覆土层 0.7× 18=12.6 kN/m2板自重(等效板厚290) 0.29× 25=7.3 kN/m2 地下一层板:板自重(等效板厚190) 0.19× 25=4.8 kN/m2 底板底板自重 0.4× 25=10 kN/m2底板覆土 1.0× 18=18 kN/m2总计 52.7 kN/m2抗浮验算 91-52.7× 0.9=43.57 kN/m23.无顶板覆土的车道两层板:顶板自重 2× 0.16× 25=4.0 kN/m2梁自重(折算均布荷载) 2× 0.06× 25=3.0 kN/m2 底板底板自重 0.4× 25=10 kN/m2底板覆土 1.0× 18=18 kN/m2抗浮验算 91-35× 0.9=59.5 kN/m2三、计算结果经初步验算计算,锚杆孔径为200mm。
其中:锚杆均采用3根Ф25的HRB400钢筋,锚固段长度为4m;按2100mm ×2100mm布置。
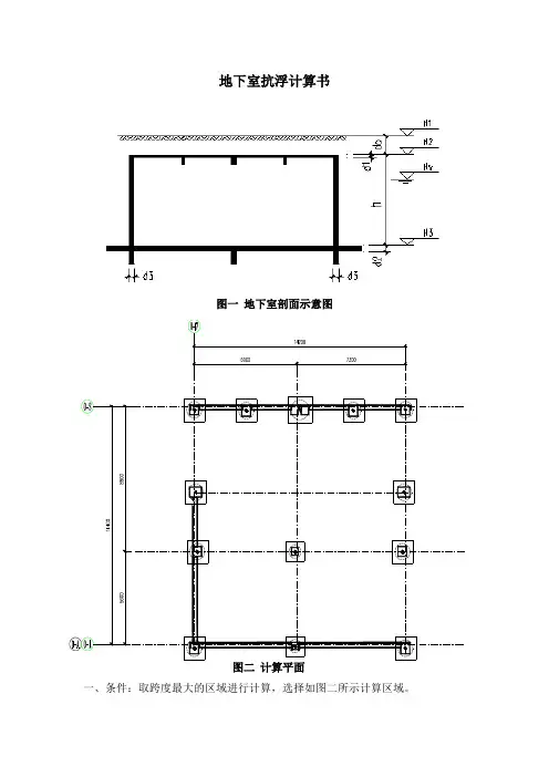
地下室抗浮计算书图一地下室剖面示意图图二计算平面一、条件:取跨度最大的区域进行计算,选择如图二所示计算区域。
地面标高H1=0.000m,顶板标高H2=-0.650m,底板标高H3=-4.850m,设计水位标高Hw=-1.550m;顶板厚度d1=250mm,考虑梁高,折算厚度取d1=300mm,底板厚度d2=400mm,挡土墙墙厚度d3=300,地下室层高h=4200mm。
底板建筑垫层厚d4=100mm,覆土容重γ`=20kN/m;二、计算:1、水浮力F w=|h3+d2-h w|×10=|-4.850+0.4+1.550|×10=37.00 kN/m2、抗浮力:(1)、顶板自重:G1=d1×25=300×0.001×25=7.5 kN/m(2)、底板自重:G2=d2×25=400×0.001×25=10.0 kN/m(3)、覆土重量:G o=d o×γ=0.650×18=11.70 kN/m抗浮力G=∑(G o+G1+G2+G3+G4+G5+G6)=∑(7.50+10+11.7)=29.2kN/m3、抗拔桩需承担浮力:nR>F w-G/K=37-29.2/1.05=9.2 kN/m图二所示中间桩,桩径1000,桩长取6m,根据《全国民用建筑工程设计技术措施》(地基与基础)(2009版)基桩抗拔承载力特征值:R tk=T ua+G=∑λi q sik u i l i=0.75*45*3.14*1*2+0.7*35*3.14*1*4=520kN其中抗拔系数λ在残积粉质粘土层取0.75,圆砾层取0.7,桩位于残积粉质粘土层桩长取2m,圆砾层取4m。
图二所示,中间桩需承担抗浮面积为:s=14.4*14.2/4=51m2(取周边面积的四分之一)单桩需抵抗浮力为R=51*9.2=469.2kN< R tk=520kN满足要求正截面受拉承载力验算:N=1.35*469.2=634kN≤f y A s=300*3016=905kN满足要求。
污水泵房计算书1. 抗浮计算地下水位按设计地面标高以下0.5米计。
浮力:(9.90.88.510.2107889.7F K N =-⨯⨯⨯=’)1(8.510.27.18.8)9.924(8.80.55.00.62.40.42)8.0247544.1q K N=⨯-⨯⨯⨯+⨯+⨯+⨯⨯⨯⨯=抗力:池壁重20.77.18.8241049.7q K N =⨯⨯⨯=底板重12)8593.8 1.09 1.057889.7K F===>∑抗‘(q +q 抗浮安全系数满足要求。
2. 壁板水平配筋计算取标高-8.7m 处壁板(厚度550mm ),按水平闭合框架计算:211.27*10 4.2/3q K N m =⨯=堆 211.27188.161.7/3q K N m =⨯⨯⨯=土q 65.9N /q q K m =+=堆土角部负弯矩:232365.9[]7.812129.517.8422.89.517.8b ql K nM M M M K nK N m+=====⨯+⎛⎫+ ⎪⎝⎭⨯=⋅⎛⎫+ ⎪⎝⎭A B C D实配∅25@1003.壁板竖向钢筋计算 211.27104.2/3q K N m =⨯⨯=堆 21.27(7.70.5)1091.4/q K N m =⨯-⨯=水 []211.270.518(7.70.5)1034.3/3q K Nm =⨯⨯+-⨯=土故:20 4.291.434.3129.9/q q KNm ==++=∑利用MORGEN 计算工具,按照右图顶边自由,三边固定的双向板计算: (1) 对于计算长度9.5b l m =的池壁,''293.1367.3X yM K N m MK N m=-⋅=-⋅竖向底部钢筋实配 22/16@100ΦΦm ax 0.11W m m =(2) 对于计算长度7.8a l m =的池壁,''236.5276.5X yM K N m MK N m=-⋅=-⋅竖向底部钢筋实配 22/16@100ΦΦ4.底板计算:1(8.39.76.98.3)10.224(8.30.52.150.72.50.42)8.3257515q K n=⨯-⨯⨯⨯+⨯+⨯+⨯⨯⨯⨯=抗力:池壁重20.7*6.9*8.3*251002q K n==底板重3 6.9*8.3*0.13*25187q Kn ==顶板重4(2 2.50.7 1.20.9 2.152 1.15 2.50.6)25635q K n=⨯⨯+⨯⨯⨯+⨯⨯⨯=井内底料底板净反力:13422.0 2.075151876352.0106/8.39.7iqq q q S SK n m+++=+++=+=⨯∑配25@100Φ 基地反力:22.0104 2.0106180/is s s qh h hSf K n mγγγ+-=+-=-<=∑满足地基承载力。
地下室抗浮计算书
1.基本概况:
本工程抗浮设计水位的绝对高程为9.5m,本工程基础底标高-14.000m,地下室底标高-14.000m,抗浮计算水头为4.5m。
基底尺寸为153.08x70.3m。
基础形式为筏板基础加止水板,防水板厚度为0.40m,底标高为-14.00m。
2.水浮力计算:
水位以下部分的体积为
V=153.08x70.3x0.47=5058m3。
水浮力标准值F=Fk=rV=5058x10=50580 kN
50580x1.05=53109
3.自重计算:
建筑恒荷载标准值:G1k=774143kN
建筑活荷载标准值:G2k=239226 kN
自重总和:Gk=ΣGik=1013369 kN
4.抗浮验算:
自重分项系数取0.9
G=0.9Gk=0.9x1013369=912032 kN
F=53109 kN< G=912032 kN
抗浮验算满足要求。
防水板抗浮计算
1.自重计算:取防水板与上部覆土加权平均重度为20KN/ m3
荷载标准值:G1k=1.5x20=30kN/m2
2.水浮力计算:
水浮力标准值:F=0.47x10=4.7 kN/m2
4.7x1.05=5 kN/m2
3.抗浮验算:
自重分项系数取0.9
G=0.9Gk=0.9x30=27 kN/m2
F=5 kN/m2< G=27kN/m2
抗浮验算满足要求。
63
M 2
抗浮计算的水深:
2.8
M
水浮力F=
1764
kN
底板厚度:0.40M 自重:630.00kN 底板面层:0.10M 自重:126.00kN 顶板厚度:0.30M 自重:472.50kN 顶板覆土:0.50M 自重:567.00kN 承台体积:
4.10
M 3
自重:102.50kN 1898.00
kN
W/F=
1.08
≥
1.05
水浮力计算(按每平方米计):
自重计算(按每平方米计):
单柱受荷面积:
地下室抗浮验算计算书
本工程负一层地下室,最大柱跨为7.0 x 9.0米,抗浮水位取本工程的小区路面(标高为-0.600)以下0.2米(即相对本工程的标高为-0.80米),抗浮验算结果如下:
经验算,地下室无上部结构的单柱抗浮以及整体抗浮设计满足规范要求。
总自重W=根据《建筑地基基础设计规范》DBJ 15-13-2003 5.2.1条进行验算
满足抗浮验算。
层名柱网宽柱网进深肋梁宽肋梁高肋梁根数肋梁单方荷载(KN/M2)主梁宽主梁高顶板层88.10.10.419 2.292014 1.10.41负一层88.10.10.2610 1.6149690.80.26负二层88.10.10.2610 1.6149690.80.26底板88.10.40.751 1.8634260.5 1.15锚杆直径锚杆周长u 锚杆有效锚固长度经验系数§粘结强度特征值f锚杆抗拔设计值Rt(KN)32100.4846000.80.4147.9066板区格宽板区格深浮力设计值荷载设计值每区格锚固数量4 4.0527.9451.983.0558486.6 4.0527.9745.7675.04215锚杆抗拔设计值:Rt=§*f*ur*hr 经验系数§=0.8粘结强度特征值f=0.4恒载统计各层恒载合计:8.7+4.4+4.4+14.1+(楼层附加恒载2*3)+(屋面附加恒载20)=57.6KN/M2水浮力=1072-1063.8+0.35=85.5KN/M2浮力设计值=85.5-57.6=27.9KN/M2主梁根数主梁单方荷载(KN/M2)现浇板板厚现浇板单方荷载(KN/M2)柱截面宽柱截面高层高柱单方荷载(KN/M2)1 2.801350.1230.60.6 4.20.583333 1 1.2919750.0410.60.6 3.50.486111 1 1.2919750.0410.60.6 3.50.486111 1 3.5715660.358.750000总计8.676698 4.393056 4.393056 14.18499。
抗浮计算书(19根)第一种1. 配重总重量:212.1m 2*1*26=5514.6KN 。
2. 石方占比为30%:5514.6*0.3=1654.38KN ,取1700KN.3. 共19根锚杆,每根锚杆取值:1700/19=89KN ,取100KN 。
4. (1.6*100)/400=0.4m 2,400m m 2,取1 ∅25=490.9m m 2。
5. (2.2*100)/(1*1*3.14*0.025*2000*1.0)=220/157=1.4M ,取2.0m 。
第二种● 配重总重量:212.1m 2*1*26=5514.6KN 。
● 石方占比为40%:5514.6*0.3=2205.84KN ,取2206KN. ● 共19根锚杆,每根锚杆取值:2206/19=116KN ,取120KN 。
● (1.6*120)/400=0.48m 2,480m m 2,取1 ∅25=490.9m m 2。
● (2.2*120)/(1*1*3.14*0.025*2000*1.0)=264/157=1.68M ,取2.0m 。
21404400351000*6.1mm f N K A yk t t s ==≥mm mm f d n KN L mst a 750020700.1*4.2*6.0*25**3351000*2<==≥πψξπ21404400351000*6.1mm f N K A yk t t s ==≥mm mm f d n KN L mst a 750020700.1*4.2*6.0*25**3351000*2<==≥πψξπ6.锚杆抗拔承载力计算依据建筑地基基础设计规范(GB 50007-2011)得 r r t h fu R ξ=依据规范取值得:经验系数8.0=ξ砂浆与岩石的粘结强度特征值kPa f 500=锚入锚固端嵌入岩层中的长度m mm h r30.1130010013==⨯=(取13倍锚杆直径计算)则:KN h fu R r r t 28.16330.110.014.35008.0=⨯⨯⨯⨯==ξ抗浮计算书(21根)第一种6. 配重总重量:212.1m 2*1*26=5514.6KN 。
7#地下室整体抗浮计算1、根据建筑施工图及基础施工图,本工程地下室底板面的绝对标高为350.000米,根据地勘报告提供的本工程的抗浮设计水位为绝对标高356米。
2、设计抗浮水头为356-351=6m。
3、结构自重计算一(覆土部分):1):600mm厚地下室顶板覆土:18X0.6=10.8KN/m22):地下室顶板160mm厚:0.16X25=4KN/m23):防水板500mm厚:0.5X25=12.5KN/m24):梁柱折算荷载:4KN/m2以上1~4项合计:31.3KN/m2,即抗力R=31.3KN/m24、结构自重计算:1):地面上5层120mm结构楼、屋面:5X25X0.12=15KN/m22):地下室顶板160mm厚:0.16X25=4KN/m23):防水板500mm厚:0.5X25=12.5KN/m24):梁柱折算荷载:4KN/m2以上1~4项合计:35.5KN/m2,即抗力R=35.5 KN/m25、抗浮计算:荷载效应:S=1.05x6X10=63 KN/m2根据以上计算知:R小于S整体不满足抗浮满足要求,无需另外配重或增加锚杆抗浮。
7#抗浮锚杆深化设计计算书一、工程质地情况:地下水位标高0.5 m地下室底板底标高-5.5m浮力60 kN/m2二、抗浮验算特征点受力分析:一)车道入口A)一层顶板:顶板自重0.16X25=4.0 kN/m2B)底板底板自重0.5X25=12.5kN/m2C)梁自重 4.07+2.1+3.4=9.5 kN/m2总计26kN/m2抗浮验算60-26x0.9=36.6kN/m2二)有0.6m覆土的一层地下室A)一层顶板:覆土层0.6X18=10.8 kN/m2顶板自重0.16X25=4.0 kN/m2B)底板底板自重0.5X25=12.5kN/m2C)梁自重 4.07+2.1+3.4=9.5 kN/m2总计36.8kN/m2抗浮验算60-三)一层地下室+五层A)一层顶板:顶板自重0.16X25=4.0 kN/m2B)底板底板自重0.5X25=12.5 kN/m2C)地下室梁自重 4.07+2.1+3.4=9.5 kN/m2D)二~七层板:板自重0.12X25x5=3x5=15 kN/m2F)二~五层梁自重3x4=12 kN/m2总计53kN/m2抗浮验算60-53x0.9=12.3kN/m2二、计算结果经计算,锚杆孔径为150mm,其中:A、B、C类锚杆均采用3根Ф25的HRB400钢筋,钢筋自由段长度为1m,A 类锚杆锚固段长度为5m,B 类锚杆锚固段长度为8m,C 类锚杆锚固段长度为10m ;A 类锚杆按2500mm ×2500mm 布置,B 类锚杆按3000mm ×3000mm 布置。
井室长度总长A 8.4M 井室长度总长B
10.6M 89.04M 225
KN/M 3
抗浮水深(竖向总高度):
7
M
水浮力F=
6232.8
底板厚度:0.70M 自重:1558.20底板面层:0.00M 自重:
0.00
顶板厚度:0.50M 自重:1113.00顶板覆土: 1.05M 自重:1488.75侧墙厚度:
0.70
M
自重:3572.80
W/F=
1.24
≥
1.05
经验算,地下井室结构的抗浮以及整体抗浮设计满足规范要求。
总自重:
满足抗浮验算
7732.75
根据《建筑地基基础设计规范》GB50007-2011-5.4.3条进行验算
浮力计算(按每平方米计):自重计算(按每平方米计):
井室面积:混凝土容重:
井室抗浮验算计算书
本工程井室尺寸为 2.600 x 2.40 米,覆土厚度为 1.35米,井室深度为2.4米,抗浮水位取本工程自然地面为准,抗浮验算结果如下:
井室深度为2.4
kN
kN
kN
kN
kN
KN
kN 进行验算
浮验算。
雨水收集池抗浮计算书一、条件1、地面标高:0.000m,底板标高:-4.500m,设定地下水位标高:-0.500~-1.000m。
2、雨水收集池长度L=40000mm,宽度B=40000mm,底板垫层厚d3=100mm,底板厚度d1=500mm,池壁厚度d2=300mm。
3、处理方案:400mm厚池壁将雨水收集池分为四格,增加网格5米一个构造柱,共计36个(350mm×350mm),顶板150mm厚,梁450mm高,底板加厚h(配筋,底板植筋)。
4、素混凝土22-24KN/每立方米,钢筋混凝土24-25KN/每立方米,粘土18KN/每立方米(建筑结构荷载规范GB50009-2001,第36、38页)5、1kg=10N即1 KN=0.1吨,F=mg二、计算1、水池自重:(1)、垫层自重:G1=41.2×41.2×0.1×23×0.1=390.41吨(2)、底板自重:G2=41×41×0.5×24.5×0.1=2059.22吨(3)、池壁自重:G3=40×4×0.3×4.7×24.5×0.1=552.72吨G4=40×2×0.4×4.7×24.5×0.1=368.48吨(4)、柱自重: G5=0.35×0.35×4.7×36×24.5×0.1=50.78吨(5)、梁自重: G6=(40×36×0.25×0.35)×24.5×0.1=308.70吨(6)、板自重: G7=(40.3×40.3×0.15)×24.5×0.1=596.85吨(7)、墙址土重:G8=(40+0.825)×4×0.375×4.5×18×0.1×0.9=446.42吨G=∑(G1+G2+G3+G4+G5+G6+G7+G8)=∑(390.41+2059.22+552.72+368.48+50.78+308.70+596.85+446.42)=4773.582、相关参数:(1)、抗浮安全系数:K=1.05~1.10(2)、水容重:r=1吨/立方米(3)、水池底板面积:A=1701.56平方米(4)、地下水顶面至底板地面距离:H =4.5米三、整体抗浮验算K =8r G G HA=(4773.58+8G )/(4.5×1701.56) ≥1.05 8G ≥3266.29吨计算底板增加厚度:39.3×39.3×24.5×0.102×H =3266.29h =0.85m四、局部抗浮验算K n =n r nG HA 1、中间隔墙单元:(1)、柱:(0.35×0.35×4.7×12+0.25×0.25×0.35×4×24)×24.5×0.1=22.07吨(2)、梁:20×7×0.25×0.35×24.5×0.1=30.01吨(3)、板:20×20.6×(0.1+0.5+0.85+0.15)×24.5×0.1=1615.04吨(4)、池壁:20×(0.3+0.4×2)×4.7×24.5×0.1=253.33吨1G =22.07+30.01+1615.04+253.33=1920.45吨K 1=1920.45/(4.5×20×20.6)=1.042、边墙单元:(1)、柱:(0.35×0.35×4.7×6+0.25×0.25×0.35×4×12)×24.5×0.1=11.04吨(2)、梁:(20×2+10×3)×0.25×0.35×24.5×0.1=15.01吨(3)、板:(20.6×10×(0.1+0.5+0.85+0.15)+20.6×0.6×0.6)×24.5×0.1=825.69吨(4)、池壁:30×0.3×4.7+10×0.4×4.7×24.5×0.1=88.36吨(5)、墙址土:20.6×0.375×4.5×18×0.1×0.9=56.31吨2G =11.04+15.01+825.69+88.36+56.31=996.41吨K 2=996.41/(4.5×20.6×10.6)=1.013、中间区格:(1)、柱:(0.35×0.35×4.7×1+0.25×0.25×0.35×4×12)×24.5×0.1=3.98吨(2)、梁:5×2×0.25×0.35×24.5×0.1=2.14吨(3)、板:5×5×(0.1+0.5+0.85+0.15)×24.5×0.1=98吨G=3.98+2.14+98=104.12吨3K3=104.12/(4.5×5×5)=0.93五、补充说明柱、梁、板采用雨水收集池北侧现有事故池施工图,隔墙分为四格后四个小水池再分别增加两道地梁加固底板。