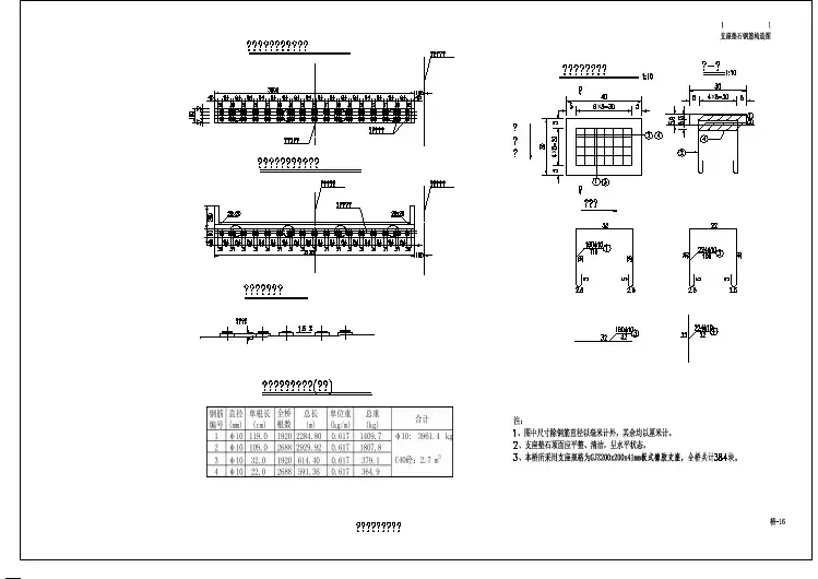
支座垫石预埋钢筋
- 格式:doc
- 大小:32.00 KB
- 文档页数:1
支座垫石施工方案垫石是指在建筑物的支柱或柱子下面铺设石块或混凝土垫石,以增加地基的稳定性,分散建筑物的重量,减少地面沉陷和承载能力不足的问题。
在进行支座垫石施工时,需要考虑以下几个方面:材料选用、施工步骤、施工工具和施工人员等。
一、材料选用1.石材:一般选择坚硬、质地紧密的石材,如花岗岩、玄武岩等。
石材的质量要求应符合国家相关标准。
2.混凝土:根据具体情况选择配合比合理的水泥、骨料等原材料,以确保混凝土的质量。
3.钢筋:根据设计要求选择规格合适的钢筋,以增加垫石的承载能力。
二、施工步骤1.地面准备:清除地表杂物和浮土,确保施工面整洁。
2.定位标高:根据设计要求和实际情况进行标高定位,确定垫石的高度和位置。
3.基座施工:根据垫石的大小和形状进行相应的基座施工,保证垫石的稳定性。
4.石材铺设:在基座上进行石材的铺设,注意石材之间的间隙和水平度。
5.混凝土浇筑:将混凝土浇注到支座垫石之间的空隙中,填满整个支座,以增加承载能力。
6.钢筋绑扎:根据设计要求,在浇筑混凝土时进行钢筋的绑扎,以增加垫石的强度和稳定性。
7.养护保养:在施工完成后,对支座垫石进行养护保养,保证混凝土的强度和稳定性。
三、施工工具1.手持工具:如锤子、切割机、钳子等,用于处理石材和金属材料。
2.机械设备:如搅拌机、浇筑机等,用于准备混凝土和浇筑作业。
四、施工人员1.熟练工:负责石材的加工和铺设。
2.混凝土工:负责混凝土的拌和和浇注。
3.钢筋工:负责钢筋的预埋和绑扎。
五、安全措施1.施工现场应设置警示标志,确保施工区域的安全。
2.工人应佩戴安全帽、手套等防护装备。
3.操作机械设备时,应遵守相关操作规程,保证操作人员的安全。
4.施工过程中要进行定期检查,确保施工质量和施工安全。
六、注意事项1.在进行支座垫石施工前,应对地基进行勘察和测试,确保地基的承载能力符合要求。
2.在石材铺设过程中,要注意石材之间的间隙和水平度,保证铺设质量。
3.在混凝土浇筑过程中,要注意浇筑的均匀性和密实性,保证混凝土的强度。
怀柔安四路白庙桥加固工程
支座及垫石施工方案
一、工程概况
桥台处支座垫石共需预埋钢板(550*424*20mm),滑板式圆形橡胶支座GYZF4 300*65(CR)共需12块。
墩帽处圆形板式橡胶支座GYZ 300*66(CR)共需48块。
墩台帽支座垫石预埋钢筋共计707kg。
二、施工方案
1、垫石钢筋的预埋
将垫石预埋钢筋与墩台帽钢筋进行绑扎,注意控制好垫石钢筋的高程,然后进行模板的安装,注意留出四周及上部的保护层。
2、支座的安装工艺
支座进场后,首先检查支座的型号是否正确,合格后方可使用。
请监理工程师验收合格后,进行支座的安装。
安装时用环氧树脂砂浆将支座垫平。
环氧砂浆的各项原材料必须满足要求,以保证环氧砂浆的质量满足要求。
同时用水准仪测量出支座顶标高,与设计支座顶误差必须在规范允许范围内。
安装完成后,在环氧树脂砂浆凝固之前,严禁在其上堆放重物或踩踏,以保证顶面绝对水平。
- 1 -。
支座垫石施工方案1、工程概况蜘蛛洞大桥每个台帽及盖梁上布置五个支座垫石,采用C40小石子混凝土;垫石尺寸为顺桥向0.7米,横桥向0.6米,厚度(含支座)共28厘米。
2 、施工2.1 方案概述采用常规施工方法,模板为钢模板。
混凝土由拌和站集中拌合,砼运输车运输,汽车吊配合入模浇注。
2.2施工方法2.2.1 定位放线待盖梁完成并达到设计强度后,即可进行支座垫石的施工。
首先整直盖梁顶预留伸出的钢筋,对伸出的预留钢筋按设计要求形状成型。
准确测量放出支座垫石位置及标高,并标于各盖梁顶面上。
2.2.1 模板安装垫石施工用模板采用钢模板。
模板采用汽车吊配合安装。
钢模要求内表面光滑、平整,接头严密不漏浆。
模板的设计、加工需经验收合格后方可使用。
模板支立前,应在模板内表面涂刷脱模剂,脱模剂应采用同一种品种,以保证砼表面色泽一致。
2.2.2 绑扎钢筋垫石钢筋网片事先在现场钢筋加工场加工成型。
钢筋使用前应除锈。
绑扎钢筋时,按施工图纸上的间距。
准确安放钢筋。
在垫石钢筋底及侧绑一定数量的小块水泥砂浆垫块与模板隔开,以保证钢筋保护层厚度。
2.2.3 砼浇筑⑴模板的支立、钢筋的绑扎经验收合格后,清除干净钢筋上污垢、焊渣与模内杂物及积水,即可准备好浇筑机械、设备,开始垫石砼的浇筑。
⑵垫石砼采用拌和站拌制砼,由搅拌车运输,运至现场后,应先检验其坍落度与拌合均匀性,满足要求后方可使用。
砼浇筑采用汽车吊配合人工浇筑方案。
⑶浇筑砼前,应先洒适量水湿润盖梁顶砼表面。
垫石砼一次浇筑成型。
⑷凿毛待浇垫石处垫石顶面砼,冲洗干净后安装垫石模板,模板应能保证垫石的形状尺寸与设计要求的坡度。
垫石砼标号为C40小石子砼,采用小型震动棒或人工钢钎捣实,捣垫石砼时,应注意不要触动位移钢筋。
要严格控制垫石的设计标高及表面平整度。
2.3.4 拆模、养护⑴待垫石砼终凝后,开始洒水养护(洒水以砼面层湿润即可,水质同搅拌用水)。
待砼抗压强度达到2.5Mpa后,即可利用汽车吊配合人工拆除模板,拆模时不得重撬、硬砸,以免损伤砼面层。
支座垫石
1、支座垫石顶面要求标高准确、表面平整,同一墩台上每片梁的支承垫石相对水平误差应控制在3mm之内,以防止支座的不均匀受力及脱空。
2、支承垫石平面尺寸的大小应满足局部承压强度要求,一般每边比橡胶支座尺寸大5cm左右为宜,垫石厚度应大于6cm。
设计时,最好能保证梁底到墩、台顶面有足够空间,用来安放千斤顶,供观察、更换支座时使用。
3、支承垫石布置的水平钢筋网不宜过多,并需用竖向钢筋与墩、台帽内钢筋相连接;垫石厚度在8cm以内,宜放置一层水平钢筋网,大于8cm可放置两到三层水平钢筋网,水平钢筋网的竖向间距宜采用10cm。
垫石混凝土一般应与墩、台帽一同浇筑,混凝土标号与墩、台帽相同。
当垫石厚度大于15cm时可与墩、台帽分开浇筑,但应在墩、台帽顶面预埋竖向钢筋,并将垫石处混凝土凿毛,洗净后方可浇筑支承垫石混凝土,此时的混凝土标号应大于墩、台帽的混凝土标号至少一个等级。
盖梁施 工技术及质量控制要点目前,我 工区桥梁已转入下部结构盖梁施 工,我 工区盖梁采用无落地支架施 工方法, 模板采用定型组合钢模板,钢筋采用人 工配合汽车吊进行安装,砼浇筑采用人 工配合汽车 吊进行浇筑。
为确保盖梁施 工各项指标满足规范及设计要求,规范盖梁施 工 工艺,现对我 工区桥梁盖梁施 工各 工序技术及质量控制要求如下:1、钢筋制作及安装技术、质量控制要点: 桥梁结构主筋连接原则上采用焊接和机械接头连接两种型式,现场根据实际情况由作业队自行选择连接型式,要求满足桥涵施 工规 范要求,具体要求如下:(1)、盖梁主筋下料:要求准确、无误,确保主筋长度满足设计或现场实测要求,主筋的 下料长度注意考虑弯曲增长量,主筋型号 (直径)符合设计图纸要求;同时,主筋下料时 要求进行科学搭配下料,确保主筋钢筋接头错开,错开间距满足规范要求 (规范要求接头错 开间距不小于 35d ,注: L22=77cm 、L 25=88cm 、L 28=98cm 、L 32=112cm),在同一截面Φ Φ Φ Φ处主筋接头数量不应大于总主筋数量的 50%。
(2)、盖梁主筋连接:盖梁主筋连接原则上采用焊接和机械接头连接两种型式,建议采 用机械接头连接型式,接头要求满足桥涵施 工规范要求,具体要求如下。
○ 1 .采用焊接方式要求焊接长度满足规范要求,单面焊长度不小于10d ,双面焊长度 不小于 5d ,我 工区要求主筋采用双面搭接焊形式,搭接区域主筋应有适当的 弯折角,以满 足主筋中轴线在同一直线上。
钢筋焊接要求焊缝饱满、无夹渣,表面焊渣必须清除干净,焊条必须采用5字头焊条(502或 506焊条),严禁使用 4字头焊条 (422焊条)。
○2 .采用机械连接要求:车丝连接段钢筋要求顺直,车丝段钢筋端面应锤平,与套筒 连接完成后要求露丝不大于 1.5丝,连接完成后要求采用管钳加力拧紧,以确保机械接头 紧密、牢固,满足受力要求。
第1篇一、项目背景随着我国基础设施建设的快速发展,桥梁工程作为交通建设的重要组成部分,其施工质量直接关系到桥梁的安全性和使用寿命。
桥梁支座垫石作为桥梁支座的直接基础,其施工质量对整个桥梁结构的稳定性至关重要。
本方案旨在详细阐述桥梁支座垫石施工的流程、技术要求和质量控制措施。
二、工程概况1. 工程名称:XX桥梁工程2. 工程地点:XX省XX市XX县3. 工程规模:全长XX米,主桥跨径XX米4. 结构形式:XX(如:预应力混凝土连续梁)5. 支座类型:XX(如:橡胶支座)三、施工准备1. 人员准备:- 组织施工队伍,明确各工种人员职责。
- 对施工人员进行技术培训和安全教育。
2. 材料准备:- 确保混凝土、钢筋、水泥等原材料质量符合设计要求。
- 准备支座垫石模板、支撑系统、测量工具等施工设备。
3. 施工设备准备:- 混凝土搅拌运输车、泵车、振捣器、切割机等。
4. 技术准备:- 复核设计图纸,明确支座垫石的设计参数。
- 编制施工组织设计、专项施工方案和安全技术交底。
四、施工工艺1. 测量放样:- 根据设计图纸,利用全站仪进行测量放样,确定支座垫石的位置和尺寸。
- 标注控制点,确保放样精度。
2. 地基处理:- 对地基进行压实、平整,确保地基承载力满足设计要求。
- 对地基进行排水处理,防止积水影响施工。
3. 模板安装:- 根据设计图纸,选用合适的模板材料。
- 安装模板,确保模板平整、牢固,接缝严密。
4. 钢筋绑扎:- 根据设计图纸,绑扎钢筋,确保钢筋位置准确、间距符合要求。
- 钢筋保护层厚度应符合规范要求。
5. 混凝土浇筑:- 混凝土应搅拌均匀,确保强度和耐久性。
- 采用分层浇筑,每层厚度不宜超过30cm。
- 浇筑过程中,采用振捣器进行振捣,确保混凝土密实。
6. 养护:- 混凝土浇筑完成后,应及时进行养护,保持混凝土表面湿润。
- 养护时间根据混凝土强度要求确定。
7. 支座安装:- 在混凝土达到设计强度后,进行支座安装。
支座及垫石施工方案1. 引言支座及垫石是在建筑、桥梁、机械设备等结构工程中广泛应用的关键构件。
它们承担着承载和分散荷载的重要作用,为结构提供安全稳定的基础支撑。
本文将介绍支座及垫石的施工方案,包括施工准备、施工工艺以及施工注意事项等内容。
2. 施工准备2.1 材料准备在进行支座及垫石施工之前,需要准备以下材料:•混凝土:按照设计要求配制。
•钢筋:根据设计图纸要求加工和预埋。
•支座:根据设计要求选择合适的支座类型。
•垫石:根据设计要求选择合适的垫石材料。
2.2 设备准备在进行支座及垫石施工之前,需要准备以下设备:•混凝土搅拌机:用于搅拌混凝土。
•支座安装设备:用于安装支座,如起重机、千斤顶等。
•钢筋加工设备:用于加工和预埋钢筋。
2.3 施工人员准备在进行支座及垫石施工之前,需要准备以下人员:•工程师:负责监督和指导施工过程。
•技术工人:负责具体施工操作。
•安全员:负责施工现场的安全管理。
3. 施工工艺支座及垫石施工的基本工艺如下:3.1 钢筋安装根据设计要求,进行钢筋的加工和预埋。
在混凝土浇筑之前,将钢筋按照设计图纸的位置和数量进行安装,并进行检查和验收。
3.2 支座安装根据设计要求和施工图纸,安装支座。
首先在支座位置上清理并做好基础处理,然后将支座放置在正确的位置,并进行调整。
最后,使用适当的固定设备将支座固定在位置上。
3.3 垫石铺设在支座安装完成之后,根据设计要求选择合适的垫石材料,并进行铺设。
铺设垫石时应保证其水平度和垂直度,并进行必要的调整,确保支座的稳定性和承载能力。
3.4 混凝土浇筑在支座和垫石铺设完成之后,进行混凝土的浇筑。
在浇筑之前,应先进行模板的安装和定位,并采取必要的防漏措施。
混凝土浇筑时应控制好浇筑速度和浇筑厚度,并采取震捣措施确保混凝土的均匀密实。
4. 施工注意事项在进行支座及垫石施工时,需要注意以下几个方面:4.1 施工质量在施工过程中,应严格按照设计要求和施工规范进行操作,确保施工质量符合要求。
支座垫石施工工艺支座垫石是支撑桥面板的主要载体,是桥梁的重要组成部分,于桥梁上、下部结构连接点的重要位置,可以调整桥墩和桥面板之间犹豫施工引起的误差和偏差。
加下来我们就针对支座垫石施工这一工艺流程为大家做一个详细的讲解。
内容较多,希望大家可以耐心看下去!(1)测量放样:采用全站仪进行放样,精确定出垫石中心十字线,每个垫石4个点,为了便于立模,各轴线点均外移15cm。
同时要进行换人、换点测量复核合格,报送监理工程师复核并签认,方可进入下道工序作业。
(2)支座螺栓预埋孔定位:根据桥墩对应的支座类型,在墩顶采用墨斗弹出预埋孔中心线,对预埋孔范围内的垫石预埋钢筋进行适当调整。
(3)垫石钢筋网片绑扎:对垫石范围混凝土面进行切槽、凿毛处理,凿毛面积不小于75%,并且露出新鲜混凝土面,松散混凝土及废渣清理干净。
垫石钢筋在钢筋加工场统一下料加工,运送至现场安装成型。
垫石钢筋品种、规格、数量、位置和间距严格按照施工图制作安装。
(4)保护层垫块安装:为保证垫石混凝土保护层厚度,垫块采用与垫石混凝土同标号高性能混凝土预制垫块。
垫块数量按照每平米不少于4个的布置,绑扎垫块和钢筋的铁丝头不得伸入保护层内,避免形成锈蚀通道。
(5)模板制作、安装:垫石模板采用“易拼装塑钢模板”。
内表面安装前均匀涂刷脱模剂。
模板高度0.4m,对于2.4*1.2*0.35m垫石,模板短边采用两块0.4m高*0.6m长的平面模组拼,长边采用1.8m 长*0.4m高+0.6m长*0.4m高的平面模组拼。
模板生产时,已配置足够的调整模块满足不同尺寸垫石施工需求。
模板间连接通过专用接头直连。
转角位置通过直接三角铁和专用接头连接。
拆装方便,接缝严密不漏浆。
(6)支座螺栓预埋孔安装:根据墩顶墨斗弹线位置确定预埋螺栓孔,锚栓孔采用上口直径13.8cm,下口直径12.8cm,高50cm的镀锌钢管成孔,管底部中心钻1个直径1cm小孔以免拆除时形成负压,浇筑前用木楔堵塞,防止漏进水泥浆。
支座垫石及支座安装施工方案一、编制根据根据现场实际状况、有关图纸、有关技术规范, 结合我标段旳施工能力及以往工程旳施工经验, 合理安排施工, 优化施工工艺流程, 本着安全、优质、高效、迅速旳原则。
二、工程概况及工程量本段为邯大高速公路S7协议段, 起点(桩号为K52+912)位于大名县铺上乡石家庄村, 接第6协议段终点, 经万堤镇前屯村、大名镇康堤口村, 跨漳河东大堤及S215省道, 到大名县大街乡大桂村, 路线由西北向东南为漳河特大桥、路基、K55+501桥式通道, 终点(K55+800)与10协议段相接。
路段长度2.888km, 重要工程漳河特大桥、K55+501桥式通道。
漳河特大桥分为两个施工标段, 其中第1~21联属于S6协议段, 第22~38联属于S7协议段。
95号桥墩是S6.S7两协议段分界线, 95号桥墩及墩顶D160伸缩缝属于S6协议段。
本协议段(S7协议段)上部构造类型有30米预制组合箱梁和(40+65+40)现浇箱梁两种类型;设计速度120km/h, 双向六车道, 左右分幅, 单幅宽度16.75米;桥梁设计荷载: 公路-I级;抗震按Ⅷ度设防。
盖梁顶支座垫石采用C40混凝土, 共有垫石1182个, 3种支座类型, 7种支座规格型号, 包括GYZ175×49支座、GPZ(Ⅱ)1.0DX支座、GPZ(Ⅱ)1.5DX支座、GPZ(Ⅱ)1.5GD支座、GPZ(Ⅱ)6.0DX支座、JQGZ-Ⅲ22500DX支座、JQGZ-Ⅲ22500GD支座。
三、施工准备1.人员安排A.项目部管理人员配置表2.机械设备机械设备数量表3.施工计划、时间安排垫石随盖梁同步浇筑, 支座安装在架梁之前施工。
现浇梁支座施工计划、时间安排同现浇梁施工同步安排, 随现浇梁施工做垫石及支座施工。
4.材料试验、配合比设计、测量成果、测量放样单(见附件)四、垫石及支座安装施工方案1.施工措施施工工序为: 墩顶凿毛、测量放线、模板安装、浇筑垫石砼、预埋地脚螺栓、安装支座。
桥梁支座垫石及挡块施工方案施工工艺支座垫石及挡块施工工序:钢筋预埋→盖梁砼浇筑→垫石及挡块区域凿毛→钢筋修整→测量、放样→模板安装→测量复核→砼浇筑→养护→后期处理。
1、钢筋预埋在盖梁骨架及模板吊装固定好后,由测量人员在盖梁骨架顶面测量放出两墩顶中心点,及盖梁中心轴线方向前后控制点,该点可通过焊铁板的方式固定于钢筋骨架面上。
然后由技术人员对每个垫石及挡块中心位置进行分中并预埋垫石及挡块钢筋。
2、盖梁砼浇筑待报验通过后进行砼浇筑。
砼浇筑过程中注意保护垫石及挡块钢筋,确保其标高与平面位置不发生变化。
3、垫石及挡块区域凿毛待盖梁砼初凝后即对垫石及挡块区域砼表面进行凿毛,清除浮浆直至砼出露面骨料分布均匀,浆体饱满基本无气泡,外观上判断砼强度能满足要求即可。
4、钢筋修整盖梁浇筑完后立即进行支座垫石及挡块砼浇筑的准备工作,在凿毛后,测量人员重新在盖梁砼顶面上将纵横轴线控制点测放出,然后依据控制点分出各垫石及挡块的中心点。
再根据中心点位置按设计图加设钢筋网片并用电焊等方式进行固定。
同时,将原预埋钢筋上的粘附浆壳敲掉。
5、模板安装待垫石及挡块钢筋修整绑扎好后,根据所分各中心点位,安装垫石及挡块模板。
模板按垫石及挡块尺寸安装并固定牢固。
模板安装应该满足以下要求:5.1 模板板面之间应平整,接缝严密,不漏浆,保证结构物外露面美观,线条流畅。
5.2 模板安装完毕后,应对其平面位置、顶部标高、节点联系及纵横向稳定性进行检查,符合要求后方浇筑混凝土。
浇筑混凝土前,模板应涂刷脱模剂,外露面混凝土模板的脱模剂应采用同一品种,不得使用废机油等油料,且不得污染钢筋及混凝土的施工缝处。
重复使用的模板、支架、拱架应经常检查、维修。
5.3 浇筑混凝土时,发现模板有超过允许偏差变形值的可能时,应及时纠正。
6、砼浇筑垫石及挡块模板安装完成后,由测量人员对各垫石及挡块模板的平面位置及标高进行复测,满足设计及规范要求后,向监理工程师报验,检查合格即可进行砼浇筑。
关于简支梁支承垫石施工技术交底书一、简支箱梁固定支座安装位置1、一孔简支箱梁设一个固定支座(GD),一个多向活动支座(DX),一个纵向活动支座(ZX),一个横向活动支座(HX).同一座桥梁上,固定支座与纵向活动支座应安装在梁的同一侧,横向活动支座与多向活动支座应安装在梁的另一侧。
2、竖曲线:固定支座应放在下坡端。
如桥上有凹曲线,对应轨面最低处的简支梁桥墩采用双固定支座桥墩,凸曲线时,则对应轨面最高处的简支梁桥墩采用双活动支座桥墩。
具体设置端与工点图要求对应安装.3、平曲线:曲线地段所有简支梁及连续梁的固定支座设置在曲线内侧,首先每座桥梁固定支座设置位置在横桥向上要保持一致.其次沿线路方向固定支座在横桥向的设置位置与小里程保持一致.二、桥梁支撑垫石施工方法1施工工艺施工工序为:墩顶凿毛测量放线模板安装浇筑垫石砼预埋地脚螺栓安装支座.2施工方法2。
1墩顶凿毛墩台顶钢筋如有锈蚀进行除锈,墩台顶混凝土用电锤进行凿毛,凿除多余浮浆,露出新鲜混凝土.2.2测量放线现场测量人员用全站仪放出支座垫石中心线位置,按照放样点位定出模板位置,用水准仪测量出墩顶垫石高程;现场测量完成后报测量队长进行复核。
2.2钢筋安装我标段目前支撑垫石钢筋基本已完成预埋施工。
为保证垫石的强度,要求垫石浇筑时一次浇筑至设计高程,但同时必须保证垫石顶层的保护层厚度不超过规定厚度,当支撑垫石高度35cm<H<40cm时,保持原设计钢筋网层数,调整钢筋网层高以适应支撑垫石高度变化,当支撑垫石高度40cm<H<50cm时,加设计一层与第二、三层钢筋网相同的钢筋,调整钢筋网层高以适应支撑垫石高度变化。
(附图) 注意横向的垫石中心线为梁缝中心线,不等跨桥墩的梁缝中心线与桥墩中心线不重合,严格按全桥图的要求设置纵向预偏心。
2。
3模板安装复核无误后经检验合格后,方可立模.模板采用定型钢模板组合加固而成,保证模板四周平整、光洁,模板拼紧密。
模板支护采用三角支撑方木的方式,保证模板稳定并便于拆卸。
中铁十四局集团四川雅泸高速公路支座垫石和挡块施工方案编制单位:中铁十四局集团雅泸高速公路C17标项目经理部编制人:审核人:编制时间:2008年06月22日支座垫石和挡块施工方案1. 工程概况雅泸高速C17标有西冲特大桥与磨房沟大桥两座桥梁,分左右线,都为30m T梁。
西冲特大桥左右线各34跨,磨房沟大桥左线9跨,右线8跨。
西冲特大桥左线平面位于R=600,R=700的圆曲线及其缓和曲线内,右线平面位于R=620,R=710的圆曲线及其缓和曲线内,左线纵面位于1.9%、3.976%、2.5%的纵坡及其竖曲线内,右线纵面位于1.297%、3.516%、2.5%的纵坡及其竖曲线内。
磨房沟大桥平面位于直线段,左线纵面位于1.9%的纵坡内,右线纵面位于2.75%、1.279%的纵坡及其竖曲线内。
两桥支座垫石为每片盖梁上前后排各5个,排间相邻间距为2.5m。
对于桥墩上支座垫石尺寸为60×60cm,盖梁为非伸缩缝处时,前后两排垫石中心距为45cm,盖梁为伸缩缝处时,前后两排垫石中心距为50cm。
对于桥台支座垫石尺寸为70×70cm。
垫石为C50砼。
两桥设计地震基本强度为VIII级,故盖梁上设置T梁横向挡块。
对于西冲特大桥在伸缩缝处设置56套20吨挡块,在桥墩设置216套12吨挡块。
对于磨房沟大桥,在非伸缝处设置16套12吨挡块,在伸缩缝位置设置8套20吨挡块。
2. 施工准备2.1 组织有关人员学习《公路桥涵施工技术规范》(JTJ 041-2000)和《公路工程质量检验评定标准》(JTG F80/1-2004),对特殊工种操作人员进行培训和技能考核,必须坚持持证上岗。
2.2 工程部负责编制承台工程施工方案,并对施工班组进行技术交底,班组长负责对操作工人进行技术交底。
2.3 所用材料必须符合有关技术标准规定,使用前必须严格审核所选用材料的出厂合格证和试验报告,并送往试验室进行验证,合格材料才可使用,不合格的材料一律清除出场。
桥梁支座垫石施工及预留孔位置控制方法摘要:当今桥梁施工质量提高很快,新验标要求也更严格。
无拉杆桁架式模板的广泛应用及加强对混凝土施工的要求使墩台身质量基本都能达到内实外美,但是在桥梁最关键的受力部位支座垫石,特别是支座锚栓孔的预留仍然存在着很大问题。
本文旨在总结大西客专采用的一种新型的锚栓孔预留方法,为以后的类似施工提供依据。
关键词:大西客专锚栓孔埋沙 PVC管矩形框引言随着新验标的出台,高铁的不断建设,施工单位对桥梁施工质量的把握也越来越好,墩台身实体基本都能达到内实外美。
但是在桥梁最关键的受力部位支座垫石上依然存在着很多问题。
其中支座锚栓孔的预留及垫石标高的控制一直是桥梁施工的一个重难点。
本文旨在介绍大西客专支座垫石精细化施工的经验,为以后类似施工提供指导。
1.工程概况大西铁路客运专线是国家《中长期铁路网规划》中中西部重要组成部分,设计时速为350km/h,设计洪水频率1/100,途经山西、陕西两省九市,线路全长859km,穿越黄土高原,桥梁隧道占77%,施工难度大,工程造价高。
中铁二十一局施工的15标段位于陕西省西安市临潼区,其中灞河特大桥(具体起屹里程为DK832+804.49~DK840+120.69)线路长7.32 km,共205个桥墩,全部采用圆端形实体桥墩。
灞河特大桥分为灞河特大桥灞河段及灞河特大桥路改桥段,其中灞河特大桥灞河段共有139个墩身,地震动峰值为0.19g。
参照《通桥(2007)8360》灞河特大桥24m梁采用PZ-4000支座,32m梁采用PZ-5000支座。
灞河特大桥路改桥段共有92个墩身,地震动峰值为0.23g,参照《大西运西施桥参12》灞河特大桥路改桥段24m梁采用DXPZ-4000支座,32m梁采用DXPZ-5000支座。
2.支座垫石锚栓孔预留尽管由于梁缝不一样导致每个墩身支座垫石锚栓孔位置不一样,但是支座垫石锚栓孔的预留方法是一样的。
2.1锚栓孔平面布置图的绘制在图纸上查出梁缝的宽度。
支座垫石施工方案
1、平面控制
1)在进行盖梁钢筋安装后,全站仪放出每个垫石的中心点,挂线拉尺量出支座垫石的角,精确进行垫石钢筋的预埋,再用水准仪操控好预埋垫石钢筋的高程,最终把垫石钢筋与盖梁的钢筋结实焊接在一起。
2)垫石施工时,用全站仪精断定出每块支座垫石的中心点,然后用墨线弹出垫石立模边线。
精确定位支座垫石的平面方位,在模板安装完成后,应复测模板位置,保证位置正确。
2、高程控制
在在安装支座垫石模板时,用水准仪测量模板高程是不是到达设计的高程。
对垫石混凝土外表要进行二次抹平收面,在抹平收面过程中,也要用水平尺仔细检查垫石全部顶面是不是到达水平,再用水准仪进行测量混凝土面标高,使支座垫石顶面高程符合设计、并确保垫石全部顶面都到达水平。
3、钢筋安装
盖梁顶垫石预埋钢筋装置时要精确预埋,并按尺度、距离和盖梁钢筋结实焊接,使其在盖梁砼浇筑过程中方位不动。
盖梁施工完后要注意支座垫石预埋钢筋进行防锈处理。
4、模板安装
1)模板选用组合钢模,确保支座垫石砼顶面水平及高程准
确。
2)模板支护选用定位短钢筋焊接在支座垫石预埋钢筋上内支护,确保模板安定不移位,又便于拆开。
3)垫石模板装置前一定要打磨洁净光亮。
4)模板安装之后沿立模边线用高标号水泥砂浆对其与盖梁顶面空地进行封堵,并用钢抹子将内侧超出模板部分铲除,并抹平。
5、砼浇筑
由于支座垫石的钢筋较密,在浇筑砼时一定要确保细心地将砼振捣密实。
进行再次抹平收面,抹平收面过程中要用要用水平尺反复检查垫石全部顶面是否达到水平。
支座垫石预埋钢筋注意事项
支座垫石预埋钢筋注意事项:
支座垫石预埋钢筋是建筑结构中常见的一项工程,用于加强支座垫石的强度和稳定性。
在进行支座垫石预埋钢筋时,需要注意以下事项:
1. 钢筋的选择:根据设计要求选择合适的钢筋规格和材质。
钢筋应符合相关的国家标准和建筑规范,具备足够的强度和耐腐蚀性。
2. 钢筋的埋入深度:钢筋的埋入深度应符合设计要求。
了解设计图纸中预留的埋入深度,并在施工过程中进行精确测量和调整。
3. 钢筋的间距和布置:钢筋的间距和布置应按照设计要求进行,以确保支座垫石的强度和稳定性。
确保钢筋之间保持适当的间隔和定位,以便于混凝土的浇筑和固化。
4. 钢筋与支座垫石的粘结:钢筋与支座垫石之间需要有良好的粘结性能。
在进行预埋钢筋施工之前,应将支座垫石的表面清洁干净,并涂抹适当的粘结剂或涂料,以提高钢筋与支座垫石之间的粘结强度。
5. 钢筋和支座垫石的保护:在完成预埋钢筋后,需要采取措施保护钢筋和支座垫石,防止其受到损坏或腐蚀。
可以采用钢筋防腐蚀处理,并覆盖保护层或使用其他防护措施,以延长钢筋和支座垫石的使用寿命。
6. 质量控制:对支座垫石预埋钢筋的质量进行严格控制。
进行必要的验收和检测,确保钢筋的强度、布置和埋入深度符合设计要求和规范要求。
以上是在进行支座垫石预埋钢筋时需要注意的事项。
严格遵守施工规范和安全操作规程,确保施工质量和工程安全,并及时解决施工过程中的问题和难点。
这样可以保证支座垫石预埋钢筋的稳定性和可靠性,为建筑物提供良好的结构支撑。
垫石钢筋规范要求
1、清理
人工凿除支座垫石预埋钢筋处的松散混凝土,并把钢筋上沾结的混凝土浮浆清理干净,用空压机吹干净。
2、测量
根据设计图纸及坐标精确推算出支座垫石平面位置,然后用念站仪准确放出支座垫石的位置,报请监理工程师审核,并提交开工报告。
3、模板
支垫模板采用木模,木模与混凝土接触的表面必须平整、光滑,如重复使用在木模内侧加钉薄铁皮并应始终保持其表面平整、形状准确,不漏浆,有足够的强度和刚度。
模板安装时,顶面可比支座垫石顶面设计标高约低5mm,便垫石顶面抹平。
模板安装完成后,各部位的平面位置和高程必须由测量人员检测复核后,方可进行砂施工。
4、硅浇筑及养生
支座垫石采用c50铨,在施工过程中严格按照审批的砍配含比进行拌制。
混凝土利用吊车配料斗的方法送料入模,浇筑完成后用铁抹收面,待砍终凝后采用塑料薄模覆盖并洒水养护,养护期间经常保持表面湿润。