断路器的控制原理图
- 格式:doc
- 大小:27.00 KB
- 文档页数:3
第5章断路器控制回路教学目的:掌握断路器控制方式、断路器控制回路的基本要求、断路器的基本跳、合闸控制回路、灯光监视的断路器控制回路、灯光监察液压操作机构操作断路器控制回路复习旧课:操作电源概述、蓄电池组直流操作直流、硅整流电容储能装置直流系统、复式整流装置直流系统、直流系统的绝缘监察与电压监察装置;重点:掌握断路器控制方式、断路器控制回路的基本要求、断路器的基本跳、合闸控制回路、灯光监视的断路器控制回路、灯光监察液压操作机构操作断路器控制回路;难点:掌握断路器控制方式、断路器控制回路的基本要求、断路器的基本跳、合闸控制回路、灯光监视的断路器控制回路、灯光监察液压操作机构操作断路器控制回路;引入新课:第一节概述一、断路器控制方式断路器是电力系统中最重要的开关设备,在正常运行时断路器可以接通和切断电气设备的负荷电流,在系统发生故障时则能可靠地切断短路电流。
断路器一般由动触头、静触头、灭弧装置、操动机构及绝缘支架等构成。
为实现断路器的自动控制,在操动机构中还有与断路器的传动轴联动的辅助触头。
断路器的控制方式有多种,分述如下。
1.按控制地点分断路器的控制方式接控制地点分为集中控制和就地(分散)控制两种。
(1)集中控制。
在主控制室的控制台上,用控制开关或按钮通过控制电缆去接通或断开断路器的跳、合闸线圈,对断路器进行控制。
一般对发电机、主变压器、母线、断路器、厂用变压器35kV以上线路等主要设备都采用集中控制。
(2)就地(分散)控制。
在断路器安装地点(配电现场)就地对断路器进行跳、合闸操作(可电动或手动)。
一般对10kV线路以及厂用电动机等采用就地控制,可大大减少主控制室的占地面积和控制电缆数。
2.按控制电源电压分断路器的控制方式接控制电源电压分为强电控制和弱电控制两种。
(1)强电控制。
从断路器的控制开关到其操作机构的工作电压均为直流110V或220V。
(2)弱电控制。
控制开关的工作电压是弱电(直流48V),而断路器的操动机构的电压是220V。
断路器原理结构图断路器是一种用来在电路中断开和闭合电路的电器设备,它在电力系统中起着非常重要的作用。
断路器能够在电路中断开电流,以保护电器设备和人员的安全。
在本文中,我们将介绍断路器的原理和结构图,帮助大家更好地理解断路器的工作原理和组成结构。
首先,我们来介绍一下断路器的工作原理。
断路器的主要作用是在电路中断开和闭合电流,以保护电器设备和人员的安全。
当电路中出现过载或短路时,断路器能够及时切断电流,防止电路和设备受损。
断路器的工作原理主要是依靠电磁吸合和释放原理来实现的。
当电路中出现故障时,断路器的电磁铁会受到电流的作用,产生磁场,从而使断路器触点吸合,切断电流。
当故障排除后,断路器的电磁铁释放,触点分离,闭合电路,恢复正常供电。
接下来,我们将介绍断路器的结构图。
断路器通常由断路器本体、操作机构、电磁铁、触头、弹簧等部件组成。
断路器本体是断路器的主要组成部分,它通常由绝缘套管、触头、触头间隙调节装置等部件组成。
操作机构是用来控制断路器开关状态的部件,它通常由手动操作机构和电动操作机构组成。
电磁铁是断路器的关键部件,它能够根据电流大小来控制断路器的开关状态。
触头是断路器的主要工作部件,它能够承受电流和断开电路。
弹簧则是用来保证断路器的正常工作和安全性能的部件,它能够保证断路器的触头在闭合状态时有足够的压力,以保证电路的正常通电。
总的来说,断路器是电力系统中非常重要的设备,它能够在电路中断开和闭合电流,以保护电器设备和人员的安全。
断路器的工作原理是依靠电磁吸合和释放原理来实现的,它能够根据电流大小来控制断路器的开关状态。
断路器的结构主要由断路器本体、操作机构、电磁铁、触头、弹簧等部件组成,这些部件共同协作,保证断路器的正常工作和安全性能。
希望通过本文的介绍,大家能够更好地理解断路器的工作原理和结构图,从而更好地应用和维护断路器设备,保障电力系统的安全和稳定运行。
低压断路器工作原理图1-主触点 2-自由脱扣机构 3-过电流脱扣器 4-分励扣器脱5-热脱扣器 6-欠电压脱扣器 7-停止按钮低压断路器的主触点是靠手动操作或电动合闸的。
主触点闭合后,自由脱扣机构将主触点锁在合闸位置上。
过电流脱扣器的线圈和热脱扣器的热元件与主电路串联,欠电压脱扣器的线圈和电源并联。
当电路发生短路或严重过载时,过电流脱扣器的衔铁吸合,使自由脱扣机构动作,主触点断开主电路。
当电路过载时,热脱扣器的热元件发热使双金属片上弯曲,推动自由脱扣机构动作。
当电路欠电压时,欠电压脱扣器的衔铁释放。
也使自由脱扣机构动作。
分励脱扣器则作为远距离控制用,在正常工作时,其线圈是断电的,在需要距离控制时,按下起动按钮,使线圈通电,衔铁带动自由脱扣机构动作,使主触点断开。
e a n d A l l t h i n g s i n t h e i r b e i n g a r e g o o df o r s此主题相关图片如下,点击图片看大图:1-主触点 2-自由脱扣机构 3-过电流脱扣器 4-分励扣器脱5-热脱扣器 6-欠电压脱扣器 7-停止按钮空开烧毁的原因:(一)触头系统1.触头压力不足。
因长期使用,触头弹簧变形、氧化,张力消失或减退,因触头过热,使触头弹簧退火,都是触头压力不足的原因,对此要检查触头初压力和终压力是否符保要求。
其方法可在动触头和支持板之间放入一张纸条,纸条在触头弹簧压力下被压紧,在动触头上装一弹簧秤,右手拉弹簧秤,左手轻轻拉纸条,当纸条刚可以抽出时,弹簧称上读数即为初压力。
将开关合上,使触头闭合,纸条夹在动静触头之间,按测初压力的方法;当纸条刚可抽出时,弹簧称上读数就是终压力。
触头压力也可以用下式估算:初压力=0.5*触头终压力,(公斤)终压力=2.25*触头额定电流(安)/100(公斤)根据触头初、终压力的数值,可以重新配制弹簧,也可以自行绕制。
自行绕制时,选择合适的琴钢丝,按同样的直径和匝数进行绕制,但往往由于绕制工艺问题,所得的弹簧力大小的差别,需要将弹簧的直径和匝数进行调节。
断路器控制回路原理图解n一次设备是指直接用于生产、输送、分配电能的电器设备,包括发电机、电力变压器、断路器、隔离开关、母线、电力电缆和输电线路等,是构成电力系统的主体。
二次设备是用于对电力系统及一次设备的工况进行监测、控制、调节和保护的低压电气设备,包括测量仪表、通信设备等。
二次设备之间的相互连接的回路统称为二次回路,它是确保电力系统安全生产、经济运行和可靠供电不可缺少的重要组成部分。
本文简单描述一下断路器控制回路的基本原理,由最基本的回路入手,逐步加入防跳回路和闭锁回路,并对电路做一些完善。
当然,本文所给出的回路原理图仅仅是最最基本的、用于解释其基本原理的,实际应用中的回路要复杂得多。
一、最最基本的回路原理图:SB1:合闸开关SB2:分闸开关QF:断路器辅助触点LC :合闸线圈LT : 分闸线圈其动作原理很简单,不再赘述。
二、增加防跳回路:上面的回路存在一个问题:如果SB1按下,而此时电路中存在故障,继电保护设备会立即动作,使断路器跳闸,此过程几乎瞬时发生,而操作人员尚来不及松开SB1, 则SB1回路中的QF由于断路器跳闸而复又闭合,此时会导致LC再次得电,断路器再次合闸。
如此往复,发生了“跳跃”。
如果合闸成功,但SB1由于某种原因粘连而无法断开,那么在操作人员按下SB2进行分闸时,由于SB1粘连,同样会导致跳跃现象的发生。
跳跃现象对设备和操作人员的安全均构成很大危害,所以需要增加防跳回路。
增加了防跳回路的原理图如下:KCFKCF(I):电流防跳继电器,电流达到限定值时动作,此回路中,防止 合闸于故障时的跳跃KCF(V):电压防跳继电器,电压达到限定值时动作,此回路中,防止 分闸于故障时的跳跃动作过程如下:合闸:SB1按下a 绿灯(GL )失电熄灭,LC 得电a 断路器合闸a QF 改变状态a 红灯(RL )亮,KCF(I)得电【由于有RL 和R 的限流,分 闸线圈LT 不足以动作】a KCF 各辅助触点改变状态a KCF(V)得电 达到上述状态,则合闸动作完成,此过程几乎瞬时完成,SB1尚来不 及松开。
三相漏电断路器工作原理图中L为电磁铁线圈,漏电时可驱动闸刀开关K1断开。
每个桥臂用两只1N4007串联可提高耐压。
R3、R4阻值很大,所以K1合上时,流经L的电流很小,不足以造成开关K1断开。
R3、R4为可控硅T1、T2的均压电阻,可以降低对可控硅的耐压要求。
K2为试验按钮,起模拟漏电的作用。
按压试验按钮K2,K2接通,相当于外线火线对大地有漏电,这样,穿过磁环的三相电源线和零线的电流的矢量和不为零,磁环上的检测线圈的a、b两端就有感应电压输出,该电压立即触发T2导通。
由于C2预先充有一定电压,T2导通后,C2便经R6、R5、T2放电,使R5上产生电压触发T1导通。
T1、T2导通后,流经L的电流大增,使电磁铁动作,驱动开关K1断开,试验按钮的作用是随时可检查本装置功能是否完好。
用电设备漏电引起电磁铁动作的原理与此相同。
R1为压敏电阻,起过压保护作用。
该断路器原理简单、零件少、维修方便,只是代换零件时一定要注意零件的可靠性和参数应符合要求。
零序电流保护与剩余电流保护的异同为了防止人身间接触电以及配电线路由于各种原因而遭损坏,引起火灾等事故,保证设备和线路的热稳定性,我国现行的电气设计、施工等有关规范都提出了在低压配电线路中需设置接地故障保护。
在国家标准GB50054-95《低压配电设计规范》第4.4.10条明确指出了采用接地故障保护的两种方法,零序电流保护与剩余电流保护(亦称漏电电流保护)。
这两种电流保护的基本工作原理相同,但使用范围、安装等要求却有所不同)。
零序电流保护具体应用可在三相线路上各装一个电流互感器(C.T),或让三相导线一起穿过一零序C.T,也可在中性线N上安装一个零序C.T,利用这些C.T来检测三相的电流矢量和,即零序电流Io,IA+IB+IC=IO,当线路上所接的三相负荷完全平衡时(无接地故障,且不考虑线路、电器设备的泄漏电流),IO=0;当线路上所接的三相负荷不平衡,则IO=IN,此时的零序电流为不平衡电流IN;当某一相发生接地故障时,必然产生一个单相接地故障电流Id,此时检测到的零序电流IO=IN+Id,是三相不平衡电流与单相接地电流的矢量和。
低压断路器工作原理图1-主触点2—自由脱扣机构3-过电流脱扣器4—分励扣器脱5-热脱扣器6—欠电压脱扣器7-停止按钮低压断路器的主触点是靠手动操作或电动合闸的。
主触点闭合后,自由脱扣机构将主触点锁在合闸位置上。
过电流脱扣器的线圈和热脱扣器的热元件与主电路串联,欠电压脱扣器的线圈和电源并联。
当电路发生短路或严重过载时,过电流脱扣器的衔铁吸合,使自由脱扣机构动作,主触点断开主电路。
当电路过载时,热脱扣器的热元件发热使双金属片上弯曲,推动自由脱扣机构动作.当电路欠电压时,欠电压脱扣器的衔铁释放。
也使自由脱扣机构动作。
分励脱扣器则作为远距离控制用,在正常工作时,其线圈是断电的,在需要距离控制时,按下起动按钮,使线圈通电,衔铁带动自由脱扣机构动作,使主触点断开。
此主题相关图片如下,点击图片看大图:1—主触点2—自由脱扣机构3—过电流脱扣器4-分励扣器脱5—热脱扣器6—欠电压脱扣器7—停止按钮空开烧毁的原因:(一)触头系统1.触头压力不足.因长期使用,触头弹簧变形、氧化,张力消失或减退,因触头过热,使触头弹簧退火,都是触头压力不足的原因,对此要检查触头初压力和终压力是否符保要求。
其方法可在动触头和支持板之间放入一张纸条,纸条在触头弹簧压力下被压紧,在动触头上装一弹簧秤,右手拉弹簧秤,左手轻轻拉纸条,当纸条刚可以抽出时,弹簧称上读数即为初压力。
将开关合上,使触头闭合,纸条夹在动静触头之间,按测初压力的方法;当纸条刚可抽出时,弹簧称上读数就是终压力。
触头压力也可以用下式估算:初压力=0。
5*触头终压力,(公斤)终压力=2。
25*触头额定电流(安)/100(公斤)根据触头初、终压力的数值,可以重新配制弹簧,也可以自行绕制.自行绕制时,选择合适的琴钢丝,按同样的直径和匝数进行绕制,但往往由于绕制工艺问题,所得的弹簧力大小的差别,需要将弹簧的直径和匝数进行调节。
调节的办法是:钢丝越粗,弹力越大;;弹簧外径越大,弹力越小;匝数越多,弹力越小.绕制时用一根圆铁棒在老虎钳上,再在圆铁棒上齐密缠绕,所用铁棒直径要比弹簧内径小一些,因绕好后弹簧直径会增大,绕好后的弹簧应热处理,否则无弹性。
断路器按其使用范围分为高压断路器,和低压断路器,高低压界线划分比较模糊,一般将3kV以上的成为高压电器。
低压断路器又称自动开关,它是一种既有手动开关作用,又能自动进行失压、欠压、过载、和短路保护的电器。
它可用来分配电能,不频繁地启动异步电动机,对电源线路及电动机等实行保护,当它们发生严重的过载或者短路及欠压等故障时能自动切断电路,其功能相当于熔断器式开关与过欠热继电器等的组合。
而且在分断故障电流后一般不需要变更零部件,一获得了广泛的应用。
分类:按操作方式分有:电动操作、储能操作和手动操作。
按结构分有:万能式和塑壳式。
按使用类别分有:选择型和非选择型。
按灭弧介质分有:油浸式、真空式和空气式。
按动作速度分有:快速型和普通型。
按极数分有:单级、二级、三级和四级等。
按安装方式分有:插入式、固定式和抽屉式等。
高压断路器(或称高压开关)是变电所主要的电力控制设备,具有灭弧特性,当系统正常运行时,它能切断和接通线路及各种电气设备的空载和负载电流;当系统发生故障时,它和继电保护配合,能迅速切断故障电流,以防止扩大事故范围.因此,高压断路器工作的好坏,直接影响到电力系统的安全运行;高压断路器种类很多,按其灭弧的不同,可分为:油断路器(多油断路器、少油断路器)、六氟化硫断路器(SF6断路器)、真空断路器、压缩空气断路器等高压开关额定电压1kV及以上主要用于开断和关合导电回路的电器。
高压负荷开关高压负荷开关是一种功能介于高压断路器和高压隔离开关之间的电器,高压负荷开关常与高压熔断器串联配合使用;用于控制电力变压器。
高压负荷开关具有简单的灭弧装置,因为能通断一定的负荷电流和过负荷电流。
但是它不能断开短路电流,所以它一般与高压熔断器串联使用,借助熔断器来进行短路保护。
功能在规定的使用条件下,可以接通和断开一定容量的空载变压器(室内315KVA,室外500KVA);可以接通和断开一定长度的空载架空线路(室内5KM,室外10KM);可以接通和断开一定长度的空载电缆线路。
四动力车间一月份车间培训讲义
授课人:高成波
授课时间:12月29日
一、断路器的规范及铭牌数据代表的意义
我车间110KV断路器为SF6气体断路器,灭弧介质为SF6气体;型号为LW35-126/3150-40;其中126代表断路器的额定电压(KV),3150为断路器的额定电流(A),40为断路器的额定短路断开电流(KA)
额定电压:是指断路器在运行中所承受的正常工作电压。
额定电流:是指断路器长时间通过的最大工作电流。
额定开断电流:是指断路器在额定电压下允许开断的最大电流。
二、高压断路器的用途
高压断路器是电力系统最重要的控制和保护设备,它在电网中起两方面作用。
在正常运行时,根据电网的需要,接通或断开电路的空载电流和负载电流,这时起控制作用。
而当电网发生故障时,高压断路器和保护装置及自动装置相配合,迅速、自动地切断故障电流,将故障部分从电网中断开,保证电网无故障部分的安全运行,以减少停电范围,防止事故扩大,这时起保护作用。
三、高压断路器的分类及组成部分
1、按灭弧介质分可分为:
1)油断路器
2)磁吹断路器
3)真空断路器
4)六氟化硫断路器
5)空气断路器
6)自产气断路器
2、高压断路器的组成部分
大体可分为:1)导电部分
2)灭弧部分
3)绝缘部分
4)机构及传动部分
5)附件
四、SF6断路器的种类及性能特点
SF6断路器的种类按构造分有敞开式和封闭式;按灭弧方式分有单压式各双压式;按总体分有落地箱式和支撑绝缘式。
SF6断路器的性能特点是:
1)灭弧能力强,介质绝缘强度高,单元额定电压较高。
2)在开断大电流时,产生的电弧电压不高,触头寿命长。
3)切断小电流电容电流时,过电压值较小,不需并联电阻。
4)本体寿命高,检修周期长,维护方便。
5)体积小,重量轻,结构简单,噪音小
五、断路器的简单灭弧原理
断路器的简单灭弧原理是利用热游离和去游离的矛盾,加速去游离的进行,减弱热游
离的进行,加强绝缘介质的再结合作用,使其扩散,达到灭弧的目的。
六、断路器的巡视检查项目
1、检查SF6气体压力
LW35-126型SF6断路器选用的是指针式密度控制器,其指示值有温度补偿功能,根据指示值可直接判断气体压力状况,使用专用放气接头,使断路器内气体缓慢泄漏,SF6断路器额定压力为0.52MPa,0.45MPa报警,0.43MPa时断路器闭锁。
2、SF6断路器运行中的巡视检查。
1)检查SF6气体压力不低于0.52Mpa
2)开关瓷套管清洁完整元裂纹,连杆,传动杆,机构输出杆等完好。
3)开关本体周围及操作机构清洁
4)断路器引线接头不松动,无过热现象,构架、外壳接地牢固
5)位置指示器正确。
6)操作机构箱门应关闭上锁。
7)断路器无异音,异味。
8)断路器相线无断股、烧伤现象
9)控制电源信号是否正常
七、SF6气体简介及气体泄漏处理
1、SF6气体概述:SF6气体是一种无色、无味、无臭、无毒、密度比空气重的惰性气体,纯净的SF6对人体没有毒性,但不能维持生命。
SF6是一种简单窒息剂,暴露在O2含量小于19.5%的大气中会导致头晕、昏迷、口水增多、反应迟钝、反胃、呕吐、失去意识甚至死亡。
暴露在O2小于12%的大气中会无任何先兆地失去知觉,从而失去自我救护的能力。
2、SF6气体的作用:具有良好的化学稳定性和热稳定性,在高压断路器内具有卓越的电绝缘性和灭弧性能
3、SF6气体泄漏处理
在正常生产或生产准备过程中,如果出现SF6气体泄漏事故时,应立即启动应急预案,按照预案的相关程序组织开展事故处理,保证事故得到有效控制。
处理步骤:
1、当发现SF6气体密度报警时,应派两人立即带好防毒面具并打开配电室门窗
2、通风15分钟后应由戴防毒面具人员进入配电室确认故障,当确认故障后应马上将该开关所在母线倒空,用上一级开关将该开关隔离
3、巡视过程中班长应密切注意与检查人员的联系,如失去联系时应立即派人去就地查看(戴好防毒面具),如果巡视人员SF6气体中毒因迅速带至通风地,就地进行抢救并迅速联系医疗部门
注意:断路器的漏气点:连接座内拉杆、气管焊接口、本体、密度继电器。
此类情况必须停电处理后补气
八、端子箱内各空开的作用(以进线端子箱为例)
QM01 I路交流空开(引自中央配I段,主用)中央配I段--4#机组端子箱内总空开--并接至各机组
QM02 II路交流空开(引自中央配II段,备用)中央配II段--4#机组端子箱内总空开(未合)--并接至各机组
QM11 -1隔离刀闸交流空开
QM12 -2隔离刀闸交流空开
QM13 -3隔离刀闸交流空开
QM14 开关柜内加热驱潮器空开
QM03 I路直流电源(引自直流屏合母)
QM04 II路直流电源(引自直流屏合母)备用QM15 开关储能电机电源空开
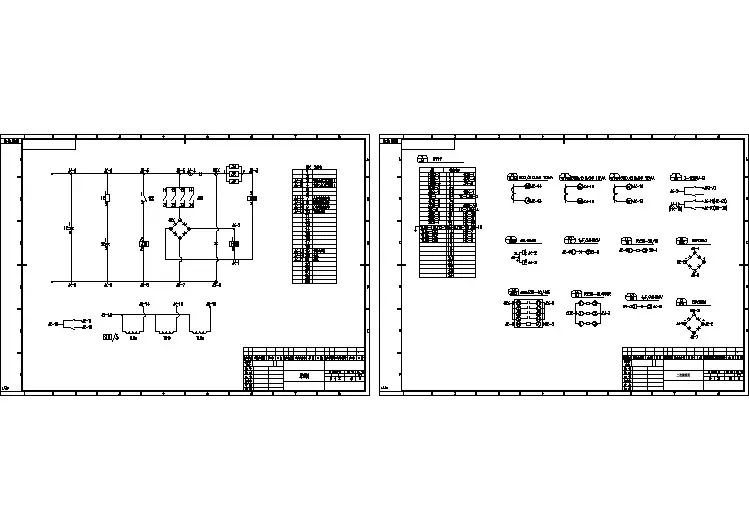
九、开关控制原理图讲解(图略)
1、开关柜内各空开的作用
Q1 控制回路开关
Q2 储能电机电源控制开关
Q3 加热驱潮回路控制开关
2、开关合分闸的过程
3、防跳回路讲解
4、开关就地打跳的方法。