雨水检查井标准图集
- 格式:docx
- 大小:13.52 KB
- 文档页数:9
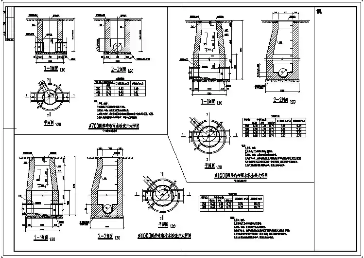
雨水检查井标准图集【篇一:室外检查井选用】室外检查井选用标准1、雨水检查井①、当井深h1≤1400mm,管径d≤400mm时,采用¢700圆形砖砌雨水检查井,详见图集02s515-10。
②、当井深h1>1400mm,管径200mm≤d≤600mm时,采用¢1000圆形砖砌雨水检查井(收口式),详见图集02s515-11;当井深无法按图集02s515-11满足收口式时,采用¢1000圆形砖砌雨水检查井(盖板式),详见图集02s515-12;盖板配筋详见“¢1000圆形砖砌雨污水检查井盖板配筋图”,图集号为02s515-23。
③、当管径600mm<d≤800mm时,采用¢1250圆形砖砌雨水检查井(收口式),详见图集02s515-14;当井深无法按图集02s515-14满足收口式时,采用¢1250圆形砖砌雨水检查井(盖板式),详见图集02s515-15;盖板配筋详见“¢1250圆形砖砌雨污水检查井盖板配筋图”,图集号为02s515-27。
2、污水检查井①、当井深h1≤1400mm,管径d≤400mm时,采用¢700圆形砖砌污水检查井,详见图集02s515-19。
②、当井深h1>1400mm,管径200mm≤d≤600mm时,采用¢1000圆形砖砌污水检查井(收口式),详见图集02s515-20;当井深无法按图集02s515-20满足收口式时,采用¢1000圆形砖砌污水检查井(盖板式),详见图集02s515-21;盖板配筋详见“¢1000圆形砖砌雨污水检查井盖板配筋图”,图集号为02s515-23。
③、当管径600mm<d≤800mm时,采用¢1250圆形砖砌污水检查井(收口式),详见图集02s515-24;当井深无法按图集02s515-24满足收口式时,采用¢1250圆形砖砌污水检查井(盖板式),详见图集02s515-25;盖板配筋详见“¢1250圆形砖砌雨污水检查井盖板配筋图”,图集号为02s515-27。
02s515排水检查井图集在线阅读一、引言在城市的排水系统中,排水检查井扮演着重要的角色。
排水检查井是排水管道系统中的重要组成部分,用于连接和检查排水管道网络的情况。
为了方便公众了解排水检查井的结构和设计,以及相关的技术规范,我们开发了一套02s515排水检查井图集在线阅读系统。
本文将介绍该图集的目的、内容和使用方法。
二、目的02s515排水检查井图集在线阅读系统的目的是为公众提供一个方便的途径,以了解排水检查井的结构和设计。
通过在线阅读图集,公众可以直观地了解排水检查井的各个部分和连接方式,从而提高对排水系统的了解和认识。
三、内容02s515排水检查井图集在线阅读系统包含了一系列排水检查井的图纸和相关技术规范。
图集中包含了各种类型和尺寸的排水检查井图纸,以及相关的设计参数和施工要求。
这些图纸和规范全面地展示和描述了排水检查井的结构、材料、连接方式等关键信息。
图集中的内容涵盖了以下方面:1. 排水检查井的类别和用途:图集首先介绍了排水检查井的不同类别和用途,包括污水、雨水和合流排水系统中的检查井。
2. 排水检查井的结构:图集展示了排水检查井的结构示意图,包括顶盖、墙体、底板等部分的设计和施工要求。
3. 排水检查井的尺寸和标准:图集提供了不同类型和规格的排水检查井的尺寸参数和标准,以满足不同排水系统的需求。
4. 排水检查井的连接方式:图集介绍了排水检查井与排水管道之间的连接方式,包括直接连接、弹性连接等不同方式的详细说明。
5. 排水检查井的施工要求:图集详细描述了排水检查井的施工要求,包括基坑开挖、混凝土浇筑等关键环节的技术规范。
四、使用方法使用02s515排水检查井图集在线阅读系统非常简便。
用户只需在浏览器中输入相关网址,即可进入在线阅读系统。
在系统首页,用户可以选择查看不同类型和规格的排水检查井图纸。
点击相应的图纸链接,用户即可打开该图纸进行阅读。
在图纸阅读界面,用户可以放大、缩小图纸进行查看,并可以通过鼠标拖动图纸位置,以便查看图纸中的详细信息。
雨水检查井标准图集【篇一:室外检查井选用】室外检查井选用标准1、雨水检查井①、当井深h1≤1400mm,管径d≤400mm时,采用¢700圆形砖砌雨水检查井,详见图集02s515-10。
②、当井深h1>1400mm,管径200mm≤d≤600mm时,采用¢1000圆形砖砌雨水检查井(收口式),详见图集02s515-11;当井深无法按图集02s515-11满足收口式时,采用¢1000圆形砖砌雨水检查井(盖板式),详见图集02s515-12;盖板配筋详见“¢1000圆形砖砌雨污水检查井盖板配筋图”,图集号为02s515-23。
③、当管径600mm<d≤800mm时,采用¢1250圆形砖砌雨水检查井(收口式),详见图集02s515-14;当井深无法按图集02s515-14满足收口式时,采用¢1250圆形砖砌雨水检查井(盖板式),详见图集02s515-15;盖板配筋详见“¢1250圆形砖砌雨污水检查井盖板配筋图”,图集号为02s515-27。
2、污水检查井①、当井深h1≤1400mm,管径d≤400mm时,采用¢700圆形砖砌污水检查井,详见图集02s515-19。
②、当井深h1>1400mm,管径200mm≤d≤600mm时,采用¢1000圆形砖砌污水检查井(收口式),详见图集02s515-20;当井深无法按图集02s515-20满足收口式时,采用¢1000圆形砖砌污水检查井(盖板式),详见图集02s515-21;盖板配筋详见“¢1000圆形砖砌雨污水检查井盖板配筋图”,图集号为02s515-23。
③、当管径600mm<d≤800mm时,采用¢1250圆形砖砌污水检查井(收口式),详见图集02s515-24;当井深无法按图集02s515-24满足收口式时,采用¢1250圆形砖砌污水检查井(盖板式),详见图集02s515-25;盖板配筋详见“¢1250圆形砖砌雨污水检查井盖板配筋图”,图集号为02s515-27。
雨水检查井图集【篇一:常用给排水井图集页面】一、给水:1室外消防地上式消火栓安装图见l03s004p42-45 2阀门井l03s001p8-p93水表井l03s001p114过路套管基础l03s002p34v型基础√二、污水三、雨水1雨水收水井《雨水口》05s518-20 √【篇二:检查井标准070406】成都市城市道路检查井盖及水箅技术规定(初稿)04181 总则为了确保本市城市道路设施安全运行,规范各类专业检查井盖及水箅的使用,按照国家相关规范和标准,结合我市实际情况,制定本技术规定。
2 本规定适用范围本技术规定适用于安装在成都市行政规划区域内所有城市道路设施中的各种检查井盖及排水设施中的进水口水箅。
3 本技术规定制定依据cj/t 3012—93 铸铁检查井盖cj/t 121—2000 再生树脂复合材料检查井盖cj/t 130—2001 再生树脂复合材料水箅s501—1 国家标准图集:井盖及踏步02s501—2 国家标准图集:双层井盖含以上标准引用的各项国家标准、行业标准。
4 检查井盖及水箅的规格选用在城市道路的排水设施中,必须按本规定采用同一种材料、型号的排水检查井盖及雨水口水箅;电信、电力等其它专业检查井应分别采用同一种材料、型号的检查井盖。
以上规定包括该道路或工程项目附属的人行道、綠化带。
4.1 在所有城市道路的排水设施中的检查井井盖及支座均采用国家标准图集s501—1:《井盖及踏步》中的:700(zq)重型球墨铸铁井盖(及井座)b型。
4.2.1 其它专业使用的双层检查井上层井盖规定同上,电信、电力等其它专业检查井宜采用国家标准图集s501—1:《井盖及踏步》中的:800(zq)重型球墨铸铁井盖(及支座)b型。
4.2.2 双层检查井下层井盖可采用国家标准图集02s501—2:《双层井盖》中的玻璃钢子盖。
4.2.3、双层井盖支座采可采用国家标准图集02s501—2:《双层井盖》中球重型球墨铸铁双层井盖支座、球墨铸铁及灰口铸铁子盖支座。
雨水口标准图集05s518【篇一:给排水图集一览表】【篇二:采用国家标准图集设计制造的井盖型号及重量表】采用国家标准图集设计制造的井盖型号表【国家建筑标准设计图集97s501→q-轻型 z-重型 h-灰铁 q-球铁 c-混凝土】批准部门:中华人民共和国建设部批准文号建质【2002】48号主编单位北京市市政工程设计研究部参照行业标准《铸铁检查井盖》( cj/t3012-93 )(此表引自国家建筑设计研究院 97s501-1 图集)为国家标准设计制造砖砌平箅式单篦雨水口( 450*750 )球墨铸铁 qt500-7/ 灰口铸铁 ht250砖砌平箅式双篦雨水口球墨铸铁 qt500-7/ 灰口铸铁ht250砖砌偏沟式单篦雨水口球墨铸铁 qt500-7/ 灰口铸铁ht25060砖砌偏沟式双篦雨水口砖砌联合式单篦雨水口砖砌偏沟式单篦雨水口砖砌立箅式双篦雨水口砖砌立箅式多篦雨水口球墨铸铁 qt500-7/ 灰口铸铁 ht250球墨铸铁 qt500-7/ 灰口铸铁 ht250球墨铸铁 qt500-7/ 灰口铸铁 ht250球墨铸铁 qt500-7/ 灰口铸铁 ht250球墨铸铁 qt500-7/ 灰口铸铁华北地区建筑设计标准规格 600x600 700x500 900x600 600x600 700x700 800x700 1000x700ht25091sb3-1 外形尺寸表(单位 mm )外径: 740*740*60 内径:600*600*60外径: 860*660*60 内径:700*500*60外径: 1080*780*60 内径:900*600*65外径: 722*722*70 内径:600*600*70外径: 822*822*70 内径:700*700*70外径: 922*822*75 内径:800*700*75外径: 1122*822*60 内径:1000*700*60110 112 172 115 125 152《施工安装建筑设备通用图集》【篇三:给排水专业常用国家标准图集汇总】一、给排水专业常用国家标准图集02s101矩形给水箱02ss104二次供水消毒设备选用与安装0iss105常用小型仪表及特种阀门选用安装:(水表、温度计、压力表、止回阀、排气阀、浮球阀、液压水位阀、减压阀) 02s106中小型冷却塔选用及安装04s107游泳池附件安装及设备选用05s108倒流防止器安装06ss109管网叠压供水设备选用与安装05ss121热水机组选用与安装s122-1~10水加热器选用及安装(2001年合订本)08s126热水器选用及安装06ss127热泵热水系统选用与安装06ss128太阳能集中热水系统选用与安装01s201室外消火栓安装04s202室内消火栓安装 :04s202-4单栓箱(甲)04s202-6单栓箱(乙)梯转台04s202-8双栓箱(甲)04s202-9双栓snss65(丙)04s202-9双栓箱(丁)梯转台04s202-12单栓带卷盘(甲)04s202-16屋面试验箱04s202-20单栓柜(甲)04s202-20双栓柜(乙)04s202-21单栓带卷盘(丙)99s203消火水泵接合器安装(含2003年局部修改版)04s204消防专用水泵选用及安装98s205消防增压稳压设备选用与安装(隔膜式气压罐)04s206自动喷水与水喷雾灭火设施安装07s207气体消防系统选用安装与建筑灭火器配置08s208室内固定消防炮选用及安装04s301建筑排水设备附件选用安装:(清扫口、地漏、水封盒、钢制排水口、排水漏斗、通气帽、赃物搜集器、毛发聚集器、隔油器、阻火圈)09s302雨水斗选用及安装09s303医疗卫生设备安装09s303-10冷水液压脚踏式水嘴陶瓷洗池安装图09s303-11冷热水液压脚踏式水嘴陶瓷洗池安装图09s303-16冷水液压脚踏式水嘴玻璃板洗手池安装图09s303-19冷水液压脚踏式水嘴成品洗手池安装图09s303-21冷热水液压脚踏式水嘴成品洗手池安装图09s303-22单个液压脚踏式水嘴儿科洗手池安装图09s303-23多个液压脚踏式水嘴儿科洗手池安装图09s303-26液压脚踏阀开关儿科洗手池安装图09s303-27液压脚踏阀开关儿科洗手池材料表09s303-37生化清洗池安装图09s303-38普通试管清洗池安装图09s303-42带冲洗管倒便池安装图09s303-43不带冲洗管倒便池安装图09s303-44倒便池、消毒池组合池安装图(一)09s303-45倒便池、消毒池组合池安装图(二)09s303-53液压脚踏式水嘴医用清洗池平面、剖面安装图09s303-54液压脚踏式水嘴医用清洗池剖面安装图09s303-57单盆双个液压脚踏式水嘴医用清洗池平面、剖面安装图 09s303-58单盆双个液压脚踏式水嘴医用清洗池剖面安装图09s303-61双盆双个液压脚踏式水嘴医用清洗池平面、剖面安装图 09s303-62双盆双个液压脚踏式水嘴医用清洗池剖面安装图09s303-64液压脚踏阀开关医用整体刷手池安装图09s304卫生设备安装09s304-7冷水水嘴洗涤盆安装图09s304-8冷、热水水嘴洗涤盆安装图09s304-10单冷水液压脚踏水嘴洗涤盆安装图09s304-19洗涤池安装图(甲、乙型)09s304-26冷、热水水嘴单面盥洗安装图09s304-27冷、热水水嘴双面盥洗安装图09s304-29幼托洗手槽安装图(二)09s304-34液压脚踏水嘴双槽厨房洗涤盆安装图09s304-60液压脚踏调温水嘴洗涤盆安装图09s304-61液压脚踏水嘴洗手盆安装图09s304-63双档节水水嘴洗手盆安装图09s304-86液压脚踏开关低水箱蹲式大便器安装图09s304-88液压脚踏冲洗阀儿童用蹲式大便器安装图09s304-89液压脚踏冲洗阀蹲式大便器安装图09s304-90埋入式液压脚踏冲洗阀蹲式大便器安装图09s304-101液压脚踏冲洗阀壁挂式小便器安装图09s304-102埋入式液压脚踏冲洗阀蹲式小便器安装图 09s304-103内藏式液压脚踏冲洗阀挂壁式小便器安装图 09s304-104埋入式液压脚踏冲洗阀落地式小便器安装图 09s304-132埋入式单柄调温液压脚踏淋浴器安装图09s304-137单管液压脚踏淋浴器安装图09s304-138埋入式单管液压脚踏式淋浴器安装图08s305小型潜水排污泵选用及安装03s401管道和设备保温、防结露及电伴热03s402室内管道支架及吊架02s403钢制管件02s404防水套管ss405一1~4给水塑料管安装(2002年合订本)10s406建筑排水塑料管道安装09s407-l建筑给水铜管道安装04s407-2建筑给水金属管道安装-薄壁不锈钢管03ss408住宅厨、卫给排水管道安装04s409建筑排水用柔性接口铸铁管安装s501-1-2单层、双层井盖及踏步s(2002年合订本)05s502室外给水管道附属构筑物:(阀门井、阀门套筒、水表井、给水栓)10s505柔性接口给水管道支墩05s506一l自承式平直形架空钢管06s506-2自承式圆弧形架空钢管10s507建筑小区埋地塑料给水管道施工02s515排水检查井(含2003年局部修改版)(雨水检查井、污水检查井、缺水井、阀槽井、沉泥井) 04s516混凝土排水管道基础及接口05s518雨水口04s519小型排水构筑物(室内排水阀门井、室内排水检查口井、室内雨水检查口井、室外水封井、室外隔油池、锅炉排污降温池、洗车污水隔油沉淀池)04s520埋地塑料排水管道施工05ss521预制装配式钢筋混凝土排水检查井05ss522混凝土模块式排水检查井08ss523建筑小区塑料排水检查井s531–1~5 湿陷性黄土地区室外给水排水管道工程构筑物(2004年合订本)07ss604建筑管道直饮水工程02s701砖砌化粪池02s702钢筋混凝土化粪池03ss703-1建筑中水处理工程(一)08ss703-2建筑中水处理工程(二)08ss704混凝土模块式化粪池04s801-1、2钢筋混凝土堆锥壳保温水塔。
雨水检查井标准图集【篇一:室外检查井选用】室外检查井选用标准1、雨水检查井①、当井深h1≤1400mm,管径d≤400mm时,采用¢700圆形砖砌雨水检查井,详见图集02s515-10。
②、当井深h1>1400mm,管径200mm≤d≤600mm时,采用¢1000圆形砖砌雨水检查井(收口式),详见图集02s515-11;当井深无法按图集02s515-11满足收口式时,采用¢1000圆形砖砌雨水检查井(盖板式),详见图集02s515-12;盖板配筋详见“¢1000圆形砖砌雨污水检查井盖板配筋图”,图集号为02s515-23。
③、当管径600mm<d≤800mm时,采用¢1250圆形砖砌雨水检查井(收口式),详见图集02s515-14;当井深无法按图集02s515-14满足收口式时,采用¢1250圆形砖砌雨水检查井(盖板式),详见图集02s515-15;盖板配筋详见“¢1250圆形砖砌雨污水检查井盖板配筋图”,图集号为02s515-27。
2、污水检查井①、当井深h1≤1400mm,管径d≤400mm时,采用¢700圆形砖砌污水检查井,详见图集02s515-19。
②、当井深h1>1400mm,管径200mm≤d≤600mm时,采用¢1000圆形砖砌污水检查井(收口式),详见图集02s515-20;当井深无法按图集02s515-20满足收口式时,采用¢1000圆形砖砌污水检查井(盖板式),详见图集02s515-21;盖板配筋详见“¢1000圆形砖砌雨污水检查井盖板配筋图”,图集号为02s515-23。
③、当管径600mm<d≤800mm时,采用¢1250圆形砖砌污水检查井(收口式),详见图集02s515-24;当井深无法按图集02s515-24满足收口式时,采用¢1250圆形砖砌污水检查井(盖板式),详见图集02s515-25;盖板配筋详见“¢1250圆形砖砌雨污水检查井盖板配筋图”,图集号为02s515-27。
雨水检查井标准图集雨水检查井标准图集【篇一:室外检查井选用】室外检查井选用标准1、雨水检查井①、当井深h1≤1400mm,管径d≤400mm时,采用¢700圆形砖砌雨水检查井,详见图集02s515-10。
②、当井深h1>1400mm,管径200mm≤d≤600mm时,采用¢1000圆形砖砌雨水检查井(收口式),详见图集02s515-11;当井深无法按图集02s515-11满足收口式时,采用¢1000圆形砖砌雨水检查井(盖板式),详见图集02s515-12;盖板配筋详见“¢1000圆形砖砌雨污水检查井盖板配筋图”,图集号为02s515-23。
③、当管径600mm<d≤800mm时,采用¢1250圆形砖砌雨水检查井(收口式),详见图集02s515-14;当井深无法按图集02s515-14满足收口式时,采用¢1250圆形砖砌雨水检查井(盖板式),详见图集02s515-15;盖板配筋详见“¢1250圆形砖砌雨污水检查井盖板配筋图”,图集号为02s515-27。
2、污水检查井①、当井深h1≤1400mm,管径d≤400mm时,采用¢700圆形砖砌污水检查井,详见图集02s515-19。
②、当井深h1>1400mm,管径200mm≤d≤600mm时,采用¢1000圆形砖砌污水检查井(收口式),详见图集02s515-20;当井深无法按图集02s515-20满足收口式时,采用¢1000圆形砖砌污水检查井(盖板式),详见图集02s515-21;盖板配筋详见“¢1000圆形砖砌雨污水检查井盖板配筋图”,图集号为02s515-23。
③、当管径600mm<d≤800mm时,采用¢1250圆形砖砌污水检查井(收口式),详见图集02s515-24;当井深无法按图集02s515-24满足收口式时,采用¢1250圆形砖砌污水检查井(盖板式),详见图集02s515-25;盖板配筋详见“¢1250圆形砖砌雨污水检查井盖板配筋图”,图集号为02s515-27。
雨水井大样图集关键信息项:1、图集的版本和编号:____________________2、图集的编制单位:____________________3、图集的适用范围和条件:____________________4、雨水井的类型和规格:____________________5、雨水井的材料要求:____________________6、施工工艺和技术要求:____________________7、质量检验标准和验收程序:____________________8、维护和保养要求:____________________11 引言本协议旨在对雨水井大样图集的相关事宜进行明确和规范,以确保其在设计、施工、验收和维护等环节中的有效应用。
111 图集的基本说明1111 本图集是根据相关的国家标准和行业规范编制而成。
1112 图集涵盖了多种类型和规格的雨水井设计样图。
112 图集的版本和编号1121 明确本图集的具体版本,以确保使用者获取和使用的是最新、有效的版本。
1122 给出图集的唯一编号,便于识别和管理。
113 图集的编制单位说明图集的编制单位,其具备相应的资质和专业能力。
12 图集的适用范围和条件121 适用的地理区域和气候条件。
122 适用的工程类型和规模。
123 特殊情况下的限制和不适用条件。
13 雨水井的类型和规格131 详细列举各种类型的雨水井,如圆形雨水井、方形雨水井等。
132 每种类型雨水井的规格尺寸,包括直径、深度等。
1311 圆形雨水井的规格1312 方形雨水井的规格14 雨水井的材料要求141 井壁材料的性能和质量标准。
142 井盖和井座的材料要求。
143 密封材料的选择和要求。
15 施工工艺和技术要求151 基础施工的步骤和要求。
152 井体砌筑或安装的方法和注意事项。
153 管道连接的技术规范。
1511 基础施工的具体流程1512 井体砌筑的要点16 质量检验标准和验收程序161 各项施工工序的质量检验标准。
雨水检查井标准图集【篇一:室外检查井选用】室外检查井选用标准1、雨水检查井①、当井深h1≤1400mm,管径d≤400mm时,采用¢700圆形砖砌雨水检查井,详见图集02s515-10。
②、当井深h1>1400mm,管径200mm≤d≤600mm时,采用¢1000圆形砖砌雨水检查井(收口式),详见图集02s515-11;当井深无法按图集02s515-11满足收口式时,采用¢1000圆形砖砌雨水检查井(盖板式),详见图集02s515-12;盖板配筋详见“¢1000圆形砖砌雨污水检查井盖板配筋图”,图集号为02s515-23。
③、当管径600mm<d≤800mm时,采用¢1250圆形砖砌雨水检查井(收口式),详见图集02s515-14;当井深无法按图集02s515-14满足收口式时,采用¢1250圆形砖砌雨水检查井(盖板式),详见图集02s515-15;盖板配筋详见“¢1250圆形砖砌雨污水检查井盖板配筋图”,图集号为02s515-27。
2、污水检查井①、当井深h1≤1400mm,管径d≤400mm时,采用¢700圆形砖砌污水检查井,详见图集02s515-19。
②、当井深h1>1400mm,管径200mm≤d≤600mm时,采用¢1000圆形砖砌污水检查井(收口式),详见图集02s515-20;当井深无法按图集02s515-20满足收口式时,采用¢1000圆形砖砌污水检查井(盖板式),详见图集02s515-21;盖板配筋详见“¢1000圆形砖砌雨污水检查井盖板配筋图”,图集号为02s515-23。
③、当管径600mm<d≤800mm时,采用¢1250圆形砖砌污水检查井(收口式),详见图集02s515-24;当井深无法按图集02s515-24满足收口式时,采用¢1250圆形砖砌污水检查井(盖板式),详见图集02s515-25;盖板配筋详见“¢1250圆形砖砌雨污水检查井盖板配筋图”,图集号为02s515-27。
雨水检查井标准图集【篇一:室外检查井选用】室外检查井选用标准1、雨水检查井①、当井深h1≤1400mm,管径d≤400mm时,采用¢700圆形砖砌雨水检查井,详见图集02s515-10。
②、当井深h1>1400mm,管径200mm≤d≤600mm时,采用¢1000圆形砖砌雨水检查井(收口式),详见图集02s515-11;当井深无法按图集02s515-11满足收口式时,采用¢1000圆形砖砌雨水检查井(盖板式),详见图集02s515-12;盖板配筋详见“¢1000圆形砖砌雨污水检查井盖板配筋图”,图集号为02s515-23。
③、当管径600mm<d≤800mm时,采用¢1250圆形砖砌雨水检查井(收口式),详见图集02s515-14;当井深无法按图集02s515-14满足收口式时,采用¢1250圆形砖砌雨水检查井(盖板式),详见图集02s515-15;盖板配筋详见“¢1250圆形砖砌雨污水检查井盖板配筋图”,图集号为02s515-27。
2、污水检查井①、当井深h1≤1400mm,管径d≤400mm时,采用¢700圆形砖砌污水检查井,详见图集02s515-19。
②、当井深h1>1400mm,管径200mm≤d≤600mm时,采用¢1000圆形砖砌污水检查井(收口式),详见图集02s515-20;当井深无法按图集02s515-20满足收口式时,采用¢1000圆形砖砌污水检查井(盖板式),详见图集02s515-21;盖板配筋详见“¢1000圆形砖砌雨污水检查井盖板配筋图”,图集号为02s515-23。
③、当管径600mm<d≤800mm时,采用¢1250圆形砖砌污水检查井(收口式),详见图集02s515-24;当井深无法按图集02s515-24满足收口式时,采用¢1250圆形砖砌污水检查井(盖板式),详见图集02s515-25;盖板配筋详见“¢1250圆形砖砌雨污水检查井盖板配筋图”,图集号为02s515-27。
3、跌水井①、采用竖槽式钢筋混凝土跌水井,井室尺寸为1000mm*1000mm,详参见“竖槽式混凝土跌水井”,图集号为02s515-113,盖板配筋图详参见02s515-114。
4、阀门井①、阀门井采用“井下操作立式阀门井图”,管径dn<100mm,均采用阀井内径¢1000的阀门井,见图集号为s143-17-4;盖板配筋采用“井下操作立式阀门井盖板配筋图及钢筋材料表”,图集号为s143-17-9。
②、管径dn≥100mm,均采用阀井内径¢1200的阀门井,见图集号为s143-17-7;盖板配筋采用“井下操作立式阀门井盖板配筋图及钢筋材料表”,图集号为s143-17-9。
③、若有其它要求据现场实际情况,参见图集s143“圆形立式阀门井及阀门套筒”总说明,详见图集s143-17-2和s143-17-3。
【篇二:雨水检查井施工说明】雨水检查井:d=600图集号:05s515 –14页砖砌圆形收口式检查井(没有支管)d=800图集号:05s515 - 32页砖砌矩形直线检查井(没有支管)d=1000 图集号:05s515 - 32页砖砌矩形直线检查井(没有支管)d=1200 图集号:05s515 - 32页砖砌矩形直线检查井(没有支管)d=1500 图集号:05s515 - 32页砖砌矩形直线检查井(没有支管)d800图集号:05s515 - 34页砖砌矩形90度三通检查井(有支管)d1000图集号:05s515 - 34页砖砌矩形90度三通检查井(有支管)d1200图集号:05s515 - 34页d1500图集号:05s515 - 34页污水检查井:d=500图集号:05s515 – 20页d=600图集号:05s515 – 20页d=800图集号:05s515 – 24页d=600图集号:05s515 – 134页d=800图集号:05s515 - 134页【篇三:雨水检查井浇筑施工】检查井施工方案本工程污雨水检查分为圆形混凝土检查井、矩形混凝土检查井。
圆形混凝土检查井采用预制装配式混凝土检查井,井室按06ms201-3规定施工;矩形混凝土检查井和阶梯式混凝土检查井采用现浇;矩形直线混凝土和阶梯式混凝土检查井检查井室按06ms201-3规定施工。
检查井位于道路下时,井盖应与道路齐平;位于绿化带时井盖应高于地面0.1m。
井盖(座)质量应达到采用标准图说明要求,并符合《给水排水管道工程施工施工及验收规范》。
雨污水检查井爬梯采用塑钢爬梯。
2、污、雨水预留支管检查井井径均为1.00m,中心位于道路红线外绿化带内距绿化带外边线1m,雨水支管管径为d600,坡度为5‰,污水支管管径为d300,坡度为5‰。
3、现浇检查井的施工工艺:浇筑井室底板砼浇筑砼拆模砌筑流水槽安装砼井盖板安装井盖板(1)基底的验收和处理:目的主要是确保基底的高程和承载力。
首先根据设计图纸要求采用机械开挖检查井处基坑(随沟槽开挖一起进行),基坑周边采用自然放坡,坡度与管道沟槽开挖坡度相同,基坑底部的宽度要同时满足支模板和操作的需要。
清底时采用人工进行,清完基底后,对高程进行复核,同时请勘察单位、监理、设计、业主单位对基底的承载力和土质进行验核,承载力采用钎探技术,验收基底的承载力,承载力要大于120kpa。
若不满足规范要求,按不良地基处理法处理,直至承载力合格。
(2)井底垫层浇筑:测量人员测放出井室的准确位置,然后支垫层模板,浇筑垫层混凝土,垫层混凝土的厚度为10cm,强度等级为c10。
(3)绑扎井室主体钢筋:在相关各干支管线以及支管的高程均已确定的情况下,即可进行井室钢筋的绑扎工作,应在绑扎井身钢筋网时连同管口位置一起确定,在浇注混凝土前将管身按要求插入钢筋网内就现状帮扎。
若各管线已完成,应直接就现状绑扎。
伸入井室的管端应平整完好。
井室钢筋帮扎好后,再绑扎踏步,并及时检查踏步的上下,左右间距及外露尺寸,保证位置准确无误后浇注混凝土。
钢筋在场外加工,现场绑扎成型;钢筋的接头采用绑扎接头;钢筋的加工绑扎按有关钢筋混凝土施工技术规程进行。
为了加强井室的整体性,根据设计图纸要求,整个井室的钢筋网一次性绑扎完毕:井底和井墙的受力钢筋作为整根钢筋进行加工,首先给每一根钢筋进行编号,然后根据图纸设计计算出每一根钢筋的长度,在加工厂切断弯曲成设计形状,在井室基坑现场按照放样对照编号进行绑扎成型。
在管道进入井室入口处对竖向钢筋作切断处理,设置一环筋,竖向钢筋与环筋绑扎成一体。
(4)支底板模板,浇筑底板砼:采用钢模板,内刷脱模剂,浇注c25 s4砼,顶部沿井墙位置拉毛处理,井底厚度按图集06ms201执行。
(5)支井身模板(见下图),浇筑井身:使用普通钢模板结合定型模板。
模板使用前必须进行仔细的检查,钢模板要求型号一致,不得使用弯曲、变形的模板。
模板在使用前内侧均匀涂抹一层脱模剂。
内模板支撑采用对顶支撑,井室外侧,为保证支撑稳固,将槽帮铲平夯实,然后垫木板块,再用顶丝与模板对顶支撑。
模板的支撑必须保证牢固可靠,模板及支撑体系要一边安装一边进行校准及调整,边线、高程、垂直度误差满足质量标准方可进行下道工序。
模板反面使用u型卡卡紧,不得漏卡。
在预埋管的位置以竹胶板取代钢模板(井室内壁全部使用钢模),竹胶板的开口尺寸与管外径吻合,外面涂以模板油,固定好。
在浇注砼之前要对各预埋件(主要是铸铁踏步)检查确认,混凝土采用c25 、s4的抗渗砼,在混凝土浇筑过程中不得出现位移变形等现象。
混凝土采用溜槽浇注,插入式振捣器振捣;混凝土浇筑后,覆盖草帘撒水养护。
(6)模板拆除24小时前需报监理工程师批准,侧模板,在抗压强度达到2.5mpa时,方可拆除,以保证其表面及棱角不致因拆模而受到损坏。
(7)砌筑井内流水槽:采用mu10的页岩砖和m7.5的砂浆进行砌筑。
流水槽的槽帮高度控制:根据设计图纸,污水井流水槽帮高度与管道顶部齐平;雨水井流水槽帮高度为管道竖向直径的一半。
流水槽内表面用1:2.5的防水砂浆进行抹面,槽内表面要圆滑顺畅,三通以上检查井的流水槽相交部位要相互圆滑过度。
(8)在井墙的强度达到75%以上时方可吊装砼井盖。
4、预制检查井的施工工艺工艺流程如下:施工准备→基坑开挖→地基处理、垫层施工→井室拼装、连接管道→盖板吊装→流槽施工→井口处理→闭水试验→回填→井盖安装→验收。
(1)施工操作要点a.高程复核测量放线用全站仪进行检查井位和水准仪进行高程复核。
b.检查井底基础施工进行基底处理,按规范进行高程、平整度、地基承载力等项目的检查。
地基承载力特征值符合设计要求(≥120kpa)。
垫层注意控制高程和平面位置。
c.井室拼装、盖板吊装装配式预制检查井吊装使用16t汽车吊,各调节拼块之间,垂直方向的接缝为企口连接,由1:2防水水泥砂浆或聚氨酯搀和水泥砂浆密封。
安装时注意井室垂直,注意井室预留口轴线与管道轴线相符合。
盖板安装注意平整,高程控制低于路基顶标高。
井室拼装井室与盖板拼装d.管道与检查井衔接检查井与管道连接一般采用管顶平接,用1:2防水水泥砂浆或聚氨酯搀和水泥砂浆嵌缝封堵。
具体做法为:在管道伸进井室前,在管道下部120度范围内座防水砂浆,挤压管道使防水砂浆与管道连接密实,以砂浆外溢为宜。
将管道两侧和上部分别以防水砂浆填满,插捣防水砂浆,直至完全饱满,最后抹出三角状防水砂浆,宽度保持在5-6cm。
e.流槽浇筑流槽采用c15素混凝土现场浇筑或采用m10水泥砂浆砌mu10粉煤灰砖,流槽表面采用20mm厚1:2防水砂浆分层抹面,抹面应压实,平整顺直。
施工前应先将检查井井基、井墙洗刷干净。
f.闭水试验试验前,管道及检查井外观质量已验收合格,进行闭水试验。
g.沟槽及井室回填砂浆强度达到70%后,方可进行检查井井周回填,回填压实度满足有关要求(如图)。
井周采用中粗砂、石粉或粒径不大于3cm的碎石分层回填,回填时夯实两边填料,每层回填不超过20cm,动作不能过猛,以免挤坏管道接口,而且应尽量沿管对称填筑,该部分的密实度应达到设计及规范要求。
井周回填要求g.井口处理井口采用反做法。
回填井室到路基标高后,进行基层施工,这时需用2厘米厚钢板覆盖井孔,钢板与路基持平。
待沥青下面层碾压成型后,刨除如设计图的倒梯形圆环状基层料,然后安装井筒及调节环,浇筑加强井圈至沥青下面层底,浇筑后表面拉毛。
h.井盖安装检查井安装就位后,保证高程差控制在1cm以内,要及时安装井圈,盖好井盖。
5、检查井允许偏差应符合下表:5、雨水口施工雨水口采用偏沟式双篦及多篦雨水口,雨水口按设计尺寸接入检查井,雨水口连接管均为d300、d400的钢筋砼排水管,坡度为0.01,雨水篦子采用满足国家质量要求的高分子复合材料,产品满足国家标准《给水排水管道工程施工及验收规范》(gb50268-20)。