雨水检查井图集
- 格式:docx
- 大小:12.69 KB
- 文档页数:7
雨水口,雨水井,检查井,篦子
雨水口:指的是管道排水系统汇集地表水的设施,由进水箅、井身及支管等组成。
分为偏沟式、平痹式和联合式。
雨水井,其侧面有孔与排水管道相连,底部有向下延伸的渗水管,可将雨水向地下补充并使多余的雨水经排水管道排走,减缓地面沉降及防止暴雨时路面被淹泡,井中尚有篮筐,可拦截污物防止堵塞排水管道,并便于清理。
检查井是用在建筑小区(居住区、公共建筑区、厂区等)范围内埋地塑料排水管道外径不大于800mm、埋设深度塑料检查井不大于6m,一般设在排水管道交汇处、转弯处、管径或坡度改变处、跌水处等,为了便于定期检查、清洁和疏通或下井操作的检查用的塑料一体注塑而成或者砖砌成的井状构筑物。
篦子:用钢筋制成的使水流通,格挡杂物,赃物的格栅。
以下依次是,雨水口,雨水井,检查井,篦子。
雨水井,检查井有点像,但实质是不一样的。
球墨铸铁检查井井盖。
雨水检查井标准图集本文介绍了雨水检查井、污水检查井、跌水井和阀门井的选用标准。
对于雨水检查井,当井深h1≤1400mm,管径d≤400mm时,应采用¢700圆形砖砌雨水检查井;当井深h1>1400mm,管径200mm≤d≤600mm时,应采用¢1000圆形砖砌雨水检查井(收口式);当管径600mm<d≤800mm时,应采用¢1250圆形砖砌雨水检查井(收口式)。
对于污水检查井,采用的标准与雨水检查井相似。
跌水井应采用竖槽式钢筋混凝土跌水井。
阀门井的选用标准未在本文中提及。
在选用室外检查井时,应根据井深和管径来选择合适的类型。
对于雨水检查井和污水检查井,分别采用不同的圆形砖砌井,而跌水井则应采用竖槽式钢筋混凝土井。
在实际应用中,应根据具体情况来选择合适的井型。
阀门井的设计采用“井下操作立式阀门井图”。
对于管径dn<100mm的阀门,使用阀井内径为¢1000的阀门井,图集号为s143-17-4;盖板配筋采用“井下操作立式阀门井盖板配筋图及钢筋材料表”,图集号为s143-17-9.对于管径dn≥100mm的阀门,使用阀井内径为¢1200的阀门井,图集号为s143-17-7;盖板配筋采用“井下操作立式阀门井盖板配筋图及钢筋材料表”,图集号为s143-17-9.如果有其他需求,可以参考图集s143“圆形立式阀门井及阀门套筒”总说明,详见图集s143-17-2和s143-17-3.雨水检查井有多种类型,包括d=600的砖砌圆形收口式检查井(没有支管),d=800、d=1000、d=1200和d=1500的砖砌矩形直线检查井(没有支管),以及d=800、d=1000、d=1200和d=1500的砖砌矩形90度三通检查井(有支管)。
污水检查井也有多种类型,包括d=500、d=600和d=800的检查井,以及d=600和d=800的矩形检查井。
这些井的图集号分别为05s515–14、05s515–20、05s515–24、05s515–32和05s515–34页。
雨水检查井
雨水检查井是用于收集和检查雨水的设施。
它通常位于道路、人行道或庭院中,用于收集和排水附近地区的雨水。
雨水检查井通常由一个深而窄的井和一个具有盖子的井盖组成,盖子可以防止人员误入或物体掉入井中。
在雨水检查井中,可以安装雨水过滤器或过滤网,以便过滤掉杂质和污染物。
这样可以保护下游的排水系统和水体免受污染。
此外,雨水检查井还可以用于检查和清理排水管道,以确保排水系统的正常运行。
检查雨水检查井时,需要注意以下几点:
1. 注意安全:在打开井盖之前,确保周围没有人员,以免发生意外。
使用安全防护措施,例如戴手套和护目镜。
2. 检查井内水位:检查井内的水位是否正常,过高或过低可能表示排水系统存在问题,需要进一步检查和修理。
3. 清理井内杂质:检查井内是否有杂物、垃圾或植物残渣等,需要定期清理,以保持排水畅通。
4. 检查井盖密封性:检查井盖是否密封严实,确保井盖能够有效防止异物进入井内。
5. 检查过滤器或过滤网:如有安装过滤器或过滤网,检查其是否正常工作,如果有堵塞,需要及时清洗或更换。
定期检查和维护雨水检查井可以确保排水系统的正常运行,避免水体污染和洪水的发生。
建议按照相关规定进行检查
和维护,并定期清理井内杂物和污染物。
雨水检查井图集【篇一:常用给排水井图集页面】一、给水:1室外消防地上式消火栓安装图见l03s004p42-45 2阀门井l03s001p8-p93水表井l03s001p114过路套管基础l03s002p34v型基础√二、污水三、雨水1雨水收水井《雨水口》05s518-20 √【篇二:检查井标准070406】成都市城市道路检查井盖及水箅技术规定(初稿)04181 总则为了确保本市城市道路设施安全运行,规范各类专业检查井盖及水箅的使用,按照国家相关规范和标准,结合我市实际情况,制定本技术规定。
2 本规定适用范围本技术规定适用于安装在成都市行政规划区域内所有城市道路设施中的各种检查井盖及排水设施中的进水口水箅。
3 本技术规定制定依据cj/t 3012—93 铸铁检查井盖cj/t 121—2000 再生树脂复合材料检查井盖cj/t 130—2001 再生树脂复合材料水箅s501—1 国家标准图集:井盖及踏步02s501—2 国家标准图集:双层井盖含以上标准引用的各项国家标准、行业标准。
4 检查井盖及水箅的规格选用在城市道路的排水设施中,必须按本规定采用同一种材料、型号的排水检查井盖及雨水口水箅;电信、电力等其它专业检查井应分别采用同一种材料、型号的检查井盖。
以上规定包括该道路或工程项目附属的人行道、綠化带。
4.1 在所有城市道路的排水设施中的检查井井盖及支座均采用国家标准图集s501—1:《井盖及踏步》中的:700(zq)重型球墨铸铁井盖(及井座)b型。
4.2.1 其它专业使用的双层检查井上层井盖规定同上,电信、电力等其它专业检查井宜采用国家标准图集s501—1:《井盖及踏步》中的:800(zq)重型球墨铸铁井盖(及支座)b型。
4.2.2 双层检查井下层井盖可采用国家标准图集02s501—2:《双层井盖》中的玻璃钢子盖。
4.2.3、双层井盖支座采可采用国家标准图集02s501—2:《双层井盖》中球重型球墨铸铁双层井盖支座、球墨铸铁及灰口铸铁子盖支座。
雨水检查井1. 简介雨水检查井是一种用于管理和排水雨水的设施,它通常位于道路、建筑物或其他开放区域的低洼处。
它的主要功能是收集和过滤雨水,并将其排放到合适的处理系统中。
本文将介绍雨水检查井的结构、作用、安装和维护等相关内容。
2. 结构雨水检查井通常由井盖、井筒和进水口组成。
井盖是检查井的顶部覆盖物,通常由混凝土或铸铁制成,以便承受交通和其他外部载荷。
井筒是井的主要结构,两端分别连接井盖和进水口。
进水口是雨水进入井筒的通道,通常由一系列格栅和过滤设备组成,以防止杂物进入井筒。
3. 作用雨水检查井的主要作用有三个方面:3.1. 收集雨水雨水检查井会收集附近区域的雨水。
当雨水通过进水口进入井筒时,井筒会保持雨水的流动,并将其导向合适的处理系统。
通过雨水检查井的管理,我们能够更好地控制和利用雨水资源。
3.2. 过滤杂物进水口中的格栅和过滤设备可以有效地阻止杂物进入井筒。
这些杂物可能包括树叶、宠物粪便、烟蒂等。
通过过滤杂物,雨水检查井可以减少对下游处理系统的负荷,延长处理设备的使用寿命。
3.3. 减少洪水风险雨水检查井的另一个重要作用是减少洪水的风险。
当大量降雨时,雨水检查井可以帮助排放过剩的雨水,避免道路或建筑物被淹水。
合理的雨水管理系统可以有效地减少洪水对城市基础设施的破坏。
4. 安装安装雨水检查井需要一定的专业知识和技能。
首先,需要选择合适的位置,在低洼处或雨水集水系统的汇水点周围安装井筒。
然后,将井筒嵌入地面,确保井盖与地面平齐。
最后,根据需要连接进水口和排水系统。
在安装过程中,需要注意确保井筒和进水口的连接紧密,以防止漏水和杂物进入。
5. 维护定期的维护可以确保雨水检查井的正常运行。
以下是一些常见的维护措施:•清理井筒和进水口中的杂物,特别是在秋季时,树叶较多;•检查并清理格栅,以确保其正常工作;•检查井盖是否破损或松动,如果发现问题应及时修复或更换;•监测井筒的进水量和排水情况,确保系统正常运行。
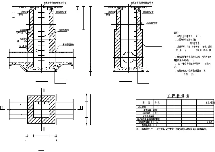
雨水检查井标准图集【篇一:室外检查井选用】室外检查井选用标准1、雨水检查井①、当井深h1≤1400mm,管径d≤400mm时,采用¢700圆形砖砌雨水检查井,详见图集02s515-10。
②、当井深h1>1400mm,管径200mm≤d≤600mm时,采用¢1000圆形砖砌雨水检查井(收口式),详见图集02s515-11;当井深无法按图集02s515-11满足收口式时,采用¢1000圆形砖砌雨水检查井(盖板式),详见图集02s515-12;盖板配筋详见“¢1000圆形砖砌雨污水检查井盖板配筋图”,图集号为02s515-23。
③、当管径600mm<d≤800mm时,采用¢1250圆形砖砌雨水检查井(收口式),详见图集02s515-14;当井深无法按图集02s515-14满足收口式时,采用¢1250圆形砖砌雨水检查井(盖板式),详见图集02s515-15;盖板配筋详见“¢1250圆形砖砌雨污水检查井盖板配筋图”,图集号为02s515-27。
2、污水检查井①、当井深h1≤1400mm,管径d≤400mm时,采用¢700圆形砖砌污水检查井,详见图集02s515-19。
②、当井深h1>1400mm,管径200mm≤d≤600mm时,采用¢1000圆形砖砌污水检查井(收口式),详见图集02s515-20;当井深无法按图集02s515-20满足收口式时,采用¢1000圆形砖砌污水检查井(盖板式),详见图集02s515-21;盖板配筋详见“¢1000圆形砖砌雨污水检查井盖板配筋图”,图集号为02s515-23。
③、当管径600mm<d≤800mm时,采用¢1250圆形砖砌污水检查井(收口式),详见图集02s515-24;当井深无法按图集02s515-24满足收口式时,采用¢1250圆形砖砌污水检查井(盖板式),详见图集02s515-25;盖板配筋详见“¢1250圆形砖砌雨污水检查井盖板配筋图”,图集号为02s515-27。
02s515排水检查井图集在线阅读一、引言在城市的排水系统中,排水检查井扮演着重要的角色。
排水检查井是排水管道系统中的重要组成部分,用于连接和检查排水管道网络的情况。
为了方便公众了解排水检查井的结构和设计,以及相关的技术规范,我们开发了一套02s515排水检查井图集在线阅读系统。
本文将介绍该图集的目的、内容和使用方法。
二、目的02s515排水检查井图集在线阅读系统的目的是为公众提供一个方便的途径,以了解排水检查井的结构和设计。
通过在线阅读图集,公众可以直观地了解排水检查井的各个部分和连接方式,从而提高对排水系统的了解和认识。
三、内容02s515排水检查井图集在线阅读系统包含了一系列排水检查井的图纸和相关技术规范。
图集中包含了各种类型和尺寸的排水检查井图纸,以及相关的设计参数和施工要求。
这些图纸和规范全面地展示和描述了排水检查井的结构、材料、连接方式等关键信息。
图集中的内容涵盖了以下方面:1. 排水检查井的类别和用途:图集首先介绍了排水检查井的不同类别和用途,包括污水、雨水和合流排水系统中的检查井。
2. 排水检查井的结构:图集展示了排水检查井的结构示意图,包括顶盖、墙体、底板等部分的设计和施工要求。
3. 排水检查井的尺寸和标准:图集提供了不同类型和规格的排水检查井的尺寸参数和标准,以满足不同排水系统的需求。
4. 排水检查井的连接方式:图集介绍了排水检查井与排水管道之间的连接方式,包括直接连接、弹性连接等不同方式的详细说明。
5. 排水检查井的施工要求:图集详细描述了排水检查井的施工要求,包括基坑开挖、混凝土浇筑等关键环节的技术规范。
四、使用方法使用02s515排水检查井图集在线阅读系统非常简便。
用户只需在浏览器中输入相关网址,即可进入在线阅读系统。
在系统首页,用户可以选择查看不同类型和规格的排水检查井图纸。
点击相应的图纸链接,用户即可打开该图纸进行阅读。
在图纸阅读界面,用户可以放大、缩小图纸进行查看,并可以通过鼠标拖动图纸位置,以便查看图纸中的详细信息。
雨水检查井图集【篇一:常用给排水井图集页面】一、给水:1室外消防地上式消火栓安装图见l03s004p42-45 2阀门井l03s001p8-p93水表井l03s001p114过路套管基础l03s002p34v型基础√二、污水三、雨水1雨水收水井《雨水口》05s518-20 √【篇二:检查井标准070406】成都市城市道路检查井盖及水箅技术规定(初稿)04181 总则为了确保本市城市道路设施安全运行,规范各类专业检查井盖及水箅的使用,按照国家相关规范和标准,结合我市实际情况,制定本技术规定。
2 本规定适用范围本技术规定适用于安装在成都市行政规划区域内所有城市道路设施中的各种检查井盖及排水设施中的进水口水箅。
3 本技术规定制定依据cj/t 3012—93 铸铁检查井盖cj/t 121—2000 再生树脂复合材料检查井盖cj/t 130—2001 再生树脂复合材料水箅s501—1 国家标准图集:井盖及踏步02s501—2 国家标准图集:双层井盖含以上标准引用的各项国家标准、行业标准。
4 检查井盖及水箅的规格选用在城市道路的排水设施中,必须按本规定采用同一种材料、型号的排水检查井盖及雨水口水箅;电信、电力等其它专业检查井应分别采用同一种材料、型号的检查井盖。
以上规定包括该道路或工程项目附属的人行道、綠化带。
4.1 在所有城市道路的排水设施中的检查井井盖及支座均采用国家标准图集s501—1:《井盖及踏步》中的:700(zq)重型球墨铸铁井盖(及井座)b型。
4.2.1 其它专业使用的双层检查井上层井盖规定同上,电信、电力等其它专业检查井宜采用国家标准图集s501—1:《井盖及踏步》中的:800(zq)重型球墨铸铁井盖(及支座)b型。
4.2.2 双层检查井下层井盖可采用国家标准图集02s501—2:《双层井盖》中的玻璃钢子盖。
4.2.3、双层井盖支座采可采用国家标准图集02s501—2:《双层井盖》中球重型球墨铸铁双层井盖支座、球墨铸铁及灰口铸铁子盖支座。
4.3 在人行道、在非开放式住宅小区内不以机动车行驶为主的道路、园林中的检查井盖可以采用国家标准图集s501—1:《井盖及踏步》中的:700(qq)轻型球墨铸铁井盖(及支座)b型;也可采用:700(qh)轻型灰口铸铁井盖(及支座)b型;也可采用:行业标准cj/t 130—2001《再生树脂复合材料检查井盖》中的:重型再生树脂复合材料检查井盖。
4.4 在所有城市道路、公园、园林等公用设施中的排水口水箅应采用国家建筑标准设计图集(s2)95s518—1:《雨水口(一)》中的:4.6 在非开放式住宅小区内不以机动车行驶为主的道路中的排水口水箅可以采用国家建筑标准设计图集(s2)95s518—1:《雨水口(一)》中的:4.7 在桥梁、隧道等特殊设施中,可以采用其它材料和形式的水箅,其承载能力应达到或超过汽超20等级,同一工程应尽量採用同一材料和形式的水箅。
5检查井盖及水箅的技术条件5.1 检查井盖荷载等级:一般城市道路:重型井盖、汽超-20(汽车总重55t、后轴轮压7.0t)人行道、小区道路、园林:轻型井盖、汽-10主车(汽车总重10t、后轴轮压3.5t)5.2 材料5.2.1 检查井井盖应采用以下材料制造qt500--7球墨铸铁应符合gb 1348--88《球墨铸铁》标准口铸铁应符合gb 9439--88《灰口铸铁》标准再生树脂复合材料应符合行业标准cj/t 130—2001《再生树脂复合材料检查井盖》5.2.2 排水口水箅应采用以下材料制造qt500--7球墨铸铁应符合gb 1348--88《球墨铸铁》标准 ht250灰口铸铁应符合gb 9439--88《灰口铸铁》标准再生树脂复合材料应符合cj/t 130—2001〈再生树脂复合材料水箅〉行业标准5.3 制造尺寸检查井盖及水箅的结构应根据标准图所示基本尺寸,按照gb/t6414-1999《铸件尺寸公差》标准要求,其公差等级不低于其中ct10的规定並保证井盖与支座的互换性;並应符合以下要求。
5.3.1 检查井盖的装配部位直径尺寸的公差范围为(0,-2)mm;装配部位的高度尺寸的公差范围为(0,2)mm。
5.3.2 检查井支座的装配部位直径尺寸的公差范围为(-4,-2)mm;装配部位的高度尺寸的公差范围为(0,2)mm。
5.3.2 检查井盖及支座装配表面不平度在构件长度范围内不应超过5.3.4 检查井支座支承面宽度应≧20mm。
5.3.5 检查井盖及支座其它部位尺寸实体部分应等于或大于标准图所示尺寸,孔的公差范围为(0,2)mm;检查井盖表面标记、防滑花纹高度尺寸公差范围为(-0.5,0.5)mm。
5.3.6 排水口水箅的装配部位长度及宽度尺寸的公差范围为(-2,0)mm;安装部位的高度(厚度)尺寸的公差范围为(0,2)mm。
5.3.7 排水口座的装配部位尺寸的公差范围为(0,6)mm;安装部位的高度尺寸的公差范围为(0,2)mm。
5.3.8 排水口水箅及排水口座其它部位尺寸实体部分应等于或大于标准图所示尺寸,孔的公差范围为(0,2)mm。
5.4 外观5.4.1 一般要求铸铁井盖及支座和铸铁水箅及排水口座表面应平整、光滑;应磨光毛刺、飞边。
不得有裂纹,以及有影响使用性能的冷隔、缩松、气孔等缺陷,不得补焊。
5.4.2 装配表面铸铁检查井盖的接触表面和支座的支承表面应进行车削等机加工。
5.4.3 检查井盖表面标记所有检查井盖表面中间空白处必须填铸“给水”、“污水”、“雨水”、“消防”、“通讯”等专业标志字样;上面空白处填铸“?700(zq)”、“(?700QQ)”等规格、材料、承载等级标志字样;下面空白处填铸制造厂名(汉字楷书、全称或可以识别的简称)及制造年份(阿拉伯数字)字样。
填铸标志、字样应清晰,高度与表面花纹一致。
所有检查井支座也必须铸出清晰的材料、规格、承载等级标志,如?700(zq);必须铸出清晰的生产厂名、制造年份。
5.4.4 重量铸铁检查井盖及支座的成品重量应等于或大于标准图所标重量,即: ?700(zq)重型球墨铸铁井盖b型重量应≧53kg700(qq)轻型球墨铸铁井盖b型重量≧45kg800(zq)重型球墨铸铁井盖b型重量应≧71kg5.4.5 防盗装置:铸铁检查井盖必须加设防盗装置,其装置应牢固、可靠,方便快捷开启,宜采用链条式防盗装置;铸铁水箅宜采用铰链式防盗装置。
6 检验方法在本市范围使用的检查井盖和水箅必须进行产品检验和工程检验。
产品检验按规范要求的方法进行型式检验与出厂检验,工程检验按以下规定进行。
6.1 工程检验的含义在工程施工和竣工验收时,必须对检查井盖及水箅进行质量检验。
6.2 工程检验内容按规范和本技术规定的要求,进行以下检验:【篇三:雨水检查井施工导则】合肥市城镇检查井盖技术导则第一章总则第一条为了加强城镇道路上各类检查井盖的建设、维护和管理,保障检查井盖设施完好,指导检查井盖的设计、生产、施工、竣工验收和检修养护,依据有关法律、法规及标准规范等规定,结合本市实际,制定《合肥市城镇检查井盖技术导则》(以下简称《导则》)。
第二条本《导则》适用于合肥市行政区域内新建、改建、扩建和大中修的市政道路、广场等设施上各类检查井盖;《导则》所称检查井是指在电力、通讯、燃气、供热、供水、排水、有线电视、交通信号与监控等各类地下管线设施中用于连接、检查、维护管线和安装设备的竖向构筑物。
检查井盖是指检查井口可开启的封闭物,由井盖和井座组成。
第三条在城镇道路上各类检查井盖的设计、生产、施工、竣工验收和检修养护过程中,《导则》未明确的技术要求、材料要求、构造要求、性能要求和试验方法,应执行国标《检查井盖》(gb/t23858-2009)及省标等有关法律、法规、规范和工程技术标准有关规定。
第二章承载等级及使用场所第四条检查井盖按其承载能力不同分为b200、d400两个等级(见表1)。
表1第五条检查井盖的使用场所,应符合表2的规定:第三章材质要求第六条检查井盖材质应安全可靠、经济实用、节能环保、便于开启、美观轻便、坚固耐用。
第七条推广使用高强度钢纤维混凝土、复合材料等非金属类新型材质的检查井盖,禁止使用灰铸铁和现场自制的混凝土检查井盖。
第四章结构尺寸、外观及标识格式第九条井盖表面应有凸起的防滑花纹,凸起高度为3mm~8 mm。
防滑花纹设置应有利于排水,减少井盖表面积水。
第十条井盖表面色泽宜与所在道路统一和谐,并应保持一定的色牢度。
第十一条每套检查井盖的正面必须具有清晰、易辨识且永久性的下列标识,标识图案应符合附图1的格式:——检查井类型标识,在井盖中心位置,用中文或专门符号表示检查井类型,如:“雨”表示雨水检查井;“污”表示污水检查井;“水”表示供水检查井;“热”表示供热检查井;——合肥市标识,在井盖上方,由中文“合肥”及广玉兰花图案组成。
——井盖等级标识。
如:b200——产权单位名称,在井盖下方,用中文表示产权单位名称。
第十二条每套检查井盖的背面必须具有清晰、易辨识且永久性的下列标识:——制造厂名或商标,用中文标明。
——生产年份。
第五章防盗及消音减震装置第十三条金属类检查井盖应采用内置铰链、锁定装置等形式的防盗措施,同时应保证专业检查人员检修时,检查井盖开启方便、灵活。
检查井盖外缘形状应圆滑规整,不得采用局部突出的外置式铰链。
第十四条井盖与井座的接触面应采取机械加工,保证接触平稳,车辆经过时,不应有弹跳现象。
金属类检查井座支承面与井盖之间应设有消音减震材料,消音减震材料与检查井盖座连接牢固平整。
第六章规划设计第十五条各类管线及检查井宜设置在绿化带、人行道及非机动车道范围内,不宜设置在机动车道范围内。
特殊情况下,检查井应设置在机动车道车轮不易碾压位置。
通讯、有线电视等弱电管线应同沟同井设置。
第十六条含有检查井盖的施工图设计文件,应详细注明检查井盖技术要求和检查井的施工技术要求。
井座下应设置混凝土圈梁,圈梁高度应不小于200mm , 圈梁的混凝土等级应不低于c40。
第七章安装施工第十七条在城市规划区内新建、改建的检查井,应采用水泥砼预制砌块等非粘土类砌筑材料,禁止使用粘土实心砖。
推广使用砼模块式、预制装配式钢筋砼、现浇钢筋砼等结构形式的检查井。
砼模块式检查井参照国标图集《混凝土模块式排水检查井》(05ss522)执行,预制装配式钢筋砼检查井参照国标图集《预制装配式钢筋混凝土排水检查井》(05ss521)执行。
禁止采用各种形式的收口砌筑检查井,井筒应采取现浇或预制钢筋混凝土人孔盖板上砌筑直井筒或预制井筒。
第十八条检查井基础地基承载力应大于200kpa,不能达到承载力要求或者受水浸泡的地基基础,应采取处理措施。
检查井基础混凝土强度等级不得低于c15,最小厚度不得小于15cm。