水泥混凝土路面接缝
- 格式:pptx
- 大小:5.48 MB
- 文档页数:29
水泥混凝土路面接缝技术及处理措施作者:翟龙豪何秋风来源:《科学与财富》2017年第24期摘要:水泥混凝土路面在接缝处破坏比较常见,影响行车的舒适性和路面使用寿命;破坏后修复困难,投资较大。
接缝破坏的原因较多,根据具体情况,采用优良的密封材料、合理的接缝构造、正确的施工工艺,可以提高水泥混凝土路面接缝的使用质量,减少和延缓路面破坏,从而保证行车质量和延长路面使用寿命。
关键词:水泥混凝土路面;接缝;病害;施工技术一、水泥混凝土路面接缝施工类型1、施工缝施工(1)纵向施工缝当路面总宽度比一次机械摊铺宽度小时,应检查纵向施工缝,位置轮迹应避开,并靠近重合车遮线,平缝加拉杆成为纵向施工缝类型,拉杆由人工与机树装置插入。
面板厚规定为大于260 mm时,可采用企口形纵向施工缝插扛杆形式。
实践证明,100 mm为企口中间宽度理想状态,加上传力杆固定作用,在板厚于等于260 m m时,能够保证接剪切破坏不在纵缝中发生。
板厚薄于260 mm时,剪倾破坏有可能在企口纵缝之间发生,形成破碎带,不常使用。
采用滑模摊铺机施工时,摊铺机的侧向拉杆眼置插入,可采用在纵向施工缝的拉杆固定模板施工,应在振实过程中,从侧模预留孔中插入拉杆,使用手工方式。
(2)横向施工缝商品混凝土如果已经初凝、摊铺路面中断时间超过30 min,剪摊铺结束可采用端头钢模板,使用横向施工缝。
其位缩缝与塔宜和胀缝相重合,实在有困难不能重合时,企口缝形式可在施工缝中设螺纹传力杆,目的是在移向施工缝中,不仅保证优良的荷载传递,而且可以生成整体板。
路中心线与横向施工缝应垂直。
平缝加传力杆型在横向加工缝缩缝处采用,在胀缝处和构造与胀缝相同.2、胀缝施工胀缝补强钢筋支架、胀缝板和传力杆,胀缝构造常被普通水泥商品混凝土路面的胀缝施工采用。
机械连续施工胀缝通常采用钢筋补强支架方法,胀缝两侧可以增强抗拉强度,所必需的抵抗胀缝成为抗拉应力破坏主要因素。
计算表明胀缝结构的有限元,早期破坏的重要原因之一就成为水泥商品混凝土路面胀缝,商品混凝土拉应力超限是在胀缝板两侧300~400 mm范围内产生,造成开裂。
导致水泥混凝土路面产生裂缝的原因1、路基、基层的影响:(1)基层平整度差,导致混凝土面层厚度不匀,离散性大,在行车荷载及温度翘曲应力作用下,使得路面应力集中。
当应力超过极限强度时,就会在厚度薄弱处产生裂缝。
(2)地基强度不均匀,路基填料混杂或压实不好,产生不均匀沉降,导致混凝土板产生裂缝。
(3)路基软弱,未压实,或路面基层强度不足,沉降量过大,混凝土板受弯产生裂缝。
(4)半填半挖路段,填挖交接处未按要求进行处理或处理不好,或填方部分未压实,导致填方部分沉降或滑移而造成裂缝。
(5)老路拓宽,新填土部分施工方法不当,与劳碌结合不好,导致混凝土板产生裂缝。
2、混凝土振捣影响:振捣质量的影响。
应保证振捣器在每一位置振捣的持续时间,以拌合物停止下沉,不再冒气泡并泛出水泥砂浆为准,并不宜过振。
振捣不足,易使混凝土中出现气孔、蜂窝,在行车荷载及自然因素作用下产生应力集中而导致裂缝;振捣过量,则粗骨料下沉,混凝土离析,影响其强度。
3、养护的影响;混凝土的养护对其早期强度增长和防止收缩裂缝极为重要。
混凝土浇筑成型后,逐渐开始凝结硬化。
当空气中相对湿度较小时,混凝土中水分就会不断地被蒸发掉,造成混凝土由表到里逐渐失水,同时水还会阻滞混凝土的继续硬化甚至停止硬化。
如果养护不及时,就会造成顶面失水快,收缩迅速;板底失水慢,收缩缓慢。
翘曲后则可能是板产生裂缝。
因此一定要加强混凝土的早期养护,在表面手浆后尽快予以覆盖和洒水养护。
同时必须保证养护的时间,实际养护天数根据混凝土强度增长情况而定,一般宜为14天~21天。
4、横向缩缝质量的影响;设置横向缩缝是为了减小收缩应力和翘曲应力,缩缝主要采用假缝的形式,一般用锯缝机进行切割。
切缝的作用是使内应力在切缝处产生应力集中,从而使裂缝在切缝处产生。
切缝施工是混凝土施工中的一个重要环节,如不加强控制,极易引发裂缝。
(1)切割时间。
当混凝土达到设计强度的25%~30%时,应采用切缝机进行切割。
水泥混凝土接缝的处理一、接缝的构造与布置混凝上面层是由一定厚度的混凝土板所组成,它具有热胀冷缩的性质。
温度的变化会形成板的中部隆起的趋势、板的周边和角隅发生翘起的趋势。
这些变形会造成板的断裂或拱胀等破坏。
为避免这些缺陷,混凝土路面不得不在纵横两个方向设置许多接缝,把整个路面分割成许多板块。
混凝土板一般采用矩形,纵向和横向接缝一般垂直相交,纵缝两侧的横缝不得互相错位。
1. 横缝(1)概念:横向接缝是垂直于行车方向的接缝。
(2)分类:缩缝、胀缝和施工缝。
(3)胀缝① 概念:胀缝保证板在温度升高时能部分伸张,从而避免产生路面板在热天的拱胀和折断破坏,同时胀缝也能起到缩缝的作用。
② 构造缝宽:缝隙宽约20~25mm。
如施工时气温较高,或胀缝间距较短,应采用低限;反之用高限。
缝隙上部3~4cm深度内浇灌填缝料,下部则设置富有弹性的嵌缝板,它可由油浸或沥青浸制的软木板制成。
传力杆:对于交通繁重的道路,为保证混凝土板之间能有效地传递荷载,防止形成错台,应在胀缝处板厚中央设置传力杆。
传力杆一般长40~60cm,直径20~25mm的光圆钢筋,每隔30~50cm设一根。
杆的半段固定在混凝土内,另半段涂以沥青、套上长约8~10cm的铁皮或塑料套筒,筒底与杆端之间留出宽约3~4cm的空隙,并用木屑与弹性材料填充,以利板的自由伸缩。
在同一条胀缝上的传力杆,设有套筒的活动端最好在缝的两边交错布置。
垫枕:由于设置传力杆需用钢材,故有时不设传力杆,而在板下用100号混凝土或其它刚性较大的材料,铺成断面为矩形或梯形的垫枕。
当用炉渣石灰上等半刚性材料作基层时,可将基层加厚形成垫枕,结构简单,造价低廉。
为防止水经过胀缝渗入基层和土基,还可在板与垫枕或基层之间铺一层或两层油毛毡或2cm厚沥青砂。
一、接缝设置的原因混凝上面层是由一定厚度的混凝土面板组成的,具有热胀冷缩的性质。
由于一年四季气温的变化,混凝土板会产生不同程度的膨胀和收缩.而在一昼夜户,白天气温升高,混凝土板顶面温度较底面为高,这种湿度坡差会造成面板的中部突起。
夜间气温降低,混凝土板顶面温度较底面为低,会使板的周围和角隅翘起;(如图2-8-6a)。
这些变形会受到面板与基础之间的摩阻力和粘结力,以及板自重和车轮荷载等的约束。
致使板内产生过大的应力,造成板的断裂(图2-8—6b)或拱胀破坏(图2-8-6c)。
由图2—8-6可见,由于翘曲而引起的裂缝,则在在裂缝发生后被分割的两块板体尚不致完全分离,还具有传递荷载的能力,倘若板体温度均匀下降引起收缩,则将使两块板拉开(图2-8—6c),从而失去传递荷载的能力。
为了避免这些缺陷,水泥混凝土路面不得不在纵横两个方向设置许多接缝.把整个路面分割成为许多板块.水泥混凝土路面的接缝可分为纵缝和横缝两大类。
与路线中线平行的接缝称为纵缝,与路线垂直的接缝称为横缝。
接缝设计应能:①控制收缩应力和翘曲应力所引起的裂缝出现的位置;②通过接缝提供足够的荷载传递;③防止坚硬的杂物落入接缝缝隙内。
二、纵缝及其构造1.纵向缩缝当一次铺筑的宽度大于4.5m时,应增设纵向缩缝。
纵向缩缝可采用假缝加拉杆型,其构造如图2—8-7所示.设置拉杆,可以防止板块横向位移使缝隙扩大,拉杆应设置在板厚的1/2处;在缩缝上部设置的槽口,一般应在混凝土浇筑后,并达到一定的抗压强度(碎石混凝土为6.0~12.0MPa.砾石混凝土为9.0~12。
0MPa)时,用切缝机进行切割,或在混凝土浇筑时振人木条。
槽门深度要适中,过浅,则混凝土截面的强度削弱得不够,从而不能保证以后的开裂发生在接缝位置上;过深,则不规则断裂面面积过少,接缝传荷能力降低。
根据经验,槽深—般为板厚的1/4—1/5,槽口宽度根据施工条件,宜尽可能窄些,通常为3~8mm。
2.纵向施工缝由于施工条件等原因,当-次铺筑宽度小于路面宽度需分两次以上浇筑时,则应设置纵向施工缝.纵向施工缝按其构造的不同,可分为平缝和企口缝两种形式:一般采用平缝,并应在板厚中央设置拉杆,以防止接缝张开和板的上下错动.其构造如图2-8—8所示。
公路水泥混凝土路面施工技术规范》(JTG F30-2003)简介编者按:新编的交通部公路行业标准《公路水泥混凝土路面施工技术规范》(JTG F30-2003)已于2003年7月1日起开始正式实施。
为推进该规范的宣贯工作,详细介绍新规范编制的背景、指导思想、主要技术内容、重要技术要求等内容,本刊特编发该规范编制组成员傅智、刘清泉、牛开民等专家合著的专题文章,希望引起广大施工企业和相关单位的关注。
文/傅智刘清泉牛开民喻波梁军林徐加绛杨泽涛;1、前言1.1 编制背景;我国公路水泥混凝土路面建设发展速度很快,是国际上水泥路面里程最多的国家之一。
截止2002年底已经建成各级水泥路面16.75万公里,占我国当年水泥和沥青两种高级路面里程28.86万公里的58%。
在影响水泥路面工程质量的诸多因素中,设计与施工规范具有举足轻重的技术法规作用。
我国《水泥混凝土路面施工及验收规范》(GB97-87)已经使用了16年,上个世纪90年代中期进行过修订,但未能颁布执行。
16年以来,大中型机械化施工工艺和技术如滑模摊铺、轨道摊铺、碾压施工、三辊轴机组等均已取得巨大的实质性进步,而且已经在我国高速公路、一级公路和二级公路水泥路面施工中得到广泛应用,稳步提高了水泥路面施工质量和技术水平,积累了相当丰富的施工经验。
我国所使用的水泥路面面层结构形式越来越丰富,水泥路面适用范围越来越宽广,如缩缝设传力杆的水泥路面、钢筋水泥路面、连续配筋水泥路面及桥面、钢纤维混凝土路面、双钢混凝土桥面等均已大规模采用,这些新型水泥路面结构设计与机械化施工技术也已经逐步成熟。
在这种状况下,仅规定适合小型机具施工的《水泥混凝土路面施工及验收规范》GBJ97-87显然已经落后,远远不能适应当前的水泥路面施工装备、工艺和技术水平的要求。
因此,我国水泥路面建设迫切需要有一部全面完善的施工技术规范来保障和提高其施工质量。
另一方面,水泥路面建设正处在大发展时期。
张春贤部长在2003年全国交通厅局长会议上明确提出:“让农民兄弟走上油路和水泥路”。
水泥混凝土路面接缝施工技术要求水泥混凝土路面的接缝技术,长期以来,在设计领域和施工领域当中都是比较困难的一项处理内容,同时也是对水泥混凝土路面性能进行判断,非常关键的一个标准和依据。
在水泥混凝土路面接缝施工技术的处理过程当中,施工人员需要对具体的施工技术有着清楚的了解,更好地在实际的施工过程当中,提升施工技术的精良性。
本文主要对水泥混凝土路面接缝施工技术进行研究和探讨,以此来为研究工作的开展提供有效的参考。
标签:水泥混凝土;路面;接缝;施工技术;要求水泥混凝土路面的强度是比较高的,同时自身也有着比较突出的稳定性,寿命比较长,在维护方面的费用比较低,因此卖耐久性比较突。
在水泥混凝土路面强度的影响因素当中,外面的接缝处理是非常重要的一个保障,是耐久度实现的重要前提。
水泥混凝土路面接缝施工技术,有着具体的施工要求,施工人员在施工操作的过程当中,需要充分地掌握水泥混凝土的路面接缝施工技术。
1 接缝的主要作用混凝土面层最主要的就是混凝土面板,因此它会具备着热胀冷缩的特点,会随着外界温度的变化,从而出现一定的改变,并且混凝土板在这个过程当中也会出现相应的膨胀和收缩的情况。
由于在水泥混凝土路面当中,会包含着复合式的路面,以及钢筋纤维混凝土路面等等,因此在实际施工操作的过程当中,不管运用何种施工的技术,大体上的施工方式和技術会存在着比较大的相似性,并且接缝的方式和施工的技术大体上是相同的。
如果施工人员在接缝处理的过程当中,操作情况不理想,就会导致水泥混凝土路面出现一些前期的断板情况,同时还会有断角和渗水的现象存在,因此接缝处理环节是十分关键的。
我们只要开展科学合理的结构设计,才能够对收缩应力的情况进行避免,使得荷载得到充分的传递,能够有效地预防一些接缝杂物掉入到接缝的缝隙里面。
2 纵向接缝施工2.1 纵向缩缝如果机械在一次铺设的宽度超过了两个以上车道的时候,就需要进行纵向缩缝的设定,同时使用假缩缝的方式进行整体工序的处理。
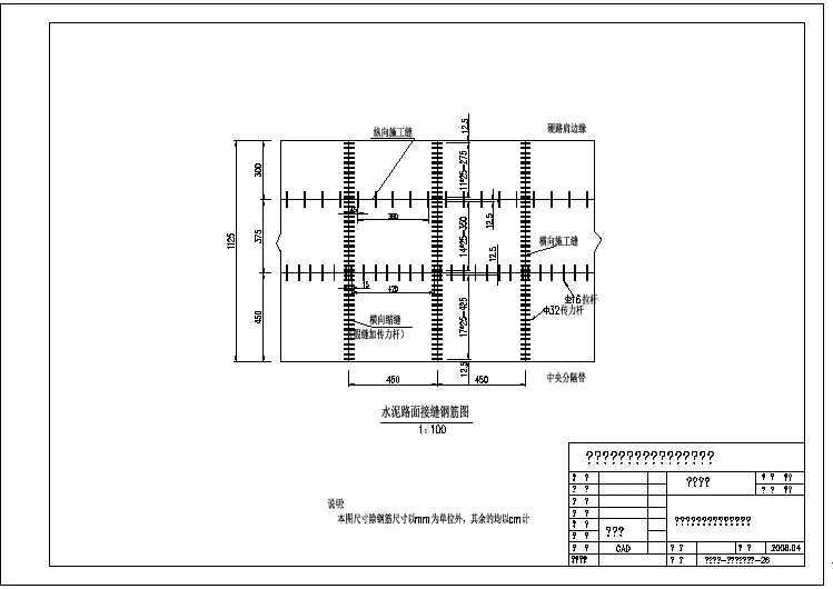
S12梅龙高速公路粤境程江至梅南段路面维修工程(K91+120~K103+404)水泥混凝土面板纵横向施工接缝处理作业指导书广东省路桥建设发展有限公司路达分公司2011年11月一、新浇筑水泥混凝土面板纵横向施工接缝处理根据现行《公路水泥混凝土路面施工技术规范》(JTG F30—2003)规定,新浇水泥混凝土面板宜按以下规定执行。
1.1 纵缝施工1.当一次铺筑宽度小于路面和硬路肩总宽度时,应设纵向施工缝,位置应避开轮迹,并重合或靠近车道线,构造可采用平缝加拉杆型。
当所摊铺的面板厚度大于等于260mm 时,也可采用插拉杆的企口型纵向施工缝。
采用滑模施工时,纵向施工缝的拉杆可用摊铺机的侧向拉杆装置插入。
采用固定模板施工方式时,应在振实过程中,从侧模预留孔中手工插入拉杆.2.当一次摊铺宽度大于4。
5m时,应采用假缝拉杆型纵缝,即锯切纵向缩缝,纵缝位置应按车道宽度设置,并在摊铺过程中用专用的拉杆插入装置插入拉杆。
3.桥面和搭板的纵缝拉杆可由横向钢筋延伸穿过接缝代替。
4.插入的侧向拉杆应牢固,不得松动、碰撞或拔出。
若发现拉杆松脱或漏插,应在横向相邻路面摊铺前,钻孔重新植入。
当发现拉杆可能被拔出时,宜进行拉杆拔出力(握裹力)检验,混凝土与拉杆握裹力试验方法可参照规范附录C。
1。
2 横向施工缝每天摊铺结束或摊铺中断时间超过30min时,应设置横向施工缝,其位置宜与胀缝或缩缝重合,确有困难不能重合时,施工缝应采用设螺纹传力杆的企口缝形式.横向施工缝应与路中心线垂直。
横向施工缝在缩缝处采用平缝加传力杆型,见图1。
在胀缝处其构造与胀缝相同,见图2。
图1 横向施工缝构造示意图图2 胀缝构造示意图1.3 横向缩缝布置1.普通混凝土路面横向缩缝宜等间距布置。
不宜采用斜缝。
不得不调整板长时,最大板长不宜大于6.0m;最小板长不宜小于板宽。
2.在特重和重交通公路、收费广场、邻近胀缝或路面自由端的3条缩缝应采用假缝加传力杆型.缩缝传力杆的施工方法可采用前置钢筋支架法或传力杆插入装置(DBI)法,支架法的构造见图3。
附件:水泥混凝土路面施工技术要求1 设计依据(1)《公路工程技术标准》(JTG B01—2003)(2)《公路水泥混凝土路面设计规范》(JTG D40—2002)(3)《公路水泥混凝土路面施工技术规范》(JTG F30—2003)(4)《公路路面基层施工技术规范》 (JTJ 034-2000)(5)《公路路基设计规范》(JTG D30—2004)(6)《公路路基施工技术规范》 (JTJ 033-95)(7)《公路工程质量检验评定标准》 (JTJ F80/1-2004)2 工程设计2.1技术指标一、二级公路水泥混凝土路面结构从上至下依次为:水泥混凝土面板厚26cm,基层为20cm厚5%水泥稳定碎石,底基层为30cm厚12%石灰稳定土,采用特重交通等级设计。
水泥混凝土的强度以28d龄期的弯拉强度控制,要求混凝土弯拉强度标准值不得低于5.0MPa,抗冻标号不小于F200。
三、四级公路水泥混凝土路面结构从上至下依次为:水泥混凝土面板厚20cm,基层为30cm厚12%石灰稳定土,采用中等交通等级设计。
水泥混凝土的强度以28d龄期的弯拉强度控制,要求混凝土弯拉强度标准值不得低于4.5MPa,抗冻标号不小于F200。
路基填筑维持原设计要求不变。
2.2路面接缝设计2.2.1 纵向接缝路面宽度大于6m的混凝土面板,在公路中心线处设一道纵向施工缝,采用平缝形式。
其余部位纵缝均为缩缝,采用假缝形式,缩缝位置与行车道分幅一致,但不得大于4.5m。
路面宽度等于6m的混凝土面板,在公路中心线处设一道纵向缩缝,采用假缝形式。
路面宽度小于等于4.5m的混凝土面板,不设纵缝。
纵缝均与公路中心线平行。
纵向接缝无论是施工缝还是缩缝,均在缝内设置拉杆。
如原路设有纵缝,纵缝的设置应与原路一致。
2.2.2 横向接缝横向接缝为4~6m等间距布置,分块面积不得大于25m2。
横缝采用设传力杆的假缝形式。
每日施工结束或因临时原因中断施工时,必须设置横向施工缝,其位置应尽可能选在缩缝处。
水泥路面伸缩缝胀缝嵌缝和裂缝处治相关处理流程水泥混凝土路面一般有两种缝,一是路面人为预留缝,也就是伸缩缝胀缝,一种是开裂裂缝,下面先看水泥路面嵌缝。
■水泥路面嵌缝工艺流程■详细步骤:1、设备使用前应例行检查,如燃油箱存油量、机油油位,管路、软管接头情况及零部件紧固情况。
2、按交通施工安全规定摆放安全警示牌、路椎等设施,确保施工场地安全及过往行车安全。
3、按照水泥混凝土路面接缝的宽度,用水泥混凝土路面清缝机,沿接缝方向进行清缝作业。
4、使用高压吹尘机对清缝后路面进行高压除尘,使清缝后的路面无尘砂、无残留老料。
5、操作人员手执灌缝枪或灌缝推车,嵌缝时可选用拉式或拖式走向,完成裂缝密封。
6、待材料表干后开放交通。
▲嵌缝前▲嵌缝后★施工前后对比▲清缝前▲清缝后▲嵌缝后■水泥、沥青路面不规则裂缝处置工艺流程▼一、施工工艺介绍▼施工注意事项1、设备使用前应例行检查,如燃油箱存油量、机油油位,管路、软管接头情况及零部件紧固情况。
2、填充材料宜选用柔软有弹性的材料,不能影响伸缩缝或胀缝的功能。
3、按交通施工安全规定摆放安全警示牌、路椎等设施,确保施工场地安全及过往行车安全。
4、按养护设计要求调整开槽宽度及深度,沿路面不规则裂缝进行跟踪开出均匀凹槽。
5、使用高压吹尘机对开槽后路面进行高压除尘,使开槽后的路面无尘砂、无残留老料,检查合格后进行下一工序。
6、操作人员手执灌缝枪或灌缝推车进行灌缝。
可选用拉式或拖式走向,完成裂缝密封。
7、待材料表干后开放交通。
▼二、施工工艺示意图在施工期间应完成下列操作,以保证有足够数量和规定温充的热熔材料:1、检查喷嘴处和熔箱内的材料温度;2、调整加热温度控制装置,以达到推荐的施工温度(或者尽可能地接近推荐施工温度,避免超过安全加热温度);3、以常检查填、封缝料的温度,必要时予以调整;4、注意观察化料温度变化;5、定期检查熔锅内材料数量,必要时,予以添加。
★施工前后对比▼施工优势施工时请按正确的施工工艺进行施工,它的优势在于:A、开槽能够彻底地将沥青路面中杂物清除,使下一步的灌缝有一条新的平整结合面;B、高压吹尘机组合可快速彻底清理开槽后残留的杂物,加速工作进程。
水泥混凝土路面病害处治及技术要求1、裂缝的处治(1)当水泥混凝土路面产生宽度小于3mm且边缘无碎裂的轻微裂缝时,可采用直接灌缝措施进行处治.当水泥混凝土路面产生宽度小于3mm,边缘有碎裂的裂缝时,可采取先把裂缝扩大,清缝后再灌缝处治。
其方法是凿除缝隙处碎裂路面,将缝隙适当扩大,即顺着裂缝扩大宽成15—20mm沟槽,槽深可根据裂缝深度确定,最大深度不得超过板后的2/3.将槽内杂物清除干净,吹净尘土后,填入粒径3-6mm的清洁石屑,灌入灌峰材料,或用清洁石屑与灌缝用材料按规定的配合比,拌和均匀后灌入缝内.(2)灌缝用材料可按加热施工式填缝料中沥青橡胶类、聚氯乙烯胶泥类和沥青玛蹄脂类,或常温施工式填料中聚氨酯焦油类、氯丁橡胶类、乳化沥青胶类中选取.(3)对于贯穿路面板全后的大于3mm且小于15mm的中等裂缝,可采取条带罩面法进行修补。
其方法是在裂缝两侧各150mm处平行于路面板纵缝或横缝进行切割,并凿除其内混凝土深70mm,于裂缝两侧每隔500mm打一对垂直于路面的鈀钉孔(孔德间距为200mm,深为80mm),鈀钉孔大小应略大于鈀钉直径2—4mm,在两个鈀钉孔之间凿一于鈀钉直径相一致的鈀钉槽。
鈀钉用直径16mm螺纹钢制成,鈀钉长200mm,弯钩长70mm,使用前应对鈀钉除锈,在鈀钉内灌入水泥砂浆,方可将鈀钉钉入孔内。
然后浇筑新水泥混凝土,养护水泥混凝土强度达到要求后开放交通.(4)对于宽大于15mm的严重裂缝可采取全深度补块.全深度补块可分为集料嵌锁法、刨挖法、设置传力杆等方法。
①集料嵌锁法。
集料嵌锁法适用于中轻交通量,按无配筋的水泥混凝土路面的接缝处理。
其方法:在需修的混凝土路面位置,平行于缩缝画线,在保留板块边部,沿内侧40mm位置,锯50mm深的缝,另测全深度锯缝,宽度根据裂缝的宽度和裂缝的发展方向确定,破碎并凿除两切缝间的混凝土,将半锯口下的断面凿成毛面并垂直,破碎和凿除混凝土时。
不得伤及相邻面板、基层、路肩。
公路⽔泥混凝⼟路⾯设计规范JTGD40-2011公路⽔泥混凝⼟路⾯设计规范JTGD40-20111总则1.0.1为适应交通运输发展和公路建设的需要,提⾼⽔泥混凝⼟路⾯的技术⽔平、使⽤品质和设计质量,保证⼯程安全可靠、经济合理,制定本规范。
1.0.2本规范适⽤于各等级新建和改建公路的⽔泥混凝⼟路⾯设计。
1.0.3⽔泥混凝⼟路⾯设计⽅案,应根据公路的功能和等级,结合当地⽓候、⽔⽂、地质、材料、建设和养护条件、⼯程实践经验及环境保护等,通过综合分析确定。
1.0.4⽔泥混凝⼟路⾯设计应包括结构组合设计、结构层厚度设计、材料组成设计、接缝构造设计、钢筋配置设计等内容。
1.0.5⽔泥混凝⼟路⾯结构,应按规定的安全等级和⽬标可靠度要求,在设计基准期内承受预期的交通荷载作⽤,适应所处的⾃然环境,满⾜预定的使⽤性能要求。
1.0.6⽔泥混凝⼟路⾯设计除应符合本规范的规定外,尚应符合国家现⾏有关标准的规定。
2术语和符号2.1术语2.1.1⽔泥混凝⼟路⾯cementconcretepavement以⽔泥混凝⼟作⾯层(配筋或不配筋)的路⾯。
2.1.2普通混凝⼟路⾯jointedplainconcretepavement除接缝区和局部范围外,⾯层内均不配筋的⽔泥混凝⼟路⾯,也称素混凝⼟路⾯。
2.1.3钢筋混凝⼟路⾯jointedreinforcedconcretepavement⾯层内配置纵、横向钢筋或钢筋⽹并设接缝的⽔泥混凝⼟路⾯。
2.1.4连续配筋混凝⼟路⾯continuouslyreinforcedconcretepavement⾯层内配置纵向连续钢筋和横向钢筋,横向不设缩缝的⽔泥混凝⼟路⾯。
2.1.5钢纤维混凝⼟路⾯steelfiberreinforcedconcretepavement在混凝⼟⾯层中掺⼊钢纤维的⽔泥混凝⼟路⾯。
2.1.6复合式路⾯compositepavement⾯层由两层不同材料类型和⼒学性质的结构层复合⽽成的路⾯。
一个是断幵的,一个是不断幵的。
也就是缩缝是用木模板隔幵浇注形成的,而涨缝是切割机切割的,一般基层不断幵,只切割40〜50深。
一般是30米一道缩缝,6米一道涨缝。
路面伸缝是施工时予留的空间缝隙,当混凝土受热膨胀时占领空余位置而不在内部产生压应力•施工时在伸缝位置混凝土板顶部放置压缝板条•混凝土凝固后,伸缝的压缝板及时拔出,然后灌入填缝料•路面缩缝是在整体路面切割一条缝,当混凝土受冷收缩时拉幵切割的缝隙而不在内部产生拉应力•施工时采用切缝法•即在混凝土达到设计强度的50〜70%时,用切缝机切割成缝,缝宽3〜5mm.用路面锯缝机所锯的缝当然是缩缝了•混凝土场地由于气候温度和湿度的变化,会使板体产生膨胀和收缩,因此需要在场地砼面上沿纵向和横向隔适当距离设伸缝与缩缝.a.伸缝:伸缝又称胀缝,其作用能使板体在温度变化时,较自由的伸张•横向、纵向伸缝每隔10m设置一道,缝宽15〜25mm,伸缝板选用沥青预制板制成,其埋入混凝土面的深度不小于砼面厚度的2/3(从底面算起),并在上部填入沥青玛帝脂.B缩缝:缩缝又称假缝,每隔4m设置一道,缝宽5〜8mm,缩缝中嵌入混凝土面的深度不小于砼面厚度的1/3(从顶面算起).在混凝土强度达到10Mpa左右用混凝土切缝机切割缩缝.水泥混凝土路面接缝分纵向和横向两大类。
纵缝又可分为纵向缩缝和纵向施工缝;横缝又可分为横向缩缝、胀缝和横向施工缝。
①纵向施工缝本工程水泥砼路面为2*4.5m形式,分两幅进行摊铺,中间纵向施工缝采用平缝加①14螺纹钢筋拉杆的构造形式,拉杆间距60cm布置,详见设计图中。
纵向施工缝拉杆根据形状可分为直线形方式和“ I形方式两种。
拉杆设置间距通过间距标尺”设定,并注意在施工过程中根据水泥混凝土稠度变化调节汽锤气压值,一般为(275.8〜413.7 )kPa[(40〜60)PSI],水泥混凝土坍落度越大,气压值应越小。
“ L形拉杆在水泥混凝土硬化后应重新扳直。