水泥砼路面的接缝构造与布置
- 格式:doc
- 大小:56.50 KB
- 文档页数:3
水泥砼道路的施工方案设计
一、施工前准备工作
1.确定施工地点和道路规划
2.进行必要的地质勘察和土壤测试
3.准备相关施工材料和设备
二、基底处理
1.清理施工区域,除去杂物和沉积物
2.进行平整化处理,填平坑洼和凹陷部分
3.进行必要的排水设计,确保道路排水畅通
4.铺设垫层,通常使用砂石或碎石作为垫层材料
三、砼材料准备
1.按照设计要求,准备所需的水泥、砂浆、骨料等材料
2.对水泥进行质量检测,确保符合施工标准
3.按照比例将水泥、骨料、砂浆等材料进行搅拌和混凝
四、施工工艺
1.进行道路模板的安装,确保道路形状和线路的准确性
2.将预制的砼料倒入道路模板内,利用振动器进行浇筑和压实
3.对砼材料进行充分的压实和振实,确保道路面的平整度和密实度
4.在浇筑完成后,及时进行表面处理,如喷水、刷涂等,防止砼表面龟裂和开裂
五、养护保养
1.在道路砼浇筑完成后,进行养护保养,覆盖防尘网等保护措施,防止外界污染和损害
2.定期进行养护,进行除尘、清洁和修补工作,保持道路的平整度和平滑度
3.协调车辆通行
六、交付使用
1.经过养护保养,确保道路的稳定性和使用性,并进行质量检测
2.通知相关部门进行验收,确认道路符合相关规定和标准
3.在验收通过后,将道路交付给相应的部门或用户使用
总结:水泥砼道路的施工方案设计要考虑到施工前准备工作、基底处理、砼材料准备、施工工艺、养护保养和交付使用等环节,严格按照设计要求和相关标准进行施工,确保道路的质量和使用性能。
同时,还需要合理安排施工进度和施工人员,加强施工现场管理,确保施工的安全和顺利进行。
中铁中铁建中交中水中冶中煤1.水泥混凝土路面施工工艺2.1 适用范围3.本施工工艺适用于市政道路水泥路面、公路水泥路面工程施工。
4.2 编制依据5.《混凝土结构工程施工质量验收规范》GB50204——20026.《公路工程水泥混凝土试验规程》JTJ053——947.《公路工程技术标准》JTJ001——978.《公路工程施工安全技术规程》JTJ076——959.《砼强度检验评定标准》GBJ107——8710.《水泥砼路面施工及验收规范》GB97——8711.《公路工程质量检验评定标准》JTJ071——9812.3 准备工作13.3.1主要施工机具设备14.常用施工机具有:强制式搅拌机、自行式砼摊铺机、自卸汽车、泵送车、砼搅拌运输罐车、切缝机、压纹机、垂直振动器、平板振动器切割机、园盘锯、平刨机、焊机、发电机、潜水泵、洒水车等。
15.3.2技术准备测方案等相应的的技术方案。
16.3.2.1认真熟悉图纸,明确各部位的的要求以及复算各种测量数据,如:平曲线的的起点、曲中点、曲终点和竖曲线的的各种改正数据以及平交交道口、立交道口的的交点,复测平面和主程平曲线、竖曲线等桩位。
17.3.2.2根据设计图纸编制水泥砼路面工程施工措施方案,测量施测方案等相应的的技术方案。
18.3.2.3原材料材质的的检验及确定水泥砼的的配合比。
19.3.2.4砼水泥路面基层应坚实、稳定,压实度和平整度、弯沉值等符合设计要求和规范要求。
20.3.3物资准备21.3.3.1准备砼水泥路面拌和物的的各种原材料,按规范规定并抽样送检,符合设计及规范要求。
22.3.3.2准备施工需用的的周转材料。
23.3.4灌施工准备24.3.4.1施工前,进行各工序各流程的的技术交底和安全交底。
25.3.4.2隐蔽资料经专检监理签字确认。
26.3.4.3砼浇筑会签单已办好,并签发砼施工配合比通知单和砼施工方案。
27.3.4.4检查基层质量,并且路基应有良好的的排水系统。
水泥混凝土接缝的处理一、接缝的构造与布置混凝上面层是由一定厚度的混凝土板所组成,它具有热胀冷缩的性质。
温度的变化会形成板的中部隆起的趋势、板的周边和角隅发生翘起的趋势。
这些变形会造成板的断裂或拱胀等破坏。
为避免这些缺陷,混凝土路面不得不在纵横两个方向设置许多接缝,把整个路面分割成许多板块。
混凝土板一般采用矩形,纵向和横向接缝一般垂直相交,纵缝两侧的横缝不得互相错位。
1. 横缝(1)概念:横向接缝是垂直于行车方向的接缝。
(2)分类:缩缝、胀缝和施工缝。
(3)胀缝① 概念:胀缝保证板在温度升高时能部分伸张,从而避免产生路面板在热天的拱胀和折断破坏,同时胀缝也能起到缩缝的作用。
② 构造缝宽:缝隙宽约20~25mm。
如施工时气温较高,或胀缝间距较短,应采用低限;反之用高限。
缝隙上部3~4cm深度内浇灌填缝料,下部则设置富有弹性的嵌缝板,它可由油浸或沥青浸制的软木板制成。
传力杆:对于交通繁重的道路,为保证混凝土板之间能有效地传递荷载,防止形成错台,应在胀缝处板厚中央设置传力杆。
传力杆一般长40~60cm,直径20~25mm的光圆钢筋,每隔30~50cm设一根。
杆的半段固定在混凝土内,另半段涂以沥青、套上长约8~10cm的铁皮或塑料套筒,筒底与杆端之间留出宽约3~4cm的空隙,并用木屑与弹性材料填充,以利板的自由伸缩。
在同一条胀缝上的传力杆,设有套筒的活动端最好在缝的两边交错布置。
垫枕:由于设置传力杆需用钢材,故有时不设传力杆,而在板下用100号混凝土或其它刚性较大的材料,铺成断面为矩形或梯形的垫枕。
当用炉渣石灰上等半刚性材料作基层时,可将基层加厚形成垫枕,结构简单,造价低廉。
为防止水经过胀缝渗入基层和土基,还可在板与垫枕或基层之间铺一层或两层油毛毡或2cm厚沥青砂。
水泥砼路面的接缝构造与布置水泥混凝土路面的横向接缝(1)横向接缝①缩缝:保证板因温度和湿度的降低而收缩时沿该薄弱断面缩裂,从而避免产生不规则的裂缝.②胀缝:保证板在温度升高时能部分伸张,从而避免产生路面板在热天的拱胀和折断破坏,同时胀缝也能起到缩缝的作用。
③施工缝:因施工不连续,暂时停止施工时要设置施工缝。
常设置在缩缝、胀缝位置处,必须添加传力钢筋,保证纵向整体性.(2)横缝的构造与设置①胀缝的构造胀缝是贯通接缝、缝宽达到20mm左右、虽然设置传力杆,但是由于不断的伸长与收缩,再加上荷载的作用,是水泥混凝土最薄弱的环节。
目前只在结构物位置设置胀逢,设置胀逢的数量与水泥混凝土路面长度没有关系。
②缩缝的构造(a)假缝型(b)假缝+传力杆(c)企口缝+传力杆缩缝间距一般4~6m,同板长,根据气温状况、地质水文情况选择。
如:5m×4m的板块,按5m固定间距设置缩缝.③施工缝的构造施工缝一般尽量选择在胀缝、缩缝处设置,构造与重交通的缩缝构造(b)相似,或者选用企口缝。
(3)横向接缝的间距按面层类型和厚度选定①普通混凝土面层一般4—6m,面板的长宽比不宜超过1.30,平面尺寸不宜大于25平方米;②碾压混凝土或钢纤维混凝土面层一般6-10m ;③钢筋混凝土面层一般6-15m.3、水泥混凝土路面的纵向接缝(1)纵缝的构造与设置纵缝:平行于行车方向的接缝,用来控制路面板因翘曲应力与荷载应力共同作用下产生不规则的纵向裂缝。
原因:①混凝土摊铺机仅能摊铺一个车道宽度,纵缝做成真缝形式(平头缝)②混凝土摊铺机全路幅摊铺,摊铺宽度两侧做成真缝;摊铺宽度范围内按照车道宽度设置纵缝,做成假缝或者企口缝;(2)纵缝的位置①根据路面设计宽度,按3~4.5m设置,一般等间距.②一般选择在车道标线处;靠近中央分隔带的内侧车道,路缘带与车道间不另设纵缝;外侧车道,纵缝外移路缘带宽度;(3)拉杆的设置①拉杆:指用于纵缝,以保证板块间沿道路横向的联系为主要目的设置的钢筋。
S12梅龙高速公路粤境程江至梅南段路面维修工程(K91+120~K103+404)水泥混凝土面板纵横向施工接缝处理作业指导书广东省路桥建设发展有限公司路达分公司2011年11月一、新浇筑水泥混凝土面板纵横向施工接缝处理根据现行《公路水泥混凝土路面施工技术规范》(JTG F30—2003)规定,新浇水泥混凝土面板宜按以下规定执行。
1.1 纵缝施工1.当一次铺筑宽度小于路面和硬路肩总宽度时,应设纵向施工缝,位置应避开轮迹,并重合或靠近车道线,构造可采用平缝加拉杆型。
当所摊铺的面板厚度大于等于260mm 时,也可采用插拉杆的企口型纵向施工缝。
采用滑模施工时,纵向施工缝的拉杆可用摊铺机的侧向拉杆装置插入。
采用固定模板施工方式时,应在振实过程中,从侧模预留孔中手工插入拉杆.2.当一次摊铺宽度大于4。
5m时,应采用假缝拉杆型纵缝,即锯切纵向缩缝,纵缝位置应按车道宽度设置,并在摊铺过程中用专用的拉杆插入装置插入拉杆。
3.桥面和搭板的纵缝拉杆可由横向钢筋延伸穿过接缝代替。
4.插入的侧向拉杆应牢固,不得松动、碰撞或拔出。
若发现拉杆松脱或漏插,应在横向相邻路面摊铺前,钻孔重新植入。
当发现拉杆可能被拔出时,宜进行拉杆拔出力(握裹力)检验,混凝土与拉杆握裹力试验方法可参照规范附录C。
1。
2 横向施工缝每天摊铺结束或摊铺中断时间超过30min时,应设置横向施工缝,其位置宜与胀缝或缩缝重合,确有困难不能重合时,施工缝应采用设螺纹传力杆的企口缝形式.横向施工缝应与路中心线垂直。
横向施工缝在缩缝处采用平缝加传力杆型,见图1。
在胀缝处其构造与胀缝相同,见图2。
图1 横向施工缝构造示意图图2 胀缝构造示意图1.3 横向缩缝布置1.普通混凝土路面横向缩缝宜等间距布置。
不宜采用斜缝。
不得不调整板长时,最大板长不宜大于6.0m;最小板长不宜小于板宽。
2.在特重和重交通公路、收费广场、邻近胀缝或路面自由端的3条缩缝应采用假缝加传力杆型.缩缝传力杆的施工方法可采用前置钢筋支架法或传力杆插入装置(DBI)法,支架法的构造见图3。
一、接缝设置的原因混凝上面层是由一定厚度的混凝土面板组成的,具有热胀冷缩的性质。
由于一年四季气温的变化,混凝土板会产生不同程度的膨胀和收缩。
而在一昼夜户,白天气温升高,混凝土板顶面温度较底面为高,这种湿度坡差会造成面板的中部突起。
夜间气温降低,混凝土板顶面温度较底面为低,会使板的周围和角隅翘起;(如图2-8-6a)。
这些变形会受到面板与基础之间的摩阻力和粘结力,以及板自重和车轮荷载等的约束。
致使板内产生过大的应力,造成板的断裂(图2-8-6b)或拱胀破坏(图2-8-6c)。
由图2-8-6可见,由于翘曲而引起的裂缝,则在在裂缝发生后被分割的两块板体尚不致完全分离,还具有传递荷载的能力,倘若板体温度均匀下降引起收缩,则将使两块板拉开(图2-8-6c),从而失去传递荷载的能力。
为了避免这些缺陷,水泥混凝土路面不得不在纵横两个方向设置许多接缝.把整个路面分割成为许多板块。
水泥混凝土路面的接缝可分为纵缝和横缝两大类。
与路线中线平行的接缝称为纵缝,与路线垂直的接缝称为横缝。
接缝设计应能:①控制收缩应力和翘曲应力所引起的裂缝出现的位置;②通过接缝提供足够的荷载传递;③防止坚硬的杂物落入接缝缝隙内。
二、纵缝及其构造1.纵向缩缝当一次铺筑的宽度大于4.5m时,应增设纵向缩缝。
纵向缩缝可采用假缝加拉杆型,其构造如图2-8-7所示。
设置拉杆,可以防止板块横向位移使缝隙扩大,拉杆应设置在板厚的1/2处;在缩缝上部设置的槽口,一般应在混凝土浇筑后,并达到一定的抗压强度(碎石混凝土为 6.0~12.0MPa.砾石混凝土为9.0~12.0MPa)时,用切缝机进行切割,或在混凝土浇筑时振人木条。
槽门深度要适中,过浅,则混凝土截面的强度削弱得不够,从而不能保证以后的开裂发生在接缝位置上;过深,则不规则断裂面面积过少,接缝传荷能力降低。
根据经验,槽深—般为板厚的1/4—1/5,槽口宽度根据施工条件,宜尽可能窄些,通常为3~8mm。
水泥混凝土路面结构的组成包括4个部分,路基、垫层、基层及面层。
路基,就是道路最下方的地面,有些地方不平,需要填土或其他材料整平。
有的地方地势低洼,大气候环境就处于潮湿状态,有些地方土质比较松软,上面过车容易产生不均匀的沉降和变形。
垫层,由于上诉路基的种种情形,所以根据不同情况的路基,在上面铺不同特点的垫层。
路基湿度大,设置与路基同宽的排水垫层。
路基属于软土,铺设与路基同宽的半刚性垫层。
垫层最少15公分。
用砂和砂砾做防冻、排水垫层,用参了水泥、石灰等无机结合稳定粒料或土做半刚性垫层。
基层,为了防止由于唧泥产生地板底脱空或错台,控制或减少路基变形引起面层破坏,并改善接缝的传荷能力,做了水泥混凝土基层。
特重交通用贫混凝土、碾压混凝土、沥青混凝土做基层。
重交通用水泥稳定粒料、沥青稳定碎石做基层。
中、轻交通用水泥、石灰粉煤灰稳定粒料、级配粒料做基层。
基层应该比混凝土面层宽,小型机具宽30公分,轨模或摊铺机宽50公分,滑模或摊铺机宽65公分。
基层结构性能、施工或排水要求不同,厚度也不同。
防渗水,在排水基层下设透水底基层,在底基层的顶面铺设沥青封层或防水土工织物,底基层用水泥稳定粒料或密集配粒料做。
碾压混凝土基层设置与混凝土面层相对应的接缝。
面层,目前我国多采用普通混凝土面层。
为了克服混凝土产生的热胀冷缩情况,设置垂直相交的纵向和横向接缝。
纵向接缝根据路面和施工铺筑宽度设置。
横向接缝可以分为横向缩缝、胀缝和横向施工缝,缩缝处加设传力杆,跟构筑物相连的地方设置胀缝。
特重和重交通的面层都设置传力杆,对受挤地方和穿市政管线路段检查井周围,应配置钢筋。
混凝土既是刚性材料,又属于脆性材料。
混凝土面层应该用刻槽、压槽、拉槽或拉毛等方法形成一定的构造深度,来用于抗滑。
巧妇难为无米之炊,在原材料的选择上有哪些要求。
重交通的主干路,水泥用42.5级以上的道路硅酸盐水泥或者硅酸盐水泥、普通硅酸盐水泥。
其他一些道路,可用32.5级以上的矿渣水泥。
水泥混凝土路面接缝分纵向和横向两大类。
纵缝又可分为纵向缩缝和纵向施工缝;横缝又可分为横向缩缝、胀缝和横向施工缝。
①纵向施工缝本工程水泥砼路面为2*4.5m形式,分两幅进行摊铺,中间纵向施工缝采用平缝加Φ14螺纹钢筋拉杆的构造形式,拉杆间距60cm布置,详见设计图中。
纵向施工缝拉杆根据形状可分为直线形方式和“L”形方式两种。
拉杆设置间距通过“间距标尺”设定,并注意在施工过程中根据水泥混凝土稠度变化调节汽锤气压值,一般为(275.8~413.7)kPa[(40~60)PSI],水泥混凝土坍落度越大,气压值应越小。
“L”形拉杆在水泥混凝土硬化后应重新扳直。
②横向缩缝横向缩缝一般非重交通路段采用不设传力杆的假缝形式,重交通公路、路段自由端部及胀缝两侧相邻的各3道横缝,以及涵洞顶部补强段的2道横缝内均采用平缝加传力杆形式。
本项目路面横向缩缝一般采用平缝加传力杆形式,施工应严格按设计及施工规范进行施工。
横向缩缝传力杆在施工过程中必须采用钢筋支架固定。
支架必须具有足够的刚度,并使用直径不小于10mm的钢钎将支架稳固地锚固在基层上。
每只长约4m的钢筋支架至少需要(6~8)根钢钎。
钢钎锚固于基层的深度为(11~16)cm。
横向缩缝一般间距4.5m布置,贯穿整幅路面,横向缩缝不宜采用斜缝,不得不调整板长时,最大板长不宜大于5m,最小板长不宜小于板宽。
③胀缝胀缝一般只在桥涵、通道和其它固定构造物处、路面曲线纵坡变换处或与其他道路相交处等位置上设置。
在临近桥梁、固定构造物处及与其它道路相交处连续设置2条胀缝。
路面胀缝的设置必须符合设计图纸与《公路水泥混凝土路面设计规范》JTG D40-2002中相关规定,同一断面处的胀缝必须贯通。
胀缝的构造采用平缝加传力杆形式。
传力杆使用光面钢筋,为防止锈蚀并使之起隔离作用,钢筋一端2/3范围内涂沥青。
有涂层的端部安装聚丙烯套子,套子长10cm,传力杆插入后顶端留3cm的空间作为面板热胀冷缩余地。
水泥混凝土路面施工方法本文介绍了水泥混凝土路面的施工方法,包括施工工艺和施工工序。
施工工艺包括放样、钢筋绑扎、安装模板、设立拉杆和传力杆、混凝土的拌合与运输、浇筑和振捣、接缝的设置、表面修整、混凝土的养生与填缝。
在放样阶段,需要对基层进行模板安装及摊铺位置的测量放样。
钢筋制作和安装需要注意钢筋的连接接头与钢筋弯曲处的距离不应小于10d,且不宜位于构件的最大弯矩处。
钢筋网采用点焊,钢筋保护层垫块使用绑扎高强度砂浆垫块,垫块数量不少于5个/m2.施工工序包括钢筋制作和安装、模板安装、混凝土拌合、浇筑和振捣、接缝设置、表面修整和混凝土养生与填缝。
在钢筋制作和安装阶段,需要进行试焊,并按规定频率取样进行接头拉、弯性能试验。
钢筋的弯曲、安设、支承及固定、接头的一般要求和绑扎也需要注意。
在混凝土拌合阶段,需要注意混凝土的配合比和搅拌时间,以及混凝土的运输和浇筑。
在接缝设置和表面修整阶段,需要注意接缝的宽度和深度,以及表面的平整度和光滑度。
在混凝土养生与填缝阶段,需要注意混凝土的养生时间和填缝材料的选择。
在混凝土浇筑前,需要使用空压机将模板内的尘土吹干净,并涂刷脱模剂。
经过自检合格后,由质检工程师向现场监理工程师报验,对结构尺寸、钢筋连接、钢筋数量和型号、模板安装和加固等进行现场验收。
只有经过合格检测后,才能进行混凝土浇筑。
在纵向施工缝处设置拉杆,在横向施工缝处设置传力杆。
当模板在路中心处安装好后,将拉杆从预留孔穿入并进行封堵,端部用钢筋支架固定。
在浇筑混凝土时,需要安排专人进行校正,将传力杆的半段浇入混凝土内,另一半涂上防锈漆。
混凝土需要统一拌制,并在运输过程中防止漏浆、漏料和污染路面。
在运输过程中,不得随意耽搁,需要减小颠簸,防止混凝土离析。
车辆起步、停车、倒车和卸料进都需要有专人指挥。
在卸料时,需要将车辆停到位,卸料完毕后,车辆应迅速离开。
在混凝土路面摊铺前,需要检查模板位置、高程、支撑稳定和基层平整润湿,模板内侧面需要涂上脱模剂。
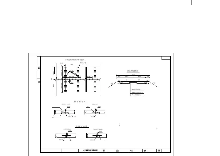
水泥砼路面的接缝构造与布置
水泥混凝土路面的横向接缝
(1)横向接缝
①缩缝:保证板因温度和湿度的降低而收缩时沿该薄弱断面缩裂,从而避免产生不规则的裂缝。
②胀缝:保证板在温度升高时能部分伸张,从而避免产生路面板在热天的拱胀和折断破坏,同时胀缝也能起到缩缝的作用。
③施工缝:因施工不连续,暂时停止施工时要设置施工缝。
常设置在缩缝、胀缝位置处,必须添加传力钢筋,保证纵向整体性。
(2)横缝的构造与设置
①胀缝的构造
胀缝是贯通接缝、缝宽达到20mm左右、虽然设置传力杆,但是由于不断的伸长与收缩,再加上荷载的作用,是水泥混凝土最薄弱的环节。
目前只在结构物位置设置胀逢,设置胀逢的数量与水泥混凝土路面长度没有关系。
②缩缝的构造
(a)假缝型(b)假缝+传力杆(c)企口缝+传力杆
缩缝间距一般4~6m,同板长,根据气温状况、地质水文情况选择。
如:5m×4m的板块,按5m固定间距设置缩缝。
③施工缝的构造
施工缝一般尽量选择在胀缝、缩缝处设置,构造与重交通的缩缝构造(b)相似,或者选用企口缝。
(3)横向接缝的间距按面层类型和厚度选定
①普通混凝土面层一般4-6m,面板的长宽比不宜超过1.30,平面尺寸不宜大于25平方米;
②碾压混凝土或钢纤维混凝土面层一般6-10m ;
③钢筋混凝土面层一般6-15m。
3、水泥混凝土路面的纵向接缝
(1)纵缝的构造与设置
纵缝:平行于行车方向的接缝,用来控制路面板因翘曲应力与荷载应力共同作用下产生不规则的纵向裂缝。
原因:①混凝土摊铺机仅能摊铺一个车道宽度,纵缝做成真缝形式(平头缝)
②混凝土摊铺机全路幅摊铺,摊铺宽度两侧做成真缝;摊铺宽度范围内按照车道宽度设置纵缝,做成假缝或者企口缝;
(2)纵缝的位置
①根据路面设计宽度,按3~4.5m设置,一般等间距。
②一般选择在车道标线处;靠近中央分隔带的内侧车道,路缘带与车道间不另设纵缝;外侧车道,纵缝外移路缘带宽度;
(3)拉杆的设置
①拉杆:指用于纵缝,以保证板块间沿道路横向的联系为主要目的设置的钢筋。
一般采用长度50-70cm、直径18-20mm、间距1.0-1.5m螺纹筋。
②拉杆设置要求:一般纵缝应设拉杆。
(4)纵横缝的布置
①交角:纵缝与横缝一般垂直正交,纵缝两旁的横缝一般成一条直线;在交叉口、匝道位置处,尽量使得纵横缝的夹角为钝角;
②横缝间距:4-6m(缩缝),我国缩缝间距一般5m;
③纵缝间距:3-4.5m,我国车道宽3.25~3.75m;
④趋势:胀缝少;缩缝间距不等,按4、4.5、5、5.5和6m的顺序设置;横缝与纵缝交成80度左右的斜角。