120厚楼板模板施工方案及计算书
- 格式:doc
- 大小:164.00 KB
- 文档页数:19
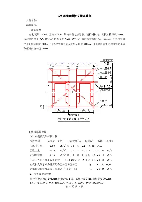
120厚楼面模板支撑计算书工程名称:编制单位:1.计算参数结构板厚120mm,层高5.90m, 结构表面考虑隐蔽;模板材料为:夹板底模厚度18mm;木材弹性模量E=9000N/mm2,抗弯强度f m=13.00N/mm2 ,顺纹抗剪强度f v=1.40N/mm2.门式钢管脚手架间横向间距600mm, 门式钢管脚手架架间纵向间距900mm,门式钢管脚手架顶可调底座调节螺杆伸出长度200mm。
2.楼板底模验算(1)底模及支架荷载计算荷载类型标准值单位计算宽度(m) 板厚(m) 系数设计值①底模自重 0.30 kN/m2× 1.0 × 1.2 = 0.36 kN/m②砼自重 24.00 kN/m3× 1.0 × 0.12 × 1.2 = 3.46 kN/m③钢筋荷载 1.10 kN/m3× 1.0 × 0.12 × 1.2 = 0.16 kN/m④施工人员及施工设备荷载 2.50 kN/m2× 1.0 × 1.4 = 3.50 kN/m底模和支架承载力计算组合①+②+③+④ q1 = 7.47 kN/m底模和龙骨挠度验算计算组合(①+②+③) q2 = 3.97 kN/m(2)楼板底模板验算第一层龙骨间距L=300mm,计算跨数5跨。
底模厚度18mm,板模宽度1000mm;W=bh2 /6=1000×182/6=54000mm3;I=bh3/12=1000×183/12=486000mm4。
1)内力及挠度计算a.①+②+③+④荷载支座弯矩系数K M=-0.105M1=K M q1L2 =-0.105×7.47×3002=-70592N.mm剪力系数K V=0.606V1=K V q1L=0.606×7.47×300=1358Nb.①+②+③荷载支座弯矩系数K M=-0.105M2=K M q2L2 =-0.105×3.97×3002=-37517N.mm跨中弯矩系数K M=0.078M3=K M q2L2 =0.078×3.97×3002=27869N.mm剪力系数K V=0.606V2=K V q2L=0.606×3.97×300=722N挠度系数Kυ=0.644υ2=Kυq2L4/(100EI)=0.644×(3.97/1.2)×3004/(100×9000×486000)=0.04mmc.施工人员及施工设备荷载按2.50kN(按作用在边跨跨中计算)计算荷载P=1.4×2.50=3.50kN ,计算简图如下:跨中弯矩系数K M=0.200M4=K M×PL=0.200×3.50×1000×300=210000N.mm支座弯矩系数K M=-0.100M5=K M×PL=-0.100×3.50×1000×300=-105000N.mm剪力系数K V=0.600V3=K V P=0.600×3.50=2.10kN挠度系数Kυ=1.456υ3=KυPL3/(100EI)=1.456×(3.50/1.4)×1000×3003/(100×9000×486000)=0.22mm 2)抗弯强度验算M1=-70592N.mmM2+M5=-142517N.mmM3+M4=237869N.mm比较M1、M2+M5、M3+M4,取其绝对值大的作为抗弯强度验算的弯矩。
贵阳²佳境天城目录一、工程概况 (2)二、编制依据: (2)三、施工准备 (2)四、材料选用 (2)五、主体模板施工工艺及操作要求 (3)1、柱模板施工 (3)2、墙模板施工 (3)3、楼梯模板 (4)4、梁模板施工 (5)5、楼板模板施工 (6)六、模板的验收 (7)七、模板的拆除 (8)八、质量保证措施及注意事项 (8)九、成品保护 (9)十、文明施工及环保措施 (9)十一、模板施工安全保证措施 (10)附:1.标准层剪力墙模板计算书2.标准层200³500梁模板计算书3.标准层120厚模板楼板计算书贵阳²佳境天城模板专项施工方案一、工程概况1、本工程1#、2#楼占地面积2126㎡,总建筑面积69047.9㎡,地下室建筑面积11481.07㎡,地上建筑面积57566.83㎡。
地下2层,地上33层,总建筑高度(地上)96.6㎡。
1#楼、2#楼及其地下车库设计桩型为ZHJ1、ZHJ2、ZHJ3、ZHJ4、ZHJ5、ZHJ6。
除ZHJ1型桩身混凝土强度为C25外,其余桩身混凝土强度均为C30。
主筋为二级钢直径υ14均匀布置,箍筋υ8@200,加密区为υ8@100,加劲箍为二级钢直径υ14@2000。
1#楼总桩数27根,2#楼总桩数93根。
地下车库人工挖孔桩28根,独立柱基础41根。
2、建筑结构为框支剪力墙结构,一类结构,使用年限50年。
抗震设防烈度六度,设防类别丙类。
建筑防火分类为一类,耐火等级为一级。
场地类别II类。
建筑地基基础设计等级:甲级。
安全等级为2级。
剪力墙结构抗震等级三级,(1~4层底部加强区,抗震等级为三级)。
1#楼±0.000绝对标高1263.3m,2#楼±0.000绝对标高1266.5m。
二、编制依据1、贵阳²佳境天城施工图纸。
2、《模板安装、拆除工程检验批质量验收记录表》的规定。
3、《混凝土结构设计规范》(GB50010-2002)。
板模板(扣件式)计算书计算依据:1、《建筑施工模板安全技术规范》JGJ162-20082、《建筑施工扣件式钢管脚手架安全技术规范》JGJ 130-20113、《混凝土结构设计规范》GB50010-20104、《建筑结构荷载规范》GB 50009-20125、《钢结构设计规范》GB 50017-2003一、工程属性设计简图如下:模板设计平面图模板设计剖面图(楼板长向)模板设计剖面图(楼板宽向)四、面板验算的规定,另据现实,楼板面板应搁置在梁侧模板上,因此本例以简支梁,取1m单位宽度计算。
计算简图如下:W=bh2/6=1000×15×15/6=37500mm3,I=bh3/12=1000×15×15×15/12=281250mm41、强度验算q1=0.9max[1.2(G1k+ (G3k+G2k)×h)+1.4Q1k,1.35(G1k+ (G3k+G2k)×h)+1.4×0.7Q1k]×b=0.9max[1.2×(0.1+(1.1+24)×0.12)+1.4×2.5,1.35×(0.1+(1.1+24)×0.12)+1.4×0.7×2.5] ×1=6.51kN/mq2=0.9×1.2×G1k×b=0.9×1.2×0.1×1=0.11kN/mp=0.9×1.4×Q1K=0.9×1.4×2.5=3.15kNM max=max[q1l2/8,q2l2/8+pl/4]=max[6.51×0.22/8,0.11×0.22/8+3.15×0.2/4]= 0.16kN〃mσ=M max/W=0.16×106/37500=4.21N/mm2≤[f]=15N/mm2满足要求!2、挠度验算q=(G1k+(G3k+G2k)×h)×b=(0.1+(1.1+24)×0.12)×1=3.11kN/mν=5ql 4/(384EI)=5×3.11×2004/(384×10000×281250)=0.02mm ≤[ν]=l/400=200/400=0.5mm 满足要求! 五、小梁验算 小梁类型方木 小梁材料规格(mm) 60×80 小梁抗弯强度设计值[f](N/mm 2)15.44小梁抗剪强度设计值[τ](N/mm 2)1.78小梁弹性模量E(N/mm 2) 9350 小梁截面抵抗矩W(cm 3) 64小梁截面惯性矩I(cm 4) 256因[L/l a ]取整=[8000/900]取整=8,按四等跨连续梁计算,又因小梁较大悬挑长度为200mm ,因此需进行最不利组合,计算简图如下:1、强度验算q 1=0.9max[1.2(G 1k +(G 3k +G 2k )×h)+1.4Q 1k ,1.35(G 1k +(G 3k +G 2k )×h)+1.4×0.7Q 1k ]×b=0.9×max[1.2×(0.3+(1.1+24)×0.12)+1.4×2.5,1.35×(0.3+(1.1+24)×0.12)+1.4×0.7×2.5]×0.2=1.35kN/m因此,q1静=0.9×1.2(G1k+(G3k+G2k)×h)×b=0.9×1.2×(0.3+(1.1+24)×0.12)×0.2=0.72kN/mq1活=0.9×1.4×Q1k×b=0.9×1.4×2.5×0.2=0.63kN/mM1=0.107q1静L2+0.121q1活L2=0.107×0.72×0.92+0.121×0.63×0.92=0.12kN〃mq2=0.9×1.2×G1k×b=0.9×1.2×0.3×0.2=0.06kN/mp=0.9×1.4×Q1k=0.9×1.4×2.5=3.15kNM2=max[0.077q2L2+0.21pL,0.107q2L2+0.181pL]=max[0.077×0.06×0.92+0.21×3.15×0.9,0.107×0.06×0.92+0.181×3.15×0.9]=0.6kN〃mM3=max[q1L12/2,q2L12/2+pL1]=max[1.35×0.22/2,0.06×0.22/2+3.15×0.2]=0.63kN〃mM max=max[M1,M2,M3]=max[0.12,0.6,0.63]=0.63kN〃m σ=M max/W=0.63×106/64000=9.86N/mm2≤[f]=15.44N/mm2满足要求!2、抗剪验算V1=0.607q1静L+0.62q1活L=0.607×0.72×0.9+0.62×0.63×0.9=0.74kNV2=0.607q2L+0.681p=0.607×0.06×0.9+0.681×3.15=2.18kN V3=max[q1L1,q2L1+p]=max[1.35×0.2,0.06×0.2+3.15]=3.16kN V max=max[V1,V2,V3]=max[0.74,2.18,3.16]=3.16kN τmax=3V max/(2bh0)=3×3.16×1000/(2×80×60)=0.99N/mm2≤[τ]=1.78N/mm2满足要求!3、挠度验算q=(G1k+(G3k+G2k)×h)×b=(0.3+(24+1.1)×0.12)×0.2=0.66kN/m 跨中νmax=0.632qL4/(100EI)=0.632×0.66×9004/(100×9350×2560000)=0.11mm≤[ν]=l/400=900/400=2.25mm悬臂端νmax=qL4/(8EI)=0.66×2004/(8×9350×2560000)=0.01mm ≤[ν]=l1/400=200/400=0.5mm满足要求!六、主梁验算Q1k=1.5kN/m2q1=0.9max[1.2(G1k+ (G3k+G2k)×h)+1.4Q1k,1.35(G1k+(G3k+G2k)×h)+1.4×0.7Q1k]×b=0.9max[1.2×(0.5+(1.1+24)×0.12)+1.4×1.5,1.35×(0.5+(1.1+24)×0.12)+1.4×0.7×1.5]×0.2=1.14kN/mq1静=0.9×1.2(G1k+ (G3k+G2k)×h)×b=0.9×1.2×(0.5+(1.1+24)×0.12)×0.2=0.76kN/mq1活=0.9×1.4×Q1k×b=0.9×1.4×1.5×0.2=0.38kN/mq2=(G1k+ (G3k+G2k)×h)×b=(0.5+(1.1+24)×0.12)×0.2=0.7kN/m承载能力极限状态按四跨连续梁,R max=(1.143q1静+1.223q1活)L=1.143×0.76×0.9+1.223×0.38×0.9=1.2kN按悬臂梁,R1=q1l=1.14×0.2=0.23kNR=max[R max,R1]=1.2kN;正常使用极限状态按四跨连续梁,R max=1.143q2L=1.143×0.7×0.9=0.72kN 按悬臂梁,R1=q2l=0.7×0.2=0.14kNR=max[R max,R1]=0.72kN;2、抗弯验算计算简图如下:主梁弯矩图(kN〃m)M max=0.45kN〃mσ=M max/W=0.45×106/5080=88.69N/mm2≤[f]=205N/mm2满足要求!3、抗剪验算主梁剪力图(kN)V max=2.9kNτmax=2V max/A=2×2.9×1000/489=11.85N/mm2≤[τ]=125N/mm2 满足要求!4、挠度验算主梁变形图(mm)νmax=0.37mm跨中νmax=0.37mm≤[ν]=900/400=2.25mm悬挑段νmax=0.1mm≤[ν]=200/400=0.5mm满足要求!七、立柱验算立杆稳定性计算依据《建筑施工扣件式钢管脚手架安全技术规范》JGJ130-2011剪刀撑设置加强型立杆顶部步距h d(mm) 1500 立杆伸出顶层水平杆中心线至支撑点的长度a(mm)200顶部立杆计算长度系数μ1 1.386 非顶部立杆计算长度系数μ21.755钢管类型Ф48×3 立柱截面面积A(mm2) 424立柱截面回转半径i(mm)15.9 立柱截面抵抗矩W(cm3) 4.49抗压强度设计值[f](N/mm2)2051、长细比验算顶部立杆段:l01=kμ1(h d+2a)=1×1.386×(1500+2×200)=2633.4mm 非顶部立杆段:l02=kμ2h =1×1.755×1800=3159mmλ=l0/i=3159/15.9=198.68≤[λ]=210长细比满足要求!2、立柱稳定性验算顶部立杆段:l01=kμ1(h d+2a)=1.155×1.386×(1500+2×200)=3041.577mmλ1=l01/i=3041.577/15.9=191.294,查表得,φ1=0.197 M w=0.92×1.4ωk l a h2/10=0.92×1.4×0.18×0.9×1.82/10=0.06kN〃mN w=0.9[1.2ΣN Gik+0.9×1.4Σ(N Qik+M w/l b)]=0.9×[1.2×(0.5+(24+1.1)×0.12)+0.9×1.4×1]×0.9×0.9+0.92×1.4×0.06/0.9=4.07kNf= N w/(φA)+ M w/W=4065.83/(0.2×424)+0.06×106/4490=61.93N/mm2≤[f]=205N/mm2满足要求!非顶部立杆段:l02=kμ2h =1.155×1.755×1800=3648.645mm λ2=l02/i=3648.645/15.9=229.475,查表得,φ2=0.139 非顶部立杆段:l02=kμ2h =1.155×1.755×1800=3648.645mm λ2=l02/i=3648.645/15.9=229.475,查表得,φ2=0.139 M w=0.92×1.4ωk l a h2/10=0.92×1.4×0.18×0.9×1.82/10=0.06kN〃mN w=0.9[1.2ΣN Gik+0.9×1.4Σ(N Qik+M w/l b)]=0.9×[1.2×(0.75+(24+1.1)×0.12)+0.9×1.4×1]×0.9×0.9+0.92×1.4×0.06/0.9=4.28kNf= N w/(φA)+ M w/W=4284.53/(0.14×424)+0.06×106/4490=85.95N/mm2≤[f]=205N/mm2满足要求!八、可调托座验算满足要求!九、立柱地基基础验算f 42.85kPa≤f ak=70kPa满足要求!。
目录一、编制依据............................................................................................................................................... - 1 -二、工程概况............................................................................................................................................... - 1 -三、模板方案选择 ..................................................................................................................................... - 1 -4 模板安装................................................................................................................................................... - 2 -4.1剪力墙模板.................................................................................................................................... - 2 -4.2梁、板模板.................................................................................................................................... - 6 -4.3电梯井筒内模............................................................................................................................. - 10 -4.4楼梯模板...................................................................................................................................... - 11 -五、模板拆除............................................................................................................................................ - 11 -六、模板技术措施 .................................................................................................................................. - 12 -6.1进场模板质量标准.................................................................................................................... - 12 -6.2模板安装质量要求.................................................................................................................... - 13 -6.3其他注意事项............................................................................................................................. - 15 -6.4脱模剂及模板堆放、维修...................................................................................................... - 16 -七、安全、环保文明施工措施............................................................................................................ - 16 -一、编制依据《建筑结构荷载规范》GB50009-2012中国建筑工业出版社;《混凝土结构设计规范》GB50010-2010中国建筑工业出版社;《建筑施工计算手册》江正荣著中国建筑工业出版社;《建筑施工手册》第四版中国建筑工业出版社;《建筑施工扣件式钢管脚手架安全技术规范》JGJ130-2011中国建筑工业出版社;《钢结构设计规范》GB 50017-2003中国建筑工业出版社;《建筑施工模板安全技术规程》JGJ162-2008;二、工程概况工程名称:新安县金贸大厦工程地点:新安县北京路与涧河路交叉口建设单位:河南豫熹房地产开发有限公司设计单位:河南国防工业设计研究院有限公司监理单位:河南华科工程技术有限公司施工范围:土建、水、暖、电气、通风。
6#研发中心超高模板支撑专项施工方案一、工程概况:本工程为框架结构,层高十层,建筑面积15653。
98平方米,建筑高度42.45米,层高4.2米,办公大堂上空层高12.6米.本工程高支模位置为:(2—A)∽(2-B)/1-20轴为门厅及办公大堂,由首层地面中空至屋面,建筑高度12.6米,屋面为120厚现浇板。
其结构梁截面为400X1200、450X1500、500X1500、500X1700、300X900、300X800、350X800。
现分别对500X1700、350X1000梁模板及120厚板模板进行验算,其中400X1200、450X1500、500X1500梁模板按照500X1700模板进行施工;300X800、300X900、350X800按照350X1000模板进行施工。
二、编制依据:《建筑施工门式钢管脚手架安全技术规范》JGJ 128—2000;《建筑施工模板安全技术规范》(JGJ162—2008);《木结构设计规范》GB50005—2003;《混凝土结构工程施工质量验收规范》(GB50204-2002)《建筑施工手册》(第三版)中国建筑工业出版社;《建筑施工工艺标准》中国建筑工业出版社;《6#研发中心建筑结构施工图》;三、施工准备:(一)材料根据现有实际情况选择高支模施工的使用材料如下:楼面模板、梁侧模和底模模板采用18mm厚夹板;梁底、侧模板的竖直枋木采用80mm×80mm枋木;梁底托梁采用80mm×80mm枋木;楼面模板底采用80mm×80mm枋木;梁、楼面支顶采用3.0厚φ48钢管脚手架、可调式U型上托盘和可调式或固定底座;剪刀撑、纵横水平拉杆采用3.0厚φ48钢管。
钢材采用Q235。
(二)施工条件1、模板涂刷脱模剂,并分规格堆放,根据图纸要求,放好轴线和模板边线,定好水平控制标高。
2、柱混凝土浇筑完毕。
3、根据模板方案、图纸要求和工艺标准,向班组进行安全、技术交底.4、钢管支撑地基应平整夯实,并满足承载力要求,应有可靠的排水措施,防止积水浸泡地基。
110厚现浇混凝土楼板扣件钢管楼板模板支架计算书支架的计算参照《建筑施工扣件式钢管脚手架安全技术规范》(JGJ130-2001)、《钢管扣件水平模板的支撑系统安全技术规程》(DG/TJ08-016-2004 J10374-2004)。
一、计算参数楼板长边为4.200米,短边为3.500米。
模板支架搭设高度为2.900米,采用的钢管类型为Φ48×3.5。
脚手架搭设尺寸为:立杆的纵距 b=0.850米,横距 l=0.850米,步距 h=1.800米。
板底横向钢管距离0.850米,板底支撑方式和搭设简图如下图。
图楼板支撑架立面简图楼板面板采用胶合板,板厚18.000mm板底支撑采用木方50.000mm×100.000mm,布置间距为400.000mm二、模板计算1、模板面板计算模板面板的按照三跨连续梁计算。
静荷载标准值 q1 =2.815kN/m活荷载标准值 q2 =2.550kN/m面板的截面惯性矩I和截面抵抗矩W分别为:W =45900.000mm3;I =413100.000mm4;(1)抗弯强度计算f = M / W < [f]其中 f ——面板的抗弯强度计算值(N/mm2);M ——面板的最大弯距(N.mm);W ——面板的净截面抵抗矩;[f] ——面板的抗弯强度设计值,取15.000N/mm2;M = 0.100ql2其中 q ——荷载设计值(kN/m);经计算得到 M =0.117kN.m经计算得到面板抗弯强度计算值 f =117000.300/45900.000=2.549N/mm2面板的抗弯强度验算 f≤[f],满足要求!(2)抗剪计算 [可以不计算]T = 3Q/2bh < [T]其中最大剪力 Q =1.751kN截面抗剪强度计算值 T =0.172N/mm2截面抗剪强度设计值 [T] =1.400N/mm2抗剪强度验算 T≤[T],满足要求!(3)挠度计算v = 0.677ql4 / 100EI < [v] = 400.000/150面板最大挠度计算值 v =0.389mm面板的最大挠度小于等于400.000/150,满足要求!2、模板支撑木方的计算1).荷载的计算静荷载 q1 =0.30×0.40+25.10×120.00/1000×0.40=1.325kN/m活荷载计算施工荷载标准值+振捣混凝土时产生的荷载(kN/m):活荷载 q2 =2.00×0.40+1.00×0.40=1.200kN/m2).木方的计算按照三跨连续梁计算,最大弯矩考虑为静荷载与活荷载的计算值最不利分配的弯矩和。
一层架空层施工方案
1、选取有实力的预制板厂家,根据现场图纸尺寸定制预制板规格
(120mm厚),预制板夹层及支撑砌体与主体剪力墙全部脱开。
2、卫生间、厨房、水电井及预制板不易施工处为现浇板,预制板
房间及无防水要求标高为-0∙080m,有防水要求的卫生间标高为-
0.150m,架空层楼地面做3cm的水泥砂浆楼面。
3、预制板和现浇板支撑墙体布置原则是:能借用房间隔墙则用,
不能用则加砌200mm厚支撑墙,水平系梁截面为墙厚*180,配筋4C10,箍筋A6@200,混凝土强度C20;墙长超过2倍层高和8m时,在墙中设置构造柱,构造柱配筋4C10、A6@200,构造柱平面布置同标准层。
4、现浇板板厚为120mm,配筋C8@200双层双向配置。
预制板施工
严格按照要求及时灌封,其底缝宽度不小于30mm,并进行吊缝处理,预制板间隙设置为30mm,板缝采用C20细石混凝土灌缝,板缝超过50mm按照现浇板处理。
5、砌体:水泥砂浆为MlO,砌体材料要求同标准层。
6、架空层中设置40.Omm厚半硬质矿(岩)棉。
楼板模板计算附件:计算书1.1 楼板模板计算楼板厚度1600mm和120mm,模板板面采用15mm高强度层板,次龙骨采用50*100mm,E=104N/mm2,I=bh3/12=50*1003/12=4.16*104mm4方木主龙骨采用100*100mm方木。
(1)荷载计算模板及支架自重标准值:0.3KN/m2混凝土标准值:24KN/m2钢筋自重标准值: 1.1KN/m2施工人员及设备荷载标准值:2.52楼板按120mm厚算荷载标准值:F1=0.3+24*0.12+1.1+2.5=6.3KN荷载标准值:F2=(0.3+24*0.1+1.1)*1.2+2.5*1.4=6.78KN楼板按160mm厚算荷载标准值:F3=0.3+24*0.16+1.1+2.5=7.74KN荷载标准值:F4=(0.3+24*0.16+1.1)*1.2+2.5*1.4=9.79KN (2)计算次龙骨间距:新浇筑的混凝土均匀作用在胶合板上,单位宽度的面板可以视为梁,次龙骨作作为梁支点按三跨连续考虑,梁宽度250mm 1)板厚按160mm算则最大弯距:M max=0.1q12l12最大挠度:U max=0.667q12l14/(100EI)其中线荷载设计值:q1= F4*0.2=9.79*0.2=1.96KN/m按面板的抗弯承载力要求:M max=0.1q1l12=[f w w]=1/6f w bh20.1*2.48*l12=1/6f w bh2l1=[(1/6*30*200*252)/(0.1*1.96)]0.5=1764.74按面板的刚度要求,最大变形值为模板结构的1/250U max=0.677q2l14/(100EI)=l1/250l1′=[(100*104*4.16*104)/(1.96*0.677*250)]1/3=438mm2)板厚按120mm算则最大弯距:M max=0.1q12l12最大挠度:U max=0.667q22l24/(100EI)其中线荷载设计值:q2=F2*0.2=6.78*0.2=1.356KN/m按面板的抗弯承载力要求:M max=0.1q2l22=[f w w]=1/6f w bh21.1*1.356*l22=1/6f w bh2l2=[(1/6*30*250*102)/(0.1*1.356)]0.5=339按面板的刚度要求,最大变形值为模板结构的1/250U max=0.677q2l24/(100EI)=l2/250L2′=[(100*104*4.16*104)/(1.356*0.677*250)]1/3=634mm取按抗弯承载力,刚度要求计算的小值,l1′=438mm,施工次龙骨间距取200mm<l1′满足要求。
(120mm厚)扣件式钢管支架楼板模板安全计算书一、计算依据1、《建筑施工扣件式钢管脚手架安全技术规范》JGJ 130-20112、《混凝土结构设计规范》GB50010-20103、《建筑结构荷载规范》GB 50009-20124、《钢结构设计规范》GB 50017-20035、《建筑施工临时支撑结构技术规范》JGJ300-2013简图:(图1)平面图(图2)纵向剖面图1(图3)横向剖面图2三、面板验算根据规范规定面板可按简支跨计算,根据施工情况一般楼板面板均搁置在梁侧模板上,无悬挑端,故可按简支跨一种情况进行计算,取b=1m单位面板宽度为计算单元。
W=bh2/6=1000×182/6=54000mm3, I=bh3/12=1000×183/12=486000mm41、强度验算A.当可变荷载Q1k为均布荷载时:由可变荷载控制的组合:q1=1.2[G1k+(G2k+G3k)h]b+1.4Q1kb=1.2×(0.3+(24+1.1)×120/1000)×1+1.4×2.5×1=7.474kN/m由永久荷载控制的组合:q2=1.35[G1k+(G2k+G3k)h]b+1.4×0.7Q1kb=1.35×(0.3+(24+1.1)×120/1000)×1+1.4×0.7×2.5×1=6.921kN/m取最不利组合得:q=max[q1,q2]= max(7.474,6.921)=7.474kN/m(图4)可变荷载控制的受力简图1B.当可变荷载Q1k为集中荷载时:由可变荷载控制的组合:q3=1.2[G1k+(G2k+G3k)h]b=1.2×(0.3+(24+1.1)×120/1000)×1=3.974kN/m p1=1.4Q1k=1.4×2.5=3.5kN(图5)可变荷载控制的受力简图2由永久荷载控制的组合:q4=1.35[G1k+(G2k+G3k)h]b=1.35×(0.3+(24+1.1)×120/1000)×1=4.471kN/m p2=1.4×0.7Q1k=1.4×0.7×2.5=2.45kN取最不利组合得:(图6)永久荷载控制的受力简图(图7)面板弯矩图Mmax= 0.142kN·mσ=Mmax/W=0.142×106/54000=2.638N/mm2≤[f]=25N/mm2满足要求2、挠度验算qk=(G1k+(G3k+G2k)×h)×b=(0.3+(24+1.1)×120/1000)×1=3.312kN/m(图8)正常使用极限状态下的受力简图(图9)挠度图ν=0.006mm≤[ν]=150/400=0.375mm满足要求四、次梁验算当可变荷载Q1k为均布荷载时:计算简图:(图10)可变荷载控制的受力简图1由可变荷载控制的组合:q1=1.2[G1k+(G2k+G3k)h]a+1.4Q1ka=1.2×(0.3+(24+1.1)×120/1000)×150/1000+1.4×2.5×150/1000=1.121kN/m由永久荷载控制的组合:q2=1.35[G1k+(G2k+G3k)h]a+1.4×0.7Q1ka=1.35×(0.3+(24+1.1)×120/1000)×150/1000+1.4×0.7×2.5×150/1000=1.038k N/m取最不利组合得:q=max[q1,q2]= max(1.121,1.038)=1.121kN/m当可变荷载Q1k为集中荷载时:由可变荷载控制的组合:q3=1.2[G1k+(G2k+G3k)h]a=1.2×(0.3+(24+1.1)×120/1000)×150/1000=0.596kN/ mp1=1.4Q1k=1.4×2.5=3.5kN(图11)可变荷载控制的受力简图2由永久荷载控制的组合:q4=1.35[G1k+(G2k+G3k)h]a=1.352×(0.3+(24+1.1)×120/1000)×150/1000=0.672 kN/mp2=1.4×0.7Q1k=1.4×0.7×2.5=2.45kN(图12)永久荷载控制的受力简图1、强度验算(图13)次梁弯矩图(kN·m)Mmax= 0.544k N·mσ=Mmax/W=0.544×106/(83.333×103)=6.529N/mm2≤[f]=13N/mm2满足要求2、抗剪验算(图14)次梁剪力图(kN)Vmax= 3.589kNτmax=VmaxS/(Ib0)=3.589×103×62.5×103/(416.667×104×5×10)=1.077N/mm2≤[τ]= 1.4N/mm2满足要求3、挠度验算挠度验算荷载统计,qk=(G1k+(G3k+G2k)×h)×a=(0.3+(24+1.1)×120/1000)×150/1000=0.497kN/m(图15)正常使用极限状态下的受力简图(图16)次梁变形图(mm)νmax=0.117mm≤[ν]=1.1×1000/400=2.75 mm满足要求五、主梁验算在施工过程中使用的木方一般为4m长,型钢的主梁也不超过4m,简化为四跨连续梁计算,即能满足施工安全需要,也符合工程实际的情况。
120mm厚板模板计算书(盘扣式)计算依据:1、《建筑施工模板安全技术规范》JGJ162-20082、《建筑施工承插盘扣式钢管支架安全技术规范》JGJ 231-20103、《混凝土结构设计规范》GB50010-20104、《建筑结构荷载规范》GB 50009-20125、《钢结构设计规范》GB 50017-2003一、工程属性二、荷载设计三、模板体系设计平面图纵向剖面图横向剖面图四、面板验算按四等跨梁,取1m单位宽度计算。
计算简图如下:W=bt2/6=1000×122/6=24000mm4I=bt3/12=1000×123/12=144000mm3承载能力极限状态q1=γG b(G1k+(G2k+G3k)h0)+γQ bQ1k=1.2×1×(0.1+(24+1.1) ×0.12)+1.4×1×3=7.934kN/m q1静=γG b(G1k+(G2k+G3k)h0)=1.2×1×(0.1+(24+1.1) ×0.12)=3.734kN/mq1活=γQ bQ1k=1.4×1×3=4.2kN/m正常使用极限状态q=γG b(G1k+(G2k+G3k)h0)+γQ bQ1k=1×1×(0.1+(24+1.1) ×0.12)+1×1×3=6.112kN/m1、强度验算M max=0.107q1静l2+0.121q1活l2=0.107×3.734×0.22+0.121×3.734×0.22=0.036kN·mσ=M max/W=0.036×106/(24000×103)=1.5N/mm2≤[f]=29N/mm2满足要求!2、挠度验算νmax=0.632ql4/(100EI)=0.632×6.112×2004/(100×9000×144000)=0.048mmνmax=0.048 mm≤min{200/150,10}=1.333mm满足要求!五、小梁验算承载能力极限状态q1=γG l(G1k+(G2k+G3k)h0)+γQ lQ1k=1.2×0.2×(0.3+(24+1.1) ×0.12)+1.4×0.2×3=1.635kN/m 正常使用极限状态q=γG l(G1k+(G2k+G3k)h0)+γQ lQ1k=1×0.2×(0.3+(24+1.1) ×0.12)+1×0.2×3=1.262kN/m按四等跨梁连续梁计算,又因小梁较大悬挑长度为100mm,因此需进行最不利组合,计算简图如下:1、强度验算σ=M max/W=0.251×106/64000=3.922N/mm2≤[f]=12.87N/mm2满足要求!2、抗剪验算V max=1.186kNτmax=3V max/(2bh0) =3×1.186×1000/(2×60×80)=0.371N/mm2≤[τ]=1.386N/mm2 满足要求!3、挠度验算νmax=0.763mm≤[ν]=min[l a/150,10]=min[1200/150,10]=8mm满足要求!4、支座反力承载能力极限状态R1=0.946kNR2=2.237kNR3=1.833kNR4=2.237kNR5=0.946kN正常使用极限状态R1ˊ=0.727kNR2ˊ=1.719kNR3ˊ=1.409kNR4ˊ=1.719kNR5ˊ=0.727kN六、主梁验算取上面计算中的小梁最大支座反力承载能力极限状态R=max[R1,R2,R3,R4,R5]/2=max[0.946,2.237,1.833,2.237,0.946]/2=1.1185kN 正常使用极限状态Rˊ=max[R1ˊ,R2ˊ,R3ˊ,R4ˊ,R5ˊ]/2=max[0.727,1.719,1.409,1.719,0.727]/2=0.8595kN 计算简图如下:1、抗弯验算σ=M max/W=0.843×106/4490=187.751N/mm2≤[f]=205N/mm2 满足要求!2、抗剪验算V max=3.965kNτmax=2V max/A=2×3.965×1000/424=18.703N/mm2≤[τ]=125N/mm2 满足要求!3、挠度验算νmax=2.35mm≤[ν]=min[l a/150,10]=min[1200/150,10] =8mm 满足要求!七、立柱验算1、长细比验算l01=hˊ+2ka=1500+2×0.7×330=1962mml02=ηh=1.2×1500=1800mm取两值中的大值l0=1962mmλ=l0/i=1962/15.9=123.396≤[λ]=150长细比满足要求!2、立柱稳定性验算不考虑风荷载顶部立杆段:λ1=l01/i=1962/15.9=123.396查表得,φ=0.332N1=[γG(G1k+(G2k+G3k)h0)+γQ Q1k]l a l b=[1.2×(0.5+(24+1.1)×0.12)+1.4×3]×1.2×1.2=12.117kN f=N1/(φ1A)=12.117×103/(0.332×450)=81.104N/mm2≤[σ]=300N/mm2满足要求!非顶部立杆段:λ2=l02/i=1800/15.9=113.208查表得,φ=0.386N2=[γG(G1k+(G2k+G3k)h0)+γQ Q1k]l a l b=[1.2×(1.05+(24+1.1)×0.12)+1.4×3]×1.2×1.2=13.067kN f=N2/(φ2A)=13.067×103/(0.386×450)=75.227N/mm2≤[σ]=300N/mm2满足要求!考虑风荷载M w=ψc×γQωk l a h2/10=0.9×1.4×0.24×1.2×1.52/10=0.068kN·m顶部立杆段:N1w=[γG(G1k+(G2k+G3k)h0)+ψc×γQQ1k]l a l b+ψc×γQ M w/l b=[1.2×(0.5+(24+1.1)×0.12)+0.9×1.4×3]×1.2×1.2+0.9×1.4×0.068/1.2=11. 583kNf=N1w/(φ1A)+M w/W=11.583×103/(0.332×450)+0.068×106/4730=91.906N/mm2≤[σ]=300N/m m2满足要求!非顶部立杆段:N2w=[γG(G1k+(G2k+G3k)h0)+ψc×γQQ1k]l a l b+ψc×γQ M w/l b=[1.2×(1.05+(24+1.1)×0.12)+0.9×1.4×3]×1.2×1.2+0.9×1.4×0.068/1.2=1 2.534kNf=N2w/(φ2A)+M w/W=12.534×103/(0.386×450)+0.068×106/4730=86.535N/mm2≤[σ]=300N/m m2满足要求!八、可调托座验算按上节计算可知,可调托座受力N =12.117kN≤[N]=40kN满足要求!九、抗倾覆验算混凝土浇筑前,倾覆力矩主要由风荷载产生,抗倾覆力矩主要由模板及支架自重产生M T=ψc×γQ(ωk L a Hh2+Q3k L a h1)=0.9×1.4×(0.2×39×5.5×6+0.55×39×4)=432.432kN.mM R=γG G1k L a L b2/2=1.35×1.05×39×392/2=42042.341kN.mM T=432.432kN.m≤M R=42042.341kN.m满足要求!混凝土浇筑时,倾覆力矩主要由泵送、倾倒混凝土等因素产生的水平荷载产生,抗倾覆力矩主要由钢筋、混凝土、模板及支架自重产生M T=ψc×γQ(Q2k L a H+Q3k L a h1)=0.9×1.4×(0.25×39×5.5+0.55×39×4)=175.676kN.mM R=γG[G1k+(G2k+G3k)h0]L a L b2/2=1.35×[1.05+(24+1.1)×0.12]×39×392/2=162643.8kN.m M T=175.676kN.m≤M R=162643.8kN.m满足要求!十、立杆基础底面的平均压力应满足下式的要求:Pk = Nk/A ≤fg式中:Pk ——立杆基础底面处的平均压力标准值(kPa);Nk ——上部结构传至立杆基础顶面的轴向力标准值(kN);A——基础底面面积(m2);fg——地基承载力特征值(kPa),应按国家现行标准《建筑地基基础设计规范》GB50007规定采用。
第1篇一、工程概况本工程为某住宅楼混凝土楼板施工,楼板采用现浇混凝土结构,楼板厚度为120mm,混凝土强度等级为C25。
楼板施工主要包括模板工程、钢筋工程、混凝土浇筑及养护等工序。
二、施工准备1. 技术准备:熟悉施工图纸,了解工程结构及施工要求,掌握混凝土施工规范及验收标准。
2. 材料准备:准备好楼板施工所需的各种材料,如模板、钢筋、混凝土、水泥、砂、石子等。
3. 机械设备准备:准备好混凝土搅拌机、泵送设备、振捣器、钢筋加工设备等。
4. 人员准备:组织施工队伍,明确各工种人员职责,确保施工质量。
三、施工方法及措施1. 模板工程(1)模板材料:选用钢模板,确保模板平整、牢固、易于拆除。
(2)模板安装:按照施工图纸要求,先进行楼板周边模板的安装,然后进行楼板中间模板的安装。
模板安装时,注意模板的接缝严密,防止漏浆。
(3)模板加固:对模板进行加固,确保模板在混凝土浇筑过程中不变形、不漏浆。
2. 钢筋工程(1)钢筋加工:按照施工图纸要求,加工钢筋,确保钢筋长度、直径、弯曲角度等符合要求。
(2)钢筋绑扎:按照施工图纸及规范要求,进行钢筋绑扎,确保钢筋间距、绑扎质量符合要求。
(3)钢筋保护层:在钢筋绑扎完成后,按照设计要求设置钢筋保护层,确保保护层厚度符合规范要求。
3. 混凝土浇筑(1)混凝土搅拌:按照配合比要求,搅拌混凝土,确保混凝土强度、坍落度等指标符合要求。
(2)混凝土浇筑:采用泵送设备进行混凝土浇筑,确保混凝土均匀、密实。
(3)混凝土振捣:在混凝土浇筑过程中,及时进行振捣,排除气泡,确保混凝土密实。
4. 养护(1)混凝土浇筑完成后,及时进行覆盖养护,防止混凝土水分蒸发过快。
(2)养护期间,注意保持混凝土表面湿润,避免出现裂缝。
四、质量控制措施1. 模板工程:确保模板安装牢固、接缝严密,防止漏浆。
2. 钢筋工程:确保钢筋加工、绑扎质量符合要求,保护层厚度符合规范。
3. 混凝土浇筑:确保混凝土配合比准确,浇筑均匀、密实。
板模板工程施工方案计算书工程名称:演示工程施工单位:某建设集团编制人:张## 日期:目录一、编制依据 (1)二、工程参数 (1)三、模板面板验算 (2)四、次楞方木验算 (3)五、主楞验算 (4)六、扣件抗滑移验算 (6)七、扣件式钢管立柱计算 (6)八、立杆底地基承载力验算 (8)一、编制依据1、工程施工图纸及现场概况2、《建筑施工模板安全技术规范》(JGJ162-2008)3、《混凝土结构工程施工质量验收规范》(GB50204-2002)4、《建筑施工手册》第四版(缩印本)5、《建筑施工现场管理标准》DBJ14-033-20056、《建筑施工扣件式钢管脚手架安全技术规范》(JGJ130-2001)。
7、《建筑结构荷载规范》(GB50009-2001)2006年版8、《混凝土模板用胶合板GB/T17656-2008》9、《冷弯薄壁型钢结构技术规范》(GB 50018-2002)10、《木结构设计规范》(GB50005-2003)二、工程参数三、模板面板验算面板采用木胶合板,厚度为12mm ,取单位宽度1m的面板作为计算单元。
面板的截面抵抗矩W= 1000×12×12/6=24000mm3;截面惯性矩I= 1000×12×12×12/12=144000mm4;(一)强度验算1、面板按三跨连续梁计算,其计算跨度取支承面板的次楞间距,L=0.3m。
2、荷载计算取均布荷载或集中荷载两种作用效应考虑,计算结果取其大值。
均布线荷载设计值为:q1=0.9×[1.2×(24×0.1+1.1×0.1+0.3)+1.4×2.5]×1=6.185KN/mq1=0.9×[1.35×(24×0.1+1.1×0.1+0.3)+1.4×0.7×2.5]×1= 5.619KN/m根据以上两者比较应取q1= 6.185N/m作为设计依据。
模板工程施工方案(有计算式)模板工程施工方案本工程采纳木模板材质:支撑立柱材质采纳钢管支撑,不得采纳严重锈蚀、曲折、压扁或裂纹的钢管,禁止使用木撑桐。
一、施工方案工艺1、楼底板、剪力墙采纳木模板,主梁底板采纳 50mm 厚的木模板。
主梁和楼底板的钢管支撑分开搭设,主梁支撑和底模晚拆,次梁和楼板模板早拆。
根据当地均匀气温条件,混凝土浇捣后 5 天,强度可达到设计强度的 40%,经强度验算,楼板模板和主梁侧模在混凝土浇捣完成 5 天后即可拆掉,主梁底板和支撑待混凝土强度达到设计强度后再拆掉。
2、在模板安装前,一定按木匠翻样,依据图纸尺寸,画好翻样图,操作人员一定按翻样图进行拼装、安装。
3、关于框架柱模板的安装,先在绑扎好的柱钢筋下脚,柱模以单只校订,而后拉线将纵向和横向柱模用吊线锤校订,并支撑好梁底板。
4、梁底板采纳木模板,厚 50mm,采纳单排钢管支撑,基层支撑前,地成要分层平坦夯实,支撑下脚用 50mm 厚垫木纵、横方垫实,支模次序先柱后梁,楼层梁底模板,按实质开间设置支撑,间距不大于 1.0m,水平撑和剪力撑设置间距不大于 1.8m。
5、楼层底模板,依据图纸尺寸,用胶木板拼制,用钢管支撑,间距控制在600mm 范围内。
三、 xx 支撑系统的计算3.1 设计荷载3.1.1 模板及支撑自重: 1.0KN/M2。
3.1.2 混凝土自重:楼板:(厚&=10cm), 2.4 KN/M2,xx:2.7 KN/M2。
模板工程施工方案(有计算式)3.1.3 钢筋自重:板: 0.1 KN/M2,xx:0.17 KN/M2。
荷载分项系数 1.4,静载分项系数 1.2,以上荷载折合成均布荷载设计值q=7.56 KN/M2。
3.2 支撑验算梁板支撑立柱间距为 1.0m,每隔 1.8m 高设一纵横水平拉杆。
抗压强度设计值fc=205N/m2,展转半径 I=1.58cm.3.3 楼板 xx 验算板厚δ=10cm,拆模时混凝土强度fcm=6.7N/mm2·fc==6N/mm2·E=2.0×10N/ mm2。
高支模施工方案板模板(扣件钢管架)计算书品茗软件大厦工程;工程建设地点:杭州市文二路教工路口;属于结构;地上0层;地下0层;建筑高度:0m;标准层层高:0m ;总建筑面积:0平方米;总工期:0天。
本工程由某某房开公司投资建设,某某设计院设计,某某勘察单位地质勘察,某某监理公司监理,某某施工单位组织施工;由章某某担任项目经理,李某某担任技术负责人。
模板支架的计算依据《建筑施工扣件式钢管脚手架安全技术规范》(JGJ130-2001)、《混凝土结构设计规范》GB50010-2002、《建筑结构荷载规范》(GB 50009-2001)、《钢结构设计规范》(GB 50017-2003)等规范编制。
一、参数信息1.模板支架参数横向间距或排距(m):1.20;纵距(m):1.20;步距(m):1.50;立杆上端伸出至模板支撑点长度(m):0.10;模板支架搭设高度(m):4.00;采用的钢管(mm):Φ48×3.5 ;板底支撑连接方式:方木支撑;立杆承重连接方式:可调托座;2.荷载参数模板与木板自重(kN/m2):0.500;混凝土与钢筋自重(kN/m3):25.500;施工均布荷载标准值(kN/m2):1.000;3.楼板参数楼板的计算厚度(mm):120.00;4.材料参数面板采用胶合面板,厚度为18mm;板底支撑采用方木;面板弹性模量E(N/mm2):9500;面板抗弯强度设计值(N/mm2):13;木方弹性模量E(N/mm2):9000.000;木方抗弯强度设计值(N/mm2):13.000;木方抗剪强度设计值(N/mm2):1.400;木方的间隔距离(mm):300.000;木方的截面宽度(mm):60.00;木方的截面高度(mm):80.00;托梁材料为:木方: 50×100mm;图2 楼板支撑架荷载计算单元二、模板面板计算模板面板为受弯构件,按三跨连续梁对面板进行验算其抗弯强度和刚度模板面板的截面惯性矩I和截面抵抗矩W分别为:W = 120×1.82/6 = 64.8 cm3;I = 120×1.83/12 = 58.32 cm4;模板面板的按照三跨连续梁计算。
承插型盘扣式楼板模板支架计算书依据规:《建筑施工承插型盘扣式钢管支架安全技术规程》JGJ231-2010《建筑施工模板安全技术规》JGJ 162-2008《建筑结构荷载规》GB50009-2012《钢结构设计规》GB50017-2003《混凝土结构设计规》GB50010-2010《建筑地基基础设计规》GB50007-2011《建筑施工扣件式钢管脚手架安全技术规》JGJ130-2011计算参数:盘扣式脚手架立杆钢管强度为300N/mm2,水平杆钢管强度为205.0 N/mm2,钢管强度折减系数取1.00。
模板支架搭设高度为4.3m,立杆的纵距 b=1.20m,立杆的横距 l=1.20m,脚手架步距 h=1.80m。
立杆钢管类型选择:B-LG-2500(Φ48×3.2×2500);横向水平杆钢管类型选择:A-SG-1200(Φ48×2.5×1140);纵向水平杆钢管类型选择:A-SG-1200(Φ48×2.5×1140);横向跨间水平杆钢管类型选择:A-SG-1200(Φ48×2.5×1140);面板厚度18mm,剪切强度1.4N/mm2,抗弯强度15.0N/mm2,弹性模量6000.0N/mm2。
木方40×90mm,间距300mm,木方剪切强度1.3N/mm2,抗弯强度15.0N/mm2,弹性模量9000.0N/mm2。
梁顶托采用80×90mm木方。
模板自重0.20kN/m2,混凝土钢筋自重25.10kN/m3。
倾倒混凝土荷载标准值1.00kN/m2,施工均布荷载标准值0.00kN/m2。
图盘扣式楼板支撑架立面简图图楼板支撑架立杆稳定性荷载计算单元钢管惯性矩计算采用 I=π(D4-d4)/64,抵抗距计算采用 W=π(D4-d4)/32D。
一、模板面板计算面板为受弯结构,需要验算其抗弯强度和刚度。
模板面板的按照简支梁计算。
板模板(120)计算书计算依据:1、《建筑施工模板安全技术规范》JGJ162-20082、《建筑施工扣件式钢管脚手架安全技术规范》JGJ 130-20113、《混凝土结构设计规范》GB50010-20104、《建筑结构荷载规范》GB 50009-20125、《钢结构设计规范》GB 50017-2003一、工程属性二、荷载设计三、模板体系设计设计简图如下:模板设计平面图模板设计剖面图(楼板长向)模板设计剖面图(楼板宽向)四、面板验算面板厚度(mm)18面板类型覆面木胶合板15面板弹性模量E(N/mm2)10000面板抗弯强度设计值[f](N/mm2)根据《建筑施工模板安全技术规范》5.2.1"面板可按简支跨计算"的规定,另据现实,楼板面板应搁置在梁侧模板上,因此本例以简支梁,取1m单位宽度计算。
计算简图如下:W=bh2/6=1000×18×18/6=54000mm3,I=bh3/12=1000×18×18×18/12=486000mm41、强度验算q1=0.9max[1.2(G1k+ (G3k+G2k)×h)+1.4Q1k,1.35(G1k+(G3k+G2k)×h)+1.4×0.7Q1k]×b=0.9max[1.2×(0.1+(1.1+24)×0.12)+1.4×2.5,1.35×(0.1+(1.1+24)×0.12)+1.4×0.7×2.5] ×1=6.511kN/mq2=0.9×1.2×G1k×b=0.9×1.2×0.1×1=0.108kN/mp=0.9×1.4×Q1K=0.9×1.4×2.5=3.15kNM max=max[q1l2/8,q2l2/8+pl/4]=max[6.511×0.32/8,0.108×0.32/8+3.15×0.3/4]=0.237kN·mσ=M max/W=0.237×106/54000=4.397N/mm2≤[f]=15N/mm2满足要求!2、挠度验算q=(G1k+(G3k+G2k)×h)×b=(0.1+(1.1+24)×0.12)×1=3.112kN/mν=5ql4/(384EI)=5×3.112×3004/(384×10000×486000)=0.068mm≤[ν]=l/250=300/250=1.2mm满足要求!五、小梁验算因[L/l a]取整=[5300/900]取整=5,按四等跨连续梁计算,又因小梁较大悬挑长度为250mm,因此需进行最不利组合,计算简图如下:1、强度验算q1=0.9max[1.2(G1k+(G3k+G2k)×h)+1.4Q1k,1.35(G1k+(G3k+G2k)×h)+1.4×0.7Q1k]×b=0.9×max[1.2×(0.3+(1.1+24)×0.12)+1.4×2.5,1.35×(0.3+(1.1+24)×0.12)+1.4×0.7×2.5]×0.3=2.018kN/m因此,q1静=0.9×1.2(G1k+(G3k+G2k)×h)×b=0.9×1.2×(0.3+(1.1+24)×0.12)×0.3=1.073kN/mq1活=0.9×1.4×Q1k×b=0.9×1.4×2.5×0.3=0.945kN/mM1=0.107q1静L2+0.121q1活L2=0.107×1.073×0.92+0.121×0.945×0.92=0.186kN·m q2=0.9×1.2×G1k×b=0.9×1.2×0.3×0.3=0.097kN/mp=0.9×1.4×Q1k=0.9×1.4×2.5=3.15kNM2=max[0.077q2L2+0.21pL,0.107q2L2+0.181pL]=max[0.077×0.097×0.92+0.21×3.15×0.9,0.107×0.097×0.92+0.181×3.15×0.9]=0.601kN·m M3=max[q1L12/2,q2L12/2+pL1]=max[2.018×0.252/2,0.097×0.252/2+3.15×0.25]=0.791kN·mM max=max[M1,M2,M3]=max[0.186,0.601,0.791]=0.791kN·mσ=M max/W=0.791×106/83330=9.487N/mm2≤[f]=15.44N/mm2满足要求!2、抗剪验算V1=0.607q1静L+0.62q1活L=0.607×1.073×0.9+0.62×0.945×0.9=1.114kNV2=0.607q2L+0.681p=0.607×0.097×0.9+0.681×3.15=2.198kNV3=max[q1L1,q2L1+p]=max[2.018×0.25,0.097×0.25+3.15]=3.174kNV max=max[V1,V2,V3]=max[1.114,2.198,3.174]=3.174kNτmax=3V max/(2bh0)=3×3.174×1000/(2×100×50)=0.952N/mm2≤[τ]=1.78N/mm2满足要求!3、挠度验算q=(G1k+(G3k+G2k)×h)×b=(0.3+(24+1.1)×0.12)×0.3=0.994kN/m跨中νmax=0.632qL4/(100EI)=0.632×0.994×9004/(100×9350×4166700)=0.106mm≤[ν]=l/250=900/250=3.6mm悬臂端νmax=qL4/(8EI)=0.994×2504/(8×9350×4166700)=0.012mm≤[ν]=l1/250=250/250=1mm满足要求!六、主梁验算1、小梁最大支座反力计算Q1k=1.5kN/m2q1=0.9max[1.2(G1k+ (G3k+G2k)×h)+1.4Q1k,1.35(G1k+(G3k+G2k)×h)+1.4×0.7Q1k]×b=0.9max[1.2×(0.5+(1.1+24)×0.12)+1.4×1.5,1.35×(0.5+(1.1+24)×0.12)+1.4×0.7×1.5]×0.3=1.705kN/mq1静=0.9×1.2(G1k+ (G3k+G2k)×h)×b=0.9×1.2×(0.5+(1.1+24)×0.12)×0.3=1.138kN/m q1活=0.9×1.4×Q1k×b=0.9×1.4×1.5×0.3=0.567kN/mq2=(G1k+ (G3k+G2k)×h)×b=(0.5+(1.1+24)×0.12)×0.3=1.054kN/m承载能力极限状态按四跨连续梁,R max=(1.143q1静+1.223q1活)L=1.143×1.138×0.9+1.223×0.567×0.9=1.795kN按悬臂梁,R1=q1l=1.705×0.25=0.426kNR=max[R max,R1]=1.795kN;正常使用极限状态按四跨连续梁,R max=1.143q2L=1.143×1.054×0.9=1.084kN按悬臂梁,R1=q2l=1.054×0.25=0.263kNR=max[R max,R1]=1.084kN;2、抗弯验算计算简图如下:主梁弯矩图(kN·m)M max=0.625kN·mσ=M max/W=0.625×106/4490=139.186N/mm2≤[f]=205N/mm2满足要求!3、抗剪验算主梁剪力图(kN)V max=3.617kNτmax=2V max/A=2×3.617×1000/424=17.062N/mm2≤[τ]=125N/mm2满足要求!4、挠度验算主梁变形图(mm)νmax=0.944mm跨中νmax=0.944mm≤[ν]=1000/250=4mm悬挑段νmax=0.77mm≤[ν]=250/250=1mm满足要求!七、立柱验算1、长细比验算顶部立杆段:l01=kμ1(h d+2a)=1×1.386×(1500+2×200)=2633.4mm 非顶部立杆段:l02=kμ2h =1×1.755×1800=3159mmλ=l0/i=3159/15.9=198.679≤[λ]=210长细比满足要求!2、立柱稳定性验算顶部立杆段:l01=kμ1(h d+2a)=1.155×1.386×(1500+2×200)=3041.577mmλ1=l01/i=3041.577/15.9=191.294,查表得,φ1=0.197M w=0.9×1.4ωk l a h2/10=0.9×1.4×0.22×0.9×1.82/10=0.079kN·mN w=1.2ΣN Gik+0.9×1.4Σ(N Qik+M w/l b)=[1.2×(0.5+(24+1.1)×0.12)+0.9×1.4×1]×0.9×1+0.9×1.4×0.07 9/1=5.027kNf=N w/(φA)+ M w/W=5026.956/(0.197×424)+0.079×106/4490=77.858N/mm2≤[f]=205N/mm2满足要求!非顶部立杆段:l02=kμ2h =1.155×1.755×1800=3648.645mmλ2=l02/i=3648.645/15.9=229.475,查表得,φ2=0.139M w=0.9×1.4ωk l a h2/10=0.9×1.4×0.22×0.9×1.82/10=0.079kN·mN w=1.2ΣN Gik+0.9×1.4Σ(N Qik+M w/l b)=[1.2×(0.75+(24+1.1)×0.12)+0.9×1.4×1]×0.9×1+0.9×1.4×0.079/1=5.297kNf=N w/(φA)+ M w/W=5296.956/(0.139×424)+0.079×106/4490=107.552N/mm2≤[f]=205N/mm2满足要求!八、扣件抗滑移验算按上节计算可知,扣件受力N=5.027k N≤R c=k c×8=1×8=8kN满足要求!九、立柱地基基础验算立柱底垫板的底面平均压力p=N/(m f A)=5.297/(1×0.1)=52.97kPa≤f ak=950kPa 满足要求!。