钻孔桩单桩承载力特征值计算
- 格式:doc
- 大小:87.50 KB
- 文档页数:2
(一)单桩承载力特征值是什么?1、单位桩体所能承受的极限荷载力也就是最大静载试验压力除以安全系数2.0得出的标准值2、指单桩在外荷载作用下,不丧失稳定,不产生过大变形所能承受的最大荷载特征值。
符号为Ra3、由荷载试验测定的单桩压力变形曲线线性变形段内规定的变形所对应的压力值,其最大值为比例界限值(二)最近在搞水泥土搅拌桩(桩径500mm),设计给的复合地基承载力特征值是250kp,现在要计算单桩承载力特征值,应该怎么计算?《建筑地基处理技术规范》JGJ79-2002上有公式计算,但是有好多公式中的符号不知道是什么意思,求高手解答。
另外,能不能根据复合地基承载力的特征值推算出单桩的承载力特征值?楼主的原意是不是这样:设计给的水泥搅拌桩复合地基承载力特征值是250kp,这是设计要求,桩径500mm,其它还不太清楚,在此条件下,可以按下述步骤依据3楼公式反算:首先参数确定:fspk─复合地基承载力特征值250kPa,设计要求值;Ap─搅拌桩截面积(m2),500mm桩径为0.19625m^2;fsk─桩间土承载力特征值(kPa),可查勘察报告确定,一般水泥搅拌桩加固作复合地基的地层承载力都不高,假设查勘察报告应取100kPa;m─面积置换率,由计划的加固桩桩间距确定,我们暂时假设按3d桩间距布桩,则置换率为0.19625/(1.5*1.5)=0.0872;β─桩间土承载力折减系数,一般取0.7。
按3楼搅拌桩复合地基承载力特征值一般可按下式估算:fspk=m(Ra/Ap)+β(1-m)fsk则要求的单桩竖向承载力特征值:Ra=Ap(fspk-β(1-m)fsk)/m=0.19625(250-0.7(1-0.0872)100)/0.0872=418.8(kN)就是说按3d桩间距均布500mm搅拌桩,要达到设计要求的250kPa复合地基承载力需要,当地桩间土承载力特征值为100kPa时,要求的搅拌桩单桩竖向承载力特征值为420kN,按此方案,就可依据勘察报告提供的搅拌桩桩基参数,进一步确定单颗搅拌桩应该多长,能够达到420kN。
单桩承载力特征值计算
在计算单桩承载力特征值时,首先需要了解桩的受力机制。
一般情况下,单桩的承载力由桩端摩擦力和端阻力两部分组成。
桩端摩擦力主要由
桩与土壤之间的侧面摩擦力贡献,而端阻力则是由土壤对桩底部的阻力产生。
计算单桩承载力特征值的方法有很多,下面介绍几种常用的计算方法:
1.摩擦桩承载力计算:对于摩擦桩,最大承载力一般是通过桩侧摩擦
力计算得到。
常用的计算方法有龙标公式、莫尔-库仑公式等。
其中,龙
标公式可以用来计算粘性土、粉土和含边坡土的桩侧摩擦力,而莫尔-库
仑公式适用于沙土和砾石土。
2.端承桩承载力计算:对于端承桩,最大承载力主要通过桩底端阻力
计算得到。
常用的计算方法有桩端阻力计算公式、本构模型和土压力理论法。
其中,桩端阻力计算公式可以根据土壤类型和桩的几何尺寸得到相应
的计算公式。
3.综合计算:在一些复杂的情况下,单桩的承载力特征值可能同时受
到桩侧摩擦力和桩底端阻力的影响,此时需要将两者的计算结果综合考虑。
通常采用等效摩擦角的方法,将桩侧摩擦力和桩底端阻力分别以等效摩擦
角和等效摩擦力表示。
对于已知设计荷载和土壤参数的情况,可以采用以上的计算方法进行
单桩承载力特征值的计算。
但需要注意的是,在工程实际中,土壤的性质
是非常复杂和多变的,因此在计算过程中需要合理选择计算方法,并结合
实际情况进行修正和调整。
此外,为了获得更准确的结果,通常需要进行
现场试验和监测,以验证计算结果的可靠性。
单桩水平承载力特征值单桩(群桩基础、基桩)水平承载力特征值是指在一定工况下,单个桩或一组桩在水平方向上能够承受的最大水平力大小。
它是基于各种因素综合而得出的一个数值,对于工程设计和施工具有重要意义。
本文将详细介绍单桩(群桩基础、基桩)水平承载力特征值的计算方法及其影响因素。
一、单桩水平承载力特征值的计算方法根据规范要求,单桩水平承载力特征值的计算分为两种情况:非水平荷载作用下的计算和水平荷载作用下的计算。
1.非水平荷载作用下的计算对于非水平荷载作用下的计算,常见的方法有静力法和动力法两种。
其中,静力法通过桩的反力平衡计算水平承载力,而动力法则通过给桩施加动力荷载后计算出的位移来计算水平承载力。
静力法计算单桩水平承载力的公式为:Qh = α * Ap * sd其中,Qh为单桩水平承载力,α为抗滑安全系数,Ap为桩的侧面面积,sd为桩侧面土壤的抗剪强度。
动力法计算单桩水平承载力的公式为:Qh=m*b*d/h其中,Qh为单桩水平承载力,m为振动质量,b为作用于振动质量上的加速度,d为桩的轴向刚度,h为桩的垂直刚度。
2.水平荷载作用下的计算对于水平荷载作用下的计算,常见的方法有平衡法和变位法两种。
其中,平衡法通过力的平衡计算出桩的水平承载力,而变位法则通过给桩施加水平荷载后计算出的位移来计算水平承载力。
平衡法计算单桩水平承载力的公式为:Qh=α*Ap*τ其中,Qh为单桩水平承载力,α为抗滑安全系数,Ap为桩的侧面面积,τ为侧摩阻力。
变位法计算单桩水平承载力的公式为:Qh=L*k其中,Qh为单桩水平承载力,L为变位的单位荷载,k为变位系数。
值得注意的是,以上方法仅适用于一根孤立桩,对于群桩基础和基桩,计算方法相对复杂,需要考虑桩之间的相互作用。
二、影响单桩水平承载力特征值的因素单桩水平承载力特征值受到多种因素的影响,主要包括以下几个方面:1.土质特性:土质特性包括土的密实度、土的粘性、土的抗剪强度等。
不同土质性质的土壤对单桩水平承载力的影响是不同的。
(一)单桩承载力特征值是什么?1 、单位桩体所能承受的极限荷载力也就是最大静载试验压力除以安全系数2.0得出的标准值2、指单桩在外荷载作用下,不丧失稳定,不产生过大变形所能承受的最大荷载特征值。
符号为Ra3、由荷载试验测定的单桩压力变形曲线线性变形段内规定的变形所对应的压力值,其最大值为比例界限值(二)最近在搞水泥土搅拌桩(桩径500mm),设计给的复合地基承载力特征值是250kp,现在要计算单桩承载力特征值,应该怎么计算?《建筑地基处理技术规范》JGJ79-2002上有公式计算,但是有好多公式中的符号不知道是什么意思,求高手解答。
另外,能不能根据复合地基承载力的特征值推算出单桩的承载力特征值?楼主的原意是不是这样:设计给的水泥搅拌桩复合地基承载力特征值是250kp,这是设计要求,桩径500mm,其它还不太清楚,在此条件下,可以按下述步骤依据3楼公式反算:首先参数确定:fspk─复合地基承载力特征值250kPa,设计要求值;Ap─搅拌桩截面积(m2),500mm桩径为0.19625m^2;fsk ─桩间土承载力特征值(kPa),可查勘察报告确定,一般水泥搅拌桩加固作复合地基的地层承载力都不高,假设查勘察报告应取100kPa;m─面积置换率,由计划的加固桩桩间距确定,我们暂时假设按3d桩间距布桩,则置换率为0.19625/(1.5*1.5)=0.0872;β─桩间土承载力折减系数,一般取0.7。
按3楼搅拌桩复合地基承载力特征值一般可按下式估算:fspk = m(Ra/Ap)+β(1-m)fsk则要求的单桩竖向承载力特征值:Ra =Ap(fspk-β(1-m)fsk)/m=0.19625(250-0.7(1-0.0872)100)/0.0872=418.8(kN)就是说按3d桩间距均布500mm搅拌桩,要达到设计要求的250kPa复合地基承载力需要,当地桩间土承载力特征值为100kPa时,要求的搅拌桩单桩竖向承载力特征值为420kN,按此方案,就可依据勘察报告提供的搅拌桩桩基参数,进一步确定单颗搅拌桩应该多长,能够达到420kN。
单桩竖向承载力特征值计算公式单桩竖向承载力特征值计算公式是一种用于估算土层中单桩竖向承载力的标准公式,它可以帮助工程人员快速有效地评估桩末端的竖向承载力。
根据桩的不同形式,单桩竖向承载力特征值计算公式也有不同的形式,主要分为钢筋混凝土桩、钢管桩、木桩三种。
1.钢筋混凝土桩:单桩竖向承载力特征值计算公式为F=0.2Qt×B×D,其中Qt表示桩顶部抗压强度,B表示桩的直径或边长,D表示桩的基底高度。
2.钢管桩:单桩竖向承载力特征值计算公式为F=0.3Qt×D×L,其中Qt表示桩顶部抗拔强度,D表示桩的外径,L表示桩的基底高度。
3.木桩:单桩竖向承载力特征值计算公式为F=0.5Qt×B×D,其中Qt表示桩顶部抗压强度,B表示桩的直径或边长,D表示桩的基底高度。
以上三种桩类型的竖向承载力特征值计算公式不仅反映桩的基础地基条件,还反映桩体结构自身的特性,可以作为建立桩体竖向承载力的重要参考依据。
在计算桩体竖向承载力时,单桩竖向承载力特征值计算公式可以帮助工程人员简化复杂的地质条件和桩体结构影响因素,从而快速有效地确定桩末端的竖向承载力。
在计算桩体竖向承载力时,如果某一项因素出现异常,如桩体结构出现裂缝,此时,工程人员还需要结合实际情况加以修正,以确保桩末端的竖向承载力的精确性。
另外,为了更好地确定桩末端的竖向承载力,还需要对桩体施工过程中发生的变化进行及时跟踪,如桩基础下沉或倾斜度发生变化等。
如果检测发现变化超出了可接受范围,则需要及时采取措施调整桩体竖向承载力,以确保其安全性。
总之,单桩竖向承载力特征值计算公式可以帮助工程人员快速有效地评估桩末端的竖向承载力,并且在计算过程中要结合实际情况加以修正,以确保桩末端的竖向承载力的精确性。
此外,还需要对桩体施工过程中发生的变化进行及时跟踪,以确保桩末端的竖向承载力的安全性。
单桩承载力特征值计算公式单桩承载力特征值的计算公式啊,这可是个在建筑工程领域里挺重要的玩意儿。
咱们先来说说为啥要研究这个单桩承载力特征值。
你想啊,要是盖一栋大楼,那得靠下面的桩子撑着。
要是这桩子的承载力没算准,那楼不就危险啦?所以搞清楚这个计算公式,那是相当关键。
单桩承载力特征值的计算方法有好几种,常见的像根据土的物理指标与承载力参数之间的经验关系确定,还有根据静载荷试验结果确定等等。
就拿根据土的物理指标与承载力参数之间的经验关系确定来说吧,这里面涉及到好多参数呢。
比如说桩侧阻力特征值、桩端阻力特征值,还得考虑桩的入土深度、桩的直径等等。
我给您举个例子啊,之前我参与过一个小区建设项目。
那时候,负责计算单桩承载力特征值的同事,天天对着一堆数据和公式发愁。
有一天,他算来算去,总觉得结果不太对劲。
大家一起帮忙重新梳理数据,才发现他把一个土的参数给搞错了。
这可把我们紧张坏了,因为这个数据要是错了,后面的施工可就全乱套啦。
咱们再来说说根据静载荷试验结果确定单桩承载力特征值。
这个方法相对来说更直接、更准确。
就是通过给桩施加逐渐增加的荷载,观察桩的变形情况,直到桩达到破坏状态或者达到规定的变形限值。
然后根据试验数据来确定单桩的承载力特征值。
在实际工程中,为了确保计算结果的准确性,往往会综合运用多种方法来确定单桩承载力特征值。
毕竟这关系到建筑物的安全,可不能马虎。
总之,单桩承载力特征值的计算公式虽然看起来复杂,但只要咱们认真对待,仔细分析每个参数,结合实际情况,还是能够准确计算出来的。
可千万别像我那同事一样粗心大意,不然真得出大问题。
希望大家在面对这个计算的时候,都能多用心,让咱们盖的房子都稳稳当当的!。
单桩水平承载力特征值计算一、经验公式法经验公式法是最为简便的计算方法之一,适用于一些简单工程问题的初步估算。
常用的经验公式包括Poulos公式、Reese公式等。
以Poulos公式为例,其计算公式如下:q_hk = q_0 * (Hk/H0)^n其中,q_hk为水平承载力特征值,q_0为垂直承载力特征值,Hk为计算水平力作用点的深度,H0为垂直承载力特征值的计算深度(一般为桩侧摩阻力的计算深度),n为经验系数。
二、解析法解析法是通过数学计算得出桩基水平承载力特征值的方法,适用于较为复杂的工程问题。
其中,比较常用的方法包括古典弹性理论法、极限平衡法和有限元法等。
以古典弹性理论法为例,其计算步骤如下:1.确定土层参数:包括土壤重度、摩擦角、土的内摩擦角和压缩模量等参数。
2.确定水平力作用点的深度:根据工程要求和设计计算方法确定水平力作用点的深度。
3.计算抵抗水平力的力矩:根据水平力作用点的深度和各土层的土壤参数计算抵抗水平力的力矩。
4.计算倾覆稳定性:根据抵抗水平力的力矩和桩基的惯性力计算桩基的倾覆稳定性。
三、数值模拟法数值模拟法是利用计算机软件进行模拟计算得出桩基水平承载力特征值的方法,适用于复杂的工程问题。
常用的数值模拟软件包括PLAXIS、FLAC等。
数值模拟法的计算步骤包括建立数值模型、选择荷载组合和计算分析等。
在进行数值模拟计算时,需要输入一系列参数,包括土体参数、桩基参数、应力边界条件和荷载条件等。
计算结果可为各个节点或单元提供桩基的应力和应变信息,从而得到桩基的水平承载力特征值。
综上所述,单桩水平承载力特征值计算是一个复杂的过程,需要根据具体工程情况选择合适的计算方法。
在实际工程设计中,不同计算方法的结果可能会有一定差异,因此需要对计算结果进行综合考虑,确保桩基的安全可靠性。
单桩水平承载力特征值计算
单桩(群桩)水平承载力特征值计算包括计算单桩(群桩)的侧阻力和摩擦阻力。
其中,侧阻力是指桩身与土体之间产生的摩阻力,摩擦阻力是指桩身周围土体与桩身之间的黏结力。
下面将详细介绍单桩水平承载力特征值计算方法。
首先,需要计算单桩(群桩)侧阻力的特征值。
侧阻力的计算方法有很多种,常见的方法有静力触探法、动力触探法和负荷试验法。
其中,静力触探法是最常用的方法。
静力触探法是通过静力触探仪器进行触探,记录桩身下不同深度的侧阻力,然后将侧阻力与桩身侧面积相乘得到单桩(群桩)的侧阻力特征值。
其次,需要计算单桩(群桩)的摩擦阻力特征值。
摩擦阻力计算方法包括桥式摩擦计算法和比例摩擦计算法。
桥式摩擦计算法是通过桥式摩擦仪器进行摩擦计算,该仪器可以测量桩身周围土体与桩身之间的黏结力。
比例摩擦计算法是通过测量桩身周围土体的侧阻力和摩擦阻力的比值来计算单桩(群桩)的摩擦阻力特征值。
最后,需要进行单桩(群桩)的水平承载力特征值的计算。
水平承载力特征值的计算方法有很多种,常见的方法有平均值法、最不利值法和概率法。
平均值法是将所有单桩(群桩)的承载力特征值相加取平均得到水平承载力特征值。
最不利值法是将单桩(群桩)中的最小承载力特征值作为水平承载力特征值。
概率法则是将单桩(群桩)的承载力特征值按照一定的概率分布进行计算。
综上所述,单桩(群桩)水平承载力特征值计算包括计算侧阻力和摩擦阻力的特征值,然后根据一定的计算方法得出水平承载力特征值。
计算方法有很多种,需要根据实际情况选择合适的方法进行计算。
钻孔灌注桩(cast-in-place bored pile)是一种常用的地基处理方法,广泛应用于土木工程和建筑领域。
在设计和施工过程中,对于钻孔灌注桩的单桩承载力计算是非常重要的一项工作。
本文将介绍钻孔灌注桩单桩承载力计算的相关理论和方法。
钻孔灌注桩的承载力是指桩基在荷载作用下所能承受的最大力量。
在进行单桩承载力计算时,需要考虑多种因素,包括桩身材料的强度、桩端土的强度特性、桩与土的相互作用等。
下面将分别介绍这些因素的计算方法。
首先,钻孔灌注桩的承载力与桩身材料的强度有关。
常见的桩身材料包括混凝土和钢筋混凝土。
对于混凝土桩,可以根据混凝土的强度等级和截面形状来计算桩的抗压承载力。
而对于钢筋混凝土桩,需要考虑混凝土和钢筋的抗压强度,并进行受压区和受拉区的力学计算。
其次,钻孔灌注桩的承载力还与桩端土的强度特性有关。
桩端土的强度特性可以通过现场试验或室内试验来获得,一般包括桩端土的抗剪强度和侧摩阻力。
根据试验结果,可以采用不同的计算方法来确定桩端土的承载力,如桩端阻力法、桩端反应法等。
最后,钻孔灌注桩的承载力还受桩与土的相互作用影响。
桩与土之间的相互作用可以分为摩擦力和粘胶力两部分。
摩擦力是桩身表面与土颗粒之间的摩擦阻力,可以通过计算桩表面积和土的黏性系数来确定。
粘胶力是桩身表面与土之间的粘结阻力,一般可以通过试验来确定。
综上所述,钻孔灌注桩的单桩承载力计算涉及多个因素,需要综合考虑桩身材料的强度、桩端土的强度特性和桩与土的相互作用。
在实际工程中,可以通过现场试验和室内试验来获取相关参数,并采用适当的计算方法来进行单桩承载力计算。
这样可以有效保证钻孔灌注桩的设计和施工质量,确保工程的安全可靠性。
需要注意的是,在进行钻孔灌注桩单桩承载力计算之前,还需要充分了解工程的特点和要求,并结合地质、水文等方面的信息进行综合分析。
此外,计算过程中还应遵循相关规范和标准,确保计算结果的准确性和可靠性。
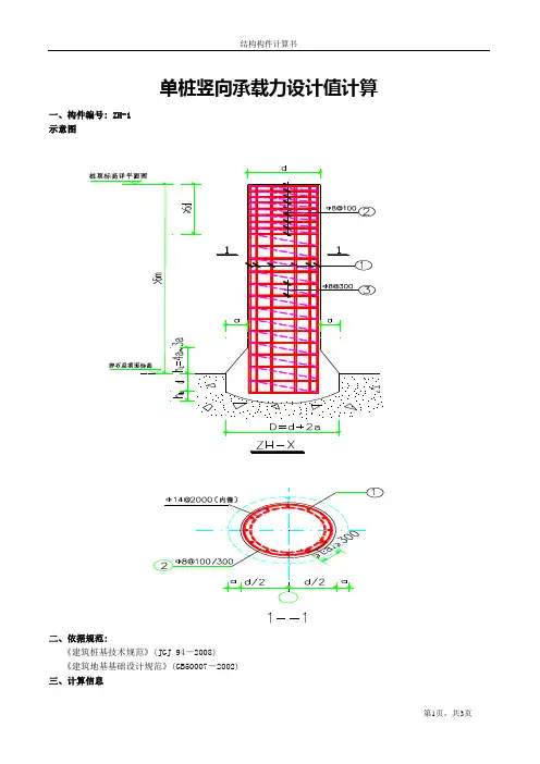
单桩竖向承载力设计值计算一、构件编号: ZH-1示意图二、依据规范:《建筑桩基技术规范》(JGJ 94-2008)《建筑地基基础设计规范》(GB50007-2002)三、计算信息1.桩类型: 桩身配筋率<0.65%灌注桩2.桩顶约束情况: 固接3.截面类型: 圆形截面4.桩身直径: d=800mm;桩端直径: D=1200mm5.材料信息:1)混凝土强度等级: C30 fc=14.3N/mm2 Ec=3.0×104N/mm22)钢筋种类: HRB335 fy=300N/mm2fy,=300N/mm2Es=2.0×105N/mm23)钢筋面积: As=2155mm24)净保护层厚度: c=50mm6.其他信息:1)桩入土深度: H>6.000m7.受力信息:桩顶竖向力: N=800kN四、计算过程:1)根据桩身的材料强度确定桩型:人工成孔灌注桩(d≥0.8m)桩类别:圆形桩桩身直径D =800mm桩身截面面积A ps=0.50m桩身周长u=2.51mR a=ψc f c A ps +0.9f y,A S,【5.8.2-1】式中A ps————桩身截面面积f c———混凝土轴心抗压强度设计值ψc———基桩成孔工艺系数,预制桩取0.85,灌注桩取0.7~0.8。
f y,———纵向主筋抗压强度设计值A S,———纵向主筋截面面积R a =5363+582=5945KN2)根据经验参数法确定计算依据:《建筑桩基技术规范》JGJ94-2008和本项目岩土工程勘察报告单桩竖向承载力特征值(R a)应按下式确定:R a=1/k×Q uk 【5.2.2】式中Q uk————单桩竖向极限承载力标准值K———安全系数,取K=2.Q uk=Q sk+Q pk= u∑ψsi q sik L i +ψp q pk A p 【5.3.6】桩型: 人工成孔灌注桩(d≥0.8m)桩类别:圆形桩桩端直径D=1400mm桩端面积A p=1.54m桩端周长u=4.4m极限端阻力标准值q pk=3200KPa大直径桩侧阻力、端阻力尺寸效应系数ψp=(0.8/D)1/3 =0.8总极限端阻力标注值Q pk=ψp×q pk×A p=0.8×3200×1.54= 3942 KN Q uk=Q sk+Q pk=3942单桩竖向承载力特征值R a = 1971KN。
可编写可改正单桩竖向承载力特点值按《建筑桩基技术规范》JGJ94 -2008 第条公式计算:R a=Q uk/K式中:R a——单桩竖向承载力特点值;Q uk——单桩竖向极限承载力标准值;K——安全系数,取K=2。
1.一般桩的经验参数法此方法合用于除预制混凝土管桩之外的单桩。
按JGJ94-2008 规范中第条公式计算:式中:Q sk——总极限侧阻力标准值;Q pk——总极限端阻力标准值;u——桩身周长;l i——桩周第i层土的厚度;A p——桩端面积;q sik——桩侧第i层土的极限侧阻力标准值;参照JGJ94-2008规范表取值,用户需在地质资料土层参数中设置此值;关于端承桩取q sik=0;q pk——极限端阻力标准值,参照JGJ94-2008 规范表 2 取值,用户需在地质资料土层参数中设置此值;关于摩擦桩取q pk=0;2.大直径人工挖孔桩( d≥800mm)单桩竖向极限承载力标准值的计算此方法合用于大直径( d≥800mm)非预制混凝土管桩的单桩。
按JGJ94-2008 规范第条公式计算:可编写可改正式中:Q sk——总极限侧阻力标准值;Q pk——总极限端阻力标准值;q sik——桩侧第i层土的极限侧阻力标准值,可按JGJ94-2008 规范中表取值,用户需 1 取值,用户需在地质资料土层参数中设置此值;关于扩底桩变截面以上2d 范围不计侧阻力;关于端承桩取q sik=0;q pk——桩径为800mm极限端阻力标准值,可按JGJ94-2008 规范中表 1 取值;用户需在地质资料土层参数中设置此值;关于摩擦桩取qpk=0;ψsi,ψp——大直径桩侧阻、端阻尺寸效应系数,按JGJ94-2008 表取值;u ——桩身周长。
3.钢管桩单桩竖向极限承载力标准值的计算按 JGJ 94-2008 规范第条公式计算:式中:Q sk——总极限侧阻力标准值;Q pk——总极限端阻力标准值;q sik——桩侧第i层土的极限侧阻力标准值,可按JGJ94-2008 规范中表1 取值,用户需在地质资料土层参数中设置此值;关于端承桩取q sik=0;q pk——极限端阻力标准值,可按JGJ94-2008 规范中表取值;用户需在地质资料土层参数中设置此值;关于摩擦桩取q pk=0;l i——桩周第i层土的厚度;可编写可改正u ——桩身周长;A j——空心桩端净面积面积;A p1——空心桩敞口面积;λp——桩端土塞效应系数。
钻孔桩单桩承载力钻孔桩是建筑施工中常用的地基处理方式之一,其承载力是评估其稳定性和可用性的重要指标之一。
本文将介绍钻孔桩单桩承载力的概念、计算方法以及影响因素。
一、概念钻孔桩单桩承载力是指桩在垂直荷载作用下所能承受的最大力值。
该指标用于评估钻孔桩的抗沉降能力和极限承载能力,对工程的安全性和性能具有重要意义。
二、计算方法1. 桩身部分的计算桩身部分的计算通常采用极限平衡法。
根据负载作用的不同,可以分为自重承载和超重承载。
- 自重承载:根据桩的几何形状、材料及单位长度的重量,计算桩身的在自重下的抗沉降能力。
常见的计算方法有斯托兹公式和静力公式。
- 超重承载:当桩身受到超过自重的荷载时,需要考虑超重荷载对桩身的影响。
计算方法可以采用等效单位长度法或差沉降法。
2. 桩端部分的计算桩端部分的计算通常采用静力学原理,结合土的力学特性,并考虑桩端土与桩侧土的相互作用。
常见的计算方法有剪力平衡法、位移平衡法和弹性计算法等。
三、影响因素钻孔桩单桩承载力受多种因素的影响,主要包括以下几个方面:1. 土质特性:土体的物理力学性质、含水量、粘聚力和内摩擦角等对单桩承载力起着重要的影响。
不同土质的桩基承载力也会有较大差异。
2. 桩的几何形状:桩的直径、长度、形状和端部的处理方式等对单桩承载力产生影响。
较大直径的桩一般承载力较大,而较长的桩可以通过增大侧面摩阻力来提高承载力。
3. 桩材料的性质:桩的材料特性,如混凝土的强度、钢材的弹性模量等,会直接影响到单桩的承载力。
4. 桩基处理方式:桩基处理方式的选择会直接影响到单桩的承载力。
常见的处理方式包括基础搅拌桩、钻孔灌注桩、预应力灌注桩等。
5. 荷载类型和荷载大小:不同类型和大小的荷载对单桩的承载力产生不同的影响。
静态荷载和动态荷载所引起的桩的响应也不同。
四、结语钻孔桩单桩承载力是评估钻孔桩抗沉降能力和极限承载能力的重要指标。
了解钻孔桩单桩承载力的计算方法和影响因素,有助于工程师采取合适的桩基处理方式和设计方案,确保工程的安全性和可靠性。
一、设计资料
1、基桩设计参数
成桩工艺:混凝土预制桩
承载力设计参数取值:根据建筑桩基规范查表
桩顶标高:-1.5m
桩身设计直径:d=0.400m
桩身长度:L=10m
3、设计依据
《建筑桩基技术规范》(JGJ-94-94),以下简称桩基规范
《建筑地基基础规范》(GB50007-2002)以下简称基础规范
二、单桩竖向抗压承载力计算
2、桩身周长u,桩端面积Ap
u=3.14*0.4=1.256m
Ap=3.14*0.4^2/4=0.1256㎡
3、单桩竖向承载力估算
根据桩基规范5.2.8按下式计算
Quk=Qsk+Qpk
土的总极限侧阻力标准值:
Qsk=1.256*(1.1*30+1.7*50+2.4*98+4.8*170)=1469kN
总极限端阻力标准值:
Qpk=0.1256*5000=628kN
单桩竖向抗压极限承载力标准值为:
Quk=Qsk+Qpk=1469+628=2097Kn
单桩竖向承载力特征值Ra计算。
根据基础规范附录Q条文Q.0.10第7条规定Ra=Quk/2=1049kN。
单桩竖向承载力特征值按《建筑桩基技术规范》JGJ94 -2008第5.2.2条公式5.2.2计算:R a=Q uk/K式中:R a——单桩竖向承载力特征值;Q uk——单桩竖向极限承载力标准值;K——安全系数,取K=2。
1. 一般桩的经验参数法此方法适用于除预制混凝土管桩以外的单桩。
按JGJ94-2008规范中第5.3.5条公式5.3.5计算:式中:Q sk——总极限侧阻力标准值;Q pk——总极限端阻力标准值;u——桩身周长;l i——桩周第i 层土的厚度;A p——桩端面积;q sik——桩侧第i 层土的极限侧阻力标准值;参考JGJ94-2008规范表5.3.5-1取值,用户需在地质资料土层参数中设置此值;对于端承桩取q sik=0;q pk——极限端阻力标准值,参考JGJ94-2008规范表5.3.5- 2取值,用户需在地质资料土层参数中设置此值;对于摩擦桩取q pk=0;2. 大直径人工挖孔桩(d≥800mm)单桩竖向极限承载力标准值的计算此方法适用于大直径(d≥800mm)非预制混凝土管桩的单桩。
按JGJ94-2008规范第5.3.6条公式5.3.6计算:式中:Q sk——总极限侧阻力标准值;Q pk——总极限端阻力标准值;q sik——桩侧第i层土的极限侧阻力标准值,可按JGJ94-2008规范中表5.3.5-1取值,用户需 1取值,用户需在地质资料土层参数中设置此值;对于扩底桩变截面以上2d范围不计侧阻力;对于端承桩取q sik=0;q pk——桩径为800mm极限端阻力标准值,可按JGJ94-2008规范中表5.3.6- 1取值;用户需在地质资料土层参数中设置此值;对于摩擦桩取qpk=0;ψsi,ψp——大直径桩侧阻、端阻尺寸效应系数,按JGJ94-2008表5.3.6-2取值;u——桩身周长。
3. 钢管桩单桩竖向极限承载力标准值的计算按JGJ 94-2008规范第5.3.8条公式5.3.8-1计算:式中:Q sk——总极限侧阻力标准值;Q pk——总极限端阻力标准值;q sik——桩侧第i层土的极限侧阻力标准值,可按JGJ94-2008规范中表5.3.5-1取值,用户需在地质资料土层参数中设置此值;对于端承桩取q sik=0;q pk——极限端阻力标准值,可按JGJ94-2008规范中表5.3.5-2取值;用户需在地质资料土层参数中设置此值;对于摩擦桩取q pk=0;l i——桩周第i层土的厚度;u——桩身周长;A j——空心桩端净面积面积;A p1——空心桩敞口面积;λp——桩端土塞效应系数。
(一)单桩承载力特征值是什么?1 、单位桩体所能承受的极限荷载力也就是最大静载试验压力除以安全系数2.0得出的标准值2、指单桩在外荷载作用下,不丧失稳定,不产生过大变形所能承受的最大荷载特征值。
符号为Ra3、由荷载试验测定的单桩压力变形曲线线性变形段内规定的变形所对应的压力值,其最大值为比例界限值(二)最近在搞水泥土搅拌桩(桩径500mm),设计给的复合地基承载力特征值是250kp,现在要计算单桩承载力特征值,应该怎么计算?《建筑地基处理技术规范》JGJ79-2002上有公式计算,但是有好多公式中的符号不知道是什么意思,求高手解答。
另外,能不能根据复合地基承载力的特征值推算出单桩的承载力特征值?楼主的原意是不是这样:设计给的水泥搅拌桩复合地基承载力特征值是250kp,这是设计要求,桩径500mm,其它还不太清楚,在此条件下,可以按下述步骤依据3楼公式反算:首先参数确定:fspk─复合地基承载力特征值250kPa,设计要求值;Ap─搅拌桩截面积(m2),500mm桩径为0.19625m^2;fsk ─桩间土承载力特征值(kPa),可查勘察报告确定,一般水泥搅拌桩加固作复合地基的地层承载力都不高,假设查勘察报告应取100kPa;m─面积置换率,由计划的加固桩桩间距确定,我们暂时假设按3d桩间距布桩,则置换率为0.19625/(1.5*1.5)=0.0872;β─桩间土承载力折减系数,一般取0.7。
按3楼搅拌桩复合地基承载力特征值一般可按下式估算:fspk = m(Ra/Ap)+β(1-m)fsk则要求的单桩竖向承载力特征值:Ra =Ap(fspk-β(1-m)fsk)/m=0.19625(250-0.7(1-0.0872)100)/0.0872=418.8(kN)就是说按3d桩间距均布500mm搅拌桩,要达到设计要求的250kPa复合地基承载力需要,当地桩间土承载力特征值为100kPa时,要求的搅拌桩单桩竖向承载力特征值为420kN,按此方案,就可依据勘察报告提供的搅拌桩桩基参数,进一步确定单颗搅拌桩应该多长,能够达到420kN。
单桩承载力特征值计算单桩竖向承载力特征值计算人工挖孔桩 C30混凝土;桩径Φ1200(圆形)Φ1400(圆形) Φ1200x1800(椭圆形) (塔楼)有效桩长L?5.0m,预计桩长为L=5.0,25.0m(其中地下室底板为,5.5m、-5.0m) (塔楼)桩端持力层:?—微风化粉砂质泥岩、泥质粉砂岩,f=6~15MPa。
rp(裙房)桩端持力层:?—中风化泥质粉砂岩、含砾中粗砂岩,f=2.4~9.9MPa; rp 根据广东省《建筑地基基础设计规范》DBJ15-31-2003,第10.2.4条嵌岩桩,单桩竖向承载力特征值为: R=R+R+RasarapaR=uΣqlsasiaiR=uCfhrap2rsrR=CfApa1rpp取C,0.4,C,0.03(无扩大头),f,4Mpa(中风化)或10Mpa(微风化)。
12rp桩身混凝土强度控制的单桩竖向承载力:1) 桩Φ1200:2F=0.7×π/4×1200×14.3/1.25=9052 KN (配筋为18Φ20,配筋率为0.5%) 2) 桩Φ1400:2F=0.7×π/4×1400×14.3/1.25=12320 KN (配筋为22Φ20,配筋率为0.45%) 3) 桩Φ1200x1800:F=0.7×π×600×900×14.3/1.25=13578 KN (配筋为26Φ20,配筋率为0.481%)桩承载力计算:(1)ZH3 Φ1200扩至1800——微风化2R=0.4×π/4×1.8×10000=10176KN a取R=8500KN a(2)ZH4 Φ1400扩至2100——微风化2R=0.4×π/4×2.1×10000=13847KN a取R=12000KN a(3)ZH5 Φ1200x1800(椭圆形),扩底Φ1800x2400——微风化R=0.4×π×0.9×1.2×10000 a=13564KN取R=13000KN a(4)抗浮计算计算条件:a.抗浮设计水位标高从室外地坪起算,计算水头高度Hw=5.7+0.35-0.45=5.60米;b. 顶板覆土1.2米厚;计算柱距:8.0x8.0米;c.顶板厚h=200mm,主梁截面500x1000,次梁400x700(忽略);底板厚h=350mm,主梁截面400x900;则:水浮力为:F=10x5.60x8.0x8.0=3584 KN竖向轴力:W=8.0x8.0x[25x(0.2+0.35)+17x1.2]+0.4x0.55x25x(8.0+8.0)+0.5x0.8x25x(8. 0+8.0)=2433 KN抗拔力: R1=1.05F-W=1.05x3584-2433=1330 KN根据广东省《建筑地基基础设计规范》DBJ15-31-2003,第10.2.10条嵌岩桩,单桩竖向抗拔承载力特征值为(考虑入中风化累积长度不少于4.0米,取f=4Mpa): rpa. ZH1:Φ1200抗拔桩,扩底Φ2000,支承于中风化岩,入岩0.5米最不利情况是,累积4米中风化岩连续均为强风化岩,抗拔桩最短桩长为6.0米,其抗拔力为: R=uΣλql+0.9Gtapisiai0=πx4x2.0x(0.70x90)+πx0.5x2.0x(0.70x0.03x4000)+ π/4x1.2x1.2x25x6.0 =1582+263+169=1915 KN,取R =1800 KN ta其相应竖向承载力特征值为:2R=0.4xπ/4x2.0x4000 a=5024 KN,取R =5000 KN ab. ZH2:Φ1200抗拔桩,扩底Φ2200,支承于中风化岩,入岩0.5米最不利情况是,累积4米中风化岩连续均为强风化岩,抗拔桩最短桩长为6.0米,其抗拔力为: R=uΣλql+0.9Gtapisiai0=πx4x2.2x(0.70x90)+πx0.5x2.2x(0.70x0.03x4000) =1740+290+1692=2199 KN,取R =2100 KN ta其相应竖向承载力特征值为:2R=0.4xπ/4x2.2x4000 a=6079 KN,取R =6000 KN ac. 配筋计算322配筋计算As=1330x10/300=4433mm,实配18Φ20(As=6280 mm)32б=Nk/As=1330x10/6280=211.8 N/mm sk?=1.1-0.65f/ρб=1.1-0.65x2.01/(0.01x211.8)=0.4831 tktesk 2d=30x20/30x1.0x20=20mm eqw=α?б(1.9c+0.08d/ρ)/E maxcrskeqtes5=2.2x0.4831x211.8x(1.9x35+0.08x20/0.01)/2.0x10=0.254mm?0.2mm2调整配筋,实配28Φ20(As=8792 mm)32б=Nk/As=1330x10/8792=151.2 N/mm sk?=1.1-0.65f/ρб=1.1-0.65x2.01/(0.01x151.2)=0.236 tktesk 2d=30x20/30x1.0x20=20mm eqw=α?б(1.9c+0.08d/ρ)/E maxcrskeqtes5=2.2x0.236x151.2x(1.9x35+0.08x20/0.01)/2.0x10=0.089mm根据上述计算,裂缝宽度为0.089mm?0.2mm,满足抗裂要求。