单桩竖向承载力特征值计算方法
- 格式:doc
- 大小:49.00 KB
- 文档页数:2
(一)单桩承载力特征值是什么?1、单位桩体所能承受的极限荷载力也就是最大静载试验压力除以安全系数2.0得出的标准值2、指单桩在外荷载作用下,不丧失稳定,不产生过大变形所能承受的最大荷载特征值。
符号为Ra3、由荷载试验测定的单桩压力变形曲线线性变形段内规定的变形所对应的压力值,其最大值为比例界限值(二)最近在搞水泥土搅拌桩(桩径500mm),设计给的复合地基承载力特征值是250kp,现在要计算单桩承载力特征值,应该怎么计算?《建筑地基处理技术规范》JGJ79-2002上有公式计算,但是有好多公式中的符号不知道是什么意思,求高手解答。
另外,能不能根据复合地基承载力的特征值推算出单桩的承载力特征值?楼主的原意是不是这样:设计给的水泥搅拌桩复合地基承载力特征值是250kp,这是设计要求,桩径500mm,其它还不太清楚,在此条件下,可以按下述步骤依据3楼公式反算:首先参数确定:fspk─复合地基承载力特征值250kPa,设计要求值;Ap─搅拌桩截面积(m2),500mm桩径为0.19625m^2;fsk─桩间土承载力特征值(kPa),可查勘察报告确定,一般水泥搅拌桩加固作复合地基的地层承载力都不高,假设查勘察报告应取100kPa;m─面积置换率,由计划的加固桩桩间距确定,我们暂时假设按3d桩间距布桩,则置换率为0.19625/(1.5*1.5)=0.0872;β─桩间土承载力折减系数,一般取0.7。
按3楼搅拌桩复合地基承载力特征值一般可按下式估算:fspk=m(Ra/Ap)+β(1-m)fsk则要求的单桩竖向承载力特征值:Ra=Ap(fspk-β(1-m)fsk)/m=0.19625(250-0.7(1-0.0872)100)/0.0872=418.8(kN)就是说按3d桩间距均布500mm搅拌桩,要达到设计要求的250kPa复合地基承载力需要,当地桩间土承载力特征值为100kPa时,要求的搅拌桩单桩竖向承载力特征值为420kN,按此方案,就可依据勘察报告提供的搅拌桩桩基参数,进一步确定单颗搅拌桩应该多长,能够达到420kN。
滨江花园φ500/600直径
单桩承载力计算书
本计算采用:建筑地基基础设计规范(GB50007-2002)
根据甲方提供的地质勘察报告,甲方要求改用长螺旋管灌注桩,桩端进入强风化玄武岩层不小于0.5m,桩端土承载力特征值为:
对于500直径的桩q pa=3000kPa。
1,单桩竖向承载力特征值估算(式8.5.5-1):
R t=q pa A P+ u p∑q sia l i=0.252*3.14*3000+0.50*3.14*30粘土21.0 =588KN +989N
=1577KN
2,桩身砼强度应满足桩的承载力设计要求(式8.5.9):
Q≤A P f c¢c=0.252*3.14*14.3*0.6=1683KN
3,单桩承载力特征值取值:
R=Q/1.35=1683/1.35=1248KN 取(1200KN)
对于600直径的桩q pa=3000kPa。
1,单桩竖向承载力特征值估算(式8.5.5-1):
R t=q pa A P+ u p∑q sia l i=0.302*3.14*3000+0.60*3.14*30粘土21.0 =847KN +1186N
=2033KN
2,桩身砼强度应满足桩的承载力设计要求(式8.5.9):Q≤A P f c¢c=0.302*3.14*14.3*0.6=2425KN
3,单桩承载力特征值取值:
R=Q/1.35=2425/1.35=1800KN 取(1800KN)
设计:
校对:
审核:
长宇(珠海)国际建筑设计有限公司。
单桩承载力特征值计算
在计算单桩承载力特征值时,首先需要了解桩的受力机制。
一般情况下,单桩的承载力由桩端摩擦力和端阻力两部分组成。
桩端摩擦力主要由
桩与土壤之间的侧面摩擦力贡献,而端阻力则是由土壤对桩底部的阻力产生。
计算单桩承载力特征值的方法有很多,下面介绍几种常用的计算方法:
1.摩擦桩承载力计算:对于摩擦桩,最大承载力一般是通过桩侧摩擦
力计算得到。
常用的计算方法有龙标公式、莫尔-库仑公式等。
其中,龙
标公式可以用来计算粘性土、粉土和含边坡土的桩侧摩擦力,而莫尔-库
仑公式适用于沙土和砾石土。
2.端承桩承载力计算:对于端承桩,最大承载力主要通过桩底端阻力
计算得到。
常用的计算方法有桩端阻力计算公式、本构模型和土压力理论法。
其中,桩端阻力计算公式可以根据土壤类型和桩的几何尺寸得到相应
的计算公式。
3.综合计算:在一些复杂的情况下,单桩的承载力特征值可能同时受
到桩侧摩擦力和桩底端阻力的影响,此时需要将两者的计算结果综合考虑。
通常采用等效摩擦角的方法,将桩侧摩擦力和桩底端阻力分别以等效摩擦
角和等效摩擦力表示。
对于已知设计荷载和土壤参数的情况,可以采用以上的计算方法进行
单桩承载力特征值的计算。
但需要注意的是,在工程实际中,土壤的性质
是非常复杂和多变的,因此在计算过程中需要合理选择计算方法,并结合
实际情况进行修正和调整。
此外,为了获得更准确的结果,通常需要进行
现场试验和监测,以验证计算结果的可靠性。
在建筑工程中,单桩竖向承载力特征值1200kn是一个十分重要的概念。
它直接关系到工程的稳定性和安全性。
在本文中,我们将深入探讨单桩竖向承载力特征值1200kn的相关内容,包括其定义、计算方法、影响因素以及工程应用。
一、单桩竖向承载力特征值1200kn的定义单桩竖向承载力特征值1200kn指的是桩的竖向承载能力的特征值,是指在一定的可靠度水平下,桩的竖向承载能力的最小值。
通常以单位载荷下桩的竖向沉降或位移来表示。
在工程设计中,确定单桩竖向承载力特征值1200kn是十分重要的,它直接关系到桩基工程的稳定性和安全性。
二、计算方法在计算单桩竖向承载力特征值1200kn时,通常可以采用静力荷载试验、动力触发试验、静力触发试验等方法,通过测试得到桩的受力性能参数,再通过相应的计算方法得到单桩的竖向承载力特征值。
在实际工程中,可以根据桩的类型、地质条件、荷载大小等因素选择合适的计算方法,确保得到准确可靠的结果。
三、影响因素单桩竖向承载力特征值1200kn受到多种因素的影响,主要包括桩的类型、土壤的性质、荷载的大小、桩的长度和直径等方面。
不同的因素对承载力特征值的影响程度不同,因此在工程设计中需要综合考虑这些因素,确保得到合理、准确的承载力特征值。
四、工程应用单桩竖向承载力特征值1200kn在实际工程中具有重要的应用价值。
在基础设计、桥梁工程、港口工程等领域,都需要准确地确定单桩的竖向承载力特征值,以保证工程的稳定性和安全性。
通过合理的计算和分析,可以为工程设计提供可靠的数据支持,为工程建设提供保障。
五、个人观点和理解在我看来,单桩竖向承载力特征值1200kn是桩基工程设计中的重要参数,它直接关系到工程的稳定性和安全性。
在实际工程中,我们需要通过科学的测试和分析方法,准确地确定承载力特征值,为工程设计和建设提供可靠的数据支持。
我们也需要不断地改进和完善计算方法,以适应不断变化的工程需求。
总结回顾通过本文的讨论,我们对单桩竖向承载力特征值1200kn有了更深入的了解。
单桩竖向承载力特征值计算公式单桩竖向承载力特征值计算公式是一种用于估算土层中单桩竖向承载力的标准公式,它可以帮助工程人员快速有效地评估桩末端的竖向承载力。
根据桩的不同形式,单桩竖向承载力特征值计算公式也有不同的形式,主要分为钢筋混凝土桩、钢管桩、木桩三种。
1.钢筋混凝土桩:单桩竖向承载力特征值计算公式为F=0.2Qt×B×D,其中Qt表示桩顶部抗压强度,B表示桩的直径或边长,D表示桩的基底高度。
2.钢管桩:单桩竖向承载力特征值计算公式为F=0.3Qt×D×L,其中Qt表示桩顶部抗拔强度,D表示桩的外径,L表示桩的基底高度。
3.木桩:单桩竖向承载力特征值计算公式为F=0.5Qt×B×D,其中Qt表示桩顶部抗压强度,B表示桩的直径或边长,D表示桩的基底高度。
以上三种桩类型的竖向承载力特征值计算公式不仅反映桩的基础地基条件,还反映桩体结构自身的特性,可以作为建立桩体竖向承载力的重要参考依据。
在计算桩体竖向承载力时,单桩竖向承载力特征值计算公式可以帮助工程人员简化复杂的地质条件和桩体结构影响因素,从而快速有效地确定桩末端的竖向承载力。
在计算桩体竖向承载力时,如果某一项因素出现异常,如桩体结构出现裂缝,此时,工程人员还需要结合实际情况加以修正,以确保桩末端的竖向承载力的精确性。
另外,为了更好地确定桩末端的竖向承载力,还需要对桩体施工过程中发生的变化进行及时跟踪,如桩基础下沉或倾斜度发生变化等。
如果检测发现变化超出了可接受范围,则需要及时采取措施调整桩体竖向承载力,以确保其安全性。
总之,单桩竖向承载力特征值计算公式可以帮助工程人员快速有效地评估桩末端的竖向承载力,并且在计算过程中要结合实际情况加以修正,以确保桩末端的竖向承载力的精确性。
此外,还需要对桩体施工过程中发生的变化进行及时跟踪,以确保桩末端的竖向承载力的安全性。
单桩竖向承载力特征值和标准值的关系
单桩竖向承载力特征值和标准值的关系
一、定义
单桩竖向承载力特征值是指在一定可靠度下,单根桩柱在垂直方向上能够承受的最大荷载。
标准值是指在设计中所规定的单根桩柱在垂直方向上所能承受的最大荷载。
二、影响因素
1. 桩身材料和强度等级;
2. 桩身长度和直径;
3. 桩身形状和截面积形状;
4. 岩土地层性质和桩基埋深等。
三、计算方法
1. 根据设计要求确定标准值;
2. 根据实测数据或经验公式计算出单桩竖向承载力特征值;
3. 将计算出的单桩竖向承载力特征值与标准值进行比较,确定是否满
足设计要求。
四、关系
单桩竖向承载力特征值与标准值之间存在以下关系:
1. 若单桩竖向承载力特征值大于标准值,则该桩具有足够的承载能力,可满足设计要求;
2. 若单桩竖向承载力特征值小于标准值,则该桩承载能力不足,需要
采取加固措施或重新设计;
3. 若单桩竖向承载力特征值等于标准值,则该桩刚好满足设计要求。
五、结论
单桩竖向承载力特征值和标准值的关系是评估桩基承载能力的重要依据。
在设计中,应根据实际情况综合考虑各种因素,确定合理的标准值,并通过计算得出单桩竖向承载力特征值,以保证工程质量和安全性。
单桩承载力验算一、土层分布情况二、单桩竖向承载力特征值桩端持力层为全风化花岗岩,按《建筑桩基技术规范》(JGJ94-2008),中性点深度比l n /l 0=,桩周软弱土层下限深度l 0=,则自桩顶算起的中性点深度l n =。
根据规范可知,该处承载力特征值只计中性点以下侧阻值及端阻值。
kN l q u A q Q i sik p pk 3976)613021.712(1141600uk =⨯+⨯⨯⨯+⨯⨯=+=∑ππkN Q K R uk a 19883894211=⨯== 三、单桩负摩阻力第一层路堤填土和杂填土自重引起的桩周平均竖向有效应力: 地下水以上部分:Pa k 93.6594.6192111=⨯⨯=σ; 地下水以下部分:Pa k 06.1396.1)1019(2194.61912=⨯-⨯+⨯=σ; 则kPa 20512111=+=σσσ;第二层淤泥自重引起的桩周平均竖向有效应力:kPa 26.182)54.863.21()105.15(216.1)1019(94.6192=-⨯-⨯+⨯-+⨯=σ; ;,故取kPa q kPa kPa q n s n n s 24245.612053.01111=>=⨯==σξ ;,故取kPa q kPa kPa q n s n n s 121245.3626.1822.01222=>=⨯==σξ 对于单桩基础,不考虑群桩效应则1n =η;基桩下拉荷载:kN l q u Q n i i n si n ng1137))54.863.21(1254.824(10.11=-⨯+⨯⨯⨯⨯==∑=πη 四、单桩分担面积上的荷载kN N 720)2520(44k =+⨯⨯=五、验算N R N Q N a n k 1988k 185********g k =<=+=+故单桩承载力满足要求。
按照摩擦性桩验算: kN l q u A q Q i sik p pk 2752)313021.712(1141600uk =⨯+⨯⨯⨯+⨯⨯=+=∑ππkN Q K R uk a 137********=⨯== kN N 720)2520(44k =+⨯⨯= a R N <k故单桩承载力满足要求。
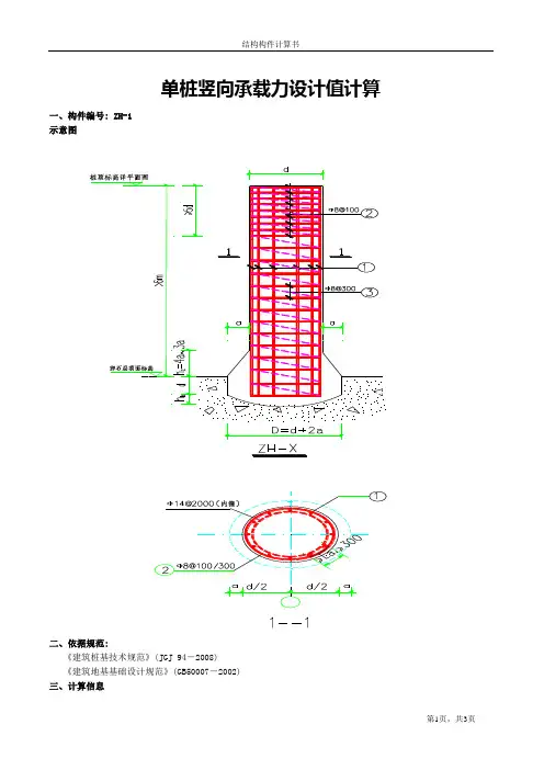
单桩竖向承载力设计值计算一、构件编号: ZH-1示意图二、依据规范:《建筑桩基技术规范》(JGJ 94-2008)《建筑地基基础设计规范》(GB50007-2002)三、计算信息1.桩类型: 桩身配筋率<0.65%灌注桩2.桩顶约束情况: 固接3.截面类型: 圆形截面4.桩身直径: d=800mm;桩端直径: D=1200mm5.材料信息:1)混凝土强度等级: C30 fc=14.3N/mm2 Ec=3.0×104N/mm22)钢筋种类: HRB335 fy=300N/mm2fy,=300N/mm2Es=2.0×105N/mm23)钢筋面积: As=2155mm24)净保护层厚度: c=50mm6.其他信息:1)桩入土深度: H>6.000m7.受力信息:桩顶竖向力: N=1169kN四、计算过程:1)根据桩身的材料强度确定桩型:人工成孔灌注桩(d≥0.8m)桩类别:圆形桩桩身直径D =800mm桩身截面面积A ps=0.50m桩身周长u=2.51mR a=ψc f c A ps +0.9f y,A S,【5.8.2-1】式中A ps————桩身截面面积f c———混凝土轴心抗压强度设计值ψc———基桩成孔工艺系数,预制桩取0.85,灌注桩取0.7~0.8。
f y,———纵向主筋抗压强度设计值A S,———纵向主筋截面面积R a =5363+582=5945KN2)根据经验参数法确定计算依据:《建筑桩基技术规范》JGJ94-2008和本项目岩土工程勘察报告单桩竖向承载力特征值(R a)应按下式确定:R a=1/k×Q uk 【5.2.2】式中Q uk————单桩竖向极限承载力标准值K———安全系数,取K=2.Q uk=Q sk+Q pk= u∑ψsi q sik L i +ψp q pk A p 【5.3.6】桩型: 人工成孔灌注桩(d≥0.8m)桩类别:圆形桩桩端直径D =1200mm桩端面积A p=1.13m桩端周长u=3.77m第1土层为:不计阻力土层,极限侧阻力标准值q sik=10Kpa土层厚度L i= 9.5 m极限侧阻力标注值Q sk=u×L i×q sik =1.88×9.5 ×10= 179.07KN 第2土层为:不计阻力土层,极限侧阻力标准值q sik=10Kpa土层厚度L i= 4 m极限侧阻力标注值Q sk=u×L i×q sik=1.88×4 ×10= 75.2 KN 第3土层为:不计阻力土层,极限侧阻力标准值q sik=150Kpa土层厚度L i= 1 m极限侧阻力标注值Q sk=u×L i×q sik=1.88×1 ×150= 282.74 KN总极限侧阻力标注值Q sk=∑Q sk= 537 KN极限端阻力标准值q pk=3000KN总极限端阻力标注值Q pk=q pk×A p=3000×0.28= 792 KNQ uk=Q sk+Q pk=537+792=1330单桩竖向承载力特征值R a = 666KN。
单桩竖向承载力特征值计算方法
1.确定桩的几何尺寸参数:包括桩的直径或边长、长度等参数。
这些参数可以通过现场测量或者设计文件中获取。
2.选择合适的桩基承载力计算方法:根据桩的类型和土层条件,选择合适的计算方法。
常用的计算方法有静力荷载试验法、触探法、经验公式法和数值模拟法等。
3.进行土层参数测定:确定土层的物理力学参数,包括土的容重、摩擦角、内摩擦角等。
土层参数可以通过现场采样试验或者现有资料获取。
4.进行桩身摩阻力计算:根据土层的参数和桩的几何尺寸,计算桩身的摩阻力。
摩阻力是桩的垂直承载力的主要组成部分,是土与桩身之间产生的摩擦力。
5.进行桩端承载力计算:根据桩端的形状和土层的物理参数,计算桩端的承载力。
桩端的承载力主要来自于土的抗剪强度。
6.综合计算桩的竖向承载力:将桩身的摩阻力和桩端的承载力进行综合计算,得到桩的总承载力。
可以采用各个力学模型的叠加法或者有限元分析等方法进行计算。
7.计算特征值:根据计算结果,确定单桩的竖向承载力特征值。
特征值一般是指在一定的可靠性要求下,其中一物理量的统计特性值。
需要注意的是,在计算单桩的竖向承载力时,还需要考虑其他因素,如桩的侧阻力、开挖对周围土体的影响、桩的安装质量等。
这些因素会对桩的承载力产生重要影响,需要在计算中进行综合考虑。
总之,单桩竖向承载力特征值的计算方法包括确定桩的几何尺寸参数、选择适当的计算方法、测定土层参数、计算桩身摩阻力和桩端承载力、综
合计算桩的承载力等步骤。
通过这些步骤,可以得到单桩竖向承载力的特
征值,提供给工程设计和施工中的相关计算和决策。
工程名称:长动还建楼住宅小区设计依据:《复合地基技术规范》(GB/T50783-2012)1、计算CFG桩单桩竖向抗压承载力特征值(第5.2.2、14.2.6条)计算公式:Ra=Up*Σqsai*li+α*qp*ApCFG桩桩身直径D=500mm,桩端持力层为强风化泥质粉砂岩,桩端全断面进入持力层深度hr≥1.0m;有效桩长L≥6.0米。
Up=3.14*0.5=1.57(m);Ap=3.14*0.5*0.5/4=0.196(m2)取qsa1=30kPa,L1=2.0m;qsa2=50kPa,L2=3.0m;qsa3=80kPa,L2=0.5m桩端土地基承载力折减系数α=1.0,qp=800kPaRa==380+156.8=536.8(kN)取Ra=530kN2、计算CFG桩桩体强度(第5.2.2、14.2.6条)计算公式:Ra=η*fcu*Ap;fcu=Ra/(η* Ap)桩体强度折减系数η=0.33fcu=530/(0.33*0.196)=8194(kPa)=8.20MPa取fcu=20MPa3、CFG桩复合地基承载力计算(第5.2.1、14.2.5条)计算公式:fspk=βp*m*Ra/Ap+βs*(1-m)*fskβp=1.0,βs=0.7Ra=530kN,fsk=fak=220kPaD=0.5m,S=3*0.5=1.5(m),De=1.13*1.5=1.695(m)m=D*D/(De*De)=0.087fspk=1.0*0.087*530/0.196+0.7*(1-0.087)*220=235.2+140.6=375.8(kPa)取fspk=370kPa工程名称:长动还建楼住宅小区设计依据:《建筑地基处理技术规范》(JGJ 79-2012)1、计算CFG桩单桩竖向抗压承载力特征值(第7.1.5、7.7.2条)计算公式:Ra=Up*Σqsai*li+α*qp*ApCFG桩桩身直径D=500mm,桩端持力层为强风化泥岩,桩端全断面进入持力层深度hr 深度hr≥0.5m;有效桩长L≥5.5米。
单桩竖向承载力特征值1200kn
摘要:
1.单桩竖向承载力特征值的定义
2.单桩竖向承载力特征值的计算方法
3.单桩竖向承载力特征值的应用
4.静载试验在确定单桩竖向承载力特征值中的作用
5.桩身承载力控制极限承载力的工程桩试验方法
正文:
一、单桩竖向承载力特征值的定义
单桩竖向承载力特征值是指静载试验测定的单桩压力变形曲线线形变形段内规定的变形所对应的压力值。
它反映了单桩在竖向荷载作用下所能承受的最大荷载,是桩基设计中一个重要的参数。
二、单桩竖向承载力特征值的计算方法
《建筑地基基础设计规范》(GB 50007-2011)确定了单桩竖向承载力特征值的计算方法,主要采用静载试验法。
静载试验是通过对桩施加竖向压力,观测桩身应力和应变变化,从而确定单桩竖向承载力特征值的试验方法。
三、单桩竖向承载力特征值的应用
单桩竖向承载力特征值在桩基设计中具有重要作用,可用于确定桩的设计承载力、桩的数量、桩的布置等。
此外,它还可用于对工程桩的承载力进行抽样检验和评价,以确保桩基工程的质量。
四、静载试验在确定单桩竖向承载力特征值中的作用
静载试验是确定单桩竖向承载力特征值的重要手段。
通过静载试验,可以
模拟桩在实际工作条件下的受力情况,从而更准确地确定单桩竖向承载力特征值。
五、桩身承载力控制极限承载力的工程桩试验方法
对于以桩身承载力控制极限承载力的工程桩,静载试验应加载至承载力设计值的1.5-2 倍。
这样可以确保桩在实际工作中能够承受设计荷载,并且有一定的安全储备。
一、设计资料
1、基桩设计参数
成桩工艺:混凝土预制桩
承载力设计参数取值:根据建筑桩基规范查表
桩顶标高:-1.5m
桩身设计直径:d=0.400m
桩身长度:L=10m
3、设计依据
《建筑桩基技术规范》(JGJ-94-94),以下简称桩基规范
《建筑地基基础规范》(GB50007-2002)以下简称基础规范
二、单桩竖向抗压承载力计算
2、桩身周长u,桩端面积Ap
u=3.14*0.4=1.256m
Ap=3.14*0.4^2/4=0.1256㎡
3、单桩竖向承载力估算
根据桩基规范5.2.8按下式计算
Quk=Qsk+Qpk
土的总极限侧阻力标准值:
Qsk=1.256*(1.1*30+1.7*50+2.4*98+4.8*170)=1469kN
总极限端阻力标准值:
Qpk=0.1256*5000=628kN
单桩竖向抗压极限承载力标准值为:
Quk=Qsk+Qpk=1469+628=2097Kn
单桩竖向承载力特征值Ra计算。
根据基础规范附录Q条文Q.0.10第7条规定Ra=Quk/2=1049kN。
单桩竖向承载力特征值
单桩竖向承载力特征值,一般是指单桩竖向承载力极限值除以一个安全系数(一般为2)。
特征值大则可使用的桩承载能力就大,要求同样承载力时桩就可小些或少些,材料可能会节省点;单桩竖向承载力特征值是由地基地质情况和拟选用桩型决定的,其值大说明地质条件好,对建筑物有利。
取值原则
在取值原则上,特征值和标准值的本质是一样的。
但是在使用意义上,它是设计值。
过去地基规范有的叫标准值,有的叫设计值,新规范为了避免混淆,才将地基承载力称为“特征值”。
有些地勘报告里的标准值,实际上就是我们所说的特征值。
如果给出的是极限值,就应该除以2.0,就是特征值了。
单桩竖向承载力特征值按《建筑桩基技术规范》JGJ94 -2008第5.2.2条公式5.2.2计算:R a=Q uk/K式中:R a——单桩竖向承载力特征值;Q uk——单桩竖向极限承载力标准值;K——安全系数,取K=2。
1. 一般桩的经验参数法此方法适用于除预制混凝土管桩以外的单桩。
按JGJ94-2008规范中第5.3.5条公式5.3.5计算:式中:Q sk——总极限侧阻力标准值;Q pk——总极限端阻力标准值;u——桩身周长;l i——桩周第i 层土的厚度;A p——桩端面积;q sik——桩侧第i 层土的极限侧阻力标准值;参考JGJ94-2008规范表5.3.5-1取值,用户需在地质资料土层参数中设置此值;对于端承桩取q sik=0;q pk——极限端阻力标准值,参考JGJ94-2008规范表5.3.5- 2取值,用户需在地质资料土层参数中设置此值;对于摩擦桩取q pk=0;2. 大直径人工挖孔桩(d≥800mm)单桩竖向极限承载力标准值的计算此方法适用于大直径(d≥800mm)非预制混凝土管桩的单桩。
按JGJ94-2008规范第5.3.6条公式5.3.6计算:式中:Q sk——总极限侧阻力标准值;Q pk——总极限端阻力标准值;q sik——桩侧第i层土的极限侧阻力标准值,可按JGJ94-2008规范中表5.3.5-1取值,用户需 1取值,用户需在地质资料土层参数中设置此值;对于扩底桩变截面以上2d范围不计侧阻力;对于端承桩取q sik=0;q pk——桩径为800mm极限端阻力标准值,可按JGJ94-2008规范中表5.3.6- 1取值;用户需在地质资料土层参数中设置此值;对于摩擦桩取qpk=0;ψsi,ψp——大直径桩侧阻、端阻尺寸效应系数,按JGJ94-2008表5.3.6-2取值;u——桩身周长。
3. 钢管桩单桩竖向极限承载力标准值的计算按JGJ 94-2008规范第5.3.8条公式5.3.8-1计算:式中:Q sk——总极限侧阻力标准值;Q pk——总极限端阻力标准值;q sik——桩侧第i层土的极限侧阻力标准值,可按JGJ94-2008规范中表5.3.5-1取值,用户需在地质资料土层参数中设置此值;对于端承桩取q sik=0;q pk——极限端阻力标准值,可按JGJ94-2008规范中表5.3.5-2取值;用户需在地质资料土层参数中设置此值;对于摩擦桩取q pk=0;l i——桩周第i层土的厚度;u——桩身周长;A j——空心桩端净面积面积;A p1——空心桩敞口面积;λp——桩端土塞效应系数。
单桩竖向承载力特征值按《建筑桩基技术规范》JGJ94 -2008第5.2.2条公式5.2.2计算:
R a=Q uk/K
式中:
R a——单桩竖向承载力特征值;
Q uk——单桩竖向极限承载力标准值;
K——安全系数,取K=2。
1. 一般桩的经验参数法
此方法适用于除预制混凝土管桩以外的单桩。
按JGJ94-2008规范中第5.3.5条公式5.3.5计算:
式中:
Q sk——总极限侧阻力标准值;
Q pk——总极限端阻力标准值;
u——桩身周长;
l i——桩周第i 层土的厚度;
A p——桩端面积;
q sik——桩侧第i 层土的极限侧阻力标准值;参考JGJ94-2008规范表5.3.5-1取值,用户需在地质资料土层参数中设置此值;对于端承桩取q sik=0;
q pk——极限端阻力标准值,参考JGJ94-2008规范表5.3.5- 2取值,用户需在地质资料土层参数中设置此值;对于摩擦桩取q pk=0;
2. 大直径人工挖孔桩(d≥800mm)单桩竖向极限承载力标准值的计算
此方法适用于大直径(d≥800mm)非预制混凝土管桩的单桩。
按JGJ94-2008规范第5.3.6条公式5.3.6
计算:
式中:
Q sk——总极限侧阻力标准值;
Q pk——总极限端阻力标准值;
q sik——桩侧第i层土的极限侧阻力标准值,可按JGJ94-2008规范中表5.3.5-1取值,用户
需 1取值,用户需在地质资料土层参数中设置此值;对于扩底桩变截面以上2d范围不计侧阻力;对于端承桩取q sik=0;
q pk——桩径为800mm极限端阻力标准值,可按JGJ94-2008规范中表5.3.6- 1取值;用户需在地质资料土层参数中设置此值;对于摩擦桩取qpk=0;
ψsi,ψp——大直径桩侧阻、端阻尺寸效应系数,按JGJ94-2008表5.3.6-2取值;
u——桩身周长。
3. 钢管桩单桩竖向极限承载力标准值的计算
按JGJ 94-2008规范第5.3.8条公式5.3.8-1计算:
式中:
Q sk——总极限侧阻力标准值;
Q pk——总极限端阻力标准值;
q sik——桩侧第i层土的极限侧阻力标准值,可按JGJ94-2008规范中表5.3.5-
1取值,用户需在地质资料土层参数中设置此值;对于端承桩取q sik=0;
q pk——极限端阻力标准值,可按JGJ94-2008规范中表5.3.5-2取值;用户需在地质资料土层参数中设置此值;对于摩擦桩取q pk=0;
l i——桩周第i层土的厚度;
u——桩身周长;
A j——空心桩端净面积面积;
A p1——空心桩敞口面积;
λp——桩端土塞效应系数。