单桩竖向水平承载力计算
- 格式:xls
- 大小:139.50 KB
- 文档页数:6
单桩承载力计算公式经验公式法是根据实际桩基荷载测试结果和工程经验总结出来的一种估算方法。
它通过考虑侧摩阻力和桩端承载力来确定单桩的承载力。
其中,侧摩阻力是指桩身在土中受到的水平支撑力,桩端承载力是指桩端在土中所受到的垂直承载力。
常用的经验公式包括贝尔传统公式、奥古斯丁公式和桩侧阻力计算公式等。
以下是常用的几种桩基承载力经验公式:1.贝尔传统公式:Qs=α*Ap*σp其中,Qs为桩的承载力,Ap为桩身的有效横截面积,σp为土的有效侧压力,α为桩的减载系数。
2.奥古斯丁公式:Qb=α*Ap*Nc*Sc+γ*Ap*Dp*ScQs = α * Ap * qb其中,Qb为桩端的承载力,Nc为静力触探指数,Sc为静力触探标贯击数校正系数,γ为土的体积重量,Dp为桩端直径,qb为桩侧阻力。
3.桩侧阻力计算公式:qb = α1 * β * γ * Ap * Ls其中,qb为桩侧阻力,α1为桩侧阻力系数,β为桩侧土的活动土压力系数,γ为土的体积重量,Ap为桩身的有效横截面积,Ls为桩身的长度。
以上是经验公式法常用的几种计算公式,它们都能够根据桩基的参数来估算单桩的承载力。
不过需要注意的是,经验公式法是以经验数据为基础的估算方法,仅适用于一定范围内的工程情况。
对于特殊情况或精确计算,静力触探法是更为准确可靠的方法。
静力触探法是一种利用静力触探试验结果来计算单桩承载力的方法。
静力触探试验是指通过将一定载荷施加到桩上,并测量沉桩深度和反力来判断桩基承载力的试验方法。
常用的计算单桩承载力的静力触探法有挑剔集合法、剖分桩身法和直接计算法等。
1.挑剔集合法:挑剔集合法是通过触探数据的分析和比较,将不同位置处的桩体分为若干剖分段,然后根据静力触探曲线力和沉桩深度的变化规律,确定桩身各剖分段的承载力。
最后,将各剖分段承载力相加得到单桩整体的承载力。
2.剖分桩身法:剖分桩身法是将桩身分为若干剖分段,通过触探数据和剖分段的长度来确定各剖分段的承载力。
单桩竖向水平承载力计算下面将详细介绍单桩竖向水平承载力的计算方法:1.确定桩的几何参数:-桩顶标高:桩顶到地面的高度。
-桩底标高:桩底到地面的高度。
-桩直径或边长:桩的横截面形状的尺寸。
-桩长:桩入土的深度。
2.获取土的力学参数:-弹性模量:土的刚度。
-泊松比:描述土的体积变化特性。
-有效内摩擦角:土的内摩擦特性。
3.计算桩的截面面积:-若桩为圆形,则桩的截面面积为π*(桩直径/2)²。
-若桩为方形,则桩的截面面积为桩边长²。
4.计算桩的侧阻力:桩的侧阻力主要由土与桩侧壁之间的黏聚力和摩擦力组成。
根据桩侧壁土与桩的总应力沿桩身线方向的分布特点,可以分为以下几个阶段计算:-上部非弹性阶段:计算侧阻力随桩的侧位移的增大而线性增加的过程。
-上部弹性阶段:计算侧阻力随桩的侧位移的增大而指数增加的过程。
-下部非弹性阶段:计算侧阻力随桩的侧位移的增大而线性增加的过程。
5.计算桩的端阻力:桩的端阻力主要由土与桩底之间的黏聚力和摩擦力组成。
根据桩底土与桩的总应力分布特点,可以分为以下两个阶段计算:-上部非弹性阶段:计算端阻力随桩的竖向位移的增大而线性增加的过程。
-上部弹性阶段:计算端阻力随桩的竖向位移的增大而指数增加的过程。
6.计算桩的抗滑性能:桩在水平荷载作用下,可能发生滑动和倾覆。
根据桩体与土体之间的相对运动关系,计算出桩的抗滑性能。
7.计算桩的平衡方程:各个阶段的侧阻力、端阻力和抗滑性能综合起来,可以得到桩的平衡方程。
通过求解平衡方程,可以得到桩的竖向水平承载力。
总结起来,单桩竖向水平承载力的计算涉及桩的几何参数、土体力学参数和水平荷载的作用等因素。
通过计算桩的侧阻力、端阻力和抗滑性能,并求解桩的平衡方程,可以得到桩的竖向水平承载力。
单桩水平承载力设计值计算
1.桩的抗侧承载力:桩体在水平力作用下的抗侧承载力是通过桩的侧阻力来提供的。
单桩水平承载力设计值的计算需要根据桩的类型和侧阻力计算方法,确定桩体的抗侧承载力。
2.桩的弯矩承载力:桩体在水平力作用下会产生弯矩,因此桩的弯矩承载力也是计算单桩水平承载力设计值的重要因素之一、根据桩的截面形状和弯矩分布情况,可以计算出桩的弯矩承载力。
3.桩的面积承载力:桩体在水平力作用下还会产生竖向力,并通过桩的底部承受地基的荷载。
因此,桩的面积承载力也需要考虑在单桩水平承载力设计值的计算中。
4.桩的稳定性:桩体在水平力作用下需要保持稳定,桩的倾覆和滑移不应该发生。
因此,单桩水平承载力设计值的计算还需要考虑桩体的稳定性,确定桩的抗倾覆和抗滑移的能力。
在实际工程中,根据具体的桩体和工程条件,可以采用不同的计算方法来计算单桩水平承载力设计值。
常用的计算方法有单桩侧阻力计算法、单桩抗倾覆力计算法、桩的弯矩计算法等。
在计算过程中,还需要考虑桩的荷载组合、桩的形状尺寸、桩的材料特性等因素。
通过综合考虑这些因素,可以得出单桩水平承载力设计值,以保证桩体在水平力作用下的安全可靠性。
总之,单桩水平承载力设计值的计算是一个复杂而重要的工作。
只有通过科学合理的计算,才能保证桩体在水平力作用下的稳定和安全性。
单桩承载力计算公式
1.斯托克斯公式(Q=σπd^2/4):
斯托克斯公式是最简单的单桩承载力计算公式,适用于均质、饱和、饱和度高于85%的细砂土和粉土。
其中,Q为桩的承载力,σ为当地有效应力,d为桩的直径。
2. 牛顿-拉福森公式(Q = 2πNR/ln(R/r)):
牛顿-拉福森公式适用于泥质土、细砂土和砾石土等非饱和土壤。
其中,Q为桩的承载力,N为土的可逆孔隙比,R为桩的侧摩擦力,r为桩的顶端摩擦力。
3. 迈士公式(Q = Ap + πNar + Qu):
迈士公式适用于粘土、粉土和砾石土等非完全饱和土壤。
其中,Q为桩的承载力,Ap为桩尖端摩擦力,Na为桩周侧摩擦力的修正系数,r为桩的半径,Qu为桩基的无约束压缩强度。
4. 布勒特公式(Q = Ap + Qu + 0.5πNar):
布勒特公式适用于饱和黏土和泥质土。
其中,Q为桩的承载力,Ap为桩尖端摩擦力,Qu为桩基的无约束压缩强度,Na为桩周侧摩擦力的修正系数,r为桩的半径。
5.声衰减公式(Q=σA+πp(Qr)):
声衰减公式适用于黏土和充满水分的砂土。
其中,Q为桩的承载力,σ为当地有效应力,A为桩尖部承载力分量,p为声衰减系数,Qr为桩身表面的剪切摩擦力。
以上只是一些常用的单桩承载力计算公式,不同土体和工程条件下可能会使用不同的公式。
在实际工程设计和计算中,需要根据具体情况选择合适的公式,并结合现场勘察和试验数据进行合理调整和校正,以确保计算结果的准确性和可靠性。
单桩竖向承载力特征值计算公式单桩竖向承载力特征值计算公式是一种用于估算土层中单桩竖向承载力的标准公式,它可以帮助工程人员快速有效地评估桩末端的竖向承载力。
根据桩的不同形式,单桩竖向承载力特征值计算公式也有不同的形式,主要分为钢筋混凝土桩、钢管桩、木桩三种。
1.钢筋混凝土桩:单桩竖向承载力特征值计算公式为F=0.2Qt×B×D,其中Qt表示桩顶部抗压强度,B表示桩的直径或边长,D表示桩的基底高度。
2.钢管桩:单桩竖向承载力特征值计算公式为F=0.3Qt×D×L,其中Qt表示桩顶部抗拔强度,D表示桩的外径,L表示桩的基底高度。
3.木桩:单桩竖向承载力特征值计算公式为F=0.5Qt×B×D,其中Qt表示桩顶部抗压强度,B表示桩的直径或边长,D表示桩的基底高度。
以上三种桩类型的竖向承载力特征值计算公式不仅反映桩的基础地基条件,还反映桩体结构自身的特性,可以作为建立桩体竖向承载力的重要参考依据。
在计算桩体竖向承载力时,单桩竖向承载力特征值计算公式可以帮助工程人员简化复杂的地质条件和桩体结构影响因素,从而快速有效地确定桩末端的竖向承载力。
在计算桩体竖向承载力时,如果某一项因素出现异常,如桩体结构出现裂缝,此时,工程人员还需要结合实际情况加以修正,以确保桩末端的竖向承载力的精确性。
另外,为了更好地确定桩末端的竖向承载力,还需要对桩体施工过程中发生的变化进行及时跟踪,如桩基础下沉或倾斜度发生变化等。
如果检测发现变化超出了可接受范围,则需要及时采取措施调整桩体竖向承载力,以确保其安全性。
总之,单桩竖向承载力特征值计算公式可以帮助工程人员快速有效地评估桩末端的竖向承载力,并且在计算过程中要结合实际情况加以修正,以确保桩末端的竖向承载力的精确性。
此外,还需要对桩体施工过程中发生的变化进行及时跟踪,以确保桩末端的竖向承载力的安全性。
单桩水平承载力特征值计算一、经验公式法经验公式法是最为简便的计算方法之一,适用于一些简单工程问题的初步估算。
常用的经验公式包括Poulos公式、Reese公式等。
以Poulos公式为例,其计算公式如下:q_hk = q_0 * (Hk/H0)^n其中,q_hk为水平承载力特征值,q_0为垂直承载力特征值,Hk为计算水平力作用点的深度,H0为垂直承载力特征值的计算深度(一般为桩侧摩阻力的计算深度),n为经验系数。
二、解析法解析法是通过数学计算得出桩基水平承载力特征值的方法,适用于较为复杂的工程问题。
其中,比较常用的方法包括古典弹性理论法、极限平衡法和有限元法等。
以古典弹性理论法为例,其计算步骤如下:1.确定土层参数:包括土壤重度、摩擦角、土的内摩擦角和压缩模量等参数。
2.确定水平力作用点的深度:根据工程要求和设计计算方法确定水平力作用点的深度。
3.计算抵抗水平力的力矩:根据水平力作用点的深度和各土层的土壤参数计算抵抗水平力的力矩。
4.计算倾覆稳定性:根据抵抗水平力的力矩和桩基的惯性力计算桩基的倾覆稳定性。
三、数值模拟法数值模拟法是利用计算机软件进行模拟计算得出桩基水平承载力特征值的方法,适用于复杂的工程问题。
常用的数值模拟软件包括PLAXIS、FLAC等。
数值模拟法的计算步骤包括建立数值模型、选择荷载组合和计算分析等。
在进行数值模拟计算时,需要输入一系列参数,包括土体参数、桩基参数、应力边界条件和荷载条件等。
计算结果可为各个节点或单元提供桩基的应力和应变信息,从而得到桩基的水平承载力特征值。
综上所述,单桩水平承载力特征值计算是一个复杂的过程,需要根据具体工程情况选择合适的计算方法。
在实际工程设计中,不同计算方法的结果可能会有一定差异,因此需要对计算结果进行综合考虑,确保桩基的安全可靠性。
单桩水平承载力计算1.侧向承载力计算:侧向承载力是指单桩在水平方向受到的外力作用下的抵抗能力,主要取决于桩身侧向土体的强度和桩身变形能力。
侧向承载力可以通过静载试验或者动态试验来获得。
静载试验法中常用的方法有高斯法和禧方法。
其中,高斯法是国际上普遍采用的一种方法。
该方法首先根据静载试验的数据绘制荷载和沉降曲线,然后根据岩土力学理论对试验数据进行分析,计算出桩的侧向承载力。
计算桩侧向承载力的基本公式可用以下公式表示:Qs = γzd · Ws + ξ · Qu其中,Qs表示桩的侧向承载力,γzd表示地面垂直应力,Ws表示桩侧面积,ξ表示桩侧摩擦力的折减系数,Qu表示桩顶部的抗拔力。
2.摩擦阻力计算:摩擦阻力是指单桩与土体之间的摩擦力,它主要由桩侧面土与桩基之间的相互作用所引起。
桩身的变形不会明显改变桩底土的水平应力分布,因此,侧摩擦力的分布可认为是均匀的。
摩擦阻力的计算可采用以下公式:Qr = π · L · D · γzr其中,Qr表示摩擦阻力,L表示桩的长度,D表示桩的直径,γzr表示桩基周边土的垂直应力。
通过以上的公式可以计算出单桩的侧向承载力和摩擦阻力,并将两者相加得到单桩的水平承载力。
需要注意的是,以上的公式只是一种基本的计算方法,实际工程中还需要考虑其他因素,如土体性质的变化、荷载的作用方式等。
因此,在实际应用中,还需要根据具体情况进行修正。
此外,为了提高单桩水平承载力的计算精度,可以采用数值模拟的方法,如有限元方法等。
这种方法可以将桩的具体形状和土体的力学性质进行建模,并考虑复杂的荷载条件和土体的非线性特性,从而得到更准确的计算结果。
单桩水平承载力计算一、静力分析法静力分析法是根据桩体受到的水平荷载产生的内力平衡条件来计算单桩水平承载力的方法。
计算步骤如下:1.确定桩的几何参数:包括桩的直径或截面面积、桩的长度等。
2.确定土的力学参数:包括土的内摩擦角、土的内聚力及土的重度等。
3.计算桩的自重:根据桩的几何参数和土的重度来计算桩的自重。
4.计算桩身的抗侧摩擦力:根据土的内摩擦角和桩的几何参数来计算桩身的抗侧摩擦力。
5.计算桩身的抗拔摩擦力:根据土的内摩擦角和桩的几何参数来计算桩身的抗拔摩擦力。
6.计算土中桩端反力:根据桩身的抗侧摩擦力、抗拔摩擦力和桩的自重来计算土中桩端反力。
7.确定桩身的刚度:根据桩的几何参数和土的力学参数来计算桩身的刚度。
8.计算桩的弯矩及最大挠度:根据土中桩端反力、桩的刚度和水平力来计算桩的弯矩和最大挠度。
9.计算桩的水平承载力:根据桩的弯矩和最大挠度来计算桩的水平承载力。
二、动力分析法动力分析法是根据桩体在水平荷载作用下的振动特性来计算单桩水平承载力的方法。
计算步骤如下:1.进行动力试验:通过在桩头上施加不同振动力和观测振动信号,得到桩的动力特性。
2.确定动力参数:包括桩的共振频率和桩的阻尼比等。
3.确定土的力学参数:包括土的剪切模量和土的阻尼比等。
4.计算桩的共振频率:根据桩的几何参数和土的力学参数来计算桩的共振频率。
5.确定桩的最大振幅:根据桩的几何参数、土的力学参数、桩的共振频率和振动力来计算桩的最大振幅。
6.计算桩的水平承载力:根据桩的最大振幅来计算桩的水平承载力。
静力分析法和动力分析法在实际工程中都有广泛的应用,选择合适的方法需要根据具体的工程情况和数据可靠性来决定。
此外,还有基于现场试验和数值模拟的方法可供选择,可以根据具体情况选择最合适的方法进行单桩水平承载力计算。
单桩承载力计算方法简述摘要:按单桩受力状态的不同对桩基进行了分类,对不同受力状态下的单桩进行分析,总结了单桩在不同受力情况下的极限承载力计算方法,分析了各种计算方法的适用性,并指出了目前计算方法中存在的问题。
关键词:桩基;荷载;承载力0 引言桩是深入土层的柱型构件,其作用是将上部结构的荷载通过桩身穿过较弱地层或水传递到深部较坚硬的、压缩性小的土层或岩层中,从而减少上部建筑物的沉降,确保建筑物的长久安全。
1 单桩极限承载力计算方法单桩极限承载力是指单桩在荷载作用下,地基土和桩本身的强度和稳定性均能得到保证,变形也在容许范围内,以保证结构物的正常使用所能承受的最大荷载[1]。
一般情况下,桩受到竖向荷载、水平荷载及弯矩的作用,因此需要分别研究和确定单桩的竖向承载力和水平向承载力。
(一)承受竖向荷载的单桩竖向极限承载力的计算方法单桩竖向极限承载力为桩土体系在竖向荷载作用下所能长期稳定承受的最大荷载,即单桩静载试验时桩顶能承受的最大试验荷载。
它反映了桩身材料、桩侧土与桩端土性状、施工方法等综合指标。
目前计算单桩竖向极限承载力的方法主要有以下几种:(1)静载试验法:静载试验是传统的也是最可靠的确定承载力的方法。
它不仅可以确定桩的极限承载力,而且可以通过埋设各类测试元件获得荷载传递、桩侧阻力、桩端阻力、荷载与沉降关系等诸多资料。
静载试验法通过在桩顶逐级施加竖向荷载,直至桩达到破坏状态为止,并在试验过程中测量每级荷载下不同时间的桩顶沉降,根据沉降与荷载及时间的关系,分析确定单桩竖向极限承载力。
但由于试验费用、工期、设备等原因,往往只能对部分工程的少量桩进行试验。
(2)经验公式法:根据全国各地大量的静载试验资料,经过理论分析和统计整理,给出不同类型的桩,按土的类别、密实度、稠度、埋置深度等条件下有关桩侧摩阻力及桩底阻力的经验系数、数据及相应的公式。
经验公式法是计算单桩竖向极限承载力的一种简化计算方法,计算方便,便于使用。
单桩竖向承载力设计值(R)计算过程:桩型:大直径灌注桩(清底干净)桩基竖向承载力抗力分项系数:γs=γp=γsp=1.65桩类别:圆形桩直径或边长d/a=1000mm截面积As=.78539815m周长L=3.1415926m第1土层为:不计阻力土层,极限侧阻力标准值qsik=0Kpa层面深度为:.0m; 层底深度为:1.4m土层厚度h= 1.4 m土层液化折减系数ψL=1极限侧阻力Qsik=L×h×qsik×ψL=3.1415926×1.4 ×0×1= 0 KN第2土层为:淤泥,极限侧阻力标准值qsik=10Kpa层面深度为:1.4m; 层底深度为:-12.1m土层厚度h= 13.5 m土层液化折减系数ψL=1极限侧阻力Qsik=L×h×qsik×ψL=3.1415926×13.5 ×10×1= 424.115001 KN第3土层为:粘土,极限侧阻力标准值qsik=26Kpa层面深度为:-12.1m; 层底深度为:-21.6m土层厚度h= 9.5 m土层液化折减系数ψL=1极限侧阻力Qsik=L×h×qsik×ψL=3.1415926×9.5 ×26×1= 775.9733722 KN第4土层为:粘土,极限侧阻力标准值qsik=50Kpa层面深度为:-21.6m; 层底深度为:-28.2m土层厚度h= 6.6 m土层液化折减系数ψL=1极限侧阻力Qsik=L×h×qsik×ψL=3.1415926×6.6 ×50×1= 1036.725558 KN总极限侧阻力Qsk=∑Qsik= 2236.8139312 KN极限端阻力标准值qpk=280KN极限端阻力Qpk=qpk×As=280×.78539815= 219.911482 KN总侧阻力设计值QsR=Qsk/γs= 1355 KN端阻力设计值QpR=Qpk/γp= 133 KN基桩竖向承载力设计值R=Qsk/γs+Qpk/γp= 2236.8139312 /1.65+ 219.911482 /1.65= 1488。
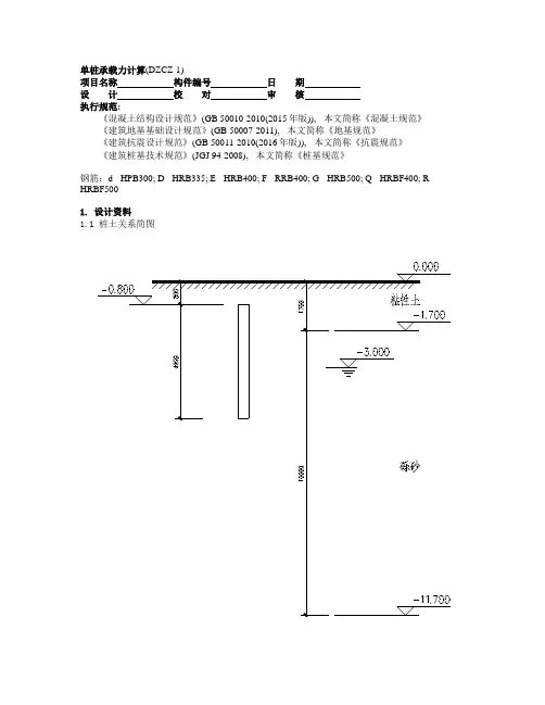
单桩承载力计算(DZCZ-1)项目名称构件编号日期设计校对审核执行规范:《混凝土结构设计规范》(GB 50010-2010(2015年版)), 本文简称《混凝土规范》《建筑地基基础设计规范》(GB 50007-2011), 本文简称《地基规范》《建筑抗震设计规范》(GB 50011-2010(2016年版)), 本文简称《抗震规范》《建筑桩基技术规范》(JGJ 94-2008), 本文简称《桩基规范》钢筋:d - HPB300; D - HRB335; E - HRB400; F - RRB400; G - HRB500; Q - HRBF400; R - HRBF500-----------------------------------------------------------------------1. 设计资料1.1 桩土关系简图1.2 已知条件(1) 桩参数承载力性状端承摩擦桩桩身材料与施工工艺干作业钻孔桩截面形状圆形砼强度等级 C30桩身纵筋级别 HRB400直径(mm) 350桩长(m) 4.000是否清底干净√端头形状不扩底(2) 计算内容参数竖向承载力√考虑负摩阻ㄨ受压桩桩身承载力√是否考虑压屈影响否成桩工艺系数ψc 0.75纵筋抗压作用折减系数ψs 0.90 水平承载力√允许水平位移(mm) 10.0轴力标准值(kN) -100.000永久荷载控制√地震作用√桩顶约束情况铰接桩身配筋 0.7纵筋保护层厚(mm) 60抗拔承载力ㄨ抗拔桩桩身承载力ㄨ软弱下卧层ㄨ考虑地基液化全考虑设计地震分组第一组抗震设防烈度 6度设防(0.05g)1.3 计算内容(1) 单桩竖向承载力(2) 受压桩桩身承载力(3) 单桩水平承载力2 计算过程及计算结果2.1 单桩竖向承载力(1) 竖向极限承载力侧阻计算序号地层名称地层厚度液化折减极限侧阻力本层侧阻(m) 系数Ψl qsik(kPa) (kN) =======================================================1 粘性土 0.90 1.0000 59.50 58.882 砾砂 3.10 1.0000 59.50 202.81 ======================================================= Σ 261.695 侧阻: Qsk=261.69 (kN)端阻计算q pk×A p=950.0000×0.0962=91.40 (kN)最后端阻Qpk=91.40(kN)(2) 竖向承载力特征值5.2.2及5.2.3R a——单桩竖向承载力特征值;Q uk——单桩竖向极限承载力标准值;K ——安全系数,取K=2。
单桩竖向承载力设计值计算一、构件编号: ZH-1示意图二、依据规范:《建筑桩基技术规范》(JGJ 94-2008)《建筑地基基础设计规范》(GB50007-2002)三、计算信息1.桩类型: 桩身配筋率<0.65%灌注桩2.桩顶约束情况: 固接3.截面类型: 圆形截面4.桩身直径: d=800mm;桩端直径: D=1200mm5.材料信息:1)混凝土强度等级: C30 fc=14.3N/mm2 Ec=3.0×104N/mm22)钢筋种类: HRB335 fy=300N/mm2fy,=300N/mm2Es=2.0×105N/mm23)钢筋面积: As=2155mm24)净保护层厚度: c=50mm6.其他信息:1)桩入土深度: H>6.000m7.受力信息:桩顶竖向力: N=1169kN四、计算过程:1)根据桩身的材料强度确定桩型:人工成孔灌注桩(d≥0.8m)桩类别:圆形桩桩身直径D =800mm桩身截面面积A ps=0.50m桩身周长u=2.51mR a=ψc f c A ps +0.9f y,A S,【5.8.2-1】式中A ps————桩身截面面积f c———混凝土轴心抗压强度设计值ψc———基桩成孔工艺系数,预制桩取0.85,灌注桩取0.7~0.8。
f y,———纵向主筋抗压强度设计值A S,———纵向主筋截面面积R a =5363+582=5945KN2)根据经验参数法确定计算依据:《建筑桩基技术规范》JGJ94-2008和本项目岩土工程勘察报告单桩竖向承载力特征值(R a)应按下式确定:R a=1/k×Q uk 【5.2.2】式中Q uk————单桩竖向极限承载力标准值K———安全系数,取K=2.Q uk=Q sk+Q pk= u∑ψsi q sik L i +ψp q pk A p 【5.3.6】桩型: 人工成孔灌注桩(d≥0.8m)桩类别:圆形桩桩端直径D =1200mm桩端面积A p=1.13m桩端周长u=3.77m第1土层为:不计阻力土层,极限侧阻力标准值q sik=10Kpa土层厚度L i= 9.5 m极限侧阻力标注值Q sk=u×L i×q sik =1.88×9.5 ×10= 179.07KN 第2土层为:不计阻力土层,极限侧阻力标准值q sik=10Kpa土层厚度L i= 4 m极限侧阻力标注值Q sk=u×L i×q sik=1.88×4 ×10= 75.2 KN 第3土层为:不计阻力土层,极限侧阻力标准值q sik=150Kpa土层厚度L i= 1 m极限侧阻力标注值Q sk=u×L i×q sik=1.88×1 ×150= 282.74 KN总极限侧阻力标注值Q sk=∑Q sk= 537 KN极限端阻力标准值q pk=3000KN总极限端阻力标注值Q pk=q pk×A p=3000×0.28= 792 KNQ uk=Q sk+Q pk=537+792=1330单桩竖向承载力特征值R a = 666KN。
一、设计资料
1、基桩设计参数
成桩工艺:混凝土预制桩
承载力设计参数取值:根据建筑桩基规范查表
桩顶标高:-1.5m
桩身设计直径:d=0.400m
桩身长度:L=10m
3、设计依据
《建筑桩基技术规范》(JGJ-94-94),以下简称桩基规范
《建筑地基基础规范》(GB50007-2002)以下简称基础规范
二、单桩竖向抗压承载力计算
2、桩身周长u,桩端面积Ap
u=3.14*0.4=1.256m
Ap=3.14*0.4^2/4=0.1256㎡
3、单桩竖向承载力估算
根据桩基规范5.2.8按下式计算
Quk=Qsk+Qpk
土的总极限侧阻力标准值:
Qsk=1.256*(1.1*30+1.7*50+2.4*98+4.8*170)=1469kN
总极限端阻力标准值:
Qpk=0.1256*5000=628kN
单桩竖向抗压极限承载力标准值为:
Quk=Qsk+Qpk=1469+628=2097Kn
单桩竖向承载力特征值Ra计算。
根据基础规范附录Q条文Q.0.10第7条规定Ra=Quk/2=1049kN。
单桩竖向承载力特征值按《建筑桩基技术规范》JGJ94 -2008第5.2.2条公式5.2.2计算:R a=Q uk/K式中:R a——单桩竖向承载力特征值;Q uk——单桩竖向极限承载力标准值;K——安全系数,取K=2。
1. 一般桩的经验参数法此方法适用于除预制混凝土管桩以外的单桩。
按JGJ94-2008规范中第5.3.5条公式5.3.5计算:式中:Q sk——总极限侧阻力标准值;Q pk——总极限端阻力标准值;u——桩身周长;l i——桩周第i 层土的厚度;A p——桩端面积;q sik——桩侧第i 层土的极限侧阻力标准值;参考JGJ94-2008规范表5.3.5-1取值,用户需在地质资料土层参数中设置此值;对于端承桩取q sik=0;q pk——极限端阻力标准值,参考JGJ94-2008规范表5.3.5- 2取值,用户需在地质资料土层参数中设置此值;对于摩擦桩取q pk=0;2. 大直径人工挖孔桩(d≥800mm)单桩竖向极限承载力标准值的计算此方法适用于大直径(d≥800mm)非预制混凝土管桩的单桩。
按JGJ94-2008规范第5.3.6条公式5.3.6计算:式中:Q sk——总极限侧阻力标准值;Q pk——总极限端阻力标准值;q sik——桩侧第i层土的极限侧阻力标准值,可按JGJ94-2008规范中表5.3.5-1取值,用户需 1取值,用户需在地质资料土层参数中设置此值;对于扩底桩变截面以上2d范围不计侧阻力;对于端承桩取q sik=0;q pk——桩径为800mm极限端阻力标准值,可按JGJ94-2008规范中表5.3.6- 1取值;用户需在地质资料土层参数中设置此值;对于摩擦桩取qpk=0;ψsi,ψp——大直径桩侧阻、端阻尺寸效应系数,按JGJ94-2008表5.3.6-2取值;u——桩身周长。
3. 钢管桩单桩竖向极限承载力标准值的计算按JGJ 94-2008规范第5.3.8条公式5.3.8-1计算:式中:Q sk——总极限侧阻力标准值;Q pk——总极限端阻力标准值;q sik——桩侧第i层土的极限侧阻力标准值,可按JGJ94-2008规范中表5.3.5-1取值,用户需在地质资料土层参数中设置此值;对于端承桩取q sik=0;q pk——极限端阻力标准值,可按JGJ94-2008规范中表5.3.5-2取值;用户需在地质资料土层参数中设置此值;对于摩擦桩取q pk=0;l i——桩周第i层土的厚度;u——桩身周长;A j——空心桩端净面积面积;A p1——空心桩敞口面积;λp——桩端土塞效应系数。
单桩承载力验算一、土层分布情况二、单桩竖向承载力特征值桩端持力层为全风化花岗岩,按《建筑桩基技术规范》(JGJ94-2008),中性点深度比l n /l 0=,桩周软弱土层下限深度l 0=,则自桩顶算起的中性点深度l n =。
根据规范可知,该处承载力特征值只计中性点以下侧阻值及端阻值。
kN l q u A q Q i sik p pk 3976)613021.712(1141600uk =⨯+⨯⨯⨯+⨯⨯=+=∑ππkN Q K R uk a 19883894211=⨯== 三、单桩负摩阻力第一层路堤填土和杂填土自重引起的桩周平均竖向有效应力: 地下水以上部分:Pa k 93.6594.6192111=⨯⨯=σ; 地下水以下部分:Pa k 06.1396.1)1019(2194.61912=⨯-⨯+⨯=σ; 则kPa 20512111=+=σσσ;第二层淤泥自重引起的桩周平均竖向有效应力:kPa 26.182)54.863.21()105.15(216.1)1019(94.6192=-⨯-⨯+⨯-+⨯=σ; ;,故取kPa q kPa kPa q n s n n s 24245.612053.01111=>=⨯==σξ ;,故取kPa q kPa kPa q n s n n s 121245.3626.1822.01222=>=⨯==σξ 对于单桩基础,不考虑群桩效应则1n =η;基桩下拉荷载:kN l q u Q n i i n si n ng1137))54.863.21(1254.824(10.11=-⨯+⨯⨯⨯⨯==∑=πη 四、单桩分担面积上的荷载kN N 720)2520(44k =+⨯⨯=五、验算N R N Q N a n k 1988k 185********g k =<=+=+故单桩承载力满足要求。
按照摩擦性桩验算: kN l q u A q Q i sik p pk 2752)313021.712(1141600uk =⨯+⨯⨯⨯+⨯⨯=+=∑ππkN Q K R uk a 137********=⨯== kN N 720)2520(44k =+⨯⨯= a R N <k故单桩承载力满足要求。
单桩竖向承载力计算单桩竖向承载力是指承载力以竖向力为主要作用力的情况下,单根桩的最大承载力。
单桩竖向承载力计算是土木工程中一个重要的计算问题,准确地计算出单桩的承载力对工程设计和安全至关重要。
以下是关于单桩竖向承载力计算的详细介绍。
1.泥质或软土情况下的承载力计算:在泥质或软土情况下,可以使用带端阻力和摩擦阻力的计算方法来计算单桩的竖向承载力。
计算公式可以根据不同的方法略有差异,但通常都包含以下两个主要的力。
1.1 端阻力(Base Resistance):指桩底部在承载层中产生的阻力。
端阻力主要由以下因素影响:桩的底面积、桩的横截面形状、桩身材料的性质、承载层的性质等。
计算方法可以使用Bowles公式或者其他经验公式。
1.2 摩擦阻力(Friction Resistance):指桩身与周围土体之间生成的摩擦阻力。
摩擦阻力主要受到以下因素的影响:桩身与土壤之间的摩擦系数、桩身表面的粗糙度、桩身的直径等。
计算方法可以使用Chin等人提出的公式。
2.岩石或硬土情况下的承载力计算:在岩石或硬土情况下,桩的承载力主要由桩底部的承载层提供。
这种情况下,可以忽略桩身与土体之间的摩擦阻力,只考虑桩底部的端阻力。
计算方法可以使用以下公式:核心承载力(Qc)=核心摩阻力(c)*受力面积(A)这里,核心摩阻力可以根据材料特性来确定。
受力面积可以根据桩身形状和尺寸进行计算。
单桩竖向承载力计算的准确性对工程设计和安全至关重要。
在实际工程中,应该尽可能地获取足够的岩土力学数据,如土壤类型、粘聚力、内摩擦角等,以便能够正确地计算桩的竖向承载力。
此外,在进行计算时还应考虑到周围环境的因素,如地下水位、温度变化等,以确保计算结果的准确性和可靠性。
总之,单桩竖向承载力计算是土木工程设计中的一个重要环节。
准确地计算单桩的承载力对于工程的稳定性和安全性至关重要。
相关计算方法、公式和参数应根据具体情况进行选择,结合实际工程要求和实际情况进行合理计算。