梁式楼梯设计计算例题
- 格式:doc
- 大小:365.84 KB
- 文档页数:8
楼梯折梁计算公式图解图文楼梯折梁计算公式图解图文为标题,写一篇文章,不要带图片,不低于1200字。
楼梯折梁是建筑结构中常见的构件之一,其设计和计算是建筑工程中重要的一部分。
本文将从楼梯折梁的定义、计算公式、图解图文等方面进行详细介绍。
一、楼梯折梁的定义。
楼梯折梁是指在楼梯结构中,用来支撑楼梯的横梁。
它承受着楼梯上行人的重量,所以在设计和计算时需要考虑到楼梯折梁的受力情况,以确保其安全可靠。
二、楼梯折梁的计算公式。
楼梯折梁的计算公式主要包括受力分析和截面计算两个方面。
1. 受力分析。
楼梯折梁在使用过程中会受到来自楼梯上行人的重力荷载,以及自身的自重荷载。
另外,还需要考虑到横梁的支撑情况,如支座的约束力等。
通过受力分析,可以得到楼梯折梁在不同位置的受力情况,为后续的截面计算提供依据。
2. 截面计算。
楼梯折梁的截面计算是指根据受力分析的结果,确定横梁的截面尺寸和钢筋布置。
一般来说,楼梯折梁的截面可以采用矩形截面或T形截面,根据具体情况选择合适的截面形式。
在确定截面尺寸和钢筋布置后,还需要进行受弯构件的受力计算,以验证楼梯折梁的承载能力。
三、楼梯折梁的图解图文。
楼梯折梁的图解图文是指通过图示和文字的方式,将楼梯折梁的设计和计算过程进行详细说明。
下面是楼梯折梁的图解图文:1. 楼梯折梁的受力分析。
首先,需要对楼梯折梁的受力情况进行分析。
楼梯折梁在使用过程中会受到来自楼梯上行人的重力荷载,以及自身的自重荷载。
另外,还需要考虑到横梁的支撑情况,如支座的约束力等。
通过受力分析,可以得到楼梯折梁在不同位置的受力情况,为后续的截面计算提供依据。
2. 楼梯折梁的截面计算。
楼梯折梁的截面计算是指根据受力分析的结果,确定横梁的截面尺寸和钢筋布置。
一般来说,楼梯折梁的截面可以采用矩形截面或T形截面,根据具体情况选择合适的截面形式。
在确定截面尺寸和钢筋布置后,还需要进行受弯构件的受力计算,以验证楼梯折梁的承载能力。
3. 楼梯折梁的验算。
梁式梯计算例1-5 某数学楼楼梯活荷载标准值为2.5kN /m 2,踏步面层采用30mm 厚水磨石,底面为20mm 厚,混合砂浆抹灰,混凝土采用C25,梁中受力钢筋采用HRB335,其余钢筋采用HPB235,楼梯结构布置如图1-82所示。
试设计此楼梯。
(a)楼梯结构平面 (b)楼梯结构剖面图1-82 梁式楼梯结构布置图解: 1. 踏步板(TB 一1)的计算(1)荷载计算(踏步尺寸mm mm b a 15030011⨯=⨯。
底板厚d=40mm) 恒荷载踏步板自重 m kN /08.1253.02045.0195.02.1=⨯⨯+⨯踏步面层重 m kN /35.065.0)15.03.0(2.1=⨯+⨯(计算踏步板自重时,前述ABCDE 五角形踏步截面面积可按上底为mm d 45894.0/40cos /==ϕ,下底为mm d b 195894.0/40150cos /1=+=+ϕ,高为a 1=300mm 的梯形截面计算。
)踏步抹灰重 m kN /14.01702.0894.03.02.1=⨯⨯⨯g=1.08+0.35+0.14=1.57kN/m使用活荷载 m kN q /05.13.05.24.1=⨯⨯=垂直于水平面的荷载及垂直于斜面的荷载分别为(2)内力计算斜梁截面尺寸选用150mmX350mm ,则踏步的计算跨度为踏步板的跨中弯矩(3)截面承载力计算取一踏步()150300(11mm mm b a ⨯+⨯为计算单元, 已知,894.0'5626cos cos 0==ϕ等效矩形截面的高度h 和宽度b 为 则:则: 2min 9.874.1297.2510027.0mm bh A s =⨯⨯==ρ踏步板应按min ρ配筋,每米宽沿斜面配置的受力钢筋m mm A s /9.261894.030010009.872=⨯⨯=,为保证每个踏步至少有两根钢筋,故选用ø8@150(A s =335mm 2)(一般配每踏步两根钢筋,而不按每米算,此题可商)2. 楼梯斜梁(TL 一1)计算(1) 荷载踏步板传来 m kN /99.73.01)15.0253.1(62.221=⨯⨯+⨯⨯斜梁自重 m kN /56.1894.012515.0)04.035.0(2.1=⨯⨯⨯-⨯斜梁抹灰 m kN /28.0894.0121702.0)04.035.0(2.1=⨯⨯⨯⨯-⨯楼梯栏杆 m kN /12.01.02.1=⨯总计 m kN q g /95.9=+(2) 内力计算取平台梁截面尺寸mm mm h b 450200⨯=⨯,则斜梁计算跨度:斜梁跨中弯矩和支座剪力为:(3) 截面承载能力计算取mm a h h 315353500=-=-=翼缘有效宽度'f b 按梁跨考虑 mml b f 6336/'0== 按梁肋净距考虑 mm b s b f 915150215302'0=+=+=由于,1.0350/40/'>=h h f 'f b 可不按翼缘厚度考虑,最后应取mm b f 633'=. 判别T 形截面类型:m kN M m kN h h h b f f f f c ⋅=>⋅=⨯-⨯⨯⨯=-1882)405.0315(406339.11)'5.0(''01α故按等一类T 型截面计算故选用212, 2226mm A s =由于无腹筋梁的抗剪能力:可按构造要求配置箍筋, 选用双肢箍ø6@300.3. 平台梁(TL 一2)计算(1) 荷载斜梁传来的集中力 kN Q G 9.188.395.921=⨯⨯=+平台板传来的均布恒荷载平台板传来的均布活荷载 m kN /5.35.2)2.026.1(4.1=⨯+⨯平台梁自重 m kN /34.225)06.045.0(2.02.1=⨯-⨯⨯平台梁抹灰 m kN /32.017)06.045.0(02.02.12=⨯-⨯⨯⨯总计 m kN q g /15.9=+(2) 内力计算(计算简图见图1-83)平台梁计算跨度故取 m l 95.30=跨中弯矩支座剪力考虑计算的斜截面应取在斜梁内侧,故图1-83 平台梁计算简图(3) 正截面承载力计算翼缘有效宽度b f ’,按梁跨度考虑mm l b f 6586/39506/'0===按梁肋净距考虑 mm b s b f 1000200216002'0=+=+=最后应取mm b f 658'=判别T 型截面类型:m kN M m kN h h h b f f f f c ⋅=>⋅=⨯-⨯⨯⨯=-56167)605.0415(606589.11)'5.0(''01α按第一类T 形截面计算选用218(A s =509m 2) (4) 斜截面承载力计算由于无腹筋梁的承载力可按构造要求配置箍筋,选用双肢箍ø6@200。
楼梯计算练习题楼梯是我们日常生活中经常会遇到的一个场景,无论是在家里、学校、办公场所还是公共场所,楼梯的设计和计算都是非常重要的。
本文将介绍一些楼梯计算的练习题,以帮助读者更好地理解楼梯的设计和计算方法。
1. 楼梯的基本组成部分楼梯主要由阶梯和扶手组成。
阶梯是我们踩踏的部分,需要合理的高度和宽度来保证人们的行走安全和舒适性。
扶手主要用于支撑和辅助人们上下楼梯,提供额外的支撑和保护作用。
2. 楼梯的设计原则在设计楼梯时,需要考虑以下几个原则:- 步长原则:步长是楼梯设计的基本参考指标,一般情况下,楼梯的步长应保持在50-65厘米之间,同时需要注意每个阶梯的高度和宽度的一致性,避免出现不均匀的阶梯,以免造成人们走路时的行走不稳。
- 高度原则:楼梯阶梯的高度需要保持一致性,一般情况下,每个阶梯的高度应保持在15-20厘米之间,过高或过低都会对人们的行走安全产生影响。
- 宽度原则:楼梯阶梯的宽度同样需要保持一致性,一般情况下,每个阶梯的宽度应保持在25-35厘米之间,过大或过小都会对人们的行走舒适性产生影响。
- 扶手原则:楼梯的扶手需要提供足够的支撑和保护作用,一般情况下,扶手的高度应保持在70-90厘米之间,同时需要注意扶手的稳固性和舒适性。
3. 楼梯计算的练习题接下来,我们来进行一些楼梯计算的练习题,以加深对楼梯设计和计算方法的理解。
练习题一:一个房间需要设计一段楼梯,楼梯高度为300厘米,每个阶梯的高度为15厘米,求需要设计多少个阶梯?解析:根据楼梯高度和每个阶梯的高度,可以通过除法计算出需要设计的阶梯个数。
300厘米除以15厘米等于20,所以需要设计20个阶梯。
练习题二:一段楼梯有15个阶梯,楼梯的总高度为270厘米,求每个阶梯的高度是多少?解析:根据楼梯的总高度和阶梯的个数,可以通过除法计算出每个阶梯的高度。
270厘米除以15等于18,所以每个阶梯的高度为18厘米。
练习题三:一段楼梯的高度为350厘米,每个阶梯的高度为20厘米,求需要设计多少个阶梯?解析:根据楼梯的高度和每个阶梯的高度,可以通过除法计算出需要设计的阶梯个数。
楼梯结构设计及计算一识别建筑题图1.建筑楼梯平面图(1)楼梯的位置:根据楼梯的编号或轴线号查到本楼梯在建筑平面图的位置。
(2)楼梯的尺寸(梯段板的踏步数、休息平台尺寸等)。
(3)梯段板的走向(上、下).(4)梯段板及平台板的板边。
(5)隔墙的位置,隔墙的起止位置。
2.建筑楼梯剖面图(1)楼梯的竖向尺寸(梯段板的踏步数)。
(2)竖向标高(楼层标高、休息平台标高)。
(3)楼梯休息平台与楼层有关时,应有与楼层标高的相对尺寸.3.面层做法(梯段的水平向、竖向)(1)一般要根据建筑工程做法得出.a(2)建筑剖面图(但画出的不一定准,应请建筑师确定).二确定楼梯的结构方案板式楼梯板厚,下表面平整美观.一般当楼梯使用荷载不大,且梯段的水平投影长度小于4.5m时,通常采用板式楼梯(在公共建筑中为了符合卫生和美观的要求大量采用板式楼梯)。
但跨度较大仍采用板式楼梯则板要取得厚,自重大,绕度、裂缝不好控制,钢筋也配得多,不经济;梁式的楼梯板薄,但下表面不平不美观。
当使用荷载较大,且梯段的水平投影长度大于4。
5m或预制装配式楼梯,则宜采用梁式楼梯,但要满足净高要求。
1.板式楼梯2.梁式楼梯三楼梯设计1.确定梯段梁、平台梁的位置及截面(1)楼梯宽度梯段净宽应根据使用过程中人流股数确定,一般按每股人流宽度为0。
55+(0~0。
15)m计算,并不应少于两股人流。
仅供单人通行的楼梯,其宽度必须满足担任携带物品通过的需要,其梯段净宽应不小于900m.(2)楼梯平台包括楼层平台和中间平台两部分。
楼层平台:封闭楼梯和防火楼梯其楼层平台深度应与中间平台深度一致。
中间平台:其深度依下列情况确定:①直跑楼梯中间平台深度应≧2b+h。
②双跑楼梯中间平台深度应≧梯段宽度。
(3)梯段净高与净空尺寸计算楼梯梯段净高应不小于2200mm,平台部分的净高应不小于2000mm。
梯段的起始终了踏步的前缘与顶部凸出物的内边缘线的水平距离应不小于300mm.2.当梯段梁、平台梁支座没有结构构件时,应设楼梯柱(梁上或墙上起柱子)。
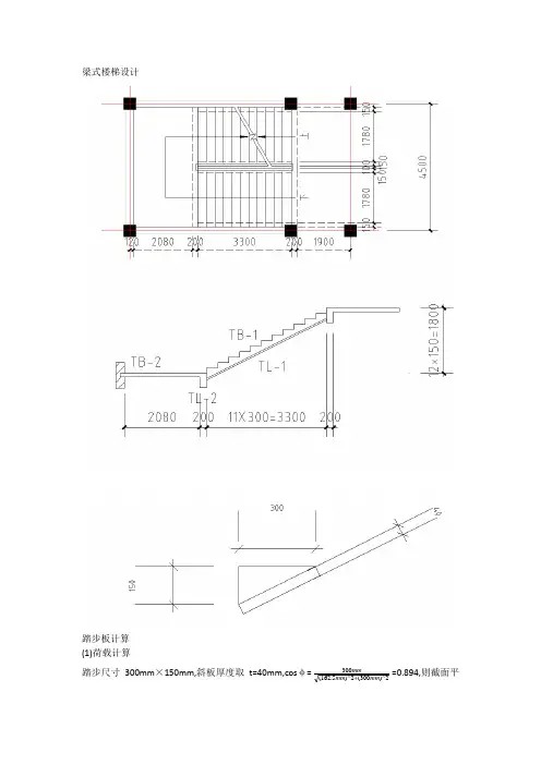
梁式楼梯设计踏步板计算 (1)荷载计算踏步尺寸300mm ×150mm,斜板厚度取t=40mm,cos φ=2)^300(2)^5.162(300mm mm mm=0.894,则截面平均高度为:h=mm m m m m120894.04025.162=+ 恒荷载:踏步板自重 1.2×0.12×0.3×25=1.08KN/m 踏步面层重 1.2×(0.3+0.15)×0.65=0.35KN/m 踏步抹灰重 1.2×0.335×0.02×17=0.14 KN/m 合计: g=1.57 KN/m 使用活荷载 q=1.4×3.5×0.3=1.26KN/m 总计 g+q=2.83 KN/m (2)内力计算斜梁截面尺寸选用b ×h=150mm ×300mm ,则踏步板计算跨度为: l 0= l n + b=1.78+0.15=1.93m 踏步板跨中弯矩:M=81 (g+q) l 02=1/8×2.83×1.932=1.318KN ·m(3)截面承载力计算 踏步板计算截面尺寸:b ×h=300mm ×120mmh 0=h-a s =120mm-20mm=100mm αs =co f bha 2^1M=/mm^214.3N ×100^2mm ×300mm 10^6N ×318.1mm⋅=0.031ξ=1-s α21-=0.031 A s =yoc f bh f ξα1 =1×14.3×0.031×300×100/210=63.33mm 2<ρmin bh=0.0015×300×120=72mm 2故踏步板应按构造配筋,沿踏步采用2φ8(A s =101mm 2),故踏步内斜板分布钢筋φ8@300mm 。
毕业设计指导书(框架结构设计)-楼梯及楼板结构计算设计第六章楼梯结构计算设计6.1根本理论楼梯是多层及高层房屋中的重要组成局部。
常见的楼梯型式有梁式楼梯和板式楼梯。
板式楼梯下外表平整,施工支模方便,外观比拟轻巧,但斜板较厚,混凝土和钢筋用量较多,一般用于梯板水平投影长度不超过3米时,当梯板水平长度超过3米时,常用梁式楼梯。
6.1.1 板式楼梯板式楼梯由梯段板、休息平台、平台梁〔假设建筑为框架结构,那么还有构造柱〕组成,可分为斜板式和折线形板式两种。
斜板式楼梯跨度较小、经济、构造简单,应优先采用,如图6-1。
图6-1 板式楼梯板式楼梯的梯段板是一块支承在上、下平台梁上并带有踏步的斜饭,斜板厚度通常取为梯段板斜长的1/25~1/30。
板式楼梯梯段板的计算简图:平台梁近似作为梯段板的铰支座,跨度取两梁中心线的距离,荷 1设ln为梯段板的水平净跨长,那么斜板的跨中最大弯矩〔计算过程见图6-4〕和支座最大剪力可以表示为:Mmax?Vmax?12pln 81plncos? 2楼梯板支座实际并非理想简支座,故跨中弯矩可近似取:M = 1/10pln2。
楼梯板的正截面高度是变化的,计算时取最小高度t,即垂直于板纵向轴线的最小高度,注意不是t/cosα。
平台梁承当楼梯板及休息平台板传递来的荷载,跨中弯矩取M =1/10pl2〔支承于构造柱上〕或2M = 1/8pl2 〔支承于墙上〕,平台梁设计与一般梁相同。
休息平台板假设为四边支承,那么可能是单向也可能是双向板,应根据长短边的比值确定。
板的支座形式与实际构造密切相关,假设板梁整浇,那么梁可视为板的嵌固支座,假设板搁在梁或墙上,那么为简支座。
6.1.2 梁式楼梯梁式楼梯由踏步板、斜梁和平台板、平台梁组成,见图6-5。
踏步板两端支承在斜梁上,按两端简支的单向板计算,一般取一个踏步作为计算单元。
踏步板为梯形截面,见图6-6,板的截面高度可近似取平均高度h=(hl十h2)/2,板厚一般不小于30~40mm。
第8章楼梯结构设计计算楼梯的平面布置,踏步尺寸、栏杆形式等由建筑设计确定。
板式楼梯和梁式楼梯是最常见的现浇楼梯,宾馆和公共建筑有时也采用一些特种楼梯,如螺旋板式楼梯和剪刀式楼梯(图8-1 。
此外也有采用装配式楼梯的。
这里主要介绍板式楼梯和梁式楼梯的计算机构造特点。
(a剪刀式楼梯 (b螺旋板式楼梯图8-1 特种楼梯楼梯的结构设计包括以下内容:1 根据建筑要求和施工条件,确定楼梯的结构型式和结构布置;2 根据建筑类别,按《荷载规范》确定楼梯的活荷载标准值。
需要注意的是楼梯的活荷载往往比所在楼面的活荷载大。
生产车间楼梯的活荷载可按实际情况确定,但不宜小于3.5kN /m(按水平投影面计算。
除以上竖向荷载外,设计楼梯栏杆时尚应按规定考虑栏杆顶部水平荷载0.5kN /m(对于住宅、医院、幼儿园等或1.0kN /m(对于学校、车站、展览馆等;3. 进行楼梯各部件的内力计算和截面设计;4 绘制施工图,特别应注意处理好连接部位的配筋构造。
1.板式楼梯板式楼梯由梯段板、休息平台和平台梁组成(图8-2 。
梯段是斜放的齿形板,支承在平台梁上和楼层梁上,底层下端一般支承在地垄墙上。
板式楼梯的优点是下表面平整,施工支模较方便,外观比较轻巧。
缺点是斜板较厚,约为梯段板斜长的1/25—1/30,其混凝土图8-2 板式楼梯的组成图8-3 梯段板的内力用量和钢材用量都较多,一般适用于梯段板的水平跨长不超过3m 时。
板式楼梯的计算特点:梯段斜板按斜放的简支梁计算(图8-3 ,斜板的计算跨度取平台梁间的斜长净距l n 。
设楼梯单位水平长度上的竖向均布荷载p =g +q (与水平面垂直,则沿斜板单位斜长上的竖向均布荷载p =p cos α(与斜面垂直,此处α为梯段板与水平线间的夹角(图8-4 ,将p 分解为: ' ' 's =p c o αs ⋅c o αs p x ' =p ' c o αp y ' =p ' s i n α=p c o αs ⋅s i n α此处p x ' , p y ' 分别为p ' 在垂直于斜板方向及沿斜板方向的分力,p ' 忽略y 对梯段板的影响,只考虑p x ' 对梯段板的弯曲作用。
梁式楼梯计算(四种类型)类型一一、工程名称: LT-1二、示意图三、基本资料1.依据规范:《建筑结构荷载规范》(GB 50009-2002)《混凝土结构设计规范》(GB 50010-2002)2.几何参数:楼梯类型:梁式楼梯(__╱ 型)支座条件:两端铰支斜梯段水平长度: L1 = 3300 mm 下平台长度: L3 = 500 mm梯段净跨: L n = L1+L3 = 3300+500 = 3800 mm楼梯高度:H = 1800mm 楼梯宽度:W = 1800 mm梯板厚:t = 40 mm 楼梯级数:n = 12(阶)踏步宽度: b = 300 mm 踏步高度:h = 150 mm上平台楼梯梁宽度: b1 = 200 mm 下平台楼梯梁宽度: b2 = 200 mm 楼梯梁高度:h3 = 300 mm 楼梯梁宽度: b3 = 200 mm水平段楼板厚度: h4 = 70 mm3.荷载标准值:可变荷载:q = 2.50kN/m2面层荷载:q m = 1.70kN/m2栏杆荷载:q f = 0.20kN/m永久荷载分项系数: γG = 1.20 可变荷载分项系数: γQ = 1.40准永久值系数: ψq = 0.504.材料信息:混凝土强度等级: C30 f c = 14.30 N/mm2f tk = 2.01 N/mm2f t = 1.43 N/mm2梯梁纵筋强度等级: HPB235 E S = 210000000 N/mm2f y = 210.0 N/mm2受拉区纵向钢筋类别:光面钢筋其余钢筋选用HPB235钢f yv = 210.0 N/mm2保护层厚度: c = 20 mm顶棚厚度 c1= 20mm 顶棚容重 R s=20.0 kN/m3混凝土容重 R c=25.0 kN/m3混凝土弹性模量 E c= 3.00×104 N/mm2钢筋弹性模量 E s= 2.1×105 N/mm2梯段板纵向受力钢筋合力点至近边距离a s1 = 25 mm梯梁纵向受力钢筋合力点至近边距离a s2 = 30 mm四、计算过程:说明:本计算书中所有的剪力、弯矩、挠度均由《建筑结构静力计算手册》中单跨梁的内力及变位计算公式所得。
梁式梯计算例1-5某数学楼楼梯活荷载标准值为2.5kN/m2,踏步面层采用30mm厚水磨石,底面为20mm厚,混合砂浆抹灰,混凝土采用C25,梁中受力钢筋采用HRB335,其余钢筋采用HPB235,楼梯结构布置如图1-82所示。
试设计此楼梯。
(a)楼梯结构平面 (b)楼梯结构剖面图1-82 梁式楼梯结构布置图解: 1. 踏步板(TB 一1)的计算(1)荷载计算(踏步尺寸mm mm b a 15030011⨯=⨯。
底板厚d=40mm)恒荷载踏步板自重m kN /08.1253.02045.0195.02.1=⨯⨯+⨯ 踏步面层重 m kN /35.065.0)15.03.0(2.1=⨯+⨯ (计算踏步板自重时,前述ABCDE 五角形踏步截面面积可按上底为mm d 45894.0/40cos /==ϕ,下底为mm d b 195894.0/40150cos /1=+=+ϕ, 高为a 1=300mm 的梯形截面计算。
)踏步抹灰重 m kN /14.01702.0894.03.02.1=⨯⨯⨯g=1.08+0.35+0.14=1.57kN/m使用活荷载 m kN q /05.13.05.24.1=⨯⨯= 垂直于水平面的荷载及垂直于斜面的荷载分别为m kN q g /62.2=+m kN q g /34.2894.062.2''=⨯=+(2)内力计算斜梁截面尺寸选用150mmX350mm ,则踏步的计算跨度为 m b l l n 68.115.053.10=+=+=踏步板的跨中弯矩kNm l q g M 826.068.134.281)''(81220=⨯⨯=+=(3)截面承载力计算取一踏步()150300(11mm mm b a ⨯+⨯为计算单元, 已知,894.0'5626cos cos 0==ϕ等效矩形截面的高度h 和宽度b 为mm d b h 4.12940894.015032cos 321=+⨯⨯=+=ϕ mm a b 7.251894.0/30075.0cos /75.01=⨯==ϕ 则:mm a h h s 4.109204.1290=-=-=0248.04.1097.2519.111026.825201=⨯⨯⨯==bh f Mc s αα614.00252.00248.0211211=<=⨯--=--=b s ξαξ 2014.362100252.04.1097.2519.11mm f bh f A y c s =⨯⨯⨯==ξα%27.021027.145.045.0%112.04.1297.2514.36min 1===<=⨯==y t s f f bh A ρρ则: 2min 9.874.1297.2510027.0mm bh A s =⨯⨯==ρ踏步板应按min ρ配筋,每米宽沿斜面配置的受力钢筋m mm A s /9.261894.030010009.872=⨯⨯=,为保证每个踏步至少有两根钢筋,故选用ø8@150(A s =335mm 2)(一般配每踏步两根钢筋,而不按每米算,此题可商)2. 楼梯斜梁(TL 一1)计算(1) 荷载踏步板传来 m kN /99.73.01)15.0253.1(62.221=⨯⨯+⨯⨯斜梁自重 m kN /56.1894.012515.0)04.035.0(2.1=⨯⨯⨯-⨯斜梁抹灰m kN /28.0894.0121702.0)04.035.0(2.1=⨯⨯⨯⨯-⨯ 楼梯栏杆 m kN /12.01.02.1=⨯总计 m kN q g /95.9=+(2) 内力计算取平台梁截面尺寸mm mm h b 450200⨯=⨯,则斜梁计算跨度: m b l l n 8.32.06.30=+=+=斜梁跨中弯矩和支座剪力为:m kN l q g M ⋅=⨯⨯=+=0.188.395.981)(81220kN l q g V n 9.176.395.921)(21=⨯⨯=+=(3) 截面承载能力计算取mm a h h 315353500=-=-=翼缘有效宽度'f b按梁跨考虑 mm l b f 6336/'0==按梁肋净距考虑 mm b s b f 915150215302'0=+=+=由于,1.0350/40/'>=h h f 'f b 可不按翼缘厚度考虑,最后应取mm b f 633'=.判别T 形截面类型:m kN M m kN h h h b f f f f c ⋅=>⋅=⨯-⨯⨯⨯=-1882)405.0315(406339.11)'5.0(''01α故按等一类T 型截面计算025.03156339.111018'26201=⨯⨯⨯==h b f M f c s αα 550.00264.0025.0211211=<=⨯--=--=b s ξαξ 2011873000264.03156339.11'mm f h b f A y f c s =⨯⨯⨯==ξα%2.045.0%36.0350150187min 1==>=⨯==y t s f f bh A ρρ故选用212, 2226mm A s =由于无腹筋梁的抗剪能力:N V N bh f V t c 1790025.4200531515027.17.07.00=>=⨯⨯⨯== 可按构造要求配置箍筋, 选用双肢箍ø6@300.3. 平台梁(TL 一2)计算(1) 荷载斜梁传来的集中力 kN Q G 9.188.395.921=⨯⨯=+平台板传来的均布恒荷载m kN /99.2)2.026.1()1702.02506.065.0(2.1=+⨯⨯+⨯+⨯平台板传来的均布活荷载 m kN /5.35.2)2.026.1(4.1=⨯+⨯平台梁自重 m kN /34.225)06.045.0(2.02.1=⨯-⨯⨯ 平台梁抹灰 m kN /32.017)06.045.0(02.02.12=⨯-⨯⨯⨯ 总计 m kN q g /15.9=+(2) 内力计算(计算简图见图1-83)平台梁计算跨度m a l l n 00.424.076.30=+=+=m m l l n 00.495.376.305.105.10<=⨯==故取 m l 95.30=跨中弯矩m kN b b a Q G l Q G l q g M ⋅=⎥⎦⎤⎢⎣⎡++⨯-⨯⨯+⨯⨯=⎥⎦⎤⎢⎣⎡+++-+++=56225.0)225.068.1(9.18295.39.18295.315.9812)2()(2)(2)(812020 支座剪力kN Q G l q g V n 0.559.18276.315.921)(2)(21=⨯+⨯⨯+++=考虑计算的斜截面应取在斜梁内侧,故kN V 1.369.1876.315.921=+⨯⨯=图1-83 平台梁计算简图(3) 正截面承载力计算翼缘有效宽度b f ’,按梁跨度考虑mm l b f 6586/39506/'0===按梁肋净距考虑 mm b s b f 1000200216002'0=+=+=最后应取mm b f 658'=判别T 型截面类型:mkN M m kN h h h b f f f f c ⋅=>⋅=⨯-⨯⨯⨯=-56167)605.0415(606589.11)'5.0(''01α按第一类T 形截面计算045.04156589.111056'26201=⨯⨯⨯==h b f Mf c s αα550.0046.0045.0211211=<=⨯--=--=b s ξαξ201498300046.04156589.11'mm f h b f A y f c s =⨯⨯⨯==ξα%2.045.0%55.0450200498min 1==>=⨯==y t s f f bh A ρρ选用218(A s =509m 2)(4) 斜截面承载力计算由于无腹筋梁的承载力N V N bh f V t c 361007378741520027.17.07.00=>=⨯⨯⨯== 可按构造要求配置箍筋,选用双肢箍ø6@200。
3 梁板式楼梯:TB-3A3.1 基本资料3.1.1 工程名称:嘉善陶庄云台寺报恩堂三层楼梯3.1.2 楼梯类型:梁式 C 型(╱ ̄)支座条件:低端固定高端铰支3.1.3 踏步段水平净长 Lsn = 3000mm 高端平板净长 Lhn =2025mm 梯梁净跨度 Ln = Lsn + Lhn =3000 + 2025 = 5025mm 梯板净宽度 B = 1500mm 3.1.4 低端支座宽度 dl = 250mm 高端支座宽度 dh = 250mm计算跨度 Lo = Min{Ln + (dl + dh) / 2, 1.05Ln} = Min{5275, 5276} = 5275mm 3.1.5 梯板厚度 h1 = 180mm 水平梯板厚度 h2 = 180mm3.1.6 踏步段总高度 Hs = 1850mm 楼梯踏步级数 n = 113.1.7 梯梁宽度 b = 250mm 梯梁高度 h = 400mm3.1.8 线性恒荷标准值 Pk = 1.00kN/m楼梯(餐厅)均布活荷标准值 qk = 2.50kN/m ψc = 0.7 ψq = 0.53.1.9 面层厚度 c1 = 50mm 面层容重γc1 =20.00kN/m 顶棚厚度 c2 = 20mm 顶棚容重γc2 =18.00kN/m3.1.10 楼梯自重容重γb = 25.00kN/m3.1.11 梯梁自重的放大系数(考虑面层)λb = 1.13.1.12 混凝土强度等级: C30 fc = 14.33N/mm ft = 1.43N/mmftk = 2.01N/mm Ec = 29791N/mm3.1.13 梯梁纵筋、箍筋、梯板纵筋的钢筋强度设计值分别为: fy = 210N/mmFyv = 210N/mm fy = 210N/mm Es = 210000N/mm梯梁纵筋合力点至近边距离 as = 25mm 梯板 as = 25mm3.2 楼梯几何参数3.2.1 踏步高度 hs = Hs / n = 1850/11 = 168.2mm踏步宽度 bs = Lsn / (n - 1) = 3000/(11-1) = 300.0mm踏步段斜板的倾角α = ArcTan(hs / bs) = ArcTan(168.2/300.0) = 29.3°踏步段斜板的长度 Lx = Lsn / Cosα = 3000/Cos29.3°= 3439mm3.2.2 踏步段梯板厚的垂直高度 h1' = h1 / Cosα = 180/Cos29.3°= 206mm 踏步段梯板平均厚度 T = (hs + 2 * h1') / 2 = (168+2*206)/2 = 290mm3.2.3 梯板有效高度 h1o = T - as = 290-25 = 265mm水平段梯板有效高度 h2o = h2 - as = 180-25 = 155mm梯梁梁高的垂直高度 h' = h / Cosα = 400/Cos29.3°= 459mm梯梁有效高度 ho = h - as = 400-25 = 375mm3.3 均布永久荷载标准值3.3.1 踏步段梯板自重 gk1' =γb * T = 25.00*0.290 = 7.26kN/mgk1 = gk1' * Lsn / Ln = 7.26*3.000/5.025 = 4.34kN/m3.3.2 高端平板自重 gk2' =γb * h2 = 25.00*0.180 = 4.50kN/mgk2 = gk2' * Lhn / Ln = 4.50*2.025/5.025 = 1.81kN/m3.3.3 踏步段梯板面层自重gk3' =γc1 * c1 * (n - 1) * (hs + bs) / Lsn= 20.00*0.050*(11-1)*(0.168+0.300)/3.000 = 1.56kN/mgk3 = gk3' * Lsn / Ln = 1.56*3.000/5.025 = 0.93kN/m3.3.4 高端平板面层自重 gk4' =γc1 * c1 = 20.00*0.050 = 1.00kN/mgk4 = gk4' * Lhn / Ln = 1.00*2.025/5.025 = 0.40kN/m3.3.5 梯板顶棚自重 gk5' =γc2 * c2 = 18.00*0.020 = 0.36kN/mgk5 = gk5' * (Ln + Lx - Lsn) / Ln = 0.36*(5.025+3.439-3.000)/5.025 = 0.39kN/m3.3.6 踏步段梯板永久荷载标准值 gks = 9.23kN/m3.3.7 水平段梯板永久荷载标准值 gkh = 5.86kN/m3.3.8 梯板折算永久荷载标准值 gkb = 4.34+1.81+0.93+0.40+0.39 = 7.87kN/m 3.3.9 梯梁自重标准值 gkl =λb * γb * b * h * (Ln + Lx - Lsn) / Lngkl = 1.1*25.00*0.250*0.400*(5.025+3.439-3.000)/5.025 = 2.99kN/m3.3.10 梯梁上永久荷载标准值gk = gkb * B / 2 + gkl + Pk = 7.87*1.500/2+2.99+1.00 = 9.90kN/m3.4 均布荷载设计值3.4.1 踏步段踏步荷载设计值 ps由可变荷载控制的 ps(L) = 1.2 * gks + 1.4 * qk = 14.58kN/m由永久荷载控制的 ps(D) = 1.35 * gks + 1.4 * ψc * qk = 14.92kN/m最不利的荷载设计值 ps = Max{ps(L), ps(D)} = 14.92kN/m3.4.2 水平段梯板荷载设计值 ph由可变荷载控制的 ph(L) = 1.2 * gkh + 1.4 * qk = 10.53kN/m由永久荷载控制的 ph(D) = 1.35 * gkh + 1.4 * ψc * qk = 10.36kN/m最不利的荷载设计值 ph = Max{ps(L), ps(D)} = 10.53kN/m3.4.3 梯梁荷载设计值 p可变荷载标准值 qkl = qk * (B / 2 + b) = 2.50*(1.500/2+0.250) = 2.50kN/m 由可变荷载控制的 p(L) = 1.2 * gk + 1.4 * qkl = 15.38kN/m由永久荷载控制的 p(D) = 1.35 * gk + 1.4 * ψc * qkl = 15.81kN/m最不利的荷载设计值 p = Max{ps(L), ps(D)} = 15.81kN/m3.5 梯梁斜截面受剪承载力计算Vmax = 5 / 8 * p * Ln * Cosα = 0.625*15.81*5025*Cos29.3°= 49654*0.8723 = 43312NAsv = 0 (V≤0.7*ft*b*ho) Dmin = 6 Smax = 3003.6 正截面受弯承载力计算3.6.1 踏步段梯板计算梯板计算跨度 Bo = Min{B + b, 1.05B} = Min{1750, 1575} = 1575mm跨中 Mmax = ps * Bo ^ 2 / 8 = 14.92*1.575^2/8 = 4.63kN·mAs = 58mm ξ = 0.005 ρ = 0.02% ρmin = 0.21% As* = 624mm实配(Ⅱ)Φ12@175 (As = 646mm )最大裂缝宽度ωmax = 0.007mm 3.6.2 水平段梯板计算跨中 Mmax = ph * Bo ^ 2 / 8 = 10.53*1.575^2/8 = 3.27kN·mAs = 101mm ξ = 0.010 ρ = 0.07% ρmin = 0.31% As* = 553mm实配φ10@140 (As = 561mm )最大裂缝宽度ωmax = 0.010mm3.6.3 梯梁计算3.6.3.1 跨中 Mmax = 9 / 128 * p * Lo ^ 2 = 9/128*15.81*5.275^2 = 30.93kN·m As = 406mm ξ = 0.063 ρ = 0.43%最大裂缝宽度ωmax = 0.190mm3.6.3.2 支座 Mmin = - p * Lo ^ 2 / 8 = -15.81*5.275^2/8 = -54.99kN·mAs = 741mm ξ = 0.116 ρ = 0.79%最大裂缝宽度ωmax = 0.208mm3.7 跨中挠度验算3.7.1 挠度验算参数Mk = 24.25kN·m Mq = 21.81kN·mMk -------- 按荷载效应的标准组合计算的弯矩值Mq -------- 按荷载效应的准永久组合计算的弯矩值3.7.2 在荷载效应的标准组合作用下,受弯构件的短期刚度 Bs3.7.2.1 裂缝间纵向受拉钢筋应变不均匀系数ψσsk = Mk / (0.87 * ho * As) (混凝土规范式 8.1.3-3)σsk = 24253331/(0.87*375*406) = 183N/mm矩形截面, Ate = 0.5 * b * h = 0.5*250*400 = 50000mmρte = As / Ate (混凝土规范式 8.1.2-4)ρte = 406/50000 = 0.00811ψ = 1.1 - 0.65 * ftk / (ρte * σsk) (混凝土规范式 8.1.2-2)ψ = 1.1-0.65*2.01/(0.00811*183) = 0.2233.7.2.2 钢筋弹性模量与混凝土模量的比值αEαE = Es / Ec = 210000/29791 = 7.053.7.2.3 受压翼缘面积与腹板有效面积的比值γf'。
广厦结构答疑汇总一、管理员能否举例说明一下基底相对于地面层的标高如何输入?比如一高层带地下室一起计算,计算时嵌固端取0层(地下室底板处),但地下室部分是没有风荷载的,此时如何输入才能实现这一点?还有半地下室的情况也请说明,谢谢!——1、有地下室时设置“地面层对应层号即可”。
2、基底相对于地面层的标高是在房屋建在山顶上求风荷时使用正值时起作用。
二、我计算的是一栋7层框架,底层层高4.8,其余层高3.0,计算结果中有多项侧向刚度比不满足要求,请问要不要作处理?怎样处理,现在我为了骗审图中心,就把计算结果改了一下,但显然这不是一个长远的办法,请管理员回复!!又:假如稳定性不满足又如何处理呢?——刚度比和稳定性不满足时计算已按规范内力放大了 1.15,是否改方案由您决定,规范没有明确说明。
三、x≥0.35ho按双筋截面考虑四、1、层高4.5m,在3.0m的地方有一雨篷,挑出1.5m,长度8m(柱距8m),在广厦中如何输入,广厦可以计算吗?2、8mx8m柱网,因有大窗户需建层间梁,在广厦中如何输入和计算?3、如同上,建两榀框架当层间梁计算,在某一跨用虚梁的方法建造雨篷合理吗?广厦是否考虑了雨篷对梁的扭矩和倾覆?——1、在层高4.5m处直接加荷载或加飘板;2、直接在柱上加荷,层间梁另外算;3、广厦没有考虑雨篷对梁的扭矩和倾覆。
五、1.想请问一下在计算底框结构时,底框采用SS计算,那在建模时除了设置砖混的总体信息外是否还要设置SS总体信息!2.在梁与梁节点处由于抗扭不够往往超筋,GS提供一个解决方法是设置节点处为铰接,请问设置铰接后只是在建模计算的时候设置铰接,那在实际施工的时候怎样保证做到真正铰接呢?是不是有什么构造保证?谢谢管理员!——1、计算底框结构时,砖混的总体信息和SS总体信息都应设置;2、设置铰接时梁底筋会自动增大,铰接处钢筋不能小于底筋1/4。
六、关于楼梯支座应该取弹性支座还是固端支座!——按弹性考虑。
第五章楼梯答案一、填空题1.梯段平台栏杆扶手2.18 33.中间楼层4.2h+b=600mm5.2000mm 2200mm6.现浇整体式预制装配式7.板式梁式8.三角形 L形一字形9.空花栏杆栏板式栏杆组合式栏杆10.梯段11. 锚接、焊接和栓接12. 100~150mm,300~400mm13. 900 mm14. 防滑锯齿槽坡面;防滑条坡面15. 门套,导轨撑架16. 近踏口处,防滑条17. 缓解疲劳,转换方向18. 160 mm,260 mm二、选择题1.B 2.C 3.C 4.C 5.D 6.D 7.D 8.A 9.D 10.C11. C 12. D 13. A 14. C 15. B 16. D 17. C 18. B 19. D 20. D三、名词解释1.梯梁在踏步板之下,踏步外露,称为明步。
2.梯梁在踏步板之上,形成反梁,踏步包在里面,称为暗步。
3.楼梯净高包括梯段净高和平台净高,梯段净高是指踏步前缘到顶部梯段底面的垂直距离;平台净高是指平台面或楼地面到顶部平台梁底面的垂直距离。
4. 楼梯栏杆扶手的高度,指踏面前缘至扶手顶面的垂直距离。
楼梯扶手的高度与楼梯的坡度、楼梯的使用要求有关,很陡的楼梯,扶手的高度矮些,坡度平缓时高度可稍大。
在30o左右的坡度下常采用900mm ;儿童使用的楼梯一般为600mm。
对一般室内楼梯≥900mm,靠梯井一侧水平栏杆长度>500mm,其高度≥1000mm,室外楼梯栏杆高≥1050 mm。
5. 平台是指两楼梯段之间的水平板,有楼层平台、中间平台之分。
其主要作用在于缓解疲劳,让.人们在连续上楼时可在平台上稍加休息,故又称休息平台。
同时,平台还是梯段之间转换方向的连接处。
6. 楼梯扶手按材料分有木扶手、金属扶手、塑料扶手等,以构造分有漏空栏杆扶手、栏板扶手和靠墙扶手等四、简答题1.楼梯主要由梯段、平台和栏杆扶手组成。
每个梯段的踏步数量一般不应超过18级,也不应少于3级;平台的主要作用是减少疲劳,连接梯段或楼板层及转换梯段方向;栏杆起围护作用,扶手作依扶用。
梁式楼梯设计计算例题本页仅作为文档页封面,使用时可以删除This document is for reference only-rar21year.March3.4 梁式楼梯设计计算例题3.4.1 设计资料某现浇梁式楼梯结构布置图如图3-22所示,楼梯踏步尺寸150mm ×300mm 。
楼梯采用C25混凝土(2/9.11mm N f c =,2/27.1mm N f t =)。
梁采用HRB335钢筋(2/300mm N f y =),其余钢筋采用HPB300钢筋(2/270mm N f y =)。
楼梯上的均布荷载标准值2/5.3m kN q k =。
试 图3-22 楼梯结构布置图 设计该楼梯。
3.4.2 踏步板设计(1)确定踏步板板底底板的厚度底板取mm 40=δ,踏步高度mm c 150=894.0335300300150300cos 22==+=α 踏步板厚取 mm c h 120894.0402150cos 2=+=+=αδ 梯段斜梁尺寸取mm mm h b 300150⨯=⨯。
踏步板计算跨度 m b l l n 6.115.045.10=+=+=(2) 荷载计算恒荷载20mm 厚水泥砂浆面层m kN /18.02002.0)5.13.0(=⨯⨯+踏步板自重 m kN /9.0253.012.0=⨯⨯板底抹灰 m kN /114.0894.0/3.002.017=⨯⨯恒荷载标准值 m kN /194.1114.09.018.0=++恒荷载设计值 m kN /433.1194.12.1=⨯活荷载活荷载标准值 m kN /05.13.05.3=⨯活荷载设计值 m kN /47.105.14.1=⨯荷载总计荷载设计值 m kN q g p /903.247.1433.1=+=+=(3)内力计算跨中弯矩 m kN pl M ⋅=⨯⨯==743.06.1903.2101101220 (4)配筋计算板保护层厚度15mm ,有效高度mm h 100201200=-=。
3.4 梁式楼梯设计计算例题3.4.1 设计资料某现浇梁式楼梯结构布置图如图3-22所示,楼梯踏步尺寸150mm ×300mm 。
楼梯采用C25混凝土(2/9.11mm N f c =,2/27.1mm N f t =)。
梁采用HRB335钢筋(2/300mm N f y =),其余钢筋采用HPB300钢筋(2/270mm N f y =)。
楼梯 上的均布荷载标准值2/5.3m kN q k =。
试 图3-22 楼梯结构布置图 设计该楼梯。
3.4.2 踏步板设计(1)确定踏步板板底底板的厚度底板取mm 40=δ,踏步高度mm c 150=894.0335300300150300cos 22==+=α 踏步板厚取 mm c h 120894.0402150cos 2=+=+=αδ 梯段斜梁尺寸取mm mm h b 300150⨯=⨯。
踏步板计算跨度 m b l l n 6.115.045.10=+=+=(2) 荷载计算恒荷载20mm 厚水泥砂浆面层m kN /18.02002.0)5.13.0(=⨯⨯+ 踏步板自重 m kN /9.0253.012.0=⨯⨯ 板底抹灰 m kN /114.0894.0/3.002.017=⨯⨯ 恒荷载标准值 m kN /194.1114.09.018.0=++ 恒荷载设计值 m kN /433.1194.12.1=⨯ 活荷载活荷载标准值 m kN /05.13.05.3=⨯活荷载设计值 m kN /47.105.14.1=⨯荷载总计荷载设计值 m kN q g p /903.247.1433.1=+=+=(3)内力计算跨中弯矩 m kN pl M ⋅=⨯⨯==743.06.1903.2101101220 (4)配筋计算板保护层厚度15mm ,有效高度mm h 100201200=-=。
021.01003009.110.110743.026201=⨯⨯⨯⨯==bh f M c s αα 则 614.0021.002.0211211=<=⨯--=--=b s ξαξ 270100021.03009.110.101⨯⨯⨯⨯==y c s f h b f A ξα28.27mm = %2.0%212.0%270/27.145%/45>=⨯=y t f f因此踏步板最小配筋率为%212.0。
此时2min 3.7612030000212.0mm A s =⨯⨯=min s s A A <,取min s s A A =,踏步板应按构造配筋。
选配每踏步28(223.76101mm mm A s >=),且满足踏步板配筋不少于26的构造要求。
另外,踏步内斜板分布钢筋选用8@250。
踏步板的配筋见图3-23。
图3-23 踏步板配筋3.4.3 梯段斜梁设计(1)梯段斜梁计算参数板倾斜角5.0300/150tan ==α, 6.26=α,894.0cos =α,m l n 9.3=(2)荷载计算踏步板传来:m kN /468.82/)15.0245.1(3.0903.2=⨯+⨯ 梯段斜梁自重:m kN /309.1894.0/25)04.03.0(15.02.1=⨯-⨯⨯ 梯段斜梁粉刷重:m kN /253.0894.0/17)04.03.0(202.02.1=⨯-⨯⨯⨯ 荷载设计值:m kN p /03.10253.0309.1468.8=++=(3)内力计算取平台梁截面宽度b=200mm梁计算跨度m b l l n 1.42.09.30=+=+=以及m l l n 095.49.305.105.10=⨯==,取小值m l 095.40=mm l h 20520095.4200==≥以及mm mm l 410~293095.4)141~101()141~101(0=⨯=,故取mm h 300= 跨中弯矩 m kN pl M ⋅=⨯⨯==82.16095.403.10101101220 水平向剪力 kN pl V n 56.199.303.102121'=⨯⨯== 斜向剪力 kN V V 49.17894.056.19cos '=⨯==α(4)配筋计算梯段斜梁按倒L 形计算:按梁计算跨度考虑 mm l b f 6836409560'=== 按梁肋净距考虑 mm S b b n f 8752/14501502/'=+=+=按翼缘高度考虑 mm h b b f f 3504051505''=⨯+=+=取三者中最小值,因此mm b f 350'=梁有效高度mm h 260403000=-=06.02603509.110.11082.162620'1=⨯⨯⨯⨯==h b f M f c s αα 则 55.0062.006.0211211=<=⨯--=--=b s ξαξ且 154.0260400'==<h h fξ 20'1224300260062.03509.110.1mm f h b f A yf c s =⨯⨯⨯⨯==ξα %2.0%19.0300/27.145.0/45.0<=⨯=y t f f ,因此%2.0min =ρ 2min min 90300150002.0mm bh A s =⨯⨯==ρ,则min s s A A > 选配212,2226mm A s =。
箍筋计算:kN kN bh f V t cs 49.1767.3426015027.17.07.00>=⨯⨯⨯== 可以按构造配箍,选用8@200。
箍筋直径、间距及配箍率均满足要求:,6min ,mm d sv =,mm s 200max =%335.02001503.502%113.0270/27.124.024.0min ,=⨯⨯==<=⨯==bs A f f sv sv yvt sv ρρ梯段斜梁配筋见图3-24。
图3-24 梯段斜梁配筋图3.4.4 平台板计算(1)确定板厚板厚取mm h 70=,板跨度m mm h l a l l n n 235.222352702200220==+=+≤+= 取1m 宽板带按简支单向板进行配筋计算。
(2)荷载计算恒荷载20mm 厚水泥砂浆面层 m kN /4.012002.0=⨯⨯平台板 m kN /75.112507.0=⨯⨯板底抹灰 m kN /34.011702.0=⨯⨯恒荷载标准值 m kN /49.234.075.14.0=++ 恒荷载设计值 m kN /99.249.22.1=⨯活荷载活荷载标准值 m kN /5.3活荷载设计值 m kN /9.45.34.1=⨯荷载总计荷载设计值 m kN q p /89.79.499.2=+=+(3)内力计算跨中弯矩 m kN l q g M ⋅=⨯⨯=+=927.4235.289.781)(81220 (4)配筋计算板保护层厚度15mm ,有效高度mm h 5020700=-=166.05010009.110.110927.426201=⨯⨯⨯⨯==bh f M c s αα 则 614.0183.0166.0211211=<=⨯--=--=b s ξαξ min 2013.40327050183.010009.110.1s y c s A mm f h b f A >=⨯⨯⨯⨯==ξα 2min min 4.148701000%212.0mm bh A s =⨯⨯==ρ选配8@120,2419mm A s =。
平台板的配筋图见图3-25图3-25 平台板配筋图3.4.5 平台梁设计(1)确定平台梁尺寸梁宽取b=200mm高mm h c h 486894.0/300150894.0/'=+=+≥,取mm h 500= 梁跨度取m l 9.30=。
(2)荷载计算梯段斜梁传来:kN pl P 54.20095.403.10212120=⨯⨯== 平台板传来:m kN /26.10)2/2.22.0(89.7=+⨯平台梁自重:m kN /58.225)07.05.0(2.02.1=⨯-⨯⨯平台梁粉刷重:mkN /43.017)207.0250.02.0(02.02.1=⨯⨯-⨯+⨯⨯ 荷载设计值:mkN p /27.1343.058.226.10=++= 平台梁计算简图见图3-26。
图3-26 平台梁计算简图 (3)内力计算由p 产生的弯矩设计值 m kN pl M ⋅=⨯⨯==23.259.327.1381812201 由梯段斜梁传来的P 产生的弯矩设计值231.0)231.06.1()231.0600.1195.0(22⋅-+-++=P P P M231.054.20)231.06.1(54.20)231.0600.1195.0(54.202⨯-+⨯-++⨯⨯= m kN ⋅=87.40 则 m kN M M M ⋅=+=+=1.6687.4023.2521 剪力设计值kN P pl V n 36.6554.2042166.327.13212121=⨯⨯+⨯⨯=+=∑ (4)配筋计算平台梁按倒L 形计算,mm h b b f f 5507052005''=⨯+=+=梁有效高度mm h 460405000=-= 判断截面类型,由于m kN m kN h h b f ff c ⋅>⋅=-⨯⨯⨯⨯=-1.667.194)270460(705509.110.1)2('0'1α 故属于第一类T 形截面。
048.04605509.110.1101.662620'1=⨯⨯⨯⨯==h b f M f c s αα 则 55.0049.0048.0211211=<=⨯--=--=b s ξαξ 20'17.491300460049.05509.110.1mm f h b f A y f c s =⨯⨯⨯⨯==ξα 选配316,2603mm A s =平台梁最小配筋率:在0.2%和%19.0%300/27.145%/45=⨯=y t f f 间取大值0.2% 此时22min 603200500200002.0mm mm A s <=⨯⨯= 满足要求。
验算是否需要按计算配置箍筋。
kN kN bh f t 36.6579.8146020027.17.07.00>=⨯⨯⨯= 可以按构造配箍筋,箍筋选用8@200。
箍筋直径、间距及配箍率均满足构造要求:mm d sv 6min ,=,mm S 300max =%252.02002003.502%113.0270/27.124.024.0min ,=⨯⨯==<=⨯==bs A f f sv sv yvt sv ρρ。