建设单位业主方工程项目管理流程图最新整理
- 格式:doc
- 大小:136.34 KB
- 文档页数:30
-------------精选文档-----------------
建设单位(业主方)工程项目管理工作流程图
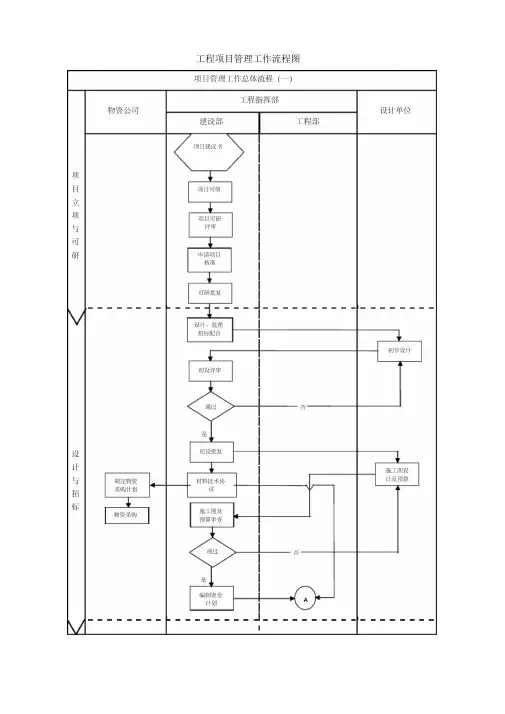
图1-1 项目管理工作总体流程(一)
图1-2 项目管理工作总体流程(二)
图1-3 施工协调管理流程
图1-4 工程建设月报上报流程
图1-5 档案信息管理流程
图2-1 项目安全管理工作总体流程(一)
图2-2 项目安全管理工作总体流程(二)
图3-3 施工质量控制管理流程
图4-1项目造价管理工作总体流程(一)
图4-2项目造价管理工作总体流程(二)
图4-3 工程进度款管理工作流程
图4-4 工程变更管理工作流程
图4-5 成本控制管理工作流程
图5-1 项目进度管理工作总体流程
图5-2 项目设备、材料供应计划管理流程
图5-3 材料进货检验(设备开箱)流程
图6-1 项目技术管理工作总体流程。
建设单位(业主方)工程项目管理工作流程图图1-1项目管理工作总体流程(一)图1-2项目管理工作总体流程(二)图1-3施工协调管理流程图1-4工程建设月报上报流程图1-5档案信息管理流程图2-1项目安全管理工作总体流程(一)图2-2项目安全管理工作总体流程(二)图3-1项目质量管理工作总体流程(一)图3-2项目质量管理工作总体流程(二)图3-3施工质量控制管理流程图4-2项目造价管理工作总体流程(二)图4-3工程进度款管理工作流程图4-4工程变更管理工作流程图4-5成本控制管理工作流程图5-1项目进度管理工作总体流程图5-2项目设备、材料供应计划管理流程图5-3材料进货检验(设备开箱)流程图6-1项目技术管理工作总体流程图6-1项目技术管理工作总体流程图6-1项目技术管理工作总体流程图6-1项目技术管理工作总体流程图6-1项目技术管理工作总体流程图6-1项目技术管理工作总体流程图6-1项目技术管理工作总体流程图6-1项目技术管理工作总体流程图6-1项目技术管理工作总体流程图6-1项目技术管理工作总体流程图6-1项目技术管理工作总体流程图6-1项目技术管理工作总体流程图6-1项目技术管理工作总体流程图6-1项目技术管理工作总体流程图6-1项目技术管理工作总体流程图6-1项目技术管理工作总体流程图6-1项目技术管理工作总体流程图6-1项目技术管理工作总体流程图6-1项目技术管理工作总体流程图6-1项目技术管理工作总体流程图6-1项目技术管理工作总体流程图6-1项目技术管理工作总体流程图6-1项目技术管理工作总体流程图6-1项目技术管理工作总体流程图6-1项目技术管理工作总体流程图6-1项目技术管理工作总体流程图6-1项目技术管理工作总体流程图6-1项目技术管理工作总体流程图6-1项目技术管理工作总体流程图6-1项目技术管理工作总体流程图6-1项目技术管理工作总体流程图6-1项目技术管理工作总体流程图6-1项目技术管理工作总体流程图6-1项目技术管理工作总体流程图6-1项目技术管理工作总体流程图6-1项目技术管理工作总体流程图6-1项目技术管理工作总体流程图6-1项目技术管理工作总体流程图6-1项目技术管理工作总体流程图6-1项目技术管理工作总体流程图6-1项目技术管理工作总体流程图6-1项目技术管理工作总体流程图6-1项目技术管理工作总体流程图6-1项目技术管理工作总体流程图6-1项目技术管理工作总体流程图6-1项目技术管理工作总体流程图6-1项目技术管理工作总体流程图6-1项目技术管理工作总体流程图6-1项目技术管理工作总体流程图6-1项目技术管理工作总体流程图6-1项目技术管理工作总体流程图6-1项目技术管理工作总体流程图6-1项目技术管理工作总体流程图6-1项目技术管理工作总体流程图6-1项目技术管理工作总体流程图6-1项目技术管理工作总体流程图6-1项目技术管理工作总体流程图6-1项目技术管理工作总体流程图6-1项目技术管理工作总体流程图6-1项目技术管理工作总体流程图6-1项目技术管理工作总体流程图6-1项目技术管理工作总体流程图6-1项目技术管理工作总体流程图6-1项目技术管理工作总体流程图6-1项目技术管理工作总体流程图6-1项目技术管理工作总体流程图6-1项目技术管理工作总体流程图6-1项目技术管理工作总体流程图6-1项目技术管理工作总体流程图6-1项目技术管理工作总体流程图6-1项目技术管理工作总体流程图6-1项目技术管理工作总体流程图6-1项目技术管理工作总体流程图6-1项目技术管理工作总体流程图6-1项目技术管理工作总体流程图6-1项目技术管理工作总体流程图6-1项目技术管理工作总体流程图6-1项目技术管理工作总体流程图6-1项目技术管理工作总体流程图6-1项目技术管理工作总体流程图6-1项目技术管理工作总体流程图6-1项目技术管理工作总体流程图6-1项目技术管理工作总体流程图6-1项目技术管理工作总体流程图6-1项目技术管理工作总体流程图6-1项目技术管理工作总体流程图6-1项目技术管理工作总体流程图6-1项目技术管理工作总体流程图6-1项目技术管理工作总体流程图6-1项目技术管理工作总体流程图6-1项目技术管理工作总体流程图6-1项目技术管理工作总体流程图6-1项目技术管理工作总体流程图6-1项目技术管理工作总体流程图6-1项目技术管理工作总体流程图6-1项目技术管理工作总体流程图6-1项目技术管理工作总体流程图6-1项目技术管理工作总体流程图6-1项目技术管理工作总体流程图6-1项目技术管理工作总体流程图6-1项目技术管理工作总体流程图6-1项目技术管理工作总体流程。
精品文档V图1-1项目管理工作总体流程(一)建设单位(业主方)工程项目管理工作流程图项目管理工作总体流程(一)工程指挥部建设部工程部物资公司设计单位项 目 \立 项 与 可 研 设 计 与 招 标 制定物资 采购计划物资采购否初步设计1 F施工图设 计及预算1图1-2 项目管理工作总体流程(二)图1-3 施工协调管理流程图1-4 工程建设月报上报流程图1-5 档案信息管理流程安全监察部监督检查工程安全管理体的建立和运行项目安全管理工作总体流程(工程指挥部参建单位建设部工程部项目刖期及施工11建立安全1 *1‘管理网络1111111建立安全管理1制度和安全管111理台账1111f11督促、检查参11建单位编制安全管理制度、111台账及危险点111 [预控措施监理项目部1 r施工项目部编制安全监理工作方案,建立安全管理台账修改完善达到安全文明施工开工条件 ,条件-- +:编制安全文明施工实施细则方案及危险点预控措施,建立安全管理台账r施工项目部监理项目部开工前,落实审核安措费使安全文明措用情况,对现施,落实安全 4 场安全文明施会议精神和风工条件及措施险、应急、分落实情况进行包等管理措施把关整改完善图2-1 项目安全管理工作总体流程(一)项目安全管理工作总体流程(二)项冃施工及竣工阶段图2-2 项目安全管理工作总体流程(二)图3-1 项目质量管理工作总体流程(一)图3-2 项目质量管理工作总体流程(二)图3-3 施工质量控制管理流程领导小组项目造价管理工作总体流程(一) 工程指挥部建设部工程部监理单位参建单位刖 期 阶 段初 步 设 计 阶 段V施 工 图 设 计阶 段 ■■开始组织可研 估算工作 组织初步设计评审批复初步 设计组织施工图 及预算会审批复施工 图预算 参与施工图 及预算评审编制底标,组织 施工单位招标审核工程 变更审查工程 变更预算设计单位编制 初步设计概算设计单位配合 初步设计评审设计单位编制 施工图预算施工单位提 出工程变更1 f否施 工 阶 审核申请段 是施工单位申 请其他付款 审批重大设 计变更预算施工单位申 请支付工程进度款 施工单位申 请支付工程 预付款 重大设 计变更审查批准支付工程变更费用图4-1 项目造价管理工作总体流程(一)领导小组项目造价管理工作总体流程(二)工程指挥部建设部工程部监理单位参建单位竣工验收阶段签署审查意见图4-2 项目造价管理工作总体流程(二)图4-3工程进度款管理工作流程图4-4 工程变更管理工作流程图4-5成本控制管理工作流程图5-1 项目进度管理工作总体流程图5-2 项目设备、材料供应计划管理流程图5-3 材料进货检验(设备开箱)流程图6-1 项目技术管理工作总体流程。
建设单位(业主方)工程项目管理工作流程图
图1-4 工程建设月报上报流程
图1-5 档案信息管理流程
图3-1项目质量管理工作总体流程(一)
图3-2 项目质量管理工作总体流程(二)
图3-3 施工质量控制管理流程
图4-1项目造价管理工作总体流程(一)
图4-2项目造价管理工作总体流程(二)
图4-3 工程进度款管理工作流程
图4-4 工程变更管理工作流程
图4-5 成本控制管理工作流程
图5-1 项目进度管理工作总体流程
图5-2 项目设备、材料供应计划管理流程
图5-3 材料进货检验(设备开箱)流程
[文档可能无法思考全面,请浏览后下载,另外祝您生活愉快,工作顺利,万事如意!]
21 / 21。
建设单位(业主方)工程项目管理工作流程图
图 1-1 项目管理工作总体流程(一)
图1-2 项目管理工作总体流程(二)
图1-3 施工协调管理流程
图1-4 工程建设月报上报流程
图1-5 档案信息管理流程
图 2-1 项目安全管理工作总体流程(一)
图2-2 项目安全管理工作总体流程(二)
图3-1项目质量管理工作总体流程(一)
图3-2 项目质量管理工作总体流程(二)
图3-3 施工质量控制管理流程
图4-3 工程进度款管理工作流程
图4-4 工程变更管理工作流程
图4-5 成本控制管理工作流程
图5-1 项目进度管理工作总体流程
图5-2 项目设备、材料供应计划管理流程
图5-3 材料进货检验(设备开箱)流程。
建设单位(业主方)工程项目管理工作流程图项目管理工作总体流程(一)工程指挥部建设部工程部图1-1 项目管理工作总体流程(一)物资公司设计单位项目\立项与可研可研批复设计与招标制定物资采购计划设计、监理招标配合物资采购施工图及预算审查通过是编制资金计划否初步设计施工图设计及预算图1-2 项目管理工作总体流程图1-3 施工协调管理流程图1-4 工程建设月报上报流程图1-5 档案信息管理流程安全监察部监督检查工程安全管理体的建立和运行项目安全管理工作总体流程(工程指挥部参建单位建设部工程部项目刖期及施工11建立安全1 *1‘管理网络1111111建立安全管理1制度和安全管111理台账1111f11督促、检查参11建单位编制安全管理制度、111台账及危险点111 [预控措施监理项目部1 r施工项目部编制安全监理工作方案,建立安全管理台账修改完善达到安全文明施工开工条件 ,条件-- +:编制安全文明施工实施细则方案及危险点预控措施,建立安全管理台账r施工项目部监理项目部开工前,落实审核安措费使安全文明措用情况,对现施,落实安全 4 场安全文明施会议精神和风工条件及措施险、应急、分落实情况进行包等管理措施把关整改完善安全监察部全过程安全管理监督检查指导组织开展各类安全检查项目安全管理工作总体流程(二)工程指挥部建设部工程部检查指导项目安全管理参建单位项冃施工及竣工阶段落实季度及专项安全大检查总结并制定安全管理改进计戈y监督改进落实*-情况并提出预防措施定期召开安全会议组织开展安全管理活动监督指导项目问题整改组织实施全过程安全管理定期开展危险点预控管理分包管理评价,总结上报■ 组织月度和随机安全检查持续动态改进保持良好按文明施工环境图3-2 项目质量管理工作总体流程(二)领导小组工程指挥部建设部工程部监理单位参建单位刖期阶段初步设计阶段V 施工图设计阶段■■开始组织可研估算工作组织初步设计评审批复初步设计组织施工图及预算会审批复施工图预算参与施工图及预算评审编制底标,组织施工单位招标设计单位编制初步设计概算设计单位配合初步设计评审设计单位编制施工图预算审查批准支付审批重大设计变更预算施工单位提出工程变更图4-1 项目造价管理工作总体流程(一)V领导小组工程指挥部建设部工程部监理单位参建单位竣工验收阶段签署审查意见图4-2 项目造价管理工作总体流程(二)图4-3工程进度款管理工作流程图4-4 工程变更管理工作流程图4-5成本控制管理工作流程图5-1 项目进度管理工作总体流程图5-2 项目设备、材料供应计划管理流程图5-3 材料进货检验(设备开箱)流程图6-1 项目技术管理工作总体流程。
工程项目管理工作流程图图1-2 项目管理工作总体流程(二)图1-3 施工协调管理流程图1-4 工程建设月报上报流程图1-5 档案信息管理流程图2-1 项目安全管理工作总体流程(一)安全监察部建设部检查指导项目安全管理工程指挥部参建单位工程部监理项目部定期召开安全-> 会议组织开展安全管理活动项目施工及竣工阶段组织月度和随机安全检查落实季度及专项安全大检查定期开展危险f 点预控管理分—►包管理总结并制定安全管理改进计4戈监督改进落实情况并提出预 ,防措施评价,总结上报监督指导项目问题整改结束 *分析总结评价结果*总结上报监督检查项目施工现场安全文明状况,对重要工序、危险点、特殊作业实施旁站,协调交叉作业和工序交接中安全文明施工问题施工项目部每月开展安全教育,开展安全检查活动,落实安全会议决定和安评、危险点、应急和分包管理制度和措施,实行隐患整改闭环管理,保持安全文明施工环境对检查和评价中存在的隐患进行整改闭环> 继续整顿持续动态改进保持良好按文明施工环境工程指挥部物资公司 -------------------- 1 ---------------------- 参建单位建设部 工程部开始建立质量管理 体系及规章制度建立设计质量 管理制度设计单位保证供图进度和质量;派驻工地代 表;及时答复参建各方提出的设计问 题;参加歌唱质量检查歌唱质量事故调查等工作设备供应公司严格执行国家及行业标准、合同规 定,提供全套产品质量证明文件,并 按合同规定提供技术培训和现场安 装试验技术指导及相关服务,配合监 造工作调试试验单位严格执行有关规定,编制调试试验大 纲,提交准确、齐全的工程调试、试 验报告工 程 实 施 阶 段 定期随机检 查在建工程质量对项目质量 进行全过程管理组织中 间验收施工单位建立健全施工质量管理体系和制 度;制定落实质量保证措施;加强 分包质量管理;严格工序管理,组 织好内部质量检查、验收工作,参 加工程质量检查,质量事故调查和处理等工作;完善施工质量档案管理监理单位建立健全监理质量控制保证体系, 制定见证、旁站、巡视、平行检验 等监理工作制度,并确保有效实施; 审查施工单位的《施工组织设计》 等有关文件;组织检查验收进场设 备和材料;严格施工过程质量控制, 定期编写过程质量报告;组织或参 加过程质量检查,过程质量事故调 查和处理;建立健全工程监理质量 档案加强设备米购 质量管理和监造工作图3-2 项目质量管理工作总体流程(二)图3-3 施工质量控制管理流程图4-1 项目造价管理工作总体流程(一)项目造价管理工作总体流程(二)工程指挥部领导小组--------------------- ----------------- 监理单位参建单位建设部工程部竣工验收阶段编制施工结算书,提出竣工结算申请汇总工程变更、签证、索赔等资料,对资料的完整性进行审查签署审查意见审查批准竣工决算及审计结束图4-2 项目造价管理工作总体流程(二)图4-3 工程进度款管理工作流程图4-4 工程变更管理工作流程图4-5 成本控制管理工作流程图5-2 项目设备、材料供应计划管理流程图5-3 材料进货检验(设备开箱)流程。
建设单位(业主方)工程项目管理系统流程图工程项目管理工作流程图项目管理工作总体流程(一)工程指挥部物资公司设计单位建设部工程部项目建议书项目项目可研立项项目可研评审与可研申请项目核准可研批复设计、监理招标配合初步设计初设评审通过否是初设批复设计施工图设计及预算与制定物资材料技术协采购计划议招标物资采购施工图及预算审查通过否是编制资金计划A 图1-1 项目管理工作总体流程(一)文档项目管理工作总体流程(二)工程指挥部物资公司监理单位施工单位建设部工程部A初设材料清册与补充物资施工图材料清册采购对比编制并下达工程进度计划落实开工条件建否设满足施是合同管理土建(基础施工)进度管理安全管理安装(杆塔组立)质量管理造价管理调试(架线附件)技术管理档案管理竣工验收否通过竣工是验启动投运收与工程结算评资料移交价工程结算审计竣工决算评价考核资产移交图1-2 项目管理工作总体流程(二)文档施工协调管理流程图工程指挥部监理单位施工单位建设部工程部开始办理开工手续条件满足审批工程开工报审表审核工程开工报审表组织编写工程开工报审表组织工程开工提出相关需要施工单位解决的施工问题是否下达工程暂停令否召开工程例会,解决相关施工出现的问题是负责落实解决影响工程施工的相关事项下达工程暂停令配合协调解决问题确认整改完成后提出复工申请审批复工申请工程竣工后结束参加启动工作图1-3 施工协调管理流程文档工程建设月报上报流程图工程指挥部监理单位施工单位建设部工程部开始编制月报(包括各个汇总物资、施工、监理工程建设情况,报有关部门汇总物资、施工、监理月报,编制《电网建设月报》,每月 5日前报工程指挥部审查施工月报,并编制监理月报,每月27 日前报工程部专业本月工作情况,存在的困难和问题以及相应对策,下月进度计划),每月23日前报监理单位图1-4 工程建设月报上报流程文档档案信息管理流程图工程指挥部监理单位施工单位建设部工程部开始提出档案管理的确认工程档案管理目目标计划及要求标、档案范围及要求收集自身负责的审核相关文档所有相关文档案及影像资料做好纸质文档的收发保管工作,每月整理影像资料按要求对文件资料进行归档工作项目竣工审查工程竣工档案审核工程竣工档案经施工单位审核后上报验竣工资料工程竣工档案移交至公司档案室接受工程竣工档案移交确认工程竣工档案移交工程竣工档案移交结束图1-5 档案信息管理流程文档项目安全管理工作总体流程(一)工程指挥部安全监察部参建单位建设部工程部开始监督检查工程安全管理体的建立和运行建立安全管理网络建立安全管理监理项目部施工项目部制度和安全管理台账编制安全监编制安全文明理工作方施工实施细则案,建立安方案及危险点督促、检查参全管理台账预控措施,建建单位编制安立安全管理台全管理制度、账台账及危险点预控措施项目前期审批参建单位及的安全文明施修改完善工策划施工准否符合备要求阶段是施工项目部监理项目部开工前,召开开工前,落实审核安措费使第一次安全会安全文明措用情况,对现议施,落实安全场安全文明施会议精神和风工条件及措施险、应急、分落实情况进行包等管理措施把关否达到安全文明施工开工条件条件整改完善是A文档实用标准图2-1 项目安全管理工作总体流程(一)项目安全管理工作总体流程(二)工程指挥部安全监察部参建单位建设部工程部检查指导项目安全管理A全过程安全管理监督检查指导组织实施全过程安全管理组织开展各类安全检查监理项目部监督检查项目施工现场定期召开安全安全文明状况,对重要会议组织开展工序、危险点、特殊作安全管理活动业实施旁站,协调交叉作业和工序交接中安全文明施工问题组织月度和随机安全检查项施工项目部目施工落实季度及专项安全大检查每月开展安全教育,开展安全检查活动,落实安全会议决定和安评、及竣工定期开展危险点预控管理分包管理危险点、应急和分包管理制度和措施,实行隐患整改闭环管理,保持安全文明施工环境阶总结并制定安监督改进落实段全管理改进计划情况并提出预防措施评价,总结上报对检查和评价中存监督指导项目在的隐患进行整改问题整改闭环否符合继续整顿要求是持续动态改进分析总结结束保持良好按文评价结果明施工环境总结上报文档实用标准图2-2 项目安全管理工作总体流程(二)项目质量管理工作总体流程(一)工程指挥部物资公司参建单位建设部工程部开始建立质量管理体系及规章制度建立设计质量管理制度设计单位保证供图进度和质量;派驻工地代表;及时答复参建各方提出的设计问题;参加歌唱质量检查歌唱质量事故调查等工作施工单位建立健全施工质量管理体系和制度;制定落实质量保证措施;加强工程加工程质量检查,质量事故调查和实定期随机检查在建工程对项目质量进行全过程处理等工作;完善施工质量档案管理施质量管理阶监理单位段组织中间验收建立健全监理质量控制保证体系,制定见证、旁站、巡视、平行检验等监理工作制度,并确保有效实施;审查施工单位的《施工组织设计》等有关文件;组织检查验收进场设备和材料;严格施工过程质量控制,定期编写过程质量报告;组织或参加过程质量检查,过程质量事故调查和处理;建立健全工程监理质量档案设备供应公司严格执行国家及行业标准、合同规定,提供全套产品质量证明文件,并加强设备采购按合同规定提供技术培训和现场安质量管理和监装试验技术指导及相关服务,配合监造工作造工作调试试验单位严格执行有关规定,编制调试试验大纲,提交准确、齐全的工程调试、试验报告AB文档图3-1 项目质量管理工作总体流程(一)项目质量管理工作总体流程(二)工程指挥部领导小组参建单位建设部工程部A B工批准工程项目编制工程项目程启动计划书启动计划书验收组织工程质量竣工验收阶段工程竣工启动验收参加工程竣工验收工汇总竣工验收出现的缺陷并组织复检配合做好复检工作在规定的时限内完成消陷工作程总负责投产后的质量保修工作结阶结束段图3-2 项目质量管理工作总体流程(二)文档施工质量控制管理流程图工程指挥部监理单位施工单位建设部工程部开始建设部组织施工图交接组织技术交底参与技术交底成立施工项目部审批质量通病防范措施1、编制施工组织设计2、编制质量通病防范措施3、建立质量管理审批施工组织设计体系批准备案审查质量管理体系1、组织机构2、工序管理3、质量自检检查监督1、上岗证2、施工设备工程质量控制跟踪监督管理关键工序过程控制关键材料跟踪管理1、检查材料、设备2、审查设计变三级自查更、工程变更3、检查验收隐蔽工程4、签认分部分项工程质量5、分析处理质配合中间验收或初检量事故组织中间验收或初检配合竣工验收组织竣工验收参与竣工验收质量回访结束文档实用标准图3-3 施工质量控制管理流程项目造价管理工作总体流程(一)工程指挥部领导小组监理单位参建单位建设部工程部前开始期阶段组织可研估算工作初步组织初步设计评审设计单位编制初步设计概算设设计单位配合计初步设计评审阶批复初步设计段参与施工图设计单位编制施及预算评审施工图预算工图设计组织施工图及预算会审阶编制底标,组织批复施工施工单位招标图预算段审核工程审查工程施工单位提变更变更预算出工程变更审批重大设计变更预算是否重大设计变更施工单位申请支付工程施预付款工施工单位申阶段审查批准支付审核申请请支付工程进度款施工单位申请其他付款A工程变更费用文档实用标准图 4-1 项目造价管理工作总体流程(一)项目造价管理工作总体流程(二)工程指挥部领导小组监理单位参建单位建设部工程部A汇总工程变更、编制施工结签证、索赔等资算书,提出竣竣工料,对资料的完整性进行审查工结算申请验收通过否审查阶段是审查批准签署审查意见竣工决算及审计结束图 4-2 项目造价管理工作总体流程(二)文档工程进度款管理工作流程图工程指挥部监理单位施工单位建设部工程部开始编制工程预付款报审表,申请支付工程预付款审查付款申请审核批准根据工程施工完成形象进度编制工程进度款报审表办理预付款进度款审核材料供应、劳务分包提出的付款申请监督材料供应、劳务分包款项的支付情况支付预付款进度款结束图4-3 工程进度款管理工作流程文档。
建设单位业主⽅⼯程项⽬管理流程图最新整理与开始可研项⽬可研项⽬可研设评审计申请项⽬核准与招可研批复标否制定物资设计、监理采购计划招标配合初步设计否物资采购初设评审通过 A 是初设批复材料清册技术协议施⼯图设计及预算施⼯图及预算审查通过是编制资⾦计划项⽬管理⼯作总体流程(⼀) 1-1 图⼯否A 竣初设材料清册⼯与施⼯图材料清册对⽐补充物资验采购编制并下达⼯收程进度计划与落实开⼯(基础施⼯)⼟建评条件安装(杆塔组⽴)价调试(架线附件)满⾜是合同管理进度管理安全管理质量管理造价管理技术管理档案管理否竣⼯验收通过是启动投运⼯程结算资料移交⼯程结算审计评价考核竣⼯决算结束资产移交图1-2 项⽬管理⼯作总体流程(⼆)施⼯协调管理流程图开始审核⼯程开⼯报审表审批⼯程开⼯报审表办理开⼯⼿续提出相关需要施⼯单条件满⾜位解决的施⼯问题召开⼯程例会,解决组织编写⼯程开相关施⼯出现的问题⼯报审表是否下达组织⼯程开⼯⼯程暂停否令负责落实解决影响⼯程施⼯的相是关事项下达⼯程暂停令确认整改完成后配合协调解决问题提出复⼯申请⼯程竣⼯后审批复⼯申请参加启动⼯作结束图1-3 施⼯协调管理流程⼯程建设⽉报上报流程图汇总物资、施⼯、监监汇总物资、施⼯、理⽉报,编制《电⽹报理⼯程建设情况,5建设⽉报》,每⽉有关部门⽇前报⼯程指挥部审查施⼯⽉报,并编制监理⽉报,每⽉27⽇前报⼯程部开始(包括各个编制⽉报专业本⽉⼯作情况,存在的困难和问题下⽉以及相应对策,23 进度计划),每⽉⽇前报监理单位⼯程建设⽉报上报流程1-4 图确认⼯程档案管理⽬审查⼯程竣⼯档案开始标、档案范围及要求收集⾃⾝负责的提出档案管理的所有相关⽂档案⽬标计划及要求及影像资料审核相关⽂档做好纸质⽂档的接受⼯程竣⼯档案⼯程竣⼯档案移交收发保管⼯作,移交⾄公司档案室每⽉整理影像资审核⼯程竣⼯档案按要求对⽂件资料料进⾏归档⼯作确认⼯程竣⼯档案竣⼯项⽬结束移交经施⼯单位审核后上报验竣⼯资料⼯程竣⼯档案移交项⽬安全管理⼯作总体流程(⼀)项参建单位⼯程指挥部安全监察部.期及开始建⽴安全管理施监理项⽬部施⼯项⽬部制度和安全管⼯理台账监督检查⼯程编制安全监编制安全⽂明建⽴安全准安全管理体的督促、检查参⽅作理⼯施⼯实施细则管理⽹络建⽴和运⾏建单位编制安备案,建⽴安⽅案及危险点全管理制度、全管理台账否预控措施,建阶台账及危险点⽴安全管理台是预控措施账段监理项⽬部施⼯项⽬部开⼯前,召开第⼀次安全会是审核安措费使开⼯前,落实议⽤情况,对现措全⽂安明场安全⽂明施施,落实安全⼯条件及措施会议精神和风否落实情况进⾏险、应急、分把关包等管理措施达到安全审批参建单位⽂明施⼯修改完善的安全⽂明施开⼯条件⼯策划整改完善条件符合A要求理监督检查⼯安全管理监理项⽬部 A 指导及组织开展各类监督改进落实组织实施全过监督检查项⽬施⼯现场安全检查竣情况并提出预程安全管理安全⽂明状况,对重要防措施⼯序、危险点、特殊作⼯总结并制定安业实施旁站,协调交叉施⼯项⽬部全管理改进计阶作业和⼯序交接中安全划⽂明施⼯问题每⽉开展安全教育,开段展安全检查活动,落实定期召开安全安全会议决定和安评、会议组织开展危险点、应急和分包管安全管理活动理制度和措施,实⾏隐对检查和评价中存患整改闭环管理,保持在的隐患进⾏整改组织⽉度和随安全⽂明施⼯环境闭环机安全检查落实季度及专否继续整顿项安全⼤检查是定期开展危险结束点预控管理分包管理持续动态改进评价,总结保持良好按⽂上报明施⼯环境监督指导项⽬问题整改符合要求分析总结评价结果总结上报图2-2项⽬安全管理⼯作总体流程(⼆)管理制度阶开始定期随机检段设计单位查在建⼯程保证供图进度和质量;派驻⼯地代建⽴质量管理质量表;及时答复参建各⽅提出的设计问体系及规章制题;参加歌唱质量检查歌唱质量事故加强设备采购度调查等⼯作质量管理和监施⼯单位造⼯作建⽴健全施⼯质量管理体系和制对项⽬质量度;制定落实质量保证措施;加强进⾏全过程分包质量管理;严格⼯序管理,组管理织好内部质量检查、验收⼯作,参组织中监理单位加⼯程质量检查,质量事故调查和间验收建⽴健全监理质量控制保证体系,处理等⼯作;完善施⼯质量档案管制定见证、旁站、巡视、平⾏检验理等监理⼯作制度,并确保有效实施;设备供应公司审查施⼯单位的《施⼯组织设计》严格执⾏国家及⾏业标准、合同规等有关⽂件;组织检查验收进场设定,提供全套产品质量证明⽂件,并备和材料;严格施⼯过程质量控制,按合同规定提供技术培训和现场安定期编写过程质量报告;组织或参装试验技术指导及相关服务,配合监调试试验单位加过程质量检查,过程质量事故调造⼯作严格执⾏有关规定,编制调试试验⼤查和处理;建⽴健全⼯程监理质量纲,提交准确、齐全的⼯程调试、试档案验报告 AB阶 A段⼯编制⼯程项⽬批准⼯程项⽬启动计划书启动计划书程总结组织⼯程质量竣⼯验收阶段⼯程竣⼯启动验收参加⼯程竣⼯验收汇总竣⼯验收在规定的时限内配合做好复检出现的缺陷并完成消陷⼯作⼯作组织复检负责投产后的质量保修⼯作结束建设部组织施⼯图交接组织技术交底备案参与技术交底开始批准审批质量通病防范措施成⽴施⼯项⽬部审批施⼯组织⼯程质量控制跟踪设计 1、编制施⼯组织设计审查质量管理 2、编制质量通病体系防范措施 1、组织机构 3、建⽴质量管理、⼯序管理2 体系 3、质量⾃检检查监督、上岗证1 2、施⼯设备组织竣⼯验收监督管理、检查材料、1设备参与竣⼯验收设查计变 2、审更、⼯程变更验、检3查收隐蔽⼯程分认部分 4、签项⼯程质量关键⼯序过程控制处、分5析理质关键材料跟踪管理量事故组织中间验收或初检三级⾃查结束配合中间验收或初检配合竣⼯验收质量回访3-3 图施⼯质量控制管理流程项⽬造价管理⼯作总体流程(⼀)开始初步设组织可研估算⼯作计阶段组织初步设计单位编制设计评审初步设计概算施⼯设计单位配合图初步设计评审设批复初步设计计阶段参与施⼯图设计单位编制及预算评审施⼯图预算施⼯组织施⼯图阶及预算会审段编制底标,组织批复施⼯施⼯单位招标图预算施⼯单位提审核⼯程审查⼯程出⼯程变更变更预算变更否是重⼤设计变更审批重⼤设施⼯单位申计变更预算请⽀付⼯程审核申请预付款审查批准⽀付施⼯单位申请⽀付⼯程A 进度款施⼯单位申请其他付款⼯程变更费⽤阶算书,提出竣A ⼯结算申请段否汇总⼯程变更、索赔等资签证、料,对资料的完整性进⾏审查通过审查是签署审查意见审查批准竣⼯决算及审计结束。
建设单位(业主方)工程项目管理工作流程图否QG/TFRD-215-01.00-2012图1-1项目管理工作总体流程(一)图1-3施工流程月报流程图1-5档案信息管理流程图2-1项目安全管理工作总体流程(一)图2-2项目安全管理工作总体流程(二)图3-1项目质量管理工作总体流程(一)图3-3施工质量控制管理流程图4-1项目造价管理工作总体流程(一)项目造价管理工作总体流程(二)工程进度款管理工作流程成本控制管理工作流程图5-1项目进度管理工作总体流程图5-2项目设备、材料供应计划管理流程图5-3材料进货检验(设备开箱)流程图6-1项目技术管理工作总体流程图6-1项目技术管理工作总体流程图6-1项目技术管理工作总体流程图6-1项目技术管理工作总体流程图6-1项目技术管理工作总体流程图6-1项目技术管理工作总体流程图6-1项目技术管理工作总体流程图6-1项目技术管理工作总体流程图6-1项目技术管理工作总体流程图6-1项目技术管理工作总体流程图6-1项目技术管理工作总体流程图6-1项目技术管理工作总体流程图6-1项目技术管理工作总体流程图6-1项目技术管理工作总体流程图6-1项目技术管理工作总体流程图6-1项目技术管理工作总体流程图6-1项目技术管理工作总体流程图6-1项目技术管理工作总体流程图6-1项目技术管理工作总体流程图6-1项目技术管理工作总体流程图6-1项目技术管理工作总体流程图6-1项目技术管理工作总体流程图6-1项目技术管理工作总体流程图6-1项目技术管理工作总体流程图6-1项目技术管理工作总体流程图6-1项目技术管理工作总体流程图6-1项目技术管理工作总体流程图6-1项目技术管理工作总体流程图6-1项目技术管理工作总体流程图6-1项目技术管理工作总体流程图6-1项目技术管理工作总体流程图6-1项目技术管理工作总体流程图6-1项目技术管理工作总体流程图6-1项目技术管理工作总体流程图6-1项目技术管理工作总体流程图6-1项目技术管理工作总体流程图6-1项目技术管理工作总体流程图6-1项目技术管理工作总体流程图6-1项目技术管理工作总体流程图6-1项目技术管理工作总体流程图6-1项目技术管理工作总体流程图6-1项目技术管理工作总体流程图6-1项目技术管理工作总体流程图6-1项目技术管理工作总体流程图6-1项目技术管理工作总体流程图6-1项目技术管理工作总体流程图6-1项目技术管理工作总体流程图6-1项目技术管理工作总体流程图6-1项目技术管理工作总体流程图6-1项目技术管理工作总体流程图6-1项目技术管理工作总体流程。
与 开始可 研 项目可研 项目可研设 评审 计 申请项目 核准 与 招 可研批复
标
否
制定物资 设计、监理 采购计划 招标配合 初步设计 否 物资采购初设评审 通过 A 是 初设批复
材料清册 技术协议
施工图设 计及预算施工图及 预算审查
通过
是 编制资金
计划
项目管理工作总体流程(一) 1-1 图
工
否A 竣初设材料清册工与施工图材料清册对比补充物资验采购编制并下达工收程进度计划与落实开工(基础施工)土建评条件安装(杆塔组立)价
调试(架线附件)满足是合同管理进度管理安全管理质量管理造价管理技术管理档案管理
否竣工验收
通过
是启动投运
工程结算
资料移交工程结算审计评价考核竣工决算结束资产移交图1-2 项目管理工作总体流程(二)
施工协调管理流程图
开始
审核工程开工报审表审批工程开工报审表
办理开工手续
提出相关需要施工单条件满足位解决的施工问题
召开工程例会,解决组织编写工程开相关施工出现的问题工报审表是否下达组织工程开工工程暂停
否令负责落实解决影响工程施工的相是关事项下达工程暂停令
确认整改完成后配合协调解决问题提出复工申请工程竣工后
审批复工申请参加启动工作
结束图1-3 施工协调管理流程
工程建设月报上报流程图
汇总物资、施工、监监汇总物资、施工、理月报,编制《电网报理工程建设情况,5建设月报》,每月有关部门日前报工程指挥部审查施工月报,并编制监理月报,每月27日前报工程部
开始(包括各个编制月报专业本月工作情况,存在的困难和问题下月以及相应对策,23 进度计划),每月日前报监理单位
工程建设月报上报流程1-4 图
确认工程档案管理目审查工程竣工档案开始标、档案范围及要求收集自身负责的提出档案管理的所有相关文档案目标计划及要求及影像资料审核相关文档做好纸质文档的接受工程竣工档案
工程竣工档案移交收发保管工作,移交至公司档案室每月整理影像资审核工程竣工档案按要求对文件资料料进行归档工作确认工程竣工档案竣工项目结束移交经施工单位审核后上报验竣工资料
工程竣工档案移交项目安全管理工作总体流程(一)
项参建单位工程指挥部安全监察部.
期及开始建立安全管理施监理项目部施工项目部制度和安全管工理台账监督检查
工程编制安全监编制安全文明建立安全准安全管理体的督促、检查参方作理工施工实施细则管理网络建立和运行建单位编制安备案,建立安方案及危险点全管理制度、全管理台账否预控措施,建阶台账及危险点立安全管理台是预控措施账段监理项目部施工项目部开工前,召开第一次安全会是审核安措费使开工前,落实议用情况,对现措全文安明场安全文明施施,落实安全工条件及措施会议精神和风否落实情况进行险、应急、分把关包等管理措施
达到安全审批参建单位文明施工修改完善的安全文明施开工条件工策划整改完善条件
符合A要求
理监督检查工安全管理监理项目部 A 指导及组织开展各类监督改进落实组织实施全过监督检查项目施工现场安全检查竣情况并提出预程安全管理安全文明状况,对重要防措施工序、危险点、特殊作工总结并制定安业实施旁站,协调交叉施工项目部全管理改进计阶作业和工序交接中安全划文明施工问题每月开展安全教育,开段展安全检查活动,落实定期召开安全
安全会议决定和安评、会议组织开展危险点、应急和分包管安全管理活动理制度和措施,实行隐对检查和评价中存患整改闭环管理,保持在的隐患进行整改组织月度和随安全文明施工环境闭环机安全检查
落实季度及专否继续整顿项安全大检查是定期开展危险结束点预控管理分包管理持续动态改进评价,总结保持良好按文
上报明施工环境
监督指导项目问题整改
符合要求
分析总结评价结果总结上报图2-2
项目安全管理工作总体流程(二)
管理制度阶开始定期随机检段设计单位查在建工程保证供图进度和质量;派驻工地代建立质量管理质量表;及时答复参建各方提出的设计问体系及规章制题;参加歌唱质量检查歌唱质量事故加强设备采购度调查等工作质量管理和监施工单位造工作建立健全施工质量管理体系和制对项目质量度;制定落实质量保证措施;加强进行全过程分包质量管理;严格工序管理,组管理织好内部质量检查、验收工作,参组织中监理单位加工程质量检查,质量事故调查和间验收建立健全监理质量控制保证体系,处理等工作;完善施工质量档案管制定见证、旁站、巡视、平行检验理等监理工作制度,并确保有效实施;设备供应公司审查施工单位的《施工组织设计》严格执行国家及行业标准、合同规等有关文件;组织检查验收进场设定,提供全套产品质量证明文件,并备和材料;严格施工过程质量控制,按合同规定提供技术培训和现场安定期编写过程质量报告;组织或参装试验技术指导及相关服务,配合监调试试验单位加过程质量检查,过程质量事故调造工作严格执行有关规定,编制调试试验大查和处理;建立健全工程监理质量纲,提交准确、齐全的工程调试、试档案验报告 A
B
阶 A
段
工编制工程项目批准工程项目启动计划书启动计划书程总结组织工程质量
竣工验收阶段工程竣工启动验收
参加工程竣工验收
汇总竣工验收在规定的时限内配合做好复检出现的缺陷并完成消陷工作工作组织复检负责投产后的质量保修工作
结束
建设部组织施工图交接 组织技术交底 备案 参与技术交底 开始
批准 审批质量通病 防范措施 成立施工项目部
审批施工组织
工程质量控制跟踪 设计 1、编制施工组织
设计
审查质量管理 2、编制质量通病 体系 防范措施 1、组织机构 3、建立质量管理 、工序管理2 体系 3、质量自检 检
查监督
、上岗证1 2、施工设备 组织竣工验收 监督管理
、检查材料、1设
备
参与竣工验收 设查计变 2、审 更、工程变更 验、检3查收隐
蔽工程
分认部 分 4、签 项工程质量 关键工序过程控制 处、分5析理质 关键材料跟踪管理 量事故组织中间验收或初检
三级自查
结束 配合中间验收或初检 配合竣工验收
质量回访
3-3 图 施工质量控制管理流程
项目造价管理工作总体流程(一)
开始初 步 设组织可研 估算工作计 阶
段 组织初步设计单位编制 设计评审 初步设计概算 施 工 设计单位配合 图 初步设计评审 设批复初步 设计计 阶
段 参与施工图设计单位编制 及
预算评审施工图预算 施 工 组织施工图阶 及预算会审 段 编制底标,组织批复施工 施工单位招标图预算
施工单位提审核工程 审查工程
出工程变更变更预算变更
否
是
重大设 计变更 审批重大设施工单位申 计变更预算请支付工程 审核申请 预付款 审查批准支付 施工单位申 请支付工程A 进度款
施工单位申 请其他付款 工程变更费 用
阶算书,提出竣A 工结算申请段否汇总工程变更、索赔等资签证、料,对资料的完整性进行审查通过
审查是
签署审查意见审查批准竣工决算及审计结束
程预付款
根据工程施工完成形象进度编制工程
进度款报审表
办理预付款
进度款图4-3 工程进度款管理工作流程
工程变更管理工作流程图
施工招标择优选择施工单位1、审查合同价分解优化设计施工、审查设计变更、2图会审动态控制(事中)工
程变更 3 、核对材料、设备
订货概、预算审查进度款支付1、审查竣工决算、补偿与索赔23、扣质保金根据施工合同组建项目部,作出成本管理规划及资金使
用计划
合同归档并对价款使用进行控制、分析、
反馈
竣工验收决算
(事后)
实现成本控制
目标
结束
编制《工程施编制工程前期进度制工程进度计工进度计划》
计划划编制《工程物资审核工程施供应协调表》工进度计划汇总工程施工进度计实施施工进度计划划和物资供应协调表
否每月检查进度执行情况,是否满足及时纠正偏差工期要求
1、审查施工措施
2、检查材料、施工设施
3、检查劳动力落实情况是汇总排定项目结合月度存在的问题
4、组织协调各方关系设计计划及相应对策,汇总、审核调整后施《电网建设月报》编制工进度计划工程各节点进度变更造成项
目进度变化,实际值与
计划值对比是
每月汇总各个工程否是否影响进度执行情况总体进度否
进度控制对相应施工进度
计划进行调整
报出形象进度报表
结束
材料进货检验(设备开箱)流程5-3 图
施组织初步设计评审工建设部施工图评审阶设计单位段工程部参与施工图设计评审竣工
阶建设部设计单位段设计交底、技术交底、设备技术审核工程部施工单位技术方案审核工程变更管理监理单位
建设部组织工程竣工验收设计单位工程部参与工程竣工验收施工单位建设部组织工程启动监理单位工程部参与工程启动
技术总结工程部6-1 图项目技术管理工作总体流
程 . . . .。