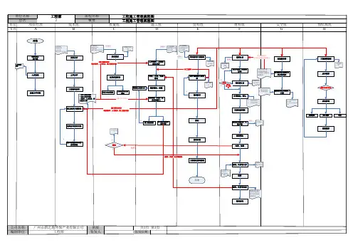
建设单位(业主方)工程项目管理工作流程图
- 格式:docx
- 大小:84.46 KB
- 文档页数:19
工程施工管理流程图1.1 施工阶段管理工作总程序框图(图1-1)
2.1 工程施工(质量、进度、成本、安全)控制动态图
3.1 工程质量保证体系工作流程图
4.1 工程质量控制体系流程图:
5.1 工程质量控制程序
2)开工基本程序(图5-2)
4)施工组织设计(施工方案)审批基本程序(图5-4)
不同意修
改后再报5)工程测量放线签认基本程序(图5-5)
6)工程材料、构配件和设备质量控制基本程序(图5-6)
7)工程预检、隐检,检验批、分项、分部工程签认基本程序(图5-7) 8)工程质量问题及工程质量事故处理基本程序 (图5-8)
9)单位工程验收基本程序(图5-9) 10)工程项目保修阶段验收基本程序(图5-10)
6.1 工程进度控制程序(图3-1)
7.1 工程成本控制程序
1)工程款支付基本程序(图7-1)
2)竣工结算控制的程序(图7-2)
8.1 合同管理的程序
1)工程变更管理的基本程序(图8-1)
2)工误延期管理的基本程序(图8-2)
3)工程洽商控制及签认的基本程序(图8-3)
4)费用索赔管理的基本程序(图8-4)
5)合同争议调理的基本程序(图8-5) 6)违约处理的基本程序(图8-6)
7)工程暂停及复工管理的基本程序(图8-7)。
6.1.10施工项目成本控制各人员关系图项目成本计划审核,上报,成本分析、月度及项目的成本报告;工程决算报审成本核算制交底、财务制度和会计制度,确定正常情况下的企业管理费、财务费用和制造成本;项目成本预测公司财务部公司工程部(预算项目经理建立项目成本核算制,明确项目成本核算的原则、程序、方法、内容、责任及要求,分解成本计划,定岗定人,项目成本控制项目部技术员物资供应商、劳务分包商项目部其他人员项目部预算员与项目成本有关的资料,交资料员收集,并转预算员各类工程变更、施工工艺、方法变更项目成本计划,项目经理部成本核算,进行成本分析并编制月度及项目的成本报告报审,进度款报审表,工、料、机动态,工程变更费用报审表费用索赔申请表,工程款支付申请表,工程延期申请表,施工决算纺制,报审进度款报审表,工、料、机动态表,工程变更费用报审表,费用索赔申请表,工程款支付申请表,工程延期申请表,施工决算业主、监理工程师合同文件项目经理按合同应预付按合同应付进度款、尾款项目部预算员项目部材料员项目部质检员项目部预算员规格、数量符合要求,附相关资料编制付款申请质量符合要求:经监理、业主验收:附相关资料公司工程管理部公司工程管理部公司技术部(总工物资供应商审核通过审核通过,业主付款后支付编制付款申请公司财务部审核通过项目经理按合同应预支生活费项目部预算员项目部工长项目部材料员项目部质检员进度完成情况,是否按工期要求完成,奖惩情况该分包商材料管理情况;附相关资料;奖惩情况质量符合要求:经监理、业主验收合格;附相关资料,奖惩情况安全指标完成情况,奖惩情况编制付款申请公司工程管理部项目部安全员物资供应商公司工程管理部公司财务部审核通过合同文件审核通过、业主付款后支付项目经理、技术负责人编制付款申请,办理阶段性付款决算,办理决算项目部预算员按合同应付进度款、应办理决算审核通过审核通过6.1.13项目进度控制流程图合同进度控制总目标编制控制性进度计划审批施工总进度计划监理审查业主批准监督计划实施检查执行情况进度计划分析与调整审核年季月周计划审核资源配置计划审批施工措施计划要求整改设计供图计划资金供应计划采购计划承包商责任? 承包商补救措施方案监理审核监督实施统计表报监理发出警告业主终止合同不接受严重偏离计划6.1.14月完成工程量计量支付流程图承建单位申报己完工程量报表,工程价款报表监理工程师检查工程量对照图纸,现场量测监理工程师审核己完工程价款报表总监签发建设单位审查会签,支付工程款承建单位6.1.15工程变更处理流程图6.1.16工程合同费用控制流程图6.1.17索赔处理流程图6.1.1工程变更报价工作流程图设计单位、监理机构、承包人、发包人单独或共同提出工程变更建议书监理机构审核建议书发包人审批设计单位进行变更设计监理机构审签变更设计图监理机构通知承包人就工程变更报价承包人报价监理机构审核承包人报价,报发包人发包人、承包人是否接受承包人、发凶人协商价格进行变更支付进入争议解决的程序监理机构暂定合适价格一致承包人施工按原计划施工否不同意不同意同意同意否是是费用索赔事件发生承包单位向项目经理部提交书面费用索赔意向项目监理部收集资料,详细记录过程承包单位随时提交索赔事件的详细报告索赔事件结束,承包单位提交《费用索赔申请表》项目监理部审核与评估与承包单位、建设单位协商总监理工程师签发《费用索赔审批表》不同意不一致建设单位或设计单位提出工程变更设计单位签发设计变更文件承包单位提出工程变更总监理工程师审查签认建设单位审查签认建设单位予以签认项目监理部发出会签的《工程变更单》承包单位实施工程变更承包单位向项目监理部提交《工程变更费用报审表》监理工程师审核总监理工程师签认建设单位审批不同意必要时必要时同意延期事件发生项目监理部收集资料详细记录过程承包单位随时提交延期事件的详细报告延期事件结束,承包单位提交《工程延期申请表》监理工程师审核与评估与承包单位、建设单位协商总监理工程师签发《工程延期审批表》不同意不一致承包单位提交工期索赔意向报告6.1.5工程暂停及复工管理基本流程图发生须暂停施工的情况总监理工程师签发《工程暂停令》承包单位暂停部分施工并妥善保护己完成工程消除工程暂停的原因消除工程暂停的原因具备复工条件时,总监理工程师应要求承包单位及时填写《工程复工报审表》,并予以签批,指令承包单位继续施工具备复工条件时,承包单位填报《工程复工报审表》及必要的附件总监理工程师审批承包单位继续施工非承包单位原因引起的暂停承包单位原因引起的暂停6.1.6合同争议调解基本流程图6.1.7索赔处理工作流程图6.1.8违约事件处理基本流程图6.1.9施工项目成本控制流程图6.2.2 工程竣工资料管理流程图单位(子单位工程质量竣工验收记录单位(子单位工程质量控制资料核查记录单位(子单位工程安全和功能检验资料核查及主要功能抽查记录单位(子单位工程观感质量检查记录竣工验收会议建设工程竣工报告工程质量保修书工程整改文件工程款拨付证明文件质量保证、安全、功能及抽查资料料监理评估报告工程监理资料建设单工作建设工程竣工报告监理评估报告合格文件(勘察、设计、施工图审查机构认可、准许文件(规划、公安消防、环保、档案工程质量保修书各地建设行政主管部门的规定工程款拨付证明文件质量保证、安全,功能及抽查资料工程监理资料验收监督通知书竣工验收备案表向建设行政主管部门上报资位建设工程竣工报告竣工验收报告监理评估报告合格文件(勘察、设计、施工图审查机构认可、准许文件(规划、公安消防、环保、档案工程质量保修书各地建设主管部门的规定建设工程竣工验收备案表资质量保证,安全、功能及抽查资料竣工验收前的准备施工单位竣工验收委员会主任宣布开会建设、勘察、设计、施工、监理“执法”汇报审阅勘察、设计、施工图审查机构、施工、监理质量合格文件审阅认可、准许文件(规划、公安消防、环保、档案审查质量保证、安全、功能及抽查资料实地查验工程质量专家组发言验收委员会宣布验收结论监督机构意见整理纪要验收会议结束监理单位建设单位施工资料移交城市建设档案馆6.2.3 项目产品回访流程图客服助理电话回访回访记录 OK 客户反馈行政助理回访资料结存档终辖区内客户标准问卷严重客服副总监/主任上报一般问题题问转问题严重性批重大工程客服管理中心总监所上报分公司总经理安排处理分公司客服部大区总裁、分公司总经理安排处理处理方案处理方案分公司责任部门和责任人进行处理处理方案追究责任部门和责任人【本文档内容可以自由复制内容或自由编辑修改内容期待你的好评和关注,我们将会做得更好】感谢您的支持与配合,我们会努力把内容做得更好!。
工程施工管理流程图1.1 施工管理阶段流程图
2.1工程施工(质量、进度、成本、安全)控制动态图
3.1 工程质量保证体系工作流程图
4.1
5.1 工程质量控制程序
1)单位工程质量控制基本程序(图5-1)2)开工基本程序(图5-2)
3)分包单位资格审查基本和序(图5-3)
4)施工组织设计(施工方案)审批基本程序(图5-4)
不同意修
改后再报
5)工程测量放线签认基本程序(图5-5)
6)工程材料、构配件和设备质量控制基本程序(图5-6)
7)工程预检、隐检,检验批、分项、分部工程签认基本程序(图5-7)8)工程质量问题及工程质量事故处理基本程序(图5-8)
9)单位工程验收基本程序(图5-9)
10)工程项目保修阶段验收基本程序(图5-10)
6.1 工程进度控制程序(图3-1)
7.1 工程成本控制程序
1)工程款支付基本程序(图7-1)2)竣工结算控制的程序(图7-2)
8.1 合同管理的程序
1)工程变更管理的基本程序(图8-1)2)工误延期管理的基本程序(图8-2)
3)工程洽商控制及签认的基本程序(图8-3) 4)费用索赔管理的基本程序(图8-4)
5)合同争议调理的基本程序(图8-5) 6)违约处理的基本程序(图8-6)
7)工程暂停及复工管理的基本程序(图8-7)。
项目管理整体实施方案内容及工作流程(一)项目管理整体实施方案项目管理机构是项目建设期间业主聘请,负责完成项目工程管理、验收和交付使用的管理工作.对本工程中出现的质量、进度和投资问题向业主提供咨询意见,并在业主的授权范围内,对设计单位、施工单位、监理单位等参建单位行使一定的管理职能,是工程建设的关键参与者.业主的需要就是我们的工作内容,建设管理服务的工作内容包括三个部分,第一部分是向业主提供专业化的咨询服务,作为业主的智囊和“脑的延升”,为业主决策提供支持;第二部分是受业主委托进行项目管理,作为业主的帮手和“手的延长”,为业主承担项目管理任务;第三部分是作为业主项目管理的备用团队,随时准备接受业主交办的项目管理延伸的相关任务.因此,在本工程建设中,我公司将当好业主的忠实代表,作好业主的指挥员和协调员,为业主提供工程建设过程中遇到的问题的解决方案、并对方案进行分析、论证和优选的工作.主要内容如下: 工程管理主要工作1、本工程施工管理总体要求:对工程的投资、质量和建设工期采用科学的方法和手段进行控制,进行工程建设合同、安全监督、文明施工、信息管理、协调有关单位之间的关系,向业主提交完整的档案资料,参与工程的交工和竣工验收.2、熟悉设计文件内容,审查设计文件的规范性、工艺的先进性和科学性、结构的安全性、施工的可行性和设计标准的适宜性等.3、代表业主审查各项设计变更,提出意见与优化建议.4、对设计中出现的重大问题和情况,及时向业主反馈,并协调业主与设计单位进行磋商,寻求解决办法.5、组织设计单位进行现场设计交底.审核承建单位对设计文件的意见和建议,会同设计单位进行研究,并督促设计单位尽快给予答复.6、检查工程承建单位的开工准备工作.7、审批承建单位提交的施工组织设计、施工技术方案等,并提出审核意见.8、审查承建单位的建筑材料、建筑物配件和设备的采购及使用.9、工程进度控制:提出工程控制性进度目标,并以此为基础审查批准承建单位提出的施工实施进度计划,检查其实施情况,督促承建单位采取切实措施实现合同目标要求.当实施进度发生较大偏差时,及时提出调整控制性进度计划的建议意见,并在通过批准后完成其调整.10、施工质量控制:审查承建单位的质量控制体系和措施,核实质量文件.依据工程建设合同文件、设计文件、技术规范与质量检验标准,对施工前准备工作进行检查,对施工工序与资源投入进行监督,以单元工程为基础,对重点工序和关键部位进行旁站,对基础工程、主体工程、设备安装工程等分部及其分项工程的质量进行检查、签证、和施工质量的评价.组织质量事故调查,分类评定质量事故等级,审批质量事故处理措施.11、工程造价控制:审核承建单位提交的工程计量及费用等.受理索赔申请,进行索赔调查和投标,并提出处理意见.依据业主授权处理合同与工程变更,下达变更指令.12、施工安全文明监督:审查施工安全措施、劳动防护和环境保护设施等,并负责检查、督促落实执行.参加重大安全事故调查并提出处理意见.13、在规定的工程质量保修期内,负责检查工程质量状况,组织鉴定质量问题责任,督促责任单位维修.招标采购管理工作1、招标采购策划,包括确定招标采购的阶段和招标类型.2、施工招标策划(包括施工标段的划分,发包模式和总分包界定,合同形式的确定,计价模式的确定,选定材料、设备的采购方式,初步确定投标人入围方案).3、根据本工程的特点,确定招标采购的范围,编制招标采购计划.4、合理划分各招标采购子项目,正确界定各子项目的界面.5、材料、设备招标采购准备(明确采购的内容、目的,制造商、供货商应具备的条件,合同类型的选择.)6、协助确定投标人方案,包括预计潜在投标人数量情况,建议入围方案,商讨确定入围方案.7、审核资格预审文件,包括资格预审条件的设定和评分办法.8、协助发布资格预审公告和招标公告.9、审核招标文件条款的合法性、逻辑性和准确性,审核施工招标文件工程量清单部分项目的完整性、内容描述的准确性,审核施工合同专用条款的完整性、正确性和严密性.10、审核和协助确定评标标准和办法.11、协助发布招标公告,协助组织投标人现场踏勘,协助组织答疑,审核补遗文件.12、协助开标、评标,审核评标报告.13、协助定标,包括确定中标人,发出中标通知书、编制招投标情况书面报告.14、审核合同草案,协助建设方与中标人投标,协助建设方签订合同.15、配合总承包单位选定专业分包单位.16、组织建设方采购的材料、设备验收.17、招投标活动的成果整理、归档.造价咨询的主要工作1、项目决策阶段:造价管理部应根据设计人员提供的建设项目的规模、地址、技术协作条件,对各种拟建设计方案制订估算书,必要时还要为业主估算竣本工程项目管理投标文件工后的经营费用和维护保养费,从而向业主提交估价和建议,便于业主决定项目的执行方案,确保方案在功能上、技术上和财务上的可行性.同时还应向业主提供上报主管部门审批的申请报告.2、项目设计阶段:这一阶段的设计费支出只占建设工程全寿命费用的1%以下,但对工程造价的影响却占7 5%以上,且往往容易被忽视.因此,造价咨询管理部应将设计阶段的造价管理作为全过程造价管理中的重点来抓.具体来讲,可根据设计人员提供的设计图纸和设计说明,制定建设投资分项初步概算,再根据概算和施工程序,制定资金支出初步估算,以保证投资得到最有效的运用;对不同的设计及材料进行成本分析和研究,并向设计人员提出成本建议,协助他们在投资限额范围内进行设计.3、项目招投标阶段:分析建设项目的具体情况,并结合当时、当地有关招投标方面的政策文件,向业主提供书面的咨询意见.需要时可协助业主及招标单位编制招标文件;可接受业主委托编制实物工程清单(或工程标底)和一系列相关文件;开标后,可协助业主分析、研究投标单位的报价,必要时可参与评标、决标;中标单位确定后,可为业主制订涉及工程造价的相关合同条款,并向业主提出签订工程承包合同时应注意有关问题,避免出现不必要的争议.4、项目实施阶段:工程实施阶段是整个项日建设过程中时间跨度最长、变化最多的阶段,对建设项目全过程造价管理来说也是最难、最复杂的,这个难点就是工程变更和工程索赔.作为造价咨洵管理部来说,工作主要包括与承包商一起参加施工图纸会审,了解施工图纸变更情况,做到心中有数,与发、承包商等相关单位明确统一的工程变更审核程序及审签人,实际操作中严格按约定办理;协助业主分析索赔事项,分清责任,及时提出反索赔,挽回不必要的损失.5、竣工结算阶段:由于项目造价咨询管理部从项目立项开始就介入工程造价控制,因此,结算阶段的工作相对就显得轻松.清理、统计工程变更联系单并计算造价,审核发承包等合规定允许调整的其他事项,审核承包方提交的工程竣工结算书,经过多方对账最终出具结算审核报告.业主临时指定的其他替代服务作为业主利益的忠实代表,项目管理班子将随时接受业主交办的项目管理相关任务,为业主分担项目管理任务是我们服务的责任.(二)项目管理工作流程山东华瑞建设项目管理有限公司制图2、项目管理咨询服务工作内容山东华瑞建设项目管理有限公司制图施工过程质量控制工作流程工作要求工作环节进度控制工作流程实施性施工进度计划的编制与审批流程变更及签证费用审核流程图招标管理工作流程图协助招标人办理工程验收相关资料的承诺及手续办理的工作内容和工作措施(一)办理工程验收相关资料承诺期限:符合条件的,当天办理申报条件:1、主体结构分部工程已备案;2、民用建筑节能分部工程已备案.申报材料:1、建筑屋面工程验收记录及相关材料检测报告;2、建筑装修装饰工程验收记录及建筑门窗等相关材料检测报告;3、建筑给水排水及采暖工程验收记录及相关材料检测报告;4、建筑电气工程验收记录;5、智能建筑工程验收记录;6、通风与空调工程验收记录;7、电梯工程验收记录;8、工程竣工验收通知书;9、单位工程竣工报告(附竣工工程质量报告);10、工程勘察质量检查报告;11、工程设计质量检查报告;12、工程质量监理报告;13、主要材料及室内环境质量检测报告;14、工程项目安全生产状况综合评价表(一式三份);15、住宅工程质量分户验收情况汇总表;16、工程验收程序、专家小组成员名单;17、提供工程技术资料一套.窗口审查重点:申报材料是否齐全并符合有关规定.备案程序示意图:相关单位报送资料→综合科窗口受理→综合科窗口出具资料受理证明(二)施工图审查建筑工程施工图设计文件审查是为加强工程项目设计质量的监督和管理,保护国家和人民生命财产安全,保证建设工程设计质量而实施的行政管理.国务院《建设工程质量管理条例》规定:“建设单位应当将施工图设计文件报县级以上的政府建设行政部门或者其他有关部门审查”、“施工图设计文件未经审查和批准的,不得使用”.目前实施的是对各类新建、改建、扩建的建筑工程项目的施工图设计文件审查.按照国家及有关的法规规定,项目管理部将认真研究有关法规,加强与项目所在地有关主管部门及审图单位的沟通,重点做好施工图设计报审和施工图设计的设计把关工作.在工作实施中,在加强与项目所在地有关主管部门及审图单位沟通的同时,与设计单位保持紧密的联系,及时、准确地将有关主管部门的各项规定精神传达给设计单位,并督促设计单位在建筑物的稳定性、安全性包括地基基础和主体结构体系是否安全、可靠;是否符合消防、节能、环保、抗震、卫生防疫、人防、防雷、交通、绿化等有关强制性标准、规范;施工图是否达到规定的深度要求;是否损害公众利益等方面严格按国家规范和各项强制性标准进行设计,使施工图在实现项目单位项目建设目标的同时符合国家规范和各项强制性标准.施工图审查需 15~30 个工作日.(三)建设项目相关专业专项审查1、建设项目环境保护审查为了加强建设项目的环境保护管理,防止废水、废气、废渣、粉尘、烟雾、恶臭、热污染、放射性物质、电磁辐射、噪声、震动等引起环境污染,对人体健康、周围环境和自然资源造成有害或者不良影响(包括潜在影响),政府对新建、改建、扩建的建设项目(包括区域开发项目)和技术改造项目(包括不含土建的设备更新)以及可能受到环境影响的住宅建设项目的环境保护建设,先后制定了《中华人民共和国环境保护法》、《建设项目环境保护管理办法》、《建设项目环境保护设计规定》等法律和法规,明确规定了所有建设项目,都必须执行环境影响评价和环境保护设施与主体工程同时设计、同时施工、同时投入生产和使用(简称“三同时”).2、建设项目卫生防疫审查为了使建设单位生产性项目和非生产性项目的规划、设计的功能分区合理布局,工业企业的劳动卫生防护设施,工业企业与居住区之间的卫生防护隔离区、饮食业防止食品污染和变质的设施均应符合卫生原则,为此有关行政主管部门根据规定对建设项目实施卫生防疫审查.3、建设项目消防审核为了预防火灾和减少火灾危害,保护公民人身、公共财产和公民财产的安全,维护公共安全,国家和有关部门先后制定了《中华人民共和国消防法》明确了建设单位应当将建筑工程的消防设计图纸及有关资料报送公安消防机构审核;经公安消防机构审核的建筑工程消防设计需要变更的,应当报经原审核的公安消防机构核准;按照国家工程建筑消防技术标准进行消防设计的建筑工程竣工时,必须经公安消防机构进行消防验收.4、建设项目民防审查为了加强民防工程的维护管理和开发利用,国家和有关部门对具有防范自然灾害、城市工业事故灾害和战争灾害等功能的地下、半地下防护设施的民防工程(含等级民防工程和简易民防工程),实施监督管理,先后制定了《中华人民共和国人民防空法》明确了民防主管部门在项目建筑设计方案、初步设计、施工图设计及竣工验收各阶段对民防工程的要求及管理程序.5、建设项目绿化审查为了促进植树造林绿化工作,加强树(林)木、绿(林)地建设和管理,保护和改善城乡生态环境,实施可持续发展战略,国家和本市有关部门先后制定了《中华人民共和国森林法》、《城市绿化条例》等法律、法规,明确所有建设项目的绿化配套方案应当按照有关技术标准预留耕植位置和面积,符合规划绿线要求;建设项目绿化经费由建设单位承担,列入建设项目总投资;绿化建设工程设计报送绿化管理部门审核,并办理相关手续,建设工程竣工后,绿化管理部门应当参与验收绿化工程.6、建设项目劳动安全卫生监察为了贯彻“安全第一、预防为主”的方针,确保建设项目(工程)符合国家规定的劳动安全卫生标准,保障劳动者在生产过程中的安全与健康,国家和管理部门先后制定了《中华人民共和国劳动法》、、《建设项目(工程)劳动安全卫生监察规定》《建设项目(工程)劳动安全卫生预评价管理办法》等法律、法规,明确了建设项目中的劳动安全卫生设施必须符合国家规定的标准,必须与主体工程同时设计、同时施工、同时投入生产和使用(简称“三同时”).7、建设项目市容环境卫生审查为了加强城市环境卫生设施的规划、建设,提高城市环境卫生水平,保障人民的身体健康,国家和有关部门先后制定了《中华人民共和国环境保护法》,设项目的环卫车辆通道等,应符合其相应标准.建设项目单位在其项目规划、方案设计、施工图设计、施工及竣工验收各阶段到市容环境卫生管理部门办理有关手续.8、建设项目抗震设防审查为了防御与减轻地震灾害,保护人民生命和财产安全,保障社会主义建设顺利进行,《中华人民共和国防震减灾法》(第八届全国人民代表大会常务委员会第二十九次会议通过)规定:“新建、扩建、改建建筑工程,必须达到抗震设防要求.”建设部于1994年发布的第三十八号令《建设工程抗御地震灾害管理规定》规定:“新建、改建、扩建工程必须进行抗震设防,不符合抗震设防标准的工程不得进行建设”.综上所述,建设项目相关专业专项审查在确保项目建设严格按照国家及有关法律法规进行建设,从而实现项目单位的项目建设目标上是十分必要的,同时按国家有关规定,在办理建设规划许可证前必须将各相关专业专项审查完毕,因此,项目管理部应在以下几方面入手作好建设项目相关专业专项审查工作:1、加强与各相关审查主管部门的沟通,认真领会吃透熟悉相关法规对项目建设要求,为作好建设项目各相关专业专项审查工作作好必要的准备.2、作好设计把关工作.在建设项目各相关专业专项审查工作中,设计工作起着决定性的作用,因此,在工作实施中,在加强与项目所在地有关主管部门及审图单位沟通的同时,与设计单位保持紧密的联系,及时、准确地将各相关专业的要求传达给设计单位,并督促设计单位严格按国家规范和各项强制性标准进行设计,使施工图在实现项目单位项目建设目标的同时符合国家规范和各项强制性标准.3、送审资料的准备工作.送审资料的准备工作中,加强同各主管部门的沟通,了解各主管部门对送审资料的要求,及时、准确按上述各项审查内容的主管部门要求报送有关资料,及时、顺利地完成报审工作.(四)建设项目相关配套项目申办1、建设项目供电申请为了保障和促进电力建设事业的发展,建立正常的供用电秩序,维护电力投资者、经营者的合法权益,保障电力安全运行,国家和本市有关部门对电力建设、生产、供应和使用先后制定了《中华人民共和国电力法》、《电力供应与使用条例》、《供电营业规则》等法律、法规.明确了电力事业投资实行“谁投资、谁收益”的原则,电力设施受国家保护;电力供应与使用双方应当根据平等自愿、协商一致的原则,签订供用电合同,确定双方的权利和义务.国家对电力供应和使用,实行安全用电、节约用电、计划用电的管理原则,因此申请新装用电、临时用电、增加用电容量、变更用电和终止用电应当依照有关规定的程序办理手续.电力设施是建设项目的重要配套条件,建设项目的用电,从可行性研究、设计、施工、验收、使用各阶段均需按有关规定程序办理相关的手续.因招标文件中对用电方面没有说明,所以以下就一般情况说明申办事项:1.1 用电征询(1)凡是电总容量在 800 千伏安以上的用户受电工程建设项目,其供电总容量、供电条件、变配电站站址的选择等方面,涉及电网的规划、建设改造,在用户确定项目之前,应向项目所在地的供电部门书面提出用电征询申请.供电部门就供电条件答复用户,征询答复是建设项目的立项根据之一,有效期为一年.建设项目逾期尚未成立,双方需重新协商解决.(2)凡用电容量在3150千伏安及以上时,双方可就用电容量、供电条件等签定意向性协议.在征询供电条件时,用户应提出书面申请,申请报告应列出户名、地址、联系人、联系电话、邮政编码、简要写明主要用电设备、特殊用电要求、预计用电容量及发展容量、预计用电时间等,客户还应提供立项意向有关文件及1:1000地形图.1.2 用电申请根据本项目特点,建设项目正式立项后,用户应及时向项目所在地的供电部门办理双路正式用电申请手续.同时,建设单位提供以下资料:1)填写《客户用电申请单》并附上级部门批准项目的有关文件.2)1:500或1:1000平面图标明建设变电所的位置,地下综合管线图.3)对高层建筑及建筑群体的用户,应说明其用途、分布、性质(出售、出租及最小单元).1.3 受电装置设计图纸审核(1)用户新装、增装或改装受电工程的设计、安装、试验与运行应符合国家有关标准;国家尚未制定标准的,应符合电力行业标准;国家和电力行业尚未制定标准的,应符合电力管理部门的规定.(2)用户受电装置设计图纸应送交供电部门审核.1.4 受送电工程施工与验收(1)供电部门在收到用户缴付的供电工程费后,根据用户受送电装置的施工进度和要求的供电日期,安排供电工程的施工.(2)用电计量装置的安装及表计接线等均由供电部门负责.用户如采用进口或国产成套设备,要求利用成套装置的电流互感器、电压互感器及附件用作计量装置,供电部门可以同意,但需经检验合格并加封.用户同时应备有必要的经检验合格的备品,并妥为保管.(3)供电部门参与对用户受送电装置工程(含隐藏工程)的施工安装质量的检查,用户受电工程施工、实验完工后,应向供电部门提出工程竣工报告,报告应包括该工程的监督报告和电器试验及保护整定调试记录.供电部门将及时组织检验,对检验不合格的,以书面形式一次性通知用户改正.(4)在用户受电装置检验合格后的10天内,派员装表接电.1.5 供用电合同供用电合同的主要内容包括:供电方式、供电容量、用电性质、用电地址及时间、计量方式、电价类别、电费结算方式、供用电设施维护责任及违约责任等条款.1.6 施工临时用电申请(1)临时施工用电申请,须在正式用电申请以后或在正式用电申请同时办理.(2)建设单位在办理动拆迁过程中,应及时通知供电部门拆表收费.动拆迁中丢失的计费电能表及电量由建设单位负责赔偿和缴纳电费.动拆迁范围内的上述工作完成后,方能同意对动拆迁范围内建设单位申请的临时用电接电.(3)用户在接电前,应根据《合同法》与供电部门签订供用电合同.2、建设项目上水申请建设项目在施工、交付使用和生产时,都要自来水供水系统供应生产用水和生活用水,进行配套建设.2.1 初步设计审查建设单位在提交项目初步设计文件的同时,应将供水方面的设计文件提供自来水公司审查,经审查符合条件的在初步设计图纸上盖上审查章,并在项目初步设计审查的专业部门审查意见上签署审查通过意见.2.2 施工图设计审核建设单位在供水工程施工前,须将供水方面的施工图设计文件提交自来水公司审核,并办理接水申请手续(包括临时、正式用水),办理接水申请须备齐下述资料:(1)用水申请报告;(2)用水征询批复;(3)地形图;(4)1:500给排水总平面图(施工图);(5)综合管线图;(6)各类给排水分层平面、透视图(包括消防);(7)泵房给排水平面、透视图;(8)使用浮球阀、嵌墙表、减压阀凭证;(9)消防给水防火批复.2.3 供用水合同为了明确供水人和用水人在水的供应和使用中的权利和义务,必须订立供用水合同.3、建设项目排水申请城市排水设施是建设项目的重要配套工程之一,对于较大区域内没有排水设施而需新建排水设施的,一般由国家及地方政府投资;对于工程项目规划红线范围内的排水设施,一般由建设单位投资建设.建设项目在建成投产、使用后的工业废水、生活污水和大气降水无论是纳入公共排水系统,还是自建排水设施,均为城市排水的体系.为此,建设单位在可行性研究时,及时向排水行政主管部门征询意见,提出申请,报告排放的污水、废水的质量和数量,建设区外排水管线设计图,化粪池、泵站和各种污水、废水处理装置,建设区域内排水管线设计图.3.1 建设项目排水申请程序(1)排水(方案)许可申请。
建设单位(业主方)工程项目管理工作流程图项目管理工作总体流程(一)工程指挥部建设部工程部图1-1 项目管理工作总体流程(一)物资公司设计单位项目\立项与可研可研批复设计与招标制定物资采购计划设计、监理招标配合物资采购施工图及预算审查通过是编制资金计划否初步设计施工图设计及预算图1-2 项目管理工作总体流程图1-3 施工协调管理流程图1-4 工程建设月报上报流程图1-5 档案信息管理流程安全监察部监督检查工程安全管理体的建立和运行项目安全管理工作总体流程(工程指挥部参建单位建设部工程部项目刖期及施工11建立安全1 *1‘管理网络1111111建立安全管理1制度和安全管111理台账1111f11督促、检查参11建单位编制安全管理制度、111台账及危险点111 [预控措施监理项目部1 r施工项目部编制安全监理工作方案,建立安全管理台账修改完善达到安全文明施工开工条件 ,条件-- +:编制安全文明施工实施细则方案及危险点预控措施,建立安全管理台账r施工项目部监理项目部开工前,落实审核安措费使安全文明措用情况,对现施,落实安全 4 场安全文明施会议精神和风工条件及措施险、应急、分落实情况进行包等管理措施把关整改完善安全监察部全过程安全管理监督检查指导组织开展各类安全检查项目安全管理工作总体流程(二)工程指挥部建设部工程部检查指导项目安全管理参建单位项冃施工及竣工阶段落实季度及专项安全大检查总结并制定安全管理改进计戈y监督改进落实*-情况并提出预防措施定期召开安全会议组织开展安全管理活动监督指导项目问题整改组织实施全过程安全管理定期开展危险点预控管理分包管理评价,总结上报■ 组织月度和随机安全检查持续动态改进保持良好按文明施工环境图3-2 项目质量管理工作总体流程(二)领导小组工程指挥部建设部工程部监理单位参建单位刖期阶段初步设计阶段V 施工图设计阶段■■开始组织可研估算工作组织初步设计评审批复初步设计组织施工图及预算会审批复施工图预算参与施工图及预算评审编制底标,组织施工单位招标设计单位编制初步设计概算设计单位配合初步设计评审设计单位编制施工图预算审查批准支付审批重大设计变更预算施工单位提出工程变更图4-1 项目造价管理工作总体流程(一)V领导小组工程指挥部建设部工程部监理单位参建单位竣工验收阶段签署审查意见图4-2 项目造价管理工作总体流程(二)图4-3工程进度款管理工作流程图4-4 工程变更管理工作流程图4-5成本控制管理工作流程图5-1 项目进度管理工作总体流程图5-2 项目设备、材料供应计划管理流程图5-3 材料进货检验(设备开箱)流程图6-1 项目技术管理工作总体流程。
工程建设项目全流程图一、工程建设项目前期工作流程1.1 工程建设项目基本流程1.2工程建设项目建设项目投资决策(建议书、可研)流程1.3 工程建设项目建设项目设计阶段工作流程1.4 工程建设项目准备阶段工作流程二、工程建设项目管理流程2.1 工程建设项目管理基本流程2.2 招投标基本流程2.3 合同签订流程2.4 施工准备流程三、项目风险管理与信息管理流程3.1 项目风险管理流程3.2 项目信息管理流程3.3 竣工验收流程四、工程项目监理工作基本流程4.1 工程项目实施监理的总流程4.2 施工准备阶段监理工作流程4.3 施工阶段工程投资控制流程4.4 施工阶段工程进度控制流程4.5 施工阶段工程质量控制流程4.6 施工阶段安全监理控制流程4.7 合同管理控制流程4.8 信息管理控制流程4.9 组织协调控制流程4.10 工程质量问题及工程质量事故处理流程4.11 工程安全事故处理流程4.12 工程洽商控制及签证工作流程4.13 工程竣工验收控制流程一、工程建设项目前期工作流程1.1工程建设项目基本流程1.2建设项目投资决策(建议书、可行性研究报告)流程政府投资项目企业投资项目1.3 工程建设项目建设项目设计阶段工作流程1.4 工程建设项目准备阶段工作流程二、工程项目建设管理流程2.1 工程建设项目管理基本流程三、项目风险管理与信息管理流程3.1 项目风险管理流程·消极保留·非保险转移·消极保留·积极保留·保险转移·减小风险3.2 项目信息管理流程3.3 竣工验收流程四、工程项目监理工作基本流程4.9 组织协调控制流程4.10 工程质量问题及工程质量事故处理流程4.11 工程安全事故处理流程4.12 工程洽商控制及签证工作流程4.13 工程竣工验收控制流程4.14 保修阶段监理工作流程。
建设单位(业主方)工程项目管理工作流程图图1-2 项目管理工作总体流程(二)图1-3 施工协调管理流程图1-4 工程建设月报上报流程图1-5档案信息管理流程竣工审查工程竣工档案 审核工程竣工档案工程竣工档案移交提出档案管理的目标计划及要求收集自身负责的 所有相关文档案 及影像资料经施工单位审核后 上报验竣工资料做好纸质文档的 收发保管工作, 每月整理影像资按要求对文件资料 进行归档工作工程竣工档案移交・ 至公司档案室 确认工程竣工档案w 移交接受工程竣工档案彳移交确认工程档案管理目 标、档案范围及要求项目安全管理工作总体流程(一)图2-1 项目安全管理工作总体流程(一)***安全监察部 监督检查工程 安全管理体的 建立和运行参建单位项 刖 期 及 施准 备 阶 段 &&&图2-2 项目安全管理工作总体流程(二)图3-1 项目质量管理工作总体流程(一)图3-2 项目质量管理工作总体流程(二)图3-3 施工质量控制管理流程图4-2 项目造价管理工作总体流程(二)图4-3工程进度款管理工作流程图4-4 工程变更管理工作流程图4-5成本控制管理工作流程***图5-1 项目进度管理工作总体流程****** 否是否 合格 材料进货检验(设备开箱)流程图工程指挥部监理单位施工单位物资公司工程部开始组织验货按意见处理W是结束进货检验 设备开箱参加设备 开箱验货对不合格设备 提出处理意见 并清出现场物资发放 建立跟踪记录进入设备合格 区并建立台账乙供材 料存在 缺陷联 系厂家 处理物资(设备)到货, 提出物资使用计 划,各种试验报告,申请验货图5-3 材料进货检验(设备开箱)流程***图6-1项目技术管理工作总体流程。
浙江省工程建设项目审批办理基本流程图—政府投资房屋建筑类项目工程建设许可阶段牵头部门:市建委规划局 12个工作日施工许可阶段牵头部门:市建委 14个工作日竣工验收阶段(测验合一)牵头部门:市建委 15个工作日立项用地规划许可阶段牵头部门:市发改委 43个工作日项目办理时间:43+12+14+15=84个工作日浙江省工程建设项目审批办理基本流程图—政府投城市基础设施资类项目工程建设许可阶段牵头部门:市建委规划局 12个工作日施工许可阶段牵头部门:市建委 14个工作日竣工验收阶段(测验合一)牵头部门:市建委 13个工作日立项用地规划许可阶段牵头部门:市发改委 43个工作日项目办理时间:43+12+14+13=82个工作日浙江省工程建设项目审批办理基本流程图—企业投资民用建筑类项目立项用地规划许可、工程建设许可阶段牵头部门:市建委规划局 18个工作日项目策划网上受理一次受理项目办理时间:18+14+15=47个工作日网上受理施工许可阶段牵头部门:市建委 14个工作日竣工验收阶段(测验合一)牵头部门:市建委 15个工作日浙江省工程建设项目审批办理基本流程图—企业投资工业类项目一次受理项目办理时间:18+14+15=47个工作日立项用地规划许可、工程建设许可阶段牵头部门:市建委规划局 18个工作日项目策划网上受理网上受理施工许可阶段牵头部门:市建委 14个工作日竣工验收阶段(测验合一)牵头部门:市建委 15个工作日浙江省工程建设项目审批办理基本流程图—企业投资小型工程项目一次受理项目办理时间:23+13=36个工作日立项用地规划许可、工程建设许可阶段、施工许可阶段牵头部门:市建委 23个工作日项目策划网上受理网上受理竣工验收阶段(测验合一)牵头部门:市建委 13个工作日。