工程项目管理工作流程图
- 格式:docx
- 大小:106.79 KB
- 文档页数:20
工程建设项目史上最完整的全流程图工程建设项目一直以来都是众人眼中的“老大难”,文中四大流程中的24张图带你全面了解工程建设项目的全流程!一、工程建设项目前期工作流程1.1 工程建设项目基本流程1.2工程建设项目建设项目投资决策(建议书、可研)流程1.3 工程建设项目建设项目设计阶段工作流程1.4 工程建设项目准备阶段工作流程二、工程建设项目管理流程2.1 工程建设项目管理基本流程2.2 招投标基本流程2.3 合同签订流程2.4 施工准备流程三、项目风险管理与信息管理流程3.1 项目风险管理流程3.2 项目信息管理流程3.3 竣工验收流程四、工程项目监理工作基本流程4.1 工程项目实施监理的总流程4.2 施工准备阶段监理工作流程4.3 施工阶段工程投资控制流程4.4 施工阶段工程进度控制流程4.5 施工阶段工程质量控制流程4.6 施工阶段安全监理控制流程4.7 合同管理控制流程4.8 信息管理控制流程4.9 组织协调控制流程4.10 工程质量问题及工程质量事故处理流程4.11 工程安全事故处理流程4.12 工程洽商控制及签证工作流程4.13 工程竣工验收控制流程一、工程建设项目前期工作流程1.1 工程建设项目基本流程1.2工程建设项目建设项目投资决策(建议书、可研)流程1.3 工程建设项目建设项目设计阶段工作流程1.4 工程建设项目准备阶段工作流程二、工程建设项目管理流程2.1 工程建设项目管理基本流程2.2 招投标基本流程2.3 合同签订流程2.4 施工准备流程三、项目风险管理与信息管理流程3.1 项目风险管理流程3.2 项目信息管理流程3.3 竣工验收流程四、工程项目监理工作基本流程4.1 工程项目实施监理的总流程4.4 施工阶段工程进度控制流程4.5 施工阶段工程质量控制流程4.6施工阶段安全监理控制流程4.7 合同管理控制流程4.8 信息管理控制流程4.9 组织协调控制流程4.10 工程质量问题及工程质量事故处理流程4.11 工程安全事故处理流程4.12 工程洽商控制及签证工作流程4.13 工程竣工验收控制流程4.14 保修阶段监理工作流程注:监理表格未采用最新版监理规范附表,实际应用中请自行对应更改。
工程项目管理工作流程图
文明施工管理工作流程图
安全管理工作流程图
1、安全日巡查表;
2、工程安全文明施工控制情况表;
3、周安全检查表;
4、月安全文明施工评分表;
5、整改通知单;
6、整改回复单。
图纸会审工作流程图
施工组织设计(方案)编制与管理流工作流程图
作业指导书的编制与管理工作流程
技术交底的编制与管理工作流程
文件:1.施工组织设计
2.各种交底记录
隐蔽工程验收管理工作流程
文件:1.隐蔽工程施工记录
2.隐蔽工程检查验收记录(原始记录)
工程资料管理工作流程图
工程质量管理工作流程图
1、质量日巡查表;
2、工程质量控制情况表;
3、周质量检查表;
4、月工程施工质量评分表;
5、整改通知单;
6、整改回复单。
材料管理工作流程图
文件:1、材料分析表;
2、材料、设备采购计划;
3、材料、设备供应商考核表;
4、合格供应商台账;
5、材料、设备合同台账。
文件:1、合同预算书;
2、各项合同;
3、项目总、年度、季度、月度工程施工计划、每日现场实际完成工程进度;
4、材料、设备采购计划(总计划、月计划)
5、对下招标计划。
(总计划、月计划)
文件:1、各种结算资料;
2、竣工结算书;
文件:1、工程预算书;
2、人、材、机分析表。
文件:1.招标文件
2.投标文件
3.中标通知书
4.劳务分包单位考察报告
5.劳务分包招标控制价
实名制管理工作流程图
3、民工花名册;
4、民工告知书;
5、考勤表
6、工人工资表。
工程项目管理工作流程图工程项目管理工作流程图一、项目前期管理项目前期管理是指在项目正式立项之前,对项目的构思、规划、设计及可行性研究进行的管理。
主要工作包括:1、项目构思:根据市场需求、公司战略和资源状况,提出项目的初步设想。
2、需求分析:对项目需求进行详细研究,确定项目的目标、范围、约束条件和可行性。
3、项目规划:制定项目计划,包括时间表、预算、人力资源、风险评估等方面的规划。
4、设计:进行项目设计,包括项目的技术方案、组织结构、资源调配等方面的设计。
5、可行性研究:对项目的可行性进行深入研究,包括技术、经济、社会等方面的可行性分析。
二、项目立项管理项目立项管理是指在项目正式立项之后,对项目的启动、组织及调配进行的管理。
主要工作包括:1、项目启动:宣布项目启动,组建项目团队,分配项目资源。
2、组织:明确项目组织结构,分配项目职责和权限,制定沟通机制和会议制度。
3、调配:根据项目计划,对项目资源进行调配,确保项目进度和质量。
三、项目执行管理项目执行管理是指在项目实施过程中进行的管理,主要工作包括:1、进度管理:根据项目计划,对项目进度进行监控和管理,确保项目按时完成。
2、预算管理:根据项目计划,对项目预算进行编制和管理,确保项目不超支。
3、质量管理:对项目质量进行全程监控和管理,确保项目达到预期的质量标准。
4、风险管理:对项目风险进行识别、评估和管理,确保项目顺利进行。
四、项目收尾管理项目收尾管理是指在项目结束阶段进行的管理,主要工作包括:1、项目验收:对项目成果进行验收,确保项目达到预期的目标和标准。
2、项目总结:对项目进行总结,总结经验教训,为今后的项目提供参考。
3、项目评估:对项目的绩效进行评估,评估项目的投资回报率,为今后的项目提供参考。
4、项目收尾:完成项目的收尾工作,包括项目的结算、决算、合同终结、档案整理等。
总之,工程项目管理工作流程图是指导工程项目管理的重要工具,通过它,我们可以清晰地了解工程项目管理的全过程,并针对关键环节进行精细化管理,提高项目的效率和质量。
项目管理整体工作流程图第一章施工管理工作流程图第一节项目前期策划实施工作流程图第二节项目进度控制总流程图第三节项目进度过程控制流程图第四节重大施工方案报审流程图N第五节 一般施工方案报审流程图N第六节技术交底工作流程图第七节质量保证体系流程图第八节以过程为基础的质量管理体系流程图第九节质量控制流程图第十节质量检验程序流程图原材料取样试验结果评定试验报告施工控制检验成品质量检验检验结果评定合格不合格得出结论分析原因提出处理意见及改正措施结 束第十一节测量内部工作流程图第十二节安全保证体系安全保证体系思想保证组织保证制度保证技术保证经济保证提高全员安全意识施工技术安全规则教育牢记:安全第一认识:安全为了生产做到:管理生产必须管理安全项目部安全领导小组安全环保部作业队专职安检班组安全检查员各项安全生产制度各工种安全生产制度月季年安全检查制度安全总结评比制度安全技术措施施工安全技术交底安全技术培训现场安全防护设施实行奖罚分明经济兑现努力实现“零事故”目标第十三节应急预案体系图第十四节安全教育培训流程图第十五节安全生产事故隐患排查与整改流程图第十六节机械设备工作流程图第二章经营合同工作流程图第一节分包合同签订流程图第二节合同审批流程图第三节工程设备及原材料的控制流程图怎么样实施有效的项目管理第四节设备物资采购流程图页脚内容怎么样实施有效的项目管理页脚内容21第四节对上计量结算流程图第五节对下计量结算流程图。
工程项目建设管理流程图
(
监(市建设工程
交易服务中心)察
局(建设单位
(建设局)
福田区建筑工务局
二○○七年七月
基本建设项目审批程序
一、审批流程
项目建议书——→可行性研究报告——→初步设
计及概算——→ 开工报告——→竣工验收
二、审批条件
1、项目建议书审批所需材料
①项目业主的立项申请;
②有资格的单位编制的项目建议书;
③主管部门的报告或意见;
④建设用地来源;
⑤项目业主的营业执照或事业单位证书;
⑥按项目需提供的其他材料。
2、可研报告审批所需材料
①项目业主申请批准项目可研报告的报告;
②有资格的单位编制的可研报告;
③有资格的评估单位对可研报告的评估意见;
④按项目需提供的其他材料。
3、初步设计及概算
①项目业主关于申请下达项目年度计划的报告(包括项目前期工作进展情况、资金落实情况、当年施工计划、建设内容、当年投资额);
②项目建议书、可研报告、初步设计的概算的批复;
③建设用地规划许可证;
④经市规划局批准的总平面图;
⑤建设用地国土使用证;
⑥资金证明;
⑦按项目所需提供的其他材料。
工程建设项目史上最完整的全流程图,必收藏备用!工程建设项目一直以来都是众人眼中的“老大难”,文中四大流程中的24张图带你全面了解工程建设项目的全流程!一、工程建设项目前期工作流程1.1 工程建设项目基本流程1.2工程建设项目建设项目投资决策(建议书、可研)流程1.3 工程建设项目建设项目设计阶段工作流程1.4 工程建设项目准备阶段工作流程二、工程建设项目管理流程2.1 工程建设项目管理基本流程2.2 招投标基本流程2.3 合同签订流程2.4 施工准备流程三、 项目风险管理与信息管理流程3.1 项目风险管理流程3.2 项目信息管理流程3.3 竣工验收流程四、工程项目监理工作基本流程4.1 工程项目实施监理的总流程4.2 施工准备阶段监理工作流程4.3 施工阶段工程投资控制流程4.4 施工阶段工程进度控制流程4.5 施工阶段工程质量控制流程4.6 施工阶段安全监理控制流程4.7 合同管理控制流程4.8 信息管理控制流程4.9 组织协调控制流程4.10 工程质量问题及工程质量事故处理流程4.11 工程安全事故处理流程4.12 工程洽商控制及签证工作流程- 1 -4.13 工程竣工验收控制流程一、工程建设项目前期工作流程1.1 工程建设项目基本流程1.2工程建设项目建设项目投资决策(建议书、可研)流程1.3 工程建设项目建设项目设计阶段工作流程1.4 工程建设项目准备阶段工作流程二、工程建设项目管理流程2.1 工程建设项目管理基本流程2.2 招投标基本流程2.3 合同签订流程2.4 施工准备流程三、 项目风险管理与信息管理流程3.1 项目风险管理流程3.2 项目信息管理流程3.3 竣工验收流程四、工程项目监理工作基本流程4.1 工程项目实施监理的总流程4.2 施工准备阶段监理工作流程4.3 施工阶段工程投资控制流程4.4 施工阶段工程进度控制流程4.5 施工阶段工程质量控制流程4.6 施工阶段安全监理控制流程4.7 合同管理控制流程4.8 信息管理控制流程4.9 组织协调控制流程4.10 工程质量问题及工程质量事故处理流程4.11 工程安全事故处理流程4.12 工程洽商控制及签证工作流程4.13 工程竣工验收控制流程4.14 保修阶段监理工作流程。
1、工程项目管理总流程2、建设工程政府部门审批流程3、招标工作程序4、监理工作程序5、质量控制程序6、工期控制程序7、成本控制程序8、重要材料控制程序9、设计变更程序10、隐蔽工程验收程序11、竣工验收程序12、合同订立程序13、信息、资料管理程序◆工程项目管理总流程建设工程审批流程◆招标工作程序◆监理工作程序总 监 理 工 程 师建 立 项 目 监 理 部编 制 监理规划按 工 程 进 度 分 专 业编 制 监 理 实 施 细 则参加业主主持召开的第一次工地会议建立监理任务完成后 向业主提交工程监理档案资料质量控制程序质 量 控 制事先控制质量预控制组织图纸会审和设计交底审批施工 组织设计 审查质量体系 检 查 监 督组织机构工序管理质量自检上 岗 证施工设备测量定位工序质量跟踪控制 事中控制施工控制 检查原材料构审查设计变工程更改检查验收隐蔽签认分部分项工程质量签订装饰工程分析处理质量工期控制程序签订承包合同(业主与施工单位)编制施工进度计划(施工单位)基础工程主体工程安装工程装饰装修工程审查施工进度计划(项目管理部)编制年/季/月度实施计划(施工单位)审查施工计划(项目管理部)➢同意否NO YES同意否 NO YES动态管➢➢ ➢ ➢➢投资控制程序投资预控(事先)重要材料控制程序 竣工验收决算(事后)实现投资控制目标材料进场前提出材料使用计划、村质试验报告专业监理工程师审查报告监理工程师发现疑问 则承包单位重新检验批准报告、同意材料进场专业监理工程师再次审查申 报是再次 申➢➢隐蔽工程验收程序设计变更程序设 计 单 位 提 出 设 计 变 更监 理 工 程 师 从 质 量 、 进 度 、 投 资 控 制 角 度 审 查➢重 大 修 改 与 业 主 磋 商 并 取 得 业 主 的 认 可通 知 承 包 单 位 进 行 造 价 及 工 期 的 估 算根据合同条款核定承包单位的造价和工期的增减批准承包单位实施设计变更➢是否隐蔽工程验收程序业主抽查竣工验收程序 承包单位验收合格后报送验收资料监理工程师对承包单位报送的竣工资料进行审查有问题总监理工程师组织专业监理工程师对工程质量进行竣工预验收监理工程师就存在的问题要求承包单位及时整改➢否总监签暑工程竣工报验单合同订立程序信息、资料管理程序表示文件、档案资料的收集表示文件、档案资料的发送。
工程施工管理流程图1.1 施工管理阶段流程图
2.1工程施工(质量、进度、成本、安全)控制动态图
3.1 工程质量保证体系工作流程图
4.1
5.1 工程质量控制程序
1)单位工程质量控制基本程序(图5-1)2)开工基本程序(图5-2)
3)分包单位资格审查基本和序(图5-3)
4)施工组织设计(施工方案)审批基本程序(图5-4)
不同意修
改后再报
5)工程测量放线签认基本程序(图5-5)
6)工程材料、构配件和设备质量控制基本程序(图5-6)
7)工程预检、隐检,检验批、分项、分部工程签认基本程序(图5-7)8)工程质量问题及工程质量事故处理基本程序(图5-8)
9)单位工程验收基本程序(图5-9)
10)工程项目保修阶段验收基本程序(图5-10)
6.1 工程进度控制程序(图3-1)
7.1 工程成本控制程序
1)工程款支付基本程序(图7-1)2)竣工结算控制的程序(图7-2)
8.1 合同管理的程序
1)工程变更管理的基本程序(图8-1)2)工误延期管理的基本程序(图8-2)
3)工程洽商控制及签认的基本程序(图8-3) 4)费用索赔管理的基本程序(图8-4)
5)合同争议调理的基本程序(图8-5) 6)违约处理的基本程序(图8-6)
7)工程暂停及复工管理的基本程序(图8-7)
\\。
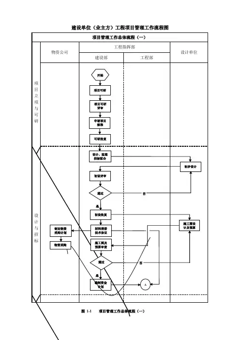
建设单位业主方工程项目管理工作流程图图1-4 工程建设月报上报流程图1-5 档案信息管理流程图 2-1 项目安全管理工作总体流程一图2-2 项目安全管理工作总体流程二图3-1项目质量管理工作总体流程一图3-2 项目质量管理工作总体流程二图3-3 施工质量控制管理流程图4-2项目造价管理工作总体流程二图4-3 工程进度款管理工作流程图4-4 工程变更管理工作流程图4-5 成本控制管理工作流程图5-1 项目进度管理工作总体流程图5-2 项目设备、材料供应计划管理流程图5-3 材料进货检验设备开箱流程图6-1 项目技术管理工作总体流程复制要替换的字库为将被替换的字库名,如:打开一幅图,提示未找到字体jd,你想用替换它,那么你可以去找AutoCAD字体文件夹font把里面的复制一份,重新命名为,然后在把放到font里面,在重新打开此图就可以了;以后如果你打开的图包含jd这样你机子里没有的字体,就再也不会不停的要你找字体替换了;1.如何替换找不到的原文复制要替换的字库为将被替换的字库名,如:打开一幅图,提示未找到字体jd,你想用替换它,那么你可以去找AutoCAD字体文件夹font把里面的复制一份,重新命名为,然后在把放到font里面,在重新打开此图就可以了;以后如果你打开的图包含jd这样你机子里没有的字体,就再也不会不停的要你找字体替换了;1.如何替换找不到的原文复制要替换的字库为将被替换的字库名,如:打开一幅图,提示未找到字体jd,你想用替换它,那么你可以去找AutoCAD字体文件夹font把里面的复制一份,重新命名为,然后在把放到font里面,在重新打开此图就可以了;以后如果你打开的图包含jd这样你机子里没有的字体,就再也不会不停的要你找字体替换了;1.如何替换找不到的原文复制要替换的字库为将被替换的字库名,如:打开一幅图,提示未找到字体jd,你想用替换它,那么你可以去找AutoCAD字体文件夹font把里面的复制一份,重新命名为,然后在把放到font里面,在重新打开此图就可以了;以后如果你打开的图包含jd这样你机子里没有的字体,就再也不会不停的要你找字体替换了;1.如何替换找不到的原文复制要替换的字库为将被替换的字库名,如:打开一幅图,提示未找到字体jd,你想用替换它,那么你可以去找AutoCAD字体文件夹font把里面的复制一份,重新命名为,然后在把放到font里面,在重新打开此图就可以了;以后如果你打开的图包含jd这样你机子里没有的字体,就再也不会不停的要你找字体替换了;1.如何替换找不到的原文复制要替换的字库为将被替换的字库名,如:打开一幅图,提示未找到字体jd,你想用替换它,那么你可以去找AutoCAD字体文件夹font把里面的复制一份,重新命名为,然后在把放到font里面,在重新打开此图就可以了;以后如果你打开的图包含jd这样你机子里没有的字体,就再也不复制要替换的字库为将被替换的字库名,如:打开一幅图,提示未找到字体jd,你想用替换它,那么你可以去找AutoCAD字体文件夹font把里面的复制一份,重新命名为,然后在把放到font里面,在重新打开此图就可以了;以后如果你打开的图包含jd这样你机子里没有的字体,就再也不会不停的要你找字体替换了;1.如何替换找不到的原文复制要替换的字库为将被替换的字库名,如:打开一幅图,提示未找到字体jd,你想用替换它,那么你可以去找AutoCAD字体文件夹font把里面的复制一份,重新命名为,然后在把放到font里面,在重新打开此图就可以了;以后如果你打开的图包含jd这样你机子里没有的字体,就再也不会不停的要你找字体替换了;1.如何替换找不到的原文复制要替换的字库为将被替换的字库名,如:打开一幅图,提示未找到字体jd,你想用替换它,那么你可以去找AutoCAD字体文件夹font把里面的复制一份,重新命名为,然后在把放到font里面,在重新打开此图就可以了;以后如果你打开的图包含jd这样你机子里没有的字体,就再也不会不停的要你找字体替换了;1.如何替换找不到的原文复制要替换的字库为将被替换的字库名,如:打开一幅图,提示未找到字体jd,你想用替换它,那么你可以去找AutoCAD字体文件夹font把里面的复制一份,重新命名为,然后在把放到font里面,在重新打开此图就可以了;以后如果你打开的图包含jd这样你机子里没有的字体,就再也不会不停的要你找字体替换了;1.如何替换找不到的原文复制要替换的字库为将被替换的字库名,如:打开一幅图,提示未找到字体jd,你想用替换它,那么你可以去找AutoCAD字体文件夹font把里面的复制一份,重新命名为,然后在把放到font里面,在重新打开此图就可以了;以后如果你打开的图包含jd这样你机子里没有的字体,就再也不会不停的要你找字体替换了;1.如何替换找不到的原文复制要替换的字库为将被替换的字库名,如:打开一幅图,提示未找到字体jd,你想用替换它,那么你可以去找AutoCAD字体文件夹font把里面的复制一份,重新命名为,然后在把放到font里面,在重新打开此图就可以了;以后如果你打开的图包含jd这样你机子里没有的字体,就再也不复制要替换的字库为将被替换的字库名,如:打开一幅图,提示未找到字体jd,你想用替换它,那么你可以去找AutoCAD字体文件夹font把里面的复制一份,重新命名为,然后在把放到font里面,在重新打开此图就可以了;以后如果你打开的图包含jd这样你机子里没有的字体,就再也不会不停的要你找字体替换了;1.如何替换找不到的原文复制要替换的字库为将被替换的字库名,如:打开一幅图,提示未找到字体jd,你想用替换它,那么你可以去找AutoCAD字体文件夹font把里面的复制一份,重新命名为,然后在把放到font里面,在重新打开此图就可以了;以后如果你打开的图包含jd这样你机子里没有的字体,就再也不会不停的要你找字体替换了;1.如何替换找不到的原文复制要替换的字库为将被替换的字库名,如:打开一幅图,提示未找到字体jd,你想用替换它,那么你可以去找AutoCAD字体文件夹font把里面的复制一份,重新命名为,然后在把放到font里面,在重新打开此图就可以了;以后如果你打开的图包含jd这样你机子里没有的字体,就再也不会不停的要你找字体替换了;1.如何替换找不到的原文复制要替换的字库为将被替换的字库名,如:打开一幅图,提示未找到字体jd,你想用替换它,那么你可以去找AutoCAD字体文件夹font把里面的复制一份,重新命名为,然后在把放到font里面,在重新打开此图就可以了;以后如果你打开的图包含jd这样你机子里没有的字体,就再也不会不停的要你找字体替换了;1.如何替换找不到的原文复制要替换的字库为将被替换的字库名,如:打开一幅图,提示未找到字体jd,你想用替换它,那么你可以去找AutoCAD字体文件夹font把里面的复制一份,重新命名为,然后在把放到font里面,在重新打开此图就可以了;以后如果你打开的图包含jd这样你机子里没有的字体,就再也不会不停的要你找字体替换了;1.如何替换找不到的原文复制要替换的字库为将被替换的字库名,如:打开一幅图,提示未找到字体jd,你想用替换它,那么你可以去找AutoCAD字体文件夹font把里面的复制一份,重新命名为,然后在把放到font里面,在重新打开此图就可以了;以后如果你打开的图包含jd这样你机子里没有的字体,就再也不复制要替换的字库为将被替换的字库名,如:打开一幅图,提示未找到字体jd,你想用替换它,那么你可以去找AutoCAD字体文件夹font把里面的复制一份,重新命名为,然后在把放到font里面,在重新打开此图就可以了;以后如果你打开的图包含jd这样你机子里没有的字体,就再也不会不停的要你找字体替换了;1.如何替换找不到的原文复制要替换的字库为将被替换的字库名,如:打开一幅图,提示未找到字体jd,你想用替换它,那么你可以去找AutoCAD字体文件夹font把里面的复制一份,重新命名为,然后在把放到font里面,在重新打开此图就可以了;以后如果你打开的图包含jd这样你机子里没有的字体,就再也不会不停的要你找字体替换了;1.如何替换找不到的原文复制要替换的字库为将被替换的字库名,如:打开一幅图,提示未找到字体jd,你想用替换它,那么你可以去找AutoCAD字体文件夹font把里面的复制一份,重新命名为,然后在把放到font里面,在重新打开此图就可以了;以后如果你打开的图包含jd这样你机子里没有的字体,就再也不会不停的要你找字体替换了;1.如何替换找不到的原文复制要替换的字库为将被替换的字库名,如:打开一幅图,提示未找到字体jd,你想用替换它,那么你可以去找AutoCAD字体文件夹font把里面的复制一份,重新命名为,然后在把放到font里面,在重新打开此图就可以了;以后如果你打开的图包含jd这样你机子里没有的字体,就再也不会不停的要你找字体替换了;1.如何替换找不到的原文复制要替换的字库为将被替换的字库名,如:打开一幅图,提示未找到字体jd,你想用替换它,那么你可以去找AutoCAD字体文件夹font把里面的复制一份,重新命名为,然后在把放到font里面,在重新打开此图就可以了;以后如果你打开的图包含jd这样你机子里没有的字体,就再也不会不停的要你找字体替换了;1.如何替换找不到的原文复制要替换的字库为将被替换的字库名,如:打开一幅图,提示未找到字体jd,你想用替换它,那么你可以去找AutoCAD字体文件夹font把里面的复制一份,重新命名为,然后在把放到font里面,在重新打开此图就可以了;以后如果你打开的图包含jd这样你机子里没有的字体,就再也不复制要替换的字库为将被替换的字库名,如:打开一幅图,提示未找到字体jd,你想用替换它,那么你可以去找AutoCAD字体文件夹font把里面的复制一份,重新命名为,然后在把放到font里面,在重新打开此图就可以了;以后如果你打开的图包含jd这样你机子里没有的字体,就再也不会不停的要你找字体替换了;1.如何替换找不到的原文复制要替换的字库为将被替换的字库名,如:打开一幅图,提示未找到字体jd,你想用替换它,那么你可以去找AutoCAD字体文件夹font把里面的复制一份,重新命名为,然后在把放到font里面,在重新打开此图就可以了;以后如果你打开的图包含jd这样你机子里没有的字体,就再也不会不停的要你找字体替换了;1.如何替换找不到的原文复制要替换的字库为将被替换的字库名,如:打开一幅图,提示未找到字体jd,你想用替换它,那么你可以去找AutoCAD字体文件夹font把里面的复制一份,重新命名为,然后在把放到font里面,在重新打开此图就可以了;以后如果你打开的图包含jd这样你机子里没有的字体,就再也不会不停的要你找字体替换了;1.如何替换找不到的原文复制要替换的字库为将被替换的字库名,如:打开一幅图,提示未找到字体jd,你想用替换它,那么你可以去找AutoCAD字体文件夹font把里面的复制一份,重新命名为,然后在把放到font里面,在重新打开此图就可以了;以后如果你打开的图包含jd这样你机子里没有的字体,就再也不会不停的要你找字体替换了;1.如何替换找不到的原文复制要替换的字库为将被替换的字库名,如:打开一幅图,提示未找到字体jd,你想用替换它,那么你可以去找AutoCAD字体文件夹font把里面的复制一份,重新命名为,然后在把放到font里面,在重新打开此图就可以了;以后如果你打开的图包含jd这样你机子里没有的字体,就再也不会不停的要你找字体替换了;1.如何替换找不到的原文复制要替换的字库为将被替换的字库名,如:打开一幅图,提示未找到字体jd,你想用替换它,那么你可以去找AutoCAD字体文件夹font把里面的复制一份,重新命名为,然后在把放到font里面,在重新打开此图就可以了;以后如果你打开的图包含jd这样你机子里没有的字体,就再也不复制要替换的字库为将被替换的字库名,如:打开一幅图,提示未找到字体jd,你想用替换它,那么你可以去找AutoCAD字体文件夹font把里面的复制一份,重新命名为,然后在把放到font里面,在重新打开此图就可以了;以后如果你打开的图包含jd这样你机子里没有的字体,就再也不会不停的要你找字体替换了;1.如何替换找不到的原文复制要替换的字库为将被替换的字库名,如:打开一幅图,提示未找到字体jd,你想用替换它,那么你可以去找AutoCAD字体文件夹font把里面的复制一份,重新命名为,然后在把放到font里面,在重新打开此图就可以了;以后如果你打开的图包含jd这样你机子里没有的字体,就再也不会不停的要你找字体替换了;1.如何替换找不到的原文复制要替换的字库为将被替换的字库名,如:打开一幅图,提示未找到字体jd,你想用替换它,那么你可以去找AutoCAD字体文件夹font把里面的复制一份,重新命名为,然后在把放到font里面,在重新打开此图就可以了;以后如果你打开的图包含jd这样你机子里没有的字体,就再也不会不停的要你找字体替换了;1.如何替换找不到的原文复制要替换的字库为将被替换的字库名,如:打开一幅图,提示未找到字体jd,你想用替换它,那么你可以去找AutoCAD字体文件夹font把里面的复制一份,重新命名为,然后在把放到font里面,在重新打开此图就可以了;以后如果你打开的图包含jd这样你机子里没有的字体,就再也不会不停的要你找字体替换了;1.如何替换找不到的原文复制要替换的字库为将被替换的字库名,如:打开一幅图,提示未找到字体jd,你想用替换它,那么你可以去找AutoCAD字体文件夹font把里面的复制一份,重新命名为,然后在把放到font里面,在重新打开此图就可以了;以后如果你打开的图包含jd这样你机子里没有的字体,就再也不会不停的要你找字体替换了;。
工程项目管理工作流程图
文明施工管理工作流程图
污
安全管理工作流程图
1、安全日巡查表;
2、工程安全文明施工控制情况表;
3、周安全检查表;
4、月安全文明施工评分表;
5、整改通知单;
6、整改回复单。
图纸会审工作流程图
施工组织设计(方案)编制与管理流工作流程图
作业指导书的编制与管理工作流程
技术交底的编制与管理工作流程
文件:1.施工组织设计
2.各种交底记录
隐蔽工程验收管理工作流程
文件:1.隐蔽工程施工记录
2.隐蔽工程检查验收记录(原始记录)
工程资料管理工作流程图
工程质量管理工作流程图
工
1、质量日巡查表;
2、工程质量控制情况表;
3、周质量检查表;
4、月工程施工质量评分表;
5、整改通知单;
6、整改回复单。
材料管理工作流程图
文件:1、材料分析表;
2、材料、设备采购计划;
3、材料、设备供应商考核表;
4、合格供应商台账;
5、材料、设备合同台账。
计划工作管理流程图
文件:1、合同预算书;
2、各项合同;
3、项目总、年度、季度、月度工程施工计划、每日现场实际完成工程进度;
4、材料、设备采购计划(总计划、月计划)
5、对下招标计划。
(总计划、月计划)
工程结算工作流程图
否
文件:1、各种结算资料;
2、竣工结算书;
工程统计工作流程图
预算编制工作流程图
文件:1、工程预算书; 2、人、材、机分析表。
招投标工作流程图
有
无
实名制管理工作流程图
文件:1、民工进场登记表;
2、民工离场确认单;
3、民工花名册;
4、民工告知书;
5、考勤表
6、工人工资表。