建筑装饰装修节点做法大样图
- 格式:pdf
- 大小:13.28 MB
- 文档页数:115
武汉万科精装修通用节点施工标准图集目 录1. 室内标高索引。
32. 轻钢龙骨石膏板吊顶做法局部大样。
43. 铝扣板吊顶做法。
84. 铝扣板吊顶(卡式龙骨)做法。
95. 轻钢龙骨吊顶产品规格。
116. 入户门平面节点大样图。
137. 户内门平面节点大样图。
198. 厨房门槛石节点大样图。
219. 卫生间门槛石节点大样图。
2210. 其他部位节点大样图。
23~2811. 附录《武汉万科精装修部品供应商目录》。
29武汉万科工程管理部第2页第3页武汉万科工程管理部第4页武汉万科工程管理部第5页武汉万科工程管理部第6页武汉万科工程管理部第7页武汉万科工程管理部第8页武汉万科工程管理部第9页武汉万科工程管理部第10页附:轻钢龙骨吊顶产品规格(GB/T11981)武汉万科工程管理部第11页门 洞 过 梁门 洞 过 梁无底框入户门洞口预留尺寸有底框入户门洞口预留尺寸入户门洞口预留尺寸武汉万科工程管理部第12页入户门洞口预留尺寸图(无贴脸)入户门洞口预留尺寸武汉万科工程管理部第13页门侧节点(外开有底框)无 贴 脸(缝中安装)入户门下槛节点大样武汉万科工程管理部第14页门侧节点(外开有底框)门侧节点(内开有底框)有 贴 脸(平外安装)入户门下槛节点大样武汉万科工程管理部第15页无 贴 脸(缝中安装)入户门下槛节点大样武汉万科工程管理部第16页有 贴 脸(平外安装)武汉万科工程管理部第17页门轴端户内门平面节点大样图武汉万科工程管理部第18页武汉万科工程管理部第19页房间门节点大样图武汉万科工程管理部第20页厨房门槛石节点大样图武汉万科工程管理部第21页卫生间门槛石节点大样图武汉万科工程管理部第22页武汉万科工程管理部第23页窗台石节点大样图武汉万科工程管理部第24页背景墙下部收口电视墙节点大样图武汉万科工程管理部第25页纸02挂镜线节点大样图26武汉万科工程管理部墙砖墙砖节点大样图27武汉万科工程管理部墙地砖及踢脚线节点大样图28武汉万科工程管理部附录:武汉万科精装修部品供应商名单序号 部品 供应商1 铝扣板 佛山市南海松岗泛华金属天花制品厂深圳市华深科技有限公司2 入户门 浙江金大门业有限公司3 户内门 浙江金凯门业有限公司4 背景墙 宁波方太厨具有限公司5 挂镜线 浙江金凯门业有限公司(暂定)6 木地板 安信伟光(上海)木材有限公司圣象集团有限公司7 门槛石 深圳市磊鑫园林装饰工程有限公司29武汉万科工程管理部。
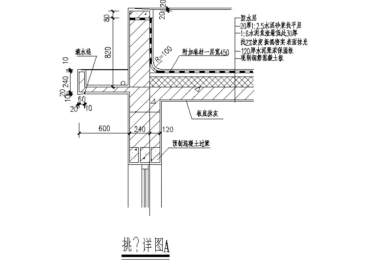
建筑节点构造大样汇总(值得收藏)结构与室内装修部分地下室底板或顶板翻边01施工控制节点节点施工说明:由于商品混凝土坍落度大,在进行地下室底板或顶板翻边部位施工时,振动棒振捣使混凝土流座到底板,施工人员往往少振或不振捣,导致混凝土不密实,因此形成渗漏薄弱点。
节点施工要求:针对该部位翻边混凝土,要求其坍落度达到3-5cm时,再进行二次振捣,确保该处混凝土密实。
同时,重点关注该部位的防水施工控制。
02施工控制节点质量缺陷:针对大面积车库底板、顶板、平屋面因商品混凝土坍落度大而产生的毛孔及收缩裂缝,导致结构渗漏水现象。
控制缺陷的工艺要求:浇捣时采用二次振捣,机械磨平工艺施工,能控制结构板裂缝及渗漏水缺陷通病。
结构柱脚漏浆处理方案:结构柱钢筋偏位处理:注:若地下室柱钢筋在柱外偏位时,可以不弯柱筋,将柱尺寸适当加大将柱筋包入混凝土内。
非常规填充墙封顶:注:1.本节点适用于中间一层精装修样板施工,其余尚未开始墙体砌筑;2.样板房墙体砌筑时应将上层墙体砌筑但不允许封顶,以防止上部梁结构受力变形影响样板房的墙体;3.如果中间结构分两次验收时,填充墙砌筑分界层也应按此节点施工。
03独立基础高低差施工处理节点:说明:基础距基底持力层边坡距离应不小于500,坡角不大于45度。
04地下车库地坪伸缩缝节点说明:1)本节点适用于地下车库找平层厚度达到或超过80m m的情况。
2)地下车库找平层地面伸缩缝用泡沫板分隔,板上部预留30-50m m浇筑混凝土;3)地下车库地坪混凝土应控制坍落度,且需采用二次振捣(坍落度在3-5cm时第二次振捣)、机械磨平。
05阳台翻边与栏杆高度节点说明:1)在扶手栏杆内侧做企口,高差不小于20。
2)设置阳台栏杆高度时,要预留出精装修饰面高度,在精装修完成地面计算栏杆高度。
06轻质加气混凝土砌块与梁柱交接节点说明:1)为控制轻制质砌块墙体体水泥砂浆粉刷层产生空鼓、裂缝,不用水泥砂浆粉刷,直接采用专用腻子或粉刷石膏腻子批面;2)砌筑墙体垂直度控制在3m m以内。