鼓形齿式联轴器选型手册(上)
- 格式:pdf
- 大小:10.14 MB
- 文档页数:30
目录前言……………………………………………………………………………绪论……………………………………………………………………………第一章概述…………………………………………………………………1.1联轴器的功用…………………………………………………………………………1.2联轴器的特点…………………………………………………………………………第二章选择联轴器的类型…………………………………………………2.1联轴器的分类…………………………………………………………………………2.2 选择联轴器应考虑的因素…………………………………………………………2.3鼓形齿联轴器的特点…………………………………………………………………2.4 ZWG型鼓形齿联轴器…………………………………………………………………第三章 ZWG型鼓形齿联轴器的尺寸给定…………………………………………3.1型式、基本参数和主要尺寸…………………………………………………………3.2 其型式、基本参数和主要尺寸应符合规定………………………………………………第四章鼓形齿联轴器的强度…………………………………………………第五章 CAD/CAM建模及数控编程……………………………………………5.1走刀轨迹及程序………………………………………………………………………第六章结论与展望……………………………………………………………参考文献………………………………………………………………………致谢……………………………………………………………………………33 37 35 30 26 26 14 14 11 4 6 3 3 3 4 16 2 20 18 18 18 32 3 34常州工学院鼓形齿联轴器的设计前言三年的大学生涯即将结束,最后的学习任务就是毕业设计。
设计就是根据任务书将学习到的基础知识、专业理论知识和实践知识相结合应用的过程,也是我们回顾、总结这三年所学知识的过程。
DC系列鼓形齿式联轴器安装使用说明书1.概述1.1 卷筒用鼓形齿式联轴器(图1)是一种新型挠性联轴器,主要用于起重设备中起升机构的减速器输出轴与钢丝绳卷筒的联接,也适用于其它类似的既传递转矩又承受径向载荷的机械设备,但不能用作需承受轴向载荷的传动。
1.2卷筒用鼓形齿式联轴器工作温度为-25~+80°C;传递公称转矩为16~560 kN·m;许用径向载荷为18~355 KN。
1.3 与其他卷筒用联轴器比较,卷筒用鼓形齿式联轴器具有如下特点:1.3.1工作稳定可靠,能承受很大径向载荷和传递较大的转矩,过载能力大。
1.3.2结构紧凑牢固,系列化设计,可简化整机结构,减轻设备重量。
1.3.3调位性能好,安装、调整方便,维护简单。
1.3.4设有定位磨损指示,安全可靠。
1.3.5可配用普通轴伸式减速机,降低设备成本。
2、结构特征与工作原理2.1 卷筒用鼓形齿式联轴器由带鼓形齿的外齿轴套、带联接法兰和内齿圈的外套、带外球面的承载环、端盖和密封圈等组成,并设有定位磨损指针、润滑油孔和通气孔等(见图1)。
2.2 外齿轴套和外套构成的鼓形齿式联轴器传递驱动功率, 而由承载环的外球面和外套的内承载面形成的接触副构成自动调位的球面轴承,承受径向载荷。
4、安装、调试4.1 联轴器安装前,应检查联接的配合表面,并清洗掉防锈油脂,去除毛刺,擦尽油污等。
4.2 本联轴器一般均为过盈配合,应以解体加热套装。
解体后,应将全部零件集中放置,以免丢失和损坏。
4.3安装时,先将外盖和密封圈套在外齿轴套的减速器侧,然后将外齿轴套加热后套装在减速器的输出轴上。
注意,加热温度可按其过盈量的大小及环境温度加以计算确定。
4.4外套(内齿法兰)与内端盖放入密封圈组合后做好外表的涂装防锈套入卷筒上并定位紧固。
4.5移动套筒对准外齿轴套缓慢套入,此时应注意对准套入的位置即钢码(如图2)4.7 联轴器与卷筒的联接以及端盖紧固应采用强度性能等级大于或等于8.8级的螺栓组,应按表3给定的预紧力矩表3 联接螺栓的预紧力矩4.8 安装时,05,所测得的任意两个E表4 测量偏差4.9 本联轴器不能承受轴向载荷。
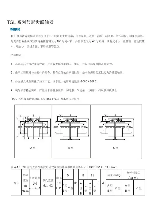
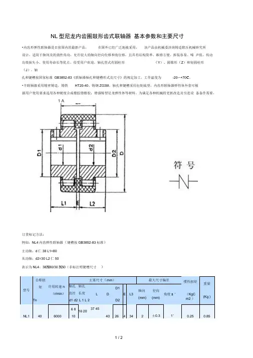
NL型尼龙内齿圈鼓形齿式联轴器基本参数和主要尺寸
•内齿形弹性联轴器是目前国内的最新产品,在国外已经广泛地被采用,该产品由机械委济南铸造锻压机械研究所
设计,适用于轴间及的挠性传动,允许较大的轴向径向位移和角位移,且具有结构简单、维修方便、拆装容易、噪声低、传动功效损失小、使用寿命长等优点、倍受用户欢迎。
轴孔型式有圆柱形(Y)、圆锥形(Z)和短圆柱形(J)。
轴
孔和键槽按国家标准GB3852-83《联轴器轴孔和键槽形式及尺寸》的规定加工。
工作温度为-20〜+70C。
•半联轴器采用精密铸造,铸铁HT20-40、铸钢ZG39I,轴孔和键槽采用拉制成型,内齿形联轴器弹性体外套可根
据用户使用要求选用各种硬度合成橡胶脂橡胶;增强铸型尼龙弹性体等材料。
为满足各种机械的更新改造及引进设备备件需要,
1 A
订货标记方法:
例如:NL4内齿弹性联轴器(键槽按GB3852-83标准)
主动轴:d仁38 L1=80
从动轴:d2=30 L2仁50
表示为NL4: 38X80/30 X50(非标注明键槽尺寸)。
GIICL型⿎形齿联轴器技术参数GIICL型⿎形齿式联轴器⼜称为GIICLZ接中间轴⿎形齿式联轴器,该联轴器齿间距⼩,允许相对径向位移⼩,结构紧凑,转动惯量⼩,适⽤于公称扭矩为0.4-4500Kn.m联接⽔平两同轴线轴系传动。
具有⼀定⾓向补偿两轴相对偏移性能。
GIICL⿎形齿式联轴器结构形势图和参数尺⼨参见下图:GⅡCL型⿎形齿式联轴器基本参数和主要尺⼨(JB/T8854.2-99)/mm型号公称转矩T n/N·m许⽤转速[n]/r·min-1轴孔直径d1、d2轴孔长度LD D1D2C H A B e润滑脂⽤量/mL质量m/kg转动惯量I/kg·m2Y J1GⅡCL1400400016、18、1942-103715082367638515.10.014 20、22、24523830.014 25、286244 3.10.014 30、32、358260 3.60.015GⅡCL2710400020、22、245238115836082428842704.90.023 25、286244 4.50.022 30、32、35、388260 5.10.024 40、42、4511284 6.20.027GⅡCL31120400022、245238127957582449042687.50.042 25、28624470.040 30、32、35、388260 6.90.040 40、42、45、48、50、55112848.60.045GⅡCL41800400038826014911690824998428710.10.08 40、42、45、48、50、55、561128412.20.089 60、63、6514210714.50.098GⅡCL53150400040、42、45、48、50、55、56112841671341051025551084212516.40.15160、63、65、70、71、7514210719.60.173GⅡCL65000400045、48、50、55、5611284187******** 2.5561104214822.10.265 60、63、65、70、71、7514210726.50.30 80、85、9017213231.20.337GⅡCL77100375050、55、561128420417014010 3.5601184217527.60.405 60、63、65、70、71、7514210733.10.46 80、85、90、9517213239.20.52 100、(105)21216747.50.602GⅡCL810000330055、5611284230186155123671424726835.50.668 60、63、65、70、71、7514210742.30.75 80、85、90、9517213249.70.839 100、110、(115)21216760.20.964GⅡCL916000300060、63、65、70、71、75142107256212180123691464731055.6 1.264 80、85、90、9517213265.6 1.425 100、110、120、12521216779.6 1.652 130、(135)25220295.8 1.878GⅡCL1022400265065、70、71、7514210728723920014 3.5781644747272 2.05 80、85、90、9517213284.4 2.3 100、110、120、125212167101 2.64 130、140、150252202119 2.98GⅡCL1135500235070、71、7514210732527623514 3.5811704755097 5.81 80、85、90、95172132114 4.94 100、110、120、125212167138 4.94 130、140、150252202161 5.6 160、170(175)302242189 6.35GⅡCL12500002100751421073623132701648919049695128 6.49 80、85、90、951721321507.31 100、110、120、1252121672058.45 130、140、1502522022139.6 160、170、18030224224810.91 190、20035228228512.22GⅡCL1371000185015025220241235030018 4.59820849101926915.7 160、170、180、(185)30224231517.7 190、200、220(225 )35228236019.67GⅡCL141120001650170、180、(185)30224246242033522 5.517229663390042132.1 190、200、22035228247635.2 240、25041033054438.9GⅡCL151800001500190、200、22035228251247038022 5.518231663370060857.2 240、250、26041033069663.4 280、(285)47038078669.8GⅡCL1625000130022035228258052243028720935467450079995.7 240、250、260410330913105.8 280、300、3204703801027116.4GⅡCL173550001200250、2604103306445824902871983646749001176172.3 280、(290)、300、3204703801322190.1 340、360、(365)5504501532214.9GⅡCL185000001050280、(290)、300、3204703807266585402882224307570001698314.1 340、360、3805504501948351 4006505402278398GⅡCL19710000950300、3204703808187486303282324407589002249547 340、(350)、360、380、5504502591615(390)400、420、440、450、4606505403026702GⅡCL20100000800360、380、(390)5504509288387203210.5247470751100033841047 400、420、440、450、46065054039841196 480、500530、(540)80068044301443GⅡCL21750400、420、440、450、46065054010229288104011.5255490751300049771875 480、500530、560、60080068061522246GⅡCL22650450、460、480、500650540113410369154013262510751600063183015 530、560、600、63080068077383619 670、(680)900780GⅡCL23600530、560、600、6308006801282117810355014.52995808028000100136068 670、(700)、710、750、(770)900780115536900GⅡCL24550560、600、6308006801428132211755016.53176108033000129159944 670、(700)、710、7509007801501511353 800、85010008801661512527GⅡCL25500000460670、(700)、710、750900780164415381390501932562080430001983720697 800、85010008802238123346 900、950-9802476525652 1000、(1040)-11002779728793注:1.转动惯量与质量按J1型计算。
NL 型尼龙内齿圈鼓形齿式联轴器基本参数和主要尺寸● 内齿形弹性联轴器是目前国内的最新产品,在国外已经广泛地被采用,该产品由机械委济南铸造锻压机械研究所设计,适用于轴间及的挠性传动,允许较大的轴向径向位移和角位移,且具有结构简单、维修方便、拆装容易、噪声低、传动功效损失小、使用寿命长等优点、倍受用户欢迎。
轴孔型式有圆柱形(Y)、圆锥形(Z)和短圆柱形(J)。
轴孔和键槽按国家标准GB3852-83《联轴器轴孔和键槽形式及尺寸》的规定加工。
工作温度为-20~+70℃。
●半联轴器采用精密铸造,铸铁HT20-40、铸钢ZG35Ⅱ,轴孔和键槽采用拉制成型,内齿形联轴器弹性体外套可根据用户使用要求选用各种硬度合成橡胶脂橡胶;增强铸型尼龙弹性体等材料。
为满足各种机械的更新改造及引进设备备件需要,订货标记方法:例如:NL4内齿弹性联轴器(键槽按GB3852-83标准)主动轴:d1=38 L1=80从动轴:d2=30 L21=50表示为NL4:38×80/30×50(非标注明键槽尺寸)型号公称扭矩Tn (N.M)许用转速n(r/min)主要尺寸 (mm) 最大尺寸偏差惯性扭矩(KgC m 2 )重量(Kg ) 轴孔直径d1 d2轴孔长度L 1 L 2L DD1D2E L3轴向(mm)径向(mm)角度α°NL1 40 60006 81016 2025 3237 4555 6940 26 4 34 2 ±0.31°0.25 0.85 12 14NL2 100 6000 10 1214 2225 3242 5257 7191 11142 36 4 40 2 ±0.41°0.92 1.7 16 1820 24NL3 160 6000 20 2224 52 6211313366 44 4 46 2 ±0.41° 3.10 2.6 25 28NL4 250 6000 28 3032 62 8212916983 58 4 48 2 ±0.41°8.69 3.6 35 38NL5 315 5000 32 3538 82 11216922993 68 4 50 3 ±0.42°14.28 5.5 40 42NL6 400 5000 40 4245 82 112 230 100 68 4 52 3 ±0.4 2°18.34 6.8 48NL7 630 3600 45 4850 82 112 229 115 80 4 60 3 ±0.62°56.5 9.8 55NL8 1250 3600 48 5055 112142229289140 96 4 72 3 ±0.62°98.55 26.5 60 6365NL9 2000 2000 60 6365 142172295351175 124 6 93 4 ±0.72°370.5 37.6 70 7175 80NL10 3150 1800 70 7175 80142172212292352432220 157 8 110 4 ±0.72°1156.8 55。
LZG型鼓形齿式联轴器1 范围本标准规定了LZG型鼓形齿式联轴器(以下简称“联轴器”)的型式、基本参数、主要尺寸、技术要求、检验规则及标志、包装和贮存。
本标准适用于联结两个不同轴线传动轴系的鼓形齿式联轴器。
其回转直径为300 mm~800mm,传递公称转矩为125kN·m~2400 kN·m,空载轴线折角≤4.5°,负载轴线折角≤2.5°。
2规范性引用文件下列文件对于本文件的应用是必不可少的。
凡是注日期的引用文件,仅注日期的版本适用于本文件。
凡是不注日期的引用文件,其最新版本(包括所有的修改单)适用于本文件。
GB/T 191 包装储运图示标志GB/T 1184-1996 形状和位置公差未注公差值GB/T 1800.2-2009 产品几何技术规范(GPS)极限与配合第2部分:标准公差等级和孔、轴的极限偏差表GB/T 3098.1-2010 紧固件机械性能螺栓、螺钉和螺柱GB/T 3141-1994 工业用齿轮油GB/T 4879 防锈包装GB/T 6388 运输包装收发货标志GB/T 7284 框架木箱GB/T 7324-2010 通用锂基润滑脂GB/T 10095.1-2008 圆柱齿轮精度制第1部分:轮齿同侧齿面偏差的定义和允许值GB/T 10095.2-2008 圆柱齿轮精度制第2部分:径向综合偏差与径向跳动的定义和允许值GB/T 13384 机电产品包装通用技术条件JB/T 5000.15-2007 重型机械通用技术条件第15部分:锻钢件无损检测3 型式分类、基本参数和主要尺寸按照润滑方式的不同,联轴器的型式分为:a)干油润滑联轴器,其基本参数与主要尺寸应符合图1和表1的规定;b)稀油润滑联轴器,其基本参数与主要尺寸应符合图2和表1的规定。
4 型号说明与标记示例 4.1 型号说明LZG —□×□ /□ X表示稀油润滑,干油润滑缺省 从动端轴向的最大伸缩量L s 联轴器两端鼓形齿中心间距L 联轴器从动端回转直径D 鼓形齿式联轴器4.2 标记示例从动端回转直径D=660mm ,两端鼓形齿中心间距L=4000mm ,最大伸缩量L s =200mm ,主动端轴孔尺寸d ×l=Φ440mm ×610mm ,从动端轴孔尺寸d 1×B ×l 1=Φ480mm ×350mm ×450mm 的稀油润滑LZG 型鼓形齿式联轴器标记示例为:联轴器 LZG660×4000/200×450×350×480610×440 GB/T ×××××-××××图 1 干油润滑LZG型鼓形齿式联轴器图 2 稀油润滑LZG型鼓形齿式联轴器表 1 联轴器的基本参数和主要尺寸表 1(续)5.1联轴器应符合本标准的规定,并按规定程序批准的图样和技术文件制造。
D C鼓形齿式联轴器使用说明书中文11页DC系列鼓形齿式联轴器安装使用说明书1.概述1.1 卷筒用鼓形齿式联轴器(图1)是一种新型挠性联轴器,主要用于起重设备中起升机构的减速器输出轴与钢丝绳卷筒的联接,也适用于其它类似的既传递转矩又承受径向载荷的机械设备,但不能用作需承受轴向载荷的传动。
1.2卷筒用鼓形齿式联轴器工作温度为-25~+80°C;传递公称转矩为16~560 kN·m;许用径向载荷为18~355 KN。
1.3 与其他卷筒用联轴器比较,卷筒用鼓形齿式联轴器具有如下特点:1.3.1工作稳定可靠,能承受很大径向载荷和传递较大的转矩,过载能力大。
1.3.2结构紧凑牢固,系列化设计,可简化整机结构,减轻设备重量。
1.3.3调位性能好,安装、调整方便,维护简单。
1.3.4设有定位磨损指示,安全可靠。
1.3.5可配用普通轴伸式减速机,降低设备成本。
2、结构特征与工作原理2.1 卷筒用鼓形齿式联轴器由带鼓形齿的外齿轴套、带联接法兰和内齿圈的外套、带外球面的承载环、端盖和密封圈等组成,并设有定位磨损指针、润滑油孔和通气孔等(见图1)。
2.2 外齿轴套和外套构成的鼓形齿式联轴器传递驱动功率, 而由承载环的外球面和外套的内承载面形成的接触副构成自动调位的球面轴承,承受径向载荷。
仅供学习与交流,如有侵权请联系网站删除谢谢10仅供学习与交流,如有侵权请联系网站删除谢谢104、安装、调试4.1 联轴器安装前,应检查联接的配合表面,并清洗掉防锈油脂,去除毛刺,擦尽油污等。
4.2 本联轴器一般均为过盈配合,应以解体加热套装。
解体后,应将全部零件集中放置,以免丢失和损坏。
4.3安装时,先将外盖和密封圈套在外齿轴套的减速器侧,然后将外齿轴套加热后套装在减速器的输出轴上。
注意,加热温度可按其过盈量的大小及环境温度加以计算确定。
4.4外套(内齿法兰)与内端盖放入密封圈组合后做好外表的涂装防锈套入卷筒上并定位紧固。
泊头市昌盛石化机械厂NGCL型带制动轮鼓形齿联轴器可允许较大的角位移(相对于直齿联轴器),可改善齿的接触条件,提高传递转矩的能力,延长使用寿命,鼓形齿式联轴器属于刚挠性联轴器,泊头市昌盛石化机械厂NGCL型是由齿数相同的内齿圈和带外齿的凸缘半联轴器等零件组成,外齿分为直齿和鼓形齿两种齿形,有角位移时沿齿宽的接触状态。
具有径向、轴向和角向等轴线偏差补偿能力,具有结构紧凑、回转半径小、承载能力大、传动效率高、噪声低及维修周期长等优点,特别适用于低速重载工况,如冶金、矿山、起重运输等行业、也适用于石油、化工、通用机械等各类机械的轴系传动,齿式联轴器在工作时,两轴产生相对角位移,内外齿的齿面周期性作轴向相对滑动,必然形成齿面磨损和功率消耗,因此,齿式联轴器需在有良好和密封的状态下工作。
齿式联轴器径向尺寸小,承载能力大,常用于低速重载工况条件的轴系传动,高精度并经动平衡的齿式联轴器可用于高速传动,如燃汽轮机的轴系传动。
NGCL型带制动轮鼓形齿式联轴器属于刚挠性联轴器,齿式联轴器是由齿数相同的内齿圈和带外齿的凸缘半联轴器等零件组成。
外齿分为直齿和鼓形齿两种齿形,所谓鼓形齿即为将外齿制成球面,球面中心在齿轮轴线上,齿侧间隙较一般齿轮大,鼓形齿联轴器可允许较大的角位移(相对于直齿联轴器),可改善齿的接触条件,提高传递转矩的能力,延长使用寿命。
有角位移时沿齿宽的接触状态。
具有径向、轴向和角向等轴线偏差补偿能力,具有结构紧凑、回转半径小、承载能力大、传动效率高、噪声低及维修周期长等优点,特别适用于低速重载工况,如冶金、矿山、起重运输等行业、也适用于石油、化工、通用机械等各类机械的轴系传动带制动轮齿式联轴器在工作时,两轴产生相对角位移,内外齿的齿面周期性作轴向相对滑动,必然形成齿面磨损和功率消耗,因此,齿式联轴器需在有良好和密封的状态下工作。
齿式联轴器径向尺寸小,承载能力大,常用于低速重载工况条件的轴系传动,高精度并经动平衡的齿式联轴器可用于高速传动,如燃汽轮机的轴系传动。