钢轨尺寸规格(最全)
- 格式:doc
- 大小:990.50 KB
- 文档页数:6
钢轨型号及尺寸轨头高度及凸出±0.5mm轨头宽度±0.5mm轨腰厚度+0.75mm -0.5mm轨底宽度+1.0mm -2.0mm轨腰高度±0.5mm高度+0.8mm长度±6.0mm螺栓孔尺寸、每个螺栓孔到钢轨端部的距离及螺栓孔在钢轨高度方向的位置±1.0mm 断面不与其垂直轴线成对称轨底10mm轨头0.5mm其它尺寸±0.5mm钢轨是铁路轨道的主要组成部件。
它的功用在于引导机车车辆的车轮前进,承受车轮的巨大压力,并传递到轨枕上。
钢轨必须为车轮提供连续、平顺和阻力最小的滚动表面。
在电气化铁道或自动闭塞区段,钢轨还可兼做轨道电路之用。
钢轨的类型,以每1米大致质量kg数表示。
目前,我国铁路的钢轨类型主要有75kg/m、60kg/m、50kg/m及43kg/m。
世界上最重型的钢轨已达到77.5kg/m,我国也在重载线路上逐步铺设75kg/m钢轨。
钢轨标准长度为12.5m和25m两种。
铁路钢轨知识:(1)重型钢轨知识:每米公称重量大于30kg的钢轨。
火车钢轨和起重机轨都属重轨。
火车钢轨:用于铺设铁路,要承受火车营运时的压力、冲击载荷和摩擦,要求有足够的强度和一定的韧性。
质量要求严格,除保证其化学成分外,还要求检验力学性能、落锤试验和酸浸低倍组织等。
生产厂有武钢、鞍钢、包钢和攀钢等。
起重机轨:即吊车轨,其高度较低,头宽及腰厚尺寸较大,只要求检验化学成分和抗拉强度。
用于铺设起重机大于及小车轨道。
生产厂有鞍钢和攀钢。
(2)轻型钢轨知识:是每米公称重量小于或等于30kg的钢轨。
轻轨的质量要求比重轨低,只要求检验其化学成分、抗拉强度、硬度和落锤试验等。
主要用途:轻轨主要用于林区、矿区、工厂及施工现场等处铺设临时运输线路和轻型机车用线路。
铁路钢轨型号:(1)轻型钢轨型号,钢轨材质: Q235,55Q ;钢轨规格:30kg/m,24kg/m,22kg/m,18kg/m,15kg/m,12 kg/m,8 kg/m。
国标钢轨规格型号表国标轻轨重轨起重机轨规格尺寸表:8kg钢轨轨高:65mm 底宽:54mm 头宽:25mm 腰厚:7.0mm 理论重量:8.42kg/m 9kg钢轨轨高:63.5mm 底宽:63.5mm 头宽:32.1mm 腰厚:5.9mm 理论重量:8.94kg/m 12kg钢轨轨高:69.85mm 底宽:69.85mm 头宽:38.1mm 腰厚:7.54mm 理论重量:12.2kg/m15kg钢轨轨高:79.37mm 底宽:79.37mm 头宽:42.86mm 腰厚:8.33mm 理论重量:15.2kg/m18kg钢轨轨高:90mm 底宽:80mm 头宽:40mm 腰厚:10.0mm 理论重量:18.06kg/m 22kg钢轨轨高:93.66mm 底宽:93.66mm 头宽:50.8mm 腰厚:10.72mm 理论重量:22.3kg/m24kg钢轨轨高:107mm 底宽:90mm 头宽:51mm 腰厚:10.9mm 理论重量:24.46kg/m 30kg钢轨轨高:107.95mm 底宽:107.95mm 头宽:60.33mm 腰厚:12.3mm 理论重量:30.1kg/m以上为轻轨38kg钢轨轨高:134mm 底宽:114mm 头宽:68mm 腰厚:13mm 理论重量:38.733kg/m43kg钢轨轨高:140mm 底宽:114mm 头宽:70mm 腰厚:14.5mm 理论重量:44.653kg/m45kg钢轨轨高:145mm 底宽:126mm 头宽:67mm 腰厚:14.5mm 理论重量:45.546kg/m50kg钢轨轨高:152mm 底宽:132mm 头宽:70mm 腰厚:15.5mm 理论重量:51.514kg/m60kg钢轨轨高:176mm 底宽:150mm 头宽:73mm 腰厚:16.5mm 理论重量:60.64kg/m70kg钢轨轨高:120mm 底宽:120mm 头宽:70mm 腰厚:28mm 理论重量:52.8kg/m80kg钢轨轨高:130mm 底宽:130mm 头宽:80mm 腰厚:32mm 理论重量:63.69kg/m 100kg钢轨轨高:150mm 底宽:150mm 头宽:100mm 腰厚:38mm 理论重量:88.96kg/m120kg钢轨轨高:170mm 底宽:170mm 头宽:120mm 腰厚:44mm 理论重量:118.1kg/m。
钢轨规格表最新文档(可以直接使用,可编辑最新文档,欢迎下载)钢轨规格表:A-轨高度B-轨底面宽度C-轨头面宽度D-轨腰厚度(每米<30千克是重轨,>或=30千克是轻轨)规格(型号)截A 面B 尺寸C (mm)D 理论重量(kg/mm)长度(m)轻轨(GB11264-89)6kg/m 9kg/m 12kg/m 15kg/m 22kg/m 30kg/m5163.5069.8579.3793.66107.955063.5069.8579.3793.66107.952632.1038.1042.8650.8060.3355.907.548.3310.7212.305.988.9412.2015.2022.3030.106-10轻轨(YB 222-63)8kg/m 18kg/m 24kg/m659010754809225405171010.88.4218.0624.466-10重轨(GB 181-183 63)38kg/m43kg/m50kg/m60kg/m 68707073 12.5 起重机钢轨(GB 3426-82)QU 70QU 80QU 100QU120 7080100120 28323844 9-12.5深沟球轴承尺寸表:深沟球轴承(10≤d<35)主要尺寸(mm) 额定负荷(N)极限转速*1000(rpm)止动环槽尺寸(mm)止动环尺寸(mm)轴承型号内径d 外径D宽度B倒角r(最小)动负荷Cr(N)静负荷Cor(N)脂润滑油润滑a(最大)b(最小)D1(最大)r0(最大)rN(最小)D2(最大)f(最大)开放型防尘盖型密封圈型带止动环槽带止动环10 19 5 0.3 1720 840 34 40 - - - - - - - 6800 6800ZZ 2RZ 2RS - - 22 6 0.3 2700 1270 32 38 1.05 0.8 20.8 0.2 0.2 24.8 0.7 6900 6900ZZ 2RZ 2RS N NR 26 8 0.3 4550 1970 30 36 1.35 0.87 24.5 0.2 0.3 28.7 0.84 6000 6000ZZ 2RZ 2RS N NR 30 9 0.6 5100 2390 24 30 2.06 1.35 28.17 0.4 0.5 34.7 1.12 6200 6200ZZ 2RZ 2RS N NR 35 11 0.6 8100 3450 22 26 2.06 1.35 33.17 0.4 0.5 39.7 1.12 6300 6300ZZ 2RZ 2RS N NR12 21 5 0.3 1920 1040 32 38 - - - - - - - 6801 6801ZZ 2RZ 2RS - - 24 6 0.3 2890 1460 30 36 1.05 0.8 22.8 0.2 0.2 26.8 0.7 6901 6901ZZ 2RZ 2RS N NR 28 7 0.3 5100 2370 28 32 - - - - - - - 16001 - - - - - 28 8 0.3 5100 2370 28 32 1.35 0.87 26.5 0.2 0.3 30.7 0.84 6001 6001ZZ 2RZ 2RS N NR 32 10 0.6 6800 3050 22 28 2.06 1.35 30.15 0.4 0.5 36.7 1.12 6201 6201ZZ 2RZ 2RS N NR 37 12 1 9700 4200 20 24 2.06 1.35 34.77 0.4 41.3 1.12 6301 6301ZZ 2RZ 2RS N NR15 24 5 0.3 2070 1260 28 34 - - - - - - - 6802 6802ZZ 2RZ 2RS - - 28 7 0.3 4350 2260 26 30 1.3 0.95 26.7 0.25 0.3 30.8 0.85 6902 6902ZZ 2RZ 2RS N NR 32 8 0.3 5600 2830 24 28 - - - - - - - 16002 - - - - - 32 9 0.3 5600 2830 24 28 2.06 1.35 30.15 0.4 0.3 36.7 1.12 6002 6002ZZ 2RZ 2RS N NR 35 11 0.6 7650 3750 20 24 2.06 1.35 33.17 0.4 0.5 39.7 1.12 6202 6202ZZ 2RZ 2RS N NR 42 13 1 11400 5450 17 20 2.06 1.35 39.79 0.4 0.5 46.3 1.12 6302 6302ZZ 2RZ 2RS N NR17 26 5 0.3 2630 1570 26 30 - - - - - - - 6803 6803ZZ 2RZ 2RS - - 30 7 0.3 4600 2550 24 28 1.3 0.95 28.7 0.25 0.3 32.8 0.85 6903 6903ZZ 2RZ 2RS N NR 35 8 0.3 6000 3250 22 26 - - - - - - - 16003 - - - - -微小型球轴承(3≤d<10)主要尺寸(mm) 额定负荷(N)极限转速*1000(rpm)轴承型号内径d 外径D宽度B宽度B1倒角r(最小)倒角r1(最小)动负荷Cr(N)静负荷Cor(N)脂润滑油润滑开放型防尘盖型密封圈型2 5 1.5 2.3 0.08 0.08 169 50 85 100 682 682ZZ - -5 2 2.5 0.1 0.1 187 58 85 100 MR52B MR52BZZ - -6 2.3 3 0.15 0.15 330 98 75 90 692 692ZZ - -6 2.5 2.5 0.15 0.15 330 98 75 90 MR62 MR62ZZ - -7 2.5 3 0.15 0.15 385 127 63 75 MR72 MR72ZZ - - 7 2.8 3.5 0.15 0.15 385 127 63 75 602 602ZZ - -2.5 6 1.8 2.6 0.08 0.08 208 74 71 80 682X 682XZZ - -7 2.5 3.5 0.15 0.15 385 127 63 75 692X 692XZZ - -8 2.5 - 0.2 - 560 179 60 67 MR82X - - - 8 2.8 4 0.15 0.15 550 175 60 71 602X 602XZZ - -36 2 2.5 0.08 0.08 206 73 71 80 MR63 MR63ZZ - -7 2 3 0.1 0.1 384 129 63 75 683 683ZZ - -8 2.5 - 0.15 - 395 141 60 67 MR83 - - -8 3 4 0.15 0.15 553 176 60 67 693 693ZZ - -9 2.5 4 0.2 0.15 634 219 56 67 MR93 MR93ZZ - -9 3 5 0.15 0.15 634 219 56 67 603 603ZZ - -10 4 4 0.15 0.15 641 226 50 60 623 623ZZ 2RZ 2RS 13 5 5 0.2 0.2 1306 187 40 48 633 633ZZ 2RZ 2RS47 2 - 0.08 - 311 115 60 67 MR74 - - -7 - 2.5 - 0.08 252 106 60 67 - MR74ZZ - -8 2 3 0.15 0.1 391 140 56 67 MR84 MR84ZZ - -9 2.5 4 0.1 0.1 641 226 53 63 684 684ZZ 2RZ 2RS10 3 4 0.2 0.15 708 266 50 60 MR104 MR104ZZ 2RZ 2RS油封规格表(GB13871-92)油封规格表(GB13871-92)油封规格表(化工部标准HG)油封规格表(HG)骨架油封价格表:。
钢轨型号及尺寸轨头高度及凸出±0.5mm轨头宽度±0.5mm轨腰厚度+0.75mm -0.5mm轨底宽度+1.0mm -2.0mm轨腰高度±0.5mm高度+0.8mm长度±6.0mm螺栓孔尺寸、每个螺栓孔到钢轨端部的距离及螺栓孔在钢轨高度方向的位置±1.0mm 断面不与其垂直轴线成对称轨底10mm轨头0.5mm其它尺寸±0.5mm钢轨是铁路轨道的主要组成部件。
它的功用在于引导机车车辆的车轮前进,承受车轮的巨大压力,并传递到轨枕上。
钢轨必须为车轮提供连续、平顺和阻力最小的滚动表面。
在电气化铁道或自动闭塞区段,钢轨还可兼做轨道电路之用。
钢轨的类型,以每1米大致质量kg数表示。
目前,我国铁路的钢轨类型主要有75kg/m、60kg/m、50kg/m及43kg/m。
世界上最重型的钢轨已达到77.5kg/m,我国也在重载线路上逐步铺设75kg/m钢轨。
钢轨标准长度为12.5m和25m两种。
铁路钢轨知识:(1)重型钢轨知识:每米公称重量大于30kg的钢轨。
火车钢轨和起重机轨都属重轨。
火车钢轨:用于铺设铁路,要承受火车营运时的压力、冲击载荷和摩擦,要求有足够的强度和一定的韧性。
质量要求严格,除保证其化学成分外,还要求检验力学性能、落锤试验和酸浸低倍组织等。
生产厂有武钢、鞍钢、包钢和攀钢等。
起重机轨:即吊车轨,其高度较低,头宽及腰厚尺寸较大,只要求检验化学成分和抗拉强度。
用于铺设起重机大于及小车轨道。
生产厂有鞍钢和攀钢。
(2)轻型钢轨知识:是每米公称重量小于或等于30kg的钢轨。
轻轨的质量要求比重轨低,只要求检验其化学成分、抗拉强度、硬度和落锤试验等。
主要用途:轻轨主要用于林区、矿区、工厂及施工现场等处铺设临时运输线路和轻型机车用线路。
铁路钢轨型号:(1)轻型钢轨型号,钢轨材质: Q235,55Q ;钢轨规格:30kg/m,24kg/m,22kg/m,18kg/m,15kg/m,12 kg/m,8 kg/m。
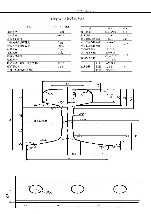
钢轨类型( kg/m)尺寸( mm)截面面积 F 理论重量高度 A 底宽 B 头宽 C(厘米 2)(kg/m)腰厚 D轻轨 5 50 44 228 65 54 2511 66 3215 91 76 3718 90 80 4024 107 92 51重轨33 120 110 6038 134 114 68 1343 140 114 7050 152 132 70铁路钢轨知识:(1)重型钢轨知识:每米公称重量大于 30kg 的钢轨。
火车钢轨和起重机轨都属重轨。
火车钢轨:用于铺设铁路,要承受火车营运时的压力、冲击载荷和摩擦,要求有足够的强度和一定的韧性。
质量要求严格,除保证其化学成分外,还要求检验力学性能、落锤试验和酸浸低倍组织等。
生产厂有武钢、鞍钢、包钢和攀钢等。
起重机轨:即吊车轨,其高度较低,头宽及腰厚尺寸较大,只要求检验化学成分和抗拉强度。
用于铺设起重机大于及小车轨道。
生产厂有鞍钢和攀钢。
(2)轻型钢轨知识:是每米公称重量小于或等于 30kg 的钢轨。
轻轨的质量要求比重轨低,只要求检验其化学成分、抗拉强度、硬度和落锤试验等。
主要用途:轻轨主要用于林区、矿区、工厂及施工现场等处铺设临时运输线路和轻型机车用线路。
铁路钢轨型号:。
( 1)轻型钢轨型号,材质 :Q235, 55Q;规格: 30kg/m, 24kg/m, 22kg/m ,18kg/m , 15kg/m, 12kg/m, 8kg/m。
( 2)重型钢轨型号 , 材质 :45MN, 71MN;规格:50kg/m , 43kg/m ,38kg/m,33kg/m( 2)起重钢轨型号 , 材质 : U71MN;规格: QU70 kg /m,QU80 kg / m, QU100 kg /m, QU120 kg /m。
以上钢轨型号为常用钢轨型号。
钢轨型号尺寸轨头高度及凸出±0.5mm轨头宽度±0.5mm轨腰厚度+0.75mm -0.5mm轨底宽度+1.0mm -2.0mm轨腰高度±0.5mm高度+0.8mm -0.5mm长度±6.0mm螺栓孔尺寸、每个螺栓孔到钢轨端部的距离及螺栓孔在钢轨高度方向的位置±1.0mm 断面不与其垂直轴线成对称轨底10mm轨头0.5mm其它尺寸±0.5mm钢轨是铁路轨道的主要组成部件。
它的功用在于引导机车车辆的车轮前进,承受车轮的巨大压力,并传递到轨枕上。
钢轨必须为车轮提供连续、平顺和阻力最小的滚动表面。
在电气化铁道或自动闭塞区段,钢轨还可兼做轨道电路之用。
钢轨的类型,以每1米大致质量kg数表示。
目前,我国铁路的类型主要有75kg/m、60kg/m、50kg/m及43kg/m。
世界上最重型的钢轨已达到77.5kg/m,我国也在重载线路上逐步铺设75kg/m钢轨。
钢轨标准长度为12.5m和25m两种。
铁路钢轨知识:(1)重型钢轨知识:每米公称重量大于30kg的钢轨。
火车钢轨和起重机轨都属重轨。
火车钢轨:用于铺设铁路,要承受火车营运时的压力、冲击载荷和摩擦,要求有足够的强度和一定的韧性。
质量要求严格,除保证其化学成分外,还要求检验力学性能、落锤试验和酸浸低倍组织等。
生产厂有武钢、鞍钢、包钢和攀钢等。
起重机轨:即吊车轨,其高度较低,头宽及腰厚尺寸较大,只要求检验化学成分和抗拉强度。
用于铺设起重机大于及小车轨道。
生产厂有鞍钢和攀钢。
(2)轻型钢轨知识:是每米公称重量小于或等于30kg的钢轨。
轻轨的质量要求比重轨低,只要求检验其化学成分、抗拉强度、硬度和落锤试验等。
主要用途:轻轨主要用于林区、矿区、工厂及施工现场等处铺设临时运输线路和轻型机车用线路。
铁路钢轨型号:(1)轻型钢轨型号,钢轨材质: Q235,55Q ;钢轨规格:30kg/m,24kg/m,22kg/m,18kg/m,15kg/m,12 kg/m,8 kg/m。
钢轨型号尺寸轨头高度及凸出±0.5mm轨头宽度±0.5mm轨腰厚度+0.75mm-0.5mm轨底宽度+1.0mm-2.0mm轨腰高度±0.5mm高度+0.8mm-0.5mm长度±6.0mm螺栓孔尺寸、每个螺栓孔到钢轨端部的距离以及螺栓孔在钢轨高度方向上的位置±1.0mm。
该段与其纵轴不对称,轨底10mm,轨头0.5mm其它尺寸±0.5mm钢轨是铁路轨道的主要组成部分。
它的功用在于引导机车车辆的车轮前进,承受车轮的巨大压力,并传递到轨枕上。
钢轨必须为车轮提供连续、平顺和阻力最小的滚动表面。
在电气化铁道或自动闭塞区段,钢轨还可兼做轨道电路之用。
钢轨的类型,以每米的近似质量kg表示。
目前,我国铁路的主要类型有75kg/m、60kg/m、50kg/m和43kg/m。
世界上最重型的钢轨已达到77.5kg/m,我国也在重载线路上逐步铺设75kg/m钢轨。
钢轨标准长度为12.5m和25m两种。
铁路钢轨知识:(1)重轨知识:标称重量大于每米30kg的钢轨。
火车轨道和吊车轨道都属于重轨。
列车轨道:用于铺设铁路。
应能承受列车运行时的压力、冲击载荷和摩擦。
要求有足够的强度和一定的韧性。
质量要求很严格。
除了确保其化学成分外,还需要检查机械性能、落锤试验和酸浸宏观结构。
生产工厂包括武钢、鞍钢、包钢和攀钢。
起重机轨道:即起重机轨道,高度低,头部宽度和腰部厚度大。
只需测试化学成分和抗拉强度。
用于铺设起重机和小车轨道。
生产工厂包括鞍钢和攀钢。
(2)轻型钢轨知识:是每米公称重量小于或等于30kg的钢轨。
轻轨的质量要求比重轨低,只要求检验其化学成分、抗拉强度、硬度和落锤试验等。
主要用途:轻轨主要用于林区、矿区、工厂及施工现场等处铺设临时运输线路和轻型机车用线路。
铁路钢轨型号:(1)轻轨型号,钢轨材质:Q235,55Q;钢轨规格:30kg/m、24kg/m、22kg/m、18kg/m、15kg/m、12kg/m、8kg/m。
国标钢轨规格型号表国标轻轨重轨起重机轨规格尺寸表:8kg钢轨轨高:65mm 底宽:54mm 头宽:25mm 腰厚:7.0mm 理论重量:8.42kg/m9kg钢轨轨高:63.5mm 底宽:63.5mm 头宽:32.1mm 腰厚:5.9mm 理论重量:8.94kg/m12kg钢轨轨高:69.85mm 底宽:69.85mm 头宽:38.1mm 腰厚:7.54mm 理论重量:12.2kg/m15kg钢轨轨高:79.37mm 底宽:79.37mm 头宽:42.86mm 腰厚:8.33mm 理论重量:15.2kg/m18kg钢轨轨高:90mm 底宽:80mm 头宽:40mm 腰厚:10.0mm 理论重量:18.06kg/m22kg钢轨轨高:93.66mm 底宽:93.66mm 头宽:50.8mm 腰厚:10.72mm 理论重量:22.3kg/m24kg钢轨轨高:107mm 底宽:90mm 头宽:51mm 腰厚:10.9mm 理论重量:24.46kg/m30kg钢轨轨高:107.95mm 底宽:107.95mm 头宽:60.33mm 腰厚:12.3mm 理论重量:30.1kg/m以上为轻轨38kg钢轨轨高:134mm 底宽:114mm 头宽:68mm 腰厚:13mm 理论重量:38.733kg/m43kg钢轨轨高:140mm 底宽:114mm 头宽:70mm 腰厚:14.5mm 理论重量:44.653kg/m45kg钢轨轨高:145mm 底宽:126mm 头宽:67mm 腰厚:14.5mm 理论重量:45.546kg/m50kg钢轨轨高:152mm 底宽:132mm 头宽:70mm 腰厚:15.5mm 理论重量:51.514kg/m60kg钢轨轨高:176mm 底宽:150mm 头宽:73mm 腰厚:16.5mm 理论重量:60.64kg/m70kg钢轨轨高:120mm 底宽:120mm 头宽:70mm 腰厚:28mm 理论重量:52.8kg/m80kg钢轨轨高:130mm 底宽:130mm 头宽:80mm 腰厚:32mm 理论重量:63.69kg/m100kg钢轨轨高:150mm 底宽:150mm 头宽:100mm 腰厚:38mm 理论重量:88.96kg/m120kg钢轨轨高:170mm 底宽:170mm 头宽:120mm 腰厚:44mm 理论重量:118.1kg/m。
钢轨型号及尺寸轨头高度及凸出±0.5mm轨头宽度±0.5mm轨腰厚度+0.75mm -0.5mm轨底宽度+1.0mm -2.0mm轨腰高度±0.5mm高度+0.8mm长度±6.0mm螺栓孔尺寸、每个螺栓孔到钢轨端部的距离及螺栓孔在钢轨高度方向的位置±1.0mm 断面不与其垂直轴线成对称轨底10mm轨头0.5mm其它尺寸±0.5mm钢轨是铁路轨道的主要组成部件。
它的功用在于引导机车车辆的车轮前进,承受车轮的巨大压力,并传递到轨枕上。
钢轨必须为车轮提供连续、平顺和阻力最小的滚动表面。
在电气化铁道或自动闭塞区段,钢轨还可兼做轨道电路之用。
钢轨的类型,以每1米大致质量kg数表示。
目前,我国铁路的钢轨类型主要有75kg/m、60kg/m、50kg/m及43kg/m。
世界上最重型的钢轨已达到77.5kg/m,我国也在重载线路上逐步铺设75kg/m钢轨。
钢轨标准长度为12.5m和25m两种。
铁路钢轨知识:(1)重型钢轨知识:每米公称重量大于30kg的钢轨。
火车钢轨和起重机轨都属重轨。
火车钢轨:用于铺设铁路,要承受火车营运时的压力、冲击载荷和摩擦,要求有足够的强度和一定的韧性。
质量要求严格,除保证其化学成分外,还要求检验力学性能、落锤试验和酸浸低倍组织等。
生产厂有武钢、鞍钢、包钢和攀钢等。
起重机轨:即吊车轨,其高度较低,头宽及腰厚尺寸较大,只要求检验化学成分和抗拉强度。
用于铺设起重机大于及小车轨道。
生产厂有鞍钢和攀钢。
(2)轻型钢轨知识:是每米公称重量小于或等于30kg的钢轨。
轻轨的质量要求比重轨低,只要求检验其化学成分、抗拉强度、硬度和落锤试验等。
主要用途:轻轨主要用于林区、矿区、工厂及施工现场等处铺设临时运输线路和轻型机车用线路。
铁路钢轨型号:(1)轻型钢轨型号,钢轨材质: Q235,55Q ;钢轨规格:30kg/m,24kg/m,22kg/m,18kg/m,15kg/m,12 kg/m,8 kg/m。
钢轨型号及尺寸轨头高度及凸出±0.5mm轨头宽度±0.5mm轨腰厚度+0.75mm -0.5mm轨底宽度+1.0mm -2.0mm轨腰高度±0.5mm高度+0.8mm长度±6.0mm螺栓孔尺寸、每个螺栓孔到钢轨端部的距离及螺栓孔在钢轨高度方向的位置±1.0mm 断面不与其垂直轴线成对称轨底10mm轨头0.5mm其它尺寸±0.5mm钢轨是铁路轨道的主要组成部件。
它的功用在于引导机车车辆的车轮前进,承受车轮的巨大压力,并传递到轨枕上。
钢轨必须为车轮提供连续、平顺和阻力最小的滚动表面。
在电气化铁道或自动闭塞区段,钢轨还可兼做轨道电路之用。
钢轨的类型,以每1米大致质量kg数表示。
目前,我国铁路的钢轨类型主要有75kg/m、60kg/m、50kg/m及43kg/m。
世界上最重型的钢轨已达到77.5kg/m,我国也在重载线路上逐步铺设75kg/m钢轨。
钢轨标准长度为12.5m和25m两种。
铁路钢轨知识:(1)重型钢轨知识:每米公称重量大于30kg的钢轨。
火车钢轨和起重机轨都属重轨。
火车钢轨:用于铺设铁路,要承受火车营运时的压力、冲击载荷和摩擦,要求有足够的强度和一定的韧性。
质量要求严格,除保证其化学成分外,还要求检验力学性能、落锤试验和酸浸低倍组织等。
生产厂有武钢、鞍钢、包钢和攀钢等。
起重机轨:即吊车轨,其高度较低,头宽及腰厚尺寸较大,只要求检验化学成分和抗拉强度。
用于铺设起重机大于及小车轨道。
生产厂有鞍钢和攀钢。
(2)轻型钢轨知识:是每米公称重量小于或等于30kg的钢轨。
轻轨的质量要求比重轨低,只要求检验其化学成分、抗拉强度、硬度和落锤试验等。
主要用途:轻轨主要用于林区、矿区、工厂及施工现场等处铺设临时运输线路和轻型机车用线路。
铁路钢轨型号:(1)轻型钢轨型号,钢轨材质: Q235,55Q ;钢轨规格:30kg/m,24kg/m,22kg/m,18kg/m,15kg/m,12 kg/m,8 kg/m。