25米高杆灯基础图14-07-15.dwg 布局1 (1)
- 格式:pdf
- 大小:682.04 KB
- 文档页数:4
百度文库- 让每个人平等地提升自我升降式高杆灯安装使用说明书江苏名家汇电器有限公司目录一、挂钩式高杆照明灯具结构图二、传动机构简图三、主要技术参数四、结构特点五、安装说明六、操作与使用1.电器原理图2.灯盘升降操作3.电脑时控开关的定时设置七、安装基础图八、使用中的注意事项一、主要技术参数:主杆:1.安装总高度25m 2.灯盘直径 3.4m 3.配用电机功率4.钢丝绳承载能力>1500Kg 5.升降速度3m/s 6.总重量2800Kg灯盘:1.灯盘直径: 3.4M 2.灯盘总重量:700KG 3.灯盘迎风面积:0.85m2升降机构:1.电机:型号 SJ—4功率: W电压 :380V转速 :150r/min减速器型号: WD100速比: 40 :1钢丝绳灯盘钢丝绳:¢ 8×3主杆钢丝绳 : ¢10光源电器 : 飞利浦钠 400W×24功率 :电压 :220V输入电源 : 三相四线380V50HZ全灯总功率 :全灯总重量 :3500KG抗风速 : 30M/S结构特点 :1.升降式高杆灯由灯盘 , 灯杆 , 升降机构及电器装置等四部分组成2.活动灯盘采用优质型钢 , 镀锌板或是合金板、不锈钢板制造,结构合理,安全可靠,维修方便,内部安装光源电器,接线盒及导向机构。
灯盘由三根均布的¢钢线绳悬挂 , 导向机构由 6 只紧贴的橡胶轮及压力装置组成 , 确保灯盘在升降的过程中不晃动 , 不倾斜 , 运行平稳 , 灯盘外形美观、大方 , 具有美化环境气氛的功效 .3.灯杆采用优质钢板、由大型折弯机成形锥形杆体、分段焊接而成、在接口处均加焊有确其整体强度的内衬管,灯杆顶部安装有避雷装置,能保证雨季的安全使用,灯杆内外表面经热镀锌处理。
具有优良的抗腐功能,确保 10—— 15 年内不生锈4.升降机构由电机、连轴器。
钢丝绳卷筒、涡轮减速器、传动齿轮、钢丝绳、滑轮组、自动挂钩装置及限位开关等组件构成。
扬州诺尔照明科技有限公司H25M高杆路技术说明高杆灯符合相应的国家标准(GB)或国际电工委员会标准(IEC)。
并执行国家标准、国际标准、行业标准的最新版本.《钢结构设计规范》GBJ9-1987,GBJ17-1988《高耸结构设计规范》GBJ135—1990《优质素钢技术条件》GB/T899—1988《钢铁制品热镀层技术要求》GB/T13912-1992《焊接质量保证熔化焊接头的要求和缺陷分级》GB/T12469—1990《升降式高杆照明装置技术条件》JT/T312-1996《建筑地基基础设计规范》GB17-891、灯杆高度25米,主杆由大型折弯机一次成形,上口径280mm,下口径580mm,分三段壁厚6mm,6mm,8mm,法兰直径1000mm,或根据用户要求定制.2、材质灯杆材质为优质低硅碳钢Q235A钢材(其中Si≤0.04%、屈服强度>245Mpa);材料符合执行标准:GB699—88。
3、焊接工艺整个杆体应无任何一处开裂、漏焊、连续气孔、咬边等,焊缝光滑平整,无凸凹起伏,无任何焊接缺陷,焊接标准依据:GB/T3323—1989III.安全标准符合国标GB7000。
1-7000.5-1996。
4、电器门a。
电器门采用等离子切割。
b. 电器门与灯体浑然一体,开门处不焊接凸台,结构强度高。
c。
具备合理的操作空间,门内具有电器安装附件.d.门与杆之间间隙应不超过1毫米,具备良好的防水性能。
e.有专门紧固系统,具备良好的防盗性能,其固定螺栓采用非通用专制工具开启。
f. 电器门应有高互换性,门内有合理的操作空间,g。
在灯杆工作门内左下方可见处牢固地焊接一只M8×30螺栓与灯杆一起进行热镀锌处理,用于连接电缆PE线.5、热镀锌工艺应采用热浸锌内外表面防腐处理,锌层厚度≥75um符合GB—/T13912-92标准.设计使用寿命应不低于30年,镀锌表面应光滑美观,颜色基本一致,捶击试验后不起皮、不剥落。
(施工方案)中杆灯和高杆灯安装施工标准(可以直接使用,可编辑优秀版资料,欢迎下载)中杆灯和高杆灯安装施工标准1。
中杆灯和高杆灯的灯杆、灯盘、配线、升降电动机构等应符合现行行业标准《高杆照明设施技术条件》(CJ/T3076—1998)的规定。
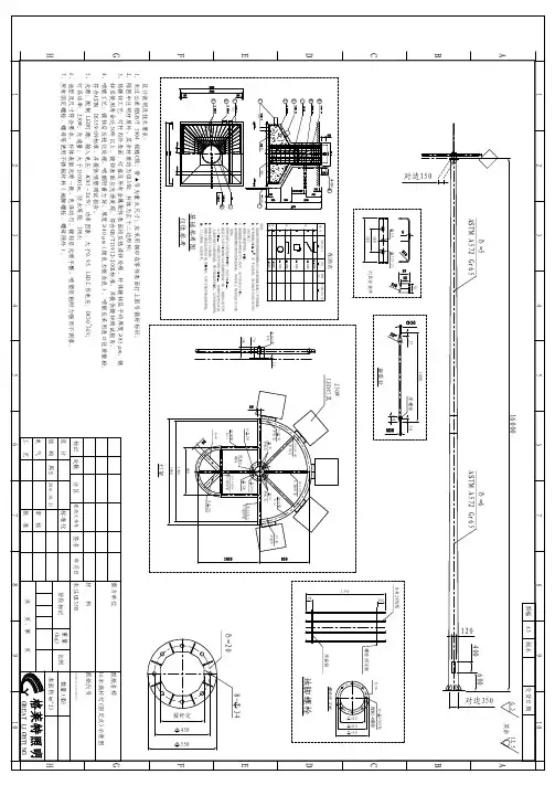
中、高杆照明设施结构如图1所示。
2.中杆灯和高杆灯宜采用三相供电,且三相负荷应均匀分配,每一回路必须装设保护装置.3.基础顶面标高应提供标桩。
4.基础坑的开挖深度和大小应符合设计规定。
基础坑深度的允许偏差应为十100mm、—50mm.当土质原因等造成基础坑深与设计坑深偏差为十100mm以上时,应按以下规定处理:(1)偏差在+100mm、—50mm时,应采用铺石灌浆处理。
(2)偏差超过规定值的+300mm以上时,超过的+300mm部分可采用填土或砂、石夯实处理,分层夯实厚度不宜大于100mm,夯实后的密实度不应低于原状土,然后再采用铺石灌浆处理.高杆灯混凝土基础如图2和图3所示。
5。
地脚螺栓埋入混凝土的长度应大于其直径的20倍,并应与主筋焊接牢固,地脚螺栓应去除铁锈,螺纹部分应加以保护,基础法兰螺栓中心分布直径应与灯杆底座法兰孔中心分布直径一致,偏差应小于螺栓应采用双螺母和弹簧垫.6.浇筑混凝土的模板宜采用钢模板,其表面应平整且接缝严密,支模时应符合基础设计尺寸的规定,混凝土浇筑前,模板表面应涂脱模剂。
7。
浇筑基础时,应符合现行国家标准《混凝土结构设计规范》(GB50010-2002)的有关规定.8.基坑回填应符合下列规定:(1)对适于夯实的土质,每回填300mm厚度应夯实一次,夯实程度应达到原状土密实度的80%。
(2)对不宜夯实的水饱和黏性士,应分层填实,其回填士的密实度应达到原状土的80%。
图1中、高杆照明设施结构示意图图2高杆灯混凝土基础示意图(一)注:1.离杆灯一般指灯杆高度2Om以上的路灯。
2.混凝土基础的尺寸大小应根据本地区土质条件和设计要求确定。
图3高杆灯混凝土基础示意图(二〉中建八局施工质量标准化图册(土建、安装、样板)第一部分土建1。
高杆灯操作说明书1.2.于固定结构的支撑架上,六个滚轮(分三组)将钢绳引入灯杆内,一个连接法兰将三根副钢绳与一根钢绳连接。
对应副钢绳支架的下面是3个挂钩盒,也为120°排列均布。
另外一个支架为电缆专用支架,两个塑料滚轮将电缆引入杆内,穿过钢绳连接法兰1.2米后打个结(打结是为了防止在提升时电缆滑落),待灯盘升到挂钩盒,挂上钩后,电缆方能引到杆底门内,然后在电路控制板上接入电源。
一条)柔性多芯橡胶国标电缆二、电路控制板电路控制板(实物一块)固定于杆底门内,输入交流380V三相四线(A、 B 、C、 N);。
此板能控制灯盘升降和定时开关灯。
三、按钮遥控器按钮遥控器,连接于门内电路控制板上,遥控灯盘升降。
四、升降传动系统卷扬机和电机具有手动、电动功能,减速机构灵活、轻便;变速比合理,灯盘电动升降时速度不超过6m/min。
选用失电断电制动电机,采用电机过载保护装置。
3.高杆灯灯盘升降操作示意图4.灯盘的升降一、灯盘的上升:按动控制器上升按扭,电动机正向旋转,灯盘即沿灯杆平稳的上升。
在上升过程中,要密切注意有无异常的情况,如发现安全联轴器打滑,电动机、蜗轮蜗杆减速机的声音异常或其他异常情况,要立即停止上升,查寻原因,解决问题。
灯盘升到升降系统,要点动操作,并观察灯盘旋转,在旋转一定的角度后,停止上升,点动向下,直到灯盘平稳挂在灯杆上,表明挂钩已经到位(可观察钢丝绳松紧),此时,钢丝绳卸载负荷,不再受力。
(注意:升降时人要离杆体外径5 米以上。
)上升完成后,把主电缆上的连接器,跟电器控制箱的插头对接。
二、灯盘的下降:先把主电缆上的连接器,跟电器控制箱的插头分离。
然后点动按控制器上升按扭,电动机正向旋转,使灯盘上升,当灯盘上升大约10CM左右时。
灯盘会向旋转一定的角度,表明灯盘已脱钩,电机停转,灯盘停止上升,观察灯盘摆动静止后,再按动下降按扭,电动机反向旋转,灯盘下降。
注意:照明电源的插头不要被电动机、底板等物拴住。
高杆灯安装使用说明书目录1、高杆灯系统示意图及说明2、安装前需要准备的安装工具和材料3、装配及安装高杆灯系统4.注意事项1.高杆灯系统说明高杆灯整体结构示意图结构简介:整体升降包括所有钢缆全部装入灯杆内。
一根电缆将按钮遥控盒及控制板连接起来。
具体如下:一、滑轮架结构滑轮架(实物如左图,共一个),位于灯杆的顶部。
三根不锈钢绳(副钢绳)以120°排列安装于固定结构的支撑架上,六个滚轮(分三组)将钢绳引入灯杆内,一个连接法兰将三根副钢绳与一根不锈钢主钢绳连接。
对应副钢绳支架的下面是3个挂钩盒,也为120°排列均布。
另外一个支架为电缆专用支架,两个塑料滚轮将电缆引入杆内,穿过钢绳连接法兰1.2米后打个结(打结是为了防止在提升时电缆滑落),待灯盘升到挂钩盒,挂上钩后,电缆方能引到杆底门内,然后在电路控制板上接入电源。
二、绳缆系统主钢绳(实物如左图,共一条),柔性好强度高,优质不锈钢制作而成,坚固耐用,永不生锈。
副钢绳(实物如左图,共三条)柔性好强度高,优质不锈钢制作而成,坚固耐用,永不生锈。
主电缆(实物如左图,共一条)柔性多芯橡胶国标电缆三、连接法兰连接法兰(实物如左图,共一块),锁副钢绳的三个孔120°排列均布,边上最大的孔为穿电缆的孔,中间的孔为锁主钢绳的孔。
四、电路控制板电路控制板(实物如左图,共一块)固定于杆底门内,输入交流380V三相四线(A、 B 、C、 N);输出为2路或者3路(按负载多少而定)交流220V (L1、L2、L3、N0),N0为公用零线。
此板能控制灯盘升降和定时开关灯。
五、按钮遥控器按钮遥控器(实物如左图,共1个)连接于门内电路控制板上,遥控灯盘升降。
六、升降传动系统卷扬机和电机(实物如左图,共一台)具有手动、电动功能,减速机构灵活、轻便,具有自锁功能;变速比合理,灯盘电动升降时速度不超过6m/min。
选用失电断电制动电机,采用电机过载保护装置。
设置有电气、机械限位装置。
路灯基础图l路灯基础欧阳体创编 2021.02.03 欧阳美创编 2021.02.03太阳能路灯基本设计方法初探(通为)根据我公司多年来在通为地区进行太阳能路灯、LED灯、无极灯、庭院灯、草坪灯等的生产、制作、安装经验得出了一此在通为省各地安装太阳能产品的经验供通为地区从事太阳能产品的同行参考!通为太阳能电池组件选型通为太阳能设计要求:通为某地区,负载输入电压24V功耗34.5W,每天工作时数8.5h,保证连续阴雨天数7天。
⑴陕西地区近二十年年均辐射量107.7Kcal/cm2,经简单计算广州地区峰值日照时数约为3.424h;⑵负载日耗电量= = 12.2AH⑶所需太阳能组件的总充电电流= 1.05×12.2×÷(3.424×0.85)=5.9A在这里,两个连续阴雨天数之间的设计最短天数为20天,1.05为太阳能电池组件系统综合损失系数,0.85为蓄电池充电效率。
⑷太阳能组件的最少总功率数= 17.2×5.9 = 102W欧阳体创编 2021.02.03 欧阳美创编 2021.02.03选用峰值输出功率110Wp、两块55Wp的标准电池组件,应该可以保证路灯系统在一年大多数情况下的正常运行。
通为太阳能蓄电池选型蓄电池设计容量计算相比于太阳能组件的峰瓦数要简单。
根据上面的计算知道,负载日耗电量12.2AH。
在蓄电池充满情况下,可以连续工作7个阴雨天,再加上第一个晚上的工作,蓄电池容量:12.2×(7+1)= 97.6(AH),选用2台12V100AH的蓄电池就可以满足要求了。
通为太阳能电池组件支架( 1)通为太阳能倾角设计为了让太阳能电池组件在一年中接收到的太阳辐射能尽可能的多,我们要为太阳能电池组件选择一个最佳倾角。
关于太阳能电池组件最佳倾角问题的探讨,近年来在一些学术刊物上出现得不少。
本次路灯使用地区为通为地区,依据本次设计参考相关文献中的资料[1],选定太阳能电池组件支架倾角为16o。
山西煤层气(天然气)管道工程目录一、编制依据......................................................................................... 错误!未定义书签。
二、工程概况......................................................................................... 错误!未定义书签。
三、支护方案......................................................................................... 错误!未定义书签。
四、施工机具......................................................................................... 错误!未定义书签。
五、施工用料......................................................................................... 错误!未定义书签。
六、人力投入......................................................................................... 错误!未定义书签。
七、安全措施......................................................................................... 错误!未定义书签。
一、编制依据1.1《临县-柳林-临汾煤层气输气管道工程二次设计施工技术要求》1.2《建筑工程施工现场供电用电安全规范》GB50194-20051.3《建筑机械使用安全技术规程》JGJ33-20111.4《建筑基坑支护技术规程》JGJ120-20111.5《建筑基坑支护工程技术规范》 GB20057-20111.6 国家现行有关技术标准、规程、规范二、工程概况本高杆灯是临汾末站站场配套的设施工程。
25米高杆灯施工方案一、引言随着城市化进程的不断推进,城市的夜景照明越来越重要。
高杆灯作为一种重要的照明设施,被广泛用于公共广场、公园、大型道路等场所。
本文将就25米高杆灯的施工方案进行详细论述,以确保工程的安全和顺利进行。
二、施工前准备1. 资料准备在施工前,需要收集相关的资料和文件,包括设计图纸、承包合同、施工许可证等。
同时,还需分析现场环境,了解地质条件和气候因素,以便制定合理的施工方案。
2. 材料准备根据设计要求,准备所需的施工材料,包括钢材、电缆、灯具、连接件等。
要确保材料的质量合格,并根据实际情况进行合理的储存、保护和运输。
三、施工步骤1. 环境清理在施工前,需要对施工现场进行彻底的环境清理,清除障碍物和不必要的杂物。
这样可以为后续的施工工作提供良好的施工环境,并减少施工中的安全隐患。
2. 基础施工根据设计要求,进行高杆灯的基础施工。
首先进行土质勘测,确保基础土质符合要求。
然后进行基础开挖和混凝土浇筑,确保基础的稳定和坚固。
3. 立柱安装在基础完成后,开始进行高杆灯立柱的安装。
首先,将立柱吊装到指定位置,然后进行垂直调整,使用水平仪进行精确校准。
最后,将立柱与基础进行焊接或螺栓连接,确保立柱的牢固固定。
4. 灯具安装完成立柱的安装后,开始进行灯具的安装。
根据设计要求,确定灯具的型号和数量,并按照相应的间距进行安装。
使用专业工具进行连接和固定,确保灯具安装稳定可靠。
5. 电缆布线灯具安装完成后,进行电缆的布线工作。
根据设计要求,确定电缆的路径和走向,使用专业工具将电缆进行固定和接地。
在布线过程中,要注意电缆的保护和防水,避免损坏和安全隐患。
6. 灯具调试完成电缆布线后,进行灯具的调试工作。
根据设计要求,连接灯具和电源,并进行灯光的调试和亮度的设置。
确保灯具的正常运行,并达到预期的照明效果。
四、施工安全措施1. 安全培训在施工前,对施工人员进行必要的安全培训,包括高杆灯施工流程、安全操作规范等。
米灯杆标准参数文件管理序列号:[K8UY-K9IO69-O6M243-OL889-F88688]一、标准灯杆尺寸参数表2、6-12米利用率计算如下:6米灯杆:(1)已知灯杆上口=φ60?锥度=11‰δ=2.75L=6000选用宽为1.25米钢板料;得到:开料尺寸:上口开料尺寸=174?下口开料尺寸=387,根据下料尺寸,可开4张。
4张钢板的重量=7.85×0.275×112.2×600=145.33Kg(2)1.25米钢板全部利用完的重量=7.85×0.275×125×600=161.9Kg (3)材料的利用率=145.33/161.9×100%=89.77%7米灯杆:(1)已知灯杆上口=φ60?锥度=11‰δ=3.0L=7000选用宽为1.25米钢板料;得到:开料尺寸:上口开料尺寸=179?下口开料尺寸=421,根据下料尺寸,可开4张。
4张钢板的重量=7.85×0.3×120×700=197.82Kg(2)1.25米钢板全部利用完的重量=7.85×0.3×125×700=206.06Kg (3)材料的利用率=197.82/206.06×100%=96%8米灯杆:(1)已知灯杆上口=φ60?锥度=11‰δ=3.0L=8000选用宽为1.25米钢板料;得到:开料尺寸:上口开料尺寸=179?下口开料尺寸=456,根据下料尺寸,可开4张。
4张钢板的重量=7.85×0.3×127×800=239.27Kg(2)1.25米钢板全部利用完的重量=7.85×0.3×125×800=235.5Kg (3)材料的利用率=239.27/235.5×100%=101%10米灯杆:2、6-12米利用率计算如下:6米灯杆:(1)已知灯杆上口=φ60?锥度=11‰δ=2.75L=6000选用宽为1.25米钢板料;得到:开料尺寸:上口开料尺寸=174?下口开料尺寸=387,根据下料尺寸,可开4张。