安装工程算量给排水专业实例[含图纸和计算式]
- 格式:doc
- 大小:579.00 KB
- 文档页数:27
安装工程预算实例给排水安装工程预算是指对给排水系统的施工项目进行费用估算和测算的过程。
给排水系统是建筑物中非常重要的一部分,涉及到供水、排水管道、设备等方面。
因此,对给排水系统的安装工程预算是非常重要的。
本文将以给排水系统为例,介绍了一份安装工程预算的实例。
1. 项目基本信息项目名称:某某商业综合楼给排水系统安装工程项目位置:某某市某某区某某街道项目面积:10000平方米2. 施工项目范围2.1 给水系统- 冷水管道安装- 热水管道安装- 消防水系统安装- 水泵设备安装2.2 排水系统- 排水管道安装- 排水设备安装- 排水泵设备安装- 雨水管道安装3. 项目材料和工程量估算3.1 给水系统材料和工程量估算 - 冷水管道:500米- 热水管道:300米- 消防水系统管道:400米- 水泵设备:2台3.2 排水系统材料和工程量估算 - 排水管道:800米- 排水设备:10个- 排水泵设备:3台- 雨水管道:600米4. 项目费用计算4.1 给水系统费用计算- 冷水管道费用:500米×单价 - 热水管道费用:300米×单价 - 消防水系统费用:400米×单价 - 水泵设备费用:2台×单价4.2 排水系统费用计算- 排水管道费用:800米×单价 - 排水设备费用:10个×单价- 排水泵设备费用:3台×单价 - 雨水管道费用:600米×单价5. 总预算计算总预算 = 给水系统费用计算 + 排水系统费用计算6. 项目风险和预算控制在预算控制方面,项目风险主要包括材料价格波动、工期延误和人力资源不足等。
为了保证预算的准确性和有效性,建议在预算编制过程中考虑到这些风险,并适当增加一定的预留金额。
7. 结束语通过本次给排水安装工程预算的实例,我们可以看到预算在工程项目中的重要性。
通过合理的预算,可以提前规划项目的资金需求,并进行风险管控。
水电安装工程识图算量例题1. 概述水电安装工程是指在建筑物内进行给水、排水、供电、照明等水电设施的安装,是建筑物的重要部分。
而识图算量是进行水电安装工程施工的前提条件,其准确性能够保证工程的质量和进度。
因此,本文将介绍水电安装工程识图算量的相关例题,帮助读者更好地了解其应用。
2. 例题解析例题1:燃气管道的长度计算已知某住宅小区需安装燃气管道,管径为40mm,施工方案为分期开挖,小区内总计规划燃气管道长度为6500米,其所需管件及附件材料如下表所示:管道种类管道长度(米/m)配件名称数量(个)直管 6 弯头100T型管 3 瞬态隔离阀50球阀 2 变直接80请计算该施工方案的总成本。
解答根据题意可得:•直管长度 = 6500 / 6 = 1083.33m。
•弯头数量 = 100个。
•T型管数量 = 50个。
•球阀数量 = 80个。
已知上述数据后,可通过以下公式计算总成本:总成本 = 直管成本 + 弯头成本 + T型管成本 + 球阀成本其中,直管成本、弯头成本、T型管成本、球阀成本的公式分别为:直管成本 = 直管单价 * 直管长度弯头成本 = 弯头单价 * 弯头数量T型管成本 = T型管单价 * T型管数量球阀成本 = 球阀单价 * 球阀数量假设各品目的单价如下:管道种类单价(元/m)配件名称单价(元/个)直管55 弯头60T型管68 瞬态隔离阀80球阀30 变直接50则,总成本为:总成本 = 55 * 1083.33 + 60 * 100 + 68 * 50 + 30 * 80 = 60009.9 元因此,该施工方案的总成本为60009.9元。
例题2:插座数量计算某写字楼共有10层,每层面积为500平方米,2.8米高。
每个办公室需至少安装6个插座。
请问,该写字楼一共需要安装多少个插座?解答计算方法如下:•一个层面积的插座数目 = 500 / 2.8 / 6 = 29.76(向上取整为30)个。
•整栋楼的插座数目 = 每层插座数目 × 楼层数 = 30 × 10 = 300个。
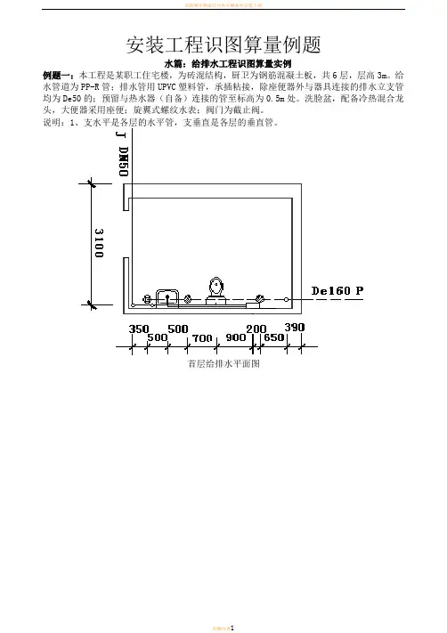
安装工程识图算量例题水篇:给排水工程识图算量实例例题一:本工程是某职工住宅楼,为砖混结构,厨卫为钢筋混凝土板,共6层,层高3m。
给水管道为PP-R管;排水管用UPVC塑料管,承插粘接,除座便器外与器具连接的排水立支管均为De50的;预留与热水器(自备)连接的管至标高为0.5m处。
洗脸盆,配备冷热混合龙头,大便器采用座便;旋翼式螺纹水表;阀门为截止阀。
说明:1、支水平是各层的水平管,支垂直是各层的垂直管。
首层给排水平面图给水系统图排水系统图解:工程量计算如下:(一)、给水系统(1)设备(附件)工程量:(DN50规格)截止阀=1个;(DN25规格)截止阀=1×6=6个;(DN25规格)螺纹水表=1×6=6个。
(2)管(线)工程量:PP-R给水管DN50=1.5(入户)+3.1(水平)+1.0+4.0(垂直)=9.6mPP-R给水管DN40=3m(垂直)PP-R给水管DN32=3×2(垂直)=6mPP-R给水管DN25=3(垂直)+{0.35+0.5(支水平)+(1.0—0.25)(支垂直)}×6=12.6m PP-R给水管DN20=(0.5+0.7)(支水平)×6 =7.2mPP-R给水管DN15={0.9+0.9+0.7+0.5(支水平)+(0.5-0.25)+(0.45-0.25)*2 +(0.5-0.35)+(0.45-0.35) (支垂直)}×6=22.4m(二)、排水系统(1)设备(附件)工程量:(De50规格)地漏=2×6=12个;(De50规格)清扫口=1×6=6个;洗脸盆=6组;座便器=6组;(2)管(线)工程量:UPVC排水管De160=1.5(出户)+0.39(水平)+(1.2-0.4)(垂直)=2.69mUPVC排水管De110=0.4+18.7(垂直)+(0.65+0.2+0.9)×6(支水平)+0.4×6(座便器)=32mUPVC排水管De75=(0.5+0.7)×6(支水平)=7.2mUPVC排水管De50=0.5×6(支水平)=3m电篇:电气照明工程识图算量实例例题二:某住宅平面图,层高3.0m,由图可知房间内有单管链吊荧光灯,圆球吸顶灯,暗装板式开关,安装高度1.4m,分户配电箱尺寸为:500*300*200,箱底距地1.5m,配电线路导线为BV-2.5,穿阻燃塑料管沿天棚、墙暗敷设,其中2、3根穿PC20,4根穿PC25。
第二节给排水工程【例】某住宅楼给排水工程施工图如图所示,试计算工程量并编制工程量清单和计价表。
工程施工图;一、工程施工图(一)、施工图介绍:1、施工图说明1)本工程采用相对标高,单位以米计,室内管线标高均以管中心线计;其余尺寸以毫米计。
2)管材:生活给水管采用PP-R塑料给水管,1.0Mpa,热熔连接,安装参照建筑给水聚丙烯管道(PP-R)应用技术规程。
排水管采用PVC-U塑料排水管,安装详见96S341《建筑排水用硬聚氯乙烯(PVC-U)管道安装》,并符合《建筑排水硬聚氯乙烯管道工程技术规程》要求。
3)管道穿越屋面须做防水套管,详S312给水管,穿楼板或混凝土墙须加设钢制套管。
4)卫生设备排水留洞应根据所定洁具型号预留。
5)排水管采用坡度:DN50 i=0.03;DN75 i=0.025;DN100 i=0.02;DN150 i=0.01;DN200 i=0.016)未尽事宜按有关施工规范执行。
7)图例2、室内给水排水平面图如图7-1~4所示。
3、卫生间详图如图7-5所示。
4、室内给水系统图如图7-6所示。
5、室内排水系统图如图7-7所示。
(二)施工图识读示例1、平面图的识读:从所示图可知本例为民用住宅六屋楼,每单元为一梯二户。
污、废水在底层单独排出外墙,这是预防楼层下来的污、废水可能来不及排出造成底层卫生间侧溢而设置。
从平面图看出每户设有浴缸、洗脸盆、坐式大便器(详见卫生间详图)。
从屋顶平面图中可知给水直通到水箱,水箱内有进水浮球阀,有水箱进水管、出水管、溢流管及放空管。
图7.5.1 一层平面图图7-2 二层平面图图7-3 三~六层平面图图7-4 屋项平面图图7-5 卫生间详图图7-6 给水系统图2、系统图的识读:从系统图7-6可知,给水立管编号JL-0是单元屋顶水箱的进水管,管径为DN50,其引水管埋深0.6米,在室外设有水表1个,立管直穿屋面,在层顶水箱内设有进水浮球阀二个,为便于检修(浮球阀常因锈垢而失灵)在屋面进水管上设闸阀二个。
给排水工程量计算实例在建设一个城市或者一个小区时,给排水工程是非常重要的一项建设项目。
给水工程则是将清洁水输送到居民住房、商业用房或其他公共设施内的水管、水龙头等设施工程。
排水工程则是将污水从居民住房、商业用房等处收集,运送到处理站点进行处理的工程。
在给排水工程的建设过程中,量化和计算是非常重要的环节。
通过合理的计算,可以更加精准地把握给排水工程的总体需求,避免出现过度投入或投入不足的情况,提高工程的效率,同时也为后期的维修、改造提供一定的依据。
那么接下来我们就来看一下给排水工程量计算的实例。
例:某小区给排水工程量计算为了方便起见,我们将某小区划分为5组:A组:10栋8层高居民楼,每栋楼有200户住宅,每户住宅平均住人数为4人。
B组:2栋7层高的办公楼,每栋楼有20个单位。
C组:1栋5层高的酒店,共有80个客房。
D组:10栋2层高的商铺,每栋楼有10家店铺。
E组:1座小学和1座幼儿园,共计500人。
那么在这个小区中,给排水工程的量应该如何计算呢?一、给水工程1、计算住宅用水量由于一般来讲,居民住房的用水需求是整个小区中最大的部分,因此我们将这部分的水量计算在第一位。
每户住宅平均住人数4人,因此,每户住宅每日平均用水量 = 800L/d每户住宅的平均每分钟用水量 = 0.93L/min每栋楼总用水量= 1.6 × 10^5L/d全小区的总用水量为10 × 1.6 × 10^5L/d = 1.6 × 10^6L/d2、计算商业及办公用水量商铺主要用水为洗手间、清洗等,而办公用水则主要是饮用和洗手间,因此,这两部分的用水量可以进行合并计算。
每个商铺平均每日用水量 = 400L/d;每个办公楼每日用水量= 70 × 20 = 1400L/d;因此,总用水量为:10 × 10 × 400 + 2 × 1400 = 24 × 10^3L/d3、计算小学、幼儿园、酒店用水量小学和幼儿园用水是以用电器为主,但也需要一定的洗手间用水;酒店则是需要一定的饮用水量,同时还需要清洗、洗澡等。
安装工程预算实例(含图纸及计算式)一、给排水工程第一节室内给水工程识图中的预算知识室内给水工程施工顺序引入管(进户管)-→干管―→立管―→支管-→阀门类-→水压试验-→管道冲洗消毒。
一、引入管也称进户管1、管道室内外界限划分(1)入户处有阀门者以阀门为界(水表节点)。
(2)入户处无阀门者以建筑物外墙皮1.5m处为界。
2、防水套管入户管在穿越地下室等外墙时,要设置防水套管,根据不同的防水要求分为刚性、柔性两种。
刚性防水套管在一般防水要求时使用,柔性防水套管在防水要求较高时使用,如;水池壁、与水泵连接处。
(1)定额单位:个(2)规格:按被套管的管径确定。
图1-1注意:入户管为DN100,那么防水套管规格即为“DN100”的,该防水套管的规格虽是“DN100”,但其真正的管径不是DN100的,而应该是DN150,比被套管的管径大,否则穿不过去。
DN100防水套管这一定额(6册)中已经按DN150的人工费、材料费、机械费计入了。
〔例题〕1、某给排水工程给水入户管为De75,消防入户管为DN100 ,排水入户管为De160,在穿越建筑物外墙时设置防水套管,问:分别用什么规格的防水套管?答:给水用DN80的防水套管1个。
消防用DN100的防水套管1个。
排水用DN150的防水套管3个。
二、管道计算(干管、立管、支管)1、定额单位:10m2、计算:按不同材质、不同管径分别累计长度。
准确计算管道长度的关键是找准管道变径点的位置,对于螺纹连接的管道来说,变径点发生在三通处。
注意:管道的弯头、阀门、穿楼板、穿墙等处一般不会是管道变径点的位置。
(1)水平管(干管)计算:应根据平面图上标注的尺寸计算,因为图纸设计原因安装工程施工图中很少有尺寸标注,或因计算太繁琐,实际工作中利用比例尺进行计量。
将不同规格的管道分别计算,然后汇总。
如下图1-2某卫生间的平面图中的排水系统,计算水平管道的长度时,参考图1-3中标注的管径,在平面图中用比例尺计量。
给排水工程量计算经典实例导言:给排水工程是指在建筑、市政工程中,为了供水、排水及保护环境而进行的工程建设。
工程量计算是给排水工程施工的重要环节,准确的工程量计算对于工程的顺利实施具有重要意义。
本文将通过一个经典的实例,介绍给排水工程量计算的方法和步骤。
一、工程概况某小区的给排水工程包括供水、排水管道的铺设和设备安装以及雨水收集系统等方面。
二、供水工程量计算1. 室内给水管道工程量计算a. 确定管材和规格:根据设计要求和现场实际情况,确定所需的管材和规格,如PVC管、PE管等。
b. 计算管道长度:根据建筑设计图纸,测量各个房间、走廊以及公共设施等的总面积,通过设计规范计算所需管道的总长度。
c. 计算管道附件数量:根据设计规范和实际需求,计算所需的管道附件数量,如弯头、三通、接头等。
所需的管道支架数量,确保管道的稳定和安全。
e. 计算管道保温材料数量:根据设计规范和现场实际情况,计算所需的管道保温材料数量,以确保供水管道的正常使用。
2. 排水工程量计算a. 确定排水管材和规格:根据设计要求和现场实际情况,确定所需的排水管材和规格,如PVC管、铸铁管等。
b. 计算管道长度:根据建筑设计图纸,测量各个排水设备、管道和排水口等的位置和总长度,通过设计规范计算所需管道的总长度。
c. 计算排水设备数量:根据设计规范和实际需求,计算所需的排水设备数量,如马桶、洗手池等。
d. 计算管道附件数量:根据设计规范和实际需求,计算所需的管道附件数量,如弯头、三通、接头等。
e. 计算排水管道支架数量:根据设计规范和现场实际情况,计算所需的排水管道支架数量,保证排水管道的稳定和安全。
的排水井数量,以便排水管道的连接和维护。
三、雨水收集系统工程量计算1. 计算雨水收集面积:根据小区建筑面积以及雨水流量计算的要求,确定雨水收集面积。
2. 计算雨水收集装置数量:根据设计规范和实际需求,计算所需的雨水收集装置数量,如雨水桶、雨水槽等。
安装工程预算实例(含图纸及计算式)一、给排水工程第一节室内给水工程识图中的预算知识室内给水工程施工顺序引入管(进户管)-→干管―→立管―→支管-→阀门类-→水压试验-→管道冲洗消毒。
一、引入管也称进户管1、管道室内外界限划分(1)入户处有阀门者以阀门为界(水表节点)。
(2)入户处无阀门者以建筑物外墙皮1.5m处为界。
2、防水套管入户管在穿越地下室等外墙时,要设置防水套管,根据不同的防水要求分为刚性、柔性两种。
刚性防水套管在一般防水要求时使用,柔性防水套管在防水要求较高时使用,如;水池壁、与水泵连接处。
(1)定额单位:个(2)规格:按被套管的管径确定。
图1-1注意:入户管为DN100,那么防水套管规格即为“DN100”的,该防水套管的规格虽是“DN100”,但其真正的管径不是DN100的,而应该是DN150,比被套管的管径大,否则穿不过去。
DN100防水套管这一定额(6册)中已经按DN150的人工费、材料费、机械费计入了。
〔例题〕1、某给排水工程给水入户管为De75,消防入户管为DN100 ,排水入户管为De160,在穿越建筑物外墙时设置防水套管,问:分别用什么规格的防水套管?答:给水用DN80的防水套管1个。
消防用DN100的防水套管1个。
排水用DN150的防水套管3个。
二、管道计算(干管、立管、支管)1、定额单位:10m2、计算:按不同材质、不同管径分别累计长度。
准确计算管道长度的关键是找准管道变径点的位置,对于螺纹连接的管道来说,变径点发生在三通处。
注意:管道的弯头、阀门、穿楼板、穿墙等处一般不会是管道变径点的位置。
(1)水平管(干管)计算:应根据平面图上标注的尺寸计算,因为图纸设计原因安装工程施工图中很少有尺寸标注,或因计算太繁琐,实际工作中利用比例尺进行计量。
将不同规格的管道分别计算,然后汇总。
如下图1-2某卫生间的平面图中的排水系统,计算水平管道的长度时,参考图1-3中标注的管径,在平面图中用比例尺计量。
安装工程预算实例(含图纸及计算式)一、给排水工程第一节室内给水工程识图中的预算知识室内给水工程施工顺序引入管(进户管)-→干管―→立管―→支管-→阀门类-→水压试验-→管道冲洗消毒。
一、引入管也称进户管1、管道室内外界限划分(1)入户处有阀门者以阀门为界(水表节点)。
(2)入户处无阀门者以建筑物外墙皮1.5m处为界。
2、防水套管入户管在穿越地下室等外墙时,要设置防水套管,根据不同的防水要求分为刚性、柔性两种。
刚性防水套管在一般防水要求时使用,柔性防水套管在防水要求较高时使用,如;水池壁、与水泵连接处。
(1)定额单位:个(2)规格:按被套管的管径确定。
图1-1注意:入户管为DN100,那么防水套管规格即为“DN100”的,该防水套管的规格虽是“DN100”,但其真正的管径不是DN100的,而应该是DN150,比被套管的管径大,否则穿不过去。
DN100防水套管这一定额(6册)中已经按DN150的人工费、材料费、机械费计入了。
〔例题〕1、某给排水工程给水入户管为De75,消防入户管为DN100 ,排水入户管为De160,在穿越建筑物外墙时设置防水套管,问:分别用什么规格的防水套管?答:给水用DN80的防水套管1个。
消防用DN100的防水套管1个。
排水用DN150的防水套管3个。
二、管道计算(干管、立管、支管)1、定额单位:10m2、计算:按不同材质、不同管径分别累计长度。
准确计算管道长度的关键是找准管道变径点的位置,对于螺纹连接的管道来说,变径点发生在三通处。
注意:管道的弯头、阀门、穿楼板、穿墙等处一般不会是管道变径点的位置。
(1)水平管(干管)计算:应根据平面图上标注的尺寸计算,因为图纸设计原因安装工程施工图中很少有尺寸标注,或因计算太繁琐,实际工作中利用比例尺进行计量。
将不同规格的管道分别计算,然后汇总。
如下图1-2某卫生间的平面图中的排水系统,计算水平管道的长度时,参考图1-3中标注的管径,在平面图中用比例尺计量。
首先,查看施工图比例,并复核。
De110:从PL-1立管中心量至清扫口中心的位置。
为:4.4mDe75:从排水横管上1#三通(De110×De75)处量至小便槽处的2#三通及小便槽内两个De75的地漏间之长为:2.7m+2m=4.7m,再从PL-1立管中心量至3#三通处为:0.6m,两处之和为4.7m+0.6m=5.3m。
De50:从3#三通处量至最远的地漏处为:2.8m,从3#三通量至排水栓处为:0.5m,两处之和为:2.8m+0.5m=3.3m。
(2)垂直管(立管)计算:根据系统图标注的标高,进行计算。
系统图上切忌用比例尺量计。
如图1-4某卫生间的平面图中的给水系统,计算垂直管道的长度时,依据系统图中管标注的管径和标高进行计算。
JL-1中:De25=(2-0.8)+(2-0.9)=2.3 mJL-2中:De25=(1.2-0.8)+(1.2-0.8)=0.8m合计:De25:3.1m(工程量:0.31)图1-2图1-3图1-4三、管道的防腐、保温不同的管材防腐的要求不同,焊接钢管:管道除锈后要刷防锈漆和银粉;镀锌钢管:丝扣处补刷防锈漆后刷银粉;塑料管:不用防腐。
1、管道的防腐(除锈、刷油)(1)定额单位:10m²(2)计算:按不同管径分别计算管道的外表面积,再求和。
A公式法S=π×D×L其中:D:管道外径;L:管道的长度B查表1-1计算法:查“焊接钢管绝热、刷油工程量计算表”中的保温厚度δ为0的一列刷油面积的数值(其数值是按公式法计算出来供大家使用的),单位:m2/m。
如DN50:0.1885 m2/m2、管道保温(防结露做法同保温,只是保温厚度δ值较小)(1)定额单位:10m³(2)计算:按不同管径计算管道外保温材料的体积,再求和。
A公式法V=π×(D+1.033δ)×1.033δ×L式中:D:管道外径δ:绝热层厚度;3.3%保温材料允许超厚系数;L:管道的长度。
B查表1-1计算法:查“焊接钢管绝热、刷油工程量计算表”中不同保温厚度对应的那行保温体积的数值,单位:m³/m,(注有的表格中的单位是:m³/100m)。
如:DN50 δ=40mm:0.0131 m³/m3、管道防潮层、保护层及刷漆(1)定额单位:10m²(2)计算:按不同管径计算管道保温外表面积,再求和。
A公式法S=π×(D+2δ+2δ×5%+2d1+3d2)×L=π×(D+2.1δ+0.0082)×L其中:5%保温材料允许超厚系数;d1:捆扎保温材料的金属钢丝直径(2d1=0.0032);d2:防潮层厚度(3d2=0.005);其他同上。
B查表1-1计算法:查“焊接钢管绝热、刷油工程量计算表”中不同保温厚度对应的那行保温外刷油面积的数值,单位:m²/m。
如:DN50 δ=40mm:0.4779 m²/m〔例题〕2、某采暖工程的焊接钢管的工程量为DN50,100m;DN40,50m;DN32,40m,求焊接钢管的除锈、刷油,保温δ=50mm、保护层的工程量?解:查表得:DN50:0.1885m²/m;DN40:0.1507m²/m;DN32:0.1297m²/m 除锈、刷油工程量:S=100×0.1885+50×0.1507+40×0.1297=31.6m²保温工程量:V=100×0.0181+50×0.0151+40×0.0146=3.15 m³保护层的工程量:S´=100×0.5438+50×0.5062+40×0.4854=99.11 m²想一想:如果保温厚度δ=30mm,焊接钢管的除锈、刷油、保温和保护层的工程量?提示:保温工程量利用δ=30mm那列数值焊接钢管绝热(m³/m )、刷油( m2/m)工程量计算表 1-1不同材质的管道,需要不同的支架支撑,钢管需要型钢支架,塑料管需要塑料管夹,工程量计算也不同。
1、塑料管管夹(1)定额单位:个(2)计算:按不同管径分别计算数量,再汇总。
立管夹数量=层高或垂直长度/立管最大间距数值水平管夹数量=管子水平长度/水平管最大间距数值塑料管支架间距表见下表1-2中的数据。
(1)定额单位:100kg(2)计算:分步进行,先统计不同规格的支架数量,再根据标准图集计算每个支架的重量,最后计算总重量。
A第一步:统计支架数量管道支架按安装形式一般有:立管支架、水平管支架、吊架。
①立管支架数量的确定,分不同管径计算。
楼层层高≤4m时,每层设一个;楼层层高>4m时,每层不得少于两个.②水平管支架数量的确定,分不同管径计算。
③管道吊架单管吊架数量,同水平管支架数量的计算公式。
水平钢管支架、吊架最大间距表(m)根据标准图集的具体要求,计算每个规格支架的单个重量,乘以支架数量,再求和计算总重量。
不同类型的支架单个重量参考表1-4、1-5、1-6、1-7的数据。
8033-345133-34519329-30的有关数据汇总而来,仅是个别型号的数据,供学习参考,实际工作时一定要根据最新的标准图集及施工图纸的具体要求认真计算单个重量。
〔例题〕3、某住宅给水工程,镀锌钢管DN15工程量为100m,DN20工程量为150m,DN25工程量为150,DN32工程量为200m均不保温,DN40的水平长度为135m,其中需保温部分为90m,立管穿3个层高(按不保温考虑);DN50的水平长度为220m,其中需保温部分为120m,立管穿4个层高(按不保温考虑)。
计算管道支架制作、安装工程量。
解:因为室内DN32mm及以内给水、采暖管道均已包括管卡及托钩制作安装。
所以计算管道支架制作、安装工程量时不考虑DN15-DN32的管。
第一步:统计数量1、立管支架数量:DN40:3个;DN50:4个2、水平支架数量:DN40保温的个数:90/3=30个;非保温的个数:45/4.5=10个DN50保温的个数:120/3=40个;非保温的个数:100/5=20个第二步:由表1-4查得:立支架单个重量DN40:0.23kg/个;DN50:0.25kg/个由表1-6查得:DN40水平支架,保温1.471 kg/个、非保温1.1 kg/个 DN50水平支架,保温1.512 kg/个、非保温1.14 kg/个重量=0.23×3+0.25×4+1.471×30+1.1×10+1.512×40+1.14×20 =140.1kg五、阀门类1、阀门DN≤50mm时宜采用截止阀,多为螺纹连接;DN>50mm时宜采用闸阀或蝶阀,多为法兰连接,经常起闭的管段上宜采用截止阀。
(1)定额单位;个(2)规格:视其所在管道的管径大小而定,统计数量。
如:DN25的管子上的阀门一般为截止阀DN25;DN100的管子上的阀门一般为闸阀DN100。
注意:De表示的是管道的外径,其上的阀门若不是塑料阀门时,按其公程直径的规格而定,一般De比DN大1#。
2水表、减压阀、疏水器(1)定额单位:“组”每组定额中包含的管件(阀门等)不应重复计算。
(2)规格:视其所在管道的管径大小而定,统计数量。
六、管道消毒、冲洗1、定额单位:100m2、计算,按定额划分汇总,定额分为DN50、DN100、DN200、DN300、、、、按段划分,那么将DN15~DN50归为一个定额子目即DN50;DN65~DN100归为一个定额子目即DN100,其他依此类推。
〔例题〕4、某工程发生的工程量分别是:DN20,50m;DN40,20m;DN50,100m;DN65,20m;DN80,70m;DN100,10m;DN125,70m;DN150,8m。
问:怎样计算管道消毒冲洗的工程量?解:DN50:50+20+100=170mDN100:20+70+10=100mDN200:70+8=78m练一练:某住宅采暖工程,焊接钢管DN15工程量为100m,DN20工程量为150m,DN25工程量为150,DN32工程量为200m均不保温,DN40的水平长度为135m,其中需保温部分为90m,DN50的水平长度为220m,其中需保温部分为120m,计算管道除锈刷油工程量,管道保温、保护层及布外刷调和漆工程量(管道除锈后刷防锈漆2遍,保温管用δ=30mm岩棉管壳,缠玻璃丝布,布外刷调和漆;非保温管刷2遍银粉)。
七、水箱-----选学这里要讲解水箱制作,水箱的安装简单,直接按照体积的不同套相应的定额。