圆管涵通用图2
- 格式:pdf
- 大小:806.36 KB
- 文档页数:7
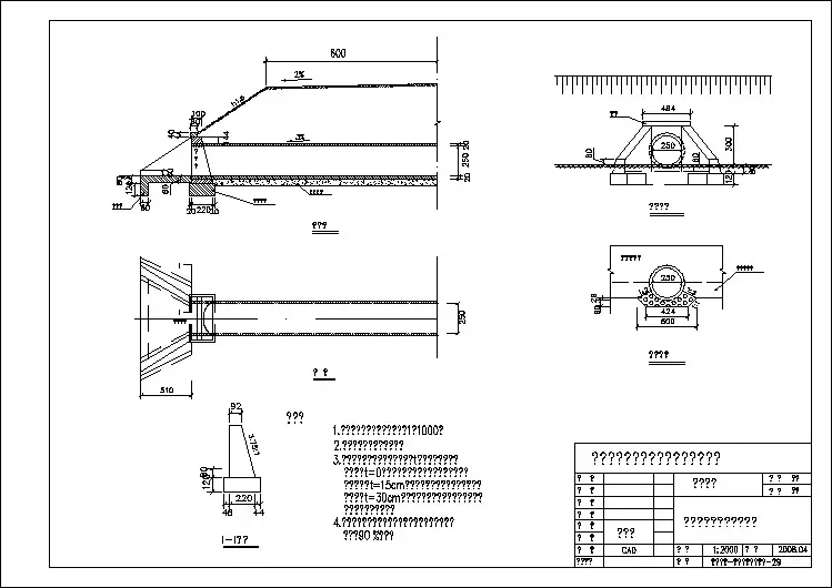
目 录序号图 表 名 称通用图编号页数备注序号图 表 名 称通用图编号页数备注钢筋混凝土圆管涵1说明TY-YGH-122圆管涵拼宽一般布置图TY-YGH-213孔径1.0米正管节钢筋构造图(管长0.5、1.0米)TY-YGH-314孔径1.5米正管节钢筋构造图(管长0.5、1.0米)TY-YGH-415孔径1.0米斜管节钢筋构造图(一)TY-YGH-516孔径1.0米斜管节钢筋构造图(二)TY-YGH-617孔径1.5米斜管节钢筋构造图(一)TY-YGH-718孔径1.5米斜管节钢筋构造图(二)TY-YGH-819斜交洞口一般构造图TY-YGH-9110正交八字洞口构造及工程数量表TY-YGH-10111斜交八字洞口构造及工程数量表TY-YGH-11112斜交斜做八字洞口正翼墙尺寸表TY-YGH-12113斜交斜做八字洞口反翼墙尺寸表TY-YGH-13114锥坡式洞口尺寸及工程数量表TY-YGH-14115套管式接头变形缝构造图TY-YGH-15116进水口跌井构造图TY-YGH-16117钢筋砼跌井井盖构造图TY-YGH-17118跌井洞口防落物网构造图TY-YGH-181南昌至樟树高速公路改扩建工程桥涵通用图 第1页 共2页 TY-YGH-1钢筋砼圆管涵设计说明一、 技术标准及设计规范(一) 中华人民共和国交通部标准《公路工程技术标准》JTG B01—2003(二) 中华人民共和国交通部标准《公路桥涵设计通用规范》JTG D60—2004(三) 中华人民共和国交通部标准《公路钢筋混凝土及预应力混凝土桥涵设计规范》JTG D62—2004(四) 中华人民共和国交通部标准《公路砖石及混凝土桥涵设计规范》JTJ D61—2005(五) 中华人民共和国交通部标准《公路桥涵地基与基础设计规范》JTG D63—2007(六) 中华人民共和国交通部标准《公路桥涵施工技术规范》JTJ041—2000二、 技术指标(一) 孔径:φ1.00、φ1.50m。
变更设计报告单
承包单位:新乡市盛宇公路工程有限公司合同号:WS -05乌善二级公路第TJ-5标段项目部
监理单位:呼和浩特市公路工程监理所申报编号:BG-WS-D1-LG-005
附表二:
工程变更估价报告
承包单位:新乡市盛宇公路工程有限公司合同号:WS-05 乌善二级公路第TJ-5标段项目部
附表三:
工程变更现场实施方案纪要
承包单位:新乡市盛宇公路工程有限公司合同号:WS-05 乌善二级公路第TJ-5标段项目部
工程变更现场实施方案通知单承包单位:新乡市盛宇公路工程有限责任公司合同号:WS-05 监理单位:呼和浩特市公路工程监理所申报编号:。
目 录序号图 表 名 称通用图编号页数备注序号图 表 名 称通用图编号页数备注钢筋混凝土圆管涵1说明TY-YGH-122圆管涵拼宽一般布置图TY-YGH-213孔径1.0米正管节钢筋构造图(管长0.5、1.0米)TY-YGH-314孔径1.5米正管节钢筋构造图(管长0.5、1.0米)TY-YGH-415孔径1.0米斜管节钢筋构造图(一)TY-YGH-516孔径1.0米斜管节钢筋构造图(二)TY-YGH-617孔径1.5米斜管节钢筋构造图(一)TY-YGH-718孔径1.5米斜管节钢筋构造图(二)TY-YGH-819斜交洞口一般构造图TY-YGH-9110正交八字洞口构造及工程数量表TY-YGH-10111斜交八字洞口构造及工程数量表TY-YGH-11112斜交斜做八字洞口正翼墙尺寸表TY-YGH-12113斜交斜做八字洞口反翼墙尺寸表TY-YGH-13114锥坡式洞口尺寸及工程数量表TY-YGH-14115套管式接头变形缝构造图TY-YGH-15116进水口跌井构造图TY-YGH-16117钢筋砼跌井井盖构造图TY-YGH-17118跌井洞口防落物网构造图TY-YGH-181南昌至樟树高速公路改扩建工程桥涵通用图 第1页 共2页 TY-YGH-1钢筋砼圆管涵设计说明一、 技术标准及设计规范(一) 中华人民共和国交通部标准《公路工程技术标准》JTG B01—2003(二) 中华人民共和国交通部标准《公路桥涵设计通用规范》JTG D60—2004(三) 中华人民共和国交通部标准《公路钢筋混凝土及预应力混凝土桥涵设计规范》JTG D62—2004(四) 中华人民共和国交通部标准《公路砖石及混凝土桥涵设计规范》JTJ D61—2005(五) 中华人民共和国交通部标准《公路桥涵地基与基础设计规范》JTG D63—2007(六) 中华人民共和国交通部标准《公路桥涵施工技术规范》JTJ041—2000二、 技术指标(一) 孔径:φ1.00、φ1.50m。
一、洞身及组成按涵洞构造形式和组成部分不同,洞身也有不同的形式。
现将常见的洞身形式分述如下:1.圆管涵(包括倒虹吸圆管涵)圆管涵洞身主要由各分段圆管节和支承管节的基础垫层组成,见图2-1。
当整节钢筋混凝土圆管无铰时,称为刚性管节;当沿横截面圆周对称加设4个铰时,称为柔性管节(参见第六章第二节)。
为50(农田灌溉时用)、75、100、125、150cm,对应的管圆管涵常用孔径d壁厚度δ分别为6、8、10、12、14cm。
基础垫层厚度t根据基底土质确定,当为卵石、砾石、粗中砂及整体岩层地基时,t=0;当为亚砂土、粘土及破碎岩层地基时,t=15cm当为干燥地区的粘土、亚粘土、亚砂土及细砂的地基时t=30cm。
图2-1圆管涵洞身-孔径(净跨);δ-管壁厚度;B-基底宽度;t-基础垫层厚度d尺寸单位:cm2.盖板涵盖板涵洞身由涵台(墩)、基础和盖板组成。
盖板有石盖板及钢筋混凝土盖板等。
当跨径较小、洞顶具有一定填土高度时,可采用石盖板;当跨径较大时,宜采用钢筋混凝土盖板,见图2-2。
石盖板涵常用跨径L为75、100、125cm,盖板厚度d随洞顶填土高度与跨径而变,一般在15~40cm之间。
作盖板的石料必须是不易风化的、无裂缝的优质石板。
钢筋混凝土盖板涵跨径为150、200、250、300、400cm,相应的盖板厚度d达500cm以上时为小桥,相应的盖板厚度d可在25~30cm 在15~22cm之间。
当L之间。
圬工涵台(墩)的临水面一般采用垂直面,而涵台背面采用垂直或斜坡面,涵台(墩)顶面一般做成平面。
涵台顶面有时做成L型企口,使其在支承盖板的同时,借助盖板的支撑作用来加强涵台的稳定。
涵台(墩)的下部用砂浆与基础结成整体。
钢筋混凝土盖板涵的涵台(墩)上部往往比台(墩)身尺寸略大,做成台(墩)帽。
为了增加整体稳定性和抗震性,当跨径大于2m且涵洞较高时,可在盖板下或盖板间,沿涵长每隔2m增设一根支撑梁,也可分别在盖板两端和台(墩)帽内预埋栓钉,使盖板与台(墩)加强连结。