化学锚栓计算(304)
- 格式:doc
- 大小:350.46 KB
- 文档页数:13
HILTI化学锚栓-HVU承载力计算(喜利得CC法)附录. HILTI化学锚栓-HVU承载力计算(喜利得CC法)1 化学锚栓抗拉性能计算单根锚栓抗拉承载力设计值取下列两者中的最小值:N Rd,c :混凝土边缘破坏承载力N Rd,s :钢材破坏承载力1.1 N Rd,c ——混凝土锥体破坏抗拉承载力设计值计算计算公式:N Rd,c =N Rd,c0×f B,N×f T×f A,N×f R,N公式中:N Rd,c0 ——混凝土锥体破坏的抗拉承载力设计值,通过标准值N Rk,c0由公式N Rk,c0 /γMc,N,得到,其中分项安全系数γMc,N 取 1.8, N Rd,c0按表L.1.1.1确定。
表L.1.1.1 混凝土锥体破坏的抗拉承载力设计值及标准埋置深度锚栓规格 M8 M10 M12 M16 M20N Rd,c0 (kN) 12.4 16.6 23.8 34.7 62.9h nom (mm)1)80 90 110 125 170注:1)h nom 为标准埋置深度公式中:f B,N ——混凝土强度影响系数,不同标号混凝土系数按表L.1.1.2确定。
表L.1.1.2混凝土强度影响系数混凝土强度等级立方体抗压强度f B,Nf ck,cube(N/mm2)C20 20 0.94C25 25 1.0C30 30 1.05C40 40 1.12C45 45 1.20C50 50 1.25C55 55 1.30C60 60 1.35注:f B,N 也可按公式计算:f B,N =1+(f ck,cube -25 ) / 80限制条件:20 N/mm2≤f ck,cube ≤ 60 N/mm2公式中:f T ——埋置深度影响系数,可按公式计算:f T = h act / h nom实际埋深限制h act:h nom≤h act≤2.0×h nom公式中:f A,N ——锚栓间距影响系数,按表L.1.1.3确定。
化学锚栓拉拔力值计算混凝土位置M12X160化学锚栓拉拔力为Nmax=3160.8N;锚栓计算:计算说明:层高3600位置石材幕墙后置埋件化学锚栓强度计算计算层间高度3600mm,分格最大宽度1000mm石材幕墙自重1100N/平方米,地震荷载880 N/平方米风荷载标准值1000 N/平方米埋件受力计算:1、N1: 埋件处风荷载总值(N):N1wk=Wk×B×Hsjcg×1000=1.000×1.000×3.600×1000=3600.000N连接处风荷载设计值(N) :N1w=1.4×N1wk=1.4×3600.000=5040.000NN1Ek: 连接处地震作用(N):N1Ek=qEAk×B×Hsjcg×1000=0.880×1.000×3.600×1000=3168.000NN1E: 连接处地震作用设计值(N):N1E=1.3×N1Ek=1.3×3168.000=4118.400NN1: 连接处水平总力(N):N1=N1w+0.5×N1E=5040.000+0.5×4118.400=7099.200N2、N2: 埋件处自重总值设计值(N):N2k=1100×B×Hsjcg=1100×1.000×3.600=3960.000NN2: 连接处自重总值设计值(N):N2=1.2×N2k=1.2×3960.000=4752.000N3、M: 弯矩设计值(N·mm):e2: 立柱中心与锚板平面距离: 70mm M: 弯矩设计值(N·mm):M= N2×e2=4752×70=332640N·mm4、埋件强度计算螺栓布置示意图如下:123441244022040300200螺栓布置示意图d:锚栓直径12mmde:锚栓有效直径为10.36mmd0:锚栓孔直径16mm一个锚栓的抗剪承载力设计值为Nvb= nv ×π×d24×fvb (GB50017-20037.2.1-1) = 1×π×1224×140=15833.6Nt:锚板厚度,为10mm一个锚栓的承压承载力设计值为Ncb= d ×t ×fcb(GB50017-2003 7.2.1-2)= 12×10×305=36600N一个拉力锚栓的承载力设计值为Ntb= π×de24×ftb (GB50017-2003 7.2.1-6)= π×10.3624×140=11801.5N在轴力和弯矩共同作用下,锚栓群受力形式。
预埋件计算书==================================================================== 计算软件:MTS钢结构设计系列软件MTSTool v2.0.1.6计算时间:2011年04月01日13:49:10====================================================================一. 预埋件基本资料采用化学锚栓:单螺母扩孔型锚栓库_6.8级-M20排列为(环形布置):4行;行间距140mm;2列;列间距150mm;锚板选用:SB20_Q235锚板尺寸:L*B= 400mm×600mm,T=20基材混凝土:C30基材厚度:300mm锚筋布置平面图如下:二. 预埋件验算:1 化学锚栓群抗拉承载力计算轴向拉力为:N=50kNX向弯矩值为:Mx=100kN·mY向弯矩值为:My=30kN·m锚栓总个数:n=4×2=8个所选化学锚栓抗拉承载力为(锚栓库默认值):Nc=90.574kN承载力降低系数为:0.7实际抗拉承载力取为:Nc=90.574×0.7=63.402这里要考虑抗震组合工况:γRE=0.85故有允许抗拉承载力值为:Nc=63.402/γRE=74.59kN故有:0 < 74.59kN,满足2 化学锚栓群抗剪承载力计算X方向剪力:Vx=60kNY方向剪力:Vy=190kN扭矩:T=30kN·mX方向受剪锚栓个数:n x=8个Y方向受剪锚栓个数:n y=8个剪切荷载通过受剪化学锚栓群形心时,受剪化学锚栓的受力应按下式确定:V ix V=V x/n x=60000/8=7500×10-3=7.5kNV iy V=V y/n y=190000/8=23750×10-3=23.75kN化学锚栓群在扭矩T作用下,各受剪化学锚栓的受力应按下列公式确定:V ix T=T*y i/(Σx i2+Σy i2)V iy T=T*x i/(Σx i2+Σy i2)化学锚栓群在剪力和扭矩的共同作用下,各受剪化学锚栓的受力应按下式确定:V iδ=[(V ix V+V ix T)2+(V iy V+V iy T)2]0.5结合上面已经求出的剪力作用下的单个化学锚栓剪力值及上面在扭矩作用下的单个锚栓剪力值公式分别对化学锚栓群中(边角)锚栓进行合成后的剪力进行计算(边角锚栓存在最大合成剪力):取4个边角化学锚栓中合剪力最大者为:V iδ=[(7500+3663.43)2+(23750+1308.368)2]0.5=27.433kN所选化学锚栓抗剪承载力为(锚栓库默认值):Vc=53.855kN承载力降低系数为:0.7实际抗剪承载力取为:Vc=53.855×0.7=37.698这里要考虑抗震组合工况:γRE=0.85故有允许抗剪承载力值为:Vc=37698.272/0.85=44.351kN故有:V iδ=27.433kN < 44.351kN,满足3 化学锚栓群在拉剪共同作用下计算当化学锚栓连接承受拉力和剪力复合作用时,混凝土承载力应符合下列公式:(βN)2+(βV)2≤1式中:βN=N h/Nc=0/106.557=0βV=V iδ/Vc=39.189/63.358=0.6185故有:(βN)2+(βV)2=02+0.61852=0.3826 ≤1 ,满足三. 预埋件构造验算:锚固长度限值计算:锚固长度为300,最小限值为160,满足!锚板厚度限值计算:按《混凝土结构设计规范2002版》10.9.6规定,锚板厚度宜大于锚筋直径的0.6倍,故取锚板厚度限值:T=0.6×d=0.6×20=12mm锚筋间距b取为列间距,b=150 mm锚筋的间距:b=150mm,按规范且有受拉和受弯预埋件的锚板厚度尚宜大于b/8=18.75mm, 故取锚板厚度限值:T=150/8=18.75mm锚板厚度为20,最小限值为18.75,满足!行间距为140,最小限值为120,满足!列边距为150,最小限值为60,满足!行边距为90,最小限值为40,满足!列边距为125,最小限值为40,满足!。
化学锚栓计算书一、拉弯作用下,单根锚栓最大拉力设计值12iMy N n y -≥∑0 (5.2.2-1) 形心点取锚栓中心y1=0.240m V=45kNM=45×0.25=11.25kN ▪m N=44kN224411.250.24840.0840.24⨯-=⨯+⨯ 5.5-17.6<0 12h sd i My N N n y =+∑(5.2.2-2) 不满足公式5.2.2-1()/1/2hsd iNL M y N y +=∑(5.2.2-3) =()()2224424011.251000480248023202160⨯+⨯⨯=⨯+⨯+⨯14.6kN 二、部分锚栓受拉,群锚受拉区总拉力设计值(按6根锚栓受拉,2根锚栓受剪)g sd si N N =∑ (5.2.3-1)//1/h si sd i N N y y = (5.2.3-2)2s N =14.6×320/480=9.73kN 3s N =14.6×160/480=4.86kNg sd N =14.6×2+9.73×2+4.86×2=58.38kN三、混凝土锥体破坏受拉承载力设计值,,Rc,/Rd c Rk c N N N =γ (6.1.3-1)根据表4.3.10 按非结构构件考虑 Rc,N γ=1.8对于开裂混凝土,混凝土标号C60,hef=180mm0 1.5,Rk c ef N = (6.1.3-3) =127.6kN,0,,,,,0,c N Rk c Rk c s N re N ec N c N A N N A ψψψ= (6.1.3-2)0,c N A =2,cr N s (6.1.4)0,c N A =660×660=435600mm 2,c N A =()()11,22,0.50.5cr N cr N C S S C S S ++++ (6.1.5-4)1S =220mm,2S =320mm1C =,cr N C =330, 1.5cr N C hef ==1.5×220=330mm=(330+220+330)(330+320+330)=880×980=862400 mm 2,0,c Nc N A A =1.98,s N ψ=0.7+0.3,cr N C C (6.1.6) ,s N ψ=1 C =,cr N C,re N ψ=0.5+200efh (6.1.7) ,re N ψ=0.5+220/200>1, ,re N ψ=1,ec N ψ=,112/N cr N e s + (6.1.8)N e =53.33mm ,ec N ψ=11253.33/660+⨯=0.86 ,Rk c N =127.6×1.98×0.86=217.3kN重要性系数 0γ=1.1 (4.3.3) ,Rd c N =217.3/1.8=120.7kN>1.1×58.38kN=64.2kN四、混凝土边缘破坏受剪承载力(4锚栓受剪) ,,,/Rd c Rk c Rc V V V γ= (6.1.18-1),0,,,,,,,0,c v Rd c Rk c s v h v v re v ec v c v A V V A αψψψψψ= (6.1.18-2)对于开裂混凝土0 1.5,11.35Rk c efV d h αβ= (6.1.19-1) C60,hef=180mm ,1c =270α=0.1()0.51/ef h c (6.1.19-3) β=0.1()0.21/d c (6.1.19-4) α=0.1()0.5180/270=0.082 β=0.1()0.220/270=0.059 0,Rk c V =1.35×0.082 1.520180=78.53kN 0,c v A =4.521c =328050,c v A =(1.51c +2s +2c )h h=300>1.5×180=270 取h=270 2c =1.51c =405 2s =220 ,c v A =270×(405+220+405)=278100,0,c vc v A A =278100/328050=0.85,s v ψ=0.7+0.3211.5c c (6.1.19) ,s v ψ=1,h v ψ=()0.511.5/c h ,h v ψ=1,v αψ=1,re v ψ=1.2,ec v ψ=1112/3v e c + v e =0 ,Rd c V =78.53×1.2×0.85=80.1kN 非结构构件,Rc V γ=1.5重要性系数 0γ=1.1 (4.3.3) ,Rd c V =80.1/1.5=53.4>1.1×45=49.5kN。
化学锚栓拉拔计算书
第 1 页共 1 页中南红星美凯龙观光电梯
化学锚栓强度计算书
一、化学锚栓拉剪计算
采用PKPM 软件进行力学计算,在荷载设计值作用下得支座处受力情况。
由化学锚栓承受由主结构传递的轴力、剪力、和弯矩的共同作用。
化学锚栓所受轴力:N=126.6 KN
化学锚栓所受剪力:V=12.55 KN
化学锚栓所受弯矩:M =2.2KN ·m
M24化学锚栓的设计拉力N t b =59.5KN ,设计剪力N V b =74.3 KN 。
作用于一个化学锚栓的最大拉力:
t N =∑2i y m My +4
N =46.1261
.021.02.22+?? =42.65 KN< N t b =59.5 KN
作用于一个化学锚栓的剪力:
V N =
4V =4
55.12 =3.14 KN< N V b =74.3KN
拉力和剪力共同作用下:
2b v
v 2b t t )N N ()N N (+=22)3.7414.3()5.5965.42(+=0.72≤1 化学锚栓承载能力满足设计要求。
化学锚栓埋件的计算首先是锚栓的类型和尺寸。
常见的锚栓类型有膨胀锚栓、胶囊锚栓和钻孔锚栓。
不同类型的锚栓具有不同的载荷能力和适用范围。
锚栓的尺寸包括直径和长度,直径决定了锚栓的强度,长度决定了锚栓在混凝土中的嵌入深度。
其次是混凝土的强度。
混凝土的强度直接影响着化学锚栓埋件的承载力。
混凝土的强度一般由抗压强度表示,常见的混凝土抗压强度等级有C15、C20、C25等。
需要根据混凝土的抗压强度确定化学锚栓埋件的承载力。
第三是锚栓的安装方式。
化学锚栓的安装方式主要有预埋法和现场施工法两种。
预埋法是将化学锚栓在混凝土浇筑前预先埋入,现场施工法是混凝土浇筑后再进行化学锚栓的安装。
不同的安装方式会影响到化学锚栓的承载力计算。
计算化学锚栓埋件的承载力时,首先需要确定锚栓的最大拉力和最大剪力。
最大拉力一般由设备或结构的重量和悬挂方式决定。
最大剪力一般由受拉设备或结构施加的横向力决定。
根据最大拉力和最大剪力,可以计算出化学锚栓胶的有效承载力。
化学锚栓胶的有效承载力一般由制造商提供,也可以通过实验获得。
有效承载力可以通过公式计算得到,公式为有效承载力=化学锚栓胶的极限粘结强度×锚栓的有效面积。
其中,极限粘结强度是化学锚栓胶在固化后的强度,有效面积是浸入混凝土中的锚栓的有效面积。
最后,需要根据化学锚栓胶的有效承载力和使用工况进行验算。
使用工况一般包括静载荷、冲击荷载、地震荷载等,需要根据具体情况进行选择。
通过验算可以确保化学锚栓埋件在使用过程中的安全可靠性。
总之,化学锚栓埋件的计算涉及到锚栓的类型和尺寸、混凝土的强度、锚栓的安装方式、最大拉力和最大剪力以及化学锚栓胶的有效承载力。
通过合理的计算方法和验算,可以确保化学锚栓埋件的安全可靠使用。
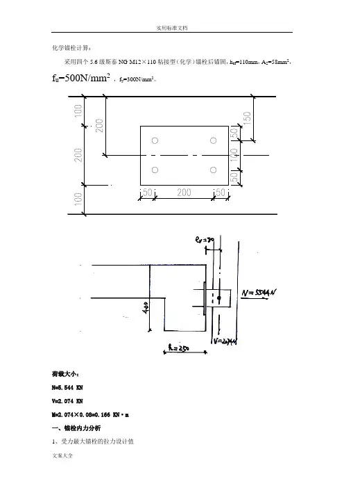
化学锚栓计算:采用四个5.6级斯泰NG-M12×110粘接型(化学)锚栓后锚固,h ef=110mm,A S=58mm2,f u=500N/mm2 ,f y=300N/mm2。
荷载大小:N=5.544 KNV=2.074 KNM=2.074×0.08=0.166 KN·m一、锚栓内力分析1、受力最大锚栓的拉力设计值因为361221 5.544100.166105042250My N n y ⨯⨯⨯-=-⨯⨯∑=556 N >0 故,群锚中受力最大锚栓的拉力设计值:12i h Sd My NN n y =+∑ 3625.544100.166105042250⨯⨯⨯=+⨯⨯ =2216 N2、承受剪力最大锚栓的剪力设计值化学锚栓有效锚固深度:ef h '=ef h -30=60 mm锚栓与混凝土基材边缘的距离c=150 mm <10ef h '=10×60=600 mm ,因此四个锚栓中只有部分锚栓承受剪切荷载。
承受剪力最大锚栓的剪力设计值:2hSd VV ==2074/2=1037 N 二、锚固承载力计算 1、锚栓钢材受拉破坏承载力锚栓钢材受拉破坏承载力标准值: ,5850029000R k s s s t k N A f ==⨯=N 锚栓钢材破坏受拉承载力分项系数:锚栓钢材破坏时受拉承载力设计值:,,,29000145002.0Rk sRd s RS NN N γ===N >h SdN=2216 N锚栓钢材受拉承载力满足规范要求! 2、混凝土锥体受拉破坏承载力 锚固区基材为开裂混凝土。
单根锚栓理想混凝土锥体破坏时的受拉承载力标准值:=8248.64 N混凝土锥体破坏情况下,确保每根锚栓受拉承载力标准值的临界间距: ,33(9030)180mm cr Nef s h '==⨯-=混凝土锥体破坏情况下,确保每根锚栓受拉承载力标准值的临界边距: , 1.5 1.5(9030)90mm cr N ef c h '==⨯-= 基材混凝土劈裂破坏的临界边距:,22(9030)120mm cr spef ch '==⨯-=则,c 1=150 mm >,90cr N c =mm ,取c 1=90 mm 边距c 对受拉承载力降低影响系数:,,900.70.30.70.390s N cr Nc c ψ=+=+⨯=1.0表层混凝土因密集配筋的剥离作用对受拉承载力降低影响系数:,90300.50.5200200efre Nh ψ-=+=+=0.8荷载偏心对受拉承载力的降低影响系数:,,111.012/120ec N N cr Ne s ψ===++⨯其中,0Ne =开裂混凝土, 1.0ucr N ψ=单根锚栓受拉,混凝土理想化破坏锥体投影面面积:0222,,18032400mm c N cr NA s ===s 1=100 mm <,取,180cr N s mm =s 1=100 mms 2=200 mm >,180cr Ns mm =,取s 2=180 mmc 1=150 mm >,90mm cr N c =,取c 1=90 mm ,c 2=90 mm群锚受拉,混凝土破坏锥体投影面面积,c N A :,11,22,(c 0.5)(0.5)c N cr N cr N A s s c s s =++++(901000.5180)(901800.5180)=++⨯++⨯=100800 mm 2混凝土锥体破坏时的受拉承载力分项系数,, 2.15Rc N γ=群锚混凝土锥体受拉破坏时的受拉承载力标准值:,0,,,,,,0,c N Rk c Rk cs N re N ec N ucr N c NA N NAψψψψ=1008008248.64 1.00.8 1.0 1.032400=⨯⨯⨯⨯⨯=20529.95 N群锚混凝土锥体受拉破坏时的受拉承载力设计值:,,,20529.959548.812.15Rk cRd c Rc NN N γ===N >N=5544 N混凝土锥体受拉承载力满足规范要求! 3、混凝土劈裂破坏承载力基材混凝土劈裂破坏的临界边距:,22(9030)120mm cr spef ch '==⨯-=则,c 1=150 mm >,120mm cr sp c =,取c 1=120 mm ,c 2=120 mm,,22120240mm cr sp cr sp s c ==⨯=s 1=100 mm <,240cr sp s mm =,取s 1=100 mms 2=200 mm >,240cr spsmm =,取s 2=200 mm0222,,24057600mm c N cr spA s === ,11,22,(c 0.5)(0.5)c N cr sp cr sp A s s c s s =++++(1201000.5240)(1202000.5240)=++⨯⨯++⨯=149600 mm 2构件厚度h 对劈裂承载力的影响系数:2233h,250()()2260spef h h ψ==⨯=1.631>1.5,取h, 1.5sp ψ=单根锚栓理想混凝土锥体破坏时的受拉承载力标准值:,013.0(3R k ce f k N h =-1.53.0(9030)=⨯- =8248.64 N群锚混凝土锥体受拉破坏时的受拉承载力标准值:,0,,,,,,0,c N Rk c Rk cs N re N ec N ucr N c NA N NAψψψψ=1496008248.64 1.00.8 1.0 1.057600=⨯⨯⨯⨯⨯=17138.84 N混凝土劈裂破坏受拉承载力标准值:,,, 1.517138.8425708.26Rk sp h sp Rk c N N ψ==⨯=N混凝土劈裂破坏受拉承载力设计值:,,/25708.26/2.1511957.33Rd sp Rk sp Rsp N N γ===N >N=5544 N混凝土劈裂破坏承载力满足规范要求! 4、锚栓钢材受剪破坏承载力锚栓钢材破坏时的受剪承载力标准值:,0.50.55850014500Rk s s stk V A f ==⨯⨯=N锚栓钢材受剪承载力分项系数:,5001.2/ 1.22.0300Rv s stkyk f f γ==⨯=锚栓钢材破坏时的受剪承载力设计值:,,,/14500/27250Rd s Rk s Rs v V V N γ===>V=2074 N锚栓钢材受剪承载力满足规范要求! 5、混凝土楔形体受剪破坏承载力取c 1=c 2=,90cr Nc=mm混凝土楔形体破坏时的受剪承载力标准值:,00.21.51/)Rk c f nom V l d =0.2 1.50.45(60/10)90==10285.86 N边距比c 2/c 1对受剪承载力的降低影响系数:2s,1900.70.30.70.30.91.5 1.590v c c ψ=+=+⨯=⨯边距与构件厚度比c 1/h 对受剪承载力的提高影响系数:1/31/31, 1.5 1.590()()0.814250h v c h ψ⨯===<1,取, 1.0h v ψ= 剪力与垂直于构件自由边方向轴线之夹角α对受剪承载力的影响系数,v αψ: 因为α=00,因此, 1.0v αψ=。
化学锚栓拉拔力值计算混凝土位置M12X160化学锚栓拉拔力为Nmax=;锚栓计算:计算说明:层高3600位置石材幕墙后置埋件化学锚栓强度计算计算层间高度3600mm,分格最大宽度1000mm石材幕墙自重1100N/平方米,地震荷载880 N/平方米风荷载标准值1000 N/平方米埋件受力计算:1、N1: 埋件处风荷载总值(N):N1wk=Wk×B×Hsjcg×1000=×××1000=连接处风荷载设计值(N) :N1w=×N1wk=×=N1Ek: 连接处地震作用(N):N1Ek=qEAk×B×Hsjcg×1000=×××1000=N1E: 连接处地震作用设计值(N):N1E=×N1Ek=×=N1: 连接处水平总力(N):N1=N1w+×N1E=+×=、N2: 埋件处自重总值设计值(N): 2N2k=1100×B×Hsjcg=1100××=连接处自重总值设计值(N): N2:N2=×N2k=×=mm):、M: 弯矩设计值(N·3e2: 立柱中心与锚板平面距离: 70mm mm): M: 弯矩设计值(N·e2 N2×M=×70 =4752332640N =·mm 4、埋件强度计算: 螺栓布置示意图如下404022043040020211204300螺栓布置示意图d:锚栓直径12mmde:锚栓有效直径为10.36mmd0:锚栓孔直径16mm一个锚栓的抗剪承载力设计值为π×d2 Nvb= nv××fvb (GB50017-2003 7.2.1-1) 4π×122×140= 1×4=10mm t:锚板厚度,为一个锚栓的承压承载力设计值为×Ncb= dt×fcb(GB50017-2003 7.2.1-2)= 12×10×305=36600N一个拉力锚栓的承载力设计值为de2π×7.2.1-6) (GB50017-2003 ×Ntb= ftb4π×140×= 4=在轴力和弯矩共同作用下,锚栓群受力形式。
化学锚栓计算:采用四个级斯泰NG-M12 X 110粘接型(化学)锚栓后锚固,h ef=110mm , A s=58mm2, 2f u=500N/mm ,f y=300N/mm 2。
荷载大小:N= KNV= KNM=X = KN •、锚栓内力分析1、受力最大锚栓的拉力设计值因为 N如5.544 1 030.166 1 06 50=556 N>0n y ;42 2 500故,群锚中受力最大锚栓的拉力设计值:N My !— 2 n y i 5.544 1 03 0.166 1 06504 2 2 502=2216 N2、承受剪力最大锚栓的剪力设计值化学锚栓有效锚固深度:h ef = h ef -30=60 mm锚栓与混凝土基材边缘的距离 c=150 mm v 10 £ =10X 60=600 mm,因此四个锚栓中只有部分锚栓承受剪切荷载。
承受剪力最大锚栓的剪力设计值:V Sd V =2074/2=1037 N2二、锚固承载力计算1、锚栓钢材受拉破坏承载力锚栓钢材受拉破坏承载力标准值:N R " A s f stk 58 500 29000 N锚栓钢材破坏受拉承载力分项系数:锚栓钢材受拉承载力满足规范要求!2、混凝土锥体受拉破坏承载力锚固区基材为开裂混凝土。
单根锚栓理想混凝土锥体破坏时的受拉承载力标准值:h Sd锚栓钢材破坏时受拉承载力设计值:NRd,sN Rk,s29000 RS,N2.01450°N> N Sd =2216 N混凝土锥体破坏情况下,确保每根锚栓受拉承载力标准值的临界间距:混凝土锥体破坏情况下,确保每根锚栓受拉承载力标准值的临界边距:c cr ,N 1.5h ef 1.5 (90 30) 90mm基材混凝土劈裂破坏的临界边距:C cr,sp 2 (90 30) 120mm则,o=150 mm> c cr ,N 90 mm 取 c 1=90 mm 边距c 对受拉承载力降低影响系数:c0.7 0.3 ——ccr ,N900.7 0.3 ——90 =表层混凝土因密集配筋的剥离作用对受拉承载力降低影响系数:荷载偏心对受拉承载力的降低影响系数:开裂混凝土U cr,N1.0单根锚栓受拉,混凝土理想化破坏锥体投影面面积:A 0,NS ;N 180232400mm 2N 03.0(h ef 30)1-\'f cu,kRk,c ec,N12e N /S cr,N1 2 01.0其中,e N 0Scr ,N3hef3 (90 30) 180mms,Nh efre- °5莎0590 30 200S 1=100 mm< ,取 s cr ,N 180mm s 1=!00 mmS 2=200 mm> s cr ,N180mm ,取 S 2=180 mmC 1=150 mm> C cr, N90mm,取 C 1=90 mm, C 2=90 mm群锚受拉,混凝土破坏锥体投影面面积A c , N :(90 100 0.5 180)(90 180 0.5 180)=100800 mm 2混凝土锥体破坏时的受拉承载力分项系数,Rc,N2.15群锚混凝土锥体受拉破坏时的受拉承载力标准值:群锚混凝土锥体受拉破坏时的受拉承载力设计值:混凝土锥体受拉承载力满足规范要求!3、混凝土劈裂破坏承载力基材混凝土劈裂破坏的临界边距:c cr,sp 2h ef2 (90 30) 120mm则,C 1=150 mm>C cr ,s p120mm ,取 C 1=120 mm, C 2=120 mmNRd,CNRk,CRc,N20529.95 2.159548.85> N =5544 NA c,N(C1°・5Scr,N)(C2S 2 °・5Scr,N )NRk,cNRk,c A c,NA 0,Ns,N re,N ec,N ucr ,N8248.64100800 324001.0 0.8 1.0 1.0S cr,sp 2C cr,sp 2 120 240mmS 1=100 mm< s cr,sp240mm,取 S 1=100 mmS 2=200 mm>S cr ,sp 240mm ,取 S 2=200 mmA 0,N s ;,sp 240257600mm 2A c,N(c1s i 0.5s^r ,sp)(c 2s2(120 100 0.5 240) (120 200 0.5 240)2=149600 mm构件厚度h 对劈裂承载力的影响系数:2 2sp此…鶴L ,取h,sp1.5单根锚栓理想混凝土锥体破坏时的受拉承载力标准值:混凝土劈裂破坏受拉承载力设计值:N Rd,sp N Rk,sp / Rsp 25708.26/2.15 11957.330.5S cr, sp )N :,c 3.0(^30)1.53.0 (90 30)1.5「35群锚混凝土锥体受拉破坏时的受拉承载力标准值:N N 0Rk,cRk,c 0 s,N re,N ec,NAc,N1496008248.641.0 0.8 1.0 1.057600ucr, N混凝土劈裂破坏受拉承载力标准值:N Rk,sph,sp N Rk,c1.5 1713 25708.26cu ,k,v -边距与构件厚度比C i /h 对受剪承载力的提高影响系数:h,v(¥)1/3(兽)1/3 0.814V 1, 取 h ,v 1.0剪力与垂直于构件自由边方向轴线之夹角a 对受剪承载力的影响系数 因为a =0°,因此,v1.0。
化学锚栓计算WEIHUA system office room 【WEIHUA 16H-WEIHUA WEIHUA8Q8-化学锚栓计算:采用四个级斯泰NG-M12×110粘接型(化学)锚栓后锚固,h ef=110mm,A S=58mm2,f u=500N/mm2 ,f y=300N/mm2。
荷载大小:N= KNV= KNM=×= KN·m一、锚栓内力分析1、受力最大锚栓的拉力设计值因为361221 5.544100.166105042250My N n y ⨯⨯⨯-=-⨯⨯∑=556 N >0 故,群锚中受力最大锚栓的拉力设计值:12ih Sd My NN n y =+∑ 3625.544100.166105042250⨯⨯⨯=+⨯⨯ =2216 N2、承受剪力最大锚栓的剪力设计值化学锚栓有效锚固深度:ef h '=ef h -30=60 mm锚栓与混凝土基材边缘的距离c=150 mm <10ef h '=10×60=600 mm ,因此四个锚栓中只有部分锚栓承受剪切荷载。
承受剪力最大锚栓的剪力设计值:2hSd VV ==2074/2=1037 N 二、锚固承载力计算1、锚栓钢材受拉破坏承载力 锚栓钢材受拉破坏承载力标准值: ,5850029000Rk s s stk N A f ==⨯=N锚栓钢材破坏受拉承载力分项系数:锚栓钢材破坏时受拉承载力设计值:,,,29000145002.0Rk sRd sRS NN N γ===N >h SdN=2216 N锚栓钢材受拉承载力满足规范要求! 2、混凝土锥体受拉破坏承载力 锚固区基材为开裂混凝土。
单根锚栓理想混凝土锥体破坏时的受拉承载力标准值:= N混凝土锥体破坏情况下,确保每根锚栓受拉承载力标准值的临界间距: ,33(9030)180mm cr Nef s h '==⨯-=混凝土锥体破坏情况下,确保每根锚栓受拉承载力标准值的临界边距: , 1.5 1.5(9030)90mm cr N ef c h '==⨯-= 基材混凝土劈裂破坏的临界边距: ,22(9030)120mm cr spef c h '==⨯-=则,c 1=150 mm >,90cr N c =mm ,取c 1=90 mm 边距c 对受拉承载力降低影响系数:,,900.70.30.70.390s N cr Nc c ψ=+=+⨯=表层混凝土因密集配筋的剥离作用对受拉承载力降低影响系数:,90300.50.5200200efre Nh ψ-=+=+=荷载偏心对受拉承载力的降低影响系数:,,11 1.012/120ec N N cr Ne s ψ===++⨯其中,0Ne =开裂混凝土, 1.0ucr N ψ=单根锚栓受拉,混凝土理想化破坏锥体投影面面积:0222,,18032400mm c N cr NA s === s 1=100 mm <,取,180cr N smm =s 1=100 mms 2=200 mm >,180cr Ns mm =,取s 2=180 mmc 1=150 mm >,90mm cr Nc=,取c 1=90 mm ,c 2=90 mm群锚受拉,混凝土破坏锥体投影面面积,c N A :,11,22,(c 0.5)(0.5)c N cr N cr N A s s c s s =++++(901000.5180)(901800.5180)=++⨯++⨯=100800 mm 2混凝土锥体破坏时的受拉承载力分项系数,, 2.15Rc N γ=群锚混凝土锥体受拉破坏时的受拉承载力标准值:,0,,,,,,0,c N Rk c Rk cs N re N ec N ucr N c NA N NAψψψψ=1008008248.64 1.00.8 1.0 1.032400=⨯⨯⨯⨯⨯ = N群锚混凝土锥体受拉破坏时的受拉承载力设计值:,,,20529.959548.812.15Rk cRd c Rc NN N γ===N >N=5544 N混凝土锥体受拉承载力满足规范要求! 3、混凝土劈裂破坏承载力基材混凝土劈裂破坏的临界边距: ,22(9030)120mm cr spef c h '==⨯-=则,c 1=150 mm >,120mm cr sp c =,取c 1=120 mm ,c 2=120 mm,,22120240mm cr sp cr sp s c ==⨯=s 1=100 mm <,240cr sp smm =,取s 1=100 mms 2=200 mm >,240cr sps mm =,取s 2=200 mm0222,,24057600mm c N cr spA s === ,11,22,(c 0.5)(0.5)c N cr sp cr sp A s s c s s =++++(1201000.5240)(1202000.5240)=++⨯⨯++⨯=149600 mm 2构件厚度h 对劈裂承载力的影响系数:2233h,250()()2260spef h h ψ==⨯=>,取h, 1.5sp ψ= 单根锚栓理想混凝土锥体破坏时的受拉承载力标准值:,0 3.0(30)Rk c efN h =-1.53.0(9030)=⨯- = N群锚混凝土锥体受拉破坏时的受拉承载力标准值:,0,,,,,,0,c N Rk c Rk cs N re N ec N ucr N c NA N NAψψψψ=1496008248.64 1.00.8 1.0 1.057600=⨯⨯⨯⨯⨯ = N混凝土劈裂破坏受拉承载力标准值:,,, 1.517138.8425708.26Rk sp h sp Rk c N N ψ==⨯=N混凝土劈裂破坏受拉承载力设计值:,,/25708.26/2.1511957.33Rd sp Rk sp Rsp N N γ===N >N=5544 N混凝土劈裂破坏承载力满足规范要求! 4、锚栓钢材受剪破坏承载力锚栓钢材破坏时的受剪承载力标准值:,0.50.55850014500Rk s s stk V A f ==⨯⨯=N锚栓钢材受剪承载力分项系数:,5001.2/ 1.22.0300Rv s stkyk f f γ==⨯=锚栓钢材破坏时的受剪承载力设计值:,,,/14500/27250Rd s Rk s Rs v V V N γ===>V=2074 N锚栓钢材受剪承载力满足规范要求! 5、混凝土楔形体受剪破坏承载力取c 1=c 2=,90cr Nc =mm混凝土楔形体破坏时的受剪承载力标准值:,00.2 1.51/)Rk cf nom V l d =0.2 1.50.45(60/10)90== N边距比c 2/c 1对受剪承载力的降低影响系数:2s,1900.70.30.70.30.91.5 1.590vc c ψ=+=+⨯=⨯边距与构件厚度比c 1/h 对受剪承载力的提高影响系数:1/31/31, 1.5 1.590()()0.814250h v c h ψ⨯===<1,取, 1.0h v ψ= 剪力与垂直于构件自由边方向轴线之夹角α对受剪承载力的影响系数,v αψ: 因为α=00,因此, 1.0v αψ=。
化学锚栓计算文档编制序号:[KKIDT-LLE0828-LLETD298-POI08]化学锚栓计算:采用四个级斯泰NG-M12×110粘接型(化学)锚栓后锚固,h ef =110mm ,A S =58mm 2, f u =500N/mm 2,f y =300N/mm 2。
荷载大小: N= KN V= KN M=×= KN ·m一、锚栓内力分析1、受力最大锚栓的拉力设计值因为361221 5.544100.166105042250My N n y ⨯⨯⨯-=-⨯⨯∑=556 N >0 故,群锚中受力最大锚栓的拉力设计值:=2216 N2、承受剪力最大锚栓的剪力设计值化学锚栓有效锚固深度:ef h '=ef h -30=60 mm锚栓与混凝土基材边缘的距离c=150 mm <10ef h '=10×60=600 mm ,因此四个锚栓中只有部分锚栓承受剪切荷载。
承受剪力最大锚栓的剪力设计值:2hSd VV ==2074/2=1037 N 二、锚固承载力计算1、锚栓钢材受拉破坏承载力 锚栓钢材受拉破坏承载力标准值: ,5850029000Rk s s stk N A f ==⨯=N锚栓钢材破坏受拉承载力分项系数:锚栓钢材破坏时受拉承载力设计值:,,,29000145002.0Rk sRd sRS NN N γ===N >h SdN=2216 N锚栓钢材受拉承载力满足规范要求! 2、混凝土锥体受拉破坏承载力 锚固区基材为开裂混凝土。
单根锚栓理想混凝土锥体破坏时的受拉承载力标准值:= N混凝土锥体破坏情况下,确保每根锚栓受拉承载力标准值的临界间距:混凝土锥体破坏情况下,确保每根锚栓受拉承载力标准值的临界边距: 基材混凝土劈裂破坏的临界边距:则,c 1=150 mm >,90cr N c =mm ,取c 1=90 mm 边距c 对受拉承载力降低影响系数:,,900.70.30.70.390s N cr Nc c ψ=+=+⨯=表层混凝土因密集配筋的剥离作用对受拉承载力降低影响系数:,90300.50.5200200efre Nh ψ-=+=+=荷载偏心对受拉承载力的降低影响系数:,,111.012/120ec N N cr Ne s ψ===++⨯其中,0Ne =开裂混凝土, 1.0ucr N ψ=单根锚栓受拉,混凝土理想化破坏锥体投影面面积:s 1=100 mm <,取,180cr N smm =s 1=100 mms 2=200 mm >,180cr Ns mm =,取s 2=180 mmc 1=150 mm >,90mm cr Nc=,取c 1=90 mm ,c 2=90 mm群锚受拉,混凝土破坏锥体投影面面积,c N A :=100800 mm 2混凝土锥体破坏时的受拉承载力分项系数,, 2.15Rc N γ=群锚混凝土锥体受拉破坏时的受拉承载力标准值:= N群锚混凝土锥体受拉破坏时的受拉承载力设计值:,,,20529.959548.812.15Rk cRd c Rc NN N γ===N >N=5544 N 混凝土锥体受拉承载力满足规范要求! 3、混凝土劈裂破坏承载力 基材混凝土劈裂破坏的临界边距:则,c 1=150 mm >,120mm cr sp c =,取c 1=120 mm ,c 2=120 mms 1=100 mm <,240cr sp smm =,取s 1=100 mms 2=200 mm >,240cr sps mm =,取s 2=200 mm=149600 mm 2构件厚度h 对劈裂承载力的影响系数:2233h,250()()2260spef h h ψ==⨯=>,取h, 1.5sp ψ= 单根锚栓理想混凝土锥体破坏时的受拉承载力标准值: = N群锚混凝土锥体受拉破坏时的受拉承载力标准值:= N混凝土劈裂破坏受拉承载力标准值:,,, 1.517138.8425708.26Rk sp h sp Rk c N N ψ==⨯=N混凝土劈裂破坏受拉承载力设计值:,,/25708.26/2.1511957.33Rd sp Rk sp Rsp N N γ===N >N=5544 N混凝土劈裂破坏承载力满足规范要求! 4、锚栓钢材受剪破坏承载力锚栓钢材破坏时的受剪承载力标准值:,0.50.55850014500Rk s s stk V A f ==⨯⨯=N锚栓钢材受剪承载力分项系数: 锚栓钢材破坏时的受剪承载力设计值:,,,/14500/27250Rd s Rk s Rs v V V N γ===>V=2074 N锚栓钢材受剪承载力满足规范要求!5、混凝土楔形体受剪破坏承载力取c 1=c 2=,90cr Nc =mm混凝土楔形体破坏时的受剪承载力标准值:= N边距比c 2/c 1对受剪承载力的降低影响系数:边距与构件厚度比c 1/h 对受剪承载力的提高影响系数:1/31/31, 1.5 1.590()()0.814250h v c h ψ⨯===<1,取, 1.0h v ψ= 剪力与垂直于构件自由边方向轴线之夹角α对受剪承载力的影响系数,v αψ: 因为α=00,因此, 1.0v αψ=。
化学锚栓计算:采用四个5.6级斯泰NG-M12×110粘接型(化学)锚栓后锚固,h ef=110mm,A S=58mm2,f u=500N/mm2 ,f y=300N/mm2。
荷载大小:N=5.544 KNV=2.074 KNM=2.074×0.08=0.166 KN·m一、锚栓内力分析1、受力最大锚栓的拉力设计值因为361221 5.544100.166105042250My N n y ⨯⨯⨯-=-⨯⨯∑=556 N >0 故,群锚中受力最大锚栓的拉力设计值:12i h Sd My NN n y =+∑ 3625.544100.166105042250⨯⨯⨯=+⨯⨯ =2216 N2、承受剪力最大锚栓的剪力设计值化学锚栓有效锚固深度:ef h '=ef h -30=60 mm锚栓与混凝土基材边缘的距离c=150 mm <10ef h '=10×60=600 mm ,因此四个锚栓中只有部分锚栓承受剪切荷载。
承受剪力最大锚栓的剪力设计值:2hSd VV ==2074/2=1037 N 二、锚固承载力计算 1、锚栓钢材受拉破坏承载力锚栓钢材受拉破坏承载力标准值: ,5850029000Rk s s stk N A f ==⨯=N 锚栓钢材破坏受拉承载力分项系数:锚栓钢材破坏时受拉承载力设计值:,,,29000145002.0Rk sRd s RS NN N γ===N >h SdN=2216 N锚栓钢材受拉承载力满足规范要求! 2、混凝土锥体受拉破坏承载力 锚固区基材为开裂混凝土。
单根锚栓理想混凝土锥体破坏时的受拉承载力标准值:=8248.64 N混凝土锥体破坏情况下,确保每根锚栓受拉承载力标准值的临界间距: ,33(9030)180mm cr Nef s h '==⨯-=混凝土锥体破坏情况下,确保每根锚栓受拉承载力标准值的临界边距: , 1.5 1.5(9030)90mm cr N ef c h '==⨯-= 基材混凝土劈裂破坏的临界边距:,22(9030)120mm cr spef ch '==⨯-=则,c 1=150 mm >,90cr N c =mm ,取c 1=90 mm 边距c 对受拉承载力降低影响系数:,,900.70.30.70.390s N cr Nc c ψ=+=+⨯=1.0表层混凝土因密集配筋的剥离作用对受拉承载力降低影响系数:,90300.50.5200200efre Nh ψ-=+=+=0.8荷载偏心对受拉承载力的降低影响系数:,,111.012/120ec N N cr Ne s ψ===++⨯其中,0Ne =开裂混凝土, 1.0ucr N ψ=单根锚栓受拉,混凝土理想化破坏锥体投影面面积:0222,,18032400mm c N cr NA s ===s 1=100 mm <,取,180cr N s mm =s 1=100 mms 2=200 mm >,180cr Ns mm =,取s 2=180 mmc 1=150 mm >,90mm cr N c =,取c 1=90 mm ,c 2=90 mm群锚受拉,混凝土破坏锥体投影面面积,c N A :,11,22,(c 0.5)(0.5)c N cr N cr N A s s c s s =++++(901000.5180)(901800.5180)=++⨯++⨯=100800 mm 2混凝土锥体破坏时的受拉承载力分项系数,, 2.15Rc N γ=群锚混凝土锥体受拉破坏时的受拉承载力标准值:,0,,,,,,0,c N Rk c Rk cs N re N ec N ucr N c NA N NAψψψψ=1008008248.64 1.00.8 1.0 1.032400=⨯⨯⨯⨯⨯=20529.95 N群锚混凝土锥体受拉破坏时的受拉承载力设计值:,,,20529.959548.812.15Rk cRd c Rc NN N γ===N >N=5544 N混凝土锥体受拉承载力满足规范要求! 3、混凝土劈裂破坏承载力基材混凝土劈裂破坏的临界边距:,22(9030)120mm cr spef ch '==⨯-=则,c 1=150 mm >,120mm cr sp c =,取c 1=120 mm ,c 2=120 mm,,22120240mm cr sp cr sp s c ==⨯=s 1=100 mm <,240cr sp s mm =,取s 1=100 mms 2=200 mm >,240cr spsmm =,取s 2=200 mm0222,,24057600mm c N cr spA s === ,11,22,(c 0.5)(0.5)c N cr sp cr sp A s s c s s =++++(1201000.5240)(1202000.5240)=++⨯⨯++⨯=149600 mm 2构件厚度h 对劈裂承载力的影响系数:2233h,250()()2260spef h h ψ==⨯=1.631>1.5,取h, 1.5sp ψ=单根锚栓理想混凝土锥体破坏时的受拉承载力标准值:,0 3.0(30)Rk c efN h =-1.53.0(9030)=⨯- =8248.64 N群锚混凝土锥体受拉破坏时的受拉承载力标准值:,0,,,,,,0,c N Rk c Rk cs N re N ec N ucr N c NA N NAψψψψ=1496008248.64 1.00.8 1.0 1.057600=⨯⨯⨯⨯⨯=17138.84 N混凝土劈裂破坏受拉承载力标准值:,,, 1.517138.8425708.26Rk sp h sp Rk c N N ψ==⨯=N混凝土劈裂破坏受拉承载力设计值:,,/25708.26/2.1511957.33Rd sp Rk sp Rsp N N γ===N >N=5544 N混凝土劈裂破坏承载力满足规范要求! 4、锚栓钢材受剪破坏承载力锚栓钢材破坏时的受剪承载力标准值:,0.50.55850014500Rk s s stk V A f ==⨯⨯=N锚栓钢材受剪承载力分项系数:,5001.2/ 1.22.0300Rv s stkyk f f γ==⨯=锚栓钢材破坏时的受剪承载力设计值:,,,/14500/27250Rd s Rk s Rs v V V N γ===>V=2074 N锚栓钢材受剪承载力满足规范要求! 5、混凝土楔形体受剪破坏承载力取c 1=c 2=,90cr Nc=mm混凝土楔形体破坏时的受剪承载力标准值:,00.21.51/)Rk c f nom V l d =0.2 1.50.45(60/10)90==10285.86 N边距比c 2/c 1对受剪承载力的降低影响系数:2s,1900.70.30.70.30.91.5 1.590v c c ψ=+=+⨯=⨯边距与构件厚度比c 1/h 对受剪承载力的提高影响系数:1/31/31, 1.5 1.590()()0.814250h v c h ψ⨯===<1,取, 1.0h v ψ= 剪力与垂直于构件自由边方向轴线之夹角α对受剪承载力的影响系数,v αψ: 因为α=00,因此, 1.0v αψ=。
荷载偏心对群锚受剪承载力的降低影响系数,ec v ψ:ec,1110.62828012/31390v v e c ψ===⨯++⨯未开裂混凝土及锚固区配筋对受剪承载力的提高系数,ucr v ψ:, 1.0ucr v ψ=单根锚栓受剪,混凝土破坏楔形体在侧面的投影面面积:022,14.5 4.59036450c V A c ==⨯=mm2群锚受剪,混凝土破坏楔形体在侧面的投影面积:,122(1.5)(1.59020090)250106250c V A c s c h =++=⨯++⨯=mm 2群锚混凝土楔形体破坏时的受剪承载力标准值:,0,,,,,,0,c V Rk c Rk cs V h V ec V ucr V c VA V VAψψψψ=10625010258.860.9 1.0 1.00.628 1.036450=⨯⨯⨯⨯⨯⨯=16901.79 N混凝土楔形体受剪承载能力分项系数:Re, 1.8v γ=群锚混凝土楔形体破坏时的受剪承载力设计值:,,,/16901.79/1.89389Rd c Rk c Rc V V V γ===N >V=2074 N混凝土楔形体受剪承载力满足规范要求! 6、混凝土剪撬破坏承载能力因为903060mm ef h =-=≥60 mm ,故取K=2.0。
混凝土剪撬破坏承载能力标准值:R,, 2.017138.8434277.68k cp Rk c V kN ==⨯=N混凝土剪撬破坏承载能力分项系数:R 1.8cp γ=混凝土剪撬破坏承载能力设计值:R ,,/34277.68/1.819043.16d cp Rk cp Rcp V V γ===N >V=2074 N混凝土剪撬破坏承载力满足规范要求! 7、拉剪复合受力承载力植筋钢材破坏:2222,,22161037()()()()0.044145007250h h Sd Sd Rd s Rd s N V N V +=+=<1.0 混凝土破坏:1.5 1.5 1.5 1.5,,55442074()()()()0.5469548.819389.88h h Sd Sd Rd s Rd s N V N V +=+=<1.0 综上所述,后置埋件的承载力满足规范要求!>> As=58 f_stk=500N_RKs=As*f_stk f_yk=300gamma_RSN=(1.2*f_stk)/f_yk N_RdS=N_RKs/gamma_RSNh_ef=110h_ef1=h_ef-30f_cuk=35N_RKc0=(3.0*(h_ef-30)^1.5)*sqrt(f_cuk)S_crN=3*h_ef1C_crN=1.5*h_ef1C_crsp=2*h_ef1C=120psi_sN=0.7+(0.3*c)/C_crNpsi_reN=0.5+h_ef1/200e_N=0s_crN=180psi_ecN=1/(1+(2*e_N)/s_crN)psi_ucrN=1S_crN=150A_cN0=S_crN^2s_1=120s_2=120s_2=120c_1=120c_2=120A_cN=(c_1+s_1+0.5*S_crN)*(c_2+s_2+0.5*S_crN)gamma_RcN=2.15N_RKc=(N_RKc0*A_cN*psi_sN*psi_reN*psi_ecN*psi_ucrN)/A_cN0 N_Rdc=N_RKc/gamma_RcNc_crsp=2*h_ef1s_crsp=2*c_crsps_1=120s_2=120A_cN0=s_crsp^2A_cN=(c_1+s_1+0.5*s_crsp)*(c_2+s_2+0.5*s_crsp)h=500psi_hsp=(h/(2*h_ef))^(2/3)N_RKc0=(3.0*(h_ef-30)^1.5)*sqrt(f_cuk)N_RKc=(N_RKc0*A_cN*psi_sN*psi_reN*psi_ecN*psi_ucrN)/A_cN0 N_RKsp=psi_hsp*N_RKcgamma_Rsp=2.15N_Rdsp=N_RKsp/gamma_Rspgamma_Rsv=(1.2*f_stk)/f_ykV_Rds=N_RdS/gamma_Rsvc_1=C_crNc_2=C_crNl_f=90d_nom=12V_RKc0=0.45*sqrt(d_nom)*(90/60)^(0.2)*sqrt(f_cuk)*c_1^(1.5) psi_sv=0.7+(0.3*c_2)/(1.5*c_1)psi_hv=((1.5*c_1)/h)^(1/3)psi_alphav=1.0e_v=225psi_ecv=1/(1+(2*e_v)/(3*c_1))psi_ucrv=1A_cV0=4.5*(c_1^2)A_cV=(1.5*c_1+s_2+c_2)*hV_RKc=(V_RKc0*A_cV*psi_sv*psi_hv*psi_ecv*psi_ucrv)/A_cV0 gamma_Rev=1.8V_Rdc=V_RKc/gamma_Revh_ef=110K=2V_RKcp=K*N_RKcgamma_Rcp=1.8V_Rdcp=V_RKcp/gamma_RcpN_Sdh=444.83V_Sdh=4846beta=((N_Sdh/N_RdS)^2)+((V_Sdh/V_Rds)^2)beta_1=((N_Sdh/N_RdS)^(3/2))+((V_Sdh/V_Rds)^(3/2))As =58f_stk =500N_RKs =29000f_yk =300gamma_RSN =2N_RdS =14500 >N_ Sdh = 1.2376e+03 (锚栓钢材受拉破坏承载力)h_ef =110h_ef1 =80f_cuk =35N_RKc0 =1.2700e+04S_crN =C_crN =120C_crsp =160C =120psi_sN =0.9750psi_reN =0.9000e_N =s_crN =180psi_ecN =1psi_ucrN =1S_crN =150A_cN0 =22500s_1 =120s_2 =120s_2 =120c_1 =120c_2 =120A_cN =99225gamma_RcN =2.1500N_RKc =4.9145e+04N_Rdc =2.2858e+04 >N_ Sdh = 1.2376e+03 (混凝土锥体受拉破坏承载力)c_crsp =160s_crsp =s_1 =120s_2 =120A_cN0 =102400A_cN =160000h =500psi_hsp =1.7286N_RKc0 =1.2700e+04N_RKc =1.7412e+04N_RKsp =3.0099e+04gamma_Rsp =2.1500N_Rdsp =1.4000e+04 >N_ Sdh = 1.2376e+03 (混凝土劈裂破坏承载力)gamma_Rsv =2V_Rds =7250> V_sdh = 5.9934e+03 (锚栓钢材受剪破坏承载力)c_1 =120c_2 =120l_f =90d_nom =12V_RKc0 =1.3147e+04psi_sv =0.9000psi_hv =0.7114psi_alphav =1e_v =psi_ecv =0.4444psi_ucrv =1A_cV0 =64800A_cV =210000V_RKc =1.2124e+04gamma_Rev =1.8000V_Rdc =6.7353e+03> V_sdh = 5.9934e+03 (混凝土碶形体受剪破坏承载力)h_ef =110K =2V_RKcp =3.4825e+04> V_sdh = 5.9934e+03 (混凝土剪撬破坏承载力标准值)gamma_Rcp =1.8000V_Rdcp =1.9347e+04N_Sdh =444.8300V_Sdh =4846beta =0.4477<1 (拉剪复合承载力:植筋破坏)beta_1 =0.5518<1 (拉剪复合承载力:混凝土破坏)综上所述,后置埋件的承载力满足规范要求。