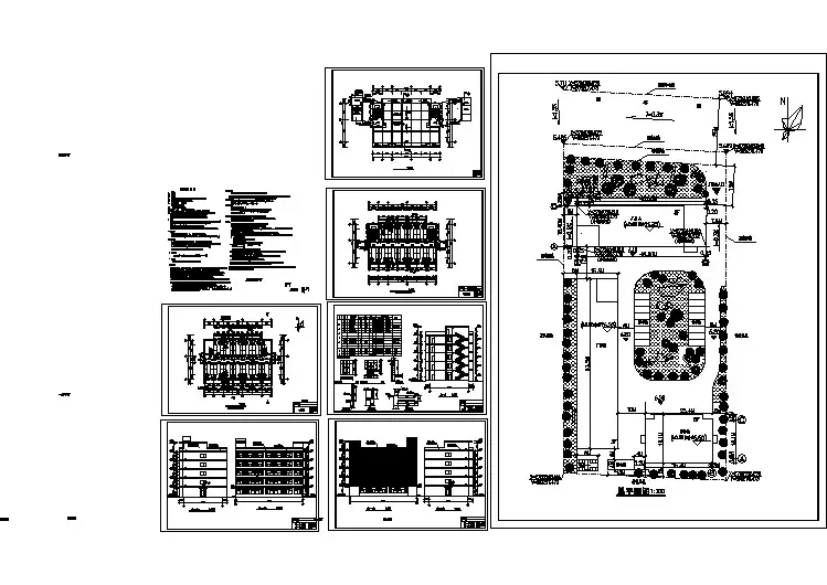
北京舞蹈学院校园平面图
- 格式:doc
- 大小:210.00 KB
- 文档页数:1
校园广场绿地设计说明一.概况:在东湖高新技术开发区,校区占地面积684亩、教学设施齐全、校园环境优雅、能容纳近1万人规模的新校区,极大地改善了办学条件,为学院的可持续发展奠定了良好基础。
为学生创造一个良好的休闲活动场所并为学校的发展打下良好的环境基础。
广场占地面积约7000平方米。
二.校园广场性质规划指导思想:1广场性质:根据广场规划范围所处的地理位置及环境特征,以美化校园景观,改善整个校园的环境质量,该广场的性质定为:以植物景观为特色,中央主景区,集休憩娱乐、晨读区。
功能为一体,具有浓郁奥运文化特征的广场。
2、规划指导思想以校园规划为依据,充分发挥校园特有的自然条件,结合校园现状以人为本,创造出时代特色鲜明,满足各功能要求的校园广场。
三.、基本原则1结合现状,合理布局调整,功能分区明确,创造一个功能完备、气氛良好,井然有序的文化性校园绿地广场。
坚持以绿为主,注重保护校园生态环境,以植物造景为主。
2文化内涵是大学校园文化广场环境设计的魅力所在。
校园文化广场要营造人们活动与交往的场所空间,校园文化广场设计与周围整体环境,在空间、比例上的统一与协调。
四.设计构思:1. 人性化氛围:作为校园的主要成员,“人”永远是居住区设计中的焦点。
在设计中,一切从人出发,以人的视觉,人的心理,人的需求出发,充分重视人的心理体验,富有人情味。
创造出更完善宜人的校园生活环境,使广场与环境相互群映,融为一体。
2. 广场设计线索与出发点:由于道路的蜿蜒变化,步移景异之感油然而生。
绿化景观系统同步行系统叠合在一起,人行于其间,随着视点的变化,处处见景。
五:分区布置说明:1. 中央主景区:中央主景区位于校园大门入口与广场入口景观视线上,由较大面积的铺装广场组成,是同学们在校园集散地方,在本区铺装中,可以看到由铺装构成校徽图案。
以及有“祥云图案铺装。
本区设计中有雕塑---北京2008奥运火炬模型,构成了广场的主要景观。
2 晨读区:位于教学楼,由花架,蛭石,园桌,花坛,组合成,供同学们晨读,静心。
多元组合——首都师范大学良乡新校区艺术楼创作体验Multi-dimensional IntegrationThe Creation Experience of the Art Building of Capital Normal University's new campus in Liangxiang文/顾静 北京建工建筑设计研究院 康菁 中国京冶工程技术有限公司地点/北京房山设计/2006年/竣工/2010年2014.11 N o .128070A R C H I T E C T U R E & C U L T U R E 建筑与文化 品鉴·手记校园规划及建筑区位示意1 西南向外景2 西北向外景12071一、艺术楼概要首都师范大学良乡校区位于北京西南良乡高教园区内。
园区有首都师范大学(以下简称首师大)、北京工商大学等六所高等院校,首师大与北京工商大学良乡分校隔路相望,占地65.56公顷,东、南、西三个方向分别与良乡东环路、白杨东路及良乡东区十四号路相接。
艺术楼是依据学校总体规划选择在南部教学模块内(45mx45m)(见建筑区位图)。
该模块靠近校区南门,位于校区南北轴线东侧,对塑造新的校园空间形象将起到无足轻重的作用。
毫无疑问,艺术楼建成后应该成为首师大新校区的艺术创新中心和精神高地,但也应该承认,该项目45米×45米的模块限制和24米的限高的确为这个10400平方米的项目带来了诸多的制肘。
新校区艺术楼在校方对中标方案(见图5)不满意的前提下委托我们进行二次设计,项目建成后得到校方和师生的认可和好评。
在此次艺术楼的创作实践中,通过将建筑创作的要素如文脉、功能、空间结构、材料、色彩等进行组合和重构,使这次创作的过程和结果都引发了本人一些创作上的感想。
二、组合组合一:文脉——总体规划与单体之间的组合由于艺术楼其自身功能的特点,其空间与平面形态都应该以一种积极的,浪漫的姿态介入到新校区的规划网络中,以打破现有规划的过分规整,凸显其独特性、可识别性,为校区创造一种新的活力契机。
北京北京大学北航清华大学人民大学北理工北科大北师大北京交大北林中国农大对外经贸北邮北京化工传媒大学中国政法中国地大(北京).. 北语中科院北方工业大学.. 中国石油大学中国公安大学..北京..华北电力中央财经北京信息科技大学..中央民族( 首经贸北京工业大学..北京科技职业学院.. 北外首师大中国矿大(北京)..北二外北京工商大学..北京印刷学院.. 中华女院北服北京体育大学.. 中青政北京中医药北京吉利大学.. 北京联大北京电子科技学院..首都医科大北京物资中央美院北影北京城市学首体院..北京建筑工程学院.. 外交学院北京石油化工学院..装甲兵工程学院.. 国际关系学院..上海上海交大同济大学复旦大学华东理工华东师大上海财经东华大学上海大学上外华东政法上海师大上海理工上海海事上海电力上海体院上海水产第二军医大学..黑龙江哈工大哈工程黑大东北农大大庆石油哈理工哈师大东北林大哈尔滨商大八一农垦哈尔滨医科大.. 黑龙江科院黑工程佳木斯大学大庆师范学院..齐齐哈尔大学.. 牡丹江师范哈尔滨学院牡丹江医学院.. 黑龙江中医药.. 黑河学院东方学院哈尔滨体院绥化学院齐齐哈尔医学院..吉林吉林大学东北师大长春理工长春税务北华大学吉林师范长春工大吉林建筑东北电力长春大学吉林农大吉林化工延边大学长春师范学院.. 长春工程学院..吉林艺术学院.. 通化师范白城师范学院..吉林工程师范.. 吉林华侨外语.. 吉林医药学院..东北师范大学人文. 长春中医药吉林农科院辽宁大连理工东北大学辽宁大学东北财经沈阳师范辽宁师大沈阳建筑大连海事大连大学辽宁石化大连交大沈阳理工沈阳工大中国刑警学院.. 大外沈阳农大沈阳大学大连轻工大连民族大连东软信息学院.. 辽宁科技大学..渤海大学辽宁工学院辽宁工程技术大学..沈阳化工沈阳航空学院.. 大连水产中国医科大辽宁警官高等专科.. 沈阳药科沈阳工程辽宁工大辽宁外经贸大连医大鞍山科大鞍山师大锦州医学院辽宁中医药沈阳体院鲁迅美院辽东学院沈阳音乐学院..渤海大学文理学院.. 辽宁科技学院.. 沈阳医学院大连职业技术学院.. 辽宁交通高等专科..天津天津大学南开大学河北工大天津工大天津理工天津师大天津科大天津财经天津商学院天外天津建院天津医大天津工程师范.. 天津农院天津体院天津中医药安徽中国科大安徽大学合肥工大安徽财经安徽理工安徽师大安徽农大安徽建工安徽工程科技..安徽工业安徽医科大皖南医学院安徽科技滁州职业技术学院.. 巢湖学院合肥学院滁州学院阜阳师范淮北煤炭师范.. 皖西学院江苏南航南京信息工程大学.. 中国矿大(徐州)..南京师大东南大学河海大学南京大学苏州大学南京财经南京林大南京理工江南大学江苏大学南邮南京工程扬州大学南京农大盐城师范盐城工学院南京医科大南京工大江苏科大淮阴师范南通大学南京审计学院.. 常州工学院中国药科大淮海工学院江苏技术师院.. 徐州师大金陵科技学院.. 常熟理工淮阴工学院南京中医药江苏警官学院.. 苏州科院晓庄学院江苏工业三江学院中国传媒大学南广.. 扬州职业大学.. 苏州职业大学..徐州工程常州信息职业技术.. 徐州医学院苏州科技大学.. 南京信息职业技术.. 南京工业职业技术.. 浙江浙江大学温州大学浙江工商嘉兴学院宁波大学浙江工大浙江师大中国计量浙江理工杭州电子科大.. 浙江林院浙江传媒杭州师范诺丁汉大学温州医学院绍兴文理学院.. 浙江大学城市学院.. 湖州师范浙江科技台州学院浙江财经浙江海洋万里学院丽水学院浙江公安高等专科..陕西西安交大长安大学西安电子科大..西北农林科技.. 陕西师大西北工大西北大学西安翻译学院.. 西邮宝鸡文理西安科大西安理工西安建筑科大.. 西京学院西外西安工程大学.. 西北政法陕西科大延安大学西安外事西安工大西安石油西安财经陕西理工渭南师范西安文理学院.. 西安思源学院..欧亚学院杨凌职业技术学院.. 陕西工业职业技术..商洛学院西安美院延安学院咸阳师范榆林学院第四军医大学..西安体院空军工程大学.. 西安航空技术高等.. 湖北华中科大武汉大学长江大学华中农大武汉理工中国地大(武汉).华中师大中南财经政法. 湖北经济学院..武汉科大湖北工大武汉工大武汉科技学院.. 中南民族大学.. 三峡大学湖北大学江汉大学湖北教育学院..武汉体院咸宁学院黄石理工孝感学院武汉工业黄冈师院武汉生物工程学院.. 湖北汽院武汉海军工程大学广东华南理工中山大学暨南大学华南农大华南师大深圳大学广东工业广东外语外贸.. 私立华联学院.广东海洋湛江师范吉林大学珠海学院.广东外语艺术职业.. 广州大学北京师范大学珠海..广东工业大学华立.. 电子科技大学中山.. 东莞理工顺德职业技术学院.. 南方医科广东金融广东轻工职业技术. 五邑大学广东技术师范..广东科学技术职业. 嘉应学院广州体院广州康大职业技术.. 茂名学院汕头大学广州中医药大学..湖南中南大学湖南大学长沙理工湘潭大学湖南师大湖南科大湖南农大湖南科技学院.. 湖南人文科技..中南林业科大. 南华大学长沙学院湖南工大湖南商学院吉首大学邵阳学院长沙民政职业技术.. 湖南涉外经济..湖南工业职业技术.. 湖南理工长沙南方职业技术..湖南民族职业学院.. 湘南学院衡阳师院湖南城市湖南文理湖南中医药国防科学技术大学.. 湖南财经高等专科.. 湖南工程湖南工学院怀化学院甘肃兰州大学西北民大兰州交大兰州理工西北师大兰州商院甘肃农大陇东学院天水师院甘肃政法学院.. 兰州城市学院.. 河西学院兰州工业高等专科..四川四川大学电子科大西南交大四川农大西南民族大学.. 四川师大西南科大西南财经成都理工成都信息工程大学.. 西华师大西南石油乐山师院成都理工大学广播.. 中国民航飞行学院..四川理工宜宾学院成都大学成都体院四川交通职业技术.. 电子科技大学成都..西华大学成都中医药四川音乐学院..四川外语学院成都.. 泸州医学院内江师范成都纺织高等专科.. 西昌学院绵阳师范川北医学院攀枝花学院山东山东大学山东农大中国石油大学华东..山东科大济南大学中国海洋大学..曲阜师大青岛大学泰山医学院山东建筑大学.. 山东理工鲁东大学山东师大聊城大学青岛理工烟台大学南山学院临沂师范青岛科大山东财政山东经济学院..莱阳农学院菏泽学院滨州学院山东工商泰山学院潍坊学院滨州医学院山东交通山东中医药山东轻工枣庄学院济宁医学院淄博职业学院.. 德州学院潍坊医学院哈工大(威海).. 山东艺院山东警院滨海学院山东大学威海分校.. 山东体院威海职业(技术)学.. 山东水利职业学院.. 山东工美泰山职业技术学院.. 山东英才职业技术.. 中国石油大学(华..日照职业技术学院.. 山东商业职业技术.. 山东省青岛酒店管..德州科技职业学院.. 潍坊教育学院.. 青岛远洋船员学院..烟台职业学院.. 山东政法学院.. 东营职业学院..山东电力高等专科..福建厦门大学福州大学集美大学福建农林福建师大华侨大学仰恩大学漳州师范莆田学院厦门理工泉州师范福建信息职业技术..福建工程厦门南洋学院.. 黎明职业大学..龙岩学院福州职业技术学院.. 闽江学院曲阜师大青岛大学泰山医学院河南郑州大学河南大学河南师大南阳理工信阳师院河南理工安阳工学院河南工业河南农大郑州航空工业.. 河南科大河南科技学院..华北水利水电.. 黄淮学院河南财经黄河科技郑州轻工南阳师院许昌学院安阳师院中原工学院平顶山工学院.. 商丘师院平原大学新乡医学院洛阳师院焦作大学洛阳工业高等专科.. 河南机电高等专科.. 郑州大学西亚斯国..开封大学周口师院黄河水利职业技术..解放军信息工程.. 洛阳大学新乡师范高等专科..中州大学平顶山学院河南经贸职业学院.. 重庆重庆大学西南大学长江师范学院.西南政法重庆邮电大学.. 重庆工商四川外国语重庆三峡学院. 重庆师大重庆科技学院.. 重庆交大重庆工学院重庆医大四川美院重庆文理第三军医大学..云南云南大学昆明理工云南财经云南师大云南中医学院.. 云南农大西南林学院楚雄师院河北河北大学河北经贸燕山大学河北农业大学.. 华北电力大学(保.. 河北师大河北建工河北科技石家庄铁院石家庄经院河北工程河北科师河北理工保定师范专科学校.. 河北医科中央司法警官学院.. 华北煤炭医学.. 河北农大北方学院石家庄学院石家庄信息工程职..华北科技承德石油高等专科.. 唐山学院防灾科技学院.. 东北大学秦皇岛校.. 秦皇岛职业技术学..邢台学院华北航工衡水学院江西南昌大学江西师大江西财经蓝天学院九江学院江西旅游商贸职业..华东交通南昌航空工业学院.. 江西科技师范学院..江西农大南昌理工东华理工江西理工井冈山学院景德镇陶瓷学院..宜春学院上饶师范江西赣江职业技术..江西外语外贸职业. 江西服装职业技术.. 南昌工程江西中医学院.. 新余高等专科学校.. 赣南师范学院..江西现代职业技术.. 江西财经职业学院.. 江西工业职业技术..江西城市学院.. 江西渝州科技职业.. 江西大宇学院..江西司法警官职业.. 江西交通职业技术.. 江西科技职业学院.. 贵州贵州大学贵州民族贵州财经贵州师大贵阳学院广西广西大学桂林工学院广西民族大学..广西师范大学.. 桂林电子科大.. 广西工学院广西职业技术学院.. 广西师范学院..内蒙古内蒙古科大内蒙古工业大学.. 内蒙古师大内蒙古民族大学.. 内蒙古大学内蒙古农大宁夏。
北京舞蹈学院是世界著名舞蹈学府,六十年来为国内外培养了大批舞蹈人才。
北京舞蹈学院继续教育学院属北京舞蹈学院二级学院,与北京舞蹈学院实行教学资源的共享,承担着北京舞蹈学院的学历继续教育(业余函授)和非学历继续教育(培训)的重任,学历继续教育设有舞蹈学、舞蹈编导和舞蹈表演等专业,非学历继续教育常年在北京及全国各地开办不同类型的培训班和研修班,以满足不同层次学员的学习需求,为广大舞蹈工作者和爱好者提供了一流的再教育平台,其教学质量和成果得到社会各界人士广泛好评。
我院四季均举办各专业的培训班(简章发布时间:寒假短训班11月发布,春季进修班12月发布,暑期进修班5月发布,秋季进修班6月发布以及不定期短期培训招生信息会及时发布,请关注北京舞蹈学院官网)。
现特别推出2018年秋季进修课程系列。
凡从事专业舞蹈或业余舞蹈工作的人员均可参加,我们热情欢迎您迈进“舞蹈家摇篮”。
1文档来源为:从网络收集整理.word版本可编辑.报名流程及注意事项:一、身体符合舞蹈专业要求,患有包括但不限于下列疾病者,学校可以不予录取:严重心脏病(先天性心脏病经手术治愈)患者,心肌病、高血压病患者,哮喘,恶性肿瘤、慢性肾炎、尿毒症患者;神经系统疾病(含精神病)及药物依赖患者;慢性肝炎病人并且肝功能不正常者(肝炎病原携带者但肝功能正常者除外);结核病患者;急性骨折者、运动系统疾病及曾经动过较大手术者等不适宜参加大量肢体活动的疾病患者。
如学生隐瞒病史,在就读期间发生相关的意外情况,由本人承担全部责任。
二、报名日期:2018年6月11日开始登录网站报名,截至8月5日报名网络系统关闭,额满为止。
三、招生网址:.cn/,进入“非学历报名入口”选择专业报名,报名表中照片请选择证件照,报名成功后请打印缴费记录并在开课时携带,开课前请在报名系统查看个人分班情况及课表。
四、咨询电话:、、。
五、咨询时间:上午:9:00至11:30 下午:2:00至4:30(节假日休息)。
建筑设计Architectural Design 建筑技术开发Building Technology Development第46卷第23期2019年12月北京舞蹈学院教学综合楼及剧场的建筑方案设计卓培(北京城建设计发展集团股份有限公司,北京100037)[摘要]以北京舞蹈学院二期工程综合教学楼为例,从方案设计开始就要协调“剧场的舞台工艺技术要求”与“办公教学楼的使用功能要求"的矛盾。
用建筑师的手法准确地表达出剧场工艺的核心需求,解决剧场及教学楼的空间布局问题。
[关键词]剧场;剧场声学设计;剧场建筑工艺设计;模块化设计;综合教学楼[中图分类号]TU242.2[文献标志码]B[文章编号]1001-523X(2019)23-0030-02Architectural Design of Teaching Complex Building andTheatre of Beijing Dance AcademyZhuo Pei[Abstract]This project is a comprehensive teaching building of Beijing Dance Academy Phase II Project.The success or failure of theater design is undoubtedly the key to the final success or failure of the project.From the beginning of the design,architects should coordinate the contradiction between"stage technology requirements of theatre"and"functional requirements of office and teaching buildings".By means of architects,we can accurately express the core needs of theatre technology and solve the space layout of theatre and teaching building.[Keywords]theatre;theatre acoustic design;theatre architectural process design;modular design;comprehensive teaching building1项目概况本项目为北京舞蹈学院二期工程综合教学楼,位于学院西南角的预留用地内。
毕业设计题目:成都纺专有线电视系统(南苑学生宿舍)所属系、部:电子信息与电气工程系年级、专业:电气技术 103 姓名:王雷学号: 201001011046 指导教师:田能炎完成时间: 2013 年 5 月成都纺织高等专科学校电子信息与电气工程系毕业设计(论文)任务书题目名称:成都纺专有线电视系统设计题目性质:□真实题目□虚拟题目√学生学号:201001011046 指导教师:田能炎学生姓名:王雷学生专业:电气技术103成都纺织高等专科学校电子信息与电气工程系2013年2月22 日成都纺织高等专科学校毕业设计任务书开始日期:2013年 2 月 25 日完成日期:2013 年 5 月 20 日答辩日期:2013年 5 月日1、设计目的考核学生对本专业知识的掌握和应用。
通过设计使同学能够了解设计课题的意义、目的。
学会应用所学知识在工作实际中的应用。
会收集资料,查阅有关书籍,充分利用信息网络。
学会利用收集到的资料应用于自己承担的课题或任务。
2、设计题目成都纺专有线电视系统设计3、设计内容和意义通过对成都纺专地形平面图,了解学校房屋分布布局情况以及搂房类型。
确定电视系统前端系统位置,在电视系统前端系统确定后进行线路走向设计,学生宿舍1-7分配系统设计以及学校需安装有线电视的部分建筑物的分配系统设计。
并对所设计的有线电视系统进行可行性进行论证。
论证通过后确定施工方案。
在有线电视系统确定后,应对系统所需的器材设备的性能指标、技术参数有清楚的认识,并确定本系统具体所需的器材设备特点、数量以及价格。
通过有线电视系统设计使学生对本专业知识有了更好的掌握和应用。
为今后的工作打好良好的基础。
4、预期目标能根椐建设单位的要求和实际环境情况对有线电视系统进行设计与施工5、进度要求(共 8 周)第一阶段熟悉承担的设计任务 ( 1 周) 第二阶段收集整理设计资料 ( 2 周) 第三阶段进行科题总体设计 ( 2周) 第四阶段在总体设计的基础上按科题要求进行全面设计 ( 2 周) 第五阶段按学校对毕业设计的要求完善并打印设计课题 ( 1 周) 考勤要求 ( 周)6、推荐书目及资料1、马鸿雁、李惠升。