11 第八章 主梁内力计算
- 格式:ppt
- 大小:587.50 KB
- 文档页数:16
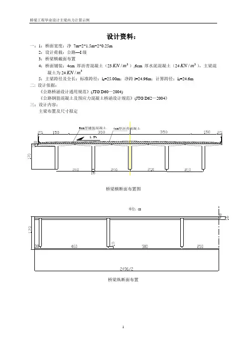
设计资料:一:1:桥面宽度:净 7m+2*1.5m+2*0.25m2:设计荷载:公路—I 级 3:桥梁横截面布置4:桥面铺装:4cm 厚沥青混凝土(233/m KN ),6cm 厚水泥混凝土(243/m KN ),主梁混凝土为243/m KN5:主梁跨径及全长:标准跨径:l b =25.00m ;净跨l=24.96m ;计算跨径:l 0=24.6m 二: 设计依据:《公路桥涵设计通用规范》(JTG D60—2004)《公路钢筋混凝土及预应力混凝土桥涵设计规范》(JTG D62—2004》 三:设计内容:主梁布置及尺寸拟定桥梁横断面布置图桥梁纵断面布置主梁内力计算一、恒载内力计算:1: 桥面铺装和人行道重力;人行道和栏杆的重力作用取用 5m KN /;桥面铺装为:m KN /939.252*52372)138.006.0(=+⨯⨯+;为简化计算,将人行道、栏杆和桥面铺装的重力平均分配给各主梁,得: g 2=25.939/5=5.188m KN /;2:横隔梁重力;根据结构尺寸,一块预制横隔梁的体积为:3247.096.018.02)39.147.1(m =⨯⨯+;中主梁有12块横隔梁预制块,而边主梁有6块横隔梁预制块,可将其产生的重力沿主梁纵向均匀分摊,则:中主梁横隔梁产生的重力为:g 1=12*0.247/24.96*24=2.85m KN /; 边主梁横隔梁产生的重力为:g 1’=6*0.247/24.96*24=1.425m KN /; 3:主梁重力;g 01=A*24.96*24=0.5356*1*24=12.854m KN /; 4:一期恒载作用下总重力为:中主梁:g 恒中=2.85+12.854=15.704m KN /; 边主梁:g 恒边=1.425+12.854=14.279m KN /;二、活载内力计算:1:主梁横向分布系数计算:(1) 支点处采用杠杆法,由对称可知只需计算1,2,3号梁。
主梁的内力计算主梁的内力计算包括恒载内力计算和活载内力计算。
根据上述梁跨结构纵、横截面的布置,计算活载作用下的梁桥荷载横向分布系数,求出各主梁控制截面(取跨中、四分点、变化点截面及支点截面)的恒载和最大活载内力,然后再进行主梁内力组合。
一、恒载内力计算1、恒载集度⑴预制梁自重(第一期恒载)①.跨中截面段主梁自重(四分点截面至跨中截面,长7.25m )(1)0.861625.07.25156.165g KN =⨯⨯=②.马蹄抬高与腹板变宽段梁的自重近似计算(长3.7m ) 主梁端部截面面积为A=1.176m 2()(2) 1.17600.8616 3.725.0/294.239g KN =+⨯⨯=③.支点段梁的自重(长3.55m )(3) 1.1760 3.5525.0=104.37g KN =⨯⨯④.横隔梁的自重 中横隔梁体积为:()30.16 1.590.920.240.72/20.120.12/20.219072m ⨯⨯-⨯-⨯= 端横隔梁体积为:()30.25 1.840.80.20.6/20.353m ⨯⨯-⨯=故半跨内横隔梁重量()(4)20.21907210.3532519.7786g KN =⨯+⨯⨯=⑤.主梁永久作用集度()156.16594.239104.3719.7786/14.9825.00/g KN m KN m I =+++= (2)第二期恒载①翼缘板中间湿接缝集度()50.40.1625.0 1.6/g KN m =⨯⨯=②现浇部分横隔梁一片中横隔梁(现浇部分)体积:30.16 1.590.20.05088m ⨯⨯= 一片端横隔梁(现浇部分)体积:30.250.2 1.840.092m ⨯⨯= 故()()630.0508820.09225.0/29.960.2809/g KN m =⨯+⨯⨯=③桥面铺装层6cm 沥青混凝土铺装:0.0612.52317.25/KN m ⨯⨯=将桥面铺装重量均分给五片主梁,则()717.25/5 3.45/g KN m ==④防撞栏:两侧防撞栏均分给五片主梁,则()87.52/53/g KN m =⨯=⑤主梁二期永久作用集度II 1.60.2809 3.4538.3309/g KN m =+++=2、永久作用效用:下面进行永久作用效用计算(参照图1-4),设c 为计算截面至左侧支座的距离,并令/a c l =。
二、 主梁内力计算[1][2][3][4][5]1.恒载集度(1)主梁:10.080.14[0.20 1.5()(2.00.2)]2512.45/2g KN m +=⨯+⨯-⨯= (2)横隔梁 对于边主梁:20.080.1420.20.150.16[(1.3)()525]/21.50.965/222g KN m +-+⎛⎫=-⨯⨯⨯⨯= ⎪⎝⎭对于中主梁:'220.965 1.93/g KN m =⨯=(3)桥面铺装层:30.05 2.1210.08 2.123 6.069/g KN m =⨯⨯+⨯⨯=(4)栏杆和人行道:4 4.52/5 1.8/g KN m =⨯= 作用于边主梁的全部恒载强度:12.450.965 6.069 1.821.284/i g g KN m ==+++=∑作用于中主梁的全部恒载强度:12.03 2.27 6.069 1.822.245/i g g KN m ==+++=∑2.恒载内力的计算边跨弯矩剪力影响线1#及5#梁内力(边跨)跨中弯矩 21121.521.521.2841115.4152424l l M l g KN m =⨯⋅⨯=⨯⨯⨯=⋅ 跨中剪力 20l V =支点剪力 01121.521.284228.2032Q KN =⨯⨯⨯= 1/4跨处弯矩: 131321.521.521.284922.362216216M l l g KN m =⨯⨯⨯=⨯⨯⨯⨯=⋅ 1/4跨处剪力:/4131121.50.7521.28421.50.2521.284114.4022424l Q KN =⨯⨯⨯⨯-⨯⨯⨯⨯=2#、3#及4#梁内力(中间跨) 跨中弯矩 2121.50.521.522.2451285.344244l l M l g KN m =⨯⨯⨯=⨯⨯⨯= 跨中剪力 20l V =支点剪力 01121.522.245239.1342Q KN =⨯⨯⨯= 1/4跨处弯矩: '131321.521.522.245964.008216216M l l g KN m =⨯⨯⨯=⨯⨯⨯⨯=⋅ 1/4跨处剪力:/4131121.50.7520.38521.50.2522.245119.5672424l Q KN =⨯⨯⨯⨯-⨯⨯⨯⨯=3.活载内力1 . 汽车荷载冲击系数主梁横截面图结构跨中处的单位长度量:321.284102169.623/9.81c G m kg m g ⨯===主梁截面形心到T 梁上缘的距离:(11*(200-20)*(11/2)+(150*20)*(150*(1/2)47.40.47411*(200-20)+150*20y cm m ===跨中截面惯性矩:323274*********(20020)11(20020)11(47.4)2015020150(47.4)1221221.14100.11410c I cm m =⨯-⨯+-⨯⨯-+⨯⨯+⨯⨯-=⨯=⨯查表 E 取102.810a p ⨯10223.142.8100.1144.122221.52169.623c c EI f Hz l m π⨯⨯===⨯1.514Hz f Hz ≤≤0.1767ln 0.01570.1767ln 4.120.01570.234f μ=-=⨯-= 所以冲击系数:110.234 1.234μ+=+=2. 汽车荷载作用公路—Ⅰ级均布荷载 10.5/k q KN m =对于集中荷载,当5l ≤时,180/k P KN m =;当50l ≥时,360/k P KN m = 当550l <<时,采用内插法 公路—Ⅱ为公路—Ⅰ级的0.75倍 则0.7510.57.875/k q KN m =⨯= ()21.550.75180360180184.5505k P KN -⎡⎤=⨯+⨯-=⎢⎥-⎣⎦当计算剪力时候 184.5 1.2221.4k PKN =⨯= 计算车道荷载的跨中弯矩、剪力的计算对于双车道,折减系数 1.0ξ= 跨中弯矩影响线如下图3. 跨中弯矩的设计,21121.521.557.782424l l m Ω=⨯⨯=⨯⨯=由于跨中弯矩横向分布系数1#、5#梁最大,所以只需计算1#、5#梁的弯矩,计算如下: 对于1#梁车道均布荷载作用下(1)1,2Mm q cq l kq kμξ=+Ω1.23410.667.87557.78370.584KN m =⨯⨯⨯⨯=⋅ 车道集中荷载作用下1,2(1)kcq lk k P M m P y μξ=+21.51.23410.66184.5807.6704KN m =⨯⨯⨯⨯=⋅ 则,,222370.584807.6701178.254kkl llq P M M M KN m =+=+=⋅跨中人群荷载最大弯矩人群荷载集度313or P KN =⨯=1,20.675357.78117.004l cr or rM m P KN m =Ω=⨯⨯=⋅对于2#和4#梁计算公路—Ⅱ级汽车活载的跨中弯矩:121,22(1)(1)k k Q k cq cq MmP y m q kμξμξ+=++Ω21.51.23410.53184.5 1.23410.537.87557.78946.1744KN m =⨯⨯⨯⨯+⨯⨯⨯⨯=⋅ 计算人群荷载的跨中弯矩:人群荷载集度: 313or P KN =⨯=122,20.4375357.7875.836cr or Q k Mm P KN m =Ω=⨯⨯=⋅对于3#梁计算公路—Ⅱ级汽车活载的跨中弯矩:12,233(1)(1)Q k k k cq cq MmP y mq kμξμξ+=++Ω21.51.23410.4184.5 1.23410.47.87557.78714.0944KN m =⨯⨯⨯⨯+⨯⨯⨯⨯=⋅ 计算人群荷载的跨中弯矩:人群荷载集度: 313or P KN =⨯=132,20.4357.7869.336cr or Q k Mm P KN m =Ω=⨯⨯=⋅4. 跨中剪力的计算 跨中剪力影响线如下图:21121.51 2.687522222l m Ω=⨯=⨯⨯=对于1#和5#梁计算公路—Ⅱ级汽车活载的跨中剪力:1,011(1)(1)1.23410.66221.40.5 1.23410.667.875 2.6875107.395Q k cq k k cq k Q m P y m q KNμξμξ=+++Ω=⨯⨯⨯⨯+⨯⨯⨯⨯=计算人群荷载的跨中剪力:12,20.6753 2.6875 5.442lcr or Q k Qm P KN =Ω=⨯⨯=对于2#和4#梁计算公路—Ⅱ级汽车活载的跨中剪力:1,022(1)(1)1.23410.53221.40.5 1.23410.537.875 2.687586.242Q k cq k k cq k Q m P y m q KNμξμξ=+++Ω=⨯⨯⨯⨯+⨯⨯⨯⨯=计算人群荷载的跨中剪力:22,20.43753 2.6875 3.528l cr or Q k Qm P KN =Ω=⨯⨯=对于3#梁计算公路—Ⅱ级汽车活载的跨中剪力:1,033(1)(1)1.23410.4221.40.5 1.23410.47.875 2.687565.088Q k cq k k cq k Q m P y m q KNμξμξ=+++Ω=⨯⨯⨯⨯+⨯⨯⨯⨯=计算人群荷载的跨中剪力:32,20.43 2.6875 3.225l cr or Q k Qm P KN =Ω=⨯⨯=5. 支点截面剪力的计算 剪力影响线如下图所示:211121.510.7522l m Ω=⨯⨯=⨯=横向分布系数变化区段的长度21.55.35 5.42a m =-= 对于1#和5#梁附加三角形重心影响线坐标 : 1121.5 5.4/21.50.9163y ⎛⎫=⨯-⨯= ⎪⎝⎭0.083y '=()11111,0(1) 5.41.23410.66221.41 1.23410.667.87510.75 1.2341(0.43750.66)7.875(0.9160.083)2244.376(1)(1)2cq k cq oq cq Q k k k k m q KNaQ m P y m m q yμξμξμξ++Ω+=⨯⨯⨯⨯+⨯⨯⨯⨯+⨯⨯⨯-⨯⨯+==++- 计算人群荷载的支点剪力:()1112,02or or cr or cr Q k aQ m P m m P y =⋅⋅Ω+⋅-⋅⋅()5.40.675310.75 1.3750.6753(0.9160.083)27.4392KN =⨯⨯+⨯-⨯⨯+= 对于2#和4#梁计算公路—Ⅱ级汽车活载的支点剪力(如下图所示):()22221,0(1) 5.41.2341.53221.41 1.23410.537.87510.75 1.2341(0.71250.53)7.875(0.9160.083)2204.951(1)(1)2cq k cq oq cq Q k k k k m q KNaQ m P y m m q yμξμξμξ++Ω+=⨯⨯⨯⨯+⨯⨯⨯⨯+⨯⨯⨯-⨯⨯+==++- 计算人群荷载的支点剪力: ()2222,02or or cr or cr Q k aQ m P m m P y =⋅⋅Ω+⋅-⋅⋅()5.40.4375310.7500.43753(0.9160.083)10.5652KN =⨯⨯+⨯-⨯⨯+= 对于3#梁计算公路—Ⅰ级汽车活载的支点剪力(如下图所示):()33331,0(1) 5.41.23410.4221.41 1.23410.47.87510.75 1.2341(0.7250.4)7.875(0.9160.083)2159.588(1)(1)2cq k oq oq cq Q k k k k m q KNa Q m P y m m q yμξμξμξ++Ω+=⨯⨯⨯⨯+⨯⨯⨯⨯+⨯⨯⨯-⨯⨯+==++- 计算人群荷载的支点剪力:()3332,02or or cr or cr Q k aQ m P m m P y =⋅⋅Ω+⋅-⋅⋅()5.40.4310.7500.43(0.9160.083)9.9322KN =⨯⨯+⨯-⨯⨯+= 6. 1/4跨弯矩的计算 1/4跨弯矩的影响线如下图2131321.521.543.336216216l l m ⨯Ω=⨯⨯=⨯⨯=对于1#和5#梁计算公路—Ⅰ级汽车活载的1/4跨弯矩:141,11(1)(1)k k Q k cq cq MmP y mq kμξμξ+=++Ω1.23410.66184.5 4.031 1.3410.667.87543.336883.660KN m =⨯⨯⨯⨯+⨯⨯⨯⨯=⋅计算人群荷载的跨中弯矩:人群荷载集度: 313or P KN =⨯=112,40.675343.33687.756cr or Q k Mm P KN m =Ω=⨯⨯=⋅对于2#和4#梁计算公路—Ⅰ级汽车活载的1/4跨弯矩: 141,22(1)(1)k k Q k cq cq MmP y mq kμξμξ+=++Ω1.23410.53184.5 4.031 1.23410.537.87543.336709.605KN m =⨯⨯⨯⨯+⨯⨯⨯⨯=⋅ 计算人群荷载的跨中弯矩:人群荷载集度: 313or P KN =⨯= 122,40.4375343.33656.879cr or Q k M m P KN m =Ω=⨯⨯=⋅对于3#梁计算公路—Ⅰ级汽车活载的1/4跨弯矩:141,33(1)(1)k k Q k cq cq MmP y mq kμξμξ+=++Ω1.23410.4184.5 4.031 1.23410.47.87543.336535.551KN m =⨯⨯⨯⨯+⨯⨯⨯⨯=⋅计算人群荷载的跨中弯矩:人群荷载集度: 313or P KN =⨯= 122,40.4343.33652.003cr or Q k M m P KN m =Ω=⨯⨯=⋅7. 1/4跨剪力的计算 1/4跨剪力影响线如下图:公路-II级Q1/4影响线人群荷载Q1/4影响线187.5KN10.5.5KN/m3KN/m2131321.50.750.75 6.0472422l m ⨯Ω=⨯⨯=⨯⨯=对于1#和5#梁 计算公路—Ⅰ级汽车活载的1/4跨剪力:1,011(1)(1)1.23410.66221.40.75 1.23410.667.875 6.047174.021Q k cq k k cq k Q m P y m q KNμξμξ=+++Ω=⨯⨯⨯⨯+⨯⨯⨯⨯=计算人群荷载的跨中剪力:12,20.6753 6.04712.245lcr or Q k Q m P KN =Ω=⨯⨯=对于2#和4#梁计算公路—Ⅰ级汽车活载的1/4跨剪力:1,022(1)(1)1.23410.53221.40.75 1.23410.537.875 6.047139.745Q k cq k k cq k Q m P y m q KNμξμξ=+++Ω=⨯⨯⨯⨯+⨯⨯⨯⨯=计算人群荷载的跨中剪力:22,20.43753 6.0477.933l cr or Q k Q m P KN =Ω=⨯⨯=对于3#梁计算公路—Ⅰ级汽车活载的跨中剪力:1,033(1)(1)1.23410.4221.40.75 1.23410.47.875 6.047105.468Q k cq k k cq k Q m P y m q KNμξμξ=+++Ω=⨯⨯⨯⨯+⨯⨯⨯⨯=计算人群荷载的跨中剪力:32,20.43 6.0477.253l cr or Q k Q m P KN =Ω=⨯⨯=8. 荷载组合1112()nno ud o Gi Gik Q q k c Qj QJK i j r s r r s r s r s φ===++∑∑其中 1.2Gir =,1 1.4Q r =, 1.4Qj r =, 1.0o r =,0.8c φ=跨中弯矩组合:梁# 恒载(KN/m )活载(KN/m )组合值(KN/m )汽车人群 1、5 1229.816 1178.254 117.004 3256.379 2、4 1285.344 946.174 75.836 2951.993 31285.344707.15069.6332610.412 跨中剪力组合:梁# 恒载(KN/m )活载(KN/m )组合值(KN/m )汽车人群 1、5 0 107.395 5.442 156.448 2、4 0 86.242 3.528 124.6902 365.0883.22594.7352 支点剪力组合:梁# 恒载(KN/m )活载(KN/m )组合值(KN/m )汽车人群 1、5 228.203 244.376 27.439 646.7017 2、4 239.134 204.951 10.565 585.725 3239.134159.5889.932521.5078 1/4跨弯矩组合:梁# 恒载(KN/m )活载(KN/m )组合值(KN/m )汽车人群 1、5 922.362 883.660 87.756 2442.245 2、4 964.008 709.605 56.879 2213.961 3964.008535.55152.0021964.823 1/4跨剪力组合:梁# 恒载(KN/m )活载(KN/m )组合值(KN/m )汽车人群 1、5 114.402 174.21 12.245 394.8908 2、4 119.567 139.754 7.933 348.021 3119.567105.4687.253299.259。
主梁内力计算算例图中所示的五梁式简支梁桥,计算跨径L j=19.50m,主梁翼缘板刚性连结,桥梁基频为12.2Hz,人群荷载标准值为3 kN/m2,试计算1号梁和3号梁在公路-I级车辆荷载、车道荷载和人群荷载作用下的内力。
1. 荷载横向分布系数跨中m c用G-M法计算的结果,以及支点m o用杠杆法计算的结果,其值列于表2.2.8。
表2.2.82. 主梁跨中截面弯矩正如前面所述,在计算主梁弯矩时,对跨中的荷载横向分布系数与跨内其他各点上的荷载横向分布系数是采用相同的值,这是实用方法基本原理的前提所决定的。
目前在实用计算中,全跨采用同一的跨中荷载横向分布系数m c。
图2.2.2为简支梁跨中截面弯矩影响线和设计荷载的最不利布置图。
按公式(2.2.42)~式(2.2.44)进行内力计算,对于汽车荷载冲击系数,按《公路桥涵通用设计规范》第4.3.2条计算,1=-1+μ.0=+2350157.11767.012ln.4ξ=1 因系双车道,m c是按两行汽车计算出的。
设计荷载对应的弯矩影响线竖坐标值列于影响线图中。
1号梁跨中截面弯矩;图2.2.48 跨中弯矩计算公路-I 级车辆荷载(max ):kN.m52.914 1.375)140+2.075140+ 4.875120+4.175120+2.67530(504.01235.1)1(21=⨯⨯⨯⨯⨯⨯⨯⨯=⋅⋅+=∑ii i qy p m M ξμ 公路-I 级车道荷载(max ):查《公路桥涵通用设计规范》第4.3.1条,车道荷载之均布荷载k q =10.5kN/m ,计算弯矩时再乘1.2的系数;而采用直线内插求得00.238)55.19(550180360180=-⨯--+=k P kN跨中弯矩影响线面积531.47450.1950.1921=⨯⨯=Ω将以上数据代入式(2.2.43)得kN.m83.1032 )875.4238531.475.10(504.01235.1 )()1(21=⨯+⨯⨯⨯⨯=+Ω⋅⋅⋅⋅+=k k k qy mP q m M ξμ 人群荷载(max):kN.m3.66 50.1981375.0620.0 221=⨯⨯⨯⨯=Ω⋅⋅=r cr rq m M3号梁的跨中弯矩:公路-I 级车辆荷载(max ):kN.m14.742 1.375)140+2.075140+ 4.875120+4.175120+2.67530(409.01235.1)1(21=⨯⨯⨯⨯⨯⨯⨯⨯=⋅⋅+=∑ii i qy p m M ξμ公路-I 级车道荷载(max ):kN.m15.838 )875.4238531.475.10(409.01235.1 )()1(21=⨯+⨯⨯⨯⨯=+Ω⋅⋅⋅⋅+=k k k qy mP q m M ξμ 人群荷载(max):kN.m6.36 50.1981375.0342.0 221=⨯⨯⨯⨯=Ω⋅⋅=r cr rq m M4/l 截面的弯矩,可按同样的方法作出4/l 截面的弯矩影响线,布置最不利荷载来计算,本例从略。
- 简支梁桥主梁内力综合计算在结构工程领域中,简支梁桥主梁内力综合计算是一个重要的课程设计,它涉及到桥梁结构设计中的关键问题,并对工程实践具有重要的指导意义。
简支梁桥主梁内力综合计算课程设计旨在通过对简支梁桥主梁内力的计算分析,使学生掌握桥梁结构设计的基本原理和方法,培养学生的工程实践能力和创新思维。
本文将从简支梁桥的定义、主梁内力的基本原理和相关计算方法,以及个人观点和理解等方面对这一课程设计主题进行全面评估和深入探讨。
一、简支梁桥的定义简支梁桥是指桥梁主梁两端支座为简支的一种桥梁结构形式。
它是桥梁工程中最常见的一种形式,具有结构简单、施工方便、适用范围广等特点。
在简支梁桥结构设计中,主要涉及到主梁内力的计算和分析,以保证桥梁结构的安全可靠。
对简支梁桥的定义和特点的理解,对于进行主梁内力综合计算课程设计具有重要的启发和指导作用。
二、主梁内力的基本原理和计算方法简支梁桥主梁的内力是指在桥梁荷载作用下,主梁内部产生的受力状态,包括横向力、纵向力和弯矩等。
主梁内力的计算是桥梁结构设计中的核心内容,它直接关系到桥梁结构的安全性和稳定性。
主梁内力的计算方法主要包括静力法、力法、位移法等。
在课程设计中,学生需要综合运用这些方法,对简支梁桥主梁的内力进行计算和分析,提高他们的工程实践能力和创新思维。
对主梁内力的基本原理和计算方法的深入理解,对于进行主梁内力综合计算课程设计具有重要的指导意义。
三、个人观点和理解个人认为,简支梁桥主梁内力综合计算是一门非常重要的课程设计,它对于学生的综合能力和创新能力有着很高的要求。
通过这门课程设计,学生不仅能够掌握桥梁结构设计的基本原理和方法,还能够培养他们的工程实践能力和创新思维。
在实际工程中,简支梁桥是一种常见的桥梁形式,掌握其主梁内力的计算和分析方法,对于工程实践具有重要的指导意义。
我对这门课程设计充满了兴趣和热情,希望能够通过自己的努力,深入学习和掌握相关知识,为将来的工程实践打下坚实的基础。
钢筋混凝土简支梁主梁内力计算指导书一・设计资料 (3)二・主梁的计算 (4)1•横向分布系数计算 (4)2•恒载内力计算 (7)3•活载内力计算 (10)4•荷载组合 (14)一、设计资料1、设计荷载:公路II级,人群荷载3KN/m22、桥而净空:净一7 + 2xO.75m人行道;3、主梁跨径和全长:标准跨径L B二16m计算跨径Lp=15. 5m主梁全长L全=15・96m4、材料混凝土:C25钢筋:主钢筋,弯起钢筋和架立钢筋用II级,其它用T级。
桥面铺装:沥青混凝土6cm, C40防水混凝土10cm;5、桥梁纵横断面及主梁构造横断面共5片主梁,间距1.6mo纵断面共5道横梁,间距3.875m。
尺寸拟定见图,T梁的尺寸见下表:横断面桥梁横断面图主梁断曲图二、主梁的计算(-)横向分布计算1、当荷载位于支点处时,应按杠杆原理法计算荷载横向分布系数。
首先绘制1号梁和2号梁的荷载横向影响线,如图所示。
■ ■§1, 387・5153S7.5 .387.54387.5 r16 T —JL£SL1S96r --------- j ------- 1 11-----------------S§横梁断面图18再根据《公路桥涵设计通用规范》(JTGD60-2004)规定,再横向影响线上确定荷 载沿横向最不利的布置位置。
例如,对于车辆荷载,规定的车轮横向轮距为1. 8m, 两列汽车车轮的横向最小间距为l ・3m,车轮矩离人行道缘石最少为0.5m 。
如图 所示:105一160一 一160 -1号〜号 3号 4号5号人群荷载 max A lr =?;•几• 0.75 = 1.422〃”由此可得1号梁在车辆荷载和人群荷载作用下的最不利荷载横向分布系数分别 为:m oii =0.438和加” =1.422 (5号梁和1号梁等同)同理可得2号梁在车辆荷载和人群荷载作用下的最不利荷载横向分布系数分别 为:m oq =所以:车辆荷载0.5和%=0 (4号梁和2号梁等同)同理可得3号梁在车辆荷载和人群荷载作用下的最不利荷载横向分布系数分别为:m oq = 0.594和加” =02、当荷载位于跨中时,- = ^xl.6 = 4.96>2,因此可按偏心压力法计算荷载B 5横向分布系数。
课程设计主梁内力计算一、教学目标本节课的教学目标是让学生掌握主梁内力计算的方法和技巧。
知识目标包括:了解主梁内力的概念及其计算方法;掌握主梁内力计算的基本原理和公式;了解主梁内力计算在工程中的应用。
技能目标包括:能够独立进行主梁内力计算;能够分析主梁内力计算结果的正确性和可靠性。
情感态度价值观目标包括:培养学生对工程技术的兴趣和热情;培养学生勇于探索、严谨治学的科学态度。
二、教学内容本节课的教学内容主要包括主梁内力的概念、计算方法及其应用。
首先,介绍主梁内力的概念,让学生了解主梁内力在工程中的重要性。
然后,讲解主梁内力计算的基本原理和公式,并通过示例让学生掌握计算方法。
最后,结合实际工程案例,让学生了解主梁内力计算在工程中的应用。
三、教学方法为了提高学生的学习兴趣和主动性,本节课将采用多种教学方法。
首先,采用讲授法,系统地讲解主梁内力的概念、计算方法及其应用。
其次,采用讨论法,让学生在小组内讨论主梁内力计算的难点和疑惑,促进学生之间的交流。
再次,采用案例分析法,分析实际工程案例,让学生了解主梁内力计算在工程中的应用。
最后,采用实验法,让学生动手进行主梁内力计算的实验,提高学生的实践能力。
四、教学资源为了支持教学内容和教学方法的实施,丰富学生的学习体验,我们将选择和准备以下教学资源。
教材:《工程力学》;参考书:《主梁内力计算与应用》;多媒体资料:主梁内力计算的动画演示;实验设备:计算机、力学实验器材等。
通过这些教学资源,帮助学生更好地理解和掌握主梁内力计算的知识和方法。
五、教学评估本节课的教学评估将采用多元化的评估方式,以全面、客观、公正地评价学生的学习成果。
评估方式包括:平时表现评估(30%)、作业评估(30%)、考试评估(40%)。
平时表现评估主要考察学生在课堂上的参与度、提问回答、小组讨论等;作业评估主要考察学生对主梁内力计算方法的理解和应用;考试评估则是对学生主梁内力计算知识的全面检测。
通过这些评估方式,全面反映学生的学习成果,提高学生的学习积极性。
主梁内力计算主梁是承担桥梁或建筑物重载荷的主要构件,内力是指梁在受到外力作用时所产生的内部力。
计算主梁的内力是设计和分析结构的重要步骤,可以用于确定梁的尺寸、材料和支撑方式等。
主梁的内力计算可以通过静力学方法或有限元分析方法进行。
在静力学方法中,主要使用平衡条件和弹性力学理论,针对不同的荷载情况进行计算。
下面将介绍一种常见的方法,弯矩法。
弯矩法是一种通过计算梁的弯矩和剪力来确定内力的方法。
在该方法中,主梁被假设为一根杆件,受到垂直和水平方向的力,同时产生弯矩和剪力。
弯矩法的基本原理是根据平衡条件和弹性理论,将梁划分为若干小段,对每一小段进行受力分析,然后通过受力平衡条件和截面弹性理论计算出每一段的内力。
以下是计算主梁内力的详细步骤:1.确定主梁的荷载情况:包括集中力、分布力、弯矩力和转矩力等。
可以从结构设计规范或荷载手册中获取相关信息。
2.确定主梁的支撑方式:主梁可能有不同的支撑方式,如简支、固定端和悬臂等。
支撑方式会影响梁的受力情况,需要事先确定。
3.将主梁分段:根据实际情况,将主梁分为若干小段,每一小段长度不超过约10%的主梁总长度。
这样可以保证在每一小段上受力分析时,梁的截面形状和弯矩分布近似不变。
4.计算每一小段的弯矩:对于每一小段,根据支撑条件和荷载情况,可以计算出其受到的弯矩。
弯矩可以通过平衡条件和截面弹性理论计算得出。
5.计算每一小段的剪力:根据受力平衡条件和截面弹性理论,可以计算出每一小段的剪力。
剪力是梁内力的一部分,用于确定梁的抗剪性能。
6.计算每一小段的轴向力和弯矩力:根据弹性力学理论和截面性能,可以计算出每一小段的轴向力和弯矩力。
轴向力和弯矩力是梁内力的另一部分,用于确定梁的抗弯性能。
7.汇总内力:将每一小段的内力汇总起来,得到整个主梁的内力分布。
可以绘制内力图或表格,清晰地展示主梁不同部位的受力情况。
需要注意的是,计算主梁内力时,需要考虑梁的材料和几何特性。
例如,梁的截面形状、尺寸、材料特性等会影响梁的刚度和强度,进而影响内力的计算结果。
第四章梁的内力第一节工程实际中的受弯杆受弯杆件是工程实际中最常见的一种变形杆,通常把以弯曲为主的杆件称为梁。
图 4 —i中列举了例子并画出了它们的计算简图。
如图(a表示的是房屋建筑中的板、梁、柱结构,其中支撑楼板的大梁AB受到由楼板传递来的均布荷载口;图(b)表示的是一种简易挡水结构,其支持面板的斜梁AC受到由面板传递来的不均匀分布水压力;图(c)表示的是- 小型公路桥,桥面荷载通过横梁以集中荷载的形式作用到纵梁上;图(d)表示的是机械中的一种蜗轮杆传动装置,蜗杆受到蜗轮传递来的集中力偶矩m的作用。
1.1 梁的受力与变形特点综合上述杆件受力可以看出:当杆件受到垂直于其轴线的外力即横向力或受到位于轴线平面内的外力偶作用时,杆的轴线将由直线变为曲线,这种变形形式称为弯曲.。
在工程实际中受弯杆件的弯曲变形较为复杂,其中最简单的弯曲为平面弯曲。
1.2 平面弯曲的概念工程中常见梁的横截面往往至少有一根纵向对称轴,该对称轴与梁轴线组成一全梁的纵向对..称面(如图4 —2),当梁上所有外力(包括荷载和反力)均作用在此纵向对称面内时,梁轴线变形后的曲线也在此纵向对称面内,这种弯曲称为平面弯曲.。
它是工程中最常见也最基本的弯曲问题。
1.3 梁的简化一一计算简图的选取工程实际中梁的截面、支座与荷载形式多种多样,较为复杂。
为计算方便,必须对实际梁进行简化,抽象出代表梁几何与受力特征的力学模型,即梁的计算简图...。
选取梁的计算简图时,应注意遵循下列两个原则:(1)尽可能地反映梁的真实受力情况;(2)尽可能使力学计算简便。
a房屋建筑中的大梁c小跨度公路桥地纵梁图4-1b简易挡水结构中的斜梁图4-2 梁的平面弯曲一般从梁本身、支座及荷载等三方面进行简化:(1) 梁本身简化一一以轴线代替梁,梁的长度称为跨度; (2) 荷载简化一一将荷载简化为集中力、线分布力或力偶等; (3) 支座简化——主要简化为以下三种典型支座:(a ) 活动铰支座(或辊轴支座),其构造图及支座简图如图4— 3 (a )所示。
主梁的内力计算主梁的内力计算包括恒载内力计算和活载内力计算。
根据上述梁跨结构纵、横截面的布置,计算活载作用下的梁桥荷载横向分布系数,求出各主梁控制截面(取跨中、四分点、变化点截面及支点截面)的恒载和最大活载内力,然后再进行主梁内力组合。
一、恒载内力计算1、恒载集度⑴预制梁自重(第一期恒载)①.跨中截面段主梁自重(四分点截面至跨中截面,长7.25m )(1)0.861625.07.25156.165g K N=⨯⨯=②.马蹄抬高与腹板变宽段梁的自重近似计算(长3.7m ) 主梁端部截面面积为A=1.176m 2()(2) 1.17600.8616 3.725.0/294.239g K N =+⨯⨯=③.支点段梁的自重(长3.55m )(3) 1.1760 3.5525.0=104.37g K N=⨯⨯④.横隔梁的自重 中横隔梁体积为:()30.16 1.590.920.240.72/20.120.12/20.219072m ⨯⨯-⨯-⨯=端横隔梁体积为:()30.25 1.840.80.20.6/20.353m ⨯⨯-⨯=故半跨内横隔梁重量()(4)20.21907210.3532519.7786g K N =⨯+⨯⨯=⑤.主梁永久作用集度()156.16594.239104.3719.7786/14.9825.00/g K N m K N m I =+++=(2)第二期恒载①翼缘板中间湿接缝集度()50.40.1625.0 1.6/g K N m =⨯⨯=②现浇部分横隔梁一片中横隔梁(现浇部分)体积:30.16 1.590.20.05088m ⨯⨯=一片端横隔梁(现浇部分)体积:30.250.2 1.840.092m ⨯⨯= 故()()630.0508820.09225.0/29.960.2809/g K N m =⨯+⨯⨯=③桥面铺装层6cm 沥青混凝土铺装:0.0612.52317.25/K Nm ⨯⨯=将桥面铺装重量均分给五片主梁,则()717.25/5 3.45/g K N m ==④防撞栏:两侧防撞栏均分给五片主梁,则()87.52/53/g K N m =⨯=⑤主梁二期永久作用集度II 1.60.2809 3.4538.3309/g K N m=+++=2、永久作用效用:下面进行永久作用效用计算(参照图1-4),设c 为计算截面至左侧支座的距离,并令/a c l =。