桩位布置图
- 格式:dwg
- 大小:271.59 KB
- 文档页数:1
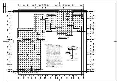
桩位平面布置图说明1本工程地基基础设计等级为乙级,根据地质报告,不需考虑地基液化,±0.00002.桩基采用Φ400预应力高强混凝土管桩和Φ550泥浆护壁钻孔灌注桩,预应力高强混凝土管桩桩数;377根,桩长20米;桩型为PHC400A95-10-10 泥浆护壁钻孔灌注桩桩数147根,桩长20米;桩径600毫米。
预应力高强混凝土管桩,按国家建筑标准设计图集《预应力混凝土管桩》(10SG409),一切有关桩的制作、吊装、运输、沉桩、接桩、截桩均须按图集要求施工,泥浆护壁钻孔灌注桩做法参照大样施工,桩与承台办的连接按图集施工。
3.桩位偏差:垂直度H∕100:桩位误差≤100。
4.单桩竖向承载力设计值Ra=900KN(抗压)Φ400预应力高强混凝土管桩377根试桩4根; Φ550浆护壁钻孔灌注桩桩数147根,试桩3根。
试桩桩顶离自然地坪一下500(试桩相应加长);试桩最大荷载为2000KN本工程宜先打试桩,宜先打试桩,以确定桩的实际承载力和沉桩的可行性,如遇沉桩困难,可增加图集中的ā型桩尖试桩检测须压桩施工全部结束后28天进行。
5.本建筑计算沉降量:80.0毫米6.工程桩按《建筑基桩检测技术规范》JGJ106-2003进行单桩低应变动力测试,测试数量不得小于20℅且住下三桩或三桩一下的承台抽检桩数不得小于1根,当桩身质量不符合要求时,应扩大测试范围。
在取得测试单位的测桩结果报告并经评估合格,符合设计要求后方可进行下一步施工。
7.沉桩系根据业主提供之由中勘冶金勘察设计院有限责任公司上海分公司提供的宝杨路地块岩土工程勘察资料(详勘),工程编号:S6G11-1-12而定,桩端持力层位7-1-1草黄~灰色砂质粉土层。
8.本说明未尽之处,应符合现行规定9.基础版材料:C35。
钢筋一级-HPB235,二级-HRB335,三级-HRB400。
桩工程施工场地布置1. 场地选址桩基础施工场地的选址是桩基础施工的第一步,选址的好坏直接影响到后期的施工质量和进度。
在选址时应考虑以下几个方面:1)场地坚实稳定:桩基础施工需要较好的承载力和稳定性,选址时应选择坚实稳定的场地,避免软弱地层或有流动性的场地。
2)场地方便施工:施工场地应尽量靠近交通要道,材料堆放场地和机具进出口,方便物资和设备的运输。
3)场地无遮挡物:为保证施工安全和顺利进行,应避免场地上有遮挡物,如大型建筑物、管线等,以免影响桩机的正常施工。
4)场地不受水淹:施工场地应避免处于低洼地带或易被水淹的地方,以免影响桩基础施工的质量。
2. 场地布置选址完成后,需要对施工场地进行布置。
场地布置是桩基础施工中重要的一个环节,布置合理与否直接影响到施工进度和质量。
在场地布置时应遵守以下几项原则:1)确定施工区域:根据工程要求确定桩基础施工区域的范围,标明施工界线和限高线,确保施工实施的顺利进行。
2)规划施工通道:规划好施工通道,设置合理的通道标识,保证桩机、物料、人员的安全进出。
3)设立标志标牌:在施工现场设置标志标牌,明确施工区域和安全区域,提醒人员遵守安全规定,避免事故发生。
4)划分施工区域:根据桩基础设计要求,划分出桩基础布置的位置和范围,明确各个桩的位置和间距。
5)整理施工场地:对施工现场进行整理清理,清除杂草、垃圾和障碍物,确保施工场地整洁。
3. 场地清理场地清理是桩基础施工的重要环节,清理干净的施工现场有利于桩机的正常操作和施工质量的提高。
场地清理包括以下几个方面:1)清除杂草:对施工现场内的杂草进行清理,避免杂草长势过旺,影响施工作业。
2)清除垃圾:对施工现场内的垃圾进行清运处理,保持施工现场的整洁。
3)清除障碍物:清除施工现场内的障碍物,如石块、土包等,确保桩机的正常操作。
4. 安全环保桩基础施工场地布置中,安全环保是最重要的一个方面。
在桩基础施工过程中,要严格遵守相关的安全操作规程,确保施工过程中各项作业的安全进行。
桩基偏位处理方案及验算摘要:提出某斜桥桩基偏位后的处理方案,在不改变上部结构设计施工的情况下,对错位桩基增设连梁和横梁,能较好的纠正桩基偏位现象,满足桩的强度要求,保证全桥稳定性,并对最大偏位桩的承载力、桩身强度及裂缝宽度进行验算,为同类工程提供参考。
关键词:桩基偏位;横梁;连梁引言伴随着我国交通事业的蒸蒸日上,桥梁结构计算理论的发展和生产施工工艺的提高,在现代桥梁设计中,桩柱结合式墩台越来越多。
在这种桥墩台施工过程中,对桩基的偏位限制较严(对于不等直径桩柱结合式桥墩台,桩位偏差不超过50mm[1]),由于施工处理不当、测量放线差错、沉桩工艺不良、地质情况复杂等原因,造成桥墩台特别是基桩偏斜的现象时有发生。
桥墩台桩基有别于民用建筑的桩基,其直径大、造价高、工期要求较紧、施工条件差和难度大。
当出现较大偏差时,在原位继续成桩,施工难度更大,因此偏斜后的基桩的处理显得非常重要。
桩偏位和倾斜对整座桥梁会产生十分不利的影响,必须进行处理,否则可能造成整座桥梁桩基的失稳。
如果处理得当就会较大程度地挽回经济损失,对整座桥梁不会产生有害影响。
桩基偏斜后常用的处理方法有补桩法、扩大承台法等。
工程概况某斜桥为双幅桥(斜度15°),桥面宽度为净21+2×4.5m。
上部结构为简支板桥,桥跨布置为4(跨)×12m,下部结构采用桩柱式墩台,桩径1.2m,柱径1.0m,系梁断面为1×1m,桩基采用钻孔灌注桩。
由于地质条件复杂等原因,导致施工中出现实际施工桩位与原设计桩位存在较大偏位,其桩位平面如图1所示,各桩偏移具体值如表1所示。
x表示x方向偏移量,y表示y方向偏移量,表示总偏移量。
由表中可看出:除17#、19#和20#号桩偏移量未超过5cm外,其余均超过5cm,最大偏移值达到34cm(13#桩)。
由于桩位偏移后,同排桩不在同一直线上,使得原横系梁受力趋于复杂,故需加强原横系梁,特别要加大桩柱接头处横系梁尺寸。
孔内深层强夯桩法(SDDC)桩地基处理施工工法孔内深层强夯桩法(SDDC)桩地基处理施工工法1 前言孔内深层强夯桩法(SDDC)桩法首先采用螺旋钻对地基进行打孔,用PE管对注水孔进行注水作业,使得地基土含水率达到最优含水,在采用SDDC桩法进行强夯。
SDDC 是一种深层地基处理方法,该方法先成孔至预定深度,然后自下而上分层填料强夯或边填料边强夯,形成高承载力的密实桩体和强力挤密的桩间土(以下简称SDDC法)。
陡沟调蓄池是一座以供水为主的IV等小(1)型工程,主要建筑物为4级建筑物,次要建筑物为5级,临时建筑物为5级建筑物。
调蓄水池位于红柳沟镇东南约5.8km的陡沟村以西凹地,设计总容积976万m3,主要由砂壤土组成;并且工程区域内降水极不平衡,地下水深达70m,土壤含水率极低。
为消除坝基8m以内湿陷性,且压实度大于90%,采用了孔内深层强夯桩法(SDDC)桩进行试验。
2 特点㈠SDDC桩采用正三角形布置且注水孔分部其桩周围,每个桩外围为6个注水孔,布置科学合理。
㈡注水系统采用管网布置,注水时采用“少食多餐”原则,全过程严格控制注水量,并控制水头与孔口齐平,使其能够充分均匀的渗透。
㈢夯击时采用隔排跳桩,且回填土料为提前闷制而成,回填土料的含水率为最优含水率,夯击后能够使其很好的粘结,很大程度上的减少夯击后土的孔隙率,使其达到设计要求。
㈣SDDC桩施工时振动较小,对周围建筑物影响较小。
㈤SDDC桩对桩身处理效果能够达到设计要求,对桩间挤密效果也比较明显。
㈥SDDC桩适用于素填土、杂填土、砂土、粉土、粘性土、湿陷性黄土、淤泥质土等地基的处理。
㈦SDDC桩处理基础,代替一些桩基础节省石灰、钢材和水泥,而且速度快、效果好、投资少,是一种经济、简便的地基加固方法。
3 适用范围SDDC桩法可用于机场、道路、港口、堆场、储罐、仓贮、工厂和房屋建筑等工程场地的地基处理。
4 工作原理SDDC桩强夯是一种深层地基处理方法,该方法先成孔至预定深度,然后自下而上分层填料强夯或边填料边强夯,形成高承载力的密实桩体和强力挤密的桩间土。
管桩施工常见问题及其处理方法管桩由于具有桩身强度高、耐压(或耐打)性好、施工工期短、综合造价低、成桩质量可靠和文明环保等优点,得到广泛应用。
由于相对大直径桩(特别是大直径嵌岩桩),管桩承载力较低,因此,单体工程中管桩桩数较多 (一般都有上百根桩,甚至几千根桩),导致施工中或多或少会出现管桩偏位、倾斜、承载力不足等问题,需要设计人员帮助处理。
本文就管桩施工常见问题进行剖析,并提出相应的处理方法。
一、常见问题及处理措施1、管桩承载力不足的处理方法当管桩检测承载力不满足设计承载力时,一般有如下处理方法:(1)当管桩检测承载力与设计承载力相差不大时,可增大与其相邻承台相连的承台梁刚度 (增大梁断面,特别要增大梁高)和配筋(承台梁纵筋应贯穿承台),将管桩承载力不足的承台承担的部分荷载转移到周边其他承台上。
这是最简单、最经济的处理方法。
(2)当管桩检测承载力与设计承载力相差较大时,应采取补桩、将上部内隔墙取消或将上部内隔墙改成轻质隔墙,甚至减少楼层数等措施。
补桩一般应遵循对称补桩和桩间距不小于原设计的原则。
至于非对称补桩,由于承台形心与上部荷载重心不重合,导致桩受力不均匀,不宜采用。
如在原有管桩中间补桩,将导致管桩间距变小,由于管桩为挤土桩或部分挤土桩(不带桩尖时),容易将原有管桩挤偏位甚至挤断,只有当桩间土质较松散(不是饱和淤泥),且经试桩确有把握时才能在原有管桩中间补桩;如管桩为非挤土桩,可考虑在原有管桩中间补桩,但也宜先进行试桩验证。
图1、补桩平面布置图(斜线填充的桩为补桩)2、管桩偏位问题2.1、规范允许偏差2.1.1、建筑桩基技术规范JGJ 94-2008第7.4.5条:打入桩(预制混凝土方桩、预应力混凝土空心桩、钢桩)的桩位偏差,应符合表7.4.5的规定。
斜桩倾斜度的偏差不得大于倾斜角正切值的15%(倾斜角系桩的纵向中心线与铅垂线间夹角)。
注:H为桩基施工面至设计桩顶的距离(mm)。
2.2、按允许偏差施工后承台及桩增大值2.2.1、对于两桩承台、三桩承台,由于管桩偏位导致受力最不利管桩竖向力和承台弯矩最大增加量在10%~20%之间,不处理问题不大。
桩基偏位处理方案及验算摘要:提出某斜桥桩基偏位后的处理方案,在不改变上部结构设计施工的情况下,对错位桩基增设连梁和横梁,能较好的纠正桩基偏位现象,满足桩的强度要求,保证全桥稳定性,并对最大偏位桩的承载力、桩身强度及裂缝宽度进行验算,为同类工程提供参考。
关键词:桩基偏位;横梁;连梁引言伴随着我国交通事业的蒸蒸日上,桥梁结构计算理论的发展和生产施工工艺的提高,在现代桥梁设计中,桩柱结合式墩台越来越多。
在这种桥墩台施工过程中,对桩基的偏位限制较严(对于不等直径桩柱结合式桥墩台,桩位偏差不超过50mm[1]),由于施工处理不当、测量放线差错、沉桩工艺不良、地质情况复杂等原因,造成桥墩台特别是基桩偏斜的现象时有发生。
桥墩台桩基有别于民用建筑的桩基,其直径大、造价高、工期要求较紧、施工条件差和难度大。
当出现较大偏差时,在原位继续成桩,施工难度更大,因此偏斜后的基桩的处理显得非常重要。
桩偏位和倾斜对整座桥梁会产生十分不利的影响,必须进行处理,否则可能造成整座桥梁桩基的失稳。
如果处理得当就会较大程度地挽回经济损失,对整座桥梁不会产生有害影响。
桩基偏斜后常用的处理方法有补桩法、扩大承台法等。
工程概况某斜桥为双幅桥(斜度15°),桥面宽度为净21+2×4.5m。
上部结构为简支板桥,桥跨布置为4(跨)×12m,下部结构采用桩柱式墩台,桩径1.2m,柱径1.0m,系梁断面为1×1m,桩基采用钻孔灌注桩。
由于地质条件复杂等原因,导致施工中出现实际施工桩位与原设计桩位存在较大偏位,其桩位平面如图1所示,各桩偏移具体值如表1所示。
x表示x方向偏移量,y表示y方向偏移量,表示总偏移量。
由表中可看出:除17#、19#和20#号桩偏移量未超过5cm外,其余均超过5cm,最大偏移值达到34cm(13#桩)。
由于桩位偏移后,同排桩不在同一直线上,使得原横系梁受力趋于复杂,故需加强原横系梁,特别要加大桩柱接头处横系梁尺寸。
钻孔桩围护施工方案一、旋喷桩施工(1)施工方法进行钻孔桩施工时,采用循环钻机成孔,为了防止在钻孔过程中,对相邻桩孔造成影响,采取跨两根跳桩施工,具体施工顺序及成孔先后详见图1所示,钢筋笼在现场钢筋加工场地制作,汽车起重机吊装入孔,导管法进行水下混凝土灌注。
在钻孔桩施工完成后,使用单重管旋喷桩机跨一根跳桩施工,以防止对相邻的旋喷桩造成影响,同时保证围护结构防水性能。
结构侧墙1112221333施工顺序φ800钻孔灌注桩φ600旋喷桩图1 钻孔桩围护施工顺序及成孔先后示意图(2)施工技术措施:1)桩位测量和护筒埋设桩位测量利用主体结构轴线位置,采用红外测距仪和水准仪测量定位,孔位误差小于1cm 。
护筒采用5mm 的铁板卷制而成,护筒内径Φ850,高2.0m ,埋深1.7m ,护筒顶高于地面0.3m ,以避免暴雨季节的影响。
护筒脚底及背后粘土回填密实。
2)钻机就位及钻进安设钻机时地面应平整,以保证钻机的平稳。
同时调整机架,使钻机天轮槽口、钢丝绳、钻头保持在一个铅直线上,不发生倾斜移位现象,保证钻机对中误差小于20mm。
施工前,钻机应先试运转检查,以防止成孔过程中发生故障。
①泥浆管理选用粘土泥浆,粘土含胶体率不低于95%,含砂率不大于4%,造浆能力不低于2.5L/kg。
制浆前,先将粘土打碎,使其易于成浆,缩短搅拌时间,粘土在水中浸透并用拌合机搅拌均匀。
对新制泥浆及再生泥浆均设专人采用专用仪器进行质量控制。
其主要技术指标见泥浆技术指标表1。
泥浆使用过程中,每班要抽取样品,测试泥浆性能指标,在钻进过程中,随时注意泥浆液面,发现漏失和粘度下降及时报告,以便及时采取措施。
本工程泥浆循环采用正循环浮碴法,循环过程采取一级循环二级沉淀,沉淀沉渣后的采用泥浆专用车运至指定地点弃置。
表1 泥浆技术指标表②成孔采用循环钻机,边钻进边注入泥浆护壁,保持泥浆面始终不低于护筒顶下0.5m,钻进过程中随时检测钻机钻杆垂直度,并随时调整。
目录1.编制依据 (1)2.工程概况 (1)2.1工程概况 (1)2.2主要工程量 (1)2.3工程特点 (2)2.4地质及地貌情况 (2)3. 施工组织部署 (4)3.1施工平面布置 (4)3.2施工临时用电 (5)3.3施工临时用水 (5)3.4项目管理机构配备 (5)3.5施工机械设备配置 (7)3.6劳动力资源配置 (8)4.主要施工方案 (8)4.1施工准备 (8)4.2定位放线 (9)4.3工程桩材验收及存放 (10)4.4桩施工工艺流程 (12)5.施工进度计划及保证措施 (20)5.1施工进度计划 (20)5.2保证工期的具体措施 (20)6.施工质量保证体系及措施 (21)6.1质量目标 (21)6.2质量保证体系 (21)6.3质量管理措施 (21)6.4质量保证技术措施: (22)7.施工安全保证体系及措施 (24)7.1安全管理目标: (24)7.2安全保证体系: (24)7.3安全管理制度及办法: (25)7.4安全组织技术措施: (28)8.文明施工、施工环境保证体系及措施 (29)8.1环境保证措施 (29)8.2文明施工保证措施 (32)附1、平面布置图2、进度计划表I1.编制依据本施工方案依据以下规范、图纸及文件编制:1、《110KV桑田变电站桩位平面布置图》2、《110KV桑田变电站岩土工程勘察报告》3、《静钻根植桩基础技术规程》Q/NZD002-20114、《静钻根植先张法预应力混凝土竹节桩》2012浙G375、《建筑施工组织设计规范》GB/T50502-20096、《宁波市建筑桩基设计与施工细则》2001甬DBJ02-127、《建筑桩基技术规范》JGJ94-20088、《建筑基桩检测技术规范》JGJ106-20039、《地基基础质量验收规范》GB50202-200210、《施工现场临时用电安全技术规范》JGJ46-200511、《工程测量规范》GB50026-200712、《建筑施工场界噪声限值》GB12523-201113、《大气污染物综合排放标准》GB16297-199614、《环境空气质量标准》GB3095-199615、《污水综合排放标准》GB8978-2002 2.工程概况2.1 工程概况拟建工程位于慈溪市杭州湾新区,拟建物主要为一幢1层配电装置楼,高8.5米,钢结构框架,设计单柱荷载约750kN左右,本工程拟采用浅基础或桩基础。