隐框玻璃幕墙施工工法工艺及要点
- 格式:doc
- 大小:19.00 KB
- 文档页数:2
隐框玻璃幕墙的施工工艺流程一、基本作业条件1、各单位都应该编制幕墙施工组织设计,并按施工组织设计的顺序进行施工。
2、幕墙应在主体结构施工完毕后开始施工。
对于高层建筑的幕墙,如因工期需要,应在保证质量与安全的前提下,可按施工组织设计沿高分段施工。
在与上部主体结构进行立体交叉施工幕墙时,结构施工层下方及幕墙施工的上方,必须采取可靠的防护措施。
3、幕墙施工时,原主体结构施工搭设的外脚手架宜保留,并根据幕墙施工的要求进行必要的拆改(脚手架内层距主体结构不小于300mm)。
如采用吊篮安装幕墙时,吊篮必须安全可靠。
4、幕墙施工时,应配备必要的安全可靠的起重吊装工具和设备。
5、当装修分项工程会对幕墙造成污染或损伤时,应将该项工程安排在幕墙施工之前施工,或应对幕墙采取可靠的保护措施。
6、不应在大风大雨(恶劣)气候环境下进行幕墙的施工。
当气温低于-5℃时不得进行玻璃安装,不应在雨天进行密封胶施工。
7、应在主体结构施工时控制和检査固定幕墙的各层楼(屋)面的标高、边线尺寸和预埋件位置的偏差,并在幕墙施工前应对其进行检査与测量。
当结构边线尺寸偏差过大时,应先对结构进行必要的修正;当预埋件位置偏差过大时,应调整框料的伺距或修改连结件与主体结构的连接方式。
二、幕墙安装1、隐框玻璃幕墙安装施工工艺流程:测量放线→安装L型转接件→安装铝立柱→安装铝横梁→安装避雷、防火→玻镁板安装→安装玻璃→安装横(竖)向扣盖→注胶及外立面清洗(1)测量放线:依据结构复査时的放线标记,及预埋件的十字中心线,确定安装基准线,包括龙骨排布基准及各部分幕墙的水平标高线,为各个不同部位的幕墙确定三个方向的基准。
(2)L型转接件的安装:根据预埋件的放线标记,将L型转接角钢码采用M16的螺栓固定在预埋件上,转接角钢码中心线上下偏差应小干2mm,左右偏差应小于2mm。
[型转接角钢码与立柱接触边应垂直于墓墙横向面线,且应保持水平,不能因预埋板的倾斜而倾斜。
遇到此种情况时,应在角钢码与预埋钢板面之间填塞钢板或圆钢条进行支垫,并应进行满焊。
隐框玻璃幕墙施工工艺一、施工操作工艺1、弹线先将主体结构上的预埋件表面清理干净,然后根据建筑物轴线弹出纵横两个方向的基准线和标高控制线。
2、安装连接件把连接铁件按正确位置临时点焊在结构的预埋铁件上。
若主体结构上没有埋设预埋件,可用膨胀螺栓做为铁件与主体结构连接。
3、安装幕墙立柱以基准线为准,确定幕墙立柱位置,然后与连接铁件临时固定。
4、幕墙横梁安装将横梁两端的连接件及弹性橡胶垫安装在立柱的预定位置并临时固定。
5、幕墙横梁、立柱的调整与紧固幕墙横梁、立柱全部就位后,应再做一次全面检查,并对局部不适的地方做最后调整,使整幅幕墙的安装位置达到设计要求。
最后对临时焊接件进行正式焊接,紧固连接螺栓,对没有防松措施的螺栓均需点焊防松。
所有焊缝均应清理干净并做防锈处理。
6、托条安装按设计要求在每个分格块玻璃下端的位置安设两个铝合金或不锈钢托条,其长度不小于100mm,厚度不小于2mm,垂直于幕墙平面的宽度不应露出玻璃板外表面。
7、玻璃安装把幕墙横梁、立柱及托条表面清理干净。
按设计要求的结构胶厚度在横梁、立柱表面刷结构胶(一般涂刷结构胶厚度为:6mm≤结构胶厚度≤12mm),然后将擦拭干净的每个格子的玻璃板底端放在托条上,用手轻轻把玻璃板向横梁、立柱上的结构胶面上推压,使其与横梁、立柱粘紧、粘牢。
安装玻璃时,玻璃的朝向要符合设计要求。
玻璃安完后沿玻璃四周注密封胶密封,注胶要均匀、连续,胶缝厚度≥5mm,要及时清理胶缝外的多余粘胶。
8、幕墙收口按设计要求安装好幕墙的收口结构后,应及时处理其与主体结构的缝隙。
幕墙应严密不漏水。
9、幕墙伸缩缝幕墙伸缩缝必须满足设计要求。
如果伸缩缝采用密封胶填充,填密封胶时注意别让密封胶接触主梃衬芯,防止幕墙伸缩活动破坏胶缝。
10、抗渗漏试验幕墙施工中应分层进行抗雨水渗漏性能检查。
11、清洁安装玻璃的同时进行清洁工作,在拆除排棚前应作最后一次检查,以保证玻璃安装和密封胶、结构胶缝的质量及幕墙表面的清洁。
全隐框玻璃幕墙施工方案1. 引言全隐框玻璃幕墙作为现代建筑中常见的外墙材料,具有透明度高、自重轻、造型灵活等优点,在建筑外观设计中起到了重要的作用。
本文将介绍全隐框玻璃幕墙施工方案,包括施工准备、施工工艺、质量控制等方面的内容。
2. 施工准备在施工过程中,需要做好以下准备工作:2.1 材料准备全隐框玻璃幕墙施工所需要的主要材料包括玻璃板、铝合金型材、密封胶等。
在施工前,需要提前采购并检查这些材料的质量和数量。
2.2 设备准备施工所需的设备包括塔吊、脚手架、电动吊篮等。
在施工前,需要对这些设备进行检修和调试,确保其正常运行。
2.3 人员准备施工所需的人员包括施工队长、操作工、质检人员等。
在施工前,需要组织好人员,并对他们进行必要的培训和安全教育。
3. 施工工艺全隐框玻璃幕墙的施工主要包括以下几个步骤:3.1 围护结构搭设在施工现场搭设好围护结构,包括脚手架和临时支撑等,确保安全施工。
3.2 型材安装首先安装铝合金型材,按照设计要求进行定位和固定。
在安装过程中,要注意与主体结构的连接,确保稳固可靠。
3.3 玻璃安装将预先加工好的玻璃板插入到型材中,采用适当的胶条和密封胶进行固定和密封。
在安装过程中,要注意保护玻璃板的表面,避免划伤或者破损。
3.4 密封胶施工在玻璃幕墙的接缝处施工密封胶,确保玻璃与铝合金型材之间的接缝密封,防止水和空气渗透。
3.5 检验与验收在施工完成后,要对玻璃幕墙进行检验,并进行验收。
主要包括外观质量、密封性能以及结构稳定性等方面的检测。
4. 质量控制为了确保全隐框玻璃幕墙的施工质量,需要进行严格的质量控制。
主要包括以下几个方面:4.1 施工工艺控制在施工过程中,按照设计要求和施工规范进行操作,确保每个环节的质量合格。
4.2 材料质量控制对采购的材料进行检查,确保其质量符合要求。
在施工现场,对材料的储存和使用进行管理,防止出现质量问题。
4.3 施工现场管理对施工现场进行管理,包括人员管理、设备管理和安全管理等。
全隐框玻璃幕墙施工方案一、引言全隐框玻璃幕墙是一种现代化建筑幕墙形式,它采用无框架的设计,使建筑外表面完全呈现出玻璃的效果,营造出透明、通透的视觉效果,极大地增强了建筑的美观性和现代感。
本文将介绍全隐框玻璃幕墙的施工方案。
二、材料准备在施工全隐框玻璃幕墙时,需要准备以下材料:•玻璃幕墙板材:选择具有优良抗风压性能、透光性好的TGI玻璃。
•玻璃胶:选择粘接强度高、抗老化性能好的结构玻璃胶。
•铝合金型材:选择抗风压性好、耐腐蚀性能好的铝合金型材。
•不锈钢螺丝: 选择抗腐蚀、强度高的不锈钢螺丝。
•施工工具:包括电动工具、手动工具等。
三、施工步骤步骤一:制定施工计划在施工全隐框玻璃幕墙前,需要制定详细的施工计划,包括施工人员的分工、材料的采购、各项工作的时间节点等。
步骤二:安装铝合金框架首先需要根据设计图纸,在建筑物的墙面上安装铝合金型材。
按照固定间距,以及精确的尺寸要求进行安装。
步骤三:制作玻璃板根据建筑设计的需求,对TGI玻璃进行切割和加工,制作成符合幕墙的尺寸和形状的玻璃板。
步骤四:粘贴玻璃板将制作好的玻璃板放置在铝合金框架上,使用结构玻璃胶将玻璃板粘贴在框架上。
注意要保证玻璃板与框架的贴合度和水平度。
步骤五:密封处理在完成玻璃板的粘贴后,需要对接缝进行密封处理。
使用结构玻璃胶填充接缝,确保接缝的完全密封,以提高幕墙的密封性能。
步骤六:验收和清理在施工完成后,进行验收工作。
对幕墙进行外观检查和功能性测试,确保幕墙的质量和性能符合设计要求。
同时进行施工现场的清理工作,确保施工现场的整洁和安全。
四、施工安全措施在施工全隐框玻璃幕墙时,需要注意以下安全措施:1.施工人员必须按照相关规定穿戴好防护装备,包括安全帽、安全鞋等。
2.在高空施工时,必须使用安全绳索进行固定,确保施工人员的安全。
3.施工现场必须设置明显的警示标志,提醒过往人员注意施工安全。
4.施工时必须严格控制使用的材料,确保材料的质量符合要求,杜绝使用劣质材料。
隐框玻璃幕墙施工工艺摘要:本文详细阐述了隐框玻璃幕墙现场施工技术、安装过程及幕墙保护清洗等应注意的问题。
关键词: 隐框幕墙;施工;技术;保护1 幕墙的定义幕墙是建筑物外围护墙的一种形式。
幕墙一般不承重,类似于挂幕,又称为悬幕墙。
幕墙的特点就是装饰效果好、质量轻、安装速度快,是外墙轻型化、装配化较理想的型式。
2幕墙的发展我国的建筑幕墙行业快速的发展得益于随着新材料、新技术的不断涌现,在给建筑幕墙设计施工提出了新挑战的同时,也带来了新的机遇。
我们应在工程实践中总结经验,把工程施工中遇到的问题总结出来,避免在其它的工程中重复过去的错误,提高幕墙工程施工质量。
3幕墙所用的材料幕墙所用的材料,概括起来主要为骨架材料、板材、密封填缝材料,其中骨架材料主要采用铝合金型材。
在幕墙工程中常用的铝合金型材表面质量经检查应达到以下要求:型材表面清洁,包装完好,无裂纹起皮,腐蚀和气泡存在。
(1)板材。
幕墙所采用的玻璃通常有:浮法玻璃、热反射镀膜玻璃、吸热玻璃、夹层玻璃、夹丝玻璃和中空玻璃。
其中热反射镀膜玻璃和钢化玻璃应用较广,镀膜玻璃可以将大部分的太阳能吸收和反射、降低室内空调费用,取得节能效果,还可以获得多种反射色、能将四周建筑及自然景物映射在彩色的玻璃幕墙上,使整个建筑物显得异常绚丽壮观。
同时该产品有减轻眩光作用,使工作及居住环境舒适。
钢化玻璃与其他同厚度的玻璃相比,具有高3~5倍的弯曲和冲击强度;高3倍的对于温度迅速变化的耐力;破碎后呈无尖端的颗粒状,避免伤人,具有安全性。
而中空玻璃的隔声性能和隔热性能优良。
所以可根据建筑物的不同需要选取各种幕墙玻璃的类型。
(2)建筑密封胶(耐候胶)与结构密封胶(结构胶)。
耐候胶与结构胶有许多性能要求是相似的,但耐候胶更强调大气变化、耐紫外线、耐老化的性能,主要用于外部建筑密封,对耐候性有更高的要求;而结构胶更重要的是其强度、延性、粘结性能等力学性能要求。
结构胶一经选用必须提前做与之接触料(如玻璃、铝型材、铝板、泡沫棒等)的相容性试验报告,只有报告证明胶与接触材料相容才能使用。
第五章 隐框玻璃幕墙安装技术及工艺一、施工工艺测量放线→结构、埋件的检查→架支座的焊接安装→竖龙骨的安装→横龙骨的安装→避雷安装→隐蔽验收→玻璃安装→压块安装→填泡沫棒→打胶。
二、玻璃幕墙安装1.埋件左右、上下偏差的检查首先由测量放样人员将架支座的分格线及标高线全部弹在结构预埋件上,便于施工人员进行检查、记录,检查预埋件与结构是否符合设计要求,若无偏差,根据分格中心线进行安装。
通过十字定位线检查出埋件左右、上下的偏差,若偏差大的报设计出修正方案。
2.结构进出的检查分格线、水平线弹好以后,在结构处根据各个控制网拉垂直钢线,以及横向线进行结构检查,检查结构是否符合要求,将检查尺寸记录下来,反馈给设计、业主、总包。
图示:竖向钢丝横向钢丝纵向分格墨线预埋件横向分格墨线3.竖龙骨与支座的连接竖龙骨在安装之前,考虑到安全,在楼层内将铝合金角码与竖龙骨连接起来,用绳子滚扎后再吊到室外进行调整安装。
图示:4.龙骨安装调节待竖龙骨吊出楼层处后,首先将螺栓放在槽内旋转90度后再将螺栓拧紧到6分紧,然后进行上下、左右及前后的调节。
图示:图一横向钢丝竖向钢丝图二5.竖龙骨安装的尺寸控制竖龙骨的安装依据竖向钢线,以及横向钢线进行调节,直至符尺寸要求。
6.竖向龙骨的分格控制竖向龙骨安装后进行轴向偏差的检查,轴向偏差控制在±1mm范围内。
竖料之间分格尺寸控制在±1mm,否则会影响横料的安装。
测量分格尺寸应靠近支座附近。
图示7.横向龙骨的安装竖向龙骨安装后进行横向龙骨的安装,竖龙骨与角码之间的孔位应较紧配合,横龙骨安装时按照图纸和控制线必须保证本幕墙曲面精度。
三、玻璃的安装1.玻璃的安装玻璃安装之前,在横龙骨上垫上氯丁橡胶块,防止玻璃直接接触,一般橡胶块垫在玻璃板两端的1/4处。
2.玻璃板片依据板片编号图进行安装,施工过程中不得将不同编号的板片进行互换,安装时注意左右两边空隙相等。
3.橡胶垫块安装后进行玻璃安装,玻璃安装前先进行竖龙骨与横龙骨内压板的安装。
铝合金幕墙施工隐框玻璃幕墙分全隐框玻璃墙和半隐框玻璃幕墙。
半隐框玻璃墙又分竖隐横不隐、横隐竖不隐玻璃幕墙两种。
1、全隐框玻璃幕墙全隐框玻璃幕墙的典型构造是在铝合金构件组成的框格体系上固定铝合金玻璃框,铝合金玻璃框的上框挂在铝合金整个框格体系的横梁上,其余三边分别用不同方法固定在竖杆及横梁上。
玻璃用结构胶预先粘贴在玻璃框上。
玻璃框之间用结构密封胶密封。
(1)材料选用:首先要核对钢材、铝材、硅硐结构胶、玻璃等材料的允许应力、允许剪应力、允许承压应力、弹性模量、线膨胀系数和允许挠度与生产厂家的产品说明书指标。
(2)隐框幕墙强度挠度设计计算:要验算两种极限状态效应,即正常功能极限状态和安全使用极限状态。
(3)玻璃框架设计计算:用弹性薄板理论公式计算,计算出的最大应力和位移应不大于玻璃允许正应力和允许挠度值。
(4)杆件设计计算:包括铝合金框格体系、竖杆简化为受弯构件而进行的强度和挠度验算,对压弯构件进行平面内、外的稳定验算及连接计算等.2、硅酮结构胶:隐框玻璃幕墙是结构性玻璃装配型幕墙。
所谓结构性装配型,是指玻璃和铝材的连接完全是靠硅酮结构胶粘结成一整体构件3、硅酮结构密封胶:结构胶作为幕墙玻璃板片与支撑框架间惟一的连接和传递荷载的材料,必须具有相当高的抗拉、抗剪切强度,以及与幕墙支撑框架粘结牢固与抗反复拉伸压缩和抗剥离粘结强度。
此外,它还应具有较高的弹性模量,在应力很高的情况下,仍能基本保持其胶层的形状,而不会失去它传递荷载及防止玻璃变形过大而破裂的功能。
目前市场上供应的硅酮结构密封胶有单组分结构密封胶和双组分结构封胶两种。
(1)单组分结构密封胶:在工厂已经配制好,使用时无需拌和即可直接使用的结构密封胶。
常用的单组分胶有酸性结构密封胶和中性密封胶。
(2)双组分结构密封胶:双组分结构密封胶出厂时,基胶与催化剂分别装桶,到车间(现场)后,用专用打胶机按一定比例(一般为1:8—1:16)配合,充分搅拌混合后方可使用。
一.隐框玻璃幕墙横竖剖节点(一)安装施工准备1.施工工艺流程隐框玻璃幕墙的施工流程为:测量放线→预埋件的检查与补设→连接件安装→立柱安装→横梁安装→位置校核→防雷、防火安装→玻璃安装→连接打胶密封→交验。
隐框玻璃幕墙施工程序如下图a、图b、图c、图d、图e、图f 所示。
图a 埋件施工图b 连接件安装施工图c 幕墙立柱安装施工图d 幕墙横梁安装施工图e 幕墙胶条安装施工图f幕墙玻璃安装施工2.所需工器具及人员器具:电葫芦、梅花搬手、螺丝刀、打胶机、水准仪、经纬仪、紧线器、线坠、水平管、靠尺。
人员:6-8人(一组)。
作业时间:主体建筑测量放线完成,后补埋件复测及校正完成,脚手架及安全防护措施完毕。
3.安装前的准备工作安排好安装施工的必要场地。
检查安装工作面是否清理完毕,保证安装能不受干扰地进行。
有足够的材料、部件的放置场地,零件有库房;安排好水、电供应和起重设备;检查脚手架的安装情况;检查土建结构施工情况,是否满足施工验收规范的要求。
如果结构尺寸偏差过大,应采取补救措施;检查后补埋件是否齐全,有无漏补和过大偏位情况。
若有应及时与业主、总包和监理协商,采取有效的补救措施。
当设计无明确要求时,埋件的标高偏差不应大于5mm,位置偏差不应大于10mm。
4.安全、防范a.做好安全操作,防止工具坠落和坠物打击,配带安全帽、安全带,穿防滑鞋。
b.转接件连接部位是否清除干净。
c.对发现的质量、安全问题的处理意见要明确,并做好记录。
5.质量控制要点5.1后补埋件安装质量检测、控制a.主体支承结构上的后补埋件应重点检测埋设标高。
b.后补埋件的安装是否符合技术要求。
5.2铝型材立柱、横撑的安装质量控制a.对铝型材的原材料按国家标准进行验收,进行强度复查并逐根进行检查。
b.对铝型材立柱、横撑安装的倾斜度、水平度、标高、间距进行检查。
c.对安装的牢固程度进行检查。
d.对铝型材立柱、横撑安装后的整体平面度进行检查。
5.3玻璃的安装质量控制a.对玻璃材质进行检查。
明隐框龙骨玻璃幕墙系统制作安装施工工法框架玻璃幕墙是一种应用广泛的建筑外墙装饰系统,它采用明框或暗框的铝合金型材作为主要骨架,通过连接及密封件将玻璃面板固定在骨架上,形成一个通透明亮的幕墙表面。
明隐框龙骨玻璃幕墙系统是目前比较流行的一种框架玻璃幕墙系统,它具有结构简洁、安装方便快捷等特点。
下面将详细介绍明隐框龙骨玻璃幕墙系统的制作安装施工工法。
1.设计和制作在进行明隐框龙骨玻璃幕墙系统制作前,需要进行详细的设计和制作计划。
首先,需要根据建筑的形状和要求,确定玻璃幕墙系统的类型、尺寸和材料。
然后,进行详细的制图和计算,确定龙骨的形状、大小和间距,以及玻璃面板的类型和尺寸。
同时,还需要制作连接件、密封件和安装配件等。
2.安装准备在进行明隐框龙骨玻璃幕墙系统安装前,需要进行一些安装准备工作。
首先,需要按照设计要求和施工图纸,对建筑进行清洁和检查,确保外墙平整且无明显缺陷。
然后,根据设计要求和施工图纸,确定龙骨的位置和安装方式,并在外墙上设置标线和定位点。
同时,还需要准备好所需的安装工具和材料。
3.龙骨制作和安装明隐框龙骨玻璃幕墙系统采用铝合金型材作为主要骨架,通过连接件和密封件将玻璃面板固定在骨架上。
首先,根据施工图纸和设计要求,将铝合金型材按照尺寸要求加工成所需的龙骨。
然后,根据标线和定位点,在外墙上进行龙骨的安装。
安装时,需要使用螺栓或焊接等方式将龙骨固定在外墙上,并通过水平仪进行调整,确保龙骨平整、垂直和水平。
4.玻璃面板安装完成龙骨的安装后,需要将玻璃面板安装在龙骨上。
首先,根据设计要求和施工图纸,确定玻璃面板的尺寸和类型,并将玻璃面板送至施工现场。
然后,按照设计要求和施工图纸,将玻璃面板放置在龙骨上,并使用连接件和密封件将玻璃面板固定在龙骨上。
安装时,需要使用专用工具和设备,在保护玻璃面板的同时,确保连接件和密封件的紧固和密封效果。
5.墙体封闭和调试完成玻璃面板的安装后,需要进行墙体封闭和调试工作。
一.隐框玻璃幕墙横竖剖节点(一)安装施工准备1.施工工艺流程隐框玻璃幕墙的施工流程为:测量放线→预埋件的检查与补设→连接件安装→立柱安装→横梁安装→位置校核→防雷、防火安装→玻璃安装→连接打胶密封→交验。
隐框玻璃幕墙施工程序如下图a、图b、图c、图d、图e、图f 所示。
图a 埋件施工图b 连接件安装施工图c 幕墙立柱安装施工图d 幕墙横梁安装施工图e 幕墙胶条安装施工图f幕墙玻璃安装施工2.所需工器具及人员器具:电葫芦、梅花搬手、螺丝刀、打胶机、水准仪、经纬仪、紧线器、线坠、水平管、靠尺。
人员:6-8人(一组)。
作业时间:主体建筑测量放线完成,后补埋件复测及校正完成,脚手架及安全防护措施完毕。
3.安装前的准备工作安排好安装施工的必要场地。
检查安装工作面是否清理完毕,保证安装能不受干扰地进行。
有足够的材料、部件的放置场地,零件有库房;安排好水、电供应和起重设备;检查脚手架的安装情况;检查土建结构施工情况,是否满足施工验收规范的要求。
如果结构尺寸偏差过大,应采取补救措施;检查后补埋件是否齐全,有无漏补和过大偏位情况。
若有应及时与业主、总包和监理协商,采取有效的补救措施。
当设计无明确要求时,埋件的标高偏差不应大于5mm,位置偏差不应大于10mm。
4.安全、防范a.做好安全操作,防止工具坠落和坠物打击,配带安全帽、安全带,穿防滑鞋。
b.转接件连接部位是否清除干净。
c.对发现的质量、安全问题的处理意见要明确,并做好记录。
5.质量控制要点5.1后补埋件安装质量检测、控制a.主体支承结构上的后补埋件应重点检测埋设标高。
b.后补埋件的安装是否符合技术要求。
5.2铝型材立柱、横撑的安装质量控制a.对铝型材的原材料按国家标准进行验收,进行强度复查并逐根进行检查。
b.对铝型材立柱、横撑安装的倾斜度、水平度、标高、间距进行检查。
c.对安装的牢固程度进行检查。
d.对铝型材立柱、横撑安装后的整体平面度进行检查。
5.3玻璃的安装质量控制a.对玻璃材质进行检查。
隐框框架式玻璃幕墙安装技术及工艺1.1施工顺序测量放线→埋件的检查→支座的安装→立柱的安装→横梁的安装→层间防火及保温封修→隐蔽验收→玻璃安装→胶条的安装1.2玻璃幕墙安装方法隐框玻璃幕墙在裙楼南面和东面以及北楼。
1.2.1弹线定位1)据幕墙分格大样图和标高点、进出位线及轴线位置,采用重锤、钢丝线、测量器具及水平仪等工具在主体上定出幕墙平面、立柱、分格及转角等基准线,并用经纬仪进行调整、复测。
2)水平标高要逐层从地面向上引,以免误差累积。
1.2.2埋件的检查1)在测量放线的同时,对预埋件的位置偏差进行检验、定位、其上、下、左、右偏差数值不应超过±30mm。
2)首先由测量放样人员将分格线弹设在埋件上,通过十字定位线检查埋件左右、上下的偏差。
通过竖向钢丝线检查埋件的进出尺寸。
将检查结果记录下来,反馈给监理、业主、总包。
若偏差较大,报设计出埋件修正方案。
(图示):纵向分格墨线预埋件横向分格墨线1.2.3支座及立柱的安装1)支座与立柱的连接考虑到施工安装的安全性及可操作性,立柱在安装之前首先将支座在楼层内用五金件螺栓与立柱连接起来,支座与立柱接触处加设隔离垫,防止电位差腐蚀,隔离垫的面积不能小于连接件与竖料接触的面积。
连接完毕后,用绳子捆扎吊出楼层,再进行就位安装。
(幕墙为临边作业,防止高空落物)2)立柱安装调节待立柱吊出楼层后,将支座与埋件通过T型螺栓相连,首先将螺栓放在槽内,旋转90。
后再将螺栓拧到6分紧,进行上下、左右、前后的调节。
经检查符合要求后再进行拧紧,高低、左右控制在2—3mm之内如图示图二图一3)立柱的分格安装控制立柱的安装依据竖向钢直线以及横向鱼丝线进行调节安装,直至各尺寸符合要求,立柱安装后进行轴向偏差的检查,轴向偏差控制在±1mm范围内,竖料之间分格尺寸控制在±1mm,否则会影响横料的安装。
4)底层立柱安装完毕后,在安装上一层立柱时,两立柱之间安装套筒,立柱安装调节完毕,两立柱之间打胶密封,防止雨水入侵。
.第一章主要施工方法第一节隐框玻璃幕墙的施工方法一、施工前的准备1、说明项目经理要对工程的工期进度、技术资料、工具、器具、资料、机械、临时设施及人员做好充分的准备。
2、施工前准备的内容范围①工程大要:对工程大要进行认识掌握,熟悉有关施工单位及甲方监理公司的有关情况,熟悉工期进度整体计划、施工用水源、电源、垂直运输、外脚手架等情况。
②技术资料准备:第一是图纸准备,对图纸要充分熟悉,对不清楚有疑难的地方要问明弄懂,还需要准备有关图集、质量查收标准、安全指标、各种需用的表格和有关工程的竣工查收须用的资料等。
③工具、器具准备:对所需的工具、器具提出供给计划、详细型号、数量、供给时间等,同时要将计划送交物质、库房等部门,共同做好工具、器具的准备。
④资料准备:依照图纸及工程情况,做出详细的资料供给计划单,依照施工进度计划,将全部资料的供货时间安排好。
⑤人员准备:项目经理对自己管辖工程的人员安排要列出详细的准备计划,包括施工工种、各工种人数、进场时间等,尽量做到施工人员落实到岗、到位、明确责任。
⑥临时设施:包括办公、生活、住宿、库房等。
依照工程的资料、人员情况进行准备。
⑦施工组织计划准备:要对施工进度、质量进行卓有收效的控制,做好详细的施工组织计划。
3、管理重点①各种准备工作要落到实处,不能够浮于表面。
②准备工作落实到人,同时明确到详细人的责任。
③落实与建筑公司的协作与配合工作。
二、建筑物或修筑物外轮廓测量1、说明由于幕墙的高精级的特点,因此对土建的要求就相对提高(土建施工的误差与建筑结构的难易、施工单位的水相同有着亲近关系),这就造成了幕墙施工与土建误差的矛盾。
而解决这一矛盾的唯一路子就是幕墙施工单位对结构误差进行调整,这就需要对主体已达成的建筑进行外轮廓测量,依照测量结果确定幕墙的调整办理方法,供给给技术处作出设计更正。
2、工艺流程说明工艺流程:熟悉认识建筑结构与幕墙设计图→对整个工程进行分区、分面确定基准测量层→确定基准测量轴线→确定重点点→放线→测量→记录原始数据→更换测量立面(或层次)→重复上面程序→整理数据→分类→办理或上报技术处。
第二章隐框式玻璃幕墙施工工艺本章适用于民用建筑中各种隐框结构式玻璃幕墙的安装工程。
第一节材料要求2。
1。
1钢材2.1.1.1隐框玻璃幕墙所使用的钢材,包括碳素结构钢、合金结构钢、耐候钢、不锈钢(板材、棒材、型材等).其世态炎凉的牌号与状态、化学万分、机械性能、尺寸允许偏差、精度等级等,均应符合现行国家和待业标准的规定要求.2.1.1.2碳素结构钢和低全金结构钢应进行有效的防腐处理。
当采用热浸镀锌处理时,其膜厚应≥45μm.2。
1.1。
3钢材的表面不得有裂、气泡、结疤、泛锈、夹渣和折叠。
2。
1.2铝合金材料2。
1.2。
1隐框玻璃幕墙所使用的铝合金材料,包括铝合金建筑型材、铝及铝合金轧制板材的材料牌号与状态、化学成分、机械性能、表面处理、尺寸允许偏差、精度等级,均应符合现行国家标准规定要求。
2。
1.2.2铝合金型材应符合《铝合金建筑型材》(GB5322)对型材尺寸及允许偏差的规定。
幕墙铝型材应采用高精度级,其阳极氧化膜厚度不低于15μm。
2。
1.2。
3以穿条形式生产的隔热铝型材,隔热材料应使用PA66GF25(聚酰胺66+25玻璃纤维)材料,严禁采用PVC材料。
用浇注工艺生产的隔热铝型材,其隔热材料应使用PUR(聚氨基甲酸乙脂)材料。
2。
1.2.4铝合金型材表面清洁,色泽均匀。
不应有皱纹、裂纹、起皮、腐蚀斑点、气泡、电灼伤、流痕、发粘以及膜(涂)层脱落等缺陷存在。
2.1.3紧固件2.1.3.1隐框玻璃幕墙所使用的各类紧固件,如螺栓、螺钉、螺柱、螺母和抽心铆钉等紧固件机械性能,均应符合现行国家标准规定要求。
2.1.4密封胶2.1.4。
1隐框玻璃幕墙所采用的结构密封胶、耐候密封胶、中空玻璃二道密封胶、防火密封胶等均应符合现行国家标准规定要求。
2.1。
4。
2同一单位隐框玻璃幕墙必须采用同一牌号和同一批号的硅酮密封胶.2.1。
4.3任何情况下,各类硅酮密封胶要在有效期内使用,不准使用过期产品。
2。
1。
4.4硅酮结构密封胶、硅酮耐候胶在使用时应提供与所接触材料的相容性试验合格报告和力学试验合格报告以及保质年限的质量证明文件。
隐框玻璃幕墙施工工法隐框玻璃幕墙是近年来比较流行的建筑外墙类型,其将玻璃与铝框完美结合,极大地提升了建筑整体的美观性和视觉效果。
本文将介绍隐框玻璃幕墙的施工工法,以帮助建筑师和施工团队更好地进行施工。
隐框玻璃幕墙施工前准备在进行隐框玻璃幕墙施工前,需要先进行一系列的准备工作:1. 建筑结构设计的确认确定建筑结构设计是否符合玻璃幕墙施工的要求。
对于不规则的建筑结构,需要提前与设计师沟通并出具相应的设计方案。
2. 深化施工图设计在拿到初步施工图之后,需要进行深化施工图设计,明确幕墙的材料尺寸、连接方式、安装节点等。
3. 检查隐框的数量和尺寸根据设计图纸检查隐框的数量和尺寸,避免在施工中由于材料不足或尺寸不符而出现生产停滞或人力调整问题。
4. 按照施工规范确定施工方案根据施工规范,确定隐框玻璃幕墙施工方案,包括玻璃开窗的高度、墙体的准备工作等。
隐框玻璃幕墙施工工法1. 墙体准备工作在正式施工之前,需要对墙体进行预处理工作。
具体包括以下步骤:(1)墙面清理对墙面进行清理,同时检查墙面平整度是否符合施工要求。
(2)尺寸检查利用激光分级仪或者人工检查工具,检查墙面的垂直度是否符合施工要求。
(3)加强墙体结构如有必要,可以在墙体添加加固工程,以保证施工的安全和稳定性。
2. 隐框加工制作隐框的加工制作是整个施工流程中的重要步骤之一。
制作隐框需要使用尺寸精准的加工设备和专业的加工技术。
3. 框架安装隐框的框架安装包括支撑骨架的安装和隐框的铰链及其它配件的安装。
重点在于准确测量、精准切割和调整位置,保证每个隐框的安装位置准确无误。
4. 玻璃安装在隐框安装完成后,需对玻璃进行安装。
最常见的是采用配套的钢化玻璃板安装,同时也需要特殊的夹胶和密封条来达到玻璃和铝框的精确配合。
5. 施工验收在完成以上工作后,需要对整个隐框玻璃幕墙进行漏洞检查和隐蔽工程检验,对施工质量进行验收。
如发现问题,及时修正。
隐框玻璃幕墙施工注意事项1. 安全措施在施工过程中,需要严格遵守安全规定,尤其是针对高空作业的安全要求,确保施工人员的安全。
玻璃隐框幕墙施工方案一、铝合金玻璃幕制作(一)玻璃幕墙构件加工制作玻璃幕墙构件的加工制作应严格按设计施工图进行,必要时应对已建建筑物主体进行复测,及时调整幕墙的设计并及时修改设计施工图,合理安排组织幕墙构件的加工组装。
玻璃幕墙使用的所有材料和附件,都必须有产品合格证、说明书以及执行标准的编号;特别是主要部件,同安全有关的材料和附件,更要严格检查其质量,检查出厂时间、存放有效期,严禁使用不合格和过期材料。
加工幕墙构件的设备、机具应能达到幕墙构件加工精度的要求,定期进行检查和计量认证,如设备的加工精度、粗糙度、角度、胶体混合比、色调和均匀度等,及时进行检查维护;对量具应按计量管理部门的规定,定期进行计量鉴定,以保证加工产品质量和精确度。
幕墙构件加工环境要求清洁,干燥,通风良好,温度也应满足加工的需要,对于硅酮结构密封胶的施工环境要求更为严格,除要求清洁无尘土外,室内温度应控制在5-30℃之间,相对湿度应控制在35%-75%之间。
隐框玻璃幕墙的结构装配组合件应在生产车间制作,不得在现场进行。
硅酮结构密封胶应打注饱满。
不得使用过期的硅酮结构密封胶和耐候硅酮密封胶。
铝型材加工制作1.铝型材下料:(1)玻璃幕墙结构杆件下料前应进行校直调整;(2)玻璃幕墙横梁的允许偏差为土O.55mm,竖框的允许偏差为±1.0mm,端头斜度的允许偏差为-15,o截料端头不应有加工变形,毛刺不应大于O.2mm;(3)应严格按零件图下料,下料前必须认真看懂、理解零件图中的各项技术指标、尺寸的含义,认真核对型材代号及断面形状,有疑问时,及时向有关部门反映;(4)当第一件零件下出后必须复查长度、角度等尺寸是否与图纸及偏差要求相符,下料过程中也要按比例(一般为10%)进行抽查;(5)操作过程中注意保护型材.,防止表面擦伤、碰坏;下料后的半成品要合理堆放,注明所用工程名称、零件图号、长度、数量等。
2.机械加工:(1)玻璃幕墙结构杆件的孔位允许偏差为±0.5mm,孔距允许偏差为±0.5mm,累计偏差不应大于(2)钾钉的通孔尺寸偏差应符合现行国家标准(钾钉用通孔)GB1521的规定;(3)沉头螺钉的沉孔尺寸偏差应符合现行国家标准《沉头螺钉用沉孔》GB1522的规定;(4)圆柱头、螺栓的沉孔尺寸偏差应符合现行国家标准《圆柱头、螺栓用沉孔》GB1523的规定;(5)构件铳槽尺寸允许偏差应符合规范要求;(6)构件铳豁尺寸允许偏差应符合规范要求;(7)构件铳梯尺寸允许偏差应符合规范要求;(8)应严格按零件图尺寸加工,开机前必须认真看懂、理解零件图中的各项技术指标、尺寸的含义,认真核对零件代号、断面形状、零件长度、数量,有疑问时,及时向有关部门反映;(9)根据加工零件的各项技术指标、加工精度,合理选用刀具、模具及设备,确保零件加工精度;(10)根据加工要求准确划线定位,加工出的第一件零件应复查各项技术指标是否与图纸一致,加工过程中也要反复抽查;(11)加工过程中注意保护,防止损伤;加工出的第一件零件要合理堆放,做好标记;对于直接入库的零件,必须进行包装,注明所用工程名称、零件图号、长度、数量等。
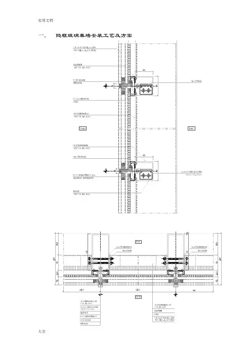
隐框玻璃幕墙施工工法工艺及要点
隐框玻璃幕墙施工工法工艺及要点
一、工艺流程
施工准备→测量放线→预埋件安装处理→连接角码安装→立柱安装→横梁安装→结构玻璃装配组件制作安装→耐候硅酮密封胶嵌缝→清洁检查→竣工验收
二、施工工艺及施工要点:
A、施工准备:材料准备:根据图纸及工程情况,编制详细的材料订货供应计划单。
施工机具:对所用机具进行检测,确保其性能良好。
人员准备:对技术工人进行技术培训、交底。
技术准备:熟悉图纸,准备有关图集、质量验收标准和内业资料所用的表格。
B、测量放线:根据土建单位提供的中心线及标高点进,以建筑物的轴线为依据,对巳完工的土建结构进行测量。
根据土建标高基准线测预埋件标高中心线,检查预埋件标高偏差;找出幕墙立柱与建筑轴线的关系,根据土建轴线测量立柱轴线,检查预埋件左右偏差。
整理以上测量结果,确定幕墙立柱分隔的调整处理方案。
根据设计图纸和土建结构误差确定幕墙立柱外平面轴线距建筑物外平面轴线的距离,在墙面顶部合适位置用钢琴线定出幕墙立柱外平面轴线。
用钢琴线定出每条立柱的左右位置。
每一定位轴线间的误差在本定位轴线间消化,误差在每个分格间分摊小于2mm。
确定立柱顶标高与楼层标高的关系,沿楼板外沿弹出墨线定出立柱顶标高线。
测量工具:经纬仪、水准仪(有时也用水平管)和线坠。
C、预埋件安装处理:定位预埋件安装位置,打钻安装。
要求预埋件位置准确、埋设牢固。
标高偏差不大于9mm,左右位移不大于20mm。
D、连接角码安装:连接角码焊接钢板。
连接角码端部在焊接钢板外无法时,切短角码,增加焊缝长度;角码侧边无法焊接时,切去角码边缘,留出焊缝;预埋板两个方向偏差很大时,补钢板;预埋板凹入或倾斜过大时,补加垫板。
E、立柱安装:先把芯套(接长立柱与立柱用,上下层立柱之间留20mm以上的伸人缝。
)插入立柱内,然后在立柱上钻孔,将连接角码用不锈钢螺栓安装在立柱上,二者之间用防腐垫片隔开。
立柱安装顺序由下至上。
使立柱上巳有的中心线和测量时所定的立柱站线(钢琴线)重合,立柱顶和测量时所定的标高控制线水平,另一焊工把连接角码临时点焊在预埋钢板上,然后调整立柱位置。
第一条立柱准确无误后,把上一层立柱套入下一层立柱芯套,就位准确后点焊。
如此循环,完成一组立柱安装。
一面幕墙立柱安装完毕,经检查位置准确、安装牢固后,再按焊缝要求加焊。
立柱安装标高偏差不应大于3mm,轴线前后偏差不应大于2mm,左右偏差应大于3mm;相邻两根立柱安装标高偏差不应大于3mm,立柱的最大标高偏差不应大于5mm;相邻两根立柱的距离偏差不应大于2mm。
F、横梁制作安装:用水准仪把楼层标高线引到立柱上。
以楼层标高线为基准,在立柱侧面标出横梁位置。
将横梁两端的连接件(铝角码)和弹性橡胶垫安装在立柱的预定位置,要求安装牢固、接缝严密。
横梁的安装应由下向上进行,当安装完成时,应进行检查、调整、校正、固定,使其符合质量要求。
相邻两根横梁的水平标高偏差不应大于1mm。
标高偏差:当一幅宽度小于或等于35m时,不应大于5mm;当一幅宽度大于35m时,不应大于7mm。
G、结构玻璃装配组件制作安装:确定玻璃板块在立面上的水平、垂直位置,并在主框格上划线。
玻璃板块临时固定后对板块进行调整,调整标准横平、竖直、面平。
用压块把玻璃板块固定在主框格上。
压块间距不大于300mm。
上压块时要注意钻孔,螺栓采用M5×20不锈钢机械螺栓。
压块一定要压紧。
H、耐候硅酮密封胶嵌缝:充分清洁板材间缝隙,不应有水、油渍、涂料、铁锈、水泥砂浆、灰尘等。
充分清洁粘结面,加以干燥。
为调整缝的深度,避免三边粘胶,缝内填泡沫塑料棒。
在缝两侧贴保护胶纸保护玻璃不被污染。
注胶后将胶缝表面抹平,去掉多余的胶。
注胶完毕,将保护纸撕掉,必要时用溶剂擦拭玻璃。
、胶在未完全硬化前,不要沾染灰尘和划伤。
I 、保护和清洗:保护和清洗
J 、竣工验收:竣工验收。
三、质量控制
1、质量标准:请参照《玻璃幕墙工程技术规范》(JGJ102—96)和《玻璃幕墙工程质量检验标准》(JGJ/T139—20016)。
2、质量管理要点:
材料控制:幕墙所使用的各种材料必须符合设计和规范要求。
材料采购前必须弄清楚规范中对该种材料有何质量要求。
各种构件在运输过程中必须有可靠的保护措施。
立柱放线:立柱放线是幕墙施工中比较繁琐的工序,立柱放线是否准确将影响整过施工过程。
测量人员在工作中必须反复校对,确保放线精确。
立柱与主体结构的连接点施工中,必须用合格焊工。
焊接、防锈、安装精度必须合格。
构件安装过程中,技术员要勤吊勤靠,确保各种构件的安装精度和可靠度符合要求。
幕墙转角、上下边缘、沉降缝部位的处理要美观,防火、防水、防雷等要满足要求。
四、安全措施
1、安装幕墙用的施工机具在使用前必须进行严格检验。
手持电动工具用前作绝缘电压试验;手持玻璃吸盘和玻璃吸盘安装机,须作吸附重量和吸附持续时间试验。
2、施工人员配备必要的劳动保护用品,防止人员及物件坠落。
3、防止密封材料在工程使用中溶剂中毒,且要保管好溶剂,以防发生火灾。
4、现场焊接时,应在焊件下方加设接火斗。
5、设专职安全员进行监督和巡回检查。