隐框玻璃幕墙专项现场施工方法
- 格式:docx
- 大小:39.78 KB
- 文档页数:15
隐框玻璃幕墙的施工工艺流程一、基本作业条件1、各单位都应该编制幕墙施工组织设计,并按施工组织设计的顺序进行施工。
2、幕墙应在主体结构施工完毕后开始施工。
对于高层建筑的幕墙,如因工期需要,应在保证质量与安全的前提下,可按施工组织设计沿高分段施工。
在与上部主体结构进行立体交叉施工幕墙时,结构施工层下方及幕墙施工的上方,必须采取可靠的防护措施。
3、幕墙施工时,原主体结构施工搭设的外脚手架宜保留,并根据幕墙施工的要求进行必要的拆改(脚手架内层距主体结构不小于300mm)。
如采用吊篮安装幕墙时,吊篮必须安全可靠。
4、幕墙施工时,应配备必要的安全可靠的起重吊装工具和设备。
5、当装修分项工程会对幕墙造成污染或损伤时,应将该项工程安排在幕墙施工之前施工,或应对幕墙采取可靠的保护措施。
6、不应在大风大雨(恶劣)气候环境下进行幕墙的施工。
当气温低于-5℃时不得进行玻璃安装,不应在雨天进行密封胶施工。
7、应在主体结构施工时控制和检査固定幕墙的各层楼(屋)面的标高、边线尺寸和预埋件位置的偏差,并在幕墙施工前应对其进行检査与测量。
当结构边线尺寸偏差过大时,应先对结构进行必要的修正;当预埋件位置偏差过大时,应调整框料的伺距或修改连结件与主体结构的连接方式。
二、幕墙安装1、隐框玻璃幕墙安装施工工艺流程:测量放线→安装L型转接件→安装铝立柱→安装铝横梁→安装避雷、防火→玻镁板安装→安装玻璃→安装横(竖)向扣盖→注胶及外立面清洗(1)测量放线:依据结构复査时的放线标记,及预埋件的十字中心线,确定安装基准线,包括龙骨排布基准及各部分幕墙的水平标高线,为各个不同部位的幕墙确定三个方向的基准。
(2)L型转接件的安装:根据预埋件的放线标记,将L型转接角钢码采用M16的螺栓固定在预埋件上,转接角钢码中心线上下偏差应小干2mm,左右偏差应小于2mm。
[型转接角钢码与立柱接触边应垂直于墓墙横向面线,且应保持水平,不能因预埋板的倾斜而倾斜。
遇到此种情况时,应在角钢码与预埋钢板面之间填塞钢板或圆钢条进行支垫,并应进行满焊。
隐框玻璃幕墙施工工艺一、施工操作工艺1、弹线先将主体结构上的预埋件表面清理干净,然后根据建筑物轴线弹出纵横两个方向的基准线和标高控制线。
2、安装连接件把连接铁件按正确位置临时点焊在结构的预埋铁件上。
若主体结构上没有埋设预埋件,可用膨胀螺栓做为铁件与主体结构连接。
3、安装幕墙立柱以基准线为准,确定幕墙立柱位置,然后与连接铁件临时固定。
4、幕墙横梁安装将横梁两端的连接件及弹性橡胶垫安装在立柱的预定位置并临时固定。
5、幕墙横梁、立柱的调整与紧固幕墙横梁、立柱全部就位后,应再做一次全面检查,并对局部不适的地方做最后调整,使整幅幕墙的安装位置达到设计要求。
最后对临时焊接件进行正式焊接,紧固连接螺栓,对没有防松措施的螺栓均需点焊防松。
所有焊缝均应清理干净并做防锈处理。
6、托条安装按设计要求在每个分格块玻璃下端的位置安设两个铝合金或不锈钢托条,其长度不小于100mm,厚度不小于2mm,垂直于幕墙平面的宽度不应露出玻璃板外表面。
7、玻璃安装把幕墙横梁、立柱及托条表面清理干净。
按设计要求的结构胶厚度在横梁、立柱表面刷结构胶(一般涂刷结构胶厚度为:6mm≤结构胶厚度≤12mm),然后将擦拭干净的每个格子的玻璃板底端放在托条上,用手轻轻把玻璃板向横梁、立柱上的结构胶面上推压,使其与横梁、立柱粘紧、粘牢。
安装玻璃时,玻璃的朝向要符合设计要求。
玻璃安完后沿玻璃四周注密封胶密封,注胶要均匀、连续,胶缝厚度≥5mm,要及时清理胶缝外的多余粘胶。
8、幕墙收口按设计要求安装好幕墙的收口结构后,应及时处理其与主体结构的缝隙。
幕墙应严密不漏水。
9、幕墙伸缩缝幕墙伸缩缝必须满足设计要求。
如果伸缩缝采用密封胶填充,填密封胶时注意别让密封胶接触主梃衬芯,防止幕墙伸缩活动破坏胶缝。
10、抗渗漏试验幕墙施工中应分层进行抗雨水渗漏性能检查。
11、清洁安装玻璃的同时进行清洁工作,在拆除排棚前应作最后一次检查,以保证玻璃安装和密封胶、结构胶缝的质量及幕墙表面的清洁。
隐框玻璃幕墙具体施工方法三篇篇一:隐框玻璃幕墙具体施工方法篇二:隐框玻璃幕墙具体施工方案一、工艺概述本玻璃幕墙工程为半隐框玻璃幕墙。
针对本工程施工设计图中对幕墙保温、抗震及防火等方面的要求,对玻璃幕墙的材料选择及细部节点设计综合考虑其安全性和合理性。
为进一步消除(热)桥现象,在玻璃装配的骨料位置也通过细致合理的设计,有效截断了热传导途径。
为使玻璃幕墙具有良好的安装性和可维护性,玻璃面板特别设计成统一可在室外一侧完成安装的形式,一便于在日后可能更换玻璃时避免对室内设施的损坏。
另外,由于玻璃面板和骨料之间设有柔性橡胶条避免了面板与骨料的直接接触,起到吸消音的作用。
本工程玻璃幕墙采用本公司加工、制作、安装工艺非常成熟的幕墙产品,竖料和横料通过连接件与主体结构连接,玻璃面板通过结构胶与立柱和横料连接,采用止退螺栓将压块固定,该结构安装快捷、维修方便、施工工期短,能很好的保证施工安装质量。
二、主要工艺流程:主要安装流程有:测量放线、连接件安装、骨架安装、玻璃安装、打密封胶、清洗、交验等几个方面。
三、主要安装流程网络图:四、连接件安装工艺(一)连接件安装工艺流程熟悉图纸及技术交底→熟悉施工现场→寻准预埋件对准立柱线位→水平线控制水平高度及进深位置→暂固定→检查→最终固定→防腐→记寻。
(二)工艺概述连接件安装的质量与否是关系到幕墙安装质量的一个重要环节,该部份工作还包含预埋件的偏位处理,防雷的连接等。
连接件安装之前,预埋件有偏差需先按设计要求进行处理,漏埋件的需进行后埋处理,后埋处理采用通过植化学螺栓与砼结构墙连接,确保安全、经济又能满足相关规范及设计要求。
连接件与埋件是通过预埋件专用螺栓连接。
预埋件偏差的需先按设计要求处理,漏埋件的需进行后埋处理(后埋处理采用后埋件通过植化学螺栓与砼结构墙连接),确保安全、经济又能满足相关规范要求。
安装至少相邻三根竖料后,调平连接件并注意相邻竖料的平整(骨架调平还可利用连接件调节孔进行调整)。
全隐框玻璃幕墙施工方案1. 引言全隐框玻璃幕墙作为现代建筑中常见的外墙材料,具有透明度高、自重轻、造型灵活等优点,在建筑外观设计中起到了重要的作用。
本文将介绍全隐框玻璃幕墙施工方案,包括施工准备、施工工艺、质量控制等方面的内容。
2. 施工准备在施工过程中,需要做好以下准备工作:2.1 材料准备全隐框玻璃幕墙施工所需要的主要材料包括玻璃板、铝合金型材、密封胶等。
在施工前,需要提前采购并检查这些材料的质量和数量。
2.2 设备准备施工所需的设备包括塔吊、脚手架、电动吊篮等。
在施工前,需要对这些设备进行检修和调试,确保其正常运行。
2.3 人员准备施工所需的人员包括施工队长、操作工、质检人员等。
在施工前,需要组织好人员,并对他们进行必要的培训和安全教育。
3. 施工工艺全隐框玻璃幕墙的施工主要包括以下几个步骤:3.1 围护结构搭设在施工现场搭设好围护结构,包括脚手架和临时支撑等,确保安全施工。
3.2 型材安装首先安装铝合金型材,按照设计要求进行定位和固定。
在安装过程中,要注意与主体结构的连接,确保稳固可靠。
3.3 玻璃安装将预先加工好的玻璃板插入到型材中,采用适当的胶条和密封胶进行固定和密封。
在安装过程中,要注意保护玻璃板的表面,避免划伤或者破损。
3.4 密封胶施工在玻璃幕墙的接缝处施工密封胶,确保玻璃与铝合金型材之间的接缝密封,防止水和空气渗透。
3.5 检验与验收在施工完成后,要对玻璃幕墙进行检验,并进行验收。
主要包括外观质量、密封性能以及结构稳定性等方面的检测。
4. 质量控制为了确保全隐框玻璃幕墙的施工质量,需要进行严格的质量控制。
主要包括以下几个方面:4.1 施工工艺控制在施工过程中,按照设计要求和施工规范进行操作,确保每个环节的质量合格。
4.2 材料质量控制对采购的材料进行检查,确保其质量符合要求。
在施工现场,对材料的储存和使用进行管理,防止出现质量问题。
4.3 施工现场管理对施工现场进行管理,包括人员管理、设备管理和安全管理等。
全隐框玻璃幕墙施工方案一、引言全隐框玻璃幕墙是一种现代化建筑幕墙形式,它采用无框架的设计,使建筑外表面完全呈现出玻璃的效果,营造出透明、通透的视觉效果,极大地增强了建筑的美观性和现代感。
本文将介绍全隐框玻璃幕墙的施工方案。
二、材料准备在施工全隐框玻璃幕墙时,需要准备以下材料:•玻璃幕墙板材:选择具有优良抗风压性能、透光性好的TGI玻璃。
•玻璃胶:选择粘接强度高、抗老化性能好的结构玻璃胶。
•铝合金型材:选择抗风压性好、耐腐蚀性能好的铝合金型材。
•不锈钢螺丝: 选择抗腐蚀、强度高的不锈钢螺丝。
•施工工具:包括电动工具、手动工具等。
三、施工步骤步骤一:制定施工计划在施工全隐框玻璃幕墙前,需要制定详细的施工计划,包括施工人员的分工、材料的采购、各项工作的时间节点等。
步骤二:安装铝合金框架首先需要根据设计图纸,在建筑物的墙面上安装铝合金型材。
按照固定间距,以及精确的尺寸要求进行安装。
步骤三:制作玻璃板根据建筑设计的需求,对TGI玻璃进行切割和加工,制作成符合幕墙的尺寸和形状的玻璃板。
步骤四:粘贴玻璃板将制作好的玻璃板放置在铝合金框架上,使用结构玻璃胶将玻璃板粘贴在框架上。
注意要保证玻璃板与框架的贴合度和水平度。
步骤五:密封处理在完成玻璃板的粘贴后,需要对接缝进行密封处理。
使用结构玻璃胶填充接缝,确保接缝的完全密封,以提高幕墙的密封性能。
步骤六:验收和清理在施工完成后,进行验收工作。
对幕墙进行外观检查和功能性测试,确保幕墙的质量和性能符合设计要求。
同时进行施工现场的清理工作,确保施工现场的整洁和安全。
四、施工安全措施在施工全隐框玻璃幕墙时,需要注意以下安全措施:1.施工人员必须按照相关规定穿戴好防护装备,包括安全帽、安全鞋等。
2.在高空施工时,必须使用安全绳索进行固定,确保施工人员的安全。
3.施工现场必须设置明显的警示标志,提醒过往人员注意施工安全。
4.施工时必须严格控制使用的材料,确保材料的质量符合要求,杜绝使用劣质材料。
隐框玻璃幕墙施工方案隐框玻璃幕墙是一种现代化外墙装饰材料,具有透明、明亮、美观、节能等优点,被广泛应用于商业、办公和住宅建筑的外墙装饰。
下面是一种隐框玻璃幕墙施工方案,用于参考和了解。
一、材料准备1. 隐框玻璃幕墙系统所需材料包括金属铝合金型材、玻璃板、密封胶、紧固件等。
2. 型材应符合国家标准,质量可靠,表面要求光滑平整。
二、施工步骤1. 确定施工图纸和设计要求,根据要求制定施工计划。
2. 进行基础构造和支座的安装,确保幕墙的稳固性和承重能力。
3. 安装金属铝合金型材,按照设计要求和尺寸进行切割和组装。
采用专业工具和设备确保安装精度。
4. 玻璃板的安装,根据设计要求选择合适的玻璃板,保证质量和透明度。
采用专业工具和设备进行精确的测量和切割,保证玻璃板的尺寸和安装质量。
5. 进行密封胶的施工,根据设计要求和规范选择合适的密封胶材料。
采用专业工具和设备,确保密封胶的均匀施工和质量。
6. 进行紧固件的安装,确保幕墙的稳固性和抗风能力。
选择合适的紧固件材料,并采用专业工具和设备进行安装。
7. 进行检查和测试,确保幕墙的质量和性能。
对幕墙进行综合检测,包括尺寸、质量、漏水等方面。
三、注意事项1. 隐框玻璃幕墙施工需要具备一定的专业知识和技能,施工人员应经过专业培训并持有相关证书。
2. 在施工前要进行详细的现场勘察和测量,确保施工的准确性和可行性。
3. 施工过程中要严格按照设计要求和规范进行操作,确保施工质量和安全性。
4. 在施工过程中要注意安全,采取必要的安全防护措施,确保施工人员的安全。
5. 施工结束后要进行全面的检查和测试,确保幕墙的质量和性能。
以上是一种隐框玻璃幕墙施工方案的概述,施工过程中还需要根据具体情况和要求进行调整和改进。
作为参考,希望对您有所帮助。
东方市隐框幕墙施工方案一、施工前准备施工图纸审核:对施工图纸进行全面审核,确保图纸与实际施工条件相符,明确施工难点和要点。
材料准备:根据图纸要求,提前准备好所需的隐框材料、玻璃幕墙板、密封材料等,并进行质量检验。
人员培训:对施工人员进行技术和安全培训,确保施工团队熟悉施工图纸和施工工艺。
现场勘查:对施工现场进行详细勘查,了解现场环境、施工条件等,确保施工顺利进行。
二、基础处理基础清理:清理施工基础表面的灰尘、油污等杂物,确保基础表面平整、干净。
基础找平:对基础表面进行找平处理,确保基础表面平整度符合施工要求。
基础固定:根据施工图纸要求,进行基础固定件的安装和固定。
三、安装隐框材料材料搬运:将隐框材料搬运至施工现场,并确保搬运过程中不损坏材料。
材料定位:根据施工图纸要求,对隐框材料进行定位,确保安装位置准确。
材料固定:采用专用固定件将隐框材料固定在基础上,确保固定牢固。
四、安装玻璃幕墙板玻璃搬运:将玻璃幕墙板搬运至施工现场,并采取保护措施,防止玻璃损坏。
玻璃定位:根据施工图纸要求,对玻璃幕墙板进行定位,确保安装位置准确。
玻璃安装:采用专用夹具和密封胶将玻璃幕墙板安装在隐框材料上,确保安装牢固、密封性好。
五、密封处理密封材料选择:根据施工图纸要求,选择合适的密封材料进行密封处理。
密封施工:在玻璃幕墙板与隐框材料之间、隐框材料之间等关键部位进行密封处理,确保密封效果良好。
六、检测和清理质量检测:对施工完成的隐框幕墙进行全面质量检测,确保施工质量符合要求。
现场清理:清理施工现场的杂物、垃圾等,保持现场整洁。
七、质量控制材料控制:对进场的材料进行严格把关,确保材料质量符合施工要求。
工艺控制:施工过程中严格控制施工工艺和操作流程,确保施工质量。
检测控制:对施工过程中的关键部位和关键工序进行检测,确保施工质量。
八、安全施工技术措施安全教育:对施工人员进行安全教育和培训,提高施工人员的安全意识。
安全设施:施工现场设置必要的安全设施,如警示标识、安全网等。
明(隐 )框玻璃幕墙安装施工方案(一) 施工准备1.施工现场准备(1)施工前 ,第一要对现场管理和安装人员进行全面的技术交底和质量交底及安全规范教育,备齐防火和安全器械与设备。
(2)在构件进场搬运、吊装时,需要增强保护,不得碰撞和破坏。
构件应放在通风、干直立摆放,在室外堆放时,应采纳防备举措。
(3)构件应按品种、规格、种类和编号堆放在专用架子或垫木上。
玻璃构件应稍稍倾斜直立摆放,在室外堆放时,应采纳防备举措。
(4)构件安装前,均应进行查验与校订。
构件应切合设计图纸及有关质量标准的要求,不得有变形、损害和污染,不合格构件不得上墙安装。
玻璃幕墙构件在运输、堆放、吊装过程中有可能会人为地使构件产生变形、破坏等,在安装以前必定要提早对构件进行查验,发现不合格的应实时改换。
同时,幕墙施工承包商应依据详细状况和过去施工经验,对易破坏和丢掉的构件、配件、玻璃、密封材料、胶垫等,应有必定的改换贮备数目,一般构件、配件等在 1%~5%,玻璃在安装过程中的破坏率为总块数的 3%~5%。
(5)构件在现场的协助加工如钻孔、攻丝、构件偏差的现场改正等,其加工地点、精度、尺寸应切合设计要求。
(6)玻璃幕墙与主体结构连结的预埋件,应在主体结构施工时按设计要求埋设。
在搁置预埋件以前,应按幕墙安装基线校核预埋件的正确地点,预埋件应坚固固定在预约地点上,并将锚固钢筋与主体构件主钢筋用铁丝绑扎坚固或点焊固定,防备预埋件在浇注混凝土时,地点改动。
施工时预埋件锚固钢筋四周的混凝土一定密实振捣,混凝土拆模时后,应实时将预埋件钢板表面上的沙浆除去洁净。
2.施工技术准备。
(1)熟习本工程玻璃幕墙的特色,此中包含骨架设计的特色,玻璃安装的特色及结构方面的特色。
而后依据其特色,研究详细的施工方案。
(2)比较玻璃幕墙的骨架设计,复查主体结构的施工质量。
因为主体结构的施工质量怎样,对骨架的地点影响较大。
特别是墙面的垂直度、平坦度偏差,将影响整个幕墙的水平地点。
隐框玻璃幕墙专项施工方案(优选.)古柏镇行政服务中心外装饰幕墙工程隐框玻璃幕墙专项施工方案南京环达装饰工程有限公司二〇一二年十月古柏镇行政服务中心外装饰幕墙工程隐框玻璃幕墙专项施工方案编制:审核:批准:一、放线定位:我司将于开工前派测量人员进场,以每层的500线与轴线作为基准线进行放线及校核现场结构及埋件尺寸,并确定主体结构边角尺寸反馈给技术部及早进行边角龙骨分格尺寸调整。
(1)、选定每层的500线作为基准线进行放线;(2)、利用钢卷尺、经纬仪从原始轴线控制点、标高点引测辅助轴线;(3)、利用经纬仪、测距仪对辅助轴线进行尺寸和角度复核,确保偏差在允许范围内,并标识于层面;(4)、利用辅助轴线,依据纵向龙骨布置图,用钢卷尺、经纬仪定出每边边角龙骨外表中心位置和每边中部龙骨外表中心点,复核后标识于层面:(5)、利用激光铅垂仪从标识点向上垂直引测直至斜面层顶,校核后安挂定位钢丝,利用经纬仪进行双向正交校核后固定;(6)、水平控制:依据《玻璃幕墙施工技术规范》要求,其整幅水平标高偏差≤5MM;(7)、幕墙分格轴线的测量放线与主体结构的测量放线配合,对误差进行控制、分配、消化,不使其积累;(8)、每天定时校核,以确保幕墙的垂直及立柱位置的正确;(9)、放线的顺序:按土建方提供的轴线,经我方复测后上、下放钢线,用经纬仪校核其准确性,幕墙支座的水平放线每二个分格设一个固定支点,用水平仪检测其准确性,同样按中心放线方法放出主梁的进出位线;(10)、每层楼的支座位置,由水平仪检测,相邻支座水平误差应符合设计标准。
二、骨架安装:对埋件检查无误后即可安装骨架,安装顺序是从下向上,对于玻璃幕墙,应先安装竖框,然后以竖框定位安装横框(层面部分应先安装主受力框)。
在安装过程中检查人员随时查看型材的表面保护情况。
骨架安装完毕后进行全面检查,尤其是横、竖梁中心线,必须用仪器对横梁及竖梁进行找正。
检查并核对无误后要对龙骨表面进行贴膜保护。
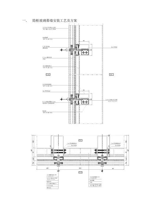
一.隐框玻璃幕墙横竖剖节点(一)安装施工准备1.施工工艺流程隐框玻璃幕墙的施工流程为:测量放线→预埋件的检查与补设→连接件安装→立柱安装→横梁安装→位置校核→防雷、防火安装→玻璃安装→连接打胶密封→交验。
隐框玻璃幕墙施工程序如下图a、图b、图c、图d、图e、图f 所示。
图a 埋件施工图b 连接件安装施工图c 幕墙立柱安装施工图d 幕墙横梁安装施工图e 幕墙胶条安装施工图f幕墙玻璃安装施工2.所需工器具及人员器具:电葫芦、梅花搬手、螺丝刀、打胶机、水准仪、经纬仪、紧线器、线坠、水平管、靠尺。
人员:6-8人(一组)。
作业时间:主体建筑测量放线完成,后补埋件复测及校正完成,脚手架及安全防护措施完毕。
3.安装前的准备工作安排好安装施工的必要场地。
检查安装工作面是否清理完毕,保证安装能不受干扰地进行。
有足够的材料、部件的放置场地,零件有库房;安排好水、电供应和起重设备;检查脚手架的安装情况;检查土建结构施工情况,是否满足施工验收规范的要求。
如果结构尺寸偏差过大,应采取补救措施;检查后补埋件是否齐全,有无漏补和过大偏位情况。
若有应及时与业主、总包和监理协商,采取有效的补救措施。
当设计无明确要求时,埋件的标高偏差不应大于5mm,位置偏差不应大于10mm。
4.安全、防范a.做好安全操作,防止工具坠落和坠物打击,配带安全帽、安全带,穿防滑鞋。
b.转接件连接部位是否清除干净。
c.对发现的质量、安全问题的处理意见要明确,并做好记录。
5.质量控制要点5.1后补埋件安装质量检测、控制a.主体支承结构上的后补埋件应重点检测埋设标高。
b.后补埋件的安装是否符合技术要求。
5.2铝型材立柱、横撑的安装质量控制a.对铝型材的原材料按国家标准进行验收,进行强度复查并逐根进行检查。
b.对铝型材立柱、横撑安装的倾斜度、水平度、标高、间距进行检查。
c.对安装的牢固程度进行检查。
d.对铝型材立柱、横撑安装后的整体平面度进行检查。
5.3玻璃的安装质量控制a.对玻璃材质进行检查。
隐框玻璃幕墙施工方案一、引言隐框玻璃幕墙是一种高档建筑外墙装饰材料,它能够提供良好的采光效果和视觉效果。
本文档旨在介绍隐框玻璃幕墙的施工方案,包括施工准备、材料选择、施工步骤等内容,以指导施工人员进行顺利、高质量的施工。
二、施工准备在开始施工之前,需要准备以下材料和设备:1.隐框玻璃幕墙板材及五金配件2.施工工具:卷尺、电钻、螺丝刀、吸盘等3.安全设备:安全帽、防护眼镜、耳塞等4.施工人员:具备一定施工经验的工人三、材料选择在选择隐框玻璃幕墙的材料时,需要考虑以下几个方面:1.板材的材质:常见的隐框玻璃幕墙板材有铝合金、钢材、不锈钢等,根据实际需要选择合适的材质。
2.玻璃的选择:玻璃的透光性、隔热性、安全性等是选择玻璃的重要考虑因素,根据建筑的需求和预算进行选择。
3.五金配件:五金配件的质量和型号对隐框玻璃幕墙的安装和使用起到重要作用,应选择合适的五金配件。
四、施工步骤1.确定施工范围和尺寸:根据建筑设计图纸和实际需求,确定隐框玻璃幕墙的施工范围和尺寸,并标定出具体位置。
2.搭建施工脚手架:根据施工范围和高度,搭建施工所需的脚手架和安全网,保证施工人员的安全。
3.安装隐框玻璃幕墙板材:根据设计要求和施工图纸,按照先横后纵、先上后下的原则,依次安装隐框玻璃幕墙板材。
注意板材的对齐和预留膨胀缝。
4.安装五金配件:根据设计要求,选择适当的五金配件,并按照施工图纸的要求进行安装。
注意使用合适的螺丝和扣具固定。
5.安装玻璃:根据设计要求和玻璃的尺寸,将玻璃安装到隐框玻璃幕墙板材上,并使用专用工具固定好玻璃。
6.清洁和检查:完成安装后,对施工现场进行清洁,检查隐框玻璃幕墙的安装质量和固定性,确保达到相关标准和要求。
7.完成验收:完成施工后,进行相关部门的验收,并办理相关手续。
五、安全措施在进行隐框玻璃幕墙施工时,需要严格遵守以下安全措施:1.戴好相关的安全防护设备,如安全帽、防护眼镜等。
2.使用合适的脚手架和安全网,并确保其稳定和牢固。
玻璃幕墙施工方案本工程玻璃幕墙为隐框幕墙,采用银灰色铝合金框,蓝色玻璃,均由专业厂家按设计要求加工构件,经检验合格后运到现场安装。
构件加工过程中派人到厂家监督指导加工,确保原材料的质量及构件加工的质量。
(一)施工准备1、对骨架本身进行处理:注意骨架氧化膜的保护,在与砼直接接触的部位,对氧化膜进行防腐处理。
2、骨架接长采用连接件,分别穿进上、下杆件的端部后,再用螺栓拧紧。
3、施工安装要点:(1)竖框安装要求准确和符合质量标准。
接头采用套筒连接,接头留一定空隙。
连接件与预埋件的连接,采用刚接构造。
(2)立柱安装前应认真核对立柱的规格、尺寸、数量、编号是否与施工图纸相一致;(3)先将竖框与连接件连接,然后连接件再与主体预埋件连接,并进行调整和固定竖框,安装标高偏差控制在3mm以内,轴线前后偏差在2mm以内,左右偏差在3mm以内。
同时注意误差不得积累,且开启窗处为正公差。
(4)相邻竖框安装标高偏差不应大于3mm,同层竖框的最大标高偏差不应大于3mm,相邻竖框的距离偏差不应大于2mm。
竖框安装的允许偏差及检查方法应符合下表的规定。
竖框安装的允许偏差(mm)(5)竖框与连接件(支座)接触面之间一定要加防腐隔离垫片。
(6)竖框按偏差要求进行初步定位后进行自检,对不合格的应进行调校修正。
抽检数量为竖框总量的5%以上,且不少于5件。
抽检合格后将连接件(支座)正式焊接牢固。
(7)竖框安装就位、调整后及时固定。
玻璃幕墙安装的临时螺栓等在构件安装、就位、调整、固定后及时拆除。
(8)焊接场地必须采取防火、防爆安全措施后,方可进行操作。
电焊机接地零线及电焊工作回线必须符合有关安全规定。
(9)竖框安装牢固后,必须取掉上下两竖框之间用于定位伸缩缝的标准块,并在伸缩缝处打密封胶。
(二)幕墙组件安装1、选用密封材料(1)先在铝合金框内衬垫氯丁橡胶等弹性材料,防止玻璃因温度变化引起的胀缩导致破坏。
(2)胶垫宽度控制不要超过玻璃宽度,长度根据玻璃质量决定。
隐框玻璃幕墙施工工法隐框玻璃幕墙是近年来比较流行的建筑外墙类型,其将玻璃与铝框完美结合,极大地提升了建筑整体的美观性和视觉效果。
本文将介绍隐框玻璃幕墙的施工工法,以帮助建筑师和施工团队更好地进行施工。
隐框玻璃幕墙施工前准备在进行隐框玻璃幕墙施工前,需要先进行一系列的准备工作:1. 建筑结构设计的确认确定建筑结构设计是否符合玻璃幕墙施工的要求。
对于不规则的建筑结构,需要提前与设计师沟通并出具相应的设计方案。
2. 深化施工图设计在拿到初步施工图之后,需要进行深化施工图设计,明确幕墙的材料尺寸、连接方式、安装节点等。
3. 检查隐框的数量和尺寸根据设计图纸检查隐框的数量和尺寸,避免在施工中由于材料不足或尺寸不符而出现生产停滞或人力调整问题。
4. 按照施工规范确定施工方案根据施工规范,确定隐框玻璃幕墙施工方案,包括玻璃开窗的高度、墙体的准备工作等。
隐框玻璃幕墙施工工法1. 墙体准备工作在正式施工之前,需要对墙体进行预处理工作。
具体包括以下步骤:(1)墙面清理对墙面进行清理,同时检查墙面平整度是否符合施工要求。
(2)尺寸检查利用激光分级仪或者人工检查工具,检查墙面的垂直度是否符合施工要求。
(3)加强墙体结构如有必要,可以在墙体添加加固工程,以保证施工的安全和稳定性。
2. 隐框加工制作隐框的加工制作是整个施工流程中的重要步骤之一。
制作隐框需要使用尺寸精准的加工设备和专业的加工技术。
3. 框架安装隐框的框架安装包括支撑骨架的安装和隐框的铰链及其它配件的安装。
重点在于准确测量、精准切割和调整位置,保证每个隐框的安装位置准确无误。
4. 玻璃安装在隐框安装完成后,需对玻璃进行安装。
最常见的是采用配套的钢化玻璃板安装,同时也需要特殊的夹胶和密封条来达到玻璃和铝框的精确配合。
5. 施工验收在完成以上工作后,需要对整个隐框玻璃幕墙进行漏洞检查和隐蔽工程检验,对施工质量进行验收。
如发现问题,及时修正。
隐框玻璃幕墙施工注意事项1. 安全措施在施工过程中,需要严格遵守安全规定,尤其是针对高空作业的安全要求,确保施工人员的安全。
玻璃隐框幕墙施工方案一、铝合金玻璃幕制作(一)玻璃幕墙构件加工制作玻璃幕墙构件的加工制作应严格按设计施工图进行,必要时应对已建建筑物主体进行复测,及时调整幕墙的设计并及时修改设计施工图,合理安排组织幕墙构件的加工组装。
玻璃幕墙使用的所有材料和附件,都必须有产品合格证、说明书以及执行标准的编号;特别是主要部件,同安全有关的材料和附件,更要严格检查其质量,检查出厂时间、存放有效期,严禁使用不合格和过期材料。
加工幕墙构件的设备、机具应能达到幕墙构件加工精度的要求,定期进行检查和计量认证,如设备的加工精度、粗糙度、角度、胶体混合比、色调和均匀度等,及时进行检查维护;对量具应按计量管理部门的规定,定期进行计量鉴定,以保证加工产品质量和精确度。
幕墙构件加工环境要求清洁,干燥,通风良好,温度也应满足加工的需要,对于硅酮结构密封胶的施工环境要求更为严格,除要求清洁无尘土外,室内温度应控制在5-30℃之间,相对湿度应控制在35%-75%之间。
隐框玻璃幕墙的结构装配组合件应在生产车间制作,不得在现场进行。
硅酮结构密封胶应打注饱满。
不得使用过期的硅酮结构密封胶和耐候硅酮密封胶。
铝型材加工制作1.铝型材下料:(1)玻璃幕墙结构杆件下料前应进行校直调整;(2)玻璃幕墙横梁的允许偏差为土O.55mm,竖框的允许偏差为±1.0mm,端头斜度的允许偏差为-15,o截料端头不应有加工变形,毛刺不应大于O.2mm;(3)应严格按零件图下料,下料前必须认真看懂、理解零件图中的各项技术指标、尺寸的含义,认真核对型材代号及断面形状,有疑问时,及时向有关部门反映;(4)当第一件零件下出后必须复查长度、角度等尺寸是否与图纸及偏差要求相符,下料过程中也要按比例(一般为10%)进行抽查;(5)操作过程中注意保护型材.,防止表面擦伤、碰坏;下料后的半成品要合理堆放,注明所用工程名称、零件图号、长度、数量等。
2.机械加工:(1)玻璃幕墙结构杆件的孔位允许偏差为±0.5mm,孔距允许偏差为±0.5mm,累计偏差不应大于(2)钾钉的通孔尺寸偏差应符合现行国家标准(钾钉用通孔)GB1521的规定;(3)沉头螺钉的沉孔尺寸偏差应符合现行国家标准《沉头螺钉用沉孔》GB1522的规定;(4)圆柱头、螺栓的沉孔尺寸偏差应符合现行国家标准《圆柱头、螺栓用沉孔》GB1523的规定;(5)构件铳槽尺寸允许偏差应符合规范要求;(6)构件铳豁尺寸允许偏差应符合规范要求;(7)构件铳梯尺寸允许偏差应符合规范要求;(8)应严格按零件图尺寸加工,开机前必须认真看懂、理解零件图中的各项技术指标、尺寸的含义,认真核对零件代号、断面形状、零件长度、数量,有疑问时,及时向有关部门反映;(9)根据加工零件的各项技术指标、加工精度,合理选用刀具、模具及设备,确保零件加工精度;(10)根据加工要求准确划线定位,加工出的第一件零件应复查各项技术指标是否与图纸一致,加工过程中也要反复抽查;(11)加工过程中注意保护,防止损伤;加工出的第一件零件要合理堆放,做好标记;对于直接入库的零件,必须进行包装,注明所用工程名称、零件图号、长度、数量等。
隐框幕墙施工方案1. 简介隐框幕墙是一种现代建筑外墙装饰材料,它通过在建筑结构外围设置隐蔽的铝合金框架,将玻璃、石材等装饰面板与建筑主体墙体之间形成一定的空隙,从而构成了具有丰富造型和良好视觉效果的建筑外墙系统。
本文将介绍隐框幕墙的施工方案。
2. 施工步骤2.1 准备工作在施工前,需要进行一些准备工作:•确定施工方案:根据建筑设计图纸和要求,确定隐框幕墙的具体尺寸、材料和施工方法。
•确定材料供应商:选择可靠的材料供应商,并与其合作,确保材料的质量和供货周期。
•准备施工设备:准备好所需的施工设备和工具,如搭建脚手架、吊篮、钢丝绳等。
2.2 安装框架隐框幕墙的框架通常由铝合金材料制成,安装过程如下:1.搭建脚手架:在施工区域搭建脚手架,为框架的安装提供支撑和便利。
2.测量定位:根据设计图纸和要求,使用测量仪器精确测量框架的位置和尺寸,标记出固定点。
3.框架安装:根据标记点,将铝合金框架分段安装在建筑主体墙面上,使用螺栓等固定。
2.3 安装装饰面板安装框架后,可以开始安装装饰面板,常用的包括玻璃、石材等。
1.预处理面板:根据需要,预先处理装饰面板,如玻璃切割、石材打磨等。
2.安装面板:将预处理好的装饰面板按照设计图纸要求,安装在铝合金框架上。
常见的安装方法有螺栓固定、胶粘等。
3.检查质量:安装完成后,进行质量检查,确保装饰面板的安装平整、牢固,并且与周围面板之间无明显的缝隙。
2.4 完善细节在隐框幕墙施工的最后阶段,需要对细节进行完善。
1.封边处理:对装饰面板之间的缝隙进行封边处理,以防止水和灰尘进入框架内部。
2.补漆处理:对铝合金框架进行喷漆处理,增强框架的防腐蚀性能和美观度。
3.清洁保养:完成施工后,对隐框幕墙进行彻底的清洁和保养,使其保持良好的外观和功用。
3. 安全注意事项在隐框幕墙施工过程中,需注意以下安全事项:•施工人员需严格按照操作规程进行操作,遵守相关安全规定。
•施工现场应设置警示标志,确保施工区域的安全。
隐框(带玻璃肋)、半隐框玻璃幕墙的施工方法一、工艺概述本隐框玻璃幕墙位于屋顶部分,外带玻璃肋,既起到装饰作用,又能减轻幕墙的压力作用。
半隐框玻璃幕墙位于各个立面。
铝合金骨架为6063-T5型号型材、表面用氟碳喷涂处理。
面层采用6+12+6钢化中空LOW-E玻璃(充惰性气体)。
面层固定采用结构胶双面胶条,硅酮密封胶嵌缝、塞口。
二、主要施工方法为保证幕墙的装饰效果,采取如下措施控制好质量:1、主梁安装:本工程幕墙铝合金立柱采用双系点结构。
层与层之间设置15mm 伸缩缝。
中间采用套芯连接。
(1)、将主梁通过不锈钢螺栓与支座相连接,支座再通过螺栓与预埋件固定,并调整、固定。
按主梁轴线及标高位将主梁标高偏差调整至不大于3mm,轴线前后偏差调整至不大于2mm,左右偏差调至不大于3mm;立柱与支座挂码间防腐尼龙垫片,以减少幕墙运动时产生的吵音.及防止刚性连接产生的破坏.(2)、主梁的安装顺序:幕墙主梁的安装工作,是从结构的底部向上安装,待埋件的安装校核完毕后就可进行。
先对照施工图检查主梁的尺寸及加工孔位是否正确,然后将副件、芯套、支座、支撑板安装上主梁。
主梁与支座接好后,先放螺栓,调整主梁的垂直度与水平度,然后上紧螺栓,最后紧固定位.(3)、主梁找平、调整主梁的垂直度可用吊锤控制,平面度由两根定位轴线之间所引的水平线控制。
该工程的主梁为每层楼一根,设两个点,主梁为吊装,上下主梁的连接用芯套,上下之间可自由伸缩;2、横梁安装:a、主梁与横梁通过安装铝角码用不锈钢螺丝相连接,要求安装牢固,接缝严密;接缝处布置防腐尼龙垫片以减少幕墙运动时产生的吵音。
及防止刚性连接产生的破坏。
b、相邻两根横梁的安装角码水平标高偏差不大于1mm。
c、同一层安装角码安装应由下向上进行,当安装完一层高度时,应进行检查、调整、校正、固定,使其符合质量要求;d、调整好整幅幕墙的垂直度、水平度后,加固好主梁,然后进行安装角码安装,保证框对角线误差≤1mm。
隐框玻璃幕墙专项施工方案工程名称:工程地点:施工单位:编制:审核:审批:年月日目录一、工程概况 (3)二、项目的质量目标 (3)三、项目管理组织 (3)四、主要资源供应计划 (4)五、施工进度计划 (4)六、幕墙施工流程及工艺 (4)七、施工过程控制程序 (7)八、质量保证体系…………………………………………………. . 10九、主要技术措施 (10)十、产品保护措施 (13)十一、施工安全及消防保卫措施 (14)十二、玻璃幕墙工程验收 (15)十三、保修期及售后服务 (17)一、工程概况:1、幕墙概况:幕墙位于×××××××,建筑物共××,幕墙最大高度××,幕墙共分×××。
(参看详图)。
2、幕墙结构情况:1)铝材料:采用150系列隐框幕墙材料,表面氧化处膜厚15μm 颜色为银白色,材料应符合GB/T5237-93。
2)钢板、角钢为热镀锌处理。
3)玻璃采用6+12A+6镀膜双钢化玻璃。
4)硅胶采用黑色硅酮结构胶和耐候胶。
5)幕墙结构:采用150系列隐框玻璃幕墙结构(参看详图)详情参看设计图纸节点图。
二、项目的质量目标本项目的质量目标:确保省样板,争创鲁班奖。
三、项目管理组织及施工人员配备-1 二)主要机具需用计划-2三)主要材料计划-3五、施工进度计划1、后置预埋件安装由我公司派出安装小组进行安装。
2、幕墙、铝门窗安装(详见施工进度计划表)。
六、幕墙施工流程及工艺施工方案一)施工流程放线定位→机械加工→车间组装→支座安装→立柱安装→横梁安装→玻璃(铝板)安装→注密封胶→饰面清洁→预验收→交付验收二)施工方案1、施工准备1)构件加工、组装完成。
2)所有构件需编号包装完好,各种附件配套齐全。
3)防腐材料、防火材料、填缝材料、密封材料、保护材料、清洁材料等应符合设计要求和有关的规定。
4)幕墙设置后置预埋件。
5)构件安装前,应检查其外观质量,如有表面损伤、变形及松动等问题,应及时进行修理、校正等处理,合格后才能进行安装。
2、施工安装1)测量定位幕墙分格轴线的测量要与主体结构测量配合,一般按土建提供的中心线经我方复测确定后,上下放钢线进行定位,水平放线用水平仪复测定位。
对高层建筑的测量应在风力不大于4级情况下进行。
2)后置预埋件安装按照设计分格确定后置预埋件安装位置,铁件安装标高偏差不应大于设计设置10mm;铁件安装位置与设计位置的偏差不应大于20mm。
铁件拉爆螺丝的安装孔深不应小于100mm。
3)支座安装每层楼幕墙支座安装后用水平仪检测,相邻支座水平误差应符合规范标准,轴线内外偏差不得大于2mm,左右方向偏差不得大于3mm。
支座的焊接施工要持证上岗,设备保证运行状况良好。
无质量证明或经检验不合格的母材及焊接材料不得用于焊接。
焊接缝要配备专人检查,焊缝宽度应≤5mm,焊缝不应有气泡及断缝现象。
焊接完成后,经自检合格和专检合格后报监理工程师检验,监理工程师检验合格签认后方能进入下一工序施工。
4)立柱的安装立柱由上至下逐层安装,将立柱先与连接件连接,然后连接件再与主体预埋件连接,接好后进行调整和固定。
立柱安装标高偏差应≤3mm,轴线前后偏差应≤2mm,左右偏差应≤3mm。
相邻两根立柱安装标高偏差应≤3mm,同层立柱的最大标高偏差应≤5mm,相邻两根立柱的距离偏差应≤2mm。
5)横梁的安装将横梁两端的连接件在立柱的预定位置,并应安装牢固,接缝应严密。
相邻两根横梁的水平标高偏差应≤1mm;同层标高偏差:当一幅幕墙宽度小于或等于35m时应≤5mm,当一幅幕墙宽度大于35m时应≤7mm。
同一层的横梁安装应由下向上进行。
当安装完一层高度时,应进行检查、调整、校正、固定,以符合质量要求。
6) 玻璃安装玻璃安装前应将表面尘土和污物擦拭干净。
热反射玻璃安装应将镀膜面朝向室内,非镀膜面朝向室外。
玻璃与构件不得直接接触。
玻璃四周与构件凹槽底应保持一定空隙,每块玻璃下部应设不少于二块弹性定位垫块;垫块的宽度与槽口宽度相同,长度不应小于100mm;玻璃两边嵌入量及空隙应符合设计要求。
玻璃四周橡胶条应按规定型号选用,镶嵌平整。
橡胶条长度宜比边框内槽口长%~2,其断口应留在四角;斜面断开后应拼成预定的设计角度,并应用粘结剂粘结牢固后嵌入槽内。
幕墙的分格玻璃接缝应横平竖直、均匀一致。
7)防火层处理幕墙与主体结构层之间的缝隙应采用100厚防火矿棉和厚防火钢板等保温材料填塞,内外表面应采用密封胶连续封闭,接缝应严密不漏水。
按防火《建筑设计防火规范》GBJ16、《高层民用建筑设计防火规范》GB50045、《建筑内部装修设计防火规范》GB5022的规定实施。
8)硅酮密封胶施工硅酮结构胶施工参照《打胶作业指导书》操作。
硅酮耐候密封胶的施工厚度应大于,施工宽度不应小于施工厚度的2倍;较深的密封槽口底部应采用聚乙烯发泡材料填塞。
硅酮耐候胶在接缝内应形成相对两面粘结,并不得三面粘结。
9)幕墙安装施工隐蔽验收内容构件与主体结构的连接节点的安装。
幕墙四周、幕墙内表面与主体结构之间间隙节点的安装。
幕墙伸缩缝、沉降缝、防震缝及墙面转角节点的安装。
幕墙防雷接地节点的安装,按防雷执行标准的规范《建筑防雷设计规范》GB50057、《民用建筑电气设计规范》JGJ/T16。
七、施工过程控制程序一、施工准备施工准备工作主要包括下列内容:①建立施工组织管理机构(项目组),管理人员配备到位。
②施工图纸会审。
③编制施工材料采购计划。
④编制技术文件、主要设备需用计划。
⑤编制车间生产计划和现场安装计划。
⑥技术培训及技术交底。
⑦其他需要准备的内容按项目质量策划编制指导书要求执行。
二、技术文件和资料准备技术文件准备包括技术文件的编制和外来文件的搜集。
外来文件包括施工图纸、施工规范、检验标准、图集、设计修改和安装使用说明书,以及业主提供的有关技术资料和文件。
三、技术文件的编制和审批1、编制《施工组织设计(方案)》和技术交底书。
2、《施工组织设计(方案)》由工程部编制,副总经理审批。
3、项目材料预算由工艺员编制,技术质量部部长审核,副总经理审批。
四、施工图会审1、施工图会审由工程部长负责组织进行,项目负责人、技术负责人、质检负责人等有关人员参加,由技术负责人根据设计院及业主的有关要求进行设计交底并答疑,对施工图纸进行全面审查的过程。
由技术负责人编写会审记录存档。
2、在进行会审前,项目组要认真熟悉到手的全部施工图纸,弄清工艺流程、结构特点和技术要求,认真查对图纸上的全部标注尺寸是否有错,防止准备工作不充分而仓促进行。
3、按设计图纸及相关文件执行。
五、生产过程控制参照《生产过程控制程序》的有关程序实施。
六、工地安装过程控制1、开工前,施工员对施工组全体成员进行技术交底,并在施工员施工日记上记录交底的时间、内容及参加交底的人数,参加交底的人员要在《技术交底表》上签名。
2、技术交底要求:工程内容、工艺流程、工序划分、施工方法、检验要求及工序的交接办法都要交代清楚。
3、电工、焊工等特种作业人员要持证上岗,所持证件须在有效期内。
4、开工前,施工员要对施工班组全体成员进行安全交底,参加交底人员要在安全交底记录表上签字。
5、每道工序(过程)完工后,实行由班组“自检”、施工员“复检”和质检员“终检”的三检制,上道工序检验不合格,不准转入下道工序施工。
施工员和质检员在“检验记录”(包括隐蔽工程记录)上签字方为合格凭证。
6、对设计修改(施工图纸等修改)通知,按原图纸的收发程序签收、登记、发放和管理,并按收到修改通知的先后编上序号,以便于查对和管理。
每个修改通知单施工员都要作技术交底,执行后要进行跟踪检查和验收。
在施工过程中,要保护施工图纸不丢失和损坏,不许在施工图纸上擅自随意涂改和勾画。
七)特殊过程控制当过程的结果不能通过事后的检验和试验、完全验证时,如焊接、隐蔽件、玻璃打胶工序称为特殊工程。
对这些过程应进行确认,证实它们的过程能力。
适用时,这些确认的安排应包括:a、过程鉴定,证实所使用的过程方法是否符合要求并有效实施。
b、对所使用的设备、设施能力(包括精确度、安全性、可用性等要求)及维护保养有严格要求,并保存维护保养记录。
c、关键工序和特殊工序的操作人员必须经过培训,经考核合格后才能持证上岗。
d、由技术质量部编制相应的技术标准,工程部编制相应的作业指导书,经部门负责人审核后实施,以确保产品质量。
e、工程部项目经理对关键工序和特殊工序予以明确标识,并进行严格的连续质量监控,按要求填写各类监控记录。
f、过程的再确认,按规定的时间间隔或生产条件发生变化时(如材料、设施、人员的变化等),应对上述过程进行再确认,确保对影响过程能力的变化及时作出反应,根据需要对相应的生产工艺和作业指导书进行更改,执行《文件控制程序》关于文件更改的有关规定。
八)、工程竣工验收控制1、工程竣工验收应具备的条件:①项目已全部完工,并经检验合格。
②验收资料齐全,签字完善,符合规定要求。
2、工程竣工验收程序:(1)自检验收:由项目组负责,按第1点要求执行。
验收合格后,向工程部写出竣工报告,申请竣工验收。
(2)工程部收到竣工报告后,组织相关部门到现场(工地)进行检查是否符合竣工验收条件。
检查合格后,由工程部向业主(甲方)写出竣工验收报告。
(3)以建设单位、质量检测单位验收意见为质量评定意见。
九)工程资料管理从工程投标书到工程竣工验收全过程管理、计划、记录、通知等资料在工程竣工验收后全部交公司办公室资料员存档。
八、质量保证体系我公司严格按照IS09001:2000质量管理体系要求进行每一工程项目的管理工作,以确保项目的质量目标得到实现。
操作文件有:一)质量手册(QM001);二)程序文件(QP001~022);三)各类作业指导书(QW-001-036)。
九、主要技术措施按国家标准(玻璃幕墙技术操作规程要求)交底,按国家质量检验标准,J139-2001施工及验收规范施工作业,按国标验收规程进行验收保修。
一)本项目材料采购引用的标准:1、铝型材(粉末喷涂型材)GB/T 5237-932、玻璃:浮法玻璃GB11614、夹层玻璃GB99623、钢材GB 7004、密封材料(工业用橡胶板)GB/T 5574(硫化橡胶分类橡胶材料)GB/ T 16589(建筑用硅酮结构密封胶)GB 16776二)产品加工、安装施工引用标准:1、平开铝合金窗GB8479-872、平开铝合金门GB8478-873、玻璃幕墙工程技术规范JGJ102-96三)玻璃幕墙构件技术要求:1、玻璃幕墙材料经检验合格,符合国家产品标准的规定,并有相应的合格证。
2、结构硅酮密封胶应有与接触材料相容性试验报告,并有保险年限的质量证书。